รีวิว-เยี่ยมชม พรีเมี่ยม เพลส เกษตร - นวมินทร์ (Premium Place Kaset - Nawamin)
กลับมาพบกับรีวิวบ้านกันอีกเช่นเคยนะคะ วันนี้ CheckRaka.com ขอพาทุกท่านไปเยี่ยมชม โฮมออฟฟิศแบบพรีเมียมที่การันตีจากการได้รับรางวัลโฮมออฟฟิศดีเด่น ในปี 2019 นี้ ในโครงการที่มีชื่อว่า
พรีเมี่ยม เพลส เกษตร - นวมินทร์ (Premium Place Kaset - Nawamin) พรีเมี่ยม เพลส เกษตร - นวมินทร์ (Premium Place Kaset - Nawamin) จาก พรีเมี่ยมเพลส กรุ๊ป ซึ่งเป็นโฮมออฟฟิศ 4 ชั้น และ โฮมออฟฟิศ 5 ชั้น โดดเด่นด้วยทำเลที่สามารถเชื่อมต่อถนนหลักได้หลายเส้น ทั้งเกษตร-นวมินทร์, เลียบทางด่วน-รามอินทรา, พหลโยธิน และลาดพร้าว ใกล้ทางขึ้นทางด่วนรามอินทรา-อาจณรงค์ ด่านโยธินพัฒนา และไม่ไกลจากรถไฟฟ้าหลายสาย อีกทั้งพื้นที่ภายในขนาดใหญ่ที่ปรับได้ตามใจชอบ และยังให้ความรู้สึกหรูหรา โอ่อ่า กับดีไซน์แบบโมเดิร์น รวมถึงยังตอบโจทย์การลงทุน ทั้งในรูปแบบทรัพย์สิน และขยายขนาดธุรกิจ จะน่าสนใจแค่ไหน ตามไปชมรายละเอียดกันเลยค่ะ
- เจ้าของโครงการ : บริษัท พรีเมี่ยม เพลสกรุ๊ป จำกัด
- ที่ตั้งโครงการ : ถนนสุคนธสวัสดิ์ แขวงลาดพร้าว เขตลาดพร้าว กรุงเทพมหานคร 10230
- ขนาดพื้นที่โครงการ : 5-0-96.1 ไร่
- จำนวนบ้าน : 43 หลัง
- ขนาดที่ดิน : ตั้งแต่ 24 - 36 ตร.ว.
- ขนาดพื้นที่ใช้สอย : 250 - 450 ตร.ม.
- ปัจจุบันมีโฮมออฟฟิศทั้งหมด 3 แบบ แบบ 5 ชั้น หน้ากว้าง 9 เมตร, แบบ 4 ชั้น หน้ากว้าง 5.7 เมตร และแบบ 4 ชั้น หน้ากว้าง 6 เมตร
- สิ่งอำนวยความสะดวก : สวนส่วนกลาง, ฟิตเนส, ระบบรักษาความปลอดภัยตลอด 24 ชม. และ CCTV
- ราคาเริ่มต้น 12.9 ล้านบาท
- วันที่เยี่ยมชมโครงการ ณ วันที่ 31 กรกฎาคม 2562
ทำเลที่ตั้ง และการเดินทาง
โครงการตั้งอยู่ถนนสุคนธสวัสดิ์ (ระหว่างซอย 11-13) แขวงลาดพร้าว เขตลาดพร้าว กรุงเทพมหานคร 10230 ซึ่งเป็นทำเลที่เรียกว่าเดินทางสะดวก สามารถเดินทางเข้า-ออกได้ทั้ง ถนนเกษตร-นวมินทร์, ถนนเลียบทางด่วน-รามอินทรา, ถนนพหลโยธิน และถนนลาดพร้าว

แผนที่แสดงสถานที่สำคัญรอบๆ โครงการ (
คลิกดูภาพใหญ่)
(GPS
13.826146, 100.621135 )
1. เดินทางโดยรถยนต์
ขาเข้าโครงการเส้นทางที่ 1 : จากถนนเลียบทางด่วนรามอินทรา
ขาเข้าโครงการเส้นทางที่ 2 : จากแยก ม.เกษตรศาสตร์
ขาออกโครงการเส้นทางที่ 1 : ขึ้นทางด่วนรามอินทรา-อาจณรงค์
ขาออกโครงการเส้นทางที่ 2 : ไปถนนลาดพร้าว
ขึ้นทางด่วนรามอินทรา-อาจณรงค์
สำหรับโครงการนี้อยู่ไม่ไกลจากทางด่วน รามอินทรา-อาจณรงค์ สามารถไปขึ้นทางด่วน ด่านโยธินพัฒนาได้ โดยมีระยะทางประมาณ 2 กม.

แผนที่ทางด่วน รามอินทรา-อาจณรงค์ ที่ใกล้กับโครงการ
2. เดินทางด้วยรถไฟฟ้า
2.1 รถไฟฟ้าสายสีเขียว (ห้าแยกลาดพร้าว-คูคต)
สำหรับรถไฟฟ้าสายสีเขียว (ห้าแยกลาดพร้าว-คูคต) กำลังจะเปิดใช้งานปลายปี 2562 นี้ โดยสถานีที่ใกล้โครงการคือ สถานีเสนานิคม และสถานี ม.เกษตรศาสตร์ มีระยะทางประมาณ 6.1 กม.

แผนผังสถานีรถไฟฟ้าสายสีเขียว (ห้าแยกลาดพร้าว-คูคต)
(ดูภาพขนาดใหญ่)
ระยะทางจากโครงการไปยังรถไฟฟ้าสายสีเขียว สถานีเสนานิคม
2.2 รถไฟฟ้าสายสีน้ำตาล (ช่วงแคราย-ลำสาลี)
รถไฟฟ้าสายสีน้ำตาล ช่วงแคราย-ลำสาลี เป็นโครงการในอนาคต คาดว่าจะก่อสร้างปี 2563 และเปิดใช้งานปี 2568 มีจำนวน 20 สถานี เริ่มต้นจากแยกแคราย มุ่งหน้าไปตามแนวถนนงามวงศ์วาน ผ่านแยกเกษตร ต่อเนื่องไปตามแนวถนนประเสริฐมนูกิจ ตัดทางพิเศษฉลองรัช (รามอินทรา-อาจณรงค์) แล้วเลี้ยวขวาลงไปทางทิศใต้ตามแนวถนนนวมินทร์ ผ่านแยกโพธิ์แก้ว แยกศรีบูรพา แยกแฮปปี้แลนด์ แยกบางกะปิ ไปสิ้นสุดที่จุดตัดถนนพ่วงศิริและถนนรามคำแหง รวมระยะทาง 22.3 กม. สำหรับสถานีที่ใกล้โครงการมากที่สุดคือ สถานี สตรีวิทยา 2

แผนผังสถานีรถไฟฟ้าสายสีน้ำตาล ช่วงแคราย-ลำสาลี
2.3 รถไฟฟ้าสายสีชมพู (ช่วงแคราย-มีนบุรี)
โครงการรถไฟฟ้าสายสีชมพู ช่วงแคราย-มีนบุรี มีระยะทางประมาณ 34.5 กม. โดยมีจุดเริ่มต้นบนถนนรัตนาธิเบศร์บริเวณด้านหน้าศูนย์ราชการจังหวัดนนทบุรี จุดสิ้นสุดโครงการที่ทางแยกร่มเกล้า บริเวณซอยรามคำแหง 192 รวมมีสถานีรับส่งผู้โดยสาร 30 สถานี สำหรับสถานีที่ใกล้โครงการมากที่สุดคือ สถานี วัชรพล ระยะทางประมาณ 4.8 กม.

แผนผังรถไฟฟ้าสายสีชมพู ช่วงแคราย-มีนบุรี
(ดูภาพขนาดใหญ่) ถนนสุคนธสวัสดิ์ ถือเป็นถนนที่มีทำเลที่ดี แม้จะเป็นถนนเส้นรอง แต่สามารถเชื่อมต่อถนนเส้นอื่นๆ ได้หลายเส้นทาง และยังอุดมสมบูรณ์ไปด้วยแหล่งอำนวยความสะดวกแบบครอบคลุมรอบด้าน อย่างละแวกโครงการเอง ก็จะมีร้านอาหารต่างๆ มากมาย มีตลาดขนาดใหญ่ และโรงเรียน ส่วนถนนเกษตร-นวมินทร์ ซึ่งใกล้กับโครงการ ก็มีคอมมูนิตี้ มอลล์ อย่างนวมินทร์ ซิตี้ อเวนิว, เดอะ วอล์ค เกษตร-นวมินทร์ มาถึงถนนเลียบทางด่วนรามอินทรา ที่สามารถใช้ซอยนาคนิวาส 16 ไปทะลุได้ ก็จะมีห้างสรรพสินค้าขนาดใหญ่ อาทิ Tesco Lotus Extera รามอินทรา, เซ็นทรัล เฟสติวัล อีสต์วิลล์ และคริสตัล ปาร์ค เป็นต้น

ตำแหน่งโครงการ พรีเมี่ยม เพลส เกษตร - นวมินทร์ จากมุมสูง
บรรยากาศใกล้ๆ ภายในซอย

ร้านก๋วยเตี๋ยวไก่ข้างโครงการ

ร้านข้าวผัดปูเมืองทอง ใกล้กับแยกถนนสุคนธสวัสดิ์ตัดกับเกษตร-นวมินทร์ ห่างจากโครงการ 450 เมตร

คอฟฟี่เฮ้าส์ที่ซอย 9/1 ห่างจากโครงการ 120 เมตร

ร้านอาหารครัวบาบ๋า ห่างจากโครงการ 120 เมตร

Drink76 coffee ห่างจากโครงการ 160 เมตร

ปั๊มบางจาก ห่างจากโครงการ 180 เมตร

ร้านอาหารหลากหลายร้านตรงปากซอย 16 ห่างจากโครงการ 350 เมตร

ร้านกาแฟและขายอาหารตรงข้ามตลาดทรัพย์นิมิตร ห่างจากโครงการ 400 เมตร

ตลาดทรัพย์นิมิตร ห่างจากโครงการ 400 เมตร

โรงเรียนสตรีวิทยา 2 ห่างจากโครงการ 500 เมตร
สถานที่สำคัญไม่ไกลจากโครงการ

เดอะวอล์ค เกษตร-นวมินทร์ ห่างจากโครงการประมาณ 1 กม.

อินเด็กซ์ ลิฟวิ่งมอลล์ ห่างจากโครงการประมาณ 1 กม.

นวมินทร์ ซิตี้ อเวนิว ห่างจากโครงการประมาณ 1.9 กม.

คริสตัล ปาร์ค ห่างจากโครงการประมาณ 3 กม.

เซ็นทรัล เฟสติวัล อีสต์วิลล์ ห่างจากโครงการประมาณ 3.9 กม.

เทสโก้ โลตัส เอ็กซ์ตร้า สาขารามอินทรา ห่างจากโครงการประมาณ 4 กม.
แบบบ้าน และตัวโครงการโดยรวม
พรีเมี่ยม เพลส เกษตร - นวมินทร์ (Premium Place Kaset - Nawamin) โฮมออฟฟิศ 4 ชั้น และโฮมออฟฟิศ 5 ชั้น สไตล์โมเดิร์น ตั้งอยู่ติดถนนสุคนธสวัสดิ์ มีจำนวนบ้านรวมทั้งหมด 43 หลัง แบ่งเป็น โฮมออฟฟิศ 4 ชั้น 33 หลัง และโฮมออฟฟิศ 5 ชั้น 10 หลัง แปลงโครงการมีลักษณะคล้ายตัว L สร้างอยู่บนแปลงที่ดินขนาด 5-0-96.1 ไร่ มีพื้นที่ส่วนกลางเป็นสวนสีเขียว และที่จอดรถส่วนกลาง ซึ่งจอดรถได้ 24 คัน อยู่ค่อนไปทางท้ายของโครงการ ส่วนทางเข้า - ออกหลัก มีเพียงทางเดียวคือ หน้าถนนสุคนธสวัสดิ์ รั้วรอบโครงการมีความสูงอยู่ที่ 2.5 เมตร พร้อมระแนงโปร่ง 1.2 เมตร ถนนเมนกว้าง 11 เมตร และถนนซอยกว้าง 9 เมตร

Master Plan โครงการ พรีเมี่ยม เพลส เกษตร - นวมินทร์
แสดงให้เห็นถึงขอบเขตโครงการโดยรวม ที่ตั้งของบ้าน สวนสาธารณะ ฟิตเนส และทางเข้า-ออก

ทางเข้า-ออกหลัก ติดถนนสุคนธสวัสดิ์ ซุ้มประตูโครงการสไตล์โมเดิร์น มีขนาดพอเหมาะ
พร้อมชื่อโครงการ Premium Place Kaset - Nawamin เห็นเด่นชัด

บรรยากาศด้านหน้าโครงการฝั่งขวามือ

บรรยากาศด้านหน้าโครงการฝั่งซ้ายมือ Sales Office ตั้งอยู่ด้านนี้

บรรยากาศด้านใน Sales Office

มีโต๊ะ เก้าอี้ ต้อนรับพร้อมโซฟาขนาดใหญ่

มาดูซุ้มประตูทางเข้า-ออก มีหลังคากันแดด-ฝนให้ ดีไซน์สวย โทนสีดำตัดกับสีน้ำตาลลายไม้ และสีครีม

ด้านหน้าทางเข้าจะติดตั้ง Access Card ระยะใกล้มาให้

ที่ซุ้มประตูทางเข้าโครงการมีทั้ง รปภ. จุดสแกน ไม้กั้นกระดก และ CCTV มีห้องสำหรับรปภ. กั้นตรงกลางระหว่างทางเข้าและทางออก ควบคุมการเข้าออกด้วยระบบ Access Card

ถนนหลักช่วงนี้กว้าง 11 เมตร

ถนนภายในซอยกว้าง 9 เมตร
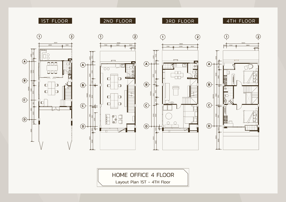
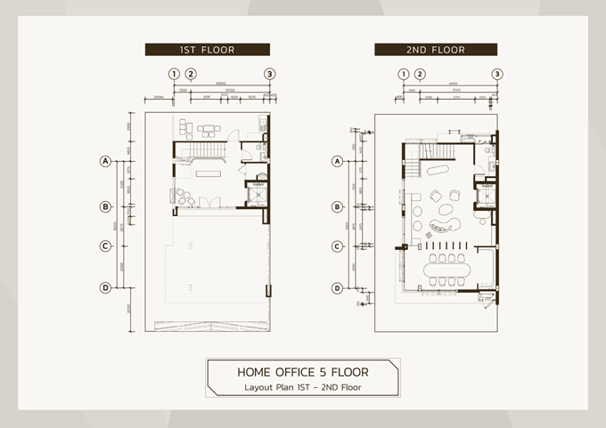
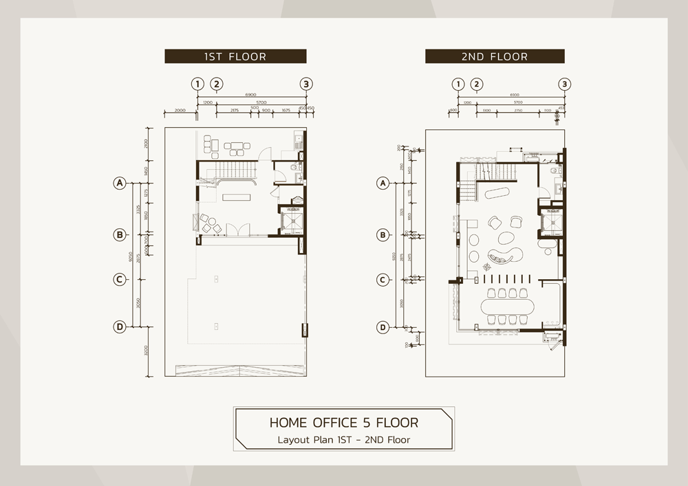
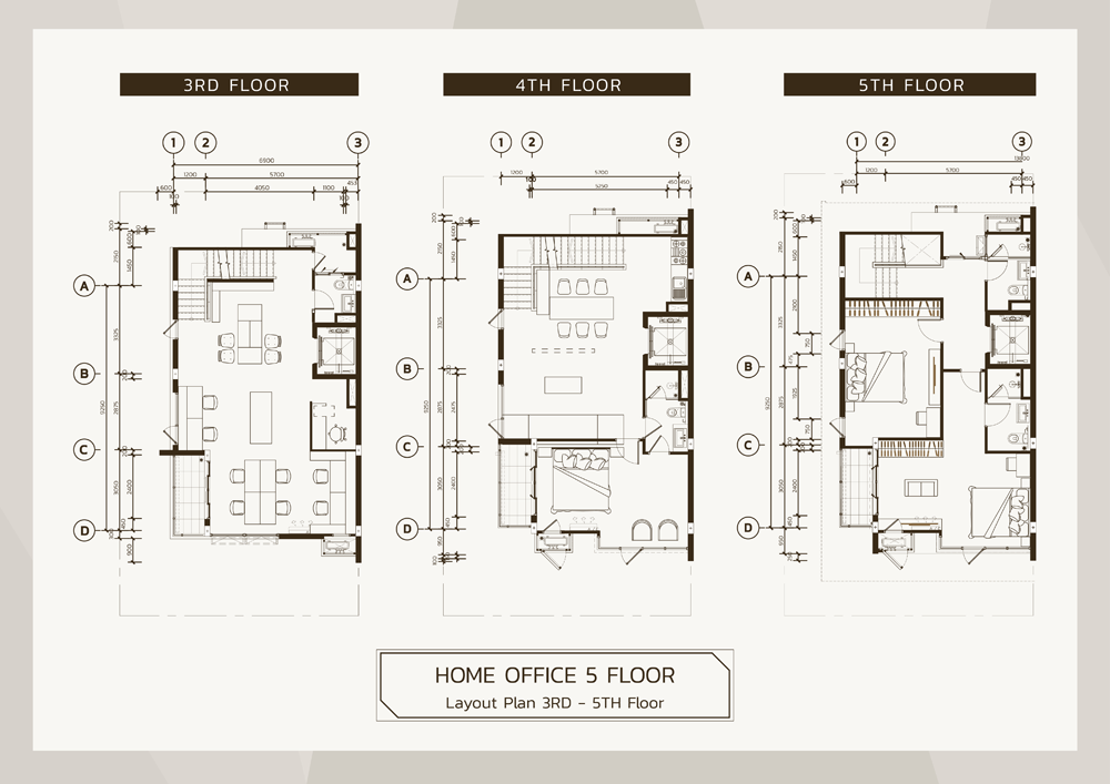
แบบบ้านและ Floor Plan ภายในโครงการมี 3 แบบ
1. Home Office 4 ชั้น - โฮมออฟฟิศ 4 ชั้น หน้ากว้าง 5.7 เมตร พื้นที่ใช้สอย 250 ตร.ม. บนที่ดินเริ่มต้น 24 ตร.ว. ขนาด 3 ห้องนอน 4 ห้องน้ำ 2 ที่จอดรถ
.png)
โฮมออฟฟิศ 4 ชั้น หน้ากว้าง 5.7 เมตร
2. Home Office 4 ชั้น - โฮมออฟฟิศ 4 ชั้น หน้ากว้าง 6 เมตร พื้นที่ใช้สอย 265 ตร.ม. บนที่ดินเริ่มต้น 24 ตร.ว. ขนาด 3 ห้องนอน 4 ห้องน้ำ 2 ที่จอดรถ

โฮมออฟฟิศ 4 ชั้น หน้ากว้าง 6 เมตร
3. Home Office 5 ชั้น - โฮมออฟฟิศแฝด 5 ชั้น หน้ากว้าง 7.0 เมตร พื้นที่ใช้สอย 450 ตร.ม. บนที่ดินเริ่มต้น 36 ตร.ว. ขนาด 3 ห้องนอน 6 ห้องน้ำ 6 ที่จอดรถ

โฮมออฟฟิศแฝด 5 ชั้น หน้ากว้าง 7.0 เมตร
ส่วนกลางและสิ่งอำนวยความสะดวก
- สวนส่วนกลางขนาด 250 ตร.ม.
- ฟิตเนส ขนาด 5 x 8 เมตร มีเครื่องเล่น 5 ชุด
- ที่จอดรถส่วนกลาง 24 คัน
- Keycard Access
- CCTV 16 จุด
- เจ้าหน้าที่รักษาความปลอดภัย

ภาพมุมสูงของสวนสาธารณะภายในโครงการ

เนื่องจากเป็นโฮมออฟฟิศ ด้านในโครงการมีที่จอดรถส่วนกลางสำหรับลูกบ้านหรือผู้มาติดต่อให้ด้วย

โดยรวมแล้วสามารถจอดรถได้มากถึง 24 คัน

ที่จอดรถส่วนกลางอยู่ช่วงท้ายโครงการ

ติดกับที่จอดรถจะเป็นฟิตเนส ซึ่งเป็นอาคารชั้นเดียว มีกระจกล้อมรอบ

ภายในฟิตเนสมีเครื่องเล่นให้ทั้งหมด 5 ชุด

มีกระจกบานใหญ่ล้อมรอบ ออกกำลังกายไปชมวิวไปด้วยก็เพลินดีค่ะ

สวนสีเขียวอยู่ติดกับฟิตเนส

ปูหญ้า ทำทางเดิน มีที่นั่ง พร้อมลงไม้ใหญ่ ไม้พุ่ม สีเขียวสดชื่นทีเดียว

ท้ายสวนมีที่นั่งสำหรับพักผ่อน
ภาพบ้านตัวอย่าง และ Layout
สำหรับวันนี้เราจะพาไปชม ทั้ง Home Office 4 ชั้น และ Home Office 5 ชั้น กันเลย ซึ่งแบบ Home Office 4 ชั้น เรานำมาฝากทั้งแบบบ้านที่ตกแต่งแล้ว และแบบบ้านเปล่าพร้อมขาย ส่วน Home Office 5 ชั้น นั้นจะเป็นแบบบ้านเปล่ามาตรฐานเท่านั้น จะเป็นอย่างไรบ้างนั้นไปชมกันเลย

Home Office 4 ชั้น และ Home Office 5 ชั้น
Home Office 4 ชั้น

มาชมแปลนบ้านทั้ง 4 ชั้นกันก่อนค่ะ

สำหรับบ้านตัวอย่างพร้อมตกแต่งที่หลังนี้ เป็นโฮมออฟฟิศ 4 ชั้น หน้ากว้าง 6 เมตร พื้นที่ใช้สอย 265 ตร.ม.
บนที่ดินเริ่มต้น 24 ตร.ว. ขนาด 3 ห้องนอน 4 ห้องน้ำ 2 ที่จอดรถ

แบบหน้ากว้าง 6 เมตร จะมีเพียง 5 หลังนะคะ

สำหรับหลังนี้เป็นโฮมออฟฟิศ 4 ชั้น เหมือนกัน มีหน้ากว้าง 5.7 เมตร พื้นที่ใช้สอย 250 ตร.ม. บนที่ดินเริ่มต้น 24 ตร.ว. ขนาด 3 ห้องนอน 4 ห้องน้ำ 2 ที่จอดรถ ซึ่งฟังก์ชันภายในบ้านนั้นเหมือนกันกับแบบหน้ากว้าง 6 เมตร ทุกอย่างเลย

บ้านที่ส่งมอบลูกค้า ประตูบ้านเป็นประตูเหล็กบานพับสีดำ มีกำแพงปูนสีเทา

พื้นจอดรถจะเป็นคอนกรีตเสริมเหล็กขัดหยาบลาดยาวจนถึงประตูรั้ว ลงเสาเข็มให้ในส่วนพื้นที่ร่ม หน้ากว้าง 5.7 เมตร สามารถจอดรถได้ 2 คัน

ประตูทางเข้าหลัก ติดตั้ง Digital Door Lock ของ Samsung มาให้ทุกหลัง พร้อมการ์ดหลังละ 2 ใบ และมีกุญแจสำหรับเปิด-ปิดให้ด้วย กรอบประตู Aluminium Powdercoat สีดำ เฉลียงหน้าบ้านปูกระเบื้อง 30 x 30 ซม.

เปิดประตูเข้ามาจะเห็นโถงชั้น 1 ยาวไปจนสุดผนังด้านหลัง ชั้น 1 นี้เหมาะจะทำเป็นส่วนต้อนรับแขก วางโซฟา
หรือเกาอี้แบบบ้านตัวอย่างก็ได้ ส่วนประตูกระจกด้านข้างมีให้เฉพาะแปลงมุม ทำให้แสงสว่างเข้ามาในตัวบ้าน
โปร่ง โล่งทีเดียว ติดตั้ง กล้อง CCTV ให้ 2 จุด

ฟังก์ชันบ้านชั้น 1 จะเป็นทางขึ้นชั้น 2 และห้องน้ำ จะมีประตูตรงข้ามห้องน้ำเป็นห้องเก็บของค่ะ

เปรียบเทียบกับบ้านเปล่ามาตรฐานในมุมเดียวกัน พื้นชั้นนี้ปูด้วยกระเบื้องแกรนิตโต้ 60 x 60 ซม. ฝ้าที่ให้เป็นฝ้าเรียบ
ไฟด้านล่างเป็นไฟดาวน์ไลท์ มีความสูง 3 เมตร

จากมุมนี้จะเห็นฟังก์ชันบ้านชั้น 1 ชัดขึ้น

เปรียบเทียบกับบ้านเปล่ามาตรฐานในมุมเดียวกัน

มุมนี้สามารถจัดวาง Pantry และตู้เย็นได้พอดี

ห้องน้ำชั้น 1 ให้สุขภัณฑ์มาครบ ทั้งอ่างล้างมือ ก๊อกน้ำ โถสุขภัณฑ์สำหรับผู้ชาย/โถสุขภัณฑ์ปกติ
ของ American Standard และมีบานกระทุ้งระบายอากาศ 1 บาน

สำหรับมุมนี้ จะถือว่าเป็นมุมสำหรับวางโต๊ะรับประทานอาหารก็ได้ สามารถวางโต๊ะขนาด 6-8 ที่นั่งได้เลย

มีประตูบานเลื่อนคู่เปิดออกไปลานซักล้างหลังบ้าน

สำหรับลานซักล้างหลังบ้าน ปูกระเบื้องขนาด 30 x 30 ซม. ไว้ให้

สำหรับบ้านเปล่ามาตรฐานจะเทคอนกรีต On Ground ขัดหยาบให้เต็มพื้นที่ และปูกระเบื้องขนาด 30 x 30 ซม.
เหมือนกัน สามารถต่อเติมเป็นครัวได้เลย และให้แทงค์น้ำ ปั๊มน้ำด้วย

จบชั้น 1 แล้ว เราขึ้นไปดูที่ชั้น 2 กันต่อเลยค่ะ บันไดที่นี่วางตัวอยู่ช่วงหน้าบ้าน เป็นบันไดโครงสร้างคอนกรีตเสริมเหล็กให้ความรู้สึกมั่นคง เดินแล้วไม่มีเสียงดัง พื้นบันไดปูด้วยไม้เทียมสีน้ำตาล

ทางขึ้นมีราวจับให้ 1 ด้าน

ขึ้นมาที่ชั้น 2 ทางโครงการตกแต่งเป็นออฟฟิศไว้

ที่ชั้น 2 จะมีห้องน้ำ วางตัวอยู่ด้านหลังใกล้บันไดทางขึ้นจากชั้น 1

เปรียบเทียบกับบ้านเปล่ามาตรฐานในมุมเดียวกัน

ห้องน้ำชั้น 1 ให้สุขภัณฑ์มาครบ มีอ่างล้างมือ ก๊อกน้ำ โถสุขภัณฑ์สำหรับผู้ชาย/โถสุขภัณฑ์ปกติ ของ American Standard และมีบานกระทุ้งระบายอากาศ 1 บาน

ชั้น 2 เป็นโถงโล่งยาวไปจนสุดผนัง สามารถตกแต่งเป็นโต๊ะทำงานได้ 8-10 ที่ แบบบ้านตัวอย่างนี้เลย
และพื้นที่ด้านข้างยังสามารถ Built-in เป็นตู้เก็บของ ชั้นวางของภายในออฟฟิศได้อีกด้วย

เปรียบเทียบกับบ้านเปล่ามาตรฐานในมุมเดียวกัน พื้นชั้นนี้ปูด้วยกระเบื้องแกรนิตโต้ 60 x 60 ซม. เหมือนชั้น 1 ฝ้าที่ให้เป็นฝ้าเรียบ ไฟเป็นไฟดาวน์ไลท์ มีความสูง 2.95 เมตร

ตรงกระจกด้านหน้าสามารถวางโซฟาพักผ่อน สำหรับเป็นพื้นที่นั่งเล่นของพนักงานได้นะคะ

ถ่ายย้อนกลับไปจะเห็นว่าบ้านตัวอย่างตกแต่งมาให้สวยงามมาก

บันไดทางขึ้นไปที่ชั้น 3

ขึ้นมาที่ชั้น 3 ชั้นนี้จะเป็นชั้นของที่อยู่อาศัยแล้วนะคะ ส่วนแรกจะตกแต่งเป็นพื้นที่นั่งเล่น และพื้นที่รับประทานข้าว

วางโซฟาขนาด 3-4 ที่ วางโต๊ะรับประทานอาหาร ติดตั้ง Pantry และตู้เย็น

เปรียบเทียบกับบ้านเปล่ามาตรฐานในมุมเดียวกัน ส่วนแรกจะเห็นเป็นโถงโล่งๆ แบบนี้ พื้นเป็นพื้นลามิเนตหนา 12 มม.
ชั้นนี้มีความสูง 2.75 เมตร

มีประตูบานเลื่อนเปิดออกไประเบียง

มีห้องน้ำวางตัวอยู่ช่วงเดียวกับชั้น 2 มีพื้นที่วางทีวี และมีบันไดทางขึ้นไปชั้น 4

เปรียบเทียบกับบ้านเปล่ามาตรฐานในมุมเดียวกัน

ห้องน้ำชั้น 3 ให้สุขภัณฑ์ครบ ทั้งอ่างล้างมือ ก๊อกน้ำ กระจก โถสุขภัณฑ์ ของ American Standard และมีฉากกั้นอาบน้ำ
ซึ่งเป็นกระจก Temper มาให้

ชั้นนี้จะแยกส่วนเปียก/แห้งให้ด้วยฉากกั้นอาบน้ำกระจก Temper ติดตั้งฝักบัว และมีบานกระทุ้งระบายอากาศ 1 บาน

อีกส่วนนึงจะเป็นส่วนของห้องนอน

เปรียบเทียบกับบ้านเปล่ามาตรฐานในมุมเดียวกัน

ห้องนอนชั้น 3 มีขนาดใหญ่ วางตัวอยู่ฝั่งด้านหน้าบ้าน สามารถวางเตียงขนาด 5-6 ฟุตได้สบายๆ

เปรียบเทียบกับบ้านเปล่ามาตรฐาน จะเห็นว่ามีหน้าต่างบานกระทุ้ง และมีกระจกต่อกันขนาดใหญ่เท่าผนังด้านหน้าเลยทีเดียว
เห็นได้ชัดว่าที่นี่ใส่ใจเรื่องแสงภายในบ้านมากค่ะ

วางเตียงแล้วยังมีพื้นที่ปลายเตียงเหลืออยู่พอสมควร สามารถจัดวางโต๊ะวางทีวีหรือชั้นวางของแบบนี้ก็ได้
กระจกบานใหญ่ด้านข้างบ้านที่เห็นนี้ มีให้เฉพาะแปลงมุมเท่านั้นค่ะ

ขนาดความกว้างของห้องนอนเมื่อวางเตียงแล้ว

เปรียบเทียบกับบ้านเปล่ามาตรฐานในมุมเดียวกัน

ฉากกั้นตรงหัวเตียงที่เห็น Built-in เพิ่มขึ้นมาเพื่อให้ห้องดูเป็นสัดส่วนมากขึ้น

พื้นที่ส่วนที่เหลือจัดเป็น Walk-in Closet ได้

จบชั้น 3 แล้ว ขึ้นไปชมชั้น 4 กันต่อเลยค่ะ

ชั้น 4 จะมีฟังก์ชัน 2 ห้องนอน 1 ห้องน้ำ ชั้นนี้มีความสูง 2.85 เมตร พื้นปูด้วยลามิเนตหนา 12 มม.

เข้ามาชมห้องนอนแรกกันก่อน ห้องนี้วางตัวอยู่ด้านหลังบ้านค่ะ

เปรียบเทียบกับบ้านเปล่ามาตรฐานในมุมเดียวกัน

ห้องนี้มีขนาดพอเหมาะ สามารถวางเตียงนอนขนาดเล็ก 2 เตียง หรือจะวางเตียงใหญ่ก็ยังเหลือพื้นที่ใช้สอยพอสมควร
เหมาะสำหรับเป็นห้องนอนของคุณลูกๆ

อีกฝั่งหนึ่งของห้อง สามารถวางตู้และโต๊ะเครื่องแป้งได้พอดี

มีหน้าต่างบานกระทุ้ง และหน้าต่างบานเลื่อนให้ค่ะ

เปรียบเทียบกับบ้านเปล่ามาตรฐาน

ห้องน้ำของชั้นนี้ เข้า-ออกได้ 2 ด้าน คือเข้าจากในห้องนอน และโถงด้านนอกก็ได้

ห้องน้ำชั้น 4 ให้สุขภัณฑ์ครบ ทั้งอ่างล้างมือ ก๊อกน้ำ กระจก โถสุขภัณฑ์ ของ American Standard และแยกส่วนเปียก/แห้งให้ด้วย ฉากกั้นอาบน้ำกระจก Temper ติดตั้งฝักบัว และมีบานกระทุ้งระบายอากาศ 1 บาน

วัสดุภายในห้องน้ำของ American Standard

ห้องสุดท้ายคือ Master Bedroom วางตัวอยู่ด้านหน้าบ้าน ห้องนี้เป็นห้องที่มีขนาดใหญ่พอๆ กับห้องนอนที่ชั้น 3
ภายในห้องสามารถจัดวางตู้เสื้อผ้า เตียงนอนขนาดใหญ่ และชั้นวางของได้ค่ะ

มีประตูบานเลื่อนขนาดใหญ่เปิดออกไปที่ระเบียงส่วนตัวได้

สำหรับบ้านแปลงมุมจะได้ระเบียงขนาดใหญ่แบบนี้ แต่แปลงกลางระเบียงจะลดขนาดลงไปหน่อย แต่สามารถออกไป
ชมวิว หรือวางกระถางต้นไม้ได้ค่ะ

วางเตียงขนาด 6 ฟุต แล้วยังมีพื้นที่ด้านข้างสำหรับวางโต๊ะข้างเตียง

ปลายเตียงสามารถ Built-in ตู้เสื้อผ้าขนาดใหญ่และมีประตูทางเข้าห้องน้ำจากในห้องนอน
Home Office 5 ชั้น

โฮมออฟฟิศแฝด 5 ชั้น พื้นที่ใช้สอย 450 ตร.ม. บนที่ดินเริ่มต้น 36 ตร.ว. ขนาด 3 ห้องนอน 6 ห้องน้ำ 6 ที่จอดรถ
พร้อมลิฟท์ และ CCTV 
บ้านที่นี่มีหน้ากว้าง 7 เมตร สามารถจอดรถได้ 6 คัน

ประตูทางเข้าติด Digital Door Lock ให้ทุกหลังเหมือนแบบ 4 ชั้น

ชั้น 1 เป็นโถงสำหรับต้อนรับ มีความสูงจากพื้นถึงเพดานอยู่ที่ 2.7 เมตร

โฮมออฟฟิศที่นี่มีลิฟท์ให้ด้วยนะคะ

ขึ้นมาที่ชั้น 2 จะเป็นโถงยาวแบบนี้ ความสูงจากพื้นถึงเพดานอยู่ที่ 2.75 เมตร

ติดกระจกโดยรอบ ทำให้มีแสงธรรมชาติเข้ามาได้ดีทีเดียว

ทางขึ้นบันไดไปชั้น 3

โถงชั้น 3 คล้ายๆ กับชั้น 2 ความสูงจากพื้นถึงเพดานอยู่ที่ 2.75 เมตร

ติดกระจกบานใหญ่ และมีประตูเปิดออกไประเบียงได้ด้วย

ถ่ายย้อนกลับเข้าไปด้านใน

ทางขึ้นไปชั้น 4

ขึ้นมาที่ชั้น 4 สำหรับชั้นนี้สามารถใช้เป็นชั้นที่พักอาศัยได้แล้วค่ะ

ภายในห้องนอน มีหน้าต่างและกระจกบานใหญ่

มีประตูเปิดออกไประเบียงด้านข้าง

ทางเข้าห้องน้ำจากภายในห้อง

บันไดทางขึ้นไปที่ชั้น 5

ขึ้นบันไดมาที่ชั้น 5 จะเห็นห้องน้ำ

ภายในห้องน้ำมีสุขภัณฑ์ให้ครบของ American Standard

มีห้องนอน 2 ห้อง

ห้องนอน 2 อยู่ตรงข้ามลิฟท์

ห้องนอน 1 หรือ Master Bedroom มีห้องน้ำในตัวให้ด้วย ชั้นนี้มีความสูง 2.9 เมตร

ห้องน้ำในตัวมีสุขภัณฑ์เหมือนห้องด้านนอก

ภายในห้องนอนมีหน้าต่างบานและกระจกบานใหญ่

มีประตูเปิดออกไประเบียง
ราคาและค่าใช้จ่ายที่เกี่ยวข้องโดยประมาณ (ณ วันที่ 31 ก.ค. 62 )
ตัวอย่างค่าใช้จ่าย
- โฮมออฟฟิศ 4 ชั้น ราคาเริ่มต้น 12.9 ล้าน
- โฮมออฟฟิศ 5 ชั้น พร้อมลิฟท์ ราคาเริ่มต้น 23.9 ล้าน
- ค่าส่วนกลาง 50 บาท/ตร.ว. จ่าย ณ วันโอน
โปรโมชั่น
วันงาน 17-18 สิงหาคม 2562 - โฮมออฟฟิศ 4 ชั้น ราคาเริ่มต้น 12.9 ล้าน ส่วนลด 1 ล้าน
- โฮมออฟฟิศ 5 ชั้น พร้อมลิฟท์ ราคาเริ่มต้น 23.9 ล้าน ส่วนลด 2 ล้าน
*เงื่อนไขเป็นไปตามที่บริษัทฯ กำหนด*
สถานะปัจจุบันของโครงการ (ณ วันที่ 31 ก.ค. 62 )
โครงการ พรีเมี่ยม เพลส เกษตร - นวมินทร์ (Premium Place Kaset - Nawamin) เป็นโฮมออฟฟิศแบบพรีเมียม เปิดขายโครงการเมื่อปี 2561 เริ่มเปิดขายทีละล็อต ซึ่งเปิดขายไปแล้ว คิดเป็น 70% จากจำนวนบ้านทั้งหมด 43 หลัง ปัจจุบันเปิดขายทั้งโฮมออฟฟิศ 4 ชั้น และ โฮมออฟฟิศ 5 ชั้น ส่วนบริเวณฟิตเนส และสวนสีเขียวสร้างเสร็จเรียบร้อย โฮมออฟฟิศที่นี่เป็นบ้านที่สร้างเสร็จพร้อมโอน ขายบ้านเปล่าไม่ได้ตกแต่งเฟอร์นิเจอร์ให้ หากใครที่กำลังสนใจและมองหาโฮมออฟฟิศสำหรับเริ่มธุรกิจและสามารถปรับเป็นที่อยู่อาศัยด้วยได้ ลองแวะไปชมบ้านจริงพร้อมตกแต่ง และบ้านเปล่าได้ที่สำนักงานขายของโครงการค่ะ
ติดต่อสำนักงานขาย โทร. 02-570-9119 หรือทางเว็บไซต์
https://www.premiumplacegroup.com/