รีวิว - เยี่ยมชม THE PLANT เทพารักษ์ - บางนา (The Plant Thepharak - Bangna)
สวัสดีค่ะท่านผู้อ่านทุกท่าน รีวิวบ้านรอบนี้จะพาไปชมบ้านเดี่ยวจาก พฤกษา ที่มีชื่อโครงการว่า "
THE PLANT เทพารักษ์ - บางนา (The Plant Thepharak - Bangna)" ตัวโครงการเน้นความสงบ เรียบง่าย เหมาะกับครอบครัวขนาดเล็ก และขนาดกลาง ตั้งอยู่บนถนนเทพารักษ์ ซึ่งเป็นโซนที่มีสิ่งอำนวยความสะดวกหลากหลายทีเดียวค่ะ ในส่วนของตัวบ้านนั้นเป็นบ้านเดี่ยวที่มีพื้นที่ 50 ตร.ว. ขึ้นไป มีให้เลือกถึง 3 แบบ พื้นที่ใช้สอย ตั้งแต่ 120 - 142 ตร.ม. อีกทั้งภายในโครงการยังมีส่วนกลางให้อย่างครบครันทุกด้าน ทั้งคลับเฮ้าส์ ฟิตเนส สระว่ายน้ำ และสวนสาธารณะ เป็นต้น ทั้งหมดนี้เริ่มต้นเพียงแค่ 3 ล้านกว่าบาทเท่านั้น จะน่าสนใจแค่ไหน ไปดูรายละเอียดของโครงการเพิ่มเติมกันต่อได้เลยค่ะ

- เจ้าของโครงการ : บริษัท พฤกษา เรียลเอสเตท จำกัด (มหาชน)
- ที่ตั้งโครงการ : ถนนเทพารักษ์ ตำบลบางปลา อำเภอบางพลี จังหวัดสมุทรปราการ 10540
- ขนาดพื้นที่โครงการ : 56-1-38.4 ไร่
- จำนวนบ้าน : 254 หลัง
- ขนาดที่ดิน : ตั้งแต่ 50 ตร.ว.
- ขนาดพื้นที่ใช้สอย : ตั้งแต่ 120 - 142 ตร.ม.
- ปัจจุบันมีแบบบ้านเดี่ยวทั้งหมด 3 แบบ
- สิ่งอำนวยความสะดวก : สวนส่วนกลาง, คลับเฮ้าส์ สระว่ายน้ำ และฟิตเนส, ระบบรักษาความปลอดภัยตลอด24 ชม. และ CCTV
- ราคาเริ่มต้น 3 ล้านกว่าบาท
- วันที่เยี่ยมชมโครงการ ณ วันที่ 30 พฤษภาคม 2561
ทำเลที่ตั้ง และการเดินทาง
โครงการตั้งอยู่บนถนนเทพารักษ์ ตำบลบางปลา อำเภอบางพลี จังหวัดสมุทรปราการ 10540

แผนที่ตั้งโครงการ (
คลิกดูภาพใหญ่)

ภาพแผนที่โครงการแจกแจงให้เห็นระยะใกล้-ไกลของโครงการกับสถานที่
หรือ Landmark รอบๆ โครงการที่น่าสนใจ (
คลิกดูภาพใหญ่)
ตำแหน่ง GPS โดยประมาณของโครงการ
1. เดินทางด้วยรถยนต์ส่วนตัว
การเดินทางด้วยรถยนต์สามารถมาได้หลายเส้นทาง ตามตัวอย่างเส้นทางดังต่อไปนี้ค่ะ
ขาเข้าโครงการ เส้นทางที่ 1 มาจากทางถนนบางนา-ตราด
จากถนนบางนา-ตราดตรงมาเรื่อยๆ เมื่อผ่านถนนกิ่งแก้วให้เตรียมตัวกลับรถที่สะพานเกือกม้า กลับรถแล้วให้เลี้ยวซ้ายเข้าถนนกิ่งแก้ว แล้วขับตรงมาจนถึงแยกเทพารักษ์ เลี้ยวซ้ายเข้าถนนเทพารักษ์ ขับตรงไป 3.8 กม. ให้กลับรถแล้วเลี้ยวซ้ายเข้าซอยข้างตลาดบางพลีซิตี้ จากนั้นตรงเข้าซอยไปประมาณ 1.5 กม. จะเห็นวงเวียนและโครงการอยู่ฝั่งซ้ายมือ
ขาเข้าโครงการ เส้นทางที่ 2 มาทางถนนเทพารักษ์
จากถนนเทพารักษ์ ขับตรงมาเรื่อยๆ ผ่านแยกถนนศรีนครินทร์ เมื่อผ่านแยกถนนกิ่งแก้ว-บางพลี-ตำหรุ ไปประมาณ 3.8 กม. ให้กลับรถแล้วเลี้ยวซ้ายเข้าซอยข้างตลาดบางพลีซิตี้ จากนั้นตรงเข้าซอยไปประมาณ 1.5 กม. จะเห็นวงเวียนและโครงการอยู่ฝั่งซ้ายมือ
ขาออกโครงการ เส้นทางที่ 1 ออกจากโครงการไปยังถนนบางนา-ตราด
สามารถวิ่งบนถนนเทพารักษ์มุ่งหน้าเข้าเมือง แล้วเลี้ยวขวาเข้าสู่ซอยสุขาภิบาล 6 (ทางไปวัดหลวงพ่อโต วัดบางพลีใหญ่) ถนน 2 เลนวิ่งสวนกัน ซึ่งเป็นอีกเส้นทางหนึ่งสำหรับวิ่งหลีกเลี่ยงการจราจรติดขัด ของถนนกิ่งแก้ว ตำหรุ-บางพลี (เป็นเส้นทางที่วิ่งคู่ขนานกัน) วิ่งตามทางจะวิ่งมาชนกับถนนบางนา-ตราด กม. 12 และหากวิ่งต่อไปบนถนนคู่ขนาน ประมาณ 1 กม. จะสามารถวิ่งขึ้นจุดทางด่วนบูรพาวิถีได้ ทำให้สามารถเข้าเมืองได้สะดวกเลยทีเดียว
ขาออกโครงการ เส้นทางที่ 2 ออกจากโครงการไปขึ้นทางด่วนวงแหวนฯ
ให้ทุกการเดินทางเป็นเรื่องง่าย กับอีกหนึ่งเส้นทางที่สามารถเชื่อมต่อกับแนวทางด่วนวงแหวนรอบนอกตะวันออก (ถนนกาญจนาภิเษก) จุดขึ้น-ลงทางด่วน คือ ด่านเทพารักษ์ สามารถวิ่งเชื่อมฝั่งตะวันตก (โซนพระราม2) และฝั่งทิศเหนือ (บางปะอิน) ได้อย่างสบาย ขับรถใช้เวลาประมาณ 15 นาที หรือคร่าวๆ ระยะทางประมาณ 8 กม. เท่านั้นเอง
2. รถสาธารณะอื่นๆ
รถโดยสารประจำทาง
เส้นบางนา - ตราด
- 132 เคหะบางพลี - พระโขนง
- 133 เคหะบางพลี - ซีคอน-พระโขนง
- 365 สำโรง-บางพลี - บางปะกง
เส้นเทพารักษ์
- รถเมล์ สำโรง - บางบ่อ
- รถสองแถวเล็ก สำโรง-บางปลา
- รถสองแถวเล็ก สำโรง - ราชภัฎธนบุรี
รถตู้
เส้นบางนา - ตราด
- รถตู้ บางนา - บางบ่อ, กรุงเทพฯ - ชลบุรี
- เส้นเทพารักษ์
- รถตู้ สำโรง - บางบ่อ
รถไฟฟ้า
ลงสถานีสำโรงและต่อรถโดยสารประจำทาง
- เส้นบางนา-ตราด 365 สำโรง - บางปะกง
- เส้นเทพารักษ์ รถเมล์ สำโรง - บางบ่อ
- หรือ รถสองแถวเล็ก สำโรง-บางปลา, สำโรง - ราชภัฎธนบุรี
โครงการ ตั้งอยู่บนทำเลถนนเทพารักษ์ โดยทางเข้าโครงการเป็นซอยทางตรงเข้าไป ห่างจากตัวถนนเทพารักษ์ประมาณ 1.5 กม. จะเจอซุ้มประตูโครงการ โดยบริเวณทางเข้าที่ติดกับตัวถนนเทพารักษ์นั้น ค่อนข้างคึกคักทีเดียวค่ะ เพราะเป็นตลาด มีร้านค้า ร้านอาหาร อยู่หน้าปากซอยโครงการ อาทิ Tesco Lotus Express, เซเว่น อิเลฟเว่น, ตลาดบางพลีซิตี้, คาร์แคร์, ร้านขายยา, ร้านขายทอง และร้านอาหาร เรียกได้ว่าค่อนข้างสะดวกสบาย แบบที่ไม่ต้องไปไหนไกลเลยค่ะ
นอกจากนี้ บริเวณที่อยู่รอบๆ ไม่ไกลกันมากนัก พื้นที่ส่วนใหญ่เป็นหมู่บ้านจัดสรร ถือว่าเป็นย่านที่เหมาะแก่การอยู่อาศัย และยังมีโรงพยาบาล, สนามกอล์ฟ และร้านอาหารอยู่รายล้อม โดยย่านนี้มีวัดวาอารามอยู่ด้วย ซึ่งถือว่าเหมาะกับความเป็นชุมชนได้เป็นอย่างดี

ถนนเทพารักษ์ตรงปากซอยด้านหน้าทางเข้าโครงการ

มาดูฝั่งขวา จะเห็นป้ายชื่อโครงการทั้งสองแบรนด์บอกอยู่ มองตรงไปเป็นตลาดบางพลีซิตี้

ฝั่งนี้มีตลาดบางพลีซิตี้ค่ะ เป็นตลาดช่วงเย็น มีของกินให้เลือกเยอะเลย

ช่วงต้นซอยมีร้านค้าเป็นแนวยาว มีร้านขายของหลากหลายอย่าง

มาดูบรรยากาศด้านซ้ายของถนนเทพารักษ์

เดินไปอีกหน่อยจะมี Tesco Lotus Express

ตลาดนัดเรือบิน 1.2 กม.

โรงพยาบาลจุฬารัตน์ 3 อินเตอร์ 3.0 กม.

วัดหลวงพ่อโต 4.2 กม.

Big C บางพลี ห่างจากโครงการประมาณ 4.4 กม.

โรงพยาบาลบางพลี 4.6 กม.
แบบบ้าน และตัวโครงการโดยรวม
โครงการ
"THE PLANT เทพารักษ์ - บางนา (The Plant Thepharak - Bangna)" เป็นโครงการบ้านเดี่ยว 2 ชั้น ตั้งอยู่บนถนนเทพารักษ์ ตำบลบางปลา อำเภอบางพลี จังหวัดสมุทรปราการ เดินทางเข้า-ออกโครงการด้วยเส้นทางหลัก ถนนเทพารักษ์ มีบ้านทั้งหมด 254 หลัง บนพื้นที่โครงการ 56-1-38.4 ไร่ ถนนตรงซุ้มประตูทางเข้ากว้าง 20 เมตร ถนนหลักกว้าง 12 เมตร ถนนภายในซอยกว้าง 8 เมตร มีรั้วรอบโครงการสูงถึง 3 เมตร พร้อมเหล็กแหลม 50 เซนติเมตร ภายในโครงการมีสิ่งอำนวยความสะดวกครบครัน ทั้ง Club house สระว่ายน้ำ ฟิตเนส และสวนส่วนกลาง ขนาด 1 ไร่ (สิ่งอำนวยความสะดวกทั้งหมดนี้กำลังอยู่ระหว่างการก่อสร้าง) ถนนทางเข้าโครงการตั้งแต่ปากซอยถนนเทพารักษ์ เป็นถนนสาธารณะประโยชน์ใช้ร่วมกับผู้อื่น ส่วนถนนตั้งแต่สะพานข้ามคลองเป็นถนนภาระจำยอม กว้าง 16 เมตรค่ะ

ภาพจากมุมสูง แสดงให้เห็นถึงทางเข้าโครงการ และซุ้มประตูขนาดใหญ่

จากหน้าถนนใหญ่เทพารักษ์ จะเห็นป้ายชื่อโครงการอยู่ทางซ้ายมือ

จากนั้นให้ขับตรงเข้าไปเรื่อยๆ ถนนช่วงนี้มีความกว้าง 9 เมตร

เจอสะพานข้ามคูน้ำ ความกว้าง 12 เมตร


ลงจากสะพานมา จะเห็นถนนทางเข้าปลูกต้นไม้ด้านข้างไว้อย่างสวยงาม
เป็นถนนภาระจำยอมกว้าง 16 เมตร มองตรงไปจะเห็นวงเวียน


จากปากซอยตรงมาประมาณ 1.5 กม. ก็จะเจอทางเข้าโครงการ มีต้นไม้ใหญ่ทำเป็นวงเวียนฝั่งซ้าย คือทางเข้าโครงการ
THE PLANT เทพารักษ์ - บางนา ฝั่งขวาคือ โครงการ
ภัสสร เทพารักษ์ - บางนา ซึ่งทางทีมงานได้เคยมารีวิวให้ชมกันแล้ว
ตามลิงก์นี้เลยค่ะ
https://goo.gl/DVXA1Z 
ซุ้มประตูทางเข้า-ออกโครงการ THE PLANT เทพารักษ์ - บางนา

ป้ายชื่อโครงการขนาดใหญ่

ซุ้มประตูโครงการมีขนาดใหญ่สไตล์ Modern มีหลังคา
บังแดดและกันฝนได้ สะดวกสบาย 
ประตูทางเข้า-ออก แยกระหว่างลูกบ้าน (Residential) กับคนภายนอก (Visitor) ที่มาติดต่อ ข้อดีคือทำให้คนที่อาศัย
ภายในโครงการมีความสะดวกยิ่งขึ้น เพราะไม่ต้องเสียเวลารอคนภายนอกที่กำลังแลกบัตรค่ะ ส่วนที่ซุ้มประตูทางเข้า
โครงการมีไม้กั้นกระดก ประตูบานเลื่อน CCTV 5 จุด และมีห้องสำหรับ รปภ. กั้นตรงกลาง
ระหว่างทางเข้าและทางออก

ถ่ายย้อนกลับไปที่ซุ้มประตู ถนนตรงทางเข้าส่วนนี้กว้าง 20 เมตร

ด้านข้างของประตูทางเข้าจะมีสวนหย่อมเพื่อความร่มรื่น

พอผ่านซุ้มประตูเข้ามา ฝั่งขวามือซอยแรกจะเป็นที่ตั้ง Sales Gallery และจุดจอดรถ หากมองตรงเข้าไป
ตรงประตูสีน้ำตาลที่กั้นไว้ คือพื้นที่อยู่อาศัยที่กำลังก่อสร้างอยู่ค่ะ

Sales Gallery อยู่หลังแรกเลยนะคะ ส่วนบ้านตัวอย่างมีให้ชมทั้งหมด 3 แบบ อยู่ถัดกันไปค่ะ
โครงการนี้ถนนหลักกว้าง 12 เมตร ถนนภายในซอยกว้าง 8 เมตร
แบบบ้านพร้อม Floor Plan ของทางโครงการปัจจุบันมี 3 แบบ ดังนี้
1. PROPOSE - บ้านเดี่ยว 2 ชั้น ขนาดที่ดิน 50 ตร.ว. ขึ้นไป ขนาดพื้นที่ใช้สอย 120 ตร.ม. 3 ห้องนอน 2 ห้องน้ำ 2 ที่จอดรถในร่ม

แบบบ้าน PROPOSE

Floor Plan PROPOSE
2. PEACE - บ้านเดี่ยว 2 ชั้น ขนาดที่ดิน 50 ตร.ว. ขึ้นไป ขนาดพื้นที่ใช้สอย 133 ตร.ม. 3 ห้องนอน 2 ห้องน้ำ 2 ที่จอดรถในร่ม

แบบบ้าน PEACE

Floor Plan PEACE
3. PRICEY - บ้านเดี่ยว 2 ชั้น ขนาดที่ดิน 50 ตร.ว. ขึ้นไป ขนาดพื้นที่ใช้สอย 142 ตร.ม. 3 ห้องนอน 3 ห้องน้ำ 2 ที่จอดรถในร่ม

แบบบ้าน PRICEY

Floor Plan PRICEY
ส่วนกลางและสิ่งอำนวยความสะดวก
- Clubhouse ที่มีทั้งสระว่ายน้ำและฟิตเนส
- สระว่ายน้ำ ระบบเกลือ กว้าง 10 เมตร ยาว 20 เมตร ลึก 1.3 เมตร, สระเด็ก กว้าง 3.2 เมตร ยาว 6 เมตร
- สวนสาธารณะส่วนกลาง
- รั้วโครงการสูง 3 เมตร พร้อมรั้วเหล็กแหลมขึ้นไปอีก 50 เซนติเมตร
- ระบบรักษาความปลอดภัย, CCTV
- เจ้าหน้าที่รักษาความปลอดภัยตลอด 24 ชม.

ซุ้มประตูทางเข้า-ออก
ที่สแกนบัตร สำหรับผู้อยู่อาศัยภายในโครางการ และ CCTV ภาพบ้านตัวอย่าง และ Layout
สำหรับแบบบ้านที่ทางทีมงาน ได้มีโอกาสเข้าเยี่ยมชมในคราวนี้คือ แบบบ้านที่มีชื่อว่า Propose เป็นบ้านตัวอย่างที่ตกแต่งแล้วนะคะ มีขนาดห้องนอนให้ถึง 3 ห้อง ขนาดที่ดินเริ่มต้นที่ 50 ตร.ว. มีขนาดของพื้นที่ใช้สอยถึง 120 ตร.ม. 3 ห้องนอน 2 ห้องน้ำ (1 ห้องน้ำบน กับ 1 ห้องน้ำล่าง) 1 ห้องครัว มีพื้นที่รับแขกและพื้นที่รับประทานอาหาร ที่จอดรถ 2 คัน
สำหรับที่นี่ บ้านทุกแบบที่ใช้ส่งมอบลูกค้าจะเป็นบ้านเปล่า ไม่ได้ตกแต่งเฟอร์นิเจอร์ให้นะคะ แต่จะจัดสวนปูหญ้าให้รอบๆ บ้าน ติดตั้งปั๊มน้ำ ถังเก็บน้ำ ติดฉากกั้นห้องน้ำในห้องนอนใหญ่ ติดวอลล์เปเปอร์ให้ และมีระบบ Smart Home ให้ค่ะ

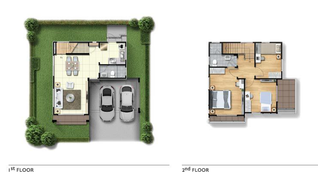
ก่อนจะไปชมบ้าน เรามาดูแปลนบ้านทั้งสองชั้นกันก่อนค่ะ

บ้านตัวอย่างพร้อมตกแต่งเฟอร์นิเจอร์ทั้งหลัง หลังนี้เป็นขนาดเริ่มต้น มีขนาดที่ดินเริ่มที่ 50 ตร.ว. มีพื้นที่ใช้สอย 120 ตร.ม.
มีฟังก์ชันครบครันเลย สังเกตได้ว่าตัวบ้านออกแบบสไตล์โมเดิร์น กึ่งๆ รีสอร์ท มีระเบียงด้านหน้า และระเบียงด้านข้าง
เน้นที่กระจกบานใหญ่ และดีไซน์ตัวบ้านให้ดูมีกรอบ มีเหลี่ยมมุม สี Earth Tone ดูอบอุ่นสบายตา

มาดูพื้นที่จอดรถกันค่ะ เป็นคอนกรีตขัดเรียบชักร่องให้ ลาดยาวจนถึงหน้าบ้าน สามารถจอดรถได้ 2 คัน
ประตูบานสีขาวที่เห็น เปิดเข้าไปภายในบ้านได้จากที่จอดรถเลย หากเราซื้อของมาเยอะ หรือฝนตก
สามารถเปิดประตูเข้าบ้านได้เลย ไม่ต้องเข้าประตูด้านหน้าหรือเดินผ่านส่วนรับแขก

ด้านข้างบ้านฝั่งที่จอดรถ จะเห็นระเบียงห้องนอนชั้น 2

ด้านข้างบ้านอีกฝั่งหนึ่ง จะเห็นหน้าต่างและประตูด้านข้างบ้านชัดเจน บ้านที่นี่ให้ความสำคัญเรื่องแสงธรรมชาติ
ความสว่าง และเรื่องการถ่ายเทของระบบอากาศภายในบ้าน ที่ออกแบบมาได้อย่างลงตัวค่ะ

ทางเข้าหลักด้านหน้า

เพื่อความสะดวกในการเดิน เฉลียงหน้าบ้านจะยกสเต็ปขึ้นมาให้ 2 สเต็ป ปูด้วยกระเบื้องขนาด 60 X 60 ซม.
ตัวพื้นบ้านจะสูงขึ้นมาจากถนนและพื้นด้านนอกพอสมควร

สำหรับประตูทางเข้าหลักของบ้าน เป็นประตูบานเลื่อนพร้อมตัวล็อค และมือจับ กรอบประตู และวงกบอลูมิเนียมสีขาว
กระจกเขียวตัดแสงทั้งหลัง

เปิดประตูเข้ามา ฟังก์ชันส่วนแรกเลยจะเป็นส่วนพักผ่อน ที่ทางโครงการจัดไว้ บ้านที่นี่ชั้น 1 มีความสูงจากพื้นถึงเพดาน 2.70 เมตร พื้นชั้น 1 ปูด้วยกระเบื้องแกรนิตโต้ 60 x 60 ซม. ไฟด้านล่างเป็นไฟดาวน์ไลท์ ฝ้าเรียบ

มุมนี้สามารถวางโซฟาแบบตัว L ขนาด 3-4 ที่ก็ได้ มีหน้าต่างบานเลื่อนบานใหญ่อยู่ด้านหลัง
ทำให้มุมนี้ได้รับแสงธรรมชาติ ทั้งจากหน้าต่าง และจากประตูด้านหน้าทางเข้าค่ะ

ตรงข้ามโซฟารับแขก คือพื้นที่ที่ใช้จัดวางทีวี ซึ่งทางโครงการ Built-in เป็นชั้นวางของ
และมีพื้นที่สำหรับติดตั้งทีวีไว้ตรงกลาง เพื่อให้ดูเป็นไอเดียค่ะ

ถ่ายย้อนกลับไปทางเข้าด้านหน้า

ถัดจากพื้นที่รับแขกจะเชื่อมต่อกันกับพื้นที่รับประทานอาหาร ด้านข้างมีประตูบานเลื่อนขนาดใหญ่ที่เปิดออกไป
ด้านข้างบ้านได้ สามารถเข้าบ้านจากประตูด้านข้างนี้ได้เหมือนกันค่ะ

พื้นที่รับประทานอาหาร สามารถวางโต๊ะอาหารขนาด 4 ที่ได้พอดี มีหน้าต่างบานเลื่อนตรงบันได
และประตูบานเลื่อนด้านข้างไว้รับแสงธรรมชาติ ทำให้พื้นที่ส่วนนี้สว่างมากที่เดียว

มาดูฟังก์ชันส่วนที่เหลือของชั้น 1 จะประกอบไปด้วย ห้องครัว ห้องน้ำ และประตูเปิดอออกไปที่จอดรถ

ถ่ายจากในตัวบ้านย้อนออกไป ประตูบานนี้เปิดเข้า-ออกไปที่จอดรถได้สะดวก ส่วนประตูข้างๆ กันที่ปิดอยู่
คือประตูห้องน้ำชั้น 1 ค่ะ

มาดูทางเข้าบ้านจากที่จอดรถกันบ้าง ทางเข้ามีสเต็ปบันไดให้ 1 ขั้น เพื่อความสะดวก
บานประตู HDF สำเร็จรูป

ห้องน้ำชั้น 1 สำหรับบ้านเปล่าที่ส่งมอบลูกค้าก็ให้ห้องน้ำหน้าตาแบบนี้เลยนะคะ สุขภัณฑ์ภายในห้องน้ำมีครบ
ทั้งอ่างล้างมือ กระจก โถสุขภัณฑ์ และฝักบัว ของ Kohler, Englefield แยกส่วนเปียก/แห้งให้
มีหน้าต่างบานเลื่อนระบายอากาศมาให้ 1 บาน

พื้นอาบน้ำส่วนเปียกลดระดับลงเล็กน้อย ปูกระเบื้องขนาด 12 x 12

อ่างล้างมือ กระจก โถสุขภัณฑ์ และฝักบัว ของ Kohler, Englefield

ติดกับห้องน้ำ คือ ทางเข้าห้องครัว ซึ่งครัวที่นี่เป็นครัวแยก ทางโครงการไม่มีประตูปิดมาให้ แต่เจ้าของบ้านสามารถติดตั้งเพิ่มเองได้ตามความชอบนะคะ จะช่วยลดปัญหาเรื่องกลิ่น ควันไปได้เยอะเลยทีเดียว มีพื้นที่ตรงหน้าห้องสามารถวางชั้นวางของเล็กๆ ได้ และมีกระจกบาน fix สำหรับรับแสง 1 บาน

ตรงข้ามทางเข้าห้องครัว เป็นห้องเก็บของใต้บันไดขนาดเล็ก มีไฟด้านใน พร้อมประตูปิดเรียบร้อย

มาดูครัวกันต่อ สำหรับบ้านเปล่าที่ส่งมอบลูกค้าจะให้ครัวเป็นห้องโล่งๆ ต่อท่อน้ำทิ้งไว้ให้
สามารถตกแต่งเคาน์เตอร์เป็นตัว L ตามบ้านตัวอย่างได้เลย

ภายในครัวมีหน้าต่างบานเลื่อนสำหรับระบายอากาศให้ 1 บาน ประตูด้านหลังเป็น UPVC มือจับสีสแตนเลสด้าน
ซึ่งสามารถเปิดออกไปส่วนซักล้างหลังบ้านได้

พื้นที่ซักล้างหลังบ้านจะเทคอนกรีตขัดเรียบให้ประมาณนี้

พื้นที่ด้านหลังบ้าน บ้านที่นี่มีโปรโมชั่นติดตั้งแทงค์น้ำ และปั๊มน้ำมาให้ด้วยนะคะ

จบชั้น 1 แล้ว ขึ้นไปชมชั้น 2 กัน บันไดทางขึ้นของที่นี่จะอยู่มุมด้านหลังสุดเลย
ตรงชานพักส่วนแรกมีหน้าต่างบานเลื่อน 1 บาน

บันไดเป็นโครงสร้างเหล็ก พื้นบันไดและมือจับไม้สำเร็จรูป มีชานพักสี่เหลี่ยม 2 จุด

ขึ้นมาถึงชั้น 2 จะเห็นหน้าต่างบานเลื่อนตรงผนังช่วงบันไดขั้นบนสุดพอดี ทำให้แสงธรรมชาติเข้ามาส่วนนี้ได้
โดยไม่ต้องเปิดไฟในตอนกลางวัน ประหยัดดีค่ะ

ฟังก์ชันบ้านของชั้น 2 มีห้องต่างๆ ตามรูปนี้ เริ่มจากฝั่งขวามือ คือห้องนอน 3 ติดกันคือห้องนอน 2
ถัดจากนั้นเป็น Master Bedroom และฝั่งซ้ายสุดคือห้องน้ำ พื้นชั้น 2 เป็นพื้นลามิเนต

มาชมสองห้องนี้กันก่อนค่ะ ฝั่งซ้ายมือคือห้องน้ำชั้น 2 ฝั่งขวามือคือ Master Bedroom

ห้องน้ำชั้นนี้สามารถเปิดเข้าได้จากโถงด้านหน้า และเข้าจากห้อง Master Bedroom ก็ได้
ใช้แชร์กันทั้ง 3 ห้องของชั้นบน มีสุขภัณฑ์ภายในห้องน้ำให้ครบ ทั้งอ่างล้างมือ ก๊อกน้ำและฝักบัวของ Englefield
และโถสุขภัณฑ์ของ Kohler ค่ะ

พื้นที่อาบน้ำแยกส่วนให้ชัดเจนด้วยฉากกั้นอาบน้ำ และมีบานเลื่อนระบายอากาศ 2 จุด

ก่อธรณีกั้นแยกส่วนเปียก/แห้งให้

ติดกับห้องน้ำ คือ Master Bedroom ภายในห้องประกอบไปด้วยเตียงนอน ระเบียงส่วนตัว พื้นที่วางตู้
และทางเข้าห้องน้ำภายในห้องนอน จากรูปจะเห็นหน้าต่างบานเลื่อนตรงหัวเตียง และกระจกบาน Fix
ช่วยให้แสงธรรมชาติเข้ามาภายในห้อง

ประตูบานเลื่อนทั้งกว้างและสูง เปิดออกไปที่ระเบียงได้

ตัวล็อค 2 ชั้นของประตูบานเลื่อน

ระเบียงส่วนตัวกว้างไม่มากนัก แต่มีความยาวเท่ากับความกว้างของห้องเลยค่ะ ราวกันตกเป็นราวเหล็กทาสีดำ
เนื่องจากห้องนี้วางตัวอยู่ฝั่งหน้าบ้าน วิวระเบียงจะเป็นวิวด้านหน้าบ้าน

ถ่ายย้อนกลับเข้าไปด้านในห้องจะเห็นทางเข้าห้องน้ำจากภายในห้องนอน และพื้นที่สำหรับวางตู้เสื้อผ้า

มาชมอีกสองห้อง คือห้องนอน 2 กับห้องนอน 3

ห้องนอน 2 อยู่ติดกันกับ Master Bedroom ตกแต่งเป็นห้องนอน หรือจัดเป็นห้องพักผ่อนชั้นบนก็ได้นะคะ

ภายในห้อง มีหน้าต่างบานเลื่อนให้ 1 จุด และมีกระจกบาน Fix ด้านล่างของหน้าต่าง ช่วยเพิ่มความสว่างให้ห้อง
ได้อย่างดี นอกจากนี้ยังมีประตูบานเลื่อน เปิดออกไประเบียงส่วนตัวได้อีกด้วย

ประตูบานเลื่อนเปิดออกไประเบียง

ระเบียงของห้องนี้มีความกว้างมากกว่า 1 เมตร ซึ่งถือว่ากว้างมากทีเดียว ใช้ประโยชน์ได้หลายอย่างเลยนะคะ
ไม่ว่าจะปลูกไม้กระถาง นั่งเล่น ชมวิว ส่วนวิวระเบียงจะเป็นวิวด้านหน้าบ้าน และข้างบ้านได้ด้วย

ห้องสุดท้ายคือห้องนอน 3 ทางโครงการตกแต่งเป็นห้องทำงาน มีหน้าต่างบานเลื่อน 2 บาน

ถ้าหากบ้านไหนมีสมาชิกในบ้านไม่เยอะ จะปรับห้องนี้เป็นห้องทำงานก็ดูสะดวกดีค่ะ
ราคาและค่าใช้จ่ายที่เกี่ยวข้องโดยประมาณ (ณ วันที่ 30 พ.ค. 2561)
ตัวอย่างค่าใช้จ่าย
บ้านเดี่ยว 2 ชั้น แบบบ้าน Propose เนื้อที่บ้าน 55.6 ตร.ว. ราคา 4,010,000 บาท
- เงินจอง 10,000 บาท
- ทำสัญญา 10,000 บาท (ภายใน 7 วัน หลังจากวันจอง)
- เงินดาวน์ 5 งวด งวดละ 10,000 เป็นเงิน 50,000 บาท
- รวม เงินจอง + เงินทำสัญญา + เงินดาวน์ 70,000 บาท
(ราคาขายหักจอง-สัญญา-ดาวน์ 3,940,000 บาท)
ค่าใช้จ่ายโดยประมาณ ในวันโอนกรรมสิทธิ์ (ผู้จะซื้อเป็นผู้ชำระ)
1. ค่าใช้จ่ายในการขอติดตั้งและค่าประกันมิเตอร์ไฟฟ้า(ประมาณการ) 10,000 บาท
2. ค่าใช้จ่ายในการขอติดตั้งและเงินค่าประกันมิเตอร์ประปา(ประมาณการ) 6,000 บาท
3. ค่าธรรมเนียมโอนกรรมสิทธิ์ 1% ของราคาประเมิน (เฉพาะส่วนของผู้จะซื้อ) 40,100 บาท
4. ค่าธรรมเนียมจดจำนอง 1% ของวงเงินกู้ (กรณีซื้อสดไม่มีค่าใช้จ่าย) 40,100 บาท
5. ค่าบริการสาธารณะ (ภายในโครงการ) ตารางวาละ 30 บาท เก็บล่วงหน้า 36 เดือน 60,048 บาท
(รวมค่าใช้จ่าย 156,248 บาท)
คำนวนอัตราผ่อนธนาคารโดยประมาณ (100%) วงเงินกู้ 3,800,000 บาท
20 ปี / 32,100 บาท
25 ปี / 29,700 บาท
30 ปี / 28,100 บาท
หมายเหตุ
- ที่ดินเพิ่ม-ลด ตารางวาละ 50,000 บาท
- กรณีซื้อสด หรือกู้ธนาคารเอง เงินดาวน์ขั้นต่ำ 10%
- ค่าบริการสาธารณะ (ภายในโครงการ) ชำระในวันโอนกรรมสิทธิ์ ตารางวาละ 30 บาท/เดือน (ชำระล่วงหน้า 36 เดือน)
- ค่าธรรมเนียมโอนกรรมสิทธิ์ 2% ผู้จะซื้อและผู้จะขายออกเท่ากันทั้งสองฝ่าย (ฝ่ายละ 1%)
- ค่าธรรมเนียมจดจำนอง 1% และค่าอากรแสตมป์ ผู้จะซื้อเป็นผู้ชำระ
- ค่าใช้จ่ายในการขอติดตั้งและค่าประกันมิเตอร์ไฟฟ้าและมิเตอร์ประปา ผู้จะซื้อเป็นผู้ชำระ
- อัตราดอกเบี้ยสามารถเปลี่ยนแปลงได้ ขึ้นอยู่กับสถาบันการเงิน
- การขอสินเชื่อกับสถาบันการเงิน ทางสถาบันการเงินเป็นผู้พิจารณาอนุมัติหรือไม่ ขึ้นกับเงื่อนไขของสถาบันการเงินและคุณสมบัติของตัวผู้กู้เป็นสำคัญ
- บริษัทฯ ขอสงวนสิทธิ์ในการเปลี่ยนแปลงเงื่อนไขราคา, อัตราการผ่อนชำระและรายการส่งเสริมการขาย โดยมิต้องแจ้งให้ทราบล่วงหน้า
- กรณีไม่มาทำสัญญาภายใน 7 วัน บริษัทฯ ขอสงวนสิทธิ์ในการยกเลิกและริบเงินจอง ทุกกรณี โดยไม่จำเป็นต้องแจ้งให้ทราบล่วงหน้า
- สงวนสิทธิ์ในการคืนเงินทุกกรณี / สงวนสิทธิ์การย้ายแปลงและย้ายโครงการทุกกรณี
- รายการส่งเสริมการขายตามที่ระบุข้างต้น จะได้รับพร้อมติดตั้งหลังโอนกรรมสิทธิ์ภายใน 90 วัน
*โปรโมชั่น (ประจำเดือนมิถุนายน)
1. ส่วนลด เงินสด 100,000 บาท
2. จัดสวน (ตามมาตรฐานโครงการ)
3. ปั๊มน้ำ + แทงค์น้ำบนดิน
4. วอล์เปเปอร์ (ยกว้นห้องครัวทาสี) ตามมารตฐานโครงการ
5. อุปกรณ์ Smart Home
6. ฉากกั้นอาบน้ำเฉพาะห้องน้ำชั้นบน
*โปรดสอบถามรายละเอียดโปรโมชั่นอัปเดตได้ที่ สำนักงานขายโครงการ
ลงทะเบียนผ่านเว็บ Site ที่
https://goo.gl/n8Choy รับส่วนลดเงินสดเพิ่ม 10,000 บาท
สถานะปัจจุบันของโครงการ (ณ วันที่ 30 พ.ค. 2561)
โครงการ THE PLANT เทพารักษ์ - บางนา (The Plant Thepharak - Bangna) เพิ่งเปิดพรีเซลส์ไปเมื่อวันที่ 5 - 6 พฤษภาคม 2561 ที่ผ่านมา เปิดขายทีละเฟส ทยอยเปิดขายเริ่มตั้งแต่เฟสด้านหน้าทางเข้าโครงการ ไล่เปิดไปเรื่อยๆ จนถึงโซนด้านหลังโครงการ ปัจจุบันโครงการกำลังทยอยสร้างบ้านในแต่ละแบบ เพื่อรองรับความต้องการของลูกค้า ซึ่งตอนนี้มีลูกค้าที่สนใจเข้ามาชมและจองบ้านไปพอสมควร หากคิดสัดส่วนบ้านที่จองไปแล้วมีประมาณ 30 หลัง จากจำนวนบ้านที่เปิดเฟสแรกทั้งหมด 40 หลัง คิดเป็น 80% จากบ้านเฟสแรกที่เปิดให้จอง เนื่องจากโครงการเพิ่งเปิดใหม่ ตัวโครงการยังดำเนินการสร้างอยู่ พร้อมบ้านตัวอย่างให้ลูกค้าชมครบทั้ง 3 แบบ เป็นบ้านตัวอย่างพร้อมตกแต่ง ดังนั้นหากใครที่กำลังสนใจบ้านเดี่ยวบรรยากาศรีสอร์ทเขาใหญ่ มีเนื้อที่ดินตั้งแต่ 50 ตร.ว. ขึ้นไป และกำลังมองหาบ้านในทำเลนี้อยู่ ลองแวะไปชมบ้านจริงได้ที่โครงการเลยค่ะ
ติดต่อสำนักงานขาย โทร. 1739 หรือทางเว็บไซต์
www.pruksa.com

-
ปาริชาติ ใยแก้ว
PROPERTY GURU Thailand