ประเมินวงเงินรู้ผลใน 3 นาที
กับ กรุงศรี ออโต้ พร้อมสตาร์ท

เริ่มประเมินวงเงินพร้อมสตาร์ท
ผ่านมือถือ สแกนเลย

ดูวงเงินพร้อมสตาร์ทที่ได้รับ

  • บ้าน
  • บ้าน
  • ค้นหาแบบละเอียด
  • รีวิว-เยี่ยมชม โนวา ลักซ์ ประชาอุทิศ 131 (Nova Luxx Prachauthit 131)

    20 ส.ค. 61 25,924
    รีวิว - เยี่ยมชม โนวา ลักซ์ ประชาอุทิศ 131 (Nova Luxx Prachauthit 131)
    วันนี้เราจะพาไปเยี่ยมชมโครงการ โนวา ลักซ์ ประชาอุทิศ 131 จาก ธัญอนันต์ เดเวลลอปเม้นท์ ทาวน์โฮมที่มาพร้อมคอนเซ็ปต์ "The Extraordinary" ดีไซน์เพื่อสร้างความแตกต่าง ตัวโครงการเป็นทาวน์โฮม 2 ชั้น และโฮมออฟฟิศ 3.5 ชั้น ซึ่งเราได้พาไปเยี่ยมชมทั้งสองแบบ โดยตัวทาวน์โฮมนั้นมีความโดดเด่นในเรื่องของ Triple Space Double Volume หรือ ทาวน์โฮมในอารมณ์ 3 ชั้นในรูปแบบทาวน์โฮม 2 ชั้น ด้วยการดีไซน์ให้มี Double Volume บนชั้นสองด้วยการยกเพดานสูงจากพื้นถึง 5.15 เมตรเลยทีเดียว นับว่าเป็นความแปลกใหม่ที่น่าสนใจ และจะยังมีอะไรที่น่าติดตามอีกบ้างนั้น ตามไปชมกันต่อเลยค่ะ
    ข้อมูลโครงการ
    • เจ้าของโครงการ : บริษัท ธัญอนันต์ เดเวลลอปเม้นท์ จำกัด
    • ที่ตั้งโครงการ : ซอยประชาอุทิศ 131 ถนนประชาอุทิศ แขวงทุ่งครุ เขตทุ่งครุ กรุงเทพมหานคร 10140
    • ขนาดพื้นที่โครงการ : 10 ไร่ 2 งาน 7.00 ตร.ว.
    • จำนวนบ้าน : ทาวน์โฮม 87 หลัง โฮมออฟฟิศ 18 หลัง รวมทั้งหมด 105 หลัง
    • ขนาดที่ดิน : ทาวน์โฮมเริ่มต้น 20.6 - 62.20 ตร.ว. โฮมออฟฟิศเริ่มต้น 23.7 - 52.0 ตร.ว.
    • ขนาดพื้นที่ใช้สอย : ทาวน์โฮมไม่มีชั้นลอย 126 ตร.ม. แบบมีชั้นลอย 137 ตารางเมตร, โฮมออฟฟิศ 347.19 - 694.38 ตารางเมตร
    • ปัจจุบันมีแบบบ้านทั้งหมด 2 แบบ ทาวน์โฮม 2 ชั้น หน้ากว้าง 5.5 เมตร และโฮมออฟฟิศ 3.5 ชั้น หน้ากว้าง 5 เมตร
    • สิ่งอำนวยความสะดวก : Exclusive Clubhouse, สระว่ายน้ำพร้อมสระเด็ก, สวนเด็กเล่น, Fitness, สวนสาธารณะ, ระบบรักษาความปลอดภัย 24 ชม, Intelligent Security, CCTV, Key Card Access
    • ราคาเริ่มต้น ทาวน์โฮม 2.29 ล้านบาท (ราคาพิเศษ) โฮมออฟฟิศ 5.99 ล้านบาท
    • วันที่เยี่ยมชมโครงการ ณ วันที่ 28 สิงหาคม 2560
    เจ้าของและผู้พัฒนาโครงการ
    บริษัท ธัญอนันต์ เดเวลลอปเม้นท์ จำกัด ก่อตั้งขึ้นในปี พ.ศ. 2552 ด้วยทุนจดทะเบียน 200 ล้านบาท โดยผู้บริหารในกลุ่มบริษัทที่พัฒนาโครงการหมู่บ้านอมรชัย ซึ่งมีประสบการณ์ในการพัฒนาโครงการอสังหาริมทรัพย์กว่า 30 ปี นับจากโครงการหมู่บ้านอมรชัย 1 ซึ่งพัฒนาขึ้นในปี พ.ศ. 2529 จวบจนปัจจุบันทางกลุ่มบริษัทได้ดำเนินการพัฒนาที่อยู่อาศัยมาแล้วกว่า 3,000 ยูนิต
    บริษัท ธัญอนันต์ เดเวลลอปเม้นท์ จำกัด ปัจจุบันบริหารงานโดย คุณวีรยุทธ ธัญอนันต์กูล และทีมงาน ภายใต้แบรนด์ โนวา ซึ่งเป็นแบรนด์ที่มีภาพลักษณ์เป็นบ้านของคนรุ่นใหม่ ด้วยดีไซน์และการจัดฟังก์ชั่นใช้งานที่เหมาะสมกับไลฟ์สไตล์ในยุคปัจจุบัน ทำให้โครงการภายใต้แบรนด์โนวาได้รับการตอบรับเป็นอย่างดี ทั้งบ้านเดี่ยว สไตล์อัจฉริยะ Nova Place และ อาคารพาณิชย์ดีไซน์ใหม่ Nova Piazza และ Nova Art ทาวน์โฮม ทันสมัยดีไซน์สวย ซึ่งทั้งหมดล้วนแล้วแต่ประความสำเร็จเป็นอย่างดี
    ทำเลที่ตั้ง
    โครงการตั้งอยู่ในซอยประชาอุทิศ 131 ถนนประชาอุทิศ แขวงทุ่งครุ เขตทุ่งครุ กรุงเทพมหานคร 10140

    แผนที่ตั้งโครงการ (คลิกดูภาพใหญ่)

    ภาพแผนที่โครงการแจกแจงให้เห็นระยะใกล้-ไกลของโครงการกับสถานที่
    หรือ Landmark รอบๆ โครงการที่น่าสนใจ (คลิกดูภาพใหญ่)
    ตำแหน่ง GPS โดยประมาณของโครงการ 13.610035, 100.515731

    Big C ประชาอุทิศ ห่างจากโครงการประมาณ 950 เมตร

    สำนักงานเขตทุ่งครุ ห่างจากโครงการประมาณ 1.0 กม.

    โรงเรียนสารสาสน์ประชาอุทิศพิทยาคาร ห่างจากโครงการประมาณ 1.7 กม.

    Max Valu ประชาอุทิศ ห่างจากโครงการประมาณ 4.5 กม.

    Tesco Lotus ประชาอุทิศ ห่างจากโครงการประมาณ 4.5 กม.

    มหาวิทยาลัยเทคโนโลยีพระจอมเกล้าธนบุรี ห่างจากโครงการประมาณ 6.2 กม.

    Big C สุขสวัสดิ์ ห่างจากโครงการประมาณ 6.7 กม.
    การเดินทาง
    เดินทางด้วยรถยนต์ส่วนตัว
    การเดินทางด้วยรถยนต์สามารถมาได้หลายเส้นทาง ตามตัวอย่างเส้นทางดังต่อไปนี้ค่ะ
    ขาเข้าโครงการ เส้นทางที่ 1 มาจากถนนสุขสวัสดิ์ เข้าซอยประชาอุทิศ 131

    เริ่มต้นบนถนนวงแหวนอุตสาหกรรม

    มุ่งหน้าไปทางถนนสุขสวัสดิ์

    ใช้เส้นทางถนนสะพานภูมิพล

    เบี่ยงเข้าเลนซ้ายเพื่อออกไปยังถนนสุขสวัสดิ์

    เข้าช่องทางซ้าย

    ยังคงอยู่บนถนนวงแหวนอุตสาหกรรม ขับไปตามป้ายทางไปพระประแดง

    ชิดซ้ายเข้าไว้ค่ะ

    เลี้ยวเข้าช่องทางซ้ายมือ

    จะเข้าสู่ถนนสุขสวัสดิ์ ผ่านบิ๊กซี สุขสวัสดิ์

    ไปตามป้ายทางไปพระสมุทรเจดีย์

    ขับตรงไปเรื่อยๆ บนถนนสุขสวัสดิ์

    จนถึงที่ใต้ถนนวงแหวนกาญจนาภิเษก ให้กลับรถตรงนี้

    เลี้ยวเข้าช่องทางซ้ายมือ

    ขับตรงไป

    เข้าช่องทางซ้ายมือ ถนนสุขสวัสดิ์ 74 ซอย 5

    เลี้ยวขวาใต้สะพาน

    แล้วขับเลียบสะพาน ตรงไปจนเจอทางแยก

    เจอทางแยกให้ขับตรงไป

    แล้วเลี้ยวซ้ายลอดสะพาน

    เข้าสู่ถนนพุทธบูชา (เลียบวงแหวนกาญนาภิเษกฝั่งใต้)

    แล้วเลี้ยวซ้ายเพื่อเข้าสู่ถนนประชาอุทิศ

    ขับตรงไปยังถนนประชาอุทิศ ผ่านสำนักงานเขตทุ่งครุ

    เข้าซอยประชาอุทิศ 131

    ตรงเข้ามาอีก 400 เมตร เจอโครงการอยู่ทางขวามือ
    ขาเข้าโครงการ เส้นทางที่ 2 มาทางพิเศษเฉลิมมหานคร เข้าซอยสุขสวัสดิ์ 74
    ขาออกโครงการ เส้นทางที่ 1 ออกโครงการทางถนนสุขสวัสดิ์ ซอย 76 ไปสู่ถนนวงแหวนอุตสาหกรรม
    ขาออกโครงการ เส้นทางที่ 2 ออกไปยังถนนประชาอุทิศ
    สภาพแวดล้อมใกล้เคียง
    โครงการตั้งอยู่ในซอยประชาอุทิศ 131 ห่างจากตัวถนนประชาอุทิศประมาณ 400 เมตร บริเวณรอบๆ โครงการภายในซอยยังเป็นพื้นที่เปล่าอยู่เยอะทีเดียวค่ะ ด้านข้างโครงการติดกับโครงการ Nova Art ประชาอุทิศ ที่เป็นของบริษัท ธัญอนันต์ เช่นกัน ซึ่งด้านหน้าโครงการ Nova Art ก็เป็นโฮมออฟฟิศ ที่เปิดเป็นร้านค้า ร้านกาแฟ บ้างบางส่วน สำหรับร้านค้า ร้านอาหารเยอะๆ ส่วนใหญ่จะอยู่บนถนนประชาอุทิศตลอดทั้งเส้น มีร้านแนวๆ เก๋ๆ เปิดเยอะ ได้บรรยากาศดีค่ะ ส่วนโดยรวมของย่านนี้ มีหมู่บ้านจัดสรรอยู่มากมายหลากหลาย ถือว่าเป็นย่านที่เหมาะสมกับเป็นที่อยู่อาศัย

    แผนทีแสดงสภาพแวดล้อมรอบๆ โครงการ (ดูภาพใหญ่)

    ถนนด้านหน้าโครงการเป็นถนน 2 เลน

    บรรยากาศด้านขวามือส่วนใหญ่ยังเป็นพื้นที่เปล่าอยู่ค่ะ

    ภาพมุมสูงมองไปยังด้านขวามือของโครงการ มองเห็นสะพานวงแหวนกาญจนาภิเษกด้วยค่ะ
    ส่วนพื้นที่ลานโล่งๆ ด้านหน้าโครงการนั้นกำลังจะมี ตลาดไร่ทับทิม มาเปิดค่ะ

    มาดูบรรยากาศทางด้านซ้ายมือกันบ้าง

    ภาพมุมสูงมองไปยังด้านซ้ายมือของโครงการ ฝั่งตรงข้ามโครงการเป็นพื้นที่ทำตลาดไร่ทับทิม

    ฝั่งด้านซ้ายมือนี้จะอยู่ติดกับโครงการ Nova Art
    แบบบ้าน และตัวโครงการโดยรวม
    โครงการอยู่ในซอยประชาอุทิศ 131 แปลนของโครงการเป็นรูปคล้ายๆ สี่เหลี่ยมคางหมู ภายในโครงการมีแบบบ้านทาวน์โฮม 2 ชั้นอยู่ 87 หลัง และแบบบ้านโฮมออฟฟิศอีกประมาณ 18 หลัง รวมทั้งหมด 105 หลัง โดยแบบบ้านโฮมออฟฟิศจะอยู่แนวด้านหน้าของโครงการทั้งหมด และทาวน์โฮม 2 ชั้นจะอยู่ด้านใน ในส่วนของสวนสาธารณะ และสระว่ายน้ำ จะอยู่ค่อนมาด้านหลังของโครงการ

    Masterplan โครงการ (คลิกดูภาพใหญ่)

    ด้านหน้าทางเข้าโครงการ ปัจจุบันยังอยู่ในระหว่างก่อสร้างค่ะ

    ด้านหน้าเป็นอาคารพาณิชย์ตลอดทั้งแนว ถนนด้านหน้ากว้างประมาณ 12 เมตร

    โซนที่สร้างเสร็จแล้วมีทั้งหมด 12 หลัง

    ถนนซอยหน้าบ้านกว้างประมาณ 9 เมตร
    สำหรับแบบบ้านของโครงการแบ่งเป็น ทาวน์โฮม 2 ชั้น กับ โฮมออฟฟิศนั้น ตัวทาวน์โฮมยังแบ่งออกเป็น 2 แบบ คือแบบที่มีชั้นลอย กับไม่มีชั้นลอย ซึ่งตัวบ้านทั้งสองแบบออกแบบด้วยคอนเซ็ปต์ "Triple Space Double Volume" คือการออกแบบทาวน์โฮมให้เหมือนเป็นทาวน์โฮม 3 ชั้นในรูปแบบของทาวน์โฮม 2 ชั้น โดยการเพิ่ม Double Volume ที่ห้อง Master Bedroom ให้มีความสูงจากพื้นถึงเพดานสูงสุดถึง 5.15 เมตร บ้านที่มีชั้นลอยจะดีไซน์ชั้นลอยเพิ่มมาให้ใน Master Bedroom เพิ่มพื้นที่ใช้สอยในบ้านให้มากขึ้น เริ่มต้นที่ 137 ตารางเมตร ส่วนบ้านที่ไม่มีชั้นลอยก็เป็นพื้นที่โปร่งโล่ง พื้นที่ใช้สอย 126 ตารางเมตร ในส่วนของฟังก์ชั่นการใช้งานก็จะเหมือนกัน คือ เนื้อที่บ้านเริ่มต้น 20.6 ตารางวา หน้ากว้าง 5.5 เมตร มี 3 ห้องนอน 3 ห้องน้ำ จอดรถได้ 2 คัน โครงสร้างบ้านของโครงการเป็นคอนกรีตเสริมเหล็ก หลังคากระเบื้องลอนคู่ พร้อมแผ่นสะท้อนความร้อน ผนังบ้านเป็นผนัง Pre-cast เหมือนกัน
    สำหรับแบบบ้านที่ขายอีกแบบคือแบบบ้านโฮมออฟฟิศ มีทั้งหมด 18 หลัง อยู่แนวด้านหน้าโครงการ มีเนื้อที่บ้านเริ่มต้นที่ 23.6 ตารางวา พื้นที่ใช้สอย 347 ตารางเมตร โฮมออฟฟิศ 3.5 ชั้น ประกอบไปด้วย โซนต้อนรับลูกค้า, ห้องครัว, ห้องประชุม, ห้องทำงาน, ห้องทำงานผู้บริหาร 2 ห้องนอน และมีชั้นดาดฟ้า ซึงมีชั้นลอยให้ระหว่างชั้น 1 จะขึ้นไปชั้น 2 เราไปดูภาพจำลองแบบบ้านทั้งสองแบบกันค่ะ
    1. ทาวน์โฮม 2 ชั้น เนื้อที่บ้านเริ่มต้น 20.6 - 61 ตารางวา พื้นที่ใช้สอย แบบบ้านที่ไม่มีชั้นลอย 126 ตารางเมตร แบบบ้านที่มีชั้นลอย 137 ตารางเมตร หน้ากว้าง 5.5 เมตร จอดรถได้ 2 คัน ประกอบไปด้วย 3 ห้องนอน 3 ห้องน้ำ

    ภาพจำลองหน้าบ้านของแบบบ้านทาวน์โฮม 2 ชั้น

    ภาพจำลองภายในของแบบบ้านที่มีชั้นลอย

    ภาพจำลองภายในของแบบบ้านที่ไม่มีชั้นลอย

    แปลนบ้านทาวน์โฮม 2 ชั้น แบบไม่มีชั้นลอย

    แปลนบ้านชั้นลอยของทาวน์โฮม 2 ชั้น
    2. โฮมออฟฟิศ 3.5 ชั้น เนื้อที่บ้านเริ่มต้น 23.6 ตารางวา พื้นที่ใช้สอยเริ่มต้น 347 ตารางเมตร ประกอบไปด้วย โซนรับแขก, โซนทำงาน, ห้องประชุม, ห้องผู้บริหาร, 2 ห้องนอน, 5 ห้องน้ำ มีชั้นลอยและชั้นดาดฟ้า

    ภาพจำลองแบบบ้านโฮมออฟฟิศ

    แปลนบ้านโฮมออฟฟิศ
    ส่วนกลางและสิ่งอำนวยความสะดวก
    • Exclusive Clubhouse พร้อม wifi
    • สระว่ายน้ำพร้อมสระเด็ก
    • สวนเด็กเล่น
    • Fitness
    • สวนสาธารณะ
    • ระบบรักษาความปลอดภัย 24 ชม
    • Intelligent Security
    • CCTV
    เนื่องด้วยวันที่เราได้เข้าไปเยี่ยมชมโครงการนั้น ทางโครงการยังอยู่ในระหว่างก่อสร้างคลับเฮ้าส์ และสระว่ายน้ำ ทำให้ยังไม่มีภาพจริงของส่วนนี้ แต่เราได้นำภาพจำลองมาฝากกันก่อนค่ะ

    จาก Master Plan จะเห็นว่า คลับเฮ้าส์ และสระว่ายน้ำนั้นจะอยู่แยกส่วนกันค่ะ
    เพื่อความเป็นสัดส่วนตามจุดประสงค์ของผู้มาใช้บริการ

    ภาพจำลองบรรยากาศบริเวณคลับเฮ้าส์ และสวนสาธารณะที่ออกแบบให้มีทางเดินต่างระดับ Dynamic Form
    เพื่อเพิ่ม Active Movement ให้ดูน่าสนใจ และสวยงาม

    Clubhouse มาพร้อม Wi-Fi ฟรี

    ภาพจำลองมุมสูงของสวนสาธารณะ พร้อมสนามเด็กเล่น
    และคลับเฮ้าส์ ภายในคลับเฮ้าส์จะมีฟิตเนสด้วย

    สระว่ายน้ำจะมีการแยกสระเด็ก และสระผู้ใหญ่ให้
    ภาพบ้านตัวอย่าง และ Layout
    บ้านตัวอย่างที่เราจะพาไปเยี่ยมชมมี 3 หลังด้วยกันค่ะ คือแบบบ้านทาวน์โฮม 2 ชั้นแบบตกแต่งแล้ว, แบบบ้านทาวน์โฮม 2 ชั้นบ้านเปล่า สำหรับขายจริง, และแบบบ้านโฮมออฟฟิศ 3.5 ชั้น โดยทาวน์โฮม 2 ชั้นนี้จะเป็นทาวน์โฮมแบบที่มีชั้นลอยให้ เราไปดูรีวิวบ้านของแต่ละแบบกันเลยค่ะ
    แบบบ้านทาวน์โฮม 2 ชั้น บ้านตัวอย่างตกแต่ง เนื้อที่บ้านเริ่มต้น 20.6 ตารางวา พื้นที่ใช้สอย 137 ตารางเมตร ประกอบไปด้วย 3 ห้องนอน 3 ห้องน้ำ และมีชั้นลอย

    หน้าบ้านของทาวน์โฮม 2 ชั้น มีจุดเด่นอยู่ที่ดีไซน์ด้านหน้าที่ดูเหมือนเป็นทาวน์โฮม 3 ชั้น
    หรือที่โครงการให้คอนเซ็ปต์ไว้ว่า "Triple Space" ซึ่งบริเวณชั้น 2 นั้นมีการออกแบบให้มีชั้นลอย (Double Volume)
    โดยส่วนที่สูงที่สุดจากฝ้าถึงเพดาน นั้นสูงถึง 5.15 เมตรด้วยกันทีเดียว

    เข้ามาดูบริเวณหน้าบ้าน หน้ากว้าง 5.5 เมตร สามารถจอดรถได้ 2 คัน
    พื้นหน้าบ้านเป็นพื้นคอนกรีตเสริมเหล็กปาดเรียบ

    ส่วนประตูทางเข้าบ้านบานประตู UPVC หรือเทียบเท่า หน้าต่างด้านข้างเป็นบานเลื่อน
    กรอบอลูมิเนียมสีธรรมชาติพร้อมกระจกเขียวตัดแสง ส่วนด้านข้างนั้นจะมีตู้เก็บของให้
    ภายนอกใช้สีสะท้อนความร้อน เพื่อช่วยลดอุณหภูมิภายในบ้าน ซึ่งจะช่วยให้ประหยัดค่าไฟได้ค่ะ

    ตู้เก็บของเป็นแบบบานเลื่อน ด้านในสามารถเก็บพวกของใช้ทำสวน อุปกรณ์ล้างรถอะไรได้มากพอสมควร
    และด้านในมีหลอดไฟติดตั้งให้ด้วยค่ะ

    ก่อนจะเข้าบ้านมาดูแปลนบ้านกันก่อนค่ะ จากภาพเป็นแปลนบ้านชั้น 1 เราจะเข้าไปสำรวจกันเลย

    ด้านในจะพบกับส่วนห้องรับแขก หรือห้องนั่งเล่น โดยมีประตูทางขึ้นลงอยู่ติดกับประตูทางเข้าพอดี
    สำหรับชั้นล่างจะมีความสูงจากพื้นถึงฝ้า 2.65 เมตร พื้นบ้านใช้กระเบื้องแกรนิตโต้ ขนาด 60 x 60 cm

    โครงการตกแต่งด้วยการหันโซฟาไปทางด้านหลังบ้าน วางทีวีกั้นไว้
    โดยมีไอเดียเก๋ๆ คือ ชั้นวางทีวีนั้นสามารถหมุนไปด้านหลังที่เป็นส่วนรับประทานอาหารได้
    จะทำให้สามารถรับประทานอาหารไปพร้อมๆ กับชมรายการทีวีโปรด ซึ่งสามารถนำไอเดียนี้ไปใช้ได้ค่ะ

    อีกด้านหนึ่งจะเป็นห้องเก็บของ และห้องน้ำ โดยใช้ประตูโพลีสไตรีน (Polystyrene) ทั้งสองห้อง
    ด้านข้างห้องเก็บของมีการตกแต่ง Built-in เป็นชั้นวางของ และตู้เก็บของไว้

    บรรยากาศการตกแต่งห้องรับแขกของโครงการ สามารถวางโซฟาสำหรับ 4 ที่นั่งได้พอดี

    ด้านในบ้านเป็นพื้นที่ห้องครัว และโต๊ะรับประทานอาหาร

    วางโต๊ะอาหารสำหรับ 4 ที่นั่ง

    ด้านหลังบ้านเป็นพื้นที่ลานซักล้าง และสวนหลังบ้าน

    โครงการตกแต่งพื้นด้วยสนามหญ้าเทียม รั้วบ้านกั้นสูง 1.8 เมตร

    ซึ่งด้านหลังบ้านจะมีซิงก์ล้างจานที่ Built-in ไว้ให้ด้วย

    ตกแต่งเป็นสวนเล็กๆ ก็ดูสวยดีค่ะ

    พื้นที่ครัวตกแต่งได้อย่างลงตัว

    เข้ามาดูห้องน้ำชั้นล่าง มีการแบ่งส่วนแห้ง และส่วนเปียกด้วยพื้นที่ต่างระดับ
    พื้นและผนังห้องน้ำเป็นเซรามิค และออกแบบผนังต่างๆ ภายในห้องน้ำให้เป็นชั้นวางของได้

    ส่วนพื้นที่เปียกมีทำช่องไว้ข้างๆ ฝักบัวสำหรับวางของใช้

    อ่างล้างหน้าของ Marvel (หรือเทียบเท่า) สุขภัณฑ์ของ Nahm (หรือเทียบเท่า) ก๊อกน้ำของ Marvel

    สำหรับบันไดนั้นเก๋ไก๋ตรงที่สามารถเป็นลิ้นชักเก็บของได้ด้วย

    บริเวณชานพักมีช่องรับแสงอยู่ด้านบนหลังคา ขึ้นไปดูชั้นสองกันต่อเลยค่ะ

    ดูแปลนบ้านชั้น 2 กันก่อนค่ะ

    ชั้นบนนี้มีทั้งหมด 3 ห้องนอน 2 ห้องน้ำ (1 ห้องน้ำในตัว) พื้นเป็นพื้นลามิเนต

    จากแปลนบ้าน Master Bedroom จะอยู่ด้านขวามือ โถงบันไดบริเวณด้านข้างบันไดมีพื้นที่ว่าง
    สำหรับตกแต่งเพิ่มเติมได้ โครงการตกแต่งไว้เป็นโต๊ะหมู่บูชา

    อีก 2 ห้องนอนอยู่ด้านซ้ายมือ

    เข้ามาดูห้องนอนที่ 2 กันก่อนค่ะ โครงการตกแต่งด้วยโทนสีฟ้า ดูสบายตา

    วางเตียง 3 ฟุต เพื่อให้เหลือพื้นที่วางโต๊ะเขียนหนังสือ

    และยังวางตู้เสื้อผ้าได้อีกค่ะ

    บรรยากาศห้องนอนที่ 3 เป็นสีชมพู มุ้งมิ้ง

    สามารถวางโต๊ะเขียนหนังสือ ตู้เสื้อผ้า โต๊ะเครื่องแป้งได้เช่นกันค่ะ

    ส่วนห้องน้ำรวม จะอยู่ติดกับ Master Bedroom

    เข้ามาดูห้องน้ำกันก่อนค่ะ

    ดีไซน์เหมือนกับห้องน้ำชั้นล่าง มีบุผนังทำชั้นวางของให้เหมือนกัน เพื่อให้ใช้พื้นที่ได้อย่างเต็มที่

    ต่อไปมาดู Master Bedroom กันค่ะ

    ไฮไลท์ของบ้านก็คือ Master Bedroom นี่แหละค่ะ จากภาพจะเห็นว่าเพดานนั้นอยู่สูงมาก
    จากการออกแบบแนว Double Volume ของโครงการ เปิดโปร่งช่วงเตียงนอน

    ถ้ายังไม่แน่ใจ ลองดูภาพนี้ค่ะ จากพื้นถึงเพดานนั้นสูงถึง 5.15 เมตรทีเดียว ทำให้ห้องนี้ดูโปร่งโล่ง
    รู้สึกได้ถึงความพิเศษของแบบบ้านที่ไม่เหมือนใคร

    บริเวณ Double Volume จะอยู่ด้านปลายเตียงนอน พื้นที่ด้านบนเป็นชั้นลอย
    ส่วนด้านล่างชั้นลอยจะเป็นพื้นที่ Walk in closet และมีห้องน้ำในตัว

    กั้นพื้นที่ Walk in Closet ด้วยตู้เสื้อผ้าที่เป็นชั้นวางทีวี ที่เห็นบันไดลิงนั่นไม่ใช่ทางขึ้นนะคะ สำหรับเอาไว้ปีนขึ้น
    เพื่อหยิบหนังสือจากชั้นหนังสือที่อยู่บริเวณชั้นลอย เป็นไอเดียเก๋ๆ จากทางโครงการค่ะ

    ตู้เสื้อผ้าสูงติดกับเพดานชั้นลอยเลยค่ะ

    จากมุม Walk in Closet มองเข้าไปในห้องน้ำ

    ห้องน้ำในห้องนอนใหญ่ มีการแบ่งส่วนเปียกและส่วนแห้ง

    ด้านใน Walk in Closet มีโต๊ะเครื่องแป้ง และบันไดทางขึ้นชั้นลอยอยู่ตรงนี้ค่ะ แถมยังเป็นชั้นวางของได้ด้วย

    หน้าตาบันไดก็จะเป็นประมาณนี้ อาจจะไม่เหมือนของจริง ซึ่งเดี๋ยวเราจะพาไปชมอีกที

    ขึ้นมาชั้นลอย โครงการตกแต่งไว้เป็นเหมือนกับห้องทำงาน แยกโซนจากส่วนอื่นๆ เพิ่มความเป็นส่วนตัว
    สามารถทำเป็นห้องอเนกประสงค์ได้ตามสะดวกเลยค่ะ

    มองไปด้านล่างก็จะหวาดเสียวหน่อยๆ สูงจัง

    แต่พออยู่ด้านบนก็จะรู้สึกเงียบสงบ เป็นส่วนตัว
    เป็นการเปิดประสบการณ์บ้านแนวใหม่ ให้อารมณ์ทาวน์โฮม 3 ชั้น ในบ้าน 2 ชั้นได้ดีทีเดียวค่ะ
    ต่อไปเราจะมาดูแบบบ้านทาวน์โฮม 2 ชั้น ที่เป็นบ้านมาตรฐานโครงการกันค่ะ โดยแปลนบ้านนั้นก็จะเหมือนกับบ้านตัวอย่างตกแต่ง เพียงแต่จะสลับด้านกัน ซึ่งฟังก์ชั่นการใช้งานก็จะเหมือนกันทุกประการค่ะ ไปดูกันเลย

    หน้าบ้านของบ้านเปล่า มีรั้วรอบขอบชิดให้เรียบร้อย ด้านข้างมีช่องถังขยะ และตู้รับจดหมายให้

    รั้วแบ่งกั้นบ้านสูงเพิ่มความเป็นส่วนตัว ด้านในก็จะมีหน้าตาก็จะประมาณนี้

    พื้นหน้าบ้านเป็นพื้นคอนกรีตเสริมเหล็กปาดเรียบเหมือนกัน หน้ากว้าง 5.5 เมตร จอดรถได้ 2 คัน
    มีช่องระบายน้ำ รูเสียบเปลั๊กไฟ และก๊อกน้ำให้ตรงด้านข้างบ้าน

    ส่วนทางเข้าหน้าบ้านก็จะเหมือนกับบ้านตกแต่งเป๊ะเลย

    เข้ามาด้านใน พื้นที่โล่งด้านหน้าเป็นห้องรับแขก ด้านในเป็นห้องครัว

    มีห้องเก็บของใต้บันไดอยู่ติดกับห้องน้ำ จะเห็นว่าด้านข้างห้องเก็บของเป็นช่องเปล่า
    ที่ยังไม่ได้ตกแต่งให้เป็นชั้นวางของเหมือนกับบ้านตัวอย่าง เราสามารถประยุกต์เป็นอะไรก็ได้

    พื้นบ้านเป็นกระเบื้องแกรนิตโต้ ขนาด 60 x 60 cm โคมไฟดาวน์ไลท์

    มีประตูบ้านเลื่อนออกไปยังพื้นที่หลังบ้าน

    แถมเครื่องปั๊มน้ำ ถังสำรองน้ำที่ทำมาเป็นชุดเดียวกัน สไตล์ Loft สีโทนเดียวกับตัวบ้าน

    มีซิงก์ล้างจานด้านหลังบ้านให้เช่นกันค่ะ

    ห้องน้ำชั้น 1 เหมือนกับแบบบ้านตัวอย่าง

    ห้องเก็บของใต้บันได เป็นที่เก็บแผงวงจรไฟด้วยค่ะ

    ขึ้นไปดูชั้นสองกันค่ะ

    บันไดชั้นสองด้านบนมีช่องรับแสง และหลอดไฟ Two Way เพิ่มความสะดวกในการใช้งาน
    ส่วนบริเวณโถงบันไดมีพื้นที่สำหรับทำเป็นห้องพระเล็กๆ ได้

    Master Bedroom ของบ้านเปล่าจะอยู่ด้านซ้ายมือ ห้องนอนที่เหลืออยู่ด้านขวา

    เข้ามาดูบรรยากาศบ้านเปล่าของห้องนอนที่ 2 กันก่อน มีช่องหน้าต่างให้ 1 ด้านของผนังห้อง

    ห้องนอนที่ 3 ก็เช่นกันค่ะ

    ห้องน้ำชั้น 2 จะมีการแยกส่วนเปียก - แห้ง และบริเวณผนังออกแบบให้มีชั้นวางของเพิ่มเติม
    ด้านบนมีพัดลมระบายอากาศ

    เอาล่ะ เข้ามาดูห้อง Master Bedroom กันเลยดีกว่า ยังคงคอนเซ็ปต์ Double Volume
    โดดเด่นชัดเจนในเรื่องของความโปร่งโล่ง และเพดานที่สูงถึง 5.15 เมตร

    บริเวณชั้นลอย บ้านมาตรฐานโครงการให้ประมาณนี้เลย

    พื้นที่สำหรับวางเตียงสามารถวางเตียง king size ได้สบาย

    ใต้ชั้นลอยเป็นพื้นที่ Walk in Closet และห้องน้ำในตัว

    ในห้องน้ำมีช่องรับแสงอยู่บริเวณส่วนเปียก เพื่อให้มีแดดช่วยกำจัดความชื้นภายในห้องน้ำ

    สำหรับบันไดชั้นลอย ตามมาตรฐานโครงการให้ประมาณนี้เลย สามารถตกแต่งเพิ่มเติมได้อีก

    พอขึ้นมาแล้วก็จะเห็นพื้นที่ส่วนตัวอันแสนสงบ

    เพดานมีการไล่ระดับลงมานิดหน่อย ส่วนนี้จะมีความสูงจากพื้นอยู่ที่ 5.14 เมตรค่ะ
    แบบบ้านสุดท้ายที่เราจะพาไปชมกันนี้เป็นแบบบ้านโฮมออฟฟิศขนาด 3.5 ชั้น มีชั้นลอยอยู่ระหว่างชั้น 1 จะขึ้นไปชั้น 2 เนื้อที่บ้าน 23.6 ตร.ว. พื้นที่ใช้สอย 347 ตร.ม. มีชั้นดาดฟ้า โดยแบบบ้านโฮมออฟฟิศนี้เป็นบ้านเปล่าขายจริง ไม่ได้มีการตกแต่งใดๆ ซึ่งสามารถดูฟังก์ชั่นการใช้งานได้จากแปลนบ้าน ไปชมกันเลยค่ะ

    ด้านหน้าบ้านของแบบบ้านโฮมออฟฟิศ สไตล์โมเดิร์น

    ประตูทางเข้ากับกระจกด้านหน้า แบ่งโซนด้วยผนังตกแต่ง

    ประตูทางเข้าเป็นแบบบานสลิง กระจกเขียวตัดแสง

    ดูแปลนบ้านชั้น 1 จะเห็นว่า ฟังก์ชั่นชั้นแรกนั้นจะประกอบไปด้วย ส่วนต้อนรับลูกค้า ถัดไปเป็นพื้นที่ทำงาน
    และด้านหลังสามารถทำเป็นห้องครัวเล็กๆ ได้

    มองเข้าไปด้านในก็จะเห็นเป็นห้องโล่งๆ ประมาณนี้

    หรือถ้าจะมองย้อนกลับไปหน้าบ้านก็จะเห็นประมาณนี้ สูงโปร่งทีเดียว
    สำหรับพื้นบ้านเป็นแกรนิตโต้ 60 x 60 cm

    ด้านในสุดเป็นพื้นที่ทำห้องครัวเล็กๆ มีห้องเก็บของอยู่ใต้บันได

    ห้องเก็บของมีโคมไฟดาวน์ไลท์ ด้านในสำหรับเก็บแผงวงจรไฟด้วย

    ด้านในห้องเก็บของ ก็ถือว่าใหญ่พอสมควรค่ะ

    ห้องน้ำอยู่ตรงข้ามกับบันได และมีประตูหลังบ้านไปลานซักล้างได้

    ห้องน้ำชั้น 1 ได้รับการออกแบบให้เป็นพื้นที่ส่วนแห้งทั้งหมด ที่พิเศษคือมีที่อ่านหนังสือ
    รองรับอยู่ด้านในห้องน้ำให้ด้วย

    เปิดประตูรับแสงจากหลังบ้านกันหน่อย

    ลานซักล้างมีปั๊มน้ำ และถังเก็บน้ำให้

    มุมมองจากหลังบ้าน มองขึ้นไปยังชั้นบน จะเห็นว่ามีชานพักและบันไดหนีไฟให้ทุกชั้น โดยติดตั้งหลอดไฟให้ด้วย

    ขึ้นไปดูชั้นบนกันต่อเลย

    จากชั้น 1 ขึ้นมาจะเป็นชั้นลอยก่อนค่ะ

    ดูจากแปลนโครงการออกแบบไว้ให้เป็นห้องประชุม

    มีมุมเสียบปลั๊กให้เพียบพร้อม และมีหน้าต่างเพื่อรับแสงเพื่อให้มีความสว่างเข้ามาภายในอาคาร

    บรรยากาศโดยรวมของชั้นลอย

    ขึ้นมาดูชั้น 2 กันต่อค่ะ

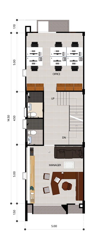
    โครงการออกแบบให้ชั้นสองเป็นอีกส่วนหนึ่งของพื้นทีทำงาน และมีห้องส่วนตัวสำหรับ Manager

    โดยห้อง Manager ก็จะมีประตูกั้นให้เพื่อความเป็นส่วนตัว

    โถงทางเดินก็ค่อนข้างกว้าง เดินสวนกันได้สะดวก

    บริเวณห้องทำงานชั้นสอง จากแปลนบ้านสามารถวางโต๊ะทำงานแบบหลวมๆ ได้ถึง 6 ที่นั่ง

    ห้องน้ำบริเวณห้องโถงออกแบบสไตล์โมเดิร์น สำหรับชั้นนี้จะมีส่วนเปียกสำหรับอาบน้ำให้ด้วยค่ะ

    เข้าไปดูห้อง Manager กันซักหน่อย

    เป็นห้องที่หันออกไปยังหน้าบ้าน สามารถมองเห็นวิวหน้าบ้านได้

    ห้อง Manager จะมีห้องน้ำในตัว

    ห้องน้ำผู้บริหาร แบ่งส่วนแห้งส่วนเปียก และผนังห้องน้ำก็ออกแบบให้วางสิ่งของ เครืองใช้ต่างๆ ได้

    Let's Go ชั้น 3 กันเลยค่ะ

    ชั้น 3 เป็นพื้นที่สำหรับชีวิตส่วนตัว ประกอบไปด้วย 2 ห้อง ทำให้ชีวิตการทำงานและชีวิตส่วนตัว ลงตัวมากขึ้น

    ขึ้นมาก็จะเจอโถงทางเดินประมาณนี้

    ห้องนอนเล็ก จะเป็นห้องที่หันไปด้านหลังบ้าน

    มีห้องน้ำในตัวให้ค่ะ

    แบ่งโซนแห้งโซนเปียกให้เป็นสัดส่วน

    ส่วน Master Bedroom จะอยู่ด้านหน้าบ้าน เห็นวิวหน้าบ้าน หน้าตาก็จะเหมือนกับห้องทำงาน Manager

    มีห้องน้ำในตัวให้เหมือนกัน

    ห้องน้ำ มีทั้งหมด 3 แบบ

    เรามาถึงชั้น 3 แล้ว แต่ก็ยังมีบันไดขึ้นไปชั้นบนได้อีก

    ซึ่งก็คือชั้นดาดฟ้านั่นเองงงงงงง ท้องฟ้ายามบ่ายสีสวยมากๆ เลยค่ะ

    สามารถทำเป็นลานปาร์ตี้สำหรับให้พนักงานผ่อนคลายได้นะ พื้นที่ค่อนข้างกว้างทีเดียว
    ราคาและค่าใช้จ่ายที่เกี่ยวข้องโดยประมาณ ณ วันที่ 8 กันยายน 2560
    ราคาเริ่มต้นของแบบบ้านทาวน์โฮมของโครงการ แบ่งออกเป็น 3 แบบดังนี้
    • แบบบ้านทาวน์โฮม 2 ชั้น แบบไม่มีชั้นลอย ราคาเริ่มต้นที่ 2.69 ล้านบาท
    • แบบบ้านทาวน์โฮม 2 ชั้น แบบมีชั้นลอย ราคาเริ่มต้นที่ 2.89 ล้านบาท
    • แบบบ้านโฮมออฟฟิศ 3.5 ชั้น มีดาดฟ้า ราคาเริ่มต้นที่ 5.99 ล้านบาท
    ยกตัวอย่างราคาและค่าใช้จ่ายของ ทาวน์โฮมขนาด 20.6 ตร.ว. พื้นที่ใช้สอย 137 ตร.ม.
    ราคาปกติ 2.89 ล้านบาท (โปรโมชั่นส่วนลด 100,000 บาท)
    ราคาขายสุทธิ 2.79 ล้านบาท
    • เงินมัดจำจอง 10,000 บาท
    • เงินทำสัญญา 50,000 บาท
    โปรโมชั่น
    1. ส่วนลด ณ วันโอนกรรมสิทธิ์ 100,000 บาท ราคาสุทธิ 2.79 ล้านบาท
    2. ฟรีเคาน์เตอร์ครัวไทย, พัดลมระบายอากาศห้องน้ำชั้น 2
    3. ฟรีปั๊มน้ำอัตโนมัติยี่ห้อ Hitachi ขนาด 200 วัตต์ ถังเก็บน้ำยี่ห้อ DOS ขนาด 900 ลิตร พร้อมติดตั้งหลังโอนกรรมสิทธิ์ 45 วัน
    ค่าใช้จ่าย ณ วันโอนกรรมสิทธิ์** (โดยประมาณ)
    1. ค่าธรรมเนียมการโอนกรรมสิทธิ์ 2% คนละครึ่งกับโครงการ 27,900 บาท
    2. ค่าจดจำนอง 1% (คิดจากวงเงินกู้ x ด้วย 1%) กรณีซื้อสดไม่ต้องชำระ 27,900 บาท
    3. ค่าบริการสาธารณูปโภค 50 บาท ต่อแปลงเก็บล่วงหน้า 24 เดือน 24,720 บาท
    4. ค่าติดตั้งมิเตอร์ไฟฟ้า ขนาด 15 แอมป์ 6,550 บาท
    5. ค่าติดตั้งมิเตอร์ประปาขนาด 4 หุน 5,750 บาท
    รวมค่าใช้จ่ายวันโอนกรรมสิทธิ์ 92,820 บาท
    ประมาณการผ่อนชำระ : เดือน
    อัตราดอกเบี้ย 7.00% (ต่อปี)
    วงเงินกู้* (บาท) ระยะเวลาผ่อนชำระ (ปี)
    5 10 15 20 25 30
    2,790,000 54,589 31,680 24,304 20,801 18,838 17,635
    หมายเหตุ
    1. เงินจอง 10,000 บาท / ทำสัญญาภายใน 7 วัน หลังจากวันจอง *ลูกค้าต้องนำเอกสารมายื่นกู้ธนาคารภายใน 7 วัน มิฉะนั้นทางโครงการขอสงวนสิทธิ์ให้ลูกค้าท่านอื่น
    2. ค่าส่วนกลาง 50 บาท/ตารางวา โดยชำระล่วงหน้า 2 ปี นับตั้งแต่วันโอนกรรมสิทธิ์
    3. ค่าธรรมเนียมกาและค่าใช้จ่ายในการจดทะเบียนโอนกรรมสิทธิ์ 2% (ผู้ซื้อและผู้ขายชำระคนละครึ่งเท่ากันทั้ง 2 ฝ่าย)
    4. ค่าใช้จ่ายในการติดตั้งมิเตอร์น้ำประปาและมิเตอร์ไฟฟ้า ผู้ซื้อเป็นผู้ออกโดยชำระในวันโอนกรรมสิทธิ์
    5. บริษัทฯ ขอสงวนสิทธิ์ในการเปลี่ยนแปลงราคาและเงื่อนไขข้างต้นได้ตามความเหมาะสม โดยมิต้องแจ้งให้ทราบล่วงหน้า
    6. บริษัทฯ ขอสงวนสิทธิ์ในการใช้โปรโมชั่น/ของแถมร่วมกับรายการส่งเสริมการขายอื่นๆ ของทางบริษัทฯ
    7. ตารางวาที่ดินเพิ่ม/ลด 50,000 บาท/ตารางวา
    8. วงเงินกู้พิจารณาจากเครดิตของผู้กู้ เงื่อนไขการอนุมัติให้อัตราดอกเบี้ยพิเศษขึ้นอยู่กับการพิจารณาของแต่ละสถาบันการเงิน ภายใต้เงื่อนไขบริษัทฯ
    สถานะปัจจุบันของโครงการ ณ วันที่ 8 กันยายน 2560
    ปัจจุบันโครงการอยู่ในระหว่างการก่อสร้างแบ่งออกเป็น โฮมออฟฟิศ และ ทาวน์โฮม สำหรับโฮมออฟฟิศนั้นจะอยู่โซนด้านหน้าของโครงการ จำนวน 18 หลัง สร้างเสร็จเรียบร้อยแล้ว ส่วนทาวน์โฮม อยู่ด้านหลัง ปัจจุบันสร้างเสร็จแล้ว 26 หลัง พร้อมโอนได้ทันที หากท่านใดสนใจสามารถเข้าไปเยี่ยมชมได้ที่สำนักงานขายของโครงการ
    ติดต่อสำนักงานขาย โทร. 02-464-8265 หรือทางเว็บไซต์ www.novaluxx.com
    ดูรายละเอียดโครงการ โนวา ลักซ์ ประชาอุทิศ 131

    รีวิว-พรีวิวล่าสุดอื่นๆ

เว็บไซต์นี้มีการเก็บคุกกี้เพื่อเพิ่มความพึงพอใจในการใช้งานเว็บไซต์ และช่วยให้เราปรับปรุง และนำเสนอเนื้อหาตรงตามความสนใจของท่าน ท่านสามารถดู Privacy Notice และ ดู Cookies Policy ของเราได้ ที่นี่ ทั้งนี้ ท่านจะยินยอมให้เราเก็บคุกกี้ทั้งหมด หรือให้เก็บแค่บางส่วนโดยการคลิกเลือก ตั้งค่า

ท่านสามารถเลือกให้ความยินยอมการเก็บคุกกี้เป็นเรื่องๆ ได้ที่นี่

เมื่อคุณเข้าชมเว็บไซต์ หรือแอปพลิเคชั่น checkraka เราอาจจัดเก็บ หรือดึงข้อมูลจากเบราว์เซอร์ของคุณในรูปแบบของคุกกี้ และเทคโนโลยีอื่นที่คล้ายคลึง เช่น tag และ pixel (เรียกรวมกันว่า “คุกกี้”) ซึ่งมักเป็นข้อมูลที่ไม่สามารถระบุตัวตนได้โดยตรง แต่ช่วยให้คุณใช้งานเว็บไซต์ได้ปลอดภัย และตรงตามความต้องการมากขึ้น คุณอาจไม่ยินยอมให้เราเก็บคุกกี้บางประเภทได้ โดยการคลิกตามหัวข้อข้างล่างนี้

ประเภทคุกกี้
อ่านเพิ่มเติม ที่นี่
ยินยอม / ไม่ยินยอม
คุกกี้ที่จำเป็นต้องมีเสมอ
(Strictly Necessary)
คุกกี้สำหรับการใช้งานเว็บไซต์
(Functionality)
คุกกี้เพื่อเพิ่มประสิทธิภาพและวิเคราะห์
(Performance & Analytics)
คุกกี้เพื่อการตลาด
(Marketing)