ประเมินวงเงินรู้ผลใน 3 นาที
กับ กรุงศรี ออโต้ พร้อมสตาร์ท

เริ่มประเมินวงเงินพร้อมสตาร์ท
ผ่านมือถือ สแกนเลย

ดูวงเงินพร้อมสตาร์ทที่ได้รับ

  • บ้าน
  • บ้าน
  • ค้นหาแบบละเอียด
  • รีวิว-เยี่ยมชม กัสโต้ วงแหวน - พระราม 5 (Gusto Wongwaen - Rama 5)

    20 ก.ค. 59 16,763
    รีวิว - เยี่ยมชมกัสโต้ วงแหวน - พระราม 5 (Gusto Wongwaen - Rama 5)
    รีวิว - เยี่ยมชมบ้านกับ Checkraka.com วันนี้จะพาทุกท่านไปพบกับ ทาวน์โฮม 2 ชั้น สไตล์โมเดิร์น หนึ่งในโครงการของ บริษัท กัสโต้ วิลเลจ จำกัดบริษัทในเครือของ บริษัท ควอลิตี้เฮ้าส์ จำกัด ในชื่อโครงการ "กัสโต้ วงแหวน - พระราม 5" ทาวน์โฮมที่มาพร้อมกับฟังก์ชันการใช้งานที่ครบครัน หน้ากว้าง 5.7 เมตร จอดรถได้ 2 คัน 3-4 ห้องนอน 3 ห้องน้ำ นอกจากนี้ยังมีสิ่งอำนวยความสะดวกภายในโครงการแบบครบพร้อม ทั้งคลับเฮ้าส์, สระว่ายน้ำ และฟิตเนส สำหรับผู้ที่เริ่มต้นครอบครัว โครงการนี้ก็ถือว่าเป็นตัวเลือกที่ดีทีเดียวค่ะ ไปดูรายละเอียดเพิ่มเติมกันเลยค่ะ
    ข้อมูลโครงการ
    • เจ้าของโครงการ บริษัท กัสโต้ วิลเลจ จำกัด เป็นบริษัทในเครือของ บริษัท ควอลิตี้เฮ้าส์ จำกัด (มหาชน)
    • ที่ตั้งโครงการ ซอยโยธาธิการ ถนนกาญจนาภิเษก ตำบลบางม่วง อำเภอบางใหญ่ จังหวัดนนทบุรี 11140
    • ขนาดพื้นที่โครงการ 23 ไร่ 3 งาน 68.00 ตร.ว.
    • จำนวนบ้านรวม 274 หลัง
    • ขนาดที่ดิน แบบบ้าน Lilly เริ่มต้นที่ 18.5 ตร.ว., แบบบ้าน Bonita เริ่มต้นที่ 21.2 ตร.ว.
    • ขนาดพื้นที่ใช้สอย แบบบ้าน Lilly มีขนาดพื้นที่ใช้สอยที่ 109 ตร.ม., แบบบ้าน Bonita มีขนาดพื้นที่ใช้สอยที่ 132 ตร.ม.
    • ปัจจุบันมีแบบทาวน์โฮมอยู่ 2 แบบ แบบบ้าน Lilly และแบบบ้าน Bonita
    • สิ่งอำนวยความสะดวก สวนสาธารณะ คลับเฮ้าส์ และสระว่ายน้ำ
    • ประตูทางเข้ามีหน่วยรักษาความปลอดภัยและกล้อง CCTV บันทึกการเข้า-ออก ตลอด 24 ชม.
    • ราคาพิเศษเริ่มที่ 2.37 ล้านบาท
    • วันที่เยี่ยมชมโครงการ ณ วันที่ 3 มิถุนายน 2559
    เจ้าของและผู้พัฒนาโครงการ
    บริษัท กัสโต้ วิลเลจ จำกัด เป็นบริษัทในเครือของ บริษัท ควอลิตี้เฮ้าส์ จำกัด (มหาชน) ก่อตั้งเมื่อวันที่ 1 เมษายน 2554 ด้วยทุนจดทะเบียน 1,000 ล้านบาท ประกอบธุรกิจพัฒนาอสังหาริมทรัพย์ประเภททาวน์โฮมเป็นหลัก โดยเน้นโครงการเพื่อจำหน่ายในเขตกรุงเทพมหานคร และปริมณฑลภายใต้ชื่อ "กัสโต้" (Gusto) เนื่องจากบริษัทเริ่มจัดตั้งขึ้นเพียง 5 ปีเท่านั้น โครงการที่ทำจึงยังไม่มากนัก แต่แม้จะแค่ 5 ปี แต่โครงการที่ผ่านมา และที่ยังเปิดขายอยู่ก็มีหลายโครงการ เช่น
    1. โครงการกัสโต้ พระราม 2 (ดูรายละเอียดเพิ่มเติมได้ที่นี่)
    2. โครงการกัสโต้ สาทร-ตากสิน (ดูรายละเอียดเพิ่มเติมได้ที่นี่)
    3. โครงการกัสโต้ ท่าน้ำนนท์-พระราม 5 (ดูรายละเอียดเพิ่มเติมได้ที่นี่)
    4. โครงการกัสโต้ รามคำแหง (ดูรายละเอียดเพิ่มเติมได้ที่นี่)
    5. โครงการกัสโต้ พหลโยธิน 48 (ดูรายละเอียดเพิ่มเติมได้ที่นี่)
    6. โครงการกัสโต้ แกรนด์ รามคำแหง (ดูรายละเอียดเพิ่มเติมได้ที่นี่)
    7. โครงการกัสโต้ สุขสวัสดิ์ (ดูรายละเอียดเพิ่มเติมได้ที่นี่)
    8. โครงการกัสโต้ เทพารักษ์ (ดูรายละเอียดเพิ่มเติมได้ที่นี่)
    9. โครงการกัสโต้ บางนา-สุวรรณภูมิ (ดูรายละเอียดเพิ่มเติมได้ที่นี่)
    10. โครงการกัสโต้ พหลโยธิน-สายไหม (ดูรายละเอียดเพิ่มเติมได้ที่นี่)
    11. โครงการกัสโต้ วงแหวน-พระราม 5 (ดูรายละเอียดเพิ่มเติมได้ที่นี่)
    ทำเลที่ตั้ง
    ที่ตั้งโครงการตั้งอยู่ที่ซอยโยธาธิการ ถนนกาญจนาภิเษก ตำบลบางม่วง อำเภอบางใหญ่ จังหวัดนนทบุรี 11140 สามารถเข้า-ออกโครงการได้หลายทาง ไม่ว่าจะเป็นถนนวัดปรางค์หลวง หรือถนนบางใหญ่-บางคูลัด (ซอยวัดพิกุล)

    แผนที่ตั้งโครงการ กัสโต้ วงแหวน - พระราม 5

    ภาพแผนที่โครงการแจกแจงให้เห็นระยะใกล้-ไกลของโครงการกับสถานที่
    หรือ Landmark รอบๆ โครงการที่น่าสนใจ (คลิกเพื่อดูภาพใหญ่)
    พิกัดโครงการโดยประมาณ 13.839439, 100.418854

    Plus Mall บางใหญ่ ห่างจากโครงการประมาณ 2.3 กม.

    โรงเรียนเทพศิรินทร์ นนทบุรี ห่างจากโครงการประมาณ 3.4 กม.

    เมกา บางใหญ่ ห่างจากโครงการประมาณ 3.9 กม.

    โรงเรียนอนุบาลเด่นหล้า พระราม 5 ห่างจากโครงการประมาณ 4.2 กม.

    เซ็นทรัลเวสต์เกต ห่างจากโครงการประมาณ 5 กม.
    การเดินทาง
    1. เดินทางด้วยรถยนต์ส่วนตัว
    การเดินทางด้วยรถยนต์สามารถมาได้หลายเส้นทาง ตามตัวอย่างเส้นทางดังต่อไปนี้ค่ะ
    ขาเข้าโครงการ เส้นทางที่ 1 เข้าจากถนนกาญจนาภิเษก

    เริ่มจากถนนกาญจนาภิเษก มุ่งหน้าไปทางบางใหญ่ สะพานข้างหน้าคือจุดเชื่อมต่อถนนนครอินทร์กับถนนกาญจนาภิเษกค่ะ

    ผ่านจุดเชื่อมต่อตรงถนนนครอินทร์นิดเดียวจะเห็น Plus Mall อยู่ฝั่งซ้ายมือ

    ตรงผ่าน Plus Mall ประมาณ 1.5 กม. จะเห็นสะพานลอยซึ่งตรงนี้มีป้ายบอกทางไปโครงการด้วยค่ะ
     ให้เตรียมชิดซ้ายเพื่อกลับรถได้เลย

    ผ่านสะพานลอยมาให้ชิดซ้ายเพื่อกลับรถใต้สะพาน ซึ่งตามทางจะมีป้ายชื่อโครงการบอกทางเรื่อยๆ

    เมื่อกลับรถมาอีกฝั่งแล้ว ให้อยู่เลนซ้ายไว้ก่อนนะคะ เพราะซอยที่เข้าโครงการอยู่ไม่ไกลแล้ว

    ผ่านสะพานลอยไปอีกไม่กี่เมตรก็เป็นทางเข้าถนนวัดปรางค์หลวงแล้ว ซึ่งเราจะเลี้ยวซ้ายเข้าถนนนี้ค่ะ

    หน้าปากซอยจะมีป้ายชื่อโครงการบอกไว้ ให้เลี้ยวซ้ายเข้าไปตามป้ายได้เลยค่ะ

    ตรงเข้ามาประมาณ 600 เมตร ให้เลี้ยวซ้ายไปด้านวัดพิกุลเงิน

    ตรงมาอีกประมาณ 100 เมตรจะเห็นโครงการอยู่ฝั่งขวามือค่ะ
    ขาเข้าโครงการ เส้นทางที่ 2 เข้าทางถนนบางกรวย - ไทรน้อย
    ขาออกโครงการ เส้นทางที่ 1 ออกโครงการไปถนนบรมราชชนนี หรือ ไปสะพานพระราม 5
    ขาออกโครงการ เส้นทางที่ 2 ออกโครงการไปรถไฟฟ้าสายสีม่วง
    2. การเดินทางด้วยรถไฟฟ้า
    โครงการรถไฟฟ้าสายสีม่วง ช่วงบางใหญ่-บางซื่อ มีระยะทางประมาณ 23 กิโลเมตร โดยจะก่อสร้างเป็นรถไฟฟ้าแบบยกระดับ (ลอยฟ้า) ตลอดทั้งสาย มีสถานีจำนวน 16 สถานี ได้แก่ สถานีคลองบางไผ่, สถานีตลาดบางใหญ่, สถานีสามแยกบางใหญ่, สถานีบางพลู, สถานีบางรักใหญ่, สถานีบางรักน้อยท่าอิฐ, สถานีไทรม้า, สถานีสะพานพระนั่งเกล้า, สถานีแยกนนทบุรี 1, สถานีศรีพรสวรรค์, สถานีศูนย์ราชการนนทบุรี, สถานีกระทรวงสาธารณสุข, สถานีแยกติวานนท์, สถานีวงศ์สว่าง, สถานีบางซ่อน และสถานีเตาปูน โดยมีสถานีเตาปูนเป็นสถานีเปลี่ยนเส้นทาง (Interchange Station) ระหว่างสายสีม่วงและสายสีน้ำเงิน โดยสถานีที่ใกล้กับโครงการมากที่สุดคือสถานีตลาดบางใหญ่ อยู่ห่างจากโครงการประมาณ 5 กิโลเมตรเมตร มีกำหนดเปิดให้บริการปลายปี 2559 

    ภาพจำลองสถานีตลาดบางใหญ่ จากเว็บไซต์ www.mrta-purpleline.com
    สภาพแวดล้อมใกล้เคียง
    บรรยากาศรอบๆ โครงการมีความเป็นธรรมชาติ และสงบดีค่ะ เส้นทางรอบๆ โครงการก็สามารถเชื่อมกันได้หมด สามารถใช้ไปเชื่อมต่อกับถนนหลักในย่านนี้ได้หลายเส้น ภายในซอยรอบๆ โครงการก็จะมีร้านอาหาร, ร้านสะดวกซื้อ, ตลาด, โรงเรียน และโรงพยาบาล ตามแผนที่ด้านล่างค่ะ

    แผนที่สภาพแวดล้อมใกล้เคียงรอบๆ โครงการ
    (คลิกเพื่อดูภาพขยายใหญ่)
    บรรยากาศใกล้เคียงโครงการ

    บรรยากาศบริเวณด้านหน้าโครงการค่ะ
    ถ้าออกจากโครงการแล้วเลี้ยวซ้ายก็จะไปออกปากซอยตรงถ.วงแหวนรอบนอกฯค่ะ

    ส่วนถ้าออกจากโครงการแล้วเลี้ยวขวา ก็จะสามารถตรงไปออก ซ.วัดคงคาซ.วัดพิกุลถ.บางใหญ่-บางคูลัด,
    ถ.บางกรวย-ไทรน้อยถ.วงแหวนรอบนอกฯ และถ.ราชพฤกษ์ ได้ค่ะ

    บรรยากาศภายในถนนวัดปรางค์หลวงค่ะ มี Mini Mart และร้านซักรีดอยู่ด้วย

    ด้านหน้าปากซอยก่อนออกไปถ.วงแหวนรอบนอกฯ ก็จะมีวินมอเตอร์ไซค์, ป้ายรถเมล์ และร้านอาหารอยู่ค่ะ

    บรรยากาศบริเวณถ.วงแหวนรอบนอกฯ ฝั่งตรงข้ามโครงการ จะมี Plus Mall อยู่ค่ะ

    ส่วนฝั่งด้านโครงการ ออกจากปากซอยไปก็จะมีร้านก๋วยเตี๋ยวหมูต้มยำตำลึงนายเอกอยู่ค่ะ

    ถัดไปก็จะมีสถานีบริการน้ำมันปตท.อยู่ค่ะ มีร้านกาแฟ และร้านสะดวกซื้อ

    จากถ.วงแหวนรอบนอกฯ ถ้าเราเลี้ยวซ้ายไปทางถ.นครอินทร์ก็จะมีรร.เด่นหล้า พระราม 5 อยู่ค่ะ

    ถัดไปก็จะเป็นตลาดพระราม 5 ซึ่งเป็นตลาดใหญ่ในย่านนี้

    ตรงต่อมาอีกหน่อยก็จะถึงวงเวียนพระราม 5 แล้วค่ะ ใกล้ๆ กันก็จะมี The Walk ราชพฤกษ์ และ Home Pro ราชพฤกษ์

    พอเลี้ยวซ้ายตรงวงเวียนพระราม 5 เข้าถ.ราชพฤกษ์ ตรงไปอีกนิดก็จะเข้าถ.บางกรวย-ไทรน้อย
    ซึ่งเราสามารถใช้วนกลับมาที่โครงการได้ค่ะ

    พอเข้ามาถ.บางกรวย-ไทรน้อยก็จะมีตลาดเจ้าพระยา และตลาดสดดอนพรมอยู่ค่ะ

    ตรงมาอีกนิดก็จะมีวงเวียนอยู่ ถ้าเราวนไปทางขวามือ ก็จะไปออกถ.รัตนาธิเบศร์ได้ ส่วนถ้าไปทางซ้ายมือ
    ก็จะเข้าถ.บางใหญ่-บางคูลัด สามารถวิ่งกลับไปที่โครงการได้ค่ะ เดี๋ยวเราวนซ้ายกลับไปโครงการกันนะคะ

    ผ่านจากวงเวียน ก็จะเจอกับการไฟฟ้านครหลวงบางใหญ่อยู่ด้านซ้ายเลยค่ะ

    ตรงมาเรื่อยๆ อีกนิด ก็จะเจอกับรร.วัดพิกุลเงิน

    วิ่งต่อมาอีกหน่อย ก็จะมีตลาดช.ช้าง และศูนย์อาหาร อยู่ทางขวามือ

    ถัดมาก็จะมีร้านสะดวกซื้อ 7-Eleven ด้วยค่ะ

    จากนั้นจะผ่านวิทยาลัยเทคโนโลยีวานิชบริหารธุรกิจอยู่ทางซ้ายมือค่ะ

    ตรงมาอีกหน่อยก็กลับถึงโครงการแล้วค่ะอยู่ทางซ้ายมือ
    แบบบ้าน และตัวโครงการโดยรวม
    ตัวโครงการตั้งอยู่ในซอยโยธาธิการ โดยทางเข้าโครงการจะลึกเข้าไปจากตัวถนนประมาณ 30 เมตร ลักษณะโครงการเป็นสี่เหลี่ยม Sales Gallery และบ้านตัวอย่างอยู่ด้านหน้าโครงการ ถัดเข้าไปเป็นทางแยกซึ่งมีวงเวียนต้นไม้คั่นอยู่ บริเวณนี้จะเป็น Club House ทางซ้ายมือของโค้งวงเวียนจะมีบ้านอยู่จำนวนหนึ่ง ในโซนนี้จะมีถนนซอยกว้างถึง 10-20 เมตร (ช่วงที่กว้างมากๆ จะมีเกาะกลางคั่นอยู่) ส่วนตัวบ้านอื่นๆ ที่อยู่ด้านในลึกเข้าไป จะมีถนนซอยกว้างที่ 8-9 เมตร ส่วนถนนหลักของโครงการจะกว้างที่ 12 เมตร

    Master Plan แสดงตำแหน่งทางเข้า-ออกโครงการ ตำแหน่งบ้าน และคลับเฮ้าส์ (คลิกดูภาพใหญ่)

    ทางเข้าโครงการ เป็นซอยลึกเข้าไปด้านใน

    ด่านทางเข้าเป็นไม้กั้นกระดก พร้อมระบบรักษาความปลอดภัย อาทิ รปภ., กล้องวงจร และระบบ Scan Access

    ตรงไปจะเป็นถนนลึกเข้าไปอีก ถนนหลักจะกว้าง 12 เมตร

    ตรงมาจะเจอกับทางแยก ที่มีโค้งวงเวียนต้นไม้อยู่

    เลี้ยวมาทางด้านซ้าย จะมีถนนซอยกว้าง 8 เมตร

    ส่วนซอยถัดมา ทางด้านซ้ายมือ จะเป็นถนนซอยที่กว้างที่สุดของโครงการ

    ด้านขวามือจะมีเกาะกลางถนน โดยแต่ละเลนกว้างอีก 8 เมตร

    Club House อยู่ใกล้กับวงเวียน

    ด้านใน Club House มีฟิตเนส และสระว่ายน้ำ

    ในส่วนของบรรยากาศหมู่บ้าน ถนนซอยจะมีความกว้าง 8 เมตร
    ในบางซอยจะมีความกว้างถึง 9 เมตรด้วยก็มีเช่นกันค่ะ

    ภาพบ้านที่ใช้ทำเป็น Sales Gallery และ บ้านตัวอย่าง
    แบบบ้านของโครงการมีทั้งหมด 2 แบบ ดังนี้
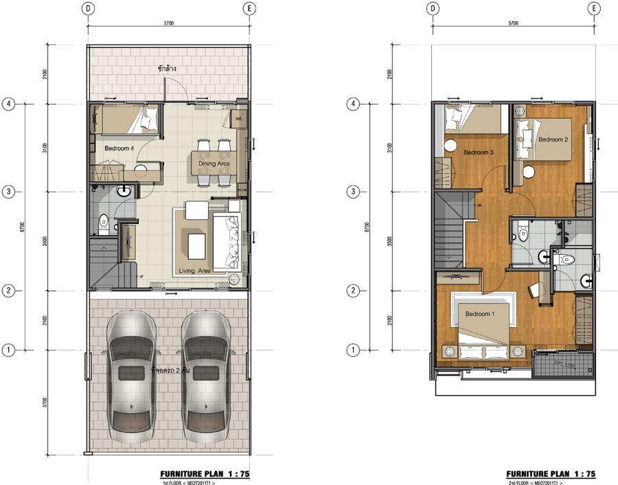
    1. แบบบ้าน Bonita ทาวน์โฮม 2 ชั้น หน้ากว้าง 5.7 เมตร สไตล์โมเดิร์น ขนาดที่ดินเริ่มต้น 21.2 ตร.ว. พื้นที่ใช้สอย 131 ตร.ม. ประกอบไปด้วย 4 ห้องนอน 3 ห้องน้ำ 2 ที่จอดรถ
    2. แบบบ้าน Lilly ทาวน์โฮม 2 ชั้น หน้ากว้าง 5.7 เมตร สไตล์โมเดิร์น ขนาดที่ดินเริ่มต้น 18.5 ตร.ว. พื้นที่ใช้สอย 110 ตร.ม. ประกอบไปด้วย 3 ห้องนอน 3 ห้องน้ำ 2 ที่จอดรถ

    ภาพจำลองแบบบ้าน Bonita

    แปลนบ้านของแบบบ้าน Bonita

    ภาพจำลองของแบบบ้าน LILLY

    แปลนบ้านของแบบบ้าน LILLY
    ส่วนกลางและสิ่งอำนวยความสะดวก
    • สวนสาธารณะ
    • คลับเฮ้าส์
    • สระว่ายน้ำ
    • ประตูทางเข้ามีหน่วยรักษาความปลอดภัย
    • กล้อง CCTV บันทึกการเข้า-ออก ตลอด 24 ชม.

    ระบบรักษาความปลอดภัยด้านหน้าทางเข้าโครงการ ประกอบไปด้วย รปภ., กล้อง CCTV,
    และระบบ Scan Access หากเป็นผู้มาเยี่ยมชมโครงการ จะมีการแลกบัตรผ่านก่อนค่ะ

    Club house ของโครงการ

    ด้านใน Club House จะเป็นฟิตเนส และสระว่ายน้ำ

    พื้นที่ฟิตเนสเปิดโล่ง มีเครื่องเล่นให้ตามนี้เลยค่ะ

    สระว่ายน้ำของโครงการ

    Shower อาบน้ำก่อนลงสระอยู่ริมสระ

    ห้องน้ำชาย อยู่ด้านหลังสระว่ายน้ำ

    ติดกับห้องน้ำหญิง
    ภาพบ้านตัวอย่าง และ Layout
    โครงการมีบ้านทั้งหมด 2 แบบ โดยแบบบ้านที่เรานำมารีวิว เป็นแบบบ้าน Bonita ทาวน์โฮม 2 ชั้น หน้ากว้าง 5.7 เมตร สไตล์โมเดิร์น ขนาดที่ดิน 21.2 ตารางวา พื้นที่ใช้สอย 131 ตารางเมตร ประกอบไปด้วย 4 ห้องนอน 3 ห้องน้ำ และ 2 ที่จอดรถ โดยจะเป็นแบบบ้านตัวอย่างที่ตกแต่งแล้ว กับบ้านส่งมอบแบบบ้านเปล่านั่นเอง ค่ะ

    ภาพแบบบ้าน Bonita ของบ้านตัวอย่าง

    ด้านหน้าบ้านกว้าง 5.7 เมตร สามารถจอดรถได้ 2 คัน พื้นลานจอดรถเป็นพื้นคอนกรีตเสริมเหล็กปาดเรียบ

    ประตูเป็นบานเลื่อนกระจกใสเขียวตัดแสง วงกบ UPVC

    ด้านในบ้านแบ่งออกเป็นสัดส่วน ด้านหน้าเป็นพื้นที่ห้องนั่งเล่น ด้านในเป็นพื้นที่รับประทานอาหาร

    พื้นบ้านด้านในปูด้วยแกรนิตโต้ 60x60 cm. 

    ทางด้านขวามือของในตัวบ้านมีห้องน้ำอยู่ติดกับบันได และมีห้องนอนอยู่ในชั้นนี้ด้วยค่ะ
    หรือจะประยุกต์เป็นห้องอเนกประสงค์อื่นๆ ก็ได้เช่นกัน

    ด้านหลังมีประตูไปลานซักล้างหลังบ้านได้

    ภาพบรรยากาศห้องนอนชั้นล่าง

    มุมมองจากด้านหลังบ้านมองออกไปหน้าบ้าน สวยๆ ค่ะ

    ห้องน้ำชั้นล่าง อยู่ใต้บันได มีอุปกรณ์ทั้งอาบน้ำ และสุขภัณฑ์ ในพื้นที่เดียวกัน
    พื้นห้องน้ำเป็นพื้นกระเบื้องเซรามิก อ่างล้างหน้าของ Victor สุขภัณฑ์ของ American Standard

    บันไดเป็นคอนกรีตเสริมเหล็ก พื้นไม้ยางพารา Butt Joint 

    ชั้นบนประกอบไปด้วย 3 ห้องนอน 2 ห้องน้ำ (ห้องน้ำในตัว 1 ห้อง) พื้นไม้ลามิเนต หนา 8 มิลลิเมตร

    มาดู Master Bedroom กันก่อนค่ะ มีพื้นที่วางเตียง King Size ได้สบายเลยค่ะ

    อีกด้านหนึ่งเป็น Walk in Closet พร้อมห้องน้ำในตัว

    มีระเบียงอยู่ในส่วน Walk in Closet

    ระเบียงกว้างขวาง มีประตูบานเลื่อนกระจกใสเขียวตัดแสงให้ ให้ห้องยิ่งดูกว้างขวาง

    Walk in Closet มีห้องน้ำในตัว

    ห้องน้ำในห้องนอนนี้ จะแบ่งส่วนแห้งส่วนเปียกออกเป็นสัดส่วน กั้นด้วยธรณีก่อสูงขึ้นมา

    ภาพบรรยากาศห้องนอนที่ 2 

    วางเตียงแล้วยังเหลือพื้นที่วางตู้เสื้อผ้า และทำโต๊ะหนังสือได้อยู่ค่ะ

    ห้องนอนที่ 3 ก็ยังคงมีพื้นที่เหลือวางโต๊ะ และตู้เสื้อผ้าได้เช่นกัน

    ส่วนห้องน้ำรวมของชั้นบน มีอุปกรณ์อาบน้ำให้ครบครันเช่นกันค่ะ

    ต่อไปเรามาดูแบบบ้านส่งมอบที่เป็นบ้านเปล่ากันค่ะ

    ด้านหน้าบ้านเป็นพื้นคอนกรีตเสริมเหล็กปาดเรียบ สามารถจอดรถได้ 2 คัน
    ด้านข้างปูหินกรวดให้ตามภาพ ส่วนประตูทางเข้าก็ได้เหมือนกันบ้านตัวอย่างทุกประการค่ะ

    ด้านในบ้าน เป็นพื้นที่โล่ง พื้นบ้านปูด้วยแกรนิตโต้ 60 x 60 cm.

    ด้านข้างตัวบ้าน ถ้าเป็นแปลงมุมจะมีหน้าต่างให้แบบนี้ค่ะ

    ชั้นล่างของบ้านจะมีห้องน้ำอยู่ใต้บันได ห้องนอน 4 สามารถประยุกต์เป็นห้องอเนกประสงค์ได้
    และมีประตูไปลานซักล้างอยู่ด้านหลังบ้าน

    ห้องนอน 4 มีหน้าต่างเปิดไปหลังบ้าน

    ห้องน้ำชั้นล่าง มีอุปกรณ์ให้ครบครันเช่นกัน โดยพื้นที่อาบน้ำ กับสุขภัณฑ์จะอยู่ใกล้ๆ กัน

    บันไดโครงสร้างคอนกรีตเสริมเหล็ก

    ชั้นบนประกอบด้วย 3 ห้องนอน 2 ห้องน้ำ (ห้องน้ำในตัว 1 ห้อง) พื้นเป็นไม้ลามิเนต หนา 8 มม.

    Master Bedroom จากบ้านเปล่าจะเห็นพื้นที่ชัดเจนยิ่งขึ้น

    ด้านที่เป็นระเบียง จะเป็นพื้นที่ Walk in Closet และห้องน้ำในตัว

    อีกด้านหนึ่งเป็นพื้นที่วางเตียง จากภาพจะเห็นว่า ชั้นนี้มีความสูงจากพื้นถึงฝ้าถึงเกือบ 3 เมตรทีเดียว

    ห้องน้ำในตัวของ Master Bedroom กว้างดีค่ะ พร้อมแยกส่วนแห้ง ส่วนเปียกออกเป็นสัดส่วน

    ห้องนอนที่ 2 ห้องมุมจะมีหน้าต่างให้ 2 ด้านแบบนี้

    ส่วนห้องนอนที่ 3 จะมีหน้าต่างให้ 1 ด้านค่ะ

    ปิดท้ายด้วยห้องน้ำรวมของชั้นบนค่ะ
    ราคาและค่าใช้จ่ายที่เกี่ยวข้องโดยประมาณ (ณ วันที่ 4 กรกฎาคม 2559)
    ทาวน์โฮม 2 ชั้น หน้ากว้าง 5.7 เมตร พื้นที่ใช้สอย 110 - 131 ตร.ม. 
    ราคาเริ่มต้น 2.37 ล้านบาท
    • เงินจอง 5,000 บาท
    • เงินทำสัญญา 15,000 บาท สำหรับทุกแบบบ้าน
    • ค่าบริการสาธารณะ 25 บาทต่อ ตร.ว. ชำระล่วงหน้าเป็นระยะเวลา 2 ปี นับจากวันโอนกรรมสิทธิ์
    • ขนาดที่ดินเพิ่มหรือลดจากตอนทำสัญญา 75,000 บาท/ตร.ว. (เงื่อนไขตามที่โครงการกำหนดล่วงหน้า)
    • ผู้ซื้อเป็นผู้ชำระค่าใช้จ่ายในติดตั้งมิเตอร์น้ำ 600 บาท มิเตอร์ไฟฟ้าราคา 2,000 บาท ณ วันโอนกรรมสิทธิ์
    • ค่าธรรมเนียมการโอนกรรมสิทธิ์ ผู้ซื้อและผู้จะขายชำระเท่ากันทั้งสองฝ่าย
    • การขอสินเชื่อกับสถาบันการเงิน การอนุมัติขึ้นอยู่กับเงื่อนไขของสถาบันการเงินและคุณสมบัติของตัวผู้กู้เป็นสำคัญ
    • บริษัทฯ สงวนสิทธิ์ในการเปลี่ยนแปลงราคาและอัตราผ่อนชำระโดยไม่ต้องแจ้งให้ทราบล่วงหน้า
    • ของแถมยี่ห้อและขนาดตามที่โครงการกำหนด หรือเทียบเท่า
    • ในกรณีที่ลูกค้าเปลี่ยนชื่อทำสัญญาทางบริษัทมีค่าดำเนินการ 100,000 บาททุกกรณี
    *โปรดสอบถามโปรโมชั่นอัพเดทได้ที่สำนักงานขายโครงการ
    ภาพรวมโดยสรุปของโครงการ
    • การเดินทางเข้าออกโครงการ - ที่ตั้งของโครงการนั้นจะอยู่ในซอยซึ่งไม่ได้ติดหน้าถนนกาญจนาภิเษก แต่มีความสะดวกเพราะสามารถเข้าออกได้หลายเส้นทาง โดยเส้นทางหลักจะเป็นทางเข้าจากถนนกาญจนาภิเษก ผ่านถนนวัดปรางค์หลวงเข้ามาเพียง 7 ร้อยเมตรก็ถึงโครงการแล้ว ส่วนทางเข้าจากถนนบางกรวย-ไทรน้อยก็เข้าได้เช่นกัน แต่มีหลายแยก เลี้ยวหลายครั้งอาจสับสนได้ง่าย แต่ถ้าหากใครมาจากถนนราชพฤกษ์แล้วเข้าโครงการผ่านถนนบางกรวย-ไทรน้อยจะสะดวกมากกว่า เพราะช่วยย่นระยะทางได้ดีทีเดียวค่ะ ตัวโครงการยังไม่มีรถสาธารณะผ่านการเดินทางด้วยรถยนต์จึงเป็นตัวเลือกที่สะดวกที่สุด สำหรับการเดินทางด้วยรถสาธารณะนั้น ตรงหน้าปากซอยของถนนกาญจนาภิเษกจะมีวินมอเตอร์ไซค์ สามารถนั่งเข้ามาที่โครงการได้ในราคาไม่แพง ส่วนการเดินทางด้วยรถไฟฟ้า มีรถไฟฟ้าสายสีม่วง บางซื่อ - บางใหญ่ (จะเปิดให้บริการปลายปี 2559) โดยสถานีที่ใกล้กับโครงการมากที่สุดจะเป็นสถานีตลาดบางใหญ่ ซึ่งห่างจากโครงการประมาณ 5 กม. จะทำให้การเดินทางสะดวกมากขึ้นไปอีกค่ะ
    • ทำเลรอบโครงการ - บรรยากาศรอบๆ โครงการถือว่ามีความเป็นธรรมชาติ ไม่พลุกพล่านค่ะ มีทางเข้าออกได้หลายทางสามารถไปยังโซนใกล้เคียงต่างๆ ได้อย่างสะดวก มีร้านอาหาร และร้านสะดวกซื้ออยู่ภายในซอยโครงการ ส่วนแหล่ง Shopping ที่ใกล้ๆ โครงการเลยก็มี บางใหญ่ Plus Mall, The Walk ราชพฤกษ์ และ Home Pro ราชพฤกษ์ ส่วนตลาดที่อยู่ใกล้ๆ ก็เช่น ตลาดพระราม 5 และตลาดเจ้าพระยา นอกจากนี้ยังมีโรงพยาบาล และสถานศึกษา เช่น โรงพยาบาลบางใหญ่, โรงเรียนวัดพิกุลเงิน, โรงเรียนเตรียมอุดมศึกษาพัฒนาการ นนทบุรี, โรงเรียนเด่นหล้า พระราม 5 และโรงเรียนเทพศิรินทร์ นนทบุรี ตั้งอยู่ใกล้ๆโครงการอีกด้วยค่ะ โดยรวมแล้วทำเลรอบโครงการถือว่าดีค่ะ
    • ตัวโครงการโดยรวมและส่วนกลาง - ทางเข้าโครงการจะมีลักษณะเป็นแนวลึกเข้าไปด้านในอีกประมาณ 30 เมตร จะเจอกับด่านทางเข้าโครงการ ที่มีป้อม รปภ. และไม้กั้นกระดก สำหรับลูกบ้านจะมีระบบ Scan Access ผ่านเข้าไปได้เลย ส่วนผู้มาเยี่ยมเยือนจะต้องแลกบัตรก่อน โดยจะมีเจ้าหน้าที่รักษาความปลอดภัย และกล้อง CCTV อยู่ด้วย เมื่อเข้ามาแล้วจะเจอกับ Sales Gallery และบ้านตัวอย่างก่อน ถัดเข้าไปด้านในจะมีวงเวียนที่ทำเป็นต้นไม้ไว้ ซึ่งตรงแยกนี้จะมี Club House อยู่ ภายใน Club House ประกอบไปด้วย ฟิตเนส และสระว่ายน้ำ โดยเป็นแบบเปิดโล่งทั้งหมด สระว่ายน้ำมีขนาด 5x15 เมตร ลึก 1.2 เมตร มีฝักบัวชำระล้างตัวก่อนลงสระ 1 จุด และมีห้องน้ำแยกชาย-หญิง อยู่ด้านหลังสระว่ายน้ำ โครงการมีบ้านทั้งหมด 274 หลัง ถนนหลักของโครงการกว้าง 12 เมตร ส่วนถนนซอยจะมีความกว้างตั้งแต่ 8-9 เมตร แต่จะมีอยู่จุดหนึ่งของโครงการ ที่จะมีถนนหน้าโครงการกว้างถึงเกือบ 20 เมตร โดยจะมีเกาะกลางถนนคั่นไว้ ซึ่งเป็นความพิเศษอย่างหนึ่งของตัวโครงการสำหรับผู้ที่อยากได้หน้าบ้านที่กว้างขวาง สำหรับสวนสาธาณะขนาดใหญ่ จะอยู่ด้านในโครงการ โดยโครงการจะทำสวนหย่อมเล็กๆ กระจายไว้ทั่วโครงการเพื่อสร้างความร่มรื่นอีกด้วย
    • แบบบ้านและวัสดุ - โครงสร้างบ้านของโครงการเป็นคอนกรีตเสริมเหล็กฉาบเรียบทาสี แบบบ้านเป็นทาวน์โฮม 2 ชั้น หน้ากว้าง 5.7 เมตร สไตล์โมเดิร์น มีทั้งหมด 2 แบบ คือ แบบบ้าน Bonita ขนาดที่ดินเริ่มต้น 21.2 ตร.ว. พื้นที่ใช้สอย 131 ตร.ม. ประกอบไปด้วย 4 ห้องนอน 3 ห้องน้ำ 2 ที่จอดรถ และแบบบ้าน Lilly ขนาดที่ดินเริ่มต้น 18.5 ตร.ว. พื้นที่ใช้สอย 110 ตร.ม. ประกอบไปด้วย 3 ห้องนอน 3 ห้องน้ำ 2 ที่จอดรถ ในส่วนของวัสดุจะใช้เหมือนกันทั้ง 2 แบบบ้าน อาทิ ประตูหน้าบ้านเป็นบานเลื่อนกระจกใสเขียวตัดแสงหนา 5 มม. วงกบ UPVC ถ้าเป็นประตูภายในบ้าน ห้องนอนเป็นบาน HDF ประตูห้องน้ำ PVC พื้นบ้านชั้นล่างเป็นพื้นกระเบื้องแกรนิตโต้ขนาด 60x60 ซม. พื้นชั้นบนเป็นลามิเนตหนา 8 มม. ห้องน้ำใช้กระเบื้องเซรามิก บันไดเป็นโครงสร้างคอนกรีตเสริมเหล็ก ปูพื้นบันไดด้วยไม้ยางพารา Butt Joint สุขภัณฑ์ภายในห้องน้ำใช้ของ American Standard และอ่างล้างหน้าของ Victor
    • ราคา - ราคาเริ่มต้น 2.37 ล้านบาท เป็นราคาของแบบบ้าน Lilly บนเนื้อที่บ้านเริ่มต้น 18.5 ตร.ว. พื้นที่ใช้สอย 110 ตร.ม. หน้าบ้านกว้าง 5.7 เมตร สามารถจอดรถได้ 2 คัน มีทั้งหมด 3 ห้องนอน 3 ห้องน้ำ ฟังก์ชั่นตัวบ้านครอบคลุมในการใช้งานของครอบครัวเริ่มต้นได้ดี ในส่วนของวัสดุที่ใช้ภายในบ้านก็ได้มาตรฐาน อาทิ วงกบประตู UPVC ป้องกันการรั่วซึมของน้ำได้ดีกว่า สุขภัณฑ์ของ American Standard ซึ่งโดยรวมของตัวบ้านกับราคาเริ่มต้น ถือเป็นราคาที่พอเหมาะพอดีทีเดียวค่ะ
    สถานะปัจจุบันของโครงการ (ณ วันที่ 4 กรกฎาคม 2559)
    โครงการ "กัสโต้ วงแหวน - พระราม 5 (Gusto Wongwaen - Rama 5)" เป็นทาวน์เฮ้าส์ 2 ชั้น ทำเลกาญจนาภิเษก-พระราม 5 เปิดพรีเซลครั้งแรกเมื่อปี 2557 เปิดขายบ้านเริ่มจากตอนต้นโครงการทยอยสร้างลึกเข้าไป ส่วนการเปิดขายนั้นเปิดขายทีละเฟส สำหรับบ้านที่เปิดขายเป็นบ้านเปล่า ไม่รวมตกแต่งเฟอร์นิเจอร์ หากใครที่กำลังสนใจทาวน์เฮ้าส์ 2 ชั้น หน้ากว้าง 5.7 เมตร พร้อมฟังก์ชั่นบ้านที่ครบครัน และมองหาบ้านในทำเลนี้อยู่ ลองแวะไปชมบ้านจริงได้ที่โครงการเลยค่ะ
    สอบถามข้อมูลเพิ่มเติม Call Center 1388 หรือ www.qh.co.th
    ดูรายละเอียดโครงการ กัสโต้ วงแหวน - พระราม 5 (Gusto Wongwaen - Rama 5)
    • ปาริชาติ ใยแก้ว, พชรธรณ์ ถิ่นสอน
    • ปาริชาติ ใยแก้ว, พชรธรณ์ ถิ่นสอน
      PROPERTY GURU Thailand

    รีวิว-พรีวิวล่าสุดอื่นๆ

เว็บไซต์นี้มีการเก็บคุกกี้เพื่อเพิ่มความพึงพอใจในการใช้งานเว็บไซต์ และช่วยให้เราปรับปรุง และนำเสนอเนื้อหาตรงตามความสนใจของท่าน ท่านสามารถดู Privacy Notice และ ดู Cookies Policy ของเราได้ ที่นี่ ทั้งนี้ ท่านจะยินยอมให้เราเก็บคุกกี้ทั้งหมด หรือให้เก็บแค่บางส่วนโดยการคลิกเลือก ตั้งค่า

ท่านสามารถเลือกให้ความยินยอมการเก็บคุกกี้เป็นเรื่องๆ ได้ที่นี่

เมื่อคุณเข้าชมเว็บไซต์ หรือแอปพลิเคชั่น checkraka เราอาจจัดเก็บ หรือดึงข้อมูลจากเบราว์เซอร์ของคุณในรูปแบบของคุกกี้ และเทคโนโลยีอื่นที่คล้ายคลึง เช่น tag และ pixel (เรียกรวมกันว่า “คุกกี้”) ซึ่งมักเป็นข้อมูลที่ไม่สามารถระบุตัวตนได้โดยตรง แต่ช่วยให้คุณใช้งานเว็บไซต์ได้ปลอดภัย และตรงตามความต้องการมากขึ้น คุณอาจไม่ยินยอมให้เราเก็บคุกกี้บางประเภทได้ โดยการคลิกตามหัวข้อข้างล่างนี้

ประเภทคุกกี้
อ่านเพิ่มเติม ที่นี่
ยินยอม / ไม่ยินยอม
คุกกี้ที่จำเป็นต้องมีเสมอ
(Strictly Necessary)
คุกกี้สำหรับการใช้งานเว็บไซต์
(Functionality)
คุกกี้เพื่อเพิ่มประสิทธิภาพและวิเคราะห์
(Performance & Analytics)
คุกกี้เพื่อการตลาด
(Marketing)