รีวิว - เยี่ยมชม กัสโต้ พหลโยธิน - สายไหม (Gusto Phaholyothin - Saimai)
เยี่ยมชม-รีวิวบ้านกับ Checkraka.com ในวันนี้ เราขอพาทุกท่านไปเยี่ยมชมบ้านในทำเลสายไหมกันบ้างค่ะ ถนนเส้นนี้มีโครงการบ้านและทาวน์โฮมอยู่มากมาย สำหรับโครงการที่เราจะพาไปชมคือ
กัสโต้ พหลโยธิน - สายไหม (Gusto Phaholyothin - Saimai) ทาวน์โฮม 2 ชั้น หน้ากว้าง 5.70 เมตร จอดรถได้ถึง 2 คัน แล้วยังมีจุดเด่น คือห้องอเนกประสงค์ด้านล่างสามารถปรับเปลี่ยนเป็นห้องต่างๆ ได้ตามต้องการ แล้วด้านหน้าโครงการยังมีทำเลติดหน้าถนนสายไหมอีกด้วยค่ะ

- เจ้าของโครงการ บริษัท กัสโต้ วิลเลจ จำกัด เป็นบริษัทในเครือของ บริษัท ควอลิตี้เฮ้าส์ จำกัด(มหาชน)
- ที่ตั้งโครงการ ถนนสายไหม (ช่วงซอยสายไหม 45) แขวงสายไหม เขตสายไหม กรุงเทพมหานคร 10220
- ขนาดพื้นที่โครงการ 24-0-7.7 ไร่
- จำนวนบ้านรวม 251 ยูนิต
- ขนาดที่ดินแต่ละแปลง Type A เริ่มต้นที่ 18 ตร.ว. และมีขนาดพื้นที่ใช้สอยที่ 110 ตร.ม., Type B เริ่มต้นที่ 21 ตร.ว. และมีขนาดพื้นที่ใช้สอยที่ 131 ตร.ม.
- ปัจจุบันมีแบบบ้านทั้งหมด 2 แบบ
- มีสวนสาธารณะภายในโครงการ และประตูทางเข้ามีหน่วยรักษาความปลอดภัยและกล้อง CCTV บันทึกการเข้า-ออก ตลอด 24 ชม.
- ราคาเริ่มต้น Type A 2.39 ล้านบาท Type B 2.75 ล้านบาท
- วันที่เยี่ยมชมโครงการ 24 กุมภาพันธ์ 2558
เจ้าของและผู้พัฒนาโครงการ
บริษัท กัสโต้ วิลเลจ จำกัด เป็นบริษัทในเครือของ บริษัท ควอลิตี้เฮ้าส์ จำกัด (มหาชน) ก่อตั้งเมื่อวันที่ 1 เมษายน 2554 ด้วยทุนจดทะเบียน 1,000 ล้านบาท ประกอบธุรกิจพัฒนาอสังหาริมทรัพย์ประเภททาวน์โฮมเป็นหลัก โดยเน้นโครงการเพื่อจำหน่ายในเขตกรุงเทพมหานคร และปริมณฑลภายใต้ชื่อ "กัสโต้" (Gusto) เนื่องจากบริษัทเริ่มจัดตั้งขึ้นเพียง 3 ปีเท่านั้น โครงการที่ทำจึงยังไม่มากนัก แต่แม้จะแค่ 3 ปี แต่โครงการที่ผ่านมา และที่ยังเปิดขายอยู่ก็มีหลายโครงการ เช่น
- โครงการกัสโต้ พระราม 2 (ดูรายละเอียดเพิ่มเติมได้ที่นี่)
- โครงการกัสโต้ สาทร-ตากสิน (ดูรายละเอียดเพิ่มเติมได้ที่นี่)
- โครงการกัสโต้ ท่าน้ำนนท์-พระราม 5 (ดูรายละเอียดเพิ่มเติมได้ที่นี่)
- โครงการกัสโต้ รามคำแหง (ดูรายละเอียดเพิ่มเติมได้ที่นี่)
- โครงการกัสโต้ พหลโยธิน 48 (ดูรายละเอียดเพิ่มเติมได้ที่นี่)
- โครงการกัสโต้ แกรนด์ รามคำแหง (ดูรายละเอียดเพิ่มเติมได้ที่นี่)
- โครงการกัสโต้ สุขสวัสดิ์ (ดูรายละเอียดเพิ่มเติมได้ที่นี่)
- โครงการกัสโต้ เทพารักษ์ (ดูรายละเอียดเพิ่มเติมได้ที่นี่)
- โครงการกัสโต้ บางนา-สุวรรณภูมิ (ดูรายละเอียดเพิ่มเติมได้ที่นี่)
- โครงการกัสโต้ พหลโยธิน-สายไหม (ดูรายละเอียดเพิ่มเติมได้ที่นี่)
- โครงการกัสโต้ วงแหวน-พระราม 5 (ดูรายละเอียดเพิ่มเติมได้ที่นี่)
โครงการ กัสโต้ พหลโยธิน - สายไหม ตั้งอยู่ที่ ถนนสายไหม (ช่วงซอยสายไหม 45) แขวงสายไหม เขตสายไหม กรุงเทพมหานคร 10220 สามารถเข้าออกได้หลายเส้นทาง ทั้งถนนพหลโยธิน-สายไหม, ถนนลำลูกกา, ถนนหทัยราษฎร์ และถนนสุขาภิบาล 5 เชื่อมต่อกับทางด่วนรามอินทรา-อาจณรงค์ ด่านสุขาภิบาล 5 และไม่ไกลจากทางด่วนวงแหวนกาญจนาภิเษก

แผนที่โครงการกัสโต้ พหลโยธิน - สายไหม

รูปแผนที่โครงการแจกแจงให้เห็นระยะใกล้-ไกลของโครงการกับสถานที่ หรือ Landmark รอบๆโครงการที่น่าสนใจ
ตำแหน่ง GPS โดยประมาณของโครงการ = 13.921155,100.660408
(
คลิกเพื่อชมพิกัดบน Google Maps)

Big C สายไหม มีทั้งร้านอาหาร ร้านหนังสือ ร้านกาแฟ และร้านค้าอื่นๆ อีกมากมาย
(ห่างจากโครงการ 200 เมตร)

โรงพยาบาลสายไหม (ห่างจากโครงการ 2.4 กม.)

ตลาดวงศกร (ห่างจากโครงการ 2.2 กม.)

Tops สายไหม (ห่างจากโครงการ 2.9 กม.)

โรงเรียนสารสาสน์วิเทศสายไหม (ห่างจากโครงการ 3.3 กม.)
1. เดินทางด้วยรถยนต์ส่วนตัว
การเดินทางด้วยรถยนต์สามารถมาได้หลายเส้นทาง ตามตัวอย่างเส้นทางดังต่อไปนี้ค่ะ
ขาเข้าโครงการ เส้นทางที่ 1 มาจากถนนพหลโยธิน ผ่านสะพานใหม่

แผนที่แสดงเส้นทางขาเข้าจากถนนพหลโยธิน

เริ่มจากถนนพหลโยธินมุ่งหน้าไปสะพานใหม่

ลงอุโมงค์ตรงวงเวียนหลักสี่ แล้วตรงไปเรื่อยๆ

ขึ้นมาจากอุโมงค์ ตรงไปประมาณ 1.7 กม.จะเจอ รพ.เซ็นทรัล เยนเนอรัล และ Big C อยู่ฝั่งขวามือ

เลยมาเล็กน้อยมีตลาดยิ่งเจริญอยู่ฝั่งซ้ายมือ

เมื่อเห็นโรงเรียนนายเรืออากาศอยู่ฝั่งขวามือ ให้เตรียมชิดขวา

รอสัญญาณไฟ เลี้ยวขวาเข้าถนนจันทรุเบกษา

ตรงเข้ามาตามถนนจันทรุเบกษาจะเห็นป้ายชี้บอกทางไปถนนสายไหม ให้เราเลี้ยวซ้ายตามป้าย

เลี้ยวซ้ายมาประมาณ 400 เมตรจะมีป้ายบอกให้เลี้ยวขวาเข้าถนนสายไหม

ขับตามเส้นถนนสายไหมจะมีป้ายบอกทางลัดไปถนนลำลูกกา แต่เราขับตรงไปเรื่อยๆ

เมื่อเห็นซอยสายไหม 45 ให้เตรียมชิดซ้ายเข้าโครงการ ด้านหน้าจะมีป้ายชื่อโครงการขนาดใหญ่อยู่ค่ะ
ขาเข้าโครงการ เส้นทางที่ 2 มาจากทางด่วนรามอินทรา-อาจณรงค์ ลงทางด่วนสุขาภิบาล 5
ขาออกโครงการ เส้นทางที่ 1 ออกซอยสายไหม 39 แล้วเข้าถนนลำลูกกา (ออกนอกเมือง)
ขาออกโครงการ เส้นทางที่ 2 ออกถนนสุขาภิบาล 5 แล้วขึ้นทางด่วน (เข้าเมือง)
2. เดินทางด้วยรถไฟฟ้า และรถสาธารณะ
โครงการรถไฟฟ้าที่ใกล้โครงการนี้ที่สุดคือ สายสีเขียวเข้มส่วนต่อขยาย (หมอชิต-สะพานใหม่-คูคต) โดยขณะนี้โครงการได้อนุมัติการก่อสร้างเรียบร้อยแล้ว และคาดว่าจะสามารถเปิดบริการได้ช่วงปี 2562 โดยสถานีที่ใกล้กับโครงการที่สุดคาดว่าน่าจะเป็นสถานีคลอง 3 (สถานีในอนาคต) ซึ่งเป็นสถานีที่ต่อจากสถานีคูคตมา 1 สถานี ซึ่งเมื่อสร้างเสร็จแล้วจะทำให้การเดินทางสะดวกมากขึ้น สามารถขึ้นรถมอเตอร์ไซค์เพื่อต่อไปยังรถไฟฟ้าได้ (คาดว่าสถานีจะอยู่ห่างจากโครงการประมาณ 2.2 กม.)

เส้นทางและสถานีต่างๆ ของรถไฟฟ้าสายสีเขียวเข้ม (หมอชิต-สะพานใหม่-คูคต) (โครงการในอนาคต)

รถสาธารณะอื่นๆ ที่นิยมใช้กันในถนนสายไหมก็คือ รถเมล์ปรับอากาศสาย 1009 ซึ่งมีผ่านตรงหน้าโครงการพอดี
สามารถนั่งไปต่อรถตู้ที่สะพานใหม่ได้ หรือนั่งไปลงที่ถนนวัชรพลได้เหมือนกันค่ะ
สภาพแวดล้อมรอบๆ โครงการ ในส่วนเส้นทางด้านต้นถนนสายไหม ก็มี Tops สายไหม ถัดมาอีกเล็กน้อยประมาณช่วงซอยสายไหม 13-15 มีตลาด AC สายไหม ที่มีทั้งอาหารสด อาหารแห้ง อาหารปรุง ข้าวของ เครื่องใช้ครบวงจรในตลาดนี้ นอกจากนั้นยังมี "ตลาดวงศกร" ที่เป็นตลาดนัดขายเสื้อผ้า ขายกับข้าว และของสด อยู่ไม่ไกล ส่วนฝั่งตรงข้ามตลาดวงศกรไม่ไกลนักจะมีโรงพยาบาลสายไหมขนาดใหญ่ตั้งอยู่ สำหรับวินมอเตอร์ไซค์ และป้ายรถเมล์ก็สามารถเดินย้อนกลับมาตรงซอย 45 เพียง 100 เมตร หรือเดินไปขึ้นที่ป้ายตรง Big C ก็ได้นะคะ ส่วนในระยะเดินใกล้ๆ จะมี Big C สายไหม ที่มีร้านอาหาร, ร้านขายยา, ธนาคาร, ร้านกาแฟ และร้านค้าอีกมากมายไว้บริการภายในบริเวณเดียวกัน บรรยากาศก็จะค่อนข้างคึกคัก มีรถเข้าออกอยู่ตลอดเวลา และร้านอาหารริมทางข้างๆ โครงการ ร้านก๋วยเตี๋ยวและอาหารตามสั่งก็มีเช่นกันค่ะ

แผนที่แสดงสถานที่ต่างๆ ที่อยู่ไม่ไกลจากโครงการ

บรรยากาศด้านหน้าโครงการ ด้านซ้ายมือเป็นหมู่บ้านชมนาถ คันทรีโฮม ถนนเป็น 4 เลน

บรรยากาศด้านขวาโครงการมีโครงการพนาสนธิ์การ์เด้นโฮมอยู่ติดๆ กัน

ด้านซ้ายมือของโครงการมีร้านก๋วยเตี๋ยวและอาหารตามสั่ง

เดินไปด้านซ้ายมือประมาณ 200 เมตร มี Big C และภายในบริเวณนั้นก็มี ร้าน KFC, S&P, Amazon, Mister Donut,
ร้านไอศกรีม, ธนาคารกรุงเทพ, ธนาคารกสิกร, ร้านซีเอ็ด และร้านค้าอีกมากมาย

ก่อนถึงแยกเข้าถนนสุขาภิบาล 5 จะมีตลาดวงศกร ที่มีถนนคนเดิน และร้านค้าต่างๆ มากมายเช่นกัน

ตลาด เอ.ซี.สายไหมอยู่ระหว่างซอยสายไหม 13-15
แบบบ้าน และตัวโครงการโดยรวม
กัสโต้ พหลโยธิน เป็นโครงการทาวน์โฮมขนาด 2 ชั้น หน้ากว้าง 5.70 เมตร มีจำนวนบ้านรวมทั้งหมด 251 หลัง สร้างอยู่บนแปลงที่ดินขนาด 24-0-7.7 ไร่ มีพื้นที่สีเขียวเป็นสวนสาธารณะส่วนกลางซึ่งตั้งอยู่บริเวณต้นของแปลงที่ดิน ส่วนทางเข้าโครงการมีทางเข้า-ออกหลักเพียงทางเดียว คือทางที่ติดหน้าถนนใหญ่สายไหม รั้วรอบโครงการมีความสูงอยู่ที่ 2.50 เมตร แปลนโครงการมีลักษณะเป็นสีเหลี่ยมผืนผ้าแนวยาว ฝั่งซ้ายเป็นแบบบ้าน Type B (Pilot) ส่วนฝั่งขวาเป็นแบบบ้าน Type A (Flighter) มีถนนเมนกั้นกลางทอดยาวไปจนสุดโครงการ ความกว้าง 12 เมตร ไม่มีซอยย่อย

Master Plan จาก Google

ด้านหน้าโครงการติดหน้าถนนสายไหม มองเห็นได้ชัดเจน

ทางเข้า - ออกของโครงการ สำหรับทางเข้าโครงการจะแยกส่วนระหว่างลูกบ้าน และผู้มาติดต่อออกจากกัน

ทางเข้าหลักมีระบบรักษาความปลอดภัย ทั้งไม้กั้นกระดก มีกล้อง CCTV จับภาพ 3 ตัว
และสำหรับบุคคลภายนอกต้องแลกบัตรก่อนเข้าไปในโครงการค่ะ

ฝั่งซ้ายมือ คือบ้าน Type B ฝั่งขวามือคือบ้าน Type A

Sales Gallery และบ้านตัวอย่าง

ช่องกลับรถระหว่างบล็อก
แบบบ้านพร้อม Floor Plan ของทางโครงการ
1. TYPE B (PILOT) - หน้ากว้าง 5.70 เมตร พื้นที่ใช้สอย 131 ตร.ม. ขนาดที่ดิน 21 ตร.ว. 4 ห้องนอน (1 ห้องนอนล่าง 3 ห้องนอนด้านบน), 3 ห้องน้ำ (1 ห้องด้านล่าง 2 ห้องด้านบน) 2 ที่จอดรถ

TYPE B (PILOT)

FLOOR PLAN TYPE B (PILOT)
2. TYPE A (FLIGHTER) - หน้ากว้าง 5.70 เมตร พื้นที่ใช้สอย 110 ตร.ม. ขนาดที่ดิน 18 ตร.ว. 3 ห้องนอน 2 ห้องน้ำ (1 ห้องด้านล่าง และ 1 ห้องด้านบน) 2 ที่จอดรถ

TYPE A (FLIGHTER)

FLOOR PLAN TYPE A (FLIGHTER)
ส่วนกลางและสิ่งอำนวยความสะดวก
- สวนสาธารณะในโครงการ
- พนักงานรักษาความปลอดภัยตลอด 24 ชั่วโมง
- กล้องวงจรปิด CCTV บริเวณซุ้มประตูทางเข้า
- รั้วรอบโครงการสูง 2.50 เมตร

สวนสาธารณะภายในโครงการ มีศาลาพักผ่อนให้

ลงต้นไม้ใหญ่ให้

ปูหญ้าและทางเดินสำหรับออกกำลังกาย

อีกมุมของสวนสาธารณะ

ประตูทางเข้า-ออกมีเพียงที่เดียว และมี รปภ. อยู่รักษาความปลอดภัย 24 ชม.
ภาพบ้านตัวอย่าง และ Layout
โครงการกัสโต้ พหลโยธิน - สายไหม มีแบบบ้านทั้งหมด 2 แบบ คือ Type A (Flighter) 3 ห้องนอน 2 ห้องน้ำ 2 ที่จอดรถ, และ Type B (Pilot) 4 ห้องนอน 3 ห้องน้ำ 2 ที่จอดรถ โดยทางโครงการมีบ้านตัวอย่างทั้งที่ตกแต่งแล้ว และแบบบ้านเปล่าตามที่ขายจริงไว้ให้เลือกชมกันทั้ง 2 แบบ วันนี้ทีมงาน CheckRaka.com เลยขอนำภาพบ้านตัวอย่าง Type B มาให้ชมกันค่ะ
แบบบ้าน Type B (PILOT) หน้ากว้าง 5.70 เมตร พื้นที่ใช้สอย 131 ตร.ม. ขนาดที่ดิน 21 ตร.ว. 4 ห้องนอน 3 ห้องน้ำ 2 ที่จอดรถ

บ้านตัวอย่าง Type B (PILOT) ชั้นล่างสร้างแบบหล่อในที่ ชั้นบนสร้างแบบ Precast ค่ะ

บ้านจริงที่ใช้ส่งมอบให้ลูกค้า มีประตูเหล็ก และมีรั้วกั้นระหว่างบ้านให้ค่ะ
สำหรับบ้านตัวอย่างที่นำมาให้ชมนั้นจะเห็นว่าเป็นหลังมุมซ้าย แต่แปลนบ้านจะเป็นแบบหลังมุมด้านขวา ทำให้มีการ
สลับตำแหน่งเล็กน้อย หากนำมาเปรียบเทียบกันอาจจะต้องใช้จินตนาการเล็กน้อย แต่ดูไม่ยากเกินไปค่ะ

เรามาดูแปลนบ้านทั้งสองชั้นกันเลยค่ะ
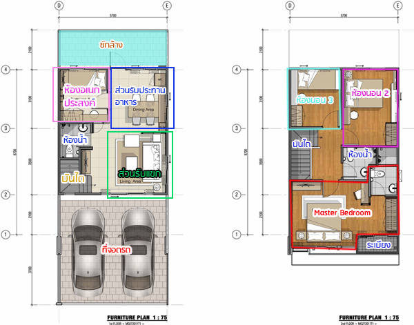
ชั้น 1 ประกอบไปด้วยห้องนั่งเล่นรับแขกอยู่ด้านหน้า ถัดไปเป็นส่วนรับประทานอาหาร ตรงข้ามกันคือห้องอเนกประสงค์
ถัดมาคือห้องน้ำ และบันไดทางขึ้นชั้น 2 ส่วนลานซักล้างอยู่หลังบ้านเลยค่ะ
ชั้น 2 ประกอบไปด้วย ห้องนอนที่ 3 อยู่ติดกับห้องนอนที่ 2 ถัดมาเป็นห้องน้ำใช้แชร์กัน
และส่วนหน้าสุดคือ Master Bedroom

ที่จอดรถ และทางเข้าบ้าน ไฟให้เป็นโคมไฟซาลาเปา

เปรียบเทียบบ้านที่ส่งมอบจริงพื้นที่จอดรถเป็นคอนกรีตเสริมเหล็กฉาบเรียบมาให้ค่ะ

ทางเข้าเป็นประตูบานเลื่อน ก่อนถึงประตูยกสเต็ปให้ 1 ขั้น สำหรับวางรองเท้า ถอดรองเท้าได้ค่ะ

เปิดประตูเข้ามา มุมมองตรงๆ จะเห็นแบบนี้เลยค่ะ ความสูงของชั้นนี้สูงเกือบ 3 เมตร
พื้นชั้นล่างเป็นพื้นแกรนิตโต้ 60 x 60 ซม. ฝ้าที่ให้เป็นฝ้าเรียบ

เปรียบเทียบกับบ้านเปล่า จะเห็นว่าการจัดวางห้องจะอยู่คนละฝั่งกัน บ้านตัวอย่างพร้อมตกแต่งอยู่มุมซ้าย
ส่วนบ้านเปล่าอยู่มุมขวา แต่คือบ้านแบบเดียวกัน ขนาดเดียวกันนะคะ

ส่วนแรกที่เปิดประตูเข้ามาเลยคือส่วนรับแขก วางโซฟารับแขกตัว L ได้นะคะ บ้านตัวอย่างที่นี่จะกั้น Partition
ระหว่างส่วนรับประทานอาหารมาให้ แต่บ้านเปล่าจะไม่ได้กั้นมาให้ เป็นห้องโล่งๆ ตามภาพด้านบนที่ผ่านมาค่ะ

เข้ามาดูห้องอเนกประสงค์กันก่อนเลยนะคะ จากภาพที่แล้วจะเห็นว่าห้องนี้มีหน้าต่างเข้ามุมเป็นกระจกมาให้
ภายในสามารถทำเป็นห้องนอนผู้สูงอายุ วางเตียง 3.5 ฟุต หรือปรับเป็นห้องครัวก็ได้ ตามแต่ความต้องการของเจ้าของบ้าน

ภายในห้องมีบานกระทุ้งมาให้ เปิดออกระบายอากาศได้ ตัวกระจกเข้ามุมทำให้ห้องดูไม่ทึบและดูมีดีไซน์เพิ่มขึ้น

ตรงข้ามห้องจะเป็นส่วนรับประทานอาหารวางโต๊ะขนาด 4-6 ที่ได้
ส่วนประตูที่เห็นด้านหลังนี้สามารถเปิดออกไปส่วนซักล้างได้ค่ะ

ส่วนลานซักล้างด้านหลังบ้าน อยู่ติดกับรั้วโครงการ

เข้ามาดูห้องน้ำชั้นล่างกันค่ะ ทางโครงการเลือกใช้สุขภัณฑ์ของ American Standard และ Victor ตกแต่งผนังด้วยกระเบื้องเซรามิก มีฝักบัวมาให้สำหรับอาบน้ำ แต่ไม่ได้กั้นส่วนเปียก/แห้งมาให้ ภายในห้องน้ำมีพัดลมระบายอากาศมาให้ด้วยนะคะ

จุดวางโถสุขภัณฑ์อยู่ใต้บันไดพอดี หากลูกค้าที่มีความสูงมากอาจจะต้องระวังศีรษะด้วยนะคะ

มุมนี้ถ่ายให้เห็นบันไดทางขึ้นชั้นบน จุดวางทีวี ทางเข้าห้องน้ำ และห้องอเนกประสงค์ตามลำดับ

บันไดโครงสร้างคอนกรีตเสริมเหล็ก มีหน้าต่างรับแสงตรงชานพักให้ 1 บาน

ทางขึ้นชั้น 2 มีชานพัก 2 จุด พื้นชั้นบนเป็นลามิเนตหนา 8 มิลลิเมตร

เมื่อขึ้นมาที่ชั้น 2 จะพบกับห้องนอน 3 อยู่ฝั่งขวามือ ติดกันคือห้องนอน 2 ส่วนห้อง Master Bedroom
อยู่ฝั่งซ้ายมือ ห้องน้ำอยู่ตรงกลางของบ้านค่ะ

ห้องขวามือ คือห้องนอน 3 ส่วนห้องฝั่งซ้าย คือห้องนอน 2

ห้องนอน 3 เป็นห้องที่มีขนาดเล็กที่สุด วางเตียง 3.5 ฟุตได้ค่ะ มีหน้าต่างบานเลื่อนให้ 1 บาน

ห้องนอนที่ 2 มีขนาดใหญ่กว่าห้องที่ผ่านมา สามารถวางเตียง 5 ฟุตได้ เฉพาะบ้านหลังมุม จะมีหน้าต่างบานเลื่อนด้านข้างบ้านมาให้อีก 1 บาน ช่วยเพิ่มแสงสว่างของห้องได้ดีทีเดียวค่ะ

อีกมุมของห้องนอนที่ 2

เรามาชมห้องที่เหลือกันค่ะ ห้องฝั่งซ้ายคือ Master Bedroom ห้องฝั่งขวาคือ ห้องน้ำชั้นบน

ห้องน้ำชั้นบนมีสุขภัณฑ์มาให้ครบค่ะ ทั้ง โถสุขภัณฑ์ ฝักบัว อ่างล้างหน้า เหมือนกับห้องน้ำชั้นล่าง
และไม่ได้ก่อธรณีแยกส่วนเปียก/แห้งมาให้

ห้องนอน Master Bedroom ห้องนี้จะวางตัวอยู่ฝั่งด้านหน้าบ้าน กินพื้นที่ตามความกว้างของบ้านเลยค่ะ
ภายในห้องจะสามารถจัด Walk in Closet ขนาดเล็กและมีห้องน้ำในตัวให้ด้วย

ประตูบานเลื่อนเปิดออกไปชมวิวนอกระเบียงได้ และยังมีหน้าต่างรับแสงบานสูงตรงหัวเตียง

ประตูบานเลื่อนและระเบียง มีขนาดพอเหมาะ สามารถออกไปยืนชมวิวหรือปลูกต้นไม้ในกระถางขนาดเล็กได้

วิวจากระเบียงห้อง Master Bedroom

กลับเข้ามาดูห้องน้ำของห้องนี้กันค่ะ ภายในมีเครื่องสุขภัณฑ์ให้ครบเหมือนห้องน้ำห้องอื่นๆ แต่พิเศษตรงที่
ก่อธรณีกั้นแยกส่วนเปียก/แห้งมาให้ และหากเป็นหลังมุมจะมีหน้าต่างบานกระทุ้งระบายอากาศมาให้ด้วยค่ะ
ราคาและค่าใช้จ่ายที่เกี่ยวข้องโดยประมาณ (ณ วันที่ 24 ก.พ. 58)
- ทาวน์โฮม 2 ชั้น หน้ากว้าง 5.7 เมตร พื้นที่ใช้สอย 110 - 131 ตร.ม. ราคาเริ่มต้น (ก.พ. 58) Type A 2.39 ล้านบาท Type B 2.75 ล้านบาท
- ค่าส่วนกลางเก็บ 40 บาทต่อ ตร.ว. ชำระ ณ วันโอนกรรมสิทธิ์ ล่วงหน้าเป็นระยะเวลา 2 ปี
- ขนาดที่ดินเพิ่มหรือลดจากตอนทำสัญญา 70,000 บาท/ ตร.ว. (เงื่อนไขตามที่โครงการกำหนดล่วงหน้า)
- ค่าประกันมิเตอร์น้ำ และไฟฟ้า ผู้ซื้อเป็นผู้ชำระ ณ วันโอนกรรมสิทธิ์
- ค่าธรรมเนียมการโอนกรรมสิทธิ์ 2% (ผู้ซื้อชำระ 1% และโครงการชำระ 1%)
- ค่าจดจำนอง ลูกค้าเป็นผู้ชำระ 1% ของยอดกู้
- เงินจอง 5,000 บาท เงินทำสัญญา 5,000 บาท สำหรับทุกแบบบ้าน
*โปรโมชั่นของทางโครงการ โปรดสอบถามโปรโมชั่นปัจจุบันได้ที่สำนักงานขาย
ภาพรวมโดยสรุปของโครงการ (ณ วันที่ 24 ก.พ. 58)
- ทำเลที่ตั้ง - โครงการนี้ตั้งอยู่บนถนนสายไหมเป็นถนนที่มี 4 เลน ซึ่งเรียกได้ว่า เป็นถนนที่เชื่อมต่อกับถนนหลักหลายสาย ซึ่งหากใช้รถขับเข้า-ออกโครงการนั้น สามารถเข้า-ออกจากเส้นพหลโยธินก็ได้ หรือจะใช้ถนนสุขาภิบาล 5 เพื่อเชื่อมต่อขึ้นทางด่วนรามอินทรา-อาจณรงค์เข้าสู่ใจกลางเมืองก็ได้ ทำเลสายไหมนี้ก็ถือได้ว่าเป็นทำเลซึ่งเป็นที่นิยมแห่งหนึ่งของคนมองหาบ้าน เห็นได้จากตลอดทั้งเส้นถนนมีหมู่บ้านจัดสรรเรียงรายอยู่ไม่ขาด อีกทั้งยังค่อนข้างเจริญ และมีครบทุกอย่างบนทำเลนี้ ทั้งร้านอาหาร โรงเรียน โรงพยาบาล และมีห้างสรรพสินค้า ที่จะช่วยอำนวยความสะดวกของผู้คนในละแวกใกล้เคียงได้อย่างครบถ้วน และในอนาคตจะมีรถไฟฟ้าส่วนต่อขยายสายสีเขียวเข้มหมอชิต-สะพานใหม่-คูคต (คาดว่าจะเปิดให้บริการปี 2562) ที่จะช่วยย่นระยะเวลาการเดินทางเพื่อเข้าสู่ใจกลางเมืองได้อีกด้วย
- การเดินทาง - ในแง่ของการเดินทางเข้า-ออกโครงการนั้น สำหรับคนที่ใช้รถยนต์ส่วนตัวก็ถือได้ว่าดีทีเดียวค่ะ เพราะว่าโครงการอยู่ไม่ไกลจากถนนพหลโยธิน แต่หากใช้เส้นสุขาภิบาล 5 ก็สามารถไปทางด่วนรามอินทรา-อาจณรงค์ (ห่างประมาณ 8 กม.) ได้ไม่ไกลมาก ในส่วนของเส้นทางเข้ามาที่โครงการ ทางเข้าออกหลักก็น่าจะเป็นเส้นพหลโยธินซึ่งจะสามารถไปเชื่อมต่อกับถนนหลักๆ ในตัวเมืองได้ง่าย ทางไม่ซับซ้อน แต่ในช่วงเวลาเร่งด่วนหากต้องการขับเข้าเมือง การจราจรเส้นนี้จะค่อนข้างหนาแน่น โดยรวมแล้วหากใช้รถยนต์ส่วนตัวก็สะดวกดีค่ะ ส่วนถ้าเดินทางด้วยรถสาธารณะ มีรถเมล์ผ่านหน้าโครงการ 1 สายคือ สาย 1009 ส่วนป้ายรถเมล์สามารถเดินมาด้านข้างโครงการฝั่งซ้ายหรือขวาก็ได้ อยู่ไม่ไกลจากหน้าโครงการเลยค่ะ
- สิ่งแวดล้อมรอบๆ โครงการ - ถือว่าสะดวกเลยดีเดียว เพราะมีห้าง Big C สายไหม ตั้งอยู่ห่างจากโครงการเพียง 200 เมตร สามารถเดินมาได้ไม่ไกล และภายใน Big C ยังมีร้านที่ช่วยอำนวยความสะดวกอีกมากมาย เช่น KFC, S&P, Amazon, Mister Donut, ร้านไอศกรีม, ธนาคารกรุงเทพ, ธนาคารกสิกร, ร้านซีเอ็ด และร้านค้าอีกมากมาย รวมถึงร้านอาหารริมทางในระยะที่สามารถเดินไปได้เลยจากโครงการ นอกจากนี้ หากออกไปทางถนนสุขาภิบาล 5 ก็จะมี Big C และตลาดวงศกรในระยะไม่ไกลมาก โดยรวมแล้วก็ถือว่าใช้ได้ ส่วนโรงพยาบาลสายไหมที่อยู่ห่างจากโครงการประมาณ 2 กม. ก็ช่วยให้ผู้ที่อยู่ในโครงการได้รับความสะดวกไม่ต้องเดินทางไกลมากกว่านี้ค่ะ
- ตัวโครงการโดยรวมและส่วนกลาง - ตัวโครงการอยู่ติดกับหน้าถนนใหญ่ บ้านที่อยู่ด้านหน้าใกล้กับซุ้มประตูก็อาจจะส่งผลเรื่องการเข้า-ออกของรถภายในโครงการอยู่บ้าง ส่วนตัวแปลนโครงการมีลักษณะเป็นสี่เหลี่ยมผืนผ้าแนวยาว ตัวบ้านทั้ง 2 แบบหันหน้าเข้าหากัน โดยมีถนนเมนกั้นกลางอยู่และทอดยาวไปจนสุดโครงการ การเข้า-ออกโครงการมีทางเดียวทำให้โครงการมีความเป็นส่วนตัว ส่วนพื้นที่รอบข้างโครงการทั้งด้านซ้ายและด้านขวาเป็นโครงการบ้านเดี่ยวขนาบทั้งสองข้าง จึงมีความสงบและปลอดภัยเพราะเป็นแหล่งที่อยู่อาศัยที่มีระบบรักษาความปลอยภัยเช่นเดียวกัน ส่วนบรรยากาศในโครงการดูสบายๆ ไม่ดูอึดอัดเพราะแต่ละบล็อคจะสร้าง เพียง 5-7 หลังเท่านั้น สำหรับสิ่งอำนวยความสะดวกภายในโครงการมีสวนสาธารณะให้ แม้จะไม่ใหญ่มากแต่ก็สามารถใช้พักผ่อนหย่อนใจและออกกำลังกายได้
- แบบบ้านและวัสดุโดยรวม - รูปแบบบ้านมีหน้าตาที่คล้ายคลึงกับกัสโต้โครงการอื่นๆ การจัดวางห้องภายในตัวบ้านถือว่าลงตัวในระดับหนึ่ง โดยแบบบ้านที่มีห้องอเนกประสงค์ชั้นล่างนั้นเป็นจุดเด่น ที่สามารถปรับเปลี่ยนเป็นห้องนอนที่ 4 ซึ่งเหมาะสำหรับผู้สูงอายุ แต่ด้านหลังบ้านมีพื้นที่ค่อนข้างน้อย และอาจไม่โดนใจมากนักสำหรับคนที่อยากได้ครัวไทย วัสดุภายในบ้าน เช่น สุขภัณฑ์ใช้ของ American Standard และ Victor พื้นชั้นล่างเป็นแกรนิตโต้ 60x60 ซ.ม. พื้นชั้นบนเป็นลามิเนต 8 มม. ประตูบานเลื่อน UPVC และบานประตูห้องเป็น HDF บานประตู หน้าต่าง UPVC ของ Amigo โดยรวมแล้ววัสดุและเกรดของวัสดุเหมาะสมกับราคา
- ราคา - เริ่มต้นที่ 2.39 ล้านบาท ซึ่งเป็นราคาในระดับไม่สูงจึงทำให้ได้รับความสนใจจากลูกค้าพอสมควร เพราะอยู่ในทำเลที่ติดถนนใหญ่ ซึ่งราคานี้ก็สมเหตุสมผลกับวัสดุที่โครงการเลือกใช้และทำเลที่ตั้งของโครงการ
โครงการ "กัสโต้ พหลโยธิน - สายไหม" เปิดขายโครงการเมื่อปลายปี 2557 เริ่มเปิดขายไล่ตั้งแต่หน้าโครงการ เปิดขายทีละเฟส เฟสแรกนี้เปิดขายประมาณ 20 กว่าหลัง จากจำนวนบ้านทั้งหมด 251 หลัง ซึ่งตอนนี้ขายไปได้พอสมควรแล้ว สำหรับเฟสที่เหลือทางโครงการกำลังก่อสร้างเพื่อรองรับความต้องการของลูกค้า ส่วนบริเวณสวนสาธารณะ สร้างเสร็จแล้วเปิดให้ใช้งานได้แล้ว บ้านที่นี่เป็นบ้านที่สร้างเสร็จ พร้อมโอน ดังนั้นหากใครที่กำลังสนใจและมองหาบ้านในทำเลนี้อยู่ ลองแวะไปชมบ้านจริงได้ที่โครงการเลยค่ะ
ติดต่อโครงการ โทร. 1388, 02-159-0279-81