เยี่ยมชม-รีวิว เดอะคัลเลอร์ส พรีเมียม รังสิต-ลำลูกกา (TheColors Premium Rangsit-Lumlukka)
เยี่ยมชม-รีวิวบ้านกับ Checkraka.com รอบนี้เราจะพาทุกท่านไปเยี่ยมชมบ้านในโซนรังสิต-ลำลูกกากันบ้างค่ะ ซึ่งสามารถเดินทางเข้าออกได้ทั้ง ถนนรังสิต-ลำลูกกา ถนนรังสิต-นครนายก และเดินทางเข้าสู่ใจกลางเมืองได้ด้วยทางด่วนโทลล์เวย์ดอนเมือง และทางด่วนวงแหวนกาญจนาภิเษกได้ในเวลาเพียง 10 นาทีเท่านั้น ทั้งหมดที่กล่าวมานี้ก็คือ ทาวน์โฮม
เดอะคัลเลอร์ส พรีเมียม รังสิต-ลำลูกกา จากอารียา พรอพเพอร์ตี้ ไปดูรายละเอียดกันเลยค่ะ
- เจ้าของโครงการ บริษัท อารียา พรอพเพอร์ตี้ จำกัด (มหาชน)
- ที่ตั้งโครงการ ถนนลำลูกกา คลอง 4 ตำบลลาดสวาย (บึงลาดสวาย) อำเภอลำลูกกา จังหวัดปทุมธานี
- ขนาดพื้นที่โครงการ 33 ไร่ 40.00 ตร.ว.
- จำนวนบ้านรวม 370 หลัง
- ขนาดที่ดินแต่ละแปลง เริ่มต้นที่ 17.5 ตร.ว.
- ขนาดพื้นที่ใช้สอยเริ่มต้นที่ 90 ตร.ม.
- ปัจจุบันมีแบบทาวน์โฮมอยู่ 2 แบบ
- ระบบรักษาความปลอดภัย พร้อมเจ้าหน้าที่รักษาความปลอดภัยตลอด 24 ชม.
- สวนส่วนกลาง 2 ไร่ พร้อมคลับเฮ้าส์ขนาดใหญ่ และสระว่ายน้ำ
- ราคาเริ่มต้น 1.49 ล้านบาท
- วันที่เยี่ยมชมโครงการ ณ วันที่ 20 ตุลาคม 2557
เจ้าของโครงการและผู้พัฒนาโครงการ
บริษัท อารียา พรอพเพอร์ตี้ จำกัด (มหาชน) เป็นบริษัทพัฒนาอสังหาริมทรัพย์ที่ก่อตั้งขึ้นในปี 2543 โดยเริ่มต้นมาจากธุรกิจรับสร้างบ้านก่อนในเริ่มแรก และต่อมาในปี 2546 บริษัทได้เปลี่ยนเป็นบริษัทมหาชน และในปี 2547 ก็ได้เข้าเป็นบริษัทจดทะเบียนในตลาดหลักทรัพย์แห่งประเทศไทย และในเดือนมกราคม 2557 ล่าสุดนี้มีอันดับเครดิตองค์กร (Credit Rating) ตามที่จัดอันดับโดยทริสเรทติ้งที่ "BBB" เป็นบริษัทที่พัฒนาโครงการในทุกรูปแบบทั้งบ้านเดี่ยว ทาวน์เฮ้าส์ และคอนโดมิเนียม เมื่อสิ้นเดือนกันยายน 2556 มีโครงการที่เปิดขายอยู่ทั้งหมดกว่า 29 โครงการครอบคลุมในหลายๆ Segment ในกรุงเทพมหานคร เช่น คอนโดมิเนียมภายใต้แบรนด์ a space ME และ a space ID, ทาวน์เฮ้าส์แบบ 2 ชั้น ภายใต้แบรนด์เช่น TheColors และแบบ 3 ชั้น ภายใต้แบรนด์เช่น อารียาโมวา อารียาทูบี และอารียาเดลี่ และแบบ 4 ชั้น ภายใต้แบรนด์เช่น Mandarina เป็นต้น และล่าสุดก็มีโครงการ Community Mall ศักยภาพดีและมีจุดขายชัดเจนอย่าง "Pickadaily Bangkok" บนสุขุมวิท 77
โครงการ เดอะคัลเลอร์ส พรีเมียม รังสิต-ลำลูกกา ตั้งอยู่ที่ ถนนลำลูกกา คลอง 4 ตำบลลาดสวาย (บึงลาดสวาย) อำเภอลำลูกกา จังหวัดปทุมธานี สามารถเข้าออกได้ 2 เส้นทาง ทั้ง ถ.รังสิต-ลำลูกกา และ ถ.รังสิต-นครนายก เข้าสู่ ถ.วิภาวดีรังสิตใน 5 นาที และเชื่อมต่อทางด่วนโทลล์เวย์ดอนเมือง และทางด่วนวงแหวนกาญจนาภิเษก สามารถเดินทางได้ใน 10 นาที

แผนที่ ที่ตั้งโครงการ

แผนที่ Google แสดงโครงการ และสถานที่สำคัญใกล้เคียงโครงการ
GPS โครงการ
13.971338, 100.688258 
Dream World ประมาณ 5.5 กม.

Tesco Lotus คลอง 2 ประมาณ 8.3 กม.

MT Arena Community mall พร้อมสนามฟุตบอล ประมาณ 8 กม.

Big C และ McDonald's ประมาณ 5.1 กม.

มหาวิทยาลัยนอร์ทกรุงเทพ วิทยาเขตรังสิต ประมาณ 5 กม.
1. เดินทางด้วยรถยนต์ส่วนตัว
การเดินทางด้วยรถยนต์สามารถเดินทางได้หลายเส้นทาง ซึ่งทางหลักๆ ที่เราจะพาไปมี 2 เส้นทางเป็นเส้นทางจากฝั่งในเมือง คือจากถนนพหลโยธิน และ ถนนวิภาวดีรังสิต โดยมาบรรจบกันที่ถนนลำลูกกาได้ค่ะ และถ้าเป็นฝั่งนอกเมือง จะใช้ถนนรังสิต-นครนายกค่ะ
เส้นทางที่ 1 - ขาเข้าจากในเมือง ถนนพหลโยธิน (เริ่มต้นที่ ม.เกษตรศาสตร์-ไปลำลูกกา)

แผนที่แสดงเส้นทางขาเข้าจากถนนพหลโยธิน

เริ่มจากมหาวิทยาลัยเกษตรศาสตร์ บนถนนพหลโยธิน

ตรงไปยังถนนพหลโยธินเรื่อยๆ จะผ่านมหาวิทยาลัยศรีปทุม วิทยาเขตบางเขน

ตรงไปอีกจะเจอป้าย ให้ตรงไปตามทางสะพานใหม่

เจอป้ายเข้ารังสิตแล้วค่ะ ยังคงตรงไปเรื่อยๆยาวๆเลยค่ะ

จนมาถึงอนุสรณ์สถานจะมีป้ายทางแยก 3 ทางตามภาพ ซึ่งเราต้องไปเข้า U-turn เพื่อไปลำลูกกา ให้ชิดซ้ายไว้ก่อนค่ะ

เข้าเลนใน เพื่อเตรียม U-turn

ด้านในจะมีทางแยก ให้ชิดขวาเข้าเลนขวาค่ะ

เมื่อ U-turn มาแล้วจะเจอป้ายเข้าลำลูกกา ทีนี้ให้เตรียมชิดซ้ายต่อ

ตรงมาเรื่อยๆ ก็ค่อยเลี้ยวซ้ายเพื่อเข้าเทศบาลเมืองคูคตได้เลย

ทีนี้ก็จะเป็นถนนลำลูกกาแล้วค่ะ ตรงไปเรื่อยๆ จะมีจุดสังเกตจุดแรกเป็นปั๊มปตท. อยู่ด้านซ้าย

ตรงเข้ามาอีก มีทางแยกให้ไปตามถนนลำลูกกาค่ะ

เจอป้ายอีกก็ให้ตรงไปตามป้ายเลย

จะมีทางแยกอีกครั้ง ก็ให้ตรงไป

พอใกล้ถึงทางเข้าโครงการ จุดสังเกตอีกอย่างก็คือจะมี McDonald's กับ Big C อยู่ที่เดียวกัน ทีนี้ให้เตรียมชิดซ้ายได้เลย

ถึงแล้วค่ะ ทางเข้าโครงการ จากถนนลำลูกกา

ตรงปากซอยด้านในมีวินมอเตอร์ไซค์อยู่ด้านซ้ายมือค่ะ
เส้นทางที่ 2 - ขาเข้าจากในเมือง ถนนวิภาวดีรังสิต (เริ่มต้นที่สนามบินดอนเมือง-ไปลำลูกกา)

แผนที่เส้นทางจากถนนวิภาวดีรังสิตไปบรรจบที่ถนนลำลูกกา

จากถนนวิภาวดีรังสิต มาเริ่มกันที่สนามบินดอนเมืองค่ะ

มาเรื่อยๆ ก็จะเจอกับป้ายไปรังสิต

ทางนี้ก็สามารถตรงไปตามถนนวิภาวดีได้เรื่อยๆ เลยค่ะ

แล้วก็เจอป้ายไปตลาดสี่มุมเมือง แต่ไม่ต้องไปนะคะ คนละทางค่ะ

ให้ตรงไปต่อจนเจอป้ายไปลำลูกกา ตรงไปเรื่อยๆ เลยค่ะ

จะมีทางแยกให้ไปอนุสรณ์สถาน แต่เราจะยังตรงไปก่อน

แล้วค่อยมาเลี้ยวเข้าเลนซ้ายด้านหน้านี้ค่ะมีป้ายให้ไปลำลูกกาก็เลี้ยวเลย ซึ่งจะเป็นทางโค้งวงกลมแบบในภาพเล็กค่ะ
และเป็นทางไปสู่ถนนพหลโยธินนั่นเอง

บนโค้งด้านบนก็จะมีทางแยกให้เข้าช่องซ้ายค่ะ

พอลงมาแล้วก็จะเป็นถนนพหลโยธิน เราจะอยู่เลนซ้ายพอดี ก็ตรงไป

จนเจอกับทางเข้าเทศบาลเมืองคูคต มาบรรจบตรงที่เดี่ยวกับการเดินทางจากพหลโยธิน
ทีนี้ก็สามารถเดินทางเข้าสู่ถนนลำลูกกาได้ตามเส้นทางที่ 1 ได้เลยค่ะ
เส้นทางที่ 3 - ขาเข้าจากนอกเมือง ถนนพหลโยธิน เข้าสู่ ถนนรังสิต-นครนายก
เส้นทางที่ 1 - ขาออกไปเข้าเมือง จากถนนลำลูกกา เข้าสู่ถนนพหลโยธิน
แผนที่แสดงขาออกเส้นทางที่ 1 สามารถใช้เส้นทางเดียวกันได้
แตกต่างเพียงแค่ต้องไป U-turn ตรงทางออกถนนลำลูกกาเท่านั้นเองค่ะ
เส้นทางที่ 2 - ขาออกไปเข้าเมือง จากถนนลำลูกกา เข้าสู่ถนนวิภาวดีรังสิต
เส้นทางที่ 3 - ขาออกนอกเมือง ถนนรังสิต-นครนายก ไม่ต้อง U-turn
2. การเดินทางโดยรถไฟฟ้า (โครงการในอนาคต)
โครงการรถไฟฟ้าที่ใกล้โครงการนี้ที่สุดคือสายสีเขียวเข้ม (หมอชิต-สะพานใหม่) คาดว่าจะสามารถเปิดบริการได้ช่วงปี 2561 โดยสถานีที่ใกล้กับโครงการเดอะคัลเลอร์ส พรีเมียม รังสิต-ลำลูกกา คือ สถานีคูคต ซึ่งอยู่บริเวณด้านหน้าสถานีตำรวจภูธรคูคต อยู่ห่างจากโครงการประมาณ 11.2 กม. ซึ่งถือว่าไม่ใกล้มากนัก แต่ถ้าหากต้องการเดินทางเข้าตัวเมืองโดยหลีกเลี่ยงการใช้เส้นทางบนถนน ก็สามารถขับรถมาจอดได้ที่สถานีคูคตที่มีอาคารจอดรถรองรับอยู่ประมาณ 713 คัน ก็ถือเป็นอีกทางเลือกหนึ่งได้ค่ะ รถไฟฟ้าโครงการนี้มีระยะทางประมาณ 19 กม. มี 16 สถานีตามรูปด้านล่างนี้ค่ะ

เส้นทางและสถานีต่างๆ ของรถไฟฟ้าสายสีเขียวเข้ม (หมอชิต-สะพานใหม่) (โครงการในอนาคต)

แผนที่แสดงระยะทางจากโครงการไปยังสถานีคูคต
ทางเข้าของโครงการ เข้าได้ทั้งจากถนนลำลูกกาและถนนรังสิต-นครนายก โดยในส่วนของสภาพแวดล้อมโครงการนั้นเต็มไปด้วยร้านค้าต่างๆ มากมาย ทั้งร้านค้าจากอาคารพาณิชย์ ตลาดโต้รุ่ง รวมไปถึง 7-11 และโลตัสเอ็กเพรส เรียกได้ว่าครบพร้อมความสะดวกสบายทางด้านอาหารการกินทีเดียวค่ะ

แผนที่แสดงสถานที่ต่างๆ จากทางเข้าถนนลำลูกกา และ ถนนรังสิต-นครนายก(เข้าได้ 2 ทาง) ไปยังโครงการ

จากทางเข้าด้านถนนลำลูกกา จะมีวินมอเตอร์ไซค์อยู่ที่ปากซอยพอดีค่ะ

ด้านในมีปั๊ม LPG

ตลาดคลอง 4 ใหญ่โต มีร้านอาหารโต้รุ่ง พร้อมเซเว่นอีเลฟเว่น

ด้านในก็มีร้านค้าเต็มสองข้างทางเลยค่ะ

Lotus Express ก็มีค่ะ

มีให้บริการทั้งคนและสัตว์เลี้ยงเลยทีเดียว

เลยกลางๆ ซอยไปหน่อยก็จะเจอป้ายทางเข้าเลี้ยวเข้าโครงการค่ะ

จากหน้าทางเข้าโครงการก็ไปสองทางตามลูกศรเลยค่ะ
แต่ดูจากภาพรวมแล้ว ทางเข้าจากทางฝั่งถนนลำลูกกาจะมีร้านค้าเยอะกว่าค่ะ
แบบบ้าน และตัวโครงการโดยรวม
ลักษณะแปลนของโครงการจะเป็นสี่เหลี่ยมผืนผ้าแนวยาว มีพื้นที่ทั้งหมด 33 ไร่ มีสวนส่วนกลางอยู่ประมาณจุดกึ่งกลางของแปลนโครงการ มีพื้นที่สวน 2 ไร่ (รวมทั้งสวน สระว่ายน้ำและคลับเฮ้าส์) สำหรับแบบบ้านของโครงการมีทั้งหมด 2 แบบคือแบบจอดรถ 2 คันและแบบจอดรถ 1 คัน ลักษณะการขายของโครงการ เริ่มขายจากด้านหน้าโครงการไล่ไปด้านหลัง ซึ่ง ณ ปัจจุบันนี้ บ้านในโซนด้านหน้าซึ่งเป็นบ้านแบบจอดรถ 2 คันได้ขายไปหมดเรียบร้อยแล้ว และอยู่ในระหว่างเปิดขายโซนสวนไปยังโซนด้านหลัง ซึ่งจะมีแบบบ้านจอดรถ 1 คันเพิ่มขึ้นมาด้วย โดยมีส่วนของ Sales Gallery หรือสำนักงานขายตั้งอยู่ด้านหน้าทางเข้าโครงการค่ะ

Master Plan จาก Google

Sales Office ที่ตั้งอยู่ด้านข้างทางเข้าของโครงการ

Master Plan ส่วนที่เริ่มขายอยู่ ณ ปัจจุบัน (สีม่วงแบบบ้านจอดรถ 2 คัน, สีชมพูแบบบ้านจอดรถ 1 คัน)

ทางเข้าโครงการมี รปภ.และกล้อง CCTV

ถนนหลักด้านในโครงการกว้าง 16 เมตร

ถนนย่อยหน้าบ้านกว้าง 8 เมตร ถือว่ากว้างทีเดียวค่ะ จอดรถหน้าบ้านได้ไม่เกะกะ
แบบบ้าน PASTEL B สำหรับ 1 ที่จอดรถ 3 ห้องนอน พื้นที่ใช้สอย 105 ตร.ม. 
แปลนบ้าน PASTEL B

แบบบ้าน PASTEL A สำหรับ 2 ที่จอดรถ 4 ห้องนอน พื้นที่ใช้สอย 118 ตร.ม.

แปลนบ้าน PASTEL A
ส่วนกลางและสิ่งอำนวยความสะดวก
สำหรับส่วนกลางและสิ่งอำนวยความสะดวกของโครงการจะประกอบไปด้วย สวนสาธารณะสีเขียว สระว่ายน้ำและคลับเฮ้าส์ และมีระบบรักษาความปลอดภัยทั้ง รปภ. และ กล้องวงจรปิดหน้าโครงการ ในส่วนของสวนสาธารณะ สระว่ายน้ำและคลับเฮ้าส์นั้นจะอยู่ตรงกลางของโครงการ ซึ่ง ณ วันที่ไปรีวิว ในส่วนนี้ยังอยู่ในระหว่างก่อสร้าง ภาพที่เราได้นำมาฝากจึงเป็นภาพจำลองจากทางโครงการค่ะ

สวนสาธารณะส่วนกลาง พร้อมหญ้าสีเขียว และต้นไม้ใหญ่ประดับประดา

สระว่ายน้ำขนาด 8 x 24 เมตร ลึกโดยประมาณ 120 เมตร

กล้องวงจรปิด และเจ้าหน้าที่รักษาความปลอดภัยทางเข้าโครงการ
ภาพบ้านตัวอย่าง และ Layout
โครงการเดอะคัลเลอร์ส พรีเมียม รังสิต-ลำลูกกา ทาวน์โฮม 2 ชั้นในสไตล์โมเดิร์น ทรอปิคอลมีแบบบ้าน 2 แบบคือ
- Pastel A แบบ 4 ห้องนอน 2 ที่จอดรถ พื้นที่ใช้สอย 118 ตร.ม.
- Pastel B แบบ 3 ห้องนอน 1 ที่จอดรถ พื้นที่ใช้สอย 105 ตร.ม.
ทาวน์โฮมมีหน้ากว้าง 5.7 เมตร ห้องน้ำ 2 ห้อง และมีระเบียงทุกแบบบ้าน เราไปดูแบบบ้านของจริงกันเลยค่ะ
1) แบบจอดรถ 1 คัน (Pastel B)

ภาพจำลองแบบบ้านจอดรถ 1 คัน

ภาพจริงแบบบ้านจอดรถ 1 คัน ด้านขวาเป็นบ้านตัวอย่างตกแต่งจากโครงการ ด้านซ้ายเป็นบ้านเปล่า รอส่งมอบให้ลูกค้า
ซึ่งเราได้นำภาพมาฝากทั้งบ้านตัวอย่างและบ้านส่งมอบเลยค่ะ แต่จากภาพก็จะเห็นว่าแปลนบ้านมีการสลับด้านกัน
ภาพที่เปรียบเทียบกันก็ต้องใช้จินตนาการไปด้วยนิดนึงนะคะ

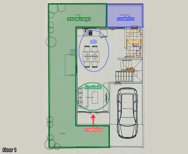
มาดูแปลนบ้านชั้นแรกกันค่ะ ประกอบไปด้วย ห้องนั่งเล่นด้านหน้า
ด้านในเป็นห้องรับประทานอาหารพร้อมโซน Pantry ห้องน้ำด้านข้างห้องครัว และบันไดขึ้นชั้น 2

เข้าไปดูบ้านตัวอย่างกันเลยค่ะ

ภาพจากบ้านตัวอย่าง ตรงส่วนที่เป็นที่จอดรถ โครงการตกแต่งเป็นพื้นที่สำหรับนั่งเล่นหรือรับแขกก็ได้ค่ะ
ส่วนทางเข้าบ้านอยู่ด้านขวา ประตูแบบบานเลื่อน

แวะมาดูตรงโซนนั่งเล่นหน้าบ้าน ประตูที่เห็นนั้นเปิดไปเจอเป็นหน้าต่างค่ะ ใครจะใช้ไอเดียนี้ตกแต่งบ้านก็สวยดีนะคะ

สำหรับบ้านส่งมอบ ก็สลับด้านกันนิดนึง

มาดูที่ประตูทางเข้า เป็นแบบบานเลื่อน วงกบอะลูมิเนียมอบขาว กระจกใสเขียวตัดแสงหนา 5 มม.

มองตรงเข้าไปทางเข้าก็จะเห็นห้องนั่งเล่น ส่วนรับประทานอาหารและ Pantry ตามลำดับเลยค่ะ

เข้าไปด้านในก็จะเห็น Layout ห้องตามภาพเลยค่ะ

เปรียบเทียบกับบ้านส่งมอบ Layout ก็เหมือนกันค่ะ เพดานก็ทำเป็น 2 ระดับเหมือนกัน
มีโคมไฟเป็นแบบ Downlight ส่วนพื้นบ้านจะเป็นพื้นกระเบื้องพอร์ซเลน 60x60

สำหรับบ้านตัวอย่างจะเป็นบ้านแปลงมุม ซึ่งจะมีประตูด้านข้างบ้านให้ออกไปยังแปลงสวนข้างบ้านได้ค่ะ

โครงการตกแต่งไว้เป็นสวนเล็กๆ มีสนามหญ้าเขียวขจี ตกแต่งด้วยต้นไม้ขนาดเล็ก

ส่วน Pantry ของโครงการใช้เคาน์เตอร์ครัวมาต่อกั้นเป็นห้อง พร้อมท็อปครัวจัดเป็นสัดส่วน

ด้านข้างมีประตูออกไปยังลานซักล้าง

ลานซักล้างหลังบ้าน

มุมมองจากด้านใน Pantry จะเห็นว่าห้องน้ำอยู่ตรงข้ามกับ Pantry นี่เอง

ภาพจากบ้านส่งมอบ

ห้องน้ำชั้นล่างมีการแบ่งส่วนแห้งส่วนเปียก กั้นด้วยธรณีก่อสูง

ถ้าเป็นบ้านส่งมอบจะไม่มีราวม่านค่ะ สุขภัณฑ์ที่ใช้เป็นของ American Standard

บ้านตัวอย่างได้ตกแต่งเพิ่มเติมตรงส่วนห้องใต้บันได ทำเป็นห้องออกมาอีกชั้นนึงซ้อนกันค่ะ

ส่วนบันไดทางขึ้นของบ้านตัวอย่าง เป็นบันไดวนไม่มีชานพัก

ถ้าเป็นบ้านส่งมอบก็จะเห็นเป็นห้องใต้บันไดเลยค่ะ
ส่วนโครงสร้างบันไดก็จะแตกต่างกัน ของบ้านส่งมอบจะไม่ได้เป็นบันไดทึบแล้วค่ะ

ก่อนจะดูชั้น 2 แวะมาดูแปลนกันก่อนค่ะ

บ้านตัวอย่างมีการสลับด้านกับแปลนบ้านค่ะ Master Bedroom จะไปอยู่ด้านขวา

แต่แปลนบ้านจะมาเหมือนกับบ้านส่งมอบหลังนี้ค่ะ Master Bedroom อยู่ด้านซ้าย

เข้ามาดูการตกแต่ง Master Bedroom ของบ้านตัวอย่างกันหน่อย

วางเตียง King Size ได้สบายพร้อมตกแต่งทำเป็นชั้นวางของ Built-in ข้างเตียงได้อีก

ส่วนปลายเตียงเป็นพื้นที่สำหรับ Walk-in Closet

ส่วนใหญ่ตกแต่งด้วยไม้ ดูสวยดีค่ะ

มองจาก Walk-in Closet ออกไปที่เตียง

สำหรับบ้านส่งมอบ ก็สลับด้านกันหน่อย จะมีระเบียงเป็นแนวยาวอยู่ตรงส่วน Walk-in Closet ค่ะ

ส่วนห้องที่ติดกับ Master Bedroom เป็นห้องน้ำค่ะ ด้านบนจะมีแยกส่วนแห้งและส่วนเปียกทำเป็นห้องกั้นด้วยประตูบานเลื่อน

ของบ้านส่งมอบก็มีเหมือนกันเลยค่ะ

ห้องถัดไปที่ติดกับห้องน้ำเป็นห้องนอนที่ 2 โครงการตกแต่งด้วยเตียง 2 ชั้น

มีชั้นวางของ Built-in และตู้ Built-in รอบๆ ห้อง ที่ช่วยประหยัดเนื้อที่ได้ดีค่ะ

มุมจากด้านในห้อง

สำหรับบ้านส่งมอบก็จะเป็นลักษณะนี้

มาดูที่ห้องสุดท้ายของบ้านหลังนี้ ซึ่งทางโครงการตกแต่งไว้เป็นห้องทำงาน

หรือเป็นห้องพักผ่อนหย่อนใจสำหรับทุกคนในครอบครัวก็ได้ค่ะ

ภาพบรรยากาศ เผื่อเป็นไอเดียเก๋ๆ

สำหรับบ้านส่งมอบก็จะเป็นแบบนี้
2) แบบจอดรถ 2 คัน (Pastel A)

ต่อไปเป็นแบบบ้านจอดรถ 2 คัน ภาพจำลองจากโครงการค่ะ

และนี่บ้านตัวอย่าง ภาพจริงจากโครงการ

สำหรับบ้านส่งมอบก็สลับด้านกันค่ะ

มาดูแปลนบ้านชั้น 1 กันก่อน Layout เหมือนกันแบบบ้านแบบแรกเลยค่ะ

บ้านตัวอย่างโครงการเป็นบ้านแปลงมุมเช่นกัน ทำพื้นที่จอดรถเป็นสนามหญ้า

วัสดุที่ใช้ก็เหมือนกับแบบบ้านแบบแรกค่ะ

สำหรับแบบบ้านจอดรถ 2 คันนี้ เข้ามาแล้วจะเจอกับส่วนรับประทานอาหารก่อนเลย
ซึ่งห้องนั่งเล่นหรือห้องรับแขกนั้นจะอยู่ด้านข้างอีกที

โครงการทำประตูกั้นเป็นห้องนั่งเล่น

ซึ่งถ้าเป็นบ้านส่งมอบจะไม่มีประตูค่ะ อันที่จริงจะทำให้เป็นห้องแบบอื่นก็ได้แล้วแต่เจ้าของบ้านเลยค่ะ

แต่ถ้าใครสนใจไอเดียของโครงการก็ลองชมภาพกันก่อนได้ค่ะ

ด้านนอกเป็นพื้นที่รับประทานอาหาร ด้านหลังเป็นห้องครัว

เนื่องจากเป็นบ้านแปลงมุม จึงมีประตูด้านข้างบ้าน

ส่วนครัวของแบบบ้านจอดรถ 2 คันนี้ได้ต่อเติมเพิ่มส่วนซักล้างให้เป็นครัวไทย ซึ่งหลายๆ บ้านก็ทำแบบนี้เช่นกัน

ทำเป็นพื้นที่สำหรับซักผ้าไปด้วย

เนื่องจากเป็นบ้านแปลงมุม จึงมีพื้นที่สำหรับวางโต๊ะเก้าอี้ได้อีก 1 ชุด

มาดูที่ห้องน้ำต่อ สำหรับบ้านแบบจอดรถ 2 คัน ห้องน้ำชั้นล่างจะมีขนาดเล็กลงนิดนึง แต่ฟังก์ชั่นการใช้งานก็ครบพร้อม

ส่วนบันไดของบ้านส่งมอบค่ะ บันไดวนไม่มีชานพักเช่นกัน

มาดูแปลนชั้น 2 กันก่อนค่ะ

ประกอบไปด้วย 3 ห้องนอน 2 ห้องน้ำ

บ้านส่งมอบสลับด้านกันนิดนึง

การตกแต่งของแบบบ้านจอดรถ 2 คันยังคงเน้นไปที่ไม้ค่ะ

ด้านซ้ายของห้องมีประตูบานเลื่อนออกไปยังระเบียง

ระเบียงเปลี่ยนจากสี่เหลี่ยมผืนผ้าเป็นสี่เหลี่ยมจัตุรัส
พื้นที่ส่วนนี้จัดไว้เพื่อวางคอมเพรสเซอร์แอร์ได้อย่างลงตัวค่ะ

มุมมองจากระเบียง

ส่วนบ้านส่งมอบจะเป็นลักษณะนี้ค่ะ เหมือนกันแค่สลับด้าน

มีระเบียงอยู่ด้านในสุด

มาดูที่ห้องนอน 2 ต่อเลยค่ะ จะอยู่ติดกับ Master Bedroom และหน้าต่างตรงหัวเตียงนั้น พอมองออกไปจะเห็นเป็นระเบียงเดียวกับที่อยู่ใน Master Bedroom เมื่อซักครู่นั่นเองค่ะ

ดูจากบ้านส่งมอบน่าจะเห็นชัดกว่า

ส่วนนี่เป็นห้องนอนที่ 3 ทำเป็นเตียง 2 ชั้น

บ้านส่งมอบก็จะเป็นแบบนี้

สำหรับห้องน้ำชั้นบนของบ้านแบบจอดรถ 2 คันก็แยกส่วนแห้งส่วนเปียกไว้เช่นกัน

บ้านส่งมอบก็มีลักษณะเหมือนกันค่ะ
ราคาและค่าใช้จ่ายที่เกี่ยวข้องโดยประมาณ ณ วันที่ 21 ต.ค. 2557
ทาวน์โฮม 2 ชั้น แบบจอดรถ 1 คัน เนื้อที่บ้านเริ่มต้นที่ 17.50 ตร.ว. ราคาเริ่มต้นที่ 1,670,000 บาท
ทาวน์โฮม 2 ชั้น แบบจอดรถ 1 คัน (แปลงมุม) เนื้อที่บ้านเริ่มต้นที่ 17.70 ตร.ว. ราคาเริ่มต้นที่ 1,810,000 บาท
ทาวน์โฮม 2 ชั้น แบบจอดรถ 2 คัน เนื้อที่บ้านเริ่มต้นที่ 20.70 ตร.ว. ราคาเริ่มต้นที่ 1,870,000 บาท
ทาวน์โฮม 2 ชั้น แบบจอดรถ 2 คัน (แปลงมุม) เนื้อที่บ้านเริ่มต้นที่ 26.70 ตร.ว. ราคาเริ่มต้นที่ 2,140,000 บาท
ตัวอย่างค่าใช้จ่าย
1) ทาวน์โฮม 2 ชั้น แบบจอดรถ 1 คันเนื้อที่บ้าน 17.50 ตร.ว. พื้นที่ใช้สอย 90.00 ตร.ม. ราคาเริ่มต้น 1,670,000 บาท
- เงินดาวน์ 0.90%
- เงินจอง 5,000 บาท
- ทำสัญญา 10,000 บาท
- เงินโอนคงเหลือ 1,655,000 บาท คิดเป็น 99.10%
ผ่อนกับสถาบันการเงิน ดอกเบี้ยปีแรก 6.50%
- ประมาณการ การผ่อนชำระ 25 ปี 11,123.26 บาท/เดือน
- ประมาณการ การผ่อนชำระ 30 ปี 10,460.76 บาท/เดือน
2) ทาวน์โฮม 2 ชั้น แบบจอดรถ 1 คัน (แปลงมุม)เนื้อที่บ้าน 17.70 ตร.ว. พื้นที่ใช้สอย 90.00 ตร.ม. ราคาเริ่มต้น 1,810,000 บาท
- เงินดาวน์ 0.83%
- เงินจอง 5,000 บาท
- ทำสัญญา 10,000 บาท
- เงินโอนคงเหลือ 1,795,000 บาท คิดเป็น 99.17%
ผ่อนกับสถาบันการเงิน ดอกเบี้ยปีแรก 6.50%
- ประมาณการ การผ่อนชำระ 25 ปี 12,064.20 บาท/เดือน
- ประมาณการ การผ่อนชำระ 30 ปี 11,345.66 บาท/เดือน
3) ทาวน์โฮม 2 ชั้น แบบจอดรถ 2 คันเนื้อที่บ้าน 20.70 ตร.ว. พื้นที่ใช้สอย 90.00 ตร.ม. ราคาเริ่มต้น 1,870,000 บาท
- เงินดาวน์ 0.80%
- เงินจอง 5,000 บาท
- ทำสัญญา 10,000 บาท
- เงินโอนคงเหลือ 1,855,000 บาท คิดเป็น 99.20%
ผ่อนกับสถาบันการเงิน ดอกเบี้ยปีแรก 6.50%
- ประมาณการ การผ่อนชำระ 25 ปี 12,467.46 บาท/เดือน
- ประมาณการ การผ่อนชำระ 30 ปี 11,724.90 บาท/เดือน
4) ทาวน์โฮม 2 ชั้น แบบจอดรถ 1 คัน (แปลงมุม)เนื้อที่บ้าน 26.70 ตร.ว. พื้นที่ใช้สอย 90.00 ตร.ม. ราคาเริ่มต้น 2,140,000 บาท
- เงินดาวน์ 0.70%
- เงินจอง 5,000 บาท
- ทำสัญญา 10,000 บาท
- เงินโอนคงเหลือ 2,125,000 บาท คิดเป็น 99.30%
ผ่อนกับสถาบันการเงิน ดอกเบี้ยปีแรก 6.50%
- ประมาณการ การผ่อนชำระ 25 ปี 14,282.13 บาท
- ประมาณการ การผ่อนชำระ 30 ปี 13,431.49 บาท
ค่าใช้จ่ายอื่นๆ ที่เหมือนกันทุกแบบบ้าน
- ทำสัญญาภายใน 7 วันนับแต่วันจอง และโอนภายในระยะเวลาที่บริษัทฯ กำหนด
- ค่าบริการสาธารณะ 39.00 บาท/ตร.ว./เดือน จัดเก็บล่วงหน้า 3 ปี ชำระ ณ วันโอนกรรมสิทธิ์
- อัตราดอกเบื้ยเงินกู้อาจะเปลี่ยนแปลงได้ตามนโยบายของธนาคารพาณิชย์
- ค่าธรรมเนียมการโอนกรรมสิทธิ์ผู้จะซื้อและผู้จะขายชำระฝ่ายละครึ่ง
- ค่าจดจำนอง, เงินประกันมิเตอร์ไฟฟ้า, มิเตอร์ประปาและค่าใช้จ่ายอื่นๆ ผู้ซื้อเป็นผู้ชำระ
- บริษัทฯ ขอสงวนลิขสิทธิ์ในการเปลี่ยนแปลงราคา, เงื่อนไขการชำระเงิน
- ทำเลที่ตั้งและการเดินทาง ทำเลที่ตั้งโครงการอยู่บนถนนลำลูกกาที่มี 4 เลน แต่ตัวโครงการต้องเข้าซอยคลอง 4 ไปอีกซึ่งเป็นถนน 2 เลน อาจจะสะดวกสำหรับผู้ที่มีรถยนต์ส่วนตัวมากกว่าค่ะ ทางเข้าโครงการอยู่ประมาณตรงกลางซอยคลอง 4 ถ้าหากมาจากถนนลำลูกกา แล้วตรงมาจนเจอ McDonald's ที่อยู่ที่เดียวกับบิ๊กซี พอเจอซอยก็เลี้ยวเข้าได้เลย ด้านในซอยมีร้านค้าอยู่เต็มสองข้างทาง ครบครันสะดวกทุกการจับจ่ายใช้สอยทีเดียว สำหรับผู้ที่มีรถยนต์แล้ว ก็สามารถเดินทางมายังโครงการได้หลากหลายเส้นทางเลยค่ะ ถ้าเป็นขาเข้า-ออกจากในเมือง เข้าได้ทั้งจาก ถนนพหลโยธิน, ถนนวิภาวดี-รังสิต, ถนนกาญจนาภิเษก และอยู่ใกล้กับทางด่วนโทลล์เวย์ดอนเมือง และทางด่วนวงแหวนกาญจนาภิเษกที่สามารถเข้าสู่ใจกลางเมืองได้ภายใน 10 นาที นอกจากนี้ยังมีโครงการรถไฟฟ้าสายสีเขียวเข้มที่จะเปิดบริการในปี พ.ศ. 2561 โดยสถานีที่ใกล้ที่สุดคือสถานีคูคต ซึ่งมีสถานีจอดรถรองรับอยู่ประมาณ 713 คัน ก็เป็นอีกทางเลือกสำหรับผู้ที่ไม่อยากจะขับรถนานๆ ก็ได้ค่ะ
- แบบบ้านและวัสดุโดยรวม สำหรับโครงสร้างของทาวน์โฮมนั้นเป็นแบบพรีแคส (PRE-CAST) มีทั้งหมด 2 แบบบ้าน คือแบบบ้านจอดรถ 1 คัน และแบบบ้านจอดรถ 2 คัน ซึ่งโครงการนี้จะมีสัดส่วนบ้านของบ้านแบบจอดรถ 2 คันเยอะกว่า ดีไซน์ตัวบ้านเป็นแบบ Modern ตามยุคสมัย ไม่ได้เน้นความหวือหวา บ้านที่ขายจริงเป็นบ้านเปล่าที่ภายในบ้านได้ทำพื้นที่แบ่งไว้เป็นสัดส่วนของแต่ละห้องแล้ว สามารถใช้งานได้ครบพร้อม วัสดุที่ใช้ก็ได้ตามมาตรฐาน อย่างเช่นวงกบประตูและหน้าต่างหน้าบ้านเป็นอะลูมิเนียมอบสีขาวแบบบานเลื่อน กระจกเขียวตัดแสงหนา 5 มม. ประตูด้านในบ้านเป็น UPVC พื้นบ้านเป็นกระเบื้องพอร์ซเลน 60x60 พื้นบ้านชั้นบนเป็นพื้นไม้ลามิเนต และโถสุขภัณฑ์ในห้องน้ำใช้ของ American Standard
- ตัวโครงการโดยรวมและส่วนกลาง ตัวโครงการนั้นตั้งอยู่ด้านในซอย ไม่ติดถนนใหญ่ ทำให้ลดปัญหาเรื่องความวุ่นวายบนท้องถนนและฝุ่นควัน มลภาวะไปได้ในระดับหนึ่ง แต่ก็อาจจะไม่สะดวกในการเดินทางสำหรับผู้ไม่มีรถยนต์ บริเวณด้านหน้าโครงการและพื้นที่ละแวกใกล้เคียงเป็นบ้านชุมชนเล็กๆ และพื้นที่ทุ่งหญ้า ต้นไม้สีเขียวล้อมรอบ ซึ่งดูเป็นส่วนตัวและได้บรรยากาศของธรรมชาติอย่างแท้จริงไปด้วย อย่างไรก็ตาม เนื่องจากพื้นที่เหล่านี้ยังเป็นพื้นที่เปล่า จึงอาจมีโอกาสที่จะมีใครมาซื้อที่ดินเพื่อพัฒนา และดังนั้นอาจจะมีการเปลี่ยนแปลงในอนาคตอยู่บ้าง ภายในโครงการทั้งหมดมีพื้นที่ 33 ไร่ 40 ตร.ว. มีบ้านทั้งหมด 370 หลัง ซึ่งโซนด้านหน้าได้ขายไปหมดแล้วประมาณ 120 หลัง และกำลังอยู้ในระหว่างเปิดขายโซนด้านหลัง ซึ่งมีแบบบ้าน 1 ที่จอดรถเพิ่มขึ้นมาอีก ในสัดส่วน 137 หลัง นอกจากนี้ยังมีโครงการอาคารพาณิชย์อีก 8 หลังอีกด้วย (สัดส่วนโดยประมาณ สอบถามรายละเอียดได้ที่โครงการอีกครั้งหนึ่ง) สำหรับส่วนกลางก็ถือว่าครบพร้อมทั้งในเรื่องของสวนสาธารณะสีเขียว สระว่ายน้ำและคลับเฮ้าส์ ซึ่งถ้าเทียบกับราคาค่าส่วนกลางที่ต้องเสียต่อปีแล้วก็ถือว่าพอเหมาะพอดีแล้วค่ะ
- ราคา ราคาเริ่มต้นของโครงการนี้อยู่ที่ 1,670,000 บาท บนเนื้อที่บ้านเริ่มต้น 17.5 ตร.ว. พื้นที่ใช้สอยเริ่มต้นที่ 90 ตร.ม. เมื่อดูในเรื่องของราคาและเปรียบเทียบกับเนื้อที่บ้านที่ได้แล้วจัดได้ว่าเป็นราคาที่ไม่แพงเลยทีเดียว อีกทั้งยังมีฟังก์ชันห้องครบพร้อมถึง 3 ห้องนอน 2 ห้องน้ำ 1 Pantry และยังมีที่จอดรถให้เลือกตามแบบบ้าน 1-2 คัน และในราคานี้ยังถูกกว่าคอนโดหลายๆ แห่งอีกด้วย แต่อย่างไรก็ตาม สำหรับผู้ที่ต้องเดินทางเข้าเมืองตลอด หรือไม่ได้ทำงานอยู่ในโซน รังสิต-ลำลูกกา ก็อาจจะไม่ได้เอามาเป็นตัวเลือกนัก ทั้งนี้ก็ขึ้นอยู่กับไลฟ์สไตล์ของผู้อยู่อาศัยด้วยว่า สะดวกที่จะเดินทางนานๆ หรือไม่ด้วยค่ะ
สถานะปัจจุบันของโครงการ ณ วันที่ 21 ต.ค. 2557
โครงการมีบ้านทั้งหมด 370 หลัง โดย ณ ปัจจุบันนี้ก่อสร้างแล้วเสร็จในโซนด้านหน้าไปจนถึงสวนส่วนกลางแล้ว โดยในโซนด้านหน้านั้นได้มีการขายไปทั้งหมดแล้วประมาณ 120 หลังซึ่งเป็นบ้านแบบที่จอดรถ 2 คันแบบเดียว สำหรับโซนด้านหลังที่อยู่ในระหว่างก่อสร้างก็จะมีแบบจอดรถ 1 คันสร้างเพิ่มขึ้นมาด้วย สำหรับการขายในปัจจุบันนี้ อยู่ในระหว่างการเปิดขายโซนสวนไล่ไปด้านหลัง สำหรับในส่วนของสวนส่วนกลางทั้งหมดกำลังอยู่ในระหว่างก่อสร้าง คาดว่าจะแล้วเสร็จปลายปีนี้ค่ะ หากท่านใดสนใจบ้านในโซนสวนต้องรีบจองตั้งแต่ตอนนี้เลยค่ะ
ติดต่อสำนักงานขาย โทร. 1797 หรือเว็บไซต์
TheColors.co.th โปรโมชั่นพิเศษ : ฟรีเงินดาวน์ (ณ วันที่ 20 มกราคม 2558)