เยี่ยมชมแลนซีโอ คริป ปิ่นเกล้า - วงแหวนฯ (ส้มเกลี้ยง)
วันนี้ Checkraka.com จะพาท่านผู้ชมไปเยี่ยมชมโครงการ
แลนซีโอ คริป ปิ่นเกล้า - วงแหวน (ส้มเกลี้ยง) จากบริษัท ลลิล พร็อพเพอร์ตี้ จำกัด(มหาชน) โดดเด่นด้วยสไตล์การออกแบบ Modern Stripe Contemporary โดย KTGY บริษัทออกแบบชั้นนำระดับโลก โครงการอยู่บนทำเลที่ใกล้จุดขึ้น - ลง ทางยกระดับบรมราชชนนี มุ่งตรงสู่ใจกลางเมือง ทั้งหมดนี้ในราคาเริ่มต้นที่ 3 ล้านบาท ไปดูรายละเอียดเพิ่มเติมกันเลยค่ะ
- เจ้าของโครงการ บริษัท ลลิล พร็อพเพอร์ตี้ จำกัด (มหาชน)
- ที่ตั้งโครงการ ซอยส้มเกลี้ยง ถนนวงแหวนกาญจนาภิเษก อำเภอบางใหญ่ จังหวัดนนทบุรี 11140
- ขนาดพื้นที่โครงการ 71 ไร่ 3 งาน
- จำนวนบ้านรวม 404 หลัง
- ขนาดที่ดิน ตั้งแต่ 35 - 59.1 ตร.ว. พื้นที่ใช้สอยตั้งแต่ 115 - 178 ตร.ม.
- แบบบ้าน 5 แบบ
- เจ้าหน้าที่รักษาความปลอดภัย
- สวนส่วนกลาง
- สระว่ายน้ำ
- ฟิตเนส
- ราคาเริ่มต้น 2,899,000 บาท
- วันที่เยียมชมโครงการ 9 กันยายน พ.ศ. 2557
เจ้าของโครงการและผู้พัฒนา
บริษัท ลลิล พร็อพเพอร์ตี้ จำกัด(มหาชน) ก่อตั้งเมื่อวันที่ 8 กันยายน 2531 ด้วยทุนจดทะเบียนเริ่มแรก 20 ล้านบาท จนกระทั่งในปัจจุบัน บริษัทฯ มีทุนจดทะเบียนชำระแล้วทั้งสิ้น 825 ล้านบาท และได้เปลี่ยนสถานะเป็นบริษัทมหาชน เมื่อวันที่ 3 กันยายน 2545 บริษัทฯ ดำเนินธุรกิจบ้านจัดสรรภายใต้สโลแกน "บ้านที่ปลูกบนความตั้งใจที่ดี" โดยได้เปิดโครงการทาวน์เฮ้าส์เป็นโครงการแรก ภายใต้ชื่อโครงการ ลัลลี่ วิลล์ ในพื้นที่ 2 ทำเล คือ ถนนศรีนครินทร์ และธูปเตมีย์ จำนวนรวม 800 ยูนิต มีพื้นที่รวมจำนวน 88 ไร่ มูลค่าโครงการรวม 1,100 ล้านบาท โดยในปัจจุบันได้ปิดโครงการเรียบร้อยแล้ว ในช่วงวิกฤติของธุรกิจอสังหาริมทรัพย์ บริษัทฯ เป็นผู้ริเริ่มการทำการตลาดสำหรับบ้านจัดสรรใหม่ๆ หลายประการ เช่น โครงการ Friend get Friend และการนำระบบค้ำประกันเงินดาวน์ (Escrow Account) มาใช้เพื่อสร้างความมั่นใจให้กับลูกค้า เป็นต้น
แลนซีโอ คริป ปิ่นเกล้า - วงแหวนฯ (ส้มเกลี้ยง) ตั้งอยู่ในซอยส้มเกลี้ยง ถนนวงแหวนกาญจนาภิเษก อำเภอบางใหญ่ จังหวัดนนทบุรี 11140

แผนที่โครงการ แลนซีโอ คริป ปิ่นเกล้า - วงแหวน (ส้มเกลี้ยง)
พิกัด Google Map (
13.809845, 100.376545)

รูปแผนที่โครงการแจกแจงให้เห็นระยะใกล้-ไกลของโครงการกับสถานที่ หรือ Landmark รอบๆโครงการที่น่าสนใจ

โรงเรียนเทพศิรินทร์ นนทบุรี (ห่างจากโครงการประมาณ 5.3 กม.)

โรงเรียนเด่นหล้า (ห่างจากโครงการประมาณ 7.9 กม.)

Tesco Lotus บางใหญ่ (ห่างจากโครงการประมาณ 6 กม.)

Mcdonald's (ห่างจากโครงการประมาณ 10.8 กม.)

Index Living Mall (ห่างจากโครงการประมาณ 10.8 กม.)

โรงพยาบาลเกษมราษฎร์, ห้าง Big C (ห่างจากโครงการประมาณ 11.3 กม.)

Central WestGate (ห่างจากโครงการประมาณ 8.9 กม.) ปัจจุบันกำลังก่อสร้าง

ภาพ Central WestGate คาดว่าจะสร้างเสร็จในปี 2558

เมกา บางใหญ่ (ห่างจากโครงการประมาณ 9 กม.) คาดว่าจะเปิดให้บริการปลายปี 2559
การเดินทางเข้า-ออกโครงการ
1. เดินทางด้วยรถยนต์ส่วนตัว
ในการเดินทางด้วยรถยนต์ส่วนตัวนั้นสามารถไปได้หลายเส้นทาง สำหรับเส้นทางหลักที่เราจะนำทางไปนี้ จะเป็นเส้นถนนราชพฤกษ์แล้วมาต่อด้วยถนนบรมราชชนนี เลี้ยวเข้าถนนกาญจนาภิเษก (วงแหวนรอบนอกฝั่งตะวันตก) และสามารถเดินทางได้ถึงซอยส้มเกลี้ยงของโครงการ ไปดูการเดินทางกันเลยค่ะ
เส้นทางที่ 1 ขาเข้าโครงการ มาทางถนนราชพฤกษ์ (จากสาทร) ผ่านทางถนนบรมราชชนนีเข้าวงแหวนรอบนอก

เส้นทางที่เราใช้เดินทางนี้ จะเป็นเส้นทางเลียบไปกับเส้น BTS นั่นเองค่ะ

เริ่มต้นที่ถนนสาทร BTS วงเวียนใหญ่

ไปตามทางจะเจอกับทางยกระดับ ไปตามลูกศรเลยค่ะ

จะเจอกับป้ายไปถนนบรมราชชนนี

มาเรื่อยๆ จะเจอกับ BTS สถานีวุฒากาศ ให้ไปตามทางถนนราชพฤกษ์ที่วงไว้ค่ะ

เจอป้าย ถนนราชพฤกษ์ ให้ชิดซ้ายรอขึ้นสะพานค่ะ

ไปตามป้ายเลยค่ะ

จากนั้นให้เกาะติดทางไปบางบัวทอง

ลงมาก็จะเจอกับทางไปถนนบรมราชชนนี

เจอป้ายถนนบรมราชชนนีอีกรอบ

มาเรื่อยๆ จะเจอกับบีทีเอสบางหว้า

เข้าสู่ถนนราชพฤกษ์แล้วค่ะ

ทีนี้ให้เกาะติดไปทางถนนบรมราชชนี

จะเจอทางแยก ให้เลี้ยวเข้าด้านซ้าย

เลี้ยวซ้ายตามโค้งเลยค่ะ

จากสักครู่นี้ ตอนนี้เราเข้าสู่ถนนบรมราชชนนี แล้วให้ตรงไปเรื่อยๆ เลยค่ะ

เกาะติดป้ายบางบัวทอง

จะเจอกับทางแยกลักษณะนี้ ให้ไปตามป้ายบางบัวทองค่ะ

เจอแยกอีก ตามป้ายบางบัวทองเช่นเดิม

มาเรื่อยๆ ก็เข้าสู่ถนนกาญจนาภิเษกแล้วค่ะ

มาตามถนนเรื่อยๆ ให้สังเกตปั๊มเชลล์ค่ะ ใกล้ถึงแล้ว

ทางเข้าโครงการอยู่เลยปั๊มเชลล์มานิดนึงค่ะ เลี้ยวเข้าซอยส้มเกลี้ยงเลยค่ะ
เส้นทางที่ 1 ขาออกโครงการ ออกไปถนนทางหลวงชนบท นครปฐม (พุทธมณฑล)
เส้นทางที่ 2 ขาเข้าโครงการ มาทางถนนรัตนาธิเบศร์
2. เดินทางด้วยรถไฟฟ้า
สำหรับสถานีรถไฟฟ้าที่ใกล้กับโครงการนั้นมี 2 สถานีคือ สถานีตลาดบางใหญ่ และสามแยกบางใหญ่ ซึ่งอยู่ในส่วนของโครงการรถไฟฟ้าสายสีม่วง อันที่จริงแล้วจะเรียกว่าใกล้ก็คงไม่ถูกนัก เมื่อดูจากระยะทางที่ห่างถึง 13 กิโลเมตร อาจจะต้องเดินทางด้วยรถสาธารณะอีกต่อนึง หรือถ้าจะเดินทางด้วยรถยนต์ส่วนตัว แนะนำให้ใช้สถานีสามแยกบางใหญ่ เนื่องจากมีอาคารที่จอดรถรองรับอยู่ถึง 1,460 คัน

ภาพจำลองสถานีรถไฟฟ้าตลาดบางใหญ่

ภาพจำลองสถานีรถไฟฟ้าสามแยกบางใหญ่
.jpg)
อาคารจอดแล้วจรสามแยกบางใหญ่ ตั้งอยู่ริมถนนรัตนาธิเบศร์ เป็นอาคารจอดรถสูง 10 ชั้น
สามารถรองรับประมาณผู้ใช้บริการได้ 1,460 คัน บนพื้นที่ 7,700 ตารางเมตร
ในซอยส้มเกลี้ยงนั้น เป็นเส้นทางเชื่อมต่อไปอีกหลายๆ เส้นทางได้ โดยภายในซอยจะมีโครงการบ้านเดี่ยว ทาวน์โฮม ทาวน์เฮ้าส์อยู่มากมาย รวมไปถึงร้านค้าอย่าง เซเว่น, เทสโก้โลตัสเอ็กเพรส, บิ๊กซีมินิ และร้านอาหาร เราไปดูกันเลยดีกว่าว่าเส้นทางเข้าโครงการ ในระหว่างทางนั้นมีอะไรที่น่าสนใจบ้าง

เข้าซอยส้มเกลี้ยง

เมื่อเข้ามาในซอยจะเจอกับวัดส้มเกลี้ยง

แผนที่แสดงจุดที่ตั้งของวัดส้มเกลี้ยงกับระยะทางระหว่างโครงการ

เดินทางตามถนนเรื่อยๆ จะเจอกับสถานีอนามัยตำบลบางคูเวียงกระทรวงสาธารณสุข

ขึ้นสะพานข้ามคลอง

เมื่อลงจากสะพานจะเห็นมีเวิ้งร้านอาหารหลากหลาย

มีพื้นที่ให้จอดรถด้านหน้า

ตรงเข้าไปเจอทางแยก ให้เลี้ยวซ้ายเข้าถนนโครงการสายแยกวัดแพรก

จะเจอสะพานข้ามคลองอีกครั้งหนึ่ง

เจอกับวัดแพรก เป็นวัดขนาดใหญ่

ตรงไปจะเจอกับทางแยกอีก ให้เลี้ยวขวา ด้านขวามือมีร้านขายยา ตรงหัวมุมถนนมีร้านอาหารตามสั่ง

ไปตามทางถนนให้เลี้ยวซ้าย

จุดนี้จะมีร้านค้าอยู่มากมาย อย่างเช่น ร้านซ่อมโทรศัพท์ ร้านซักอบรีด ร้านขายอาหาร ฯลฯ ตรงไปให้เลี้ยวขวา

เลี้ยวขวาเข้าถนนโยธาธิการนนทบุรี 2027 จะเจอกับเซเว่นอีเลฟเว่น อยู่ตรงข้ามกับโครงการพฤกษาวิลล์

แผนที่แสดงระยะทางระหว่างเซเว่นแรกกับโครงการ

เมื่อตรงเข้ามาให้ไปทางซ้าย เข้าถนนอัจฉริยะพัฒนา

ทีนี้ก็สามารถวิ่งได้ตรงแล้วค่ะ จะเจอกับร้านขายรองเท้าขนาดใหญ่

วิ่งข้ามสะพานคลองประปา

ตรงมาเรื่อยๆ จะเจอกับศูนย์รวมตลาดมีทั้ง Tesco Lotus Express, Mini Big C, 7-11 เมื่อเจอแล้วให้เลี้ยวไปทางขวาค่ะ

แผนที่แสดงศูนย์รวมตลาดกับโครงการ มีระยะทางประมาณ 2.1 กม.

จากนั้นก็ตรงไปได้เรื่อยๆเลยค่ะ

ถึงแล้วค่ะ โครงการ แลนซีโอ คริป ปิ่นเกล้า - วงแหวน (ส้มเกลี้ยง) โครงการอยู่ทางซ้ายมือของถนนที่วิ่งตรงเข้ามา

แผนที่แสดงจุดสำคัญจากทางเข้าซอยส้มเกลี้ยงไปจนถึงโครงการค่ะ
แบบบ้าน และตัวโครงการโดยรวม
ในส่วนของแบบบ้านของโครงการมีทั้งหมด 5 แบบด้วยกันค่ะ โดยจะแบ่งเป็นบ้านเดี่ยว 3 แบบ คือแบบ Cozy, Charm, และ Classy ส่วนอีก 2 แบบเรียกว่าเป็นบ้านเดี่ยวแนวคิดใหม่ ที่มีดีไซน์คล้ายกับเป็นบ้านแฝด ในชื่อแบบ Calm - Care
Master Plan ของโครงการ จากภาพได้แสดงให้เห็นถึงแผนผังและที่ตั้งของบ้านแต่ละจุดกับสวนสาธารณะส่วนกลาง ซึ่งตรงกลางในส่วนท้ายโครงการ เป็นสวนสาธารณะขนาดใหญ่ มีพื้นที่สีเขียวกว่า 4,000 ตร.ม. ในส่วนคลับเฮ้าส์มี สระว่ายน้ำ และฟิตเนส ที่ในขณะนี้กำลังอยู่ในระหว่างดำเนินการก่อสร้างค่ะ

ด้านหน้าโครงการ

มีกล้องวงจรปิดและเจ้าหน้าที่รักษาความปลอดภัยตลอด 24 ชม.

เมื่อเข้าไปแล้วจะเห็นถนน 2 ฝั่งมีเกาะกลางถนน ประดับต้นไม้สีเขียว
ในส่วนสำนักงานขายจะอยู่หลังแรกทางด้านขวามือพอดี

ส่วนบ้านตัวอย่าง อยู่ด้านขวามือและฝั่งตรงข้ามของสำนักงานขาย ส่วนถนนหลักโครงการนั้นกว้าง 17.2 เมตร

ภายในโครงการจะมีถนนซอยย่อยหน้าบ้านแต่ละหลัง มีความกว้าง 8 เมตร
มาดูแบบบ้านของโครงการกันค่ะ แบบบ้านเดี่ยว 3 แบบ และบ้านเดี่ยวแนวคิดใหม่ (บ้านแฝด) อีก 2 แบบ

แบบบ้าน Cozy เนื้อที่บ้านเริ่มต้นที่ 50 ตร.ว. พื้นที่ใช้สอย 140 - 148 ตร.ม. 3 ห้องนอน 2 ห้องน้ำ 1 ห้องรับแขก
1 ห้องรับประทานอาหาร ครัวแยกสัดส่วน ระเบียงชมวิว และที่จอดรถ 1-2 คัน

แปลนบ้าน Cozy ชั้น 1

แปลนบ้าน Cozy ชั้น 2

แบบบ้าน Charm เนื้อที่บ้านเริ่มต้นที่ 51.7 ตร.ว. พื้นที่ใช้สอย 164 ตร.ม. 3 ห้องนอน 2 ห้องน้ำ 1 ห้องรับแขก
พร้อมระเบียงชมวิวใน Master Bedroom ครัวแยกสัดส่วน และที่จอดรถ 1-2 คัน

แปลนบ้าน Charm ชั้น 1

แปลนบ้าน Charm ชั้น 2

แบบบ้าน Classy มีขนาดใหญ่สุด บนเนื้อที่บ้านเริ่มต้น 54 ตร.ว. และพื้นที่ใช้สอย 178 ตร.ม. 3 ห้องนอน 3 ห้องน้ำ
1 ห้องรับแขก 1 ห้องรับประทานอาหาร ครัวแยกสัดส่วน เคาน์เตอร์เตรียมอาหาร ระเบียงชมวิว และที่จอดรถ 2 คัน

แปลนบ้าน Classy ชั้น 1

แปลนบ้าน Classy ชั้น 2

สำหรับแบบบ้านแนวคิดใหม่ บ้าน Care-Calm นี้ที่เหมือนเป็นบ้านแฝด จะมีคานที่เชื่อมติดกันอยู่ แต่เวลาขายก็ขายแยกกัน และมีรั้วกั้นให้ตามปกติค่ะ มีเนื้อที่บ้านเริ่มต้นที่ 35 ตร.ว. พื้นที่ใช้สอย 115 ตร.ม. 3 ห้องนอน 2 ห้องน้ำ 1 ห้องรับแขก
1 ห้องรับประทานอาหาร เคาน์เตอร์เตรียมอาหาร และที่จอดรถ 1 คัน

ตัวอย่างบ้าน Care-Calm ที่รอส่งมอบให้ลูกค้าค่ะ

แปลนบ้าน Calm-Care ชั้น 1

แปลนบ้าน Calm-Care ชั้น 2
ส่วนกลางและสิ่งอำนวยความสะดวก
สวนสาธารณะส่วนกลางของโครงการนั้นตั้งอยู่ค่อนไปทางด้านหลังโครงการ ซึ่งในขณะนี้โครงการได้สร้างสวนส่วนกลางสีเขียวขนาดกว่า 4,000 ตร.ม. ไว้รองรับลูกบ้านแล้ว ลักษณะของสวนเป็นแนวยาวตรงกลางถนน คั่นระหว่างบ้านสองฝั่ง มีต้นไม้ใหญ่ และที่นั่งพักผ่อนหย่อนใจตรงกลางสวนด้วยค่ะ

เทียบจาก Master Plan เมื่อเข้ามาด้านในโครงการแล้ว ผ่านสำนักงานขายมาให้เลี้ยวขวา
ก่อนจะเจอทางโค้งไปทางซ้าย แล้วตรงไปก็จะเจอกับสวนสาธารณะพอดีค่ะ

ไปตามทางได้เลย

ตรงไปได้เลยค่ะ

เจอแล้วค่ะ ในส่วนของสวนสาธารณะ จากภาพจะเห็นด้านขวามือยังเป็นที่โล่งๆ นั่นเป็นพื้นที่รอสร้างบ้านในลำดับต่อไปค่ะ

เปรียบเทียบกับ Master Plan มาถึงสวนสาธารณะแล้วค่ะ ซึ่งในส่วนที่สร้างเสร็จแล้วนั้นจะเป็นด้านหน้าของสวน
ส่วนด้านหลังจะเป็นคลับเฮ้าส์ ที่มีสระว่ายน้ำและฟิตเนสรองรับด้วยค่ะ

ดูบรรยากาศสวนสีเขียวกันค่ะ

ถ้าสร้างเสร็จทั้งหมดจะมีพื้นที่กว่า 4,000 ตร.ม. เลยค่ะ

สำหรับสิ่งอำนวยความสะดวกด้านอื่นก็คือ ระบบรักษาความปลอดภัย 24 ชม.
ที่มีกล้องวงจรปิดบันทึกการเข้าออกตลอดเวลา และมีพี่รปภ. คอยอำนวยความสะดวกและความปลอดภัยให้ค่ะ
ภาพบ้านตัวอย่าง และ Layout
สำหรับแบบบ้านตัวอย่างของโครงการทั้งหมด 5 แบบนั้น เป็นบ้านเดี่ยว 3 แบบ และบ้านแนวคิดใหม่อีก 2 แบบ โดยบ้านเดี่ยว 3 แบบจะมีพื้นที่เรียงกันเป็นขนาด S, M, และ L ในชื่อแบบบ้านว่า Cozy, Charm, และ Classy แต่สำหรับบ้านแนวคิดใหม่จะมีขนาดเล็กกว่า ในชื่อแบบบ้าน Calm-Care เราไปดูตัวอย่างแบบบ้านเดี่ยวกันก่อนเลยค่ะ
แบบบ้าน Cozy เนื้อที่บ้านเริ่มต้นที่ 50 ตร.ว. พื้นที่ใช้สอย 140 - 148 ตร.ม. 3 ห้องนอน 2 ห้องน้ำ 1 ห้องรับแขก 1 ห้องรับประทานอาหาร ครัวแยกสัดส่วน ระเบียงชมวิว และที่จอดรถ 1-2 คัน

บ้านตัวอย่าง Cozy หน้าบ้านมีที่จอดรถได้ 1-2 คัน

เปรียบเทียบกับบ้านส่งมอบ พื้นที่หน้าบ้านปูหญ้าทำสวนไว้ให้เรียบร้อย ทางด้านที่จอดรถเป็นพื้นคอนกรีต

แปลนบ้าน Cozy ชั้น 1

ประตูทางเข้าเป็นบานเลื่อนอลูมิเนียม กระจกเขียวตัดแสง

เมื่อเปิดประตูทางเข้ามาแล้ว จะเจอกับส่วนที่เป็นห้องนั่งเล่นหรือห้องรับแขก เลยเข้าไปด้านในเป็นพื้นที่วางโต๊ะรับประทานอาหาร ส่วนของห้องครัว ห้องน้ำกั้นแยกไว้ด้านขวาของทางเข้า พื้นบ้านปูด้วยกระเบื้องแกรนิตโต้ 60x60 ซม.

มุมมองจากด้านในบ้าน ด้านบนประตูทางเข้ามีแอร์ของ Saijo-Denki จากโครงการแถมให้ในช่วงโปรโมชั่น

มองจากโซฟาห้องนั่งเล่น จะเห็นห้องอื่นๆ เป็นแนวยาวเข้าไป ตำแหน่งอยู่ตามลูกศรเลยค่ะ

มาดูในส่วนของห้องน้ำชั้นล่างกันค่ะ มองตรงไปเจอกับอ่างล้างหน้าและกระจก

ด้านในแบ่งส่วนเปียก ด้วยพื้นธรณีลดระดับ ส่วนสุขภัณฑ์ใช้ของ Mogen

เดินตรงไปเป็นห้องครัว โครงการตกแต่งด้วยเคาน์เตอร์รูปตัว L พร้อมท็อปครัว
ถ้าเป็นบ้านส่งมอบ สามารถตกแต่งได้ตามใจชอบค่ะ

ออกจากประตูครัวไปเป็นลานซักล้าง

มีพื้นที่คอนกรีตและหญ้าสีเขียว

กลับมาที่บันไดขึ้นชั้น 2 ที่อยู่ตรงข้ามกับห้องน้ำเมื่อครู่ ตรงใต้บันไดมีทำเป็นห้องเก็บของ หรือห้องอเนกประสงค์ได้
และด้านข้างบันไดมีประตูทางเข้าจากที่จอดรถได้ด้วยค่ะ

เปิดออกไปก็จะเจอกับพื้นที่จอดรถได้ 2 คัน

ห้องใต้บันไดกว้างขวาง

เดินขึ้นชั้น 2 กันเลยค่ะ บันไดทำจากไม้ประสาน ตรงชานพักบันไดมีหน้าต่างรับแสงขนาดใหญ่

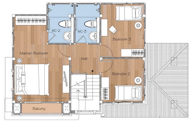
แปลนบ้าน Cozy ชั้น 2

ชั้นบนแบ่งออกได้ 4 ห้อง คือ Master Bedroom ห้องนอนที่ 2 และ 3 และห้องน้ำ
ซึ่งห้องน้ำของแบบบ้าน Cozy นี้มีประตูเชื่อมต่อกับ Master Bedroom ด้วยค่ะ

สามารถเข้าห้องน้ำชั้นบนได้ 2 ประตู ทั้งจากด้านนอกประตูปกติ และจากภายใน Master Bedroom

เข้ามาดูที่ Master Bedroom กว้างขวางพอที่จะวางเตียง 6 ฟุตได้สบายๆเลยค่ะ ด้านข้างเตียงนั้นเป็นระเบียง

ประตูระเบียงเป็นประตูบานเลื่อน

เป็นแนวยาวสำหรับเดินออกมารับลมชมวิวได้ค่ะ

ส่วนตู้เสื้อผ้าสูงติดเพดาน ใหญ่เพียงพอจะทำเป็น Walk in Closet ได้เลยค่ะ

ตู้เสื้อผ้าอยู่ติดกับประตูทางเข้าห้องน้ำพอดีค่ะ

มองจากมุม Walk in Closet ค่ะ

สำหรับห้องน้ำชั้นบนก็แบ่งส่วนเปียกไว้ด้วยธรณีลดระดับเหมือนกับชั้นล่างเลยค่ะ
ถ้าไม่อยากให้น้ำกระเด็นเปียกไปยังส่วนแห้ง คงต้องทำเป็นตู้อาบน้ำเพิ่มเติมทีหลังค่ะ

ภาพด้านขวาคือมุมมองจากภายในห้องน้ำ เห็น 3 ประตูเชื่อมกันอยู่

ส่วนห้องนอนตรงข้ามกับ Master Bedroom ก็คือ ห้องนอนที่ 2 และ ห้องนอนที่ 3 นั่นเองค่ะ

ห้องนอนที่ 2 ถ้าวางเตียง 3 ฟุตจะพอดีกับห้องค่ะ หน้าต่าง 2 บานเป็นแบบบานเลื่อนอลูมิเนียม

ส่วนห้องนอนที่ 3 ทางโครงการตกแต่งเป็นเหมือนห้องทำงาน
ซึ่งครอบครัวไหนที่มีสมาชิกน้อย ก็สามารถใช้ไอเดียจากโครงการได้ค่ะ

มีขนาดเท่ากับห้องนอนที่ 2 ถ้าจะทำเป็นห้องนอนก็ต้องวางเตียง 3 ฟุตจะพอดีค่ะ
ต่อไปเป็นแบบบ้าน Charm มีเนื้อที่บ้านเริ่มต้นที่ 51.7 ตร.ว. พื้นที่ใช้สอย 164 ตร.ม. 3 ห้องนอน 2 ห้องน้ำ 1 ห้องรับแขก พร้อมระเบียงชมวิวใน Master Bedroom ครัวแยกสัดส่วน และที่จอดรถ 1-2 คัน

แบบบ้าน Charm จะมีขนาดใหญ่ขึ้นมาจากแบบบ้าน Cozy
แต่ยังคงมีจำนวนห้องเท่ากัน และมีพื้นที่จอดรถได้ 2 คันเหมือนกันค่ะ

แปลนบ้าน Charm ชั้น 1

วัสดุที่ใช้ก็เหมือนกับแบบบ้าน Cozy ค่ะคือเป็นประตูบานเลื่อนอลูมิเนียม กระจกเขียวตัดแสง

Layout บ้านก็เหมือนกันเลยค่ะ เปิดเข้ามาเจอกับห้องนั่งเล่น สำหรับแบบบ้าน Charm โครงการตกแต่งด้วยโทนสีขาวครีม ทำให้ดูกว้างขวางขึ้น เสริมด้วยกระจกบานใหญ่รับแสงได้รอบบ้าน ดูสว่างสดใสดีค่ะ

ด้านในเป็นห้องน้ำ ห้องครัว และบันไดขึ้นชั้น 2 เหมือนกันค่ะ

สำหรับห้องน้ำของแบบบ้าน Charm ก็จะกว้างขึ้นมา ทำให้แบ่งแยกส่วนแห้ง
และส่วนเปียกได้ชัดเจนยิ่งขึ้น สามารถใช้ม่านมากั้นให้เป็นสัดส่วนมากยิ่งขึ้นได้ค่ะ

และในส่วนของห้องครัวจะแยก ส่วนประกอบอาหาร และส่วนรับประทานอาหารไว้คนละห้อง
เวลาประกอบอาหาร กลิ่นจะได้ไม่รบกวนผู้ที่อยู่ในห้องนั่งเล่นค่ะ

ส่วนประกอบอาหารตกแต่งไว้เหมือนกับแบบบ้าน Cozy และมีประตูออกไปลานซักล้างเหมือนกันค่ะ

ส่วนบันไดก็มีห้องใต้บันไดเหมือนกัน และมีประตูทางเข้าจากที่จอดรถ

เปิดออกไป เจอพื้นที่จอดรถได้ 2 คัน

แปลนบ้าน Charm ชั้น 2

ในส่วนชั้น 2 แบ่งเป็น 4 ห้อง ประกอบไปด้วย 3 ห้องนอน 1 ห้องน้ำ

Master Bedroom มีประตูเชื่อมต่อกับห้องน้ำ เหมือนๆ กับแบบบ้าน Cozy เลยค่ะ

Master Bedroom มีพื้นที่กว้างขวาง และมีระเบียงขนาดใหญ่

พื้นที่ที่เหลือทำเป็น Walk in Closet ได้ค่ะ ซึ่งทางโครงการ Built-in เป็นเพียงตู้เสื้อผ้า ทำให้ยังมีพื้นที่เหลือเฟือ

มองจากมุมด้านในห้อง เห็นประตูห้องน้ำที่เชื่อมต่อกับ Master Bedroom

ซึ่งห้องน้ำด้านบนก็กว้างเหมือนชั้นล่าง แบ่งส่วนแห้งส่วนเปียกไว้ชัดเจน

ไปดูกันต่อที่ห้องนอนที่ 2 และ 3 กันเลยค่ะ

ห้องนอนที่ 2 มีขนาดใหญ่กว่าแบบบ้าน Cozy สามารถวางเตียงได้ถึง 4 ฟุตได้ค่ะ

ซึ่งทางโครงการตกแต่งด้วยเตียง 3 ฟุตไว้ และยังมีพื้นที่วางตู้เสื้อผ้า ตู้เก็บของได้สบายเลยค่ะ

บรรยากาศห้องนอนที่ 3 ค่ะ
แบบบ้าน Classy มีเนื้อที่บ้านเริ่มต้น 54 ตร.ว. และ พื้นที่ใช้สอย 178 ตร.ม. 3 ห้องนอน 3 ห้องน้ำ 1 ห้องรับแขก 1 ห้องรับประทานอาหาร ครัวแยกสัดส่วน เคาน์เตอร์เตรียมอาหาร ระเบียงชมวิว และที่จอดรถ 2 คัน

แบบบ้าน Classy เป็นบ้านไซส์ L ของโครงการที่มีขนาดใหญ่ที่สุดค่ะ

แปลนบ้าน Classy ชั้น 1

ในส่วนของ Layout ก็ยังคงเหมือนกันค่ะ แต่บ้านแบบ Classy ก็จะมีพื้นที่กว้างขึ้น
สามารถรองรับครอบครัวใหญ่สมาชิกหลายคนได้ดีค่ะ

แบบบ้าน Classy ตกแต่งด้วยโทนสีน้ำตาลดูหรูหรา

เดินเข้ามาด้านในกันเลยค่ะ เป็นห้องน้ำ ห้องครัว และบันไดทางขึ้น

ห้องน้ำของแบบบ้าน Classy ในชั้นล่างแบ่งโซนเปียกด้วยธรณีลดระดับ

ห้องครัวแบ่งเป็น 2 ส่วน ส่วนเตรียมอาหารและส่วนประกอบอาหาร มีประตูออกไปส่วนซักล้างหลังบ้านได้ค่ะ

มีห้องใต้บันไดและประตูทางเข้าจากที่จอดรถเช่นเคย

แปลนบ้าน Classy ชั้น 2

สำหรับห้องน้ำชั้น 2 ของแบบบ้าน Classy นี้ มีประตูเข้าออกประตูเดียวค่ะ

เลี้ยวมาดู Master Bedroom กว้างขวางโอ่อ่า พร้อมระเบียงขนาดใหญ่

และสำหรับ Master Bedroom ของแบบบ้าน Classy นี้ มีห้องน้ำในตัวด้วยค่ะ

ห้องน้ำในตัวก็กว้างขวาง แบ่งส่วนแห้งส่วนเปียกให้ด้วยค่ะ

ก่อกำแพงแบ่งส่วนให้ สามารถต่อเติมได้ด้วยผ้าม่าน หรือจะก่อปูนเพิ่มก็ย่อมได้ค่ะ

ห้องนอนที่ 2 กว้างขึ้นค่ะ วางเตียง 4-5 ฟุตได้

ห้องนอนที่ 3 จะเล็กลงมาหน่อย แต่ก็วางเตียงได้ถึงขนาด 4 ฟุตได้ ไม่อึดอัดค่ะ
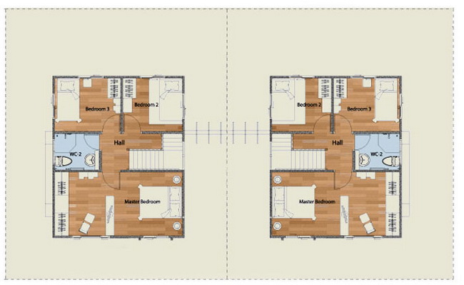
แบบบ้านแนวคิดใหม่ Calm-Care

แบบบ้านแนวคิดใหม่ของโครงการนี้ อาจจะดูคล้ายกับเป็นบ้านแฝด
แต่ลักษณะการขายจะเหมือนกับบ้านเดี่ยว คือขายแยกหลัง และมีรั้วกั้นให้ค่ะ

จากภาพเป็นบ้านส่งมอบของแบบบ้าน Care-Calm มีการกั้นรั้วให้เป็นบ้านคนละหลัง แต่มีการเชื่อมกันไว้ด้วยคานค่ะ

คานเชื่อมบ้านเป็นแบบนี้ค่ะ
บ้าน Calm

เรามาดูในส่วนของแบบบ้าน Calm กันก่อนดีกว่าค่ะ ซึ่งเป็นแบบบ้านที่ตกแต่งแล้ว และมี Layout เหมือนกับแบบบ้าน Care แต่จะจัดวางให้ตรงกันข้ามกันค่ะ เนื้อที่บ้านเริ่มต้นที่ 35 ตร.ว. พื้นที่ใช้สอย 115 ตร.ม. 3 ห้องนอน 2 ห้องน้ำ 1 ห้องรับแขก 1 ห้องรับประทานอาหาร เคาน์เตอร์เตรียมอาหาร และที่จอดรถ 1 คัน

แปลนบ้าน Care-Calm ชั้น 1

แบบบ้าน Care จะมีพื้นที่จอดรถได้ 1 คันค่ะ และมีประตูทางเข้าบ้านทางเดียวค่ะ

ประตูทางเข้าบานเลื่อนอลูมิเนียมพร้อมกระจกเขียวตัดแสง

พื้นที่บ้านของแบบบ้าน Care-Calm นี้จะเล็กลงมาหน่อยค่ะ แต่การจัดวางสัดส่วนก็คล้ายๆ กัน

ด้านในบ้านเข้าไปมี 2 ทางค่ะ แบ่งเป็นบันไดทางขึ้นชั้น 2 ที่มีห้องน้ำอยู่ใต้บันได ส่วนอีกทางเป็นห้องครัว

มองจากมุมนี้ก็จะเห็นห้องน้ำที่อยู่ใต้บันได ส่วนห้องครัวทำเป็นห้องเดียวค่ะ
หากใครไม่อยากให้กลิ่นรบกวน สามารถทำประตูกั้นได้ภายหลัง

ห้องครัวเป็นแนวยาว

มีประตูทางออกไปลานซักล้างได้ค่ะ

ในส่วนของห้องน้ำ ถ้าเป็นแบบบ้านเดี่ยวอื่นๆ ที่เราเห็นจะมีห้องน้ำและห้องใต้บันได แต่สำหรับแบบบ้าน Care-Calm ได้ใช้พื้นที่ในส่วนห้องใต้บันได มาเป็นห้องน้ำ เลยอาจจะแยกส่วนแห้งส่วนเปียกลำบากนิดนึงค่ะ

แต่อุปกรณ์ก็มีให้ครบพร้อมทุกอย่างค่ะ

บันไดทางขึ้นชั้น 2 ของแบบบ้าน Care-Calm เป็นบันไดเวียนหักฉากแบบทึบ ไม่มีชานพักบันได
แต่มีบานกระจกรับแสงให้อยู่จุดเดียวกับแบบบ้านอื่นๆ ค่ะ

แปลนบ้าน Care-Calm ชั้น 2

เดินขึ้นมาก็จะเห็นห้อง 4 ห้อง

Master Bedroom กว้างขวางตามคอนเซปต์

มีพื้นที่สามารถกั้นเป็น Walk in Closet ได้ค่ะ

เตียง 6 ฟุตวางได้พอดี สำหรับ Master Bedroom ของแบบบ้าน Care-Calm นี้ ไม่มีห้องน้ำในตัวนะคะ

ห้องนอนที่ 2 สามารถวางเตียงใหญ่กว่า 3 ฟุตได้นะคะ

มีพื้นที่วางตู้ได้อีกค่ะ

บรรยากาศห้องนอนที่ 3 ค่ะ

ส่วนห้องน้ำชั้น 2 นี้ ก็จะกว้างขึ้นมาจากชั้น 1 แบ่งส่วนแห้งส่วนเปียกด้วยธรณีลดระดับ

บรรยากาศห้องน้ำค่ะ
บ้าน Care

สำหรับแบบบ้าน Care บ้านตัวอย่างของโครงการจะเป็นบ้านเปล่าแบบรอขายเลยค่ะ ถ้าซื้อบ้านจริงก็จะได้แบบที่เห็นในภาพต่อไปนี้เลยค่ะ โดย Layout ของแบบบ้าน Care นี้จะจัดตรงกันข้ามกับแบบบ้าน Calm แต่สัดส่วนนั้นเหมือนกันทุกประการค่ะ

ทางเข้าบ้าน มีทางเดียว พื้นที่จอดรถสามารถจอดได้ 1 คันค่ะ

ที่เราเห็นจากแบบบ้าน Calm เข้าไปจะเป็นห้องนั่งเล่น ส่วนบ้านส่งมอบก็จะเป็นพื้นที่โล่งให้ตกแต่งได้ตามใจชอบเลยค่ะ โดยวัสดุที่ใช้นั้นก็เหมือนกัน เป็นพื้นแกรนิตโต้ 60x60 ซม. วงกบประตูและหน้าต่างเป็นแบบบานเลื่อนทำจากอลูมิเนียม

ด้านใน เป็นพื้นที่ห้องครัวและบันไดทางขึ้นชั้น 2 มีห้องน้ำอยู่ใต้บันไดเหมือนกับแบบบ้าน Calm

จากมุมนี้จะเห็นสัดส่วนห้องชัดเจน

ในห้องครัวเป็นแนวยาว มีประตูออกไปลานซักล้างหลังบ้านได้

มองจากมุมด้านในบ้าน

ห้องน้ำชั้น 1 ที่อยู่ใต้บันไดเหมือนกับแบบบ้าน Calm เลยค่ะ

ผนังด้านฝักบัวตกแต่งด้วยกระเบื้องโมเสก

ขึ้นบันไดมาชั้น 2 กันเลยค่ะ

จะเห็นว่า Layout ห้องจะกลับด้านจากแบบบ้าน Calm

Master Bedroom

ห้องนอนที่ 2

และห้องนอนที่ 3 ค่ะ

ส่วนห้องน้ำนั้นแยกส่วนแห้งส่วนเปียกด้วยธรณีลดระดับเช่นเคย

ปิดท้ายด้วยบรรยากาศห้องน้ำชั้น 2 ค่ะ
ราคาและค่าใช้จ่ายที่เกี่ยวข้องโดยประมาณ ณ วันที่ 14 ตุลาคม 2557
สำหรับราคาที่เราจะแจ้งดังต่อไปนี้ เป็นราคาเริ่มต้น ซึ่งในแต่ละแปลงบ้านมีเนื้อที่บ้านไม่เท่ากันทุกหลัง แตกต่างกันตามเนื้อที่บ้าน และทำเลแปลง ซึ่งแปลงที่อยู่ใกล้กับสวนสาธารณะและคลับเฮ้าส์จะมีราคาสูงกว่า ในส่วนรายละเอียดนั้นสามารถติดต่อสอบถามกับทางโครงการได้เลย
แบบบ้านเดี่ยว (Cozy) ราคาเริ่มต้นอยู่ที่ 3,670,000 บาท
แบบบ้านเดี่ยวแนวคิดใหม่ (Care-Calm) ราคาเริ่มต้นอยู่ที่ 3,099,000 บาท
เงินจอง+สัญญา 50,000 บาท
ค่าใช้จ่ายที่เกี่ยวข้องของแต่ละแบบบ้าน
- ค่าธรรมเนียม, อากรและค่าใช้จ่ายอื่นๆ ในการโอนกรรมสิทธิ์ที่ดิน ผู้ซื้อและผู้ขายออกฝ่ายละครึ่ง
- ค่าติดตั้งและเงินประกันการติดตั้งมิเตอร์ประปา-ไฟฟ้า 15 แอมป์ ผู้ซือเป็นผู้ออก
- กำหนดทำสัญญาภายใน 7 วัน นับจากวังจอง พร้อมทั้งชำระค่าทำสัญญา
- ในวันทำสัญญาลูกค้าต้องเตรียมเอกสารเพื่อเตรียมยื่นกู้ทันที
- ส่วนต่างจากที่ธนาคารอนุมัติ ทางผู้ซื้อเป็นผู้ออก
- ราคานี้อาจเปลี่ยนแปลงได้โดยไม่ต้องแจ้งให้ทราบล่วงหน้า
- ทำเลที่ตั้ง ทำเลค่อนข้างจะอยู่ลึกในซอยสมเกลี้ยงนิดนึง แต่ข้อดีก็คือมีความสงบ ไม่พลุกพล่านมากและบริเวณรอบๆ โครงการในระยะไม่เกิน 20 กิโลเมตร มีห้างสรรพสินค้าชั้นนำมากมายอยู่รายล้อม ทั้งโรงเรียน โรงพยาบาล ไม่ว่าจะเป็น โรงเรียนเด่นหล้า ภายใน 7 กิโลเมตร, มหาวิทยาลัยมหิดล ภายใน 10 กิโลเมตร โรงพยาบาลเกษมราษฎร์ ภายใน 14 กิโลเมตร The Walk ราชพฤกษ์ ภายใน 10 กิโลเมตร และอื่นๆ อีกมากมาย นอกจากนี้ในบริเวณใกล้เคียงกับโครงการที่อยู่ในซอยเดียวกัน มีร้านค้าและตลาด ทั้ง 7-11, Lotus Express, และ Big C Mini และถ้ามองในช่วงระยะหลังสองปีมานี้ ในซอยส้มเกลี้ยงที่เป็นที่ตั้งของโครงการนี้ ได้มีโครงการบ้านเดี่ยว ทาวน์โฮม เข้าไปเปิดขายในซอยนี้มากมาย ทั้งที่สร้างก่อนหน้า และสร้างในระยะเวลาไล่เลี่ยกัน ซึ่งในวันที่ได้ไปเยี่ยมชมนั้น ถนนทางเข้าไปยังโครงการ ตลอดทั้งซอยนั้นกำลังอยู่ในช่วงพัฒนาขยายเลนถนนให้กว้างขวางขึ้น เพื่อรองรับความเปลี่ยนแปลงจำนวนประชากรในอนาคตที่อาจจะเพิ่มมากขึ้นด้วยนั่นเอง ซึ่งทำให้ในอนาคตพื้นที่ในส่วนนี้ อาจมีการลงทุนของนักธุรกิจด้านการค้าที่อาจจะครึกครื้นขึ้นและมีการพัฒนาพื้นที่ให้เจริญขึ้นได้
- การเดินทาง สำหรับการเดินทางเส้นหลักของผู้ที่ต้องการจะเข้าตัวเมืองโดยรถยนต์นั้น สามารถเดินทางออกทางซอยส้มเกลี้ยงทางเดียวกับที่เราได้รีวิวให้ดูด้านบน ซึ่งเป็นทางออกเข้าสู่ถนนกาญจนาภิเษก ที่เชื่อมต่อไปยังหลายเส้นทาง สามารถเข้าสู่ถนนเพชรเกษม ถนนบรมราชชนนี หรือถนนราชพฤกษ์ เพื่อเข้าตัวเมืองได้ นอกจากนี้ในอนาคตอันใกล้นี้มีโครงการต่อขยายทางด่วนศรีรัช-วงแหวน ช่วยให้การเดินทางเข้าเมืองนั้นสะดวกสบายยิ่งขึ้น และที่สำคัญสำหรับผู้ที่ไม่ต้องการใช้รถยนต์ตลอด บริเวณแยกรัตนาธิเบศร์ตัดกับกาญจนาภิเษกมีโครงการรถไฟฟ้าสายสีม่วงเตาปูน-คลองบางไผ่ สถานีตลาดบางใหญ่ มีระยะห่างจากโครงการประมาณ 13 กิโลเมตร ที่จะมาช่วยอำนวยความสะดวกในการเดินทางได้ในอนาคตอันใกล้นี้ ไม่น่าเกินปี พ.ศ. 2559
- แบบบ้านและวัสดุโดยรวม คอนเซปต์ของโครงการเป็นบ้านสไตล์ Modern Stripe Contemporary โดย KTGY บริษัทออกแบบชั้นนำระดับโลก ก่อสร้างด้วยอิฐมวลเบา มีด้วยกันทั้งหมด 5 แบบ เป็นบ้านเดี่ยว 3 แบบ และบ้านเดี่ยวแนวคิดใหม่อีก 2 แบบ งานสถาปัตยกรรมของตัวบ้านเน้นเส้นตั้งและเส้นนอนที่สื่อให้เห็นถึงความเรียบง่าย ลดลวดลายที่มากเกินไป โทนสีบ้านใช้สีแนว Earth Tone เพื่อช่วยให้บ้านดูอบอุ่น บ้านหลังหนึ่งสามารถรองรับครอบครัวหนึ่งได้อย่างครบพร้อม ทุกแบบบ้านจะมี 3 ห้องนอน 2 ห้องน้ำขึ้นไป ซึ่งสามารถเลือกขนาดได้ตามความต้องการและงบประมาณที่มี วัสดุที่ใช้ภายในบ้านก็ได้เป็นวัสดุพรีเมียมที่ได้มาตรฐาน ประตูและหน้าต่างเป็นวัสดุอลูมิเนียม บานสไลด์สีขาว พร้อมกระจกเขียวตัดแสง พื้นบ้านชั้นแรกปูด้วยแกรนิตโต้ 60x60 ซม. ดีไซน์ตัดขอบกระเบื้อง ชั้นสองเป็นพื้นไม้ลามิเนต สุขภัณฑ์ใช้ของ Mogen โมเดิร์นเข้ายุคสมัย และมีการแบ่งสัดส่วนบ้านแต่ละห้องได้อย่างลงตัว
- ตัวโครงการโดยรวมและส่วนกลาง โครงการโดยรวม ณ วันที่ได้ไปเยี่ยมชม บ้านบางส่วนพร้อมอยู่ มีผู้อาศัยโอนกรรมสิทธิ์เรียบร้อย ในขณะที่อีกส่วนหนึ่งกำลังก่อสร้าง รวมไปถึงคลับเฮ้าส์ ที่ ณ ปัจจุบัน มีเพียงสวนสาธารณะส่วนกลางอยู่ส่วนหนึ่ง ยังไม่มีสระว่ายน้ำ ฟิตเนส และคลับเฮ้าส์ ซึ่งทางโครงการมีแผนที่จะก่อสร้าง แต่ยังไม่มีรายละเอียดในจุดนี้มากนัก คาดว่าอาจจะแล้วเสร็จในส่วนสุดท้าย ซึ่งผู้ที่สนใจโครงการนี้อาจต้องลองสอบถามจากเจ้าของโครงการดูว่าจะเริ่มสร้างเมื่อไหร่และเสร็จเมื่อไหร่ อย่างไรก็ตาม ทางโครงการได้เพิ่มพื้นที่สีเขียวให้กับหมู่บ้านด้วยการประดับประดาด้วยต้นไม้ สนามหญ้าไปรอบๆ โครงการด้วยเช่นกัน
- ราคา เริ่มต้นที่ 3,099,000 บาท ซึ่งเป็นบ้านขนาดเล็กที่สุดบนพื้นที่ 35 ตร.ว. พื้นที่ใช้สอย 115 ตร.ม. ถึงแม้เนื้อที่บ้านอาจจะไม่ใหญ่โต กว้างขวางมากนัก แต่ฟังก์ชั่นภายในบ้านก็ถือว่าครบพร้อมด้วย 3 ห้องนอน 2 ห้องน้ำ 1 ห้องรับแขก 1 ห้องรับประทานอาหาร เคาน์เตอร์เตรียมอาหาร และที่จอดรถ 1 คัน ซึ่งสามารถรองรับครอบครัวที่มีสมาชิก 3-4 คนได้สบายๆ อีกทั้งยังมีราคาที่ไม่สูงมาก ถือเป็นทางเลือกอีกทางหนึ่งสำหรับผู้ที่มีงบประมาณจำกัดในย่านนี้
สถานะปัจจุบันของโครงการ ณ วันที่ 14 ตุลาคม 2557
โครงการบ้านเดี่ยว แลนซีโอ คริป ปิ่นเกล้า - วงแหวน (ส้มเกลี้ยง) มีทั้งหมด 404 ยูนิตซึ่งอยู่ในระหว่างสร้างไปขายไป ณ ปัจจุบันนี้ มีการโอนกรรมสิทธิ์ไปแล้ว 22 หลัง เข้ามาอยู่และต่อเติมบ้านเรียบร้อยแล้ว ในส่วนของสาธารณูปโภคส่วนกลางมีเพียงสนามหญ้าส่วนหนึ่ง ยังไม่มีคลับเฮ้าส์ สระว่ายน้ำ และฟิตเนส ซึ่งทางโครงการจะเริ่มดำเนินการก่อสร้างในต้นปี 2558 หากท่านใดสนใจสามารถติดต่อกับทางโครงการหรือสำนักงานขายได้โดยตรงเลยค่ะ
ติดต่อโครงการ โทร. 02-732-1041-5 หรือ 1778
เข้าดูเว็บไซต์โครงการได้ที่
http://www.lanceo-home.com/