แบบบ้านสไตล์โมเดิร์น... เท่ๆ ด้วยทรงสี่เหลี่ยม
แบบบ้านสไตล์โมเดิร์นเป็นแบบบ้านที่เรียบง่ายที่สุดก็ว่าได้ค่ะ ไม่ว่าจะอยู่ในสภาพแวดล้อมหรือทำเลแบบไหนก็ตาม ยังคงเป็นที่นิยมอยู่เสมอ วันนี้เรามีแบบบ้านสไตล์โมเดิร์น 2 ชั้นมาฝากกันค่ะ บ้านดีไซน์เก๋ๆ ด้วยทรงสี่เหลี่ยมง่ายๆ
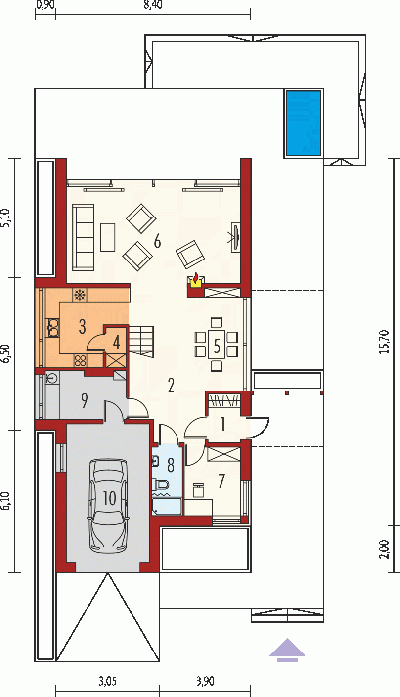
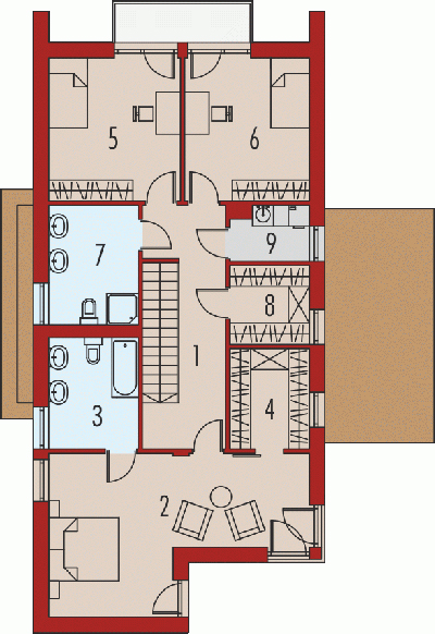
แบบบ้าน 2 ชั้น 3 ห้องนอน 4 ห้องน้ำ สำหรับครอบครัวขนาดกลาง ชั้นล่างจะเป็นพื้นที่ห้องรับแขก, ห้องครัว, ห้องน้ำ และชานบ้านยื่นออกไปแบบ Open Air ส่วนชั้น 2 เป็นพื้นที่ของการพักผ่อน 3 ห้องนอนและห้องน้ำในตัว แอบมีมุมทำงานเล็กๆ หรือทำเป็น Walk-in Closet ด้วยนะคะ

แบบแปลนชั้นล่าง

แบบแปลนชั้น 2
แบบบ้านเป็นทรงสี่เหลี่ยมธรรมดา แต่ดีเทลต่างๆ ไม่ได้ธรรมดาไปด้วยนะคะ ตัวบ้านทาสีขาวครีม ตัดกันกับไม้ระแนงสีน้ำตาลบุที่ประตู, หน้าต่าง รวมถึงซุ้มไม้ระแนงเล็กๆ ข้างบ้าน มีที่จอดรถแถมด้วยทางเดินปูแผ่นปูง่ายๆ หน้าบ้าน
หลังบ้านเป็นมุมพักผ่อนค่ะ มีซุ้มระแนงไม้สำหรับวางโต๊ะกินข้าว มีบ่อน้ำเล็กๆ เอาไว้เลี้ยงปลาสวยงามหรือปลูกไม้น้ำเพิ่มความเขียวให้กับบ้าน แถมท้ายชานบ้านกว้างๆ สำหรับวางเก้าอี้นอนตัวยาวรับลมธรรมชาติ ง่ายๆ แบบไม่มีพิธีรีตองอะไรมากมาย ความไม่เยอะนี่แหละค่ะถือเป็นเสน่ห์ของแบบบ้านสไตล์โมเดิร์น

หน้าบ้าน

ข้างบ้าน (ประตูหลัก)

ข้างบ้าน

หลังบ้าน