-
แบบบ้านสีน้ำตาล 1 ห้องนอนสำหรับครอบครัวเล็กๆ
8 ก.พ. 59 4,723
แบบบ้านสีน้ำตาล 1 ห้องนอนสำหรับครอบครัวเล็กๆ
วันนี้เรามีแบบบ้านหลังเล็ก 1 ห้องนอน 1 ห้องน้ำ สำหรับคนที่กำลังจะสร้างครอบครัวมาฝากกันค่ะ ถึงจะเป็นบ้านหลังเล็กแต่เติมเต็มความเป็นครอบครัวนะคะ

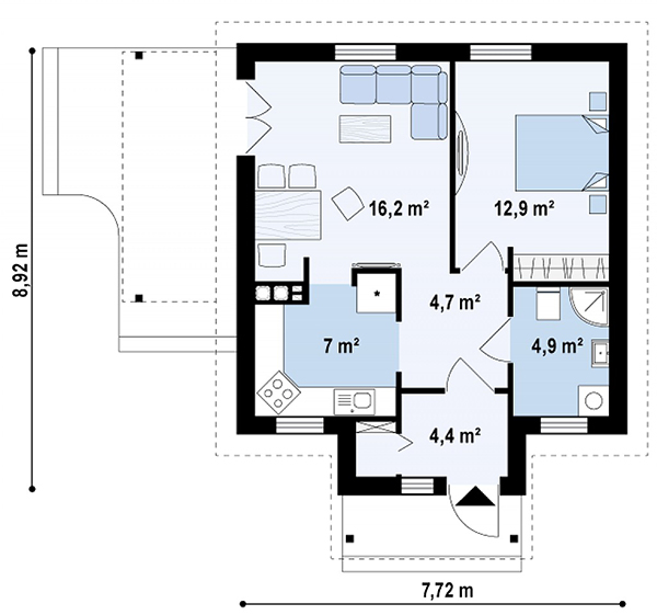
แบบแปลนภายในบ้าน มี 1 ห้องนอน 1 ห้องน้ำ 1 ห้องครัวและมุมรับแขก
ตรงมุมรับแขกเองก็มีส่วนระเบียงยื่นออกไปด้วยนะคะ
เหมาะสำหรับครอบครัวเล็กๆ อย่างมากเลยล่ะค่ะ สำหรับครอบครัวเล็กๆ ที่กำลังมองหาแบบบ้านเล็กๆ ที่ไม่เกินงบหรือเกินตัวจนเกินไป ก็เก็บไว้เป็นอีกหนึ่งตัวเลือกนะคะขอบคุณข้อมูล : www.pracownia-projekty.dom.plบทความล่าสุดอื่นๆ



