Tiny House แบบบ้านหลังน้อย สำหรับครอบครัวเล็กๆ
บ้านที่อบอุ่นไม่ได้จำเป็นต้องเป็นบ้านหลังใหญ่ หรูหรา อลังการ บ้านหลังเล็กๆ ที่ทุกคนในครอบครัวอยู่ด้วยกันอย่างพร้อมหน้านี่แหละค่ะ คือบ้านที่อบอุ่นอย่างแท้จริง วันนี้เรามีแบบบ้านเล็กๆ สีเขียวสดชื่น สำหรับครอบเล็กๆ มาฝากกันค่ะ
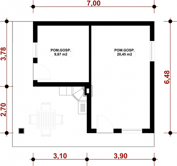
สำหรับแบบบ้านหลังนี้ เป็นบ้านหลังเล็ก Tiny House สำหรับครอบเล็กๆ 2-3 คน มี 2 ห้องใหญ่ๆ ที่สามารถกั้นแบ่งพื้นที่ได้ตามใจชอบ

ภายในแบ่งออกเป็น 2 ห้อง สำหรับห้องเล็กติดกับทางเข้าสามารถทำเป็นห้องรับแขกได้
ส่วนห้องใหญ่นั้นสามารถกั้นแบ่งเป็น 2 ห้องนอนได้ ส่วนครัวย้ายมาอยู่ด้านนอกแบบเก๋ๆ หมดกังวลเรื่องกลิ่นอาหารเลย

หน้าบ้าน มีมุมครัวเปิดเล็กๆ อยู่ด้วย

ข้างบ้าน

ข้างบ้าน มีประตูเชื่อมออกมาด้านนอกได้

หลังบ้าน

หน้าบ้าน

หลังบ้าน
ต้องบอกว่าน่ารักจริงๆ ค่ะ เหมาะกับครอบครัวเล็กๆ หรือครอบครัวใหม่ที่กำลังมีแผนจะสร้างบ้านหลังแรก ในงบประมาณเบาๆอย่าลืมเก็บไว้เป็นอีกหนึ่งแบบบ้านของคุณนะคะ