Tiny House บ้านสวยไซส์เล็ก 20 ตร.ม. แต่ฟังก์ชันครบ...สุดบิ๊ก
“คับที่อยู่ง่าย คับใจอยู่ยาก” สุภาษิตที่ใช้ได้ผลเสมอ โดยเฉพาะกับคนที่ฝันอยากมีบ้านน้อยแสนสุขเพื่ออยู่กับครอบครัวสุดรัก ยิ่งถ้าคุณเป็นคนที่เชื่อว่าขนาดของความสุขไม่ได้ขึ้นอยู่กับขนาดของพื้นที่ใช้สอยที่ต้องเยอะเสมอไป ถ้างั้น “Tiny House” บ้านไซส์มินิหลังเล็ก แต่จัดเต็มไปด้วยฟังก์ชันจำเป็นที่เรากำลังจะพาคุณไปชม ก็น่าจะเป็นคำตอบอีกหนึ่งตัวเลือกที่น่าสนใจของเพื่อนๆ ค่ะ

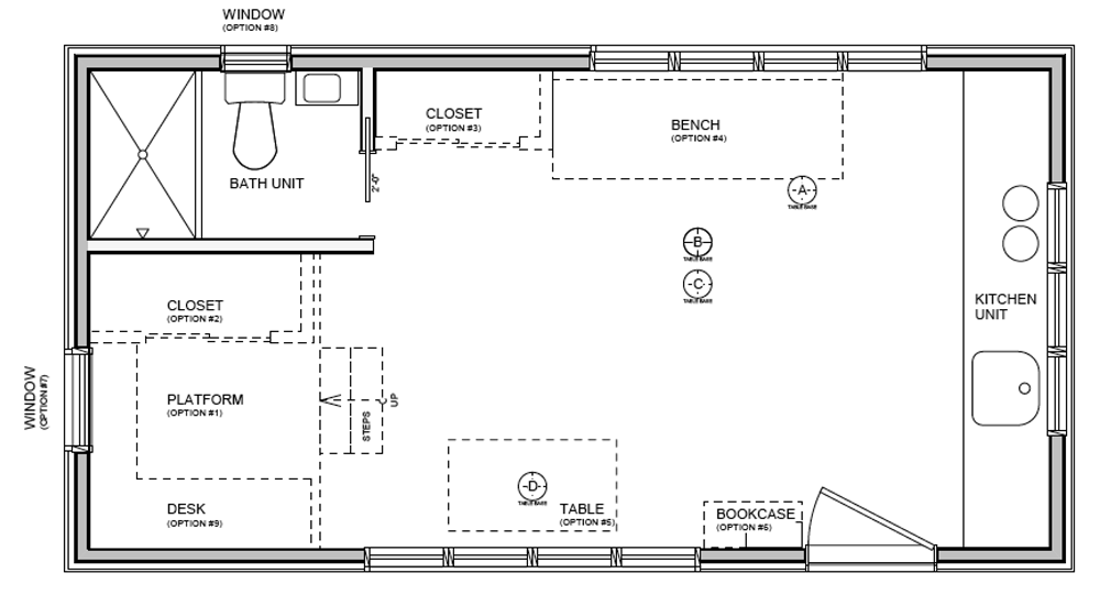
แบบบ้านจิ๋วหลังนี้มีชื่อทางการค้าว่า MINIM ถึงขนาดจะมินิแต่ก็มีครบทุกความต้องการ

บ้านหลังนี้มีขนาดประมาณ 3.3 x 6.75 เมตร มีพื้นที่ใช้สอยประมาณเกือบ 20 ตารางเมตร

เคล็ดลับของบ้านไซส์เล็กสุดเจ๋ง คือการแบ่งพื้นที่ใช้สอยให้เป็นสัดส่วน

ส่วนครัวที่อยู่อีกมุมนึงของบ้าน

อีกฝั่งของตัวบ้านยกสเต็ปพื้นให้กลายเป็นมุมสำหรับเล่นดนตรี ส่วนเตียงเป็นแบบเลื่อนซ่อนไว้ใต้พื้นเล่นระดับ

ดึงเตียงออกมาเวลาจะใช้ และซ่อนเก็บเมื่อไม่ใช้ ส่วนโต๊ะกลางที่ใช้ทานข้าวเป็นโต๊ะแบบเลื่อน ขยับหลบไปมาได้

นอกจากโต๊ะกลางจะเลื่อนไปมาได้ ยังสามารถลดระดับให้ต่ำลงขึ้นอยู่กับการเลือกใช้งาน อีกหนึ่งเคล็ดลับของบ้านแบบ Tiny House คือการเลือกใช้เฟอร์นิเจอร์ที่ทำหน้าที่ได้หลายฟังก์ชัน

ปรับโต๊ะกลางสารพัดประโยชน์ให้กลายเป็นโต๊ะทำงานก็ยังไหว

ส่วนมุมซ้อมดนตรีที่เป็นพื้นยกสูงเหนือที่นอน ก็ออกแบบโต๊ะวาง Electone ให้เป็นกล่องครอบยกขึ้นเมื่อใช้
พอปิดก็กลายร่างเป็นโต๊ะทำงานได้อีก เรียกว่าใช้พื้นที่ได้คุ้มค่าทุกตารางเมตรจริงๆ

ส่วนห้องน้ำก็อาจจะดูเล็กมินินิดนึง เข้าใจว่าน่าจะกั้นแบ่งโซนพื้นที่ด้วยม่าน
ส่วนตู้อาบน้ำน่าจะอยู่ฝั่งซ้ายมือของโถสุขภัณฑ์

ฝั่งกระจกพอเลื่อนฉากลงมาปิดก็สามารถดูหนังที่ฉายผ่านจอโปรเจคเตอร์ได้ ว้าวเลย!

ส่วนใต้โซฟารับแขกก็จะเป็นที่ซ่อนของศูนย์รวมจุดเมนเทนแนนซ์หลายๆ อย่างของบ้าน

ตกกลางคืนก็ออกมานั่งชิลนอกบ้านแบบเก๋ๆ
เห็นไหมคะว่าถึงบ้านแบบ Tiny House จะมีขนาดพื้นที่เล็กแค่เกือบ 20 ตารางเมตร แต่ด้วยการออกแบบแบ่งโซนพื้นที่ให้เป็นสัดส่วน และการเลือกใช้เฟอร์นิเจอร์แบบอเนกประสงค์ ก็สามารถทำให้คุณใช้พื้นที่ที่มีอยู่อย่างจำกัดให้เกิดประโยชน์สูงสุดได้ ขนาดไม่ใช่เรื่องสำคัญจริงๆ ค่ะ