พิสูจน์ความสวย "Tiger Lane" โฮมออฟฟิศสุดหรู ใจกลาง China Town แค่ 350 ม. จาก MRT
ฮือฮากันไม่น้อย เมื่อแสนสิริเปิดตัวโครงการ
Tiger Lane โฮมออฟฟิศ 4 ชั้น เมื่อปีที่แล้ว ด้วยดีไซน์ Modern Classic ที่ Contrast กับบรรยากาศไชน่า ทาวน์ ปัจจุบันโครงการก่อสร้างเสร็จแล้ว พร้อมอยู่ และเปิดขาย 5 ยูนิตพิเศษให้กับผู้ที่สนใจ ในราคาเริ่มต้นที่ 38 ล้านบาท* ความพิเศษของโครงการ Tiger Lane เสือป่า แห่งนี้นอกจากจะเป็นทาวน์โฮมสไตล์โฮมออฟฟิศ 4 ชั้นสุดหรูแล้ว ภายในบ้านยังมีลิฟต์โดยสาร และมีกล้อง CCTV ให้ทุกหลังอีกด้วย นอกจากนี้ โครงการยังตั้งอยู่ใจกลางเมือง ย่านธุรกิจอันเป็นเอกลักษณ์อย่าง China Town วันนี้เช็คราคาจะพาไปดูความคืบหน้าของโครงการ และบรรยากาศใกล้เคียงว่ามีอะไรน่าสนใจบ้างค่ะ

ทำเลใจกลาง China Town กับภาพมุมสูงบริเวณวงเวียน 22 กรกฎาคม ทางแยกสู่ถนน 5 สาย และมองเห็นที่ตั้งของ Tiger Lane
ข้อมูลโครงการ
- เจ้าของโครงการ บริษัท แสนสิริ จำกัด (มหาชน)
- ที่ตั้งโครงการ ซอยเจ้าคำรพ ถนนหลวง แขวงป้อมปราบ เขตป้อมปราบศัตรูพ่าย กรุงเทพมหานคร 10100
- เนื้อที่โครงการ 1 งาน 58.50 ตร.ว.
- จำนวนบ้านเปิดขาย 5 ยูนิต
- ปัจจุบันมีแบบบ้านอยู่ 2 แบบ ดิ อิมพีเรียล และ ดิ เอ็มเพอร์เรอร์ โฮมออฟฟิศ 4 ชั้น พร้อมลิฟต์ และ ที่จอดรถ 2 คัน
- เนื้อที่บ้าน 24 - 50 ตร.ม. พื้นที่ใช้สอย 248 - 402 ตร.ม. หน้ากว้าง 5.5 - 12.3 เมตร
- สิ่งอำนวยความสะดวก กล้อง CCTV ทุกหลัง
- ราคาเริ่มต้นที่ 38 ล้านบาท (ณ วันที่ 16 ตุลาคม 2562)
ที่ตั้งโครงการ
โครงการมีชื่อว่า "
Tiger Lane" ตั้งอยู่ในซอยเจ้าคำรพ ถนนเสือป่า แขวงป้อมปราบ เขตป้อมปราบศัตรูพ่าย กรุงเทพมหานคร ย่านเสือป่าอยู่ติดกับย่านเยาวราช เจริญกรุง สำเพ็ง และสะพานเหล็ก ซึ่งเรารู้จักกันดีว่าเป็นย่านที่มีชาวไทยเชื้อสายจีนอยู่เยอะจนถูกขนานนามว่าเป็น "ไชน่า ทาวน์" และความขึ้นชื่อของละแวกนี้ก็มีทั้งแหล่งเที่ยว ร้านค้า ร้านอาหารดังๆ มากมาย รวมไปถึงธุรกิจขนาดเล็กอยู่เต็มไปหมด เดี๋ยวไปดูพิกัดโครงการ แล้วเราจะพาเดินชมบรรยากาศรอบๆ โครงการกันต่อค่ะ

แผนที่ตั้งโครงการ (
คลิกดูภาพใหญ่)
แผนที่ตั้งโครงการบน Google Map
การเดินทางไปโครงการ
โครงการตั้งอยู่ในซอยเจ้าคำรพ ถนนเสือป่า ซึ่งสามารถเดินทางได้โดยรถยนต์ และรถไฟฟ้า MRT โดยใช้สถานีวัดมังกร มีระยะห่างจากโครงการเพียง 350 เมตร เท่านั้น
1. เดินทางโดยรถยนต์
2. รถไฟฟ้า MRT สถานีวัดมังกร เดินเพียง 350 เมตร
เดินชมสถานที่น่าสนใจรอบๆ โครงการ
สำหรับเส้นทางที่เราจะพาไปชมโครงการ เป็นเส้นทางการเดินเท้าจากรถไฟฟ้า MRT สถานีหัวลำโพง ซึ่งระหว่างทางนั้นจะแวะเยี่ยมชมสถานที่สำคัญต่างๆ ที่น่าสนใจนำมาฝากกัน ตามไปดูกันเลย

แผนที่สถานที่น่าสนใจรอบๆ โครงการ

เรามาเริ่มต้นเดินกันที่แยกแปลงนาม ตรงนี้จะเป็นที่ตั้งของรถไฟฟ้าสถานีวัดมังกร (
พิกัด)

ทางเข้ารถไฟฟ้า MRT สถานีวัดมังกร ปัจจุบันเปิดใช้งานได้ 100% แล้ว และเป็นสถานีที่อยู่ใกล้กับโครงการเพียง 350 เมตรเท่านั้น

เดินมาอีกหน่อยจะเจอกับวัดมังกรฯ ตรงนี้เป็นทางเข้าวัดที่อยู่ฝั่งถนนเจริญกรุง ซึ่งตัววัดเข้าได้หลายทางค่ะ

ด้านในวัด ใหญ่โต กว้างขวางมาก ได้บรรยากาศสวยๆ ของวัดมาฝากกันด้วย (
พิกัด)

ออกมาเดินถนนเจริญกรุงต่อ ข้างๆ วัด มี Starbucks

เข้ามาทางถนนมังกร

ตรงเข้ามาเรื่อยๆ จะเจอกับถนนเจ้าคำรพ เลี้ยวซ้ายมาก็เจอโครงการแล้วค่ะ

ก่อนถึงโครงการ ตรงหัวมุมก็มีร้านอาหารอยู่

ในที่สุดก็มาถึงที่ตั้งของโครงการ Tiger Lane

ถ้าตรงไปทางซ้ายมือของโครงการจะไปเจอถนนเสือป่าค่ะ

ส่วน Sale Gallery อยู่ติดกับถนนเสือป่าเลย (
พิกัด)

บรรยากาศถนนเสือป่า เป็นถนนใหญ่ 4 เลน

โรงพยาบาลกลาง อยู่บนถนนเสือป่า ห่างจากโครงการเพียง 300 เมตรเท่านั้น (
พิกัด)

ถนนเสือป่าค่อนข้างจะขึ้นชื่อในเรื่องย่านช็อปปิ้งที่อยู่มานานจนเป็นตำนานหลายๆ ที่ทีเดียว
แยกนี้เป็นแยกเสือป่าตัดกับถนนเจริญกรุง (
พิกัด)

ผ่านแยกมาเป็นถนนราชวงศ์ ซึ่งจะมีร้านค้าริมทางอยู่ตลอดเส้นทางเลย

โรงแรม Grand China ตั้งอยู่หัวมุมถนนราชวงศ์ตัดกับถนนเยาวราช
สังเกตได้ว่า ย่านนี้ถนนทุกสายเชื่อมต่อกันไปหมดเลยค่ะ ถ้าหากใครจะมาเที่ยวย่านเยาวราช
และอยากได้บรรยากาศ China Town แบบเต็มที่ ก็คงต้องใช้เวลาเยอะพอสมควรทีเดียว

ถ้าเราเดินตรงมาตามถนนราชวงศ์ เรื่อยๆ จะมาเจอท่าเรือราชวงศ์ เป็นท่าเรือขนาดใหญ่ สามารถเดินทางไป Icon Siam ได้ (
พิกัด)
บรรยากาศภายในโครงการ และแบบบ้าน
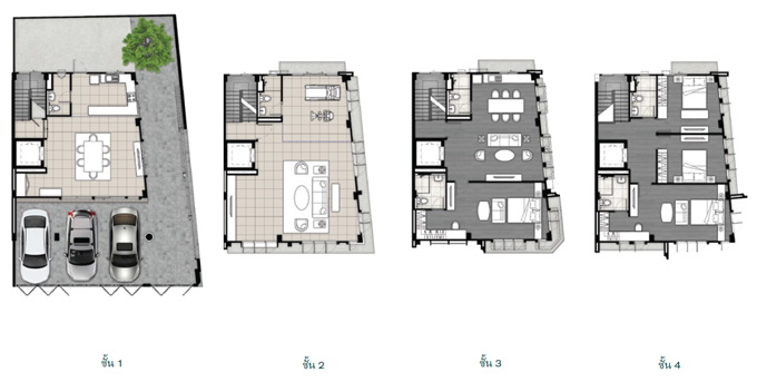
Tiger Lane เป็นโฮมออฟฟิศ 4 ชั้น ดีไซน์โมเดิร์นคลาสสิก มีลิฟต์โดยสารส่วนตัวทุกหลัง มีแบบบ้านทั้งหมด 2 แบบ คือแบบ ดิ อิมพีเรียล ขนาดที่ดิน 24 ตร.ว. พื้นที่ใช้สอย 248 ตร.ม. และ ดิ เอ็มเพอร์เรอร์ ขนาดที่ดิน 50 ตร.ว. พื้นที่ใช้สอย 402 ตร.ม. หน้าบ้านกว้างตั้งแต่ 5.5 - 12.3 เมตร สามารถจอดรถได้ 2-3 คัน ไปดูบรรยากาศโดยรวมภายในโครงการ แล้วเราจะพาไปชมตัวบ้านของแบบบ้าน ดิ อิมพีเรียล กันค่ะ

Master Plan ของโครงการ และบ้านที่เปิดขายในปัจจุบัน

แปลนบ้านของแบบบ้าน ดิ อิมพีเรียล

แปลนบ้านของแบบบ้าน ดิ เอ็มเพอร์เรอร์

สำหรับ Sales Gallery จะตั้งอยู่ติดกับถนนเสือป่า

ส่วนที่ตั้งโครงการต้องเข้ามาทางถนนคำรพ

ปัจจุบันโครงการสร้างเสร็จแล้วเปิดขายก่อน 5 ยูนิต ฝั่งขวามือ

ตัวบ้านสุดหรู สไตล์โมเดิร์นคลาสสิก

หรูหรา และสวยงามมีกลิ่นอายของความเป็นเชื้อสายจีนรวมอยู่ด้วย

ถนนเมนกว้าง รถสวนกันได้สะดวก บ้านแต่ละหลังรองรับที่จอดรถได้ 2-3 คัน

บ้านตัวอย่างของแบบบ้านดิ อิมพีเรียล เป็นทาวน์โฮม 4 ชั้น ขนาดที่ดิน 24 ตร.ว. พื้นที่ใช้สอย 248 ตร.ม.

พื้นที่หน้าบ้านสามารถจอดรถได้ 2 คัน ประตูทางเข้าเป็นบานเลื่อน

ด้านในบ้านจะออกแบบให้เป็นที่อยู่อาศัยก็ได้ หรือจะทำเป็นโฮมออฟฟิศก็ได้เช่นกันค่ะ
ด้านล่างเป็นพื้นที่เปิดโล่ง ยาวไปถึงด้านหลังบ้านแบบนี้

ฝั่งขวามือจะเป็นบันได และลิฟต์ ด้านหลังเป็นห้องน้ำ

สามารถออกแบบให้พื้นที่ส่วนนี้เป็นห้องครัวก็ได้

มีพื้นที่ชั้นวางของอยู่ใกล้ๆ กับห้องน้ำ และทำเป็นจุดควบคุมระบบไฟในบ้านได้

ห้องน้ำชั้นล่าง ให้โถสุขภัณฑ์ทั้งแบบนั่ง และแบบยืน

ลานซักล้างหลังบ้าน

สำหรับบ้านทุกหลังจะมีลิฟต์โดยสารให้ 1 ตัว

อยู่ส่วนเดียวกับบันไดทางขึ้น-ลงของบ้าน ดังรูปค่ะ

ชั้นสองออกแบบไว้สำหรับเป็นที่นั่งพนักงานก็ได้ หรือถ้าหากเป็นที่อยู่อาศัยก็สามารถทำเป็นห้องนั่งเล่นได้

พื้นที่ค่อนข้างกว้างขวางทีเดียว

สามารถออกแบบพื้นที่ใช้สอยได้อเนกประสงค์

สำหรับห้องน้ำชั้นสองจะกั้นทำห้องอาบน้ำให้ด้วย

ต่อกันที่ชั้นสาม ตัวแปลนบ้านจะเหมือนกับชั้นสอง แต่จะต่างกันที่พื้นชั้นนี้จะเป็นไม้ ซึ่งทำให้ดูมีความเป็น Residence ขึ้นมาหน่อย

หน้าต่างออกแบบเป็นระแนงสไตล์จีนๆ

มีห้องน้ำให้เหมือนกัน

ห้องน้ำชั้นนี้ก็แยกส่วนเปียกให้เช่นกัน

ต่อไปเป็นชั้น 4

ชั้นนี้จะเป็นส่วนที่พักอาศัย สามารถออกแบบให้เป็นห้องนอนได้

Master Bedroom มีระเบียงเล็กๆ ให้พร้อมระแนงเหล็กกั้น

ห้องน้ำในตัวขนาดใหญ่ แบ่งส่วนแห้งส่วนเปียก

และมีห้องนอนให้อีกห้องนึงค่ะ

มีผนังกั้นสามารถทำ Walk in Closet หรือออกแบบเป็นห้องอเนกประสงค์ก็ได้เช่นกัน
พาชิมคาเฟ่ร้านดังแถว "Tiger Lane"
นอกจากนี้ ย่านเสือป่า-เยาวราช ยังได้ขึ้นชื่อว่าเป็นเมืองแห่งคาเฟ่หลากหลายสไตล์ มีทั้งสไตล์ไทย-จีน และนานาชาติ เยอะแยะไปหมด ถ้าหากแปลงกายเป็นนักท่องเที่ยวแล้วมาเดินเที่ยวในย่านนี้ คงจะต้องแวะร้านคาเฟ่แทบไม่หวาดไม่ไหวแน่ๆ ทางเราก็เลยทำแผนที่คร่าวๆ ของร้านคาเฟ่ที่อยู่ใกล้เคียงกับโครงการในระยะ 1 กม. มาให้ดูกันด้านล่างนี้ และเอาร้านคาเฟ่ที่น่าสนใจมาฝากกันด้วยค่ะ

แผนที่ร้านคาเฟ่ที่อยู่รอบๆ โครงการในระยะ 1 กม. (
คลิกดูภาพใหญ่)
As Is: ร้านคาเฟ่สไตล์ Loft

ร้าน As is ตั้งอยู่ติดกับถนนพระราม 4 ใกล้ๆ กับแยกหมอมี อยู่ห่างจากโครงการประมาณ 850 เมตร

ด้านในเป็นร้านคาเฟ่ สไตล์ลอฟท์เก๋ๆ มีทั้งชา กาแฟ และเครื่องดื่มประเภทปั่น

เมนูขนมก็มีให้เลือกมากมาย เป็นขนมโฮมเมดน่าทานทีเดียว

บรรยากาศภายในร้านสไตล์ลอฟท์ แต่งผนังด้วยอิฐ และปูนเปลือย แต่งด้วยเหล็กโทนสีดำเพิ่มความขลัง

ด้านในมีชั้นลอย ทำที่นั่งให้เป็นแบบเค้าน์เตอร์บาร์

บรรยากาศโดยรวมภายในร้าน

ลองสั่งเครื่องดื่มมาลิ้มลองกันหน่อย พร้อมเมนูขนม Butter Tart รสชาติดีทีเดียว

ซ้ายมือคือชาไทยเย็น รสชาติกลมกล่อม ขวามือคือ Fruit infuse เป็นเครื่องดื่ม Signature ประจำร้าน

นอกจากนี้ก็ยังมีเมนูน้ำผลไม้ปั่น อย่างในภาพนี้ก็จะเป็นลิ้นจี่-บลูเบอร์รี่ปั่น
ทานพร้อมกับขนม Nutella Lava Cookie กับ Lemoncake เข้ากั๊น เข้ากัน
ใครสนใจไปเยี่ยมชมกันได้ที่ร้าน As Is
Google Map Woodbrook: คาเฟ่กึ่งโฮสเทล ริมแม่น้ำเจ้าพระยา
ในความเป็นย่านคนไทยเชื้อสายจีนเก่าแก่ ก็ยังมีร้านแนวๆ ให้เราได้แวะจิบเครื่องดื่มและนั่งชมวิวสวยๆ ของแม่น้ำเจ้าพระยามาฝากกัน ซึ่งร้าน Woodbrook เป็นกึ่งๆ Hostel และ Cafe สไตล์ตะวันตก ตั้งอยู่บนถนนทรงวาด ใกล้ๆ กับโครงการ Tiger Lane ประมาณ 1 กม. โดยร้านนี้จะมีมุมให้นั่งมองวิวแม่น้ำเพลินๆ ไปชมบรรยากาศกันค่ะ

หน้าร้านเป็นตึกแถว ตกแต่งในสไตล์ Modern ตัวร้านต้องเดินขึ้นไปที่ชั้น 3

บรรยากาศภายในร้านตกแต่งด้วยผนังปูนเปลือย วางร้านได้ดูโล่งโปร่งสบาย
ประตูด้านขวามือสามารถเดินออกไปชมวิวแม่น้ำเจ้าพระยาได้

ด้านนอกจะมีที่นั่งเป็นเค้าน์เตอร์บาร์ หย่อนขานั่งมองวิวกับเครื่องดื่มเก๋ๆ

มองเห็นไปถึง Icon Siam เลยทีเดียว

มีเครื่องดื่มเก๋ๆ กับอาหารเบาๆ

เป็นร้านแนวๆ เหมาะเอาไว้พักผ่อนวันหยุด เพลินดีเหมือนกันค่ะ
พิกัดร้าน Woodbrook (
Google map)
หลังจากเดินไปตามเส้นทางของถนนเจริญกรุงไปจนถึงโครงการ และนั่งเรือชิวๆ กันที่ท่าเรือราชวงศ์แล้ว เราก็ยังเก็บภาพบรรยากาศสวยๆ ของร้านคาเฟ่อื่นๆ และสถานที่สำคัญๆ ในย่านนี้มาฝากกันอีกด้วยค่ะ ตามไปดูกันเลย

ร้านคาเฟ่ Jade สไตล์จีนโบราณ มีทั้งชา กาแฟ เครื่องดื่มอื่นๆ และขนมหลากหลายชนิด

ร้านซงเต๋อ คาเฟ่สไตล์จีนดั้งเดิมแท้ๆ

บรรยากาศเยาวราชตอนกลางคืน ดูคึกคักเป็นพิเศษ

ขึ้นชื่อว่าเยาวราช ก็ต้องไปกินหูฉลาม มีทั้งแบบร้านธรรมดา และในภัตตาคารหรูๆ

โรงพยาบาลสมิติเวช ไชน่าทาวน์

ศาลเจ้าแม่กวนอิม มูลนิธิเทียนฟ้า

วัดไตรมิตรวิทยารามวรวิหาร
ลงทะเบียน สอบถามเพิ่มเติม
สำหรับโครงการ "Tiger Lane" ปัจจุบันก่อสร้างเสร็จแล้ว และกำลังเปิดขาย 5 ยูนิตพิเศษ ในราคาเริ่มต้น 38 ล้านบาท โดยผู้ที่สนใจสามารถลงทะเบียนเพื่อนัดหมายเข้าเยี่ยมชมโครงการ และรับสิทธิพิเศษก่อนใครได้ที่ลิงก์ด้านล่างนี้เลย
สอบถามรายละเอียดเพิ่มเติมได้ที่ โทร. 1685 หรือทางเว็บไซต์
www.sansiri.com