ฮาร์ท สุขุมวิท 62/1 บางจาก สเตชั่น (Heart Sukhumvit 62/1 Bangchak Station)...ใกล้ BTS เพียง 650 ม.
Chewa Heart ซึ่งเป็นบริษัทร่วมทุนระหว่าง
Condo Man และ
บมจ.ชีวาทัย ได้เปิดตัว ทาวน์โฮมคอนเซ็ปต์ใหม่ในทำเลคอนโดมิเนียม
ฮาร์ท สุขุมวิท 62/1 บางจาก สเตชั่น (Heart Sukhumvit 62/1 Bangchak Station) ทาวน์โฮมขนาด 3 ชั้นครึ่ง ที่ให้คุณเป็นเจ้าของทาวน์โฮมพร้อมที่ดินในทำเลคอนโดมิเนียม ด้วยทำเลที่ยอดเยี่ยม เพียง 650 เมตร จากรถไฟฟ้า BTS สถานีบางจาก เอกสิทธิ์เพียง 9 ยูนิตเท่านั้น 2 ยูนิตด้านหน้าเป็นโฮมออฟฟิศ ส่วนอีก 7 ยูนิตด้านในเป็นที่อยู่อาศัย สามารถปรับเปลี่ยนได้ มีแบบบ้าน 1 แบบ ที่ดินเริ่มต้น 20 - 32 ตร.ว. พื้นที่ใช้สอย 230 ตร.ม. 2 ที่จอดรถ และลิฟท์ส่วนตัว พร้อมพื้นที่ส่วนกลางทั้ง สระว่ายน้ำ และสวน บนเนื้อที่โครงการ 317 ตร.ว.
ราคาเริ่มต้น
ราคาเริ่มที่ 17.9 ล้านบาท*
ทำเล และสถานที่ตั้งใกล้เคียง

แผนที่ของโครงการ ฮาร์ท สุขุมวิท 62/1 บางจาก สเตชั่น

ภาพแสดงระยะห่างจาก BTS บางจาก ถึงโครงการ
แผนที่ Google Maps
โครงการ
ฮาร์ท สุขุมวิท 62/1 บางจาก สเตชั่น (Heart Sukhumvit 62/1 Bangchak Station) ตั้งอยู่ในซอยสุขุมวิท 62/1 แขวงบางจาก เขตพระโขนง กรุงเทพฯ 10260 ห่างจากหน้าถนนใหญ่ประมาณ 400 เมตร และห่างจากรถไฟฟ้า BTS สถานีบางจาก เพียง 650 เมตร สามารถเชื่อมต่อกับซอยอื่นๆ ได้หลากหลายเส้นทาง เช่น เชื่อมต่อไปซอยสุขุมวิท 62 เพื่อออกสู่ถนนสุขุมวิท และยังเชื่อมต่อไปซอยพงษ์เวชอนุสรณ์ได้อย่างสะดวก อีกทั้งยังอยู่ใกล้ทางพิเศษเฉลิมมหานครอีกด้วย
ไม่ไกลจากสถานที่สำคัญ และศูนย์การค้าต่างๆ อาทิ
- M Tower
- DKSH (Thailand) Company Limited
- วิทยาลัยเทคโนโลยีกรุงเทพ
- Tesco Lotus อ่อนนุช
- ปิยรมย์ พาร์ค
จุดเด่นของโครงการฮาร์ท สุขุมวิท 62/1 บางจาก สเตชั่น
- ทาวน์โฮม 3 ชั้นครึ่ง คอนเซ็ปต์ใหม่ในทำเลคอนโดมิเนียม
- ห่างจากรถไฟฟ้า BTS สถานีบางจาก เพียง 650 เมตร
- เรียบหรู และทันสมัยด้วยการใช้อลูมิเนียมลายไม้ด้านนอก และกระจกใสด้านใน ช่วยเรื่อง privacy รวมถึงลดแสงที่จะเข้าตัวอาคาร
- ทำเลศักยภาพ ซอยสุขุมวิท 62 ห่างจากถนนสุขุมวิทเพียง 400 เมตร
- มีความเป็นส่วนตัวสูงด้วยยูนิตเพียง 9 ยูนิต
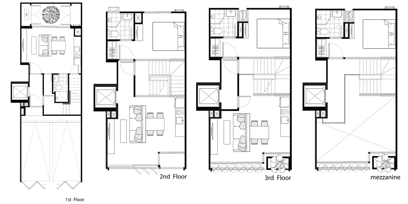
รูปแบบบ้าน
แบบบ้านในโครงการปัจจุบัน มี 1 แบบ คือ
ทาวน์โฮม 3 ชั้นครึ่ง - หน้ากว้าง 5.25 เมตร พื้นที่ใช้สอย 230 ตร.ม. ขนาดที่ดินประมาณ 20-32 ตร.ว. ที่จอดรถ 2 คันต่อ Unit
บรรยากาศภายในบ้าน
สาธารณูปโภคภายในโครงการ
- สระว่ายน้ำส่วนกลางขนาด 20.6 ตร.ม. ที่ให้คุณได้ใช้เวลาพักผ่อนหย่อนใจในวันหยุดแบบสบายๆ หรือจะมาออกกำลังกายเบาๆ ก็สามารถทำได้
- ศูนย์กลางสำหรับลูกบ้าน Heart ทุกโครงการ ที่พร้อมจะให้ความช่วยเหลือทุกเมื่อที่ต้องการ รวมทั้งยังเป็นพื้นที่พูดคุยแลกเปลี่ยน ร่วมแชร์เรื่องราวดีๆ ให้แก่กัน
- ระบบรักษาความปลอดภัยตลอด 24 ชั่วโมง ด้วยเจ้าหน้าที่รักษาความปลอดภัยและกล้องวงจรปิด ที่จะคอยดูแลให้คุณสบายใจทุกชั่วขณะไม่ว่าจะหลับหรือตื่น
อัปเดตความเคลื่อนไหวโครงการ
โครงการ ฮาร์ท สุขุมวิท 62/1 บางจาก สเตชั่น พิเศษ! ช่วง Presale ถึงวันที่ 30 มิถุนายน รับส่วนลดพิเศษ 500,000 บาท **เริ่มต้นเพียง 17.9 ล้านบาท
สอบถามรายละเอียดเพิ่มเติม โทร. 081-554-4745 หรือทางเว็บไซต์
http://www.heartsukhumvit.com