ชวนชื่น แกรนด์ ราชพฤกษ์ พระราม 5 (Chuan Chuen Grand Ratchapruek - rama 5) ... Modern Luxury
บริษัท มั่นคงเคหะการ จำกัด ได้เปิดตัวบ้านเดี่ยวโครงการใหม่ "
ชวนชื่น แกรนด์ ราชพฤกษ์ พระราม 5 (Chuan Chuen Grand Ratchapruek - rama 5)" บ้านเดี่ยว 2 ชั้น โครงการใหม่ ติดถนนนครอินทร์ สุนทรียภาพแห่งการใช้ชีวิต ที่สุดของทำเล เชื่อมติดชีวิตเมือง บ้าน Modern Luxury Style มีทั้งหมด 7 แบบ บนพื้นที่ 21-1-42.8 ไร่ ขนาดพื้นที่ใช้สอย 149 - 208 ตร.ม. มีจำนวนบ้านทั้งหมด 108 หลัง ทำเลโดดเด่นหน้าโครงการติดถนนนครอินทร์ ห่างจากสะพานพระราม 5 เพียง 700 เมตร และไม่ไกลจากรถไฟฟ้าสายสีม่วง (ติวานนท์) เพียง 3.8 กม พร้อมสิ่งอำนวยความสะดวก ทั้งคลับเฮ้าส์ สระว่ายน้ำ ฟิตเนส อุ่นใจด้วยระบบรักษาความปลอดภัยแบบ Double Security Systems ติดตั้งสัญญาณกันขโมย และ CCTV รอบโครงการ
ราคาเริ่มต้น
ราคาเริ่มต้นที่ 9 ล้านบาท
ทำเล และสถานที่ตั้งใกล้เคียง

แผนที่โครงการ ชวนชื่น แกรนด์ ราชพฤกษ์ พระราม 5
โครงการตั้งอยู่ที่ ถนนนครอินทร์ ตำบลบางไผ่ อำเภอเมืองนนทบุรี จังหวัดนนทบุรี 11000 มีทำเลโดดเด่นเนื่องจากทางเข้าโครงการติดหน้าถนนนครอินทร์ เชื่อมต่อกับถนนหลักหลายสาย เช่น ถนนราชพฤกษ์ ถนนบางกรวย-ไทรน้อย ถนนติวานนท์และถนนพิบูลสงคราม อีกทั้งอยู่ใกล้สะพานพระราม 5 เพียง 700 เมตร และไม่ไกลจากรถไฟฟ้าสายสีม่วง (ติวานนท์) เพียง 3.8 กม.
ไม่ไกลจากสถานที่สำคัญ และศูนย์การค้าต่างๆ เช่น
- เดอะ วอล์ค ราชพฤกษ์
- เดอะเซอร์เคิล
- โฮมโปร
- แม็คโคร
- โฮมเวิร์ค
- โรงพยาบาลศรีธัญญา
- โรงเรียนอนุบาลเด่นหล้า
จุดเด่นของโครงการชวนชื่น แกรนด์ ราชพฤกษ์ - พระราม 5
จุดเด่นของโครงการ ชวนชื่น แกรนด์ ราชพฤกษ์ พระราม 5 คือ ที่สุดของทำเล ติดถนนนครอินทร์ เชื่อมติดชีวิตเมือง ห่างจากสะพานพระราม 5 เพียง 700 เมตร และไม่ไกลจากรถไฟฟ้าสายสีม่วง สถานีแยกติวานนท์ เพียง 3.8 กม ตัวโครงการใกล้ศูนย์การค้าเดอะวอล์ค, เดอะเซอร์เคิล พร้อมสิ่งอำนวยความสะดวกภายในโครงการ ทั้ง Clubhouse, Fitness , pool, Tropical Park อุ่นใจด้วยระบบรักษาความปลอดภัยแบบ Double Security Systems ประตูเข้าออกระบบ Easy Pass ติดตั้งสัญญาณกันขโมย Magnetic & Motion Sensor ทุกหลัง และกล้อง CCTV รอบโครงการ พร้อม รปภ. ดูแลตลอด 24 ชม.
รูปแบบบ้าน
แบบบ้านในโครงการปัจจุบันมี 7 แบบ ดังนี้
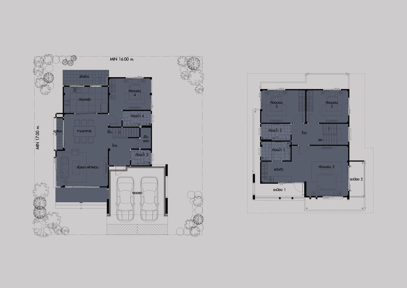
1. แบบบ้านพรรณนารา - บ้านเดี่ยว 2 ชั้น ขนาด 4 ห้องนอน 3 ห้องน้ำ 1 ห้องนั่งเล่น 1 ห้องอาหาร 1 ครัวไทย ที่จอดรถ 2 คัน (
คลิกที่นี่เพื่อดูแปลนบ้านพรรณนารา)

แบบบ้านพรรณนารา
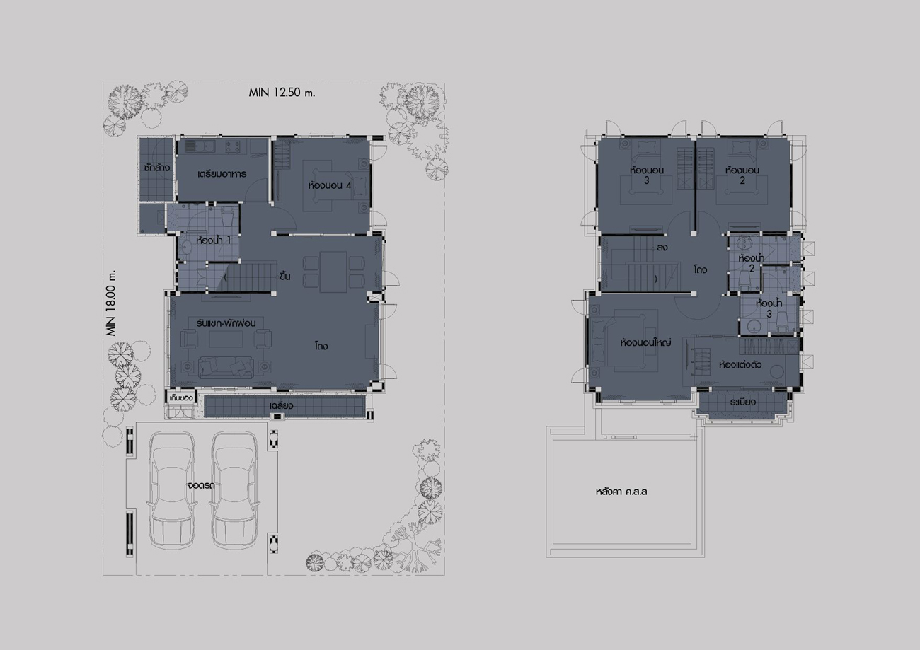
2. แบบบ้านเพชรแพรวา - บ้านเดี่ยว 2 ชั้น ขนาด 4 ห้องนอน 3 ห้องน้ำ 1 ห้องนั่งเล่น 1 ห้องอาหาร 1 ครัวไทย ที่จอดรถ 2 คัน (
คลิกที่นี่เพื่อดูแปลนบ้านเพชรแพรวา)

แบบบ้านเพชรแพรวา
3. แบบบ้านพิชชาภา - บ้านเดี่ยว 2 ชั้น ขนาด 3 ห้องนอน 3 ห้องน้ำ 1 ห้องนั่งเล่น 1 ห้องอาหาร 1 ครัวไทย ที่จอดรถ 2 คัน (
คลิกที่นี่เพื่อดูแปลนบ้านพิชชาภา)

แบบบ้านพิชชาภา
4. แบบบ้านพรรัมภา - บ้านเดี่ยว 2 ชั้น ขนาด 4 ห้องนอน 3 ห้องน้ำ 1 ห้องนั่งเล่น 1 ห้องอาหาร 1 ครัวไทย ที่จอดรถ 2 คัน (
คลิกที่นี่เพื่อดูแปลนบ้านพรรัมภา)

แบบบ้านพรรัมภา
5. แบบบ้านพิมพ์พิดา - บ้านเดี่ยว 2 ชั้น ขนาด 4 ห้องนอน 3 ห้องน้ำ 1 ห้องนั่งเล่น 1 ห้องอาหาร 1 ครัวไทย ที่จอดรถ 2 คัน (
คลิกที่นี่เพื่อดูแปลนบ้านพิมพ์พิดา)

แบบบ้านพิมพ์พิดา
6. แบบบ้านพลอยไพลิน - บ้านเดี่ยว 2 ชั้น ขนาด 3 ห้องนอน 3 ห้องน้ำ 1 ห้องนั่งเล่น 1 ห้องอาหาร 1 ครัวไทย ที่จอดรถ 2 คัน (
คลิกที่นี่เพื่อดูแปลนบ้านพลอยไพลิน)

แบบบ้านพลอยไพลิน
7. แบบบ้านแพรชมภู - บ้านเดี่ยว 2 ชั้น ขนาด 3 ห้องนอน 3 ห้องน้ำ 1 ห้องนั่งเล่น 1 ห้องอาหาร 1 ครัวไทย ที่จอดรถ 2 คัน (
คลิกที่นี่เพื่อดูแปลนบ้านแพรชมภู)

แบบบ้านแพรชมภู
สาธารณูปโภคภายในโครงการ
- Clubhouse
- Fitness
- Pool
- Tropical Park
- ระบบรักษาความปลอดภัยแบบ Double Security Systems ประตูเข้าออกระบบ Easy Pass
- ติดตั้งสัญญาณกันขโมย Magnetic & Motion Sensor ทุกหลัง
- กล้อง CCTV รอบโครงการ พร้อม รปภ. ดูแลตลอด 24 ชม.
อัพเดตความเคลื่อนไหวโครงการ
VIP Day 14-15 พ.ค. นี้ ลงทะเบียนรับสิทธิพิเศษก่อนใคร ได้ที่ลิงก์ด้านล่างนี้
สอบถามรายละเอียดเพิ่มเติม โทร. 1622 กด 01 หรือทางเว็บไซต์
www.mk.co.th ดู บ้าน ทาวน์เฮ้าส์ ทาวน์โฮม ของมั่นคงเคหะการ ทุกโครงการ