ประเมินวงเงินรู้ผลใน 3 นาที
กับ กรุงศรี ออโต้ พร้อมสตาร์ท

เริ่มประเมินวงเงินพร้อมสตาร์ท
ผ่านมือถือ สแกนเลย

ดูวงเงินพร้อมสตาร์ทที่ได้รับ

  • บ้าน
  • บ้าน
  • ค้นหาแบบละเอียด
  • วิลลา อัลเบลโล่ พระราม 9 - ศรีนครินทร์ (Villa Albero Rama 9 - Srinakarin) ทาวน์โฮม 3 ชั้น หน้ากว้างพิเศษ 7.5 เมตร

    8 ก.ค. 58 7,798
    วิลลา อัลเบลโล่ พระราม 9 - ศรีนครินทร์ (Villa Albero Rama 9 - Srinakarin)... ทาวน์โฮม 3 ชั้น
    บริษัท บางกอกแลนด์ จำกัด (มหาชน) ได้เปิดตัวทาวน์โฮมโครงการใหม่ "วิลลา อัลเบลโล่ พระราม 9 - ศรีนครินทร์ (Villa Albero Rama 9 - Srinakarin)" บนทำเลทองย่านศรีนครินทร์ - พระราม 9 ทาวน์เฮ้าส์ 3 ชั้น ที่โดดเด่นด้วยสถาปัตยกรรมที่ทันสมัย มีรสนิยม ด้วยดีไซน์ให้มีหน้ากว้างพิเศษกว่าใคร 7.5 เมตร ภายใต้สังคมคุณภาพที่ถูกเนรมิตให้เป็นทาวน์ วิลลา จำนวน 48 ยูนิต และโมเดิร์นช็อปเฮ้าส์จำนวน 7 ยูนิต สำหรับเฟสแรก บนพื้นที่ทั้งหมดจำนวน 7 ไร่ ลักษณะโครงการเป็นทาวน์โฮม 3 ชั้น มีแบบบ้าน 1 แบบ พื้นที่ใช้สอย 177 ตร.ม. 3 ห้องนอน 3 ห้องน้ำ 3 ที่จอดรถ แวดล้อมด้วยสิ่งอำนวยความสะดวกอย่างครบครัน อยู่อาศัยด้วยความมั่นใจกับการดูแลด้วยระบบรักษาความปลอดภัยตลอด 24 ชั่วโมง
    ราคาเริ่มต้น
    ราคาเริ่มที่ 4.9 ล้านบาท

    ภาพจำลองบรรยากาศภายในโครงการ
    ทำเลที่ตั้งและสถานที่ใกล้เคียง

    แผนที่ของโครงการ วิลลา อัลเบลโล่ พระราม 9 - ศรีนครินทร์
    โครงการ ตั้งอยู่ที่ 33/5 ถนนกรุงเทพกรีฑา แขวงสะพานสูง เขตสะพานสูง กรุงเทพมหานคร 10240 เชื่อมต่อกับถนนหลักหลายสายคือ คือ ถนนศรีนครินทร์, ถนนหัวหมาก(ซอยรามคำแหง 24), ถนนเลียบมอเตอร์เวย์ และถนนวงแหวนกาญจนาภิเษก สามารถเข้า-ออกถนนกรุงเทพกรีฑาได้หลายทางจากถนนเลียบมอเตอร์เวย์คือใช้ซอยกรุงเทพกรีฑา 8 หรือซอยกรุงเทพกรีฑา 20 ก็ได้ อีกทั้งยังอยู่ไม่ไกลจากเส้นรถไฟฟ้าสายสีเหลือง (ในอนาคต) หรือจะเป็นโครงการทางด่วน (ศรีนครินทร์ - ร่มเกล้า (ในอนาคต) ก็ได้เช่นกัน ไม่ไกลจากสถานที่สำคัญ และศูนย์การค้าต่างๆ เช่น เทสโก้ โลตัสตลาด, สนามกอล์ฟยูนิโก้, สนามกอล์ฟกรุงเทพกรีฑา, มหาวิทยาลัยรามคำแหง, โรงพยาบาลสมิติเวชศรีนครินทร์, โรงเรียนนานาชาติไบรตัน คอลเลจ, โรงแรม เดอะแกรนด์โฟร์วิงส์คอนเวนชั่น, เดอะไนน์, ธัญญะช็อปปิ้งมอลล์, ซีคอนสแควร์ และพาราไดช์พาร์ค

    โครงการไม่ไกลจากเทสโก้ โลตัสตลาด, สนามกอล์ฟยูนิโก้, มหาวิทยาลัยรามคำแหง
    และ โรงพยาบาลสมิติเวชศรีนครินทร์
    จุดเด่นโครงการวิลลา อัลเบลโล่ พระราม 9 - ศรีนครินทร์
    ทาวน์เฮ้าส์ 3 ชั้น ที่โดดเด่นด้วยสถาปัตยกรรมที่ทันสมัย มีรสนิยม ด้วยดีไซน์ให้มีหน้ากว้างพิเศษกว่าใคร 7.5 เมตร เพื่อให้เกิดประโยชน์ใช้สอยที่ยืดหยุ่นมากขึ้นจอดรถได้สูงสุดถึง 3 คัน ภายในตัวบ้านมีพื้นที่กว้างขวาง ตอบสนองการใช้งานได้อย่างลงตัวด้วยพื้นที่ใช้สอย 177 ตารางเมตร ให้ความรู้สึกอบอุ่นด้วยการออกแบบสไตล์เอิร์ธโทน สัมผัสบรรยากาศร่มรื่นทุกหลัง บนพื้นที่สีเขียว ที่เนรมิตให้คุณได้อยู่อาศัย ในบรรยากาศร่มรื่นของสวนขนาดใหญ่บริเวณทั้งด้านหน้า-ด้านหลัง อีกทั้งยังประหยัดพลังงานด้วยหลอดไฟแอลอีดีทั้งหลัง
    รูปแบบบ้าน
    แบบบ้านในโครงการปัจจุบัน มี 1 แบบ คือ
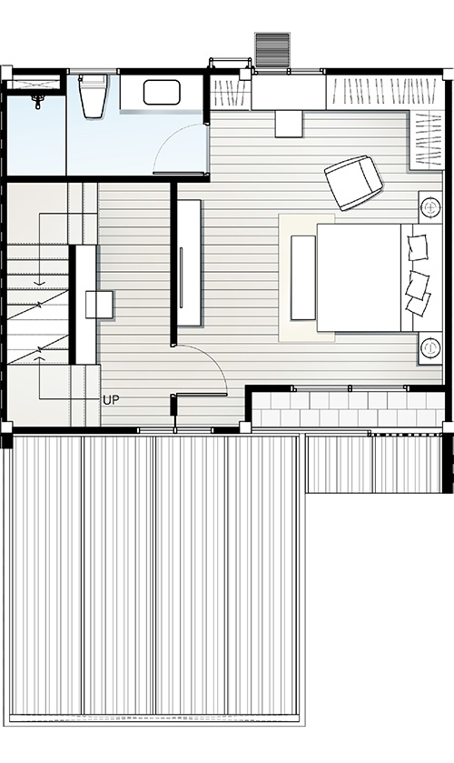
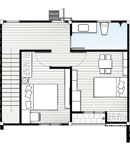
    ทาวน์โฮม 3 ชั้น - พื้นที่ใช้สอย 177 ตารางเมตร บนขนาดที่ดิน 29-53 ตารางวา ดีไซน์หน้ากว้างพิเศษ 7.5 เมตร 3 ห้องนอน 3 ห้องน้ำ จอดรถได้ 3 คัน 

    ทาวน์โฮม 3 ชั้น
               
    Floor Plan ชั้น 1                          Floor Plan ชั้น 2                               Floor Plan ชั้น 3
    บรรยากาศภายในบ้าน
    สาธารณูปโภคภายในโครงการ

    ภาพจำลองบรรยากาศภายในโครงการ
    • ระบบรักษาความปลอดภัยด้วยกล้องวงจรปิด (CCTV) 
    • เจ้าหน้าที่รักษาความปลอดภัย 24 ชั่วโมง
    อัพเดตความเคลื่อนไหวโครงการ
    ทาวน์โฮม 3 ชั้น พื้นที่ใช้สอย 177 ตารางเมตร ราคาเริ่มที่ 4.9 ล้านบาท ท่านที่สนใจสามารถลงทะเบียนเพื่อรับข้อมูลข่าวสารเพิ่มเติมได้ที่ลิงก์ด้านล่างนี้
    สอบถามรายละเอียดเพิ่มเติม โทร. 083-097-5333, 02-736-2442-3 หรือทางเว็บไซต์ www.villaalbero.com

    ข่าว-โปรโมชั่นล่าสุดอื่นๆ

เว็บไซต์นี้มีการเก็บคุกกี้เพื่อเพิ่มความพึงพอใจในการใช้งานเว็บไซต์ และช่วยให้เราปรับปรุง และนำเสนอเนื้อหาตรงตามความสนใจของท่าน ท่านสามารถดู Privacy Notice และ ดู Cookies Policy ของเราได้ ที่นี่ ทั้งนี้ ท่านจะยินยอมให้เราเก็บคุกกี้ทั้งหมด หรือให้เก็บแค่บางส่วนโดยการคลิกเลือก ตั้งค่า

ท่านสามารถเลือกให้ความยินยอมการเก็บคุกกี้เป็นเรื่องๆ ได้ที่นี่

เมื่อคุณเข้าชมเว็บไซต์ หรือแอปพลิเคชั่น checkraka เราอาจจัดเก็บ หรือดึงข้อมูลจากเบราว์เซอร์ของคุณในรูปแบบของคุกกี้ และเทคโนโลยีอื่นที่คล้ายคลึง เช่น tag และ pixel (เรียกรวมกันว่า “คุกกี้”) ซึ่งมักเป็นข้อมูลที่ไม่สามารถระบุตัวตนได้โดยตรง แต่ช่วยให้คุณใช้งานเว็บไซต์ได้ปลอดภัย และตรงตามความต้องการมากขึ้น คุณอาจไม่ยินยอมให้เราเก็บคุกกี้บางประเภทได้ โดยการคลิกตามหัวข้อข้างล่างนี้

ประเภทคุกกี้
อ่านเพิ่มเติม ที่นี่
ยินยอม / ไม่ยินยอม
คุกกี้ที่จำเป็นต้องมีเสมอ
(Strictly Necessary)
คุกกี้สำหรับการใช้งานเว็บไซต์
(Functionality)
คุกกี้เพื่อเพิ่มประสิทธิภาพและวิเคราะห์
(Performance & Analytics)
คุกกี้เพื่อการตลาด
(Marketing)