ประเมินวงเงินรู้ผลใน 3 นาที
กับ กรุงศรี ออโต้ พร้อมสตาร์ท

เริ่มประเมินวงเงินพร้อมสตาร์ท
ผ่านมือถือ สแกนเลย

ดูวงเงินพร้อมสตาร์ทที่ได้รับ

  • บ้าน
  • บ้าน
  • ค้นหาแบบละเอียด
  • T59 เวสต์เกต (T59 Westgate) โฮมออฟฟิศ 5 ชั้น ติดถนนใหญ่ ใกล้รถไฟฟ้า

    18 มิ.ย. 58 7,618
    T59 เวสต์เกต (T59 Westgate) ... โฮมออฟฟิศ 5 ชั้น ติดถนนใหญ่ ใกล้รถไฟฟ้า
    บริษัท ทีพร็อพเพอร์ตี้ ดีเวลลอปเม้นท์ จำกัด ได้เปิดตัวโฮมออฟฟิศโครงการใหม่ "T59 เวสต์เกต (T59 Westgate)" บนทำเลศักยภาพ ติดถนนใหญ่รัตนาธิเบศร์ ใกล้รถไฟฟ้าสายสีม่วง สถานีสามแยกบางใหญ่ โครงการ Home Office 5 ชั้น พร้อมลิฟต์โดยสาร และที่จอดรถ 4 คัน ให้คุณได้ครอบครองที่ดินบนพื้นที่ที่ดีที่สุด และหาไม่ได้อีกแล้ว สังคมแห่งธุรกิจเพียง 59 หลัง ปัจจุบันมีแบบบ้านให้เลือกทั้งหมด 2 แบบ พื้นที่ใช้สอย 250 ตร.ม. เนื้อที่โครงการทั้งหมด 6-3-43 ไร่ แวดล้อมไปด้วยสิ่งอำนวยความสะดวกครบครัน ทั้งสวนส่วนกลาง และระบบรักษาความปลอดภัย CCTV ตลอด 24 ชั่วโมง 
    ราคาเริ่มต้น
    ราคาเริ่มที่ 13.9 ล้านบาท

    ภาพจำลองประตูทางเข้าโครงการ
    ทำเลที่ตั้งและสถานที่ใกล้เคียง

    แผนที่ของโครงการ T59 Westgate
    โครงการตั้งอยู่ที่ ถนนรัตนาธิเบศร์ ตำบลบางรักพัฒนา อำเภอเมืองนนทบุรี จังหวัดนนทบุรี 11110 โครงการติดถนนใหญ่รัตนาธิเบศร์ ซึ่งทำเลนี้ ในอนาคตกำลังจะกลายเป็นทำเลธุรกิจการค้า เชื่อมต่อกับถนนหลักคือ ถนนวงแหวนกาญจนาภิเษก ถนนราชพฤกษ์ ถนนบางกรวย-ไทรน้อย และถนนงามวงศ์วาน อีกทั้งยังใกล้เส้นรถไฟฟ้าสายสีม่วง สถานีสามแยกบางใหญ่เพียง 250 เมตรเท่านั้น หรือเข้าสู่ใจกลางเมืองโดยใช้ทางด่วนขั้นที่ 2 ด่านงามวงศ์วานก็ได้เช่นกัน ไม่ไกลจากสถานที่สำคัญ และศูนย์การค้าต่างๆ เช่น เซ็นทรัล เวสต์เกต, Big C บางใหญ่, โรงพยาบาลเกษมราษฎร์ รัตนาธิเบศร์, อินเด็กซ์ ลิฟวิ่งมอลล์, ตลาดบางใหญ่, บิ๊กคิง บางใหญ่, เซ็นทรัล รัตนาธิเบศร์, ศาลากลางนนทบุรี และเอสพลานาด งามวงศ์วาน-แคราย

     โครงการไม่ไกลจากเซ็นทรัล เวสต์เกต และโรงพยาบาลเกษมราษฎร์ รัตนาธิเบศร์

    โครงการไม่ไกลจาก Big C บางใหญ่ และอินเด็กซ์ ลิฟวิ่งมอลล์
    จุดเด่นโครงการ เสนา วิลล์ รามอินทรา
    จุดเด่นของโครงการ คือ มี Home Office เพียง 59 หลัง เท่านั้น ภายในอาณาเขตแห่งความมั่งคั่ง บนทำเลที่เจิดจรัสที่สุด ติดถนนรัตนาธิเบศร์ และใกล้สถานีรถไฟฟ้าสามแยกบางใหญ่ ด้วยแนวคิดในการออกแบบ Home Office พร้อมลิฟต์โดยสาร และที่จอดรถ 4 คัน ให้คุณได้ครอบครองที่ดินบนพื้นที่ที่ดีที่สุด และหาไม่ได้อีกแล้ว ทั้งยังมีสิ่งอำนวยความสะดวก สวนส่วนกลาง และระบบรักษาความปลอดภัย CCTV ตลอด 24 ชั่วโมง
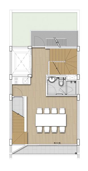
    รูปแบบบ้าน
    แบบบ้านในโครงการปัจจุบัน มี 2 แบบ ดังนี้ 
    1. Home Office ที่จอดรถ 4 คัน - พื้นที่ใช้สอย 250 ตร.ม. 5 ห้องน้ำ

    ภาพจำลอง Home Office
    แปลนห้อง 1st Floor     2nd Floor     3rd Floor     4th Floor     5th Floor
    2. Office Building ที่จอดรถ 2 คัน - พื้นที่ใช้สอย 250 ตร.ม. 5 ห้องน้ำ

    ภาพจำลอง Office Building
    แปลนห้อง 1st Floor     2nd Floor     3rd Floor     4th Floor     5th Floor
    บรรยากาศภายในบ้าน
    สาธารณูปโภคภายในโครงการ
    • สวนส่วนกลาง
    • ที่จอดรถ
    • รักษาความปลอดภัยด้วยกล้องวงจรปิด (CCTV) 
    • เจ้าหน้าที่รักษาความปลอดภัยตลอด 24 ชั่วโมง
    อัพเดตความเคลื่อนไหวโครงการ
    ท่านที่สนใจสามารถเดินทางไปชมสถานที่จริง และสอบถามโปรโมชั่นได้ที่สำนักงานขายโครงการ เปิดทุกวัน 09.00 - 18.00 น. ไม่เว้นวันหยุด
    สอบถามรายละเอียดเพิ่มเติม โทร. 090-909-6000 หรือทางเว็บไซต์ http://t59westgate.com
    ดูรายละเอียดโครงการ T59 เวสต์เกต (T59 Westgate)

    ข่าว-โปรโมชั่นล่าสุดอื่นๆ

เว็บไซต์นี้มีการเก็บคุกกี้เพื่อเพิ่มความพึงพอใจในการใช้งานเว็บไซต์ และช่วยให้เราปรับปรุง และนำเสนอเนื้อหาตรงตามความสนใจของท่าน ท่านสามารถดู Privacy Notice และ ดู Cookies Policy ของเราได้ ที่นี่ ทั้งนี้ ท่านจะยินยอมให้เราเก็บคุกกี้ทั้งหมด หรือให้เก็บแค่บางส่วนโดยการคลิกเลือก ตั้งค่า

ท่านสามารถเลือกให้ความยินยอมการเก็บคุกกี้เป็นเรื่องๆ ได้ที่นี่

เมื่อคุณเข้าชมเว็บไซต์ หรือแอปพลิเคชั่น checkraka เราอาจจัดเก็บ หรือดึงข้อมูลจากเบราว์เซอร์ของคุณในรูปแบบของคุกกี้ และเทคโนโลยีอื่นที่คล้ายคลึง เช่น tag และ pixel (เรียกรวมกันว่า “คุกกี้”) ซึ่งมักเป็นข้อมูลที่ไม่สามารถระบุตัวตนได้โดยตรง แต่ช่วยให้คุณใช้งานเว็บไซต์ได้ปลอดภัย และตรงตามความต้องการมากขึ้น คุณอาจไม่ยินยอมให้เราเก็บคุกกี้บางประเภทได้ โดยการคลิกตามหัวข้อข้างล่างนี้

ประเภทคุกกี้
อ่านเพิ่มเติม ที่นี่
ยินยอม / ไม่ยินยอม
คุกกี้ที่จำเป็นต้องมีเสมอ
(Strictly Necessary)
คุกกี้สำหรับการใช้งานเว็บไซต์
(Functionality)
คุกกี้เพื่อเพิ่มประสิทธิภาพและวิเคราะห์
(Performance & Analytics)
คุกกี้เพื่อการตลาด
(Marketing)