
เพล็กซ์ เรสซิเดนซ์ นวมินทร์ 111 (Plex Residence Nawamin 111) ... ทาวน์โฮมสไตล์ Modern Luxury
บริษัท เรียลแอสเสท ดีเวลลอปเมนท์ จำกัด ได้เปิดตัวทาวน์โฮมโครงการใหม่ "
เพล็กซ์ เรสซิเดนซ์ นวมินทร์ 111 (Plex Residence Nawamin 111)" ทาวน์โฮม 3 ชั้น แนวคิดใหม่ ใกล้ CDC สไตล์ Modern Luxury ที่ให้ความรู้สึกสไตล์บ้านเดี่ยว สามารถปรับพื้นที่ชั้นล่างเป็นห้องนอนผู้สูงอายุ หรือห้องอเนกประสงค์ชั้น 2 ก็สามารถปรับได้หลายแบบ โครงการนี้มีลักษณะเป็นทาวน์โฮม 3 ชั้น มีเนื้อที่บ้านตั้งแต่ 22 - 40.7 ตร.ว. พื้นที่ใช้สอย 190 ตร.ม. จำนวนทั้งหมด 93 ยูนิต บนพื้นที่โครงการ 9 ไร่ 3 งาน 94 ตร.ว. พร้อมสิ่งอำนวยความสะดวกครบครันและระบบรักษาความปลอดภัย CCTV ตลอด 24 ชั่วโมง
ราคาเริ่มต้น
ราคาเริ่มต้นที่ 6 ล้านบาท
ภาพจำลองบรรยากาศทางเข้าโครงการ ทำเลที่ตั้ง และสถานที่ใกล้เคียง
แผนที่โครงการ เพล็กซ์ เรสซิเดนซ์ นวมินทร์ 111 โครงการตั้งอยู่ที่ ถนนประเสริฐมนูกิจ (ถนนเกษตรนวมินทร์) ซอยแจ่มจันทร์ แขวงคลองกุ่ม เขตบึงกุ่ม กรุงเทพมหานคร 10230 โครงการนี้สามารถเข้าได้ทั้งทางซอยแจ่มจันทร์หรือเข้าซอยนวมินทร์ 111 ก็ได้ เชื่อมต่อกับถนนหลักหลายเส้น เช่น ถนนประเสริฐมนูกิจ, ถนนนวมินทร์, ถนนรัชดา-รามอินทรา, ถนนลาดพร้าว และถนนเลียบทางด่วนรามอินทรา สะดวกสบาย ด้วยทางด่วนรามอินทรา-อาจณรงค์ ใกล้กับสถานที่สำคัญ และศูนย์การค้าต่างๆ เช่น บิ๊กซี, บุญถาวร, แม็กซ์แวลู, Chic Republic, DCC, คริสตัล พาร์ค, เดอะ วอล์ค, โรงเรียนเลิศหล้า, โรงเรียนบดินทรเดชา (สิง สิงหเสนีย์ 2), ช็อคโกแลต วิลล์ และ อินเด็กซ์ ลิฟวิงมอลล์
โครงการอยู่ไม่ไกลจากบุญถาวร, คริสตัล ดีไซน์ เซ็นเตอร์ (CDC), บิ๊กซี
และโรงเรียนบดินทรเดชา (สิง สิงหเสนีย์ 2) จุดเด่นของโครงการ เพล็กซ์ เรสซิเดนซ์ นวมินทร์ 111
ภาพจำลองบรรยากาศและทาวน์โฮมในโครงการ จุดเด่นของโครงการโครงการ
เพล็กซ์ เรสซิเดนซ์ นวมินทร์ 111 (Plex Residence Nawamin 111) คือ ทาวน์โฮม 3 ชั้น แนวคิดใหม่สไตล์ Modern Luxury ที่ให้ความรู้สึกสไตล์บ้านเดี่ยว ผลงานชิ้นเอกที่สะท้อน รสนิยมการอยู่อาศัยได้อย่างมีระดับ ด้วยดีไซน์ที่ผสานระหว่างการใช้งาน และความงามที่ลงตัว เติมเต็มความสุขอย่างพิถีพิถัน ในทุกๆ ตารางเมตร ครบครันด้วยการแบ่งสัดส่วนพื้นที่ใช้สอยได้อย่างลงตัว และยืดหยุ่นต่อการใช้งานด้วยหน้ากว้างถึง 5.5 เมตร สามารถปรับพื้นที่ชั้นล่างเป็นห้องนอนผู้สูงอายุได้ พร้อมคลับเฮ้าส์และสระว่ายน้ำที่โอบล้อมเป็นส่วนตัวเปิดมุมมองสู่สวนสวยขนาดใหญ่ภายในโครงการ
รูปแบบบ้าน
แบบบ้านมี 1 แบบ คือ
ทาวน์โฮม 3 ชั้น สไตล์โมเดิร์น - ทาวน์โฮม 3 ชั้นให้ความรู้สึกสไตล์บ้านเดี่ยว หน้ากว้าง 5.5 เมตร พื้นที่ใช้สอย 190 ตร.ม. 3 ห้องนอน 4 ห้องน้ำพร้อมโซนอาบน้ำทุกห้อง 1 ห้องรับแขก 1 ห้องอเนกประสงค์ ส่วนเตรียมอาหารพร้อมโซนรับประทานอาหาร และที่จอดรถ 2 คัน
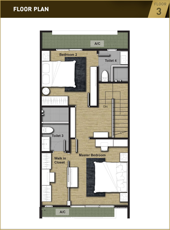
แบบบ้านทาวน์โฮม 3 ชั้น
Floor Plan ชั้น 1, 2 และ 3 ตามลำดับ บรรยากาศภายในบ้าน
สาธารณูปโภคภายในโครงการ
- สวนสวยขนาดใหญ่
- คลับเฮ้าส์
- สระว่ายน้ำ
- ระบบรักษาความปลอดภัย และ CCTV ตลอด 24 ชั่วโมง
อัพเดตความเคลื่อนไหวของโครงการ
Plex Residence Nawamin 111 ราคาเริ่มต้นที่ 6 ล้านบาท ติดต่อได้ที่สำนักงานขาย ทุกวันจันทร์ - อาทิตย์ 9.00-18.00 น.
สอบถามรายละเอียดเพิ่มเติม โทร. 089-051-0515 หรือเว็บไซต์ www.realasset.co.th