เพล็กซ์ วัชรพล (Plex Watcharapol) ... เชื่อมต่อความสุข ลงตัวทุกการใช้ชีวิต
บจก.เรียลแอสเสท ดีเวลลอปเม้นท์ (Real Asset Development) เปิดตัวทาวน์โฮมโครงการใหม่
เพล็กซ์ วัชรพล (Plex Watcharapol) เป็นโครงการทาวน์โฮม 3 ชั้น สไตล์โมเดิร์น 3 ห้องนอน 4 ห้องน้ำ หน้ากว้าง 5.5 เมตร พื้นที่ใช้สอย 190 ตร.ม. จำนวน 91 ยูนิต บนพื้นที่โครงการกว่า 10 ไร่ ตั้งอยู่บนทำเลย่านวัชรพล ถนนร่วมมิตรพัฒนา รองรับโครงการรถไฟฟ้าสายสีชมพู (โครงการในอนาคต), ทางด่วนรามอินทรา-อาจณรงค์ (ทางพิเศษฉลองรัช) และถนนกาญจนาภิเษก (วงแหวนรอบนอกฝั่งตะวันออก)
ราคาเริ่มต้น
ราคาเริ่มต้นที่ 4.39 ล้านบาท
ทำเลที่ตั้ง และสถานที่ใกล้เคียง
แผนที่โครงการ เพล็กซ์ วัชรพล (Plex Watcharapol) โครงการตั้งอยู่ที่ ถนนร่วมมิตรพัฒนา แขวงท่าแร้ง เขตบางเขน กรุงเทพมหานคร เชื่อมต่อกับถนนหลักหลายเส้น เช่น ถนนวัชรพล, ถนนสุขาภิบาล5, ถนนรามอินทรา, ถนนประดิษฐ์มนูธรรม, ถนนนวมินทร์, ถนนพหลโยธิน และถนนเกษตรนวมินทร์ ใกล้สถานที่สำคัญ และศูนย์การค้าต่างๆ เช่น โรงเรียนรัตนโกสินทร์ สมโภชน์, โรงเรียนสายอักษร, โรงเรียนอนุบาเลิศอุบล, โรงพยาบาลสินแพทย์, สนามกอล์ฟปัญญา, เทสโก้ โลตัส, Fashion Island, เดอะ พรอมานาด, Big C, Central รามอินทรา, The Walk เกษตร-นวมินทร์, Crystal Park, Chic Republic และ CDC
โครงการไม่ไกลจากรถไฟฟ้าสายสีชมพู (โครงการในอนาคต), โรงพยาบาลสินแพทย์,
The Walk เกษตร-นวมินทร์, และFashion Island จุดเด่นของโครงการ เพล็กซ์ วัชรพล
จุดเด่นของโครงการคือ การออกแบบโครงการที่ผสมผสานเข้ากับธรรมชาติ คำนึงถึงความยึดหยุ่นในการใช้สอย สามารถปรับพื้นที่ชั้นล่างให้เป็นห้องนอนสำหรับผู้สูงอายุ ส่วนห้องน้ำสามารถอาบน้ำได้ทุกห้อง ส่วนเตรียมอาหารถูกออกแบบให้สามารถกั้นผนังในภายหลังเพื่อความเป็นสัดส่วน ส่วนของห้องอเนกประสงค์ที่ชั้น 2 ก็สามารถปรับการใช้สอยได้หลายประเภท เช่น ห้องนอน, ห้องทำงาน, ห้องนั่งเล่นของครอบครัว และห้องสังสรรค์ในหมู่เพื่อนฝูง
รูปแบบบ้าน
แบบบ้านในโครงการมีแบบเดียวตามรูปข้างล่างนี้
ทาวน์โฮม 3 ชั้น สไตล์โมเดิร์น - 3 ห้องนอน 4 ห้องน้ำ 1 ห้องรับแขก 1 ห้องเอนกประสงค์ ที่จอดรถ 2 คัน พื้นที่ใช้สอย 190 ตร.ม. หน้ากว้าง 5.5 เมตร

ภาพจำลองแบบบ้าน 
Floor Plan บริเวณชั้น 1 
Floor Plan บริเวณชั้น 2 
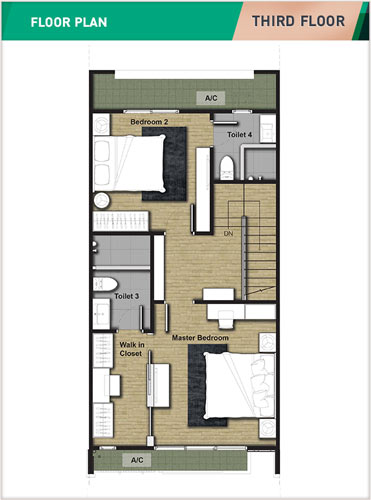
Floor Plan บริเวณชั้น 3 บรรยากาศภายในบ้าน
สาธารณูปโภคภายในโครงการ
- สโมสร ฟิตเนส
- สระว่ายน้ำ
- สวนสาธารณะ
- กล้อง CCTV
- รักษาความปลอดภัยแบบ Double Securities ตลอด 24 ชั่วโมง
อัพเดตความเคลื่อนไหวของโครงการ
Exclusive Pre-Sales Booking ราคาเริ่มต้น 4.39 ล้านบาท
สอบถามรายละเอียดเพิ่มเติม โทร. 080-626-6625 หรือทางเว็บไซต์
http://www.realasset.co.th