ประเมินวงเงินรู้ผลใน 3 นาที
กับ กรุงศรี ออโต้ พร้อมสตาร์ท

เริ่มประเมินวงเงินพร้อมสตาร์ท
ผ่านมือถือ สแกนเลย

ดูวงเงินพร้อมสตาร์ทที่ได้รับ

  • บ้าน
  • บ้าน
  • ค้นหาแบบละเอียด
  • Civilai Hill Khao Yai (ศิวิไลซ์ ฮิลล์ เขาใหญ่) ความสมบูรณ์แบบของการพักผ่อนเหนือระดับ

    27 ส.ค. 56 11,899
    ศิวิไลซ์ ฮิลล์ เขาใหญ่ (Civilai Hill Khao Yai)... ความสมบูรณ์แบบของการพักผ่อนเหนือระดับ
    บริษัท ที.เอ็ม.ซี เรียลเอสเตท จำกัด ได้เปิดตัวโครงการ ศิวิไลซ์ ฮิลล์ เขาใหญ่ (Civilai Hill Khao Yai) เป็นบ้านพักตากอากาศบนเนินเขาท่ามกลางธรรมชาติ โดยบ้านแต่ละหลังสามารถเห็นวิวของเขาใหญ่ และเมืองปากช่องได้ 180 องศา มีต้นไม้สีสันสวยงามรอบโครงการพร้อมสระว่ายน้ำอุ่นส่วนตัว และสิ่งอำนวยความสะดวกครบครัน บนเนื้อที่โครงการกว่า 30 ไร่
    ราคาเริ่มต้น
    ราคาเริ่มต้นที่ประมาณ 14 - 29 ล้านบาท
    ทำเลที่ตั้ง และสถานที่ใกล้เคียง

    โครงการศิวิไลซ์ ฮิลล์ เขาใหญ่ ตั้งอยู่ที่ ถ.หนองสาหร่ายซับพลู (2235) กิโลเมตรที่ 8 ต.หนองสาหร่าย อ.ปากช่อง จ.นครราชสีมา ไม่ไกลจากสถานที่ท่องเที่ยวบริเวณเขาใหญ่ เช่น อุทยานแห่งชาติเขาใหญ่, ฟาร์มโชคชัย, ปาลิโอ เขาใหญ่, Primo Posto, ไร่องุ่นกรานมอนเต้, ไร่องุ่นพีบี วัลเล่ย์ เขาใหญ่ไวน์เนอรี่, ร้านแดรี่โฮม, The Smoke House บ้านรมควัน และ Sheep Land เขาใหญ่

    สถานที่ท่องเที่ยวใกล้เคียงโครงการ เช่น อุทยานแห่งชาติเขาใหญ่, ปาลิโอ, ฟาร์มโชคชัย และไร่องุ่นพีบี วัลเล่ย์ฯ

    จุดเด่นของโครงการศิวิไลซ์ ฮิลล์ เขาใหญ่

    จุดเด่นของโครงการคือเป็นโครงการบ้านพักตากอากาศที่ตั้งอยู่ท่ามกลางทิวทัศน์สวยงามบนเนินเขาสูงกว่า 100 เมตร ตัวบ้านตั้งเรียงรายไล่ระดับตามแนวเขาเป็นขั้นบันได สภาพแวดล้อมภายในโครงการได้รับการออกแบบเป็นอย่างดีจากการร่วมมือกันของนักพฤกษศาสตร์ และนักภูมิทัศน์ที่บรรจงสร้างให้ทิวทัศน์ของโครงการสวยงามน่าประทับใจด้วยต้นพญาเสือโคร่ง และต้นกัลปพฤกษ์ซึ่งจะทำให้โครงการเต็มไปด้วยดอกไม้สีชมพูออกดอกเรียงรายอยู่เต็มพื้นที่ในเดือนพฤศจิกายนถึงเดือนเมษายน นอกจากนั้นยังมีระบบไฟฟ้าฝังดินทั้งหมดเพื่อไม่ให้บดบังทัศนียภาพโดยรวม พร้อมสิ่งอำนวยความสะดวก และสระว่ายน้ำอุ่นส่วนตัว

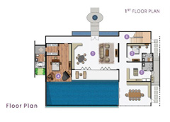
    รูปแบบบ้าน
    Cherry Blossom - บ้านสไตล์บาหลีโมเดิร์นที่ภายในตกแต่งอย่างประณีต หรูหราใส่ใจทุกรายละเอียดทั่วถึง เลือกสรรวัสดุอุปกรณ์คุณภาพ และทันสมัย (5 ห้องนอน, 6 ห้องน้ำ, 2 ห้องรับแขก, 1 ห้องครัว, 1 ห้องซาวน่า, ที่จอดรถ 2 คัน, สระว่ายน้ำอุ่น)

    พื้นที่ใช้สอย 641.5 ต.ร.ม.

    Pink Shower - เท่ มีสไตล์ สิ่งอำนวยความสะดวกมากมาย และสไตล์การตกแต่งแนวโมเดิร์นบาหลี (4 ห้องนอน, 5 ห้องน้ำ, 1 ห้องรับแขก, 1 ห้องครัว, ที่จอดรถ 2 คัน, สระว่ายน้ำอุ่น)

    พื้นที่ใช้สอย 420.91 ต.ร.ม.

    บรรยากาศภายในบ้าน


    สาธารณูปโภคภายในโครงการ

    • มีเส้นทางสำหรับขี่จักรยานออกกำลังกายไปพร้อมกับชมทิวทัศน์สวยงามได้รอบหมู่บ้าน
    • ระบบรักษาความปลอดภัยมียามดูแลตลอด 24 ชั่วโมง และ CCTV ทั่วทั้งโครงการ
    • ระบบไฟฟ้าฝังดินทั้งหมดเพื่อไม่ให้บดบังทัศนียภาพโดยรวม
    • จัดสวนดูแลต้นไม้ให้กับบ้านทุกหลัง
    • สวนสาธารณะสไตล์ญี่ปุ่น และลานบาร์บีคิว

    อัพเดตความเคลื่อนไหวโครงการ
    โครงการจะเริ่มต้นก่อสร้างประมาณเดือน สิงหาคม 2556 และคาดว่าจะแล้วเสร็จประมาณเดือน สิงหาคม 2557 (คาดว่าจะใช้เวลาก่อสร้างประมาณ 12 เดือน) หากท่านสนใจโครงการ สามารถติดต่อได้กับโครงการโดยตรงที่เบอร์ 090-972-7529, 092-404-4041-42
    เข้าชมเว็บไซต์โครงการได้ที่ http://www.civilaihillkhaoyai.com/

    ข่าว-โปรโมชั่นล่าสุดอื่นๆ

เว็บไซต์นี้มีการเก็บคุกกี้เพื่อเพิ่มความพึงพอใจในการใช้งานเว็บไซต์ และช่วยให้เราปรับปรุง และนำเสนอเนื้อหาตรงตามความสนใจของท่าน ท่านสามารถดู Privacy Notice และ ดู Cookies Policy ของเราได้ ที่นี่ ทั้งนี้ ท่านจะยินยอมให้เราเก็บคุกกี้ทั้งหมด หรือให้เก็บแค่บางส่วนโดยการคลิกเลือก ตั้งค่า

ท่านสามารถเลือกให้ความยินยอมการเก็บคุกกี้เป็นเรื่องๆ ได้ที่นี่

เมื่อคุณเข้าชมเว็บไซต์ หรือแอปพลิเคชั่น checkraka เราอาจจัดเก็บ หรือดึงข้อมูลจากเบราว์เซอร์ของคุณในรูปแบบของคุกกี้ และเทคโนโลยีอื่นที่คล้ายคลึง เช่น tag และ pixel (เรียกรวมกันว่า “คุกกี้”) ซึ่งมักเป็นข้อมูลที่ไม่สามารถระบุตัวตนได้โดยตรง แต่ช่วยให้คุณใช้งานเว็บไซต์ได้ปลอดภัย และตรงตามความต้องการมากขึ้น คุณอาจไม่ยินยอมให้เราเก็บคุกกี้บางประเภทได้ โดยการคลิกตามหัวข้อข้างล่างนี้

ประเภทคุกกี้
อ่านเพิ่มเติม ที่นี่
ยินยอม / ไม่ยินยอม
คุกกี้ที่จำเป็นต้องมีเสมอ
(Strictly Necessary)
คุกกี้สำหรับการใช้งานเว็บไซต์
(Functionality)
คุกกี้เพื่อเพิ่มประสิทธิภาพและวิเคราะห์
(Performance & Analytics)
คุกกี้เพื่อการตลาด
(Marketing)