ใครว่า "บ้านเอื้ออาทร" หลังเล็ก! ไม่น่าอยู่! มาดูวิธีรีโนเวทให้เป็นบ้านสวยสไตล์ญี่ปุ่น ด้วยงบ 9 แสน!
ได้ยินคำว่า "บ้านเอื้ออาทร" ภาพจำของใครหลายๆ คนอันดับแรกๆ น่าจะเป็นบ้านเดี่ยวชั้นเดียวหรือ 2 ชั้นที่หลังไม่ใหญ่มาก พื้นที่สอยพอเหมาะกับการอยู่อาศัยครอบครัวเดี่ยวเล็กๆ 3-4 คน ซึ่งจริงๆ แล้ว "โครงการบ้านเอื้ออาทร" มีทั้งบ้านเดี่ยว บ้านแฝด อาคารชุด หลายหลาย เป็นโครงการที่รัฐบาลได้มอบหมายให้กระทรวงการพัฒนาสังคมและความมั่นคงของมนุษย์ และกระทรวงการคลัง ให้การเคหะแห่งชาติจัดสร้าง "ที่อยู่อาศัย" ให้แก่ผู้ด้อยโอกาสกลุ่มผู้มีรายได้น้อย ได้เป็นเจ้าของที่อยู่อาศัยในราคาที่สามารถรับภาระได้ ซึ่งธนาคารอาคารสงเคราะห์และธนาคารออมสินเป็นผู้ให้สินเชื่อ ไม่จำกัดอยู่เฉพาะในเขตกรุงเทพฯ และปริมณฑลเท่านั้น แต่ยังกระจายไปทั่วภูมิภาค และบ้านหลังนี้ที่เราจะมาพาไปดู เป็นบ้านเอื้ออาทร ที่จังหวัดหนองคายค่ะ เจ้าของผลงานที่ออกแบบบ้านหลังนี้แชร์ให้ Checkraka.com ฟังได้อย่างน่าสนใจ ถึงความตั้งที่จะเปลี่ยนภาพบ้านเอื้อฯ หลังแคบๆ บ้านคนจนที่คนชอบตีตรา จริงๆ แล้วสามารถสร้างสรรค์ให้เป็นบ้านหลังใหม่ ที่เราเข้าถึงในราคาถูกได้ และอยู่สบายไม่แออัดอย่างที่คิด
จากบ้านเอื้ออาทรหลังเก่า ที่ได้มาในราคาแค่ 6 แสนกว่า
คุณก้อย ลัดดาพร ณ หนองคาย เจ้าของบ้านหลังนี้บอกกับเราว่า ให้นักออกแบบที่รู้จักกันออกแบบบ้านให้ โดยจุดมุ่งหมายของคุณก้อยคือ อยากรีโนเวทบ้านเอื้ออาทรหลังนี้ให้เป็น "บ้านกึ่งสตูดิโอ" ที่ใช้ได้ทั้งพักอาศัยและทำงานไปในเวลาเดียวกัน จากเดิมที่ได้บ้านพร้อมที่ดินผืนนี้มาในราคา 600,000 กว่าบาทโดยประมาณ ซึ่งถือว่าได้มาในราคาถูกมากๆ จากราคาที่ซื้อขายกันในทำเลหนองคายอยู่ที่ประมาณ 700,000 - 800,000 บาท ทำให้สามารถแบ่งสัดส่วนเงินไว้พร้อมสำหรับแปลงโฉมบ้านใหม่ได้เต็มที่ และได้คุณโจโจ้ นักออกแบบอิสระที่ใช้ชื่อ Facebook ว่า
มุมโต๊ะ นักออกแบบ อิสระ (Lifestyle designer) มาออกแบบบ้านหลังใหม่ให้ ด้วยมีความคุ้นเคยกันอยู่แล้ว คุณโจโจ้จึงเข้าใจความต้องการของเจ้าของบ้านในเชิงลึก จึงผสมผสานความต้องการของผู้อยู่อาศัยกับฝีมือด้านการออกแบบและ
ฝีมือในการคุมงานก่อนสร้างของตนออกมา จนทำให้บ้านเอื้อฯ เนื้อที่ 47 ตรว. กลายเป็นบ้านมินิมอลอารมณ์ญี่ปุ่น มีพื้นที่ใช้สอยประมาณ 110-120 ตรม.


ขั้นตอนแรกของการรีโนเวทคือ การรื้อ หรือการจัดการกับของเก่าที่มีอยู่ คุณโจโจ้เล่าว่า บ้านหลังเดิมโครงสร้างค่อนข้างโอเค มีการต่อเติมบางส่วน จุดนี้ค่อนข้างใช้เวลาและต้องใช้เงินจ้างช่างเยอะพอสมควร ยากกว่าสร้างบ้านหลังใหม่บนที่ดินเปล่าก็ตรงนี้
แปลงโฉมเป็นบ้านมินิมอลหลังใหม่ ด้วยใจรักของนักออกแบบ
ข้อดีของบ้านและที่ดินแปลงนี้คือ เป็นบ้านแปลงมุมได้เนื้อที่เยอะ นอกจากตัวบ้านหลังเดิม 2 ชั้นแล้ว ยังสามารถต่อเติมบ้านหลังเล็กออกมาได้อีกหลัง คุณโจโจ้เริ่มออกแบบจากความต้องการของเจ้าของบ้าน ดูทั้งเรื่องการอยู่อาศัย การใช้งานส่วนไหนในบ้านมากที่สุด คนอยู่มีใครบ้าง ซึ่งหนึ่งในสมาชิกของบ้านหลังนี้คือ เด็กเล็กอาศัยอยู่ด้วย การออกแบบพื้นที่บนชั้นที่ 2 จงต้องคำนึงถึงจุดนี้เป็นข้อสำคัญ
คุณโจโจ้ตั้งใจอยากเพิ่มพื้นที่บ้านหลังนี้ให้มีพื้นที่ใช้สอยเพิ่มขึ้นอีกเท่าตัว เนื่องจากเจ้าของบ้านอยากใช้บ้านเป็นที่ทำงานด้วย การอยู่อาศัยจึงไม่ใช่แค่ออกไปทำงานนอกบ้านแล้วกลับมาพักผ่อนช่วงกลางคืน ดังนั้นจึงจัดพื้นที่ด้านล่างใหม่ นำครัวเข้ามาไว้ตรงส่วนกลางของบ้าน เชื่อมต่อกับ Living Area ที่เดินออกไปโซนหน้าบ้าน มีพื้นที่กว้างสำหรับนั่งเล่นหรือทำงาน ขยับไปโซนหลังบ้าน จะเป็นพื้นที่ซักล้าง วางเครื่องซักผ้าและของใช้ทั่วไป ถือว่าลงตัวและน่าอยู่มากค่ะ
ส่วนชั้น 2 ทุบผนังกั้นที่เคยเป็น 2 ห้องนอน ออกแบบให้เป็นห้อง Master Bedroom ใหญ่ห้องเดียวที่มีห้องน้ำส่วนตัว พร้อมระเบียงเดินออกไปชมวิวได้อีก ทั้งโซนด้านข้างบ้านและยังเชื่อมต่อไปได้ถึงโซนหน้าบ้านด้วย ความพิเศษอยู่ตรงที่การใช้ "ตะแกรงเหล็กฉีกสีขาว" มากั้นโซนระเบียงและล้อมตัวหน้าบ้านไว้เพิ่มความมินิมอลให้กับตัวบ้าน และยังป้องกันนกหรือสัตว์อันตรายเข้าบ้าน ที่สำคัญเป็นการ Safety เด็กเล็กให้ปลอดภัยได้อีกด้วย






ความพิถีพิถันของนักออกแบบและการคุมงานก่อสร้างอีกอย่างนึงที่เราชอบคือ การเลือกใช้วัสดุต่างๆ ภายในบ้าน จากการพูดคุยคุณโจโจ้มีมุมมองส่วนตัวที่ให้ความสำคัญกับเรื่องการใช้วัสดุที่ให้ผิวสัมผัสที่ต้องการจริงๆ ไม่เน้นเรื่องการติดตั้งง่ายและราคาถูกเพียงอย่างเดียว เพราะจริงๆ แล้วเมื่อเฟ้นหาวัสดุตามดีไซน์ที่วางไว้ นำมาคำนวณค่าใช้จ่าย/ตร.ม. ราคาไม่ได้ทิ้งห่างวัสดุธรรมดาที่ช่างทำบ้านทั่วๆ เลือกใช้กัน เช่น เฟอร์นิเจอร์ในตัวบ้านทั้งหมดใช้ไม้สนในการทำ และประตูหน้าบ้าน บานนี้ เลือกใช้เป็นประตูไม้สนแบบเต็มชิ้น ช่างไม้จัดการบล็อกน้ำยาทั้งบานอย่างละเอียด ต้องไม่มีความชื้นเข้าถึงตัวไม้ได้เด็ดขาด ไม่งั้นช่วงหน้าฝนประตูไม้จะบวมเอาได้ ซึ่งข้อควรระวังของการใช้ไม้ทำเฟอร์นิเจอร์คือ ไม้อาจบวมเมื่อเจอความชื้น ยืดและหดตัวตามธรรมชาติของไม้ ซึ่งนับว่าต้องให้เครดิตช่างไม้ด้วย ประตูและเฟอร์นิเจอร์จึงออกมาสวยงามได้ผิวสัมผัสของไม้ ได้กลิ่นอายญี่ปุ่นจริงๆ
สรุปงบ รีโนเวทจบที่ประมาณ 900,000 บาท
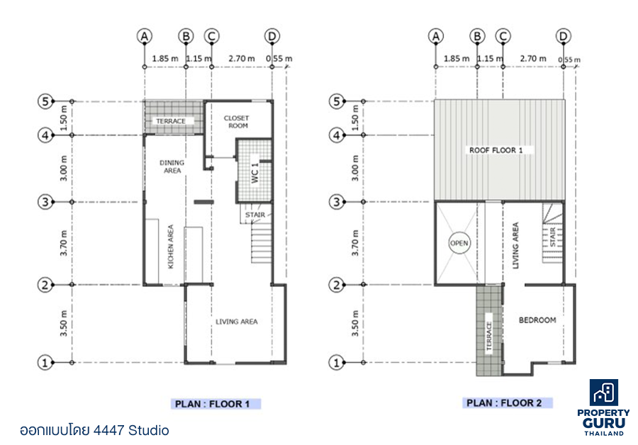
ถ้าดูจากแบบแปลนบ้านข้างต้น จะเห็นว่า มีการออกแบบเพิ่มพื้นที่ใช้สอยให้มากขึ้น ปรับโครงการบ้านใหม่บางส่วน เปลี่ยนวัสดุทั้งหมดทั้งภายในและภายนอก ใช้เฟอร์นิเจอร์ไม้สนโดยให้ช่างในท้องถิ่นเป็นคนทำให้ และยังได้บ้านหลังเล็กที่ทำเพิ่มขึ้นมาด้านข้าง เป็นห้องทำงานได้อีก 1 ห้อง เราแจกแจงค่าใช้จ่ายโดยประมาณมาให้แล้วค่ะ
- งบจ้างช่างรื้อถอน-ขนทิ้ง ตัวบ้านหลังเก่า ประมาณ 64,000 บาท
- งบปรับพื้นกระเบื้อง รื้อหลังคา เปลี่ยนโครงสร้างใหม่ ประมาณ 200,000 บาท
- งบสร้างบ้านหลังใหม่ ประมาณ 490,000 บาท
- งบทำเฟอร์นิเจอร์ไม้สนทั้งหลัง ประมาณ 100,000 บาท
- งบทำห้องน้ำ รื้อทุบและทำใหม่ ประมาณ 46,000 บาท
- โดยรวมอยู่ที่ประมาณ 900,000 บาท
บริเวณหน้าบ้านใช้อิฐบล็อกจากร้านวัสดุทั่วไป ราคาไม่แพง นำมาจัดเรียงใหม่เป็นแนวตั้ง ได้ความเก๋ไปอีกแบบนะคะ ภาพรวมของตัวบ้านน่าอยู่มากๆ นั่นแน่! กำลังกลัวว่า เป็นชี้ช่องโจรหรือเปล่า คนจะปีนขึ้นง่ายใช่มั้ยละคะ รั้วกำแพงทำให้สูง 2.5 เมตรเลยทีเดียว พื้นที่ด้านในเหลือเผื่อไว้ เจ้าของบ้านจะปลูกต้นไม้เพิ่มด้วยค่ะ ประตูเหล็กบานเลื่อนสีขาวหน้าบ้าน ก็ใช้ตะแกรงเหล็กฉีกตัวเดียวกับที่ใช้บนชั้น 2 เป็นความเชื่อมต่อที่ทำใหบ้านน่ารัก อบอุ่นขึ้นมาจริงๆ
บ้านหลังนี้เป็นผลงานการออกแบบบ้านของคุณโจโจ้
มุมโต๊ะ นักออกแบบ อิสระ และทีมงาน
facebook.com/4447studio ทีมช่างอยู่ที่จังหวัดหนองคายค่ะ ใครสนใจหรืออยากสอบถามเพิ่มเติมลองทักไปที่เพจได้เลยนะคะ ต้องขอบคุณคุณก้อยและคุณโจโจ้อีกครั้งที่มาแชร์ประสบการณ์ดีๆ แบบนี้ให้เราได้เห็นบ้านเอื้ออาทรในรูปแบบใหม่ ไม่เล็ก ไม่แคบ ไม่ซ้ำและไม่จำเจอีกต่อไปแล้ว ไว้ครั้งหน้าเราจะพาไปดูบ้านหลังไหนอีก ติดตามได้ที่
Checkraka.com นี้เลยค่ะ ถ้าชอบกดแชร์ให้เราด้วยนะคะ