เราอยู่ในยุคสมัยที่ผู้คนต้องหันมาใส่ใจในเรื่องของการอนุรักษ์พลังงานกันมากขึ้น ไม่เว้นแม้แต่ในเรื่องการสร้างที่อยู่อาศัย สำหรับความหมายของคำว่า บ้านประหยัดพลังงานนั้น หมายถึง การใช้พลังงานทั้งหมดอย่างคุ้มค่า โดยประหยัดและอนุรักษ์พลังงานที่มีทั้งหมด และสามารถใช้งานในชีวิตประจำวันได้จริง สำหรับคำว่า พลังงาน ในที่นี้หมายรวมถึงทั้ง ค่าใช้จ่าย, ทรัพยากรธรรมชาติ, พลังงานไฟฟ้า, และเทคโนโลยีในปัจจุบัน
สำหรับบทความนี้จะสรุปตั้งแต่การดูสภาพแวดล้อมที่ตั้งของที่ดินที่เหมาะสมสำหรับการสร้างบ้านประหยัดพลังงาน ไปจนถึงการเริ่มสร้างบ้านเพื่อให้ประหยัดพลังงาน โดยจะดูในส่วนของโครงสร้างและวัสดุที่ใช้ และสุดท้ายก็ได้เอาแบบบ้านและแปลนบ้านประหยัดพลังงานมาฝากกันค่ะ โดยบทความนี้ได้แบ่งออกเป็น 3 หัวข้อใหญ่ๆ ไว้ดังนี้
1. หลักการเลือกสภาพแวดล้อมที่ดินให้กับบ้านประหยัดพลังงาน
2. เลือกใช้วัสดุสร้างบ้านอย่างไรให้ประหยัดพลังงาน
3. ตัวอย่างแบบบ้านประหยัดพลังงาน
1. หลักการเลือกสภาพแวดล้อมที่ดินให้กับบ้านประหยัดพลังงาน
1. สภาพแวดล้อมที่ตั้งที่ดิน และขนาดของที่ดิน
สำหรับขนาดที่ดินที่เหมาะสมที่จะปลูกบ้านประหยัดพลังงาน ควรมีที่ดินตั้งแต่ 50 ตร.ว. ขึ้นไป หรือมีความกว้างและยาว = 13 x 16 เมตร และถ้าหากสามารถมีเนื้อที่มากกว่านี้ได้ก็จะยิ่งทำให้ตัวบ้านได้รับประโยชน์จากธรรมชาติมากขึ้น สภาพแวดล้อมโดยรอบที่ดินควรเป็นพื้นที่โล่ง ไม่มีตึก หรืออาคารสูงมาบดบัง ทั้งในเรื่องของกระแสลม, การระบายอากาศ, การรับแสงแดด รวมไปถึงการจัดสวนเพิ่มเติมเพื่อเพิ่มความร่มรื่นให้กับรอบๆ บ้านมากขึ้น ลักษณะทางกายภาพของที่ดิน ควรเป็นพื้นที่ดินในเขตที่พักอาศัย มีระบบสาธารณูปโภครองรับ ปราศจากมลภาวะที่เป็นพิษ มีกลิ่นไม่พึงประสงค์ และเสียงดัง
2. ทิศทางการจัดวางตัวอาคาร
เนื่องจากประเทศไทยมีภูมิอากาศแบบร้อนชื้น การหันหน้าอาคารควรหันให้ด้านยาวรับประโยชน์จากการระบายอากาศด้วยลมธรรมชาติ และหลีกเลี่ยงรังสีความร้อนโดยตรง หากมีรูปแบบบ้านเป็นสี่เหลี่ยมผืนผ้า ควรหันให้ด้านยาวหันไปทางทิศเหนือ และทิศใต้ ส่วนด้านสั้นให้หันไปทางทิศตะวันออก และทิศตะวันตก โดยตามหลักการโคจรของโลกรอบดวงอาทิตย์ แดดจะแรงในช่วงเวลา 10.00 - 14.00 น. ของวัน
การจัดวางห้องนั่งเล่นหรือห้องรับแขก ควรอยู่ในตำแหน่งที่สามารถถ่ายเทอากาศได้สะดวก ในส่วนของห้องน้ำหรือห้องครัว ควรไว้ทางทิศตะวันตกของบ้าน เพื่อไม่ให้เผชิญกับรังสีความร้อนมากเกินไป และถูกสุขอนามัย นอกจากนี้ควรจัดวางตำแหน่งให้ประตู หน้าต่าง และช่องระบายอากาศอยู่ในตำแหน่งที่สามารถรับลมได้สะดวก
3. อุปกรณ์เสริมและการปรับสภาพแวดล้อมเพื่อช่วยบังแดดให้กับอาคาร
ทำระแนงไม้เพื่อบังแดดบริเวณส่วนที่เป็นช่องกระจก หรือหน้าต่างที่สามารถรับแสงจากภายนอก และควรให้มีการบังแดดมาที่ตัวอาคารด้วย เนื่องจากความร้อนที่ส่องเข้ามาที่ตัวอาคารจะทำให้ตัวอาคารนั้นสะสมความร้อน แล้วถ่ายเทเข้าสู่ตัวอาคารได้ นอกจากนี้การใช้รั้วโปร่งก็ยังมีส่วนช่วยในเรื่องของการรับลมธรรมชาติและมีการระบายอากาศได้ง่ายขึ้น

ภาพตัวอย่างระแนงไม้ช่วยบังแดดจากโครงการ เศรษฐสิริ จรัญฯ-ปิ่นเกล้า 2
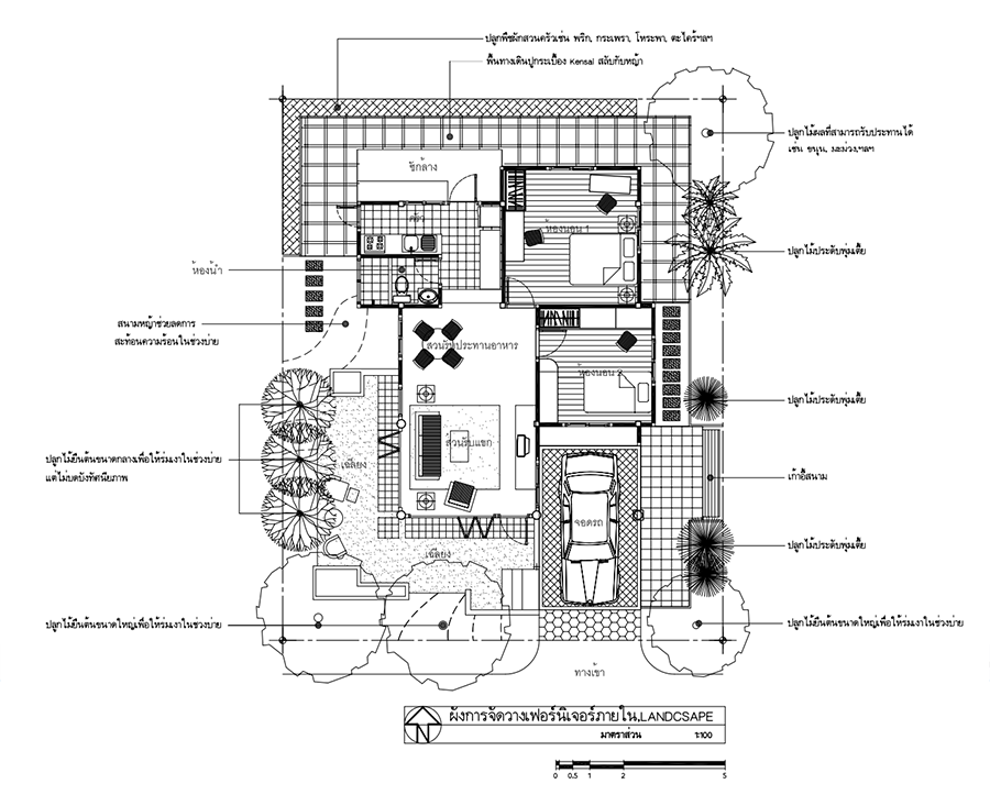
นอกเหนือจากตัวบังแดดแล้วเรายังสามารถใช้ต้นไม้ หรือจัดสวนเพื่อสร้างความร่มรื่น ด้วยการปลูกต้นไม้ยืนต้นหรือต้นไม้สูงๆ ในทิศตะวันตกและทิศใต้ ส่วนต้นไม้พุ่มเตี้ยๆ จะช่วยลดการสะท้อนความร้อนจากพื้นดินไปสู่ตัวอาคารได้

ภาพแสดงทิศทางแสงแดด และการปลูกต้นไม้เพื่อช่วยลดการสะท้อนความร้อนเข้าสู่ตัวอาคาร
2. เลือกใช้วัสดุสร้างบ้านที่ประหยัดพลังงาน
นอกจากในเรื่องที่ของที่ตั้งที่ดินที่เหมาะสมแล้ว การเลือกวัสดุที่จะนำมาสร้างบ้านแต่ละชิ้นก็มีส่วนสำคัญในการทำให้บ้านนั้นประหยัดพลังงาน ซึ่งมีสิ่งที่ต้องพิจารณาเบื้องต้นดังต่อไปนี้
1. โครงสร้าง

- โครงสร้างบ้าน โครงสร้างคอนกรีตเสริมเหล็กจะมีมวลมากกว่าโครงสร้างเหล็กและไม้ ซึ่งจะทำให้สะสมความร้อนได้มากกว่า อย่างไรก็ตามโครงสร้างคอนกรีตเสริมเหล็กนั้นมีราคาที่ถูกกว่าโครงสร้างเหล็ก ซึ่งถ้าหากต้องใช้โครงสร้างคอนกรีตเสริมเหล็ก สามารถป้องกันได้ด้วยการยื่นชายคาเพื่อบังแดด และทาสีอ่อนของตัวบ้านเพื่อสะท้อนความร้อน
- โครงสร้างพื้น พื้นชั้นล่าง พื้นห้องน้ำ และพื้นระเบียง ควรใช้ระบบคอนกรีตหล่อในที่สามารถป้องกันปัญหารั่วซึม และควรบดอัดดินให้แน่น บริเวณพื้นห้องน้ำ หรือพื้นที่ต้องมีการสัมผัสกับน้ำ ควรปูแผ่นพลาสติก่อนเทคอนกรีตผสมน้ำยากันซึม
- โครงสร้างหลังคา ใช้ระบบโครงสร้างเหล็กเพราะไม่แพงเกินไป และสะดวกต่อการก่อสร้างหรือแก้ไขดัดแปลง ถ้าเป็นหลังคาทรงสูง ที่มีความลาดเอียงประมาณ 34 องศา จะสามารถลดปริมาณความร้อนรวม ถ่ายเทจากหลังคามาที่ฝ้าเพดาน
- โครงสร้างผนัง ผนังชั้นล่าง และผนังทั่วไป ใช้ก่อคอนกรีตบล็อก และฉาบผิวเรียบ ใช้กับพื้นที่ที่มีการระบายอากาศที่ดี ห้องนอน ใช้ผนังก่อบล็อกคอนกรีตมวลเบา ฉาบผิวเรียบ ซึ่่งสามารถใช้กับห้องที่มีการปรับอากาศ ผนังห้องน้ำ ห้องครัว ฉาบปูนบุผิวด้วยกระเบื้องเคลือบ ง่ายต่อการทำความสะอาด
2. วัสดุที่ใช้
- พื้น พื้นชั้นล่าง ห้องน้ำ ห้องครัว ห้องคนรับใช้ และห้องเก็บของ ใช้พื้นกระเบื้องเซรามิคธรรมดาก็ได้ค่ะ จะสะดวกในการติดตั้ง และมีราคาไม่แพงมากนัก ถ้าเป็นพื้นชั้นบน ใช้พื้นไม้โมเสกปาร์เก้ไม้แดง ส่วนพื้นระเบียงและเฉลียงรอบบ้าน ใช้เป็นกรวดล้างและบล็อกสนามหญ้า จะสามารถลดค่าการสะท้อนความร้อนเข้าสู่ตัวอาคาร
- หลังคา ใช้กระเบื้องคอนกรีต เช่น กระเบื้องซีแพคโมเนีย หรือเทียบเท่า เนื่องจากราคาไม่แพงมากนัก และมีคุณสมบัติเหมาะสม
- ฝ้าเพดาน ฝ้าเพดานทั่วไป ใช้ฝ้ายิปซั่มบอร์ดชนิดธรรมดา ห้องน้ำ ใช้ฝ้ายิปซั่มบอร์ดกันความชื้น ฝ้าระแนงไม้สังเคราะห์ บริเวณชายคารอบอาคาร กรุตาข่ายกันแมลง ตีเว้นร่อง 5 มม. จะทำให้ระบายอากาศได้ดีบริเวณโครงหลังคา และช่วยลดความร้อน และเหนือฝ้าเพดานชั้นบน หรือชั้นใต้โครงหลังคา ควรบุฉนวนกันความร้อนประเภทใยแก้ว หนาประมาณ 4 นิ้ว เพื่อลดความร้อนที่จะถ่ายเทมาทางหลังคา
3. ประตู-หน้าต่าง

ขอบคุณภาพตัวอย่างจากโครงการ โกลเด้น นีโอ พระราม 9-กรุงเทพกรีฑา

ขอบคุณภาพจากโครงการ เซียล่า จรัญฯ 13 สเตชั่น
- ประตูทั่วไป สามารถใช้ได้ทั้งแบบบานเปิด และบานเลื่อน หรือบางตำแหน่งอาจจะใช้เป็นบานกระทุ้ง บานเกล็ดระบายอากาศ หรือช่องรับแสงติดตาย โดยให้มีลูกฟักกระจกตัดแสงรับแสงแดดธรรมชาติเข้าสู่ตัวบ้านของแต่ละห้อง
- ประตูภายนอก ใช้บานเลื่อนอลูมิเนียมลูกฟักกระจกเขียวตัดแสง เพื่อให้ระบายอากาศได้ดี และสามารถรับแสงธรรมชาติได้อย่างเต็มที่
- ประตูภายใน โดยเฉพาะในส่วนของห้องนอน ใช้ประตูบานไม้ ลูกฟักไม้ เพื่อเพิ่มความเป็นส่วนตัว
- ประตูห้องน้ำ ใช้บานเปิด และบานพีวีซีที่มีช่องระบายอากาศ เพื่อความสะดวก และทนทานในการใช้งาน
- หน้าต่างทั่วไป เลือกใช้หน้าต่างบานเลื่อนอลูมิเนียม ลูกฟักกระจกเขียวตัดแสง
- หน้าต่างระบายอากาศ หน้าจั่วหลังคา ใช้หน้าต่างไม้ ลูกฟักเกล็ดไม้ติดตาย
- หน้าต่างทั่วไป เลือกใช้หน้าต่างบานเลื่อนอลูมิเนียม ลูกฟักกระจกเขียวตัดแสง
4. สีทาบ้าน
- สีทาภายนอก ใช้สีน้ำอะคริลิก ทนต่อสภาพแวดล้อมภายนอกได้ดี
- สีทาภายใน สีทาภายใน ใช้สีน้ำพลาสติก
- สีทาไม้ ใช้สีน้ำมัน
- ความเข้มของสี ทั้งภายนอก และภายใน ควรใช้สีอ่อน จะช่วยสะท้อนรังสีความร้อนออกสู่ภายนอกอาคาร ในส่วนภายในก็จะทำให้กระจายแสงภายในได้ดี
5. ค่าสะท้อนรังสีความร้อน
ตัวอย่างแบบบ้านประหยัดพลังงาน
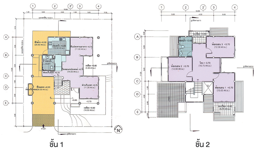
ในส่วนของแบบบ้านประหยัดพลังงานที่นำมาฝากกันนี้ มีทั้งหมด 3 แบบด้วยกัน เป็นบ้านชั้นเดียว 1 แบบ และบ้านสองชั้น 2 แบบ ออกแบบโดยสถาปัตยกรรมศาสตร์ สถาบันเทคโนโลยีพระจอมเกล้าเจ้าคุณทหารลาดกระบัง มีรายละเอียดดังต่อไปนี้
แบบ
| ตร.ว.
| กว้างxยาว
| ตร.ม.
| ค่าก่อสร้างโดยประมาณ
| พื้นที่ใช้สอย
|
| ห้องนอน | ห้องน้ำ | ห้องรับแขก | อาคาร | ครัว | จอดรถ | หมายเหตุ |
| A | 52 | 13x16 | 84 | 700,000 | 2 | 1 | 1 | 1 | 1 | 1 | |
| B | 63 | 14x18 | 135 | 1,380,000 | 3 | 2 | 1 | 1 | 1 | 1 | |
| C | 70 | 14x20 | 183 | 1,680,000 | 4 | 4 | 1 | 1 | 1 | 2 | มีห้องแม่บ้านและห้องน้ำในตัวแยก |
แบบบ้านชั้นเดียว รูปแบบ A
แบบบ้านสองชั้น รูปแบบ B
แบบบ้านสองชั้น รูปแบบ C
สร้างบ้านประหยัดพลังงานแล้ว เรามาประหยัดไฟฟ้า ประหยัดน้ำกันด้วยนะ
สำหรับหลักการเบื้องต้นในการสร้างบ้านประหยัดพลังงานที่เรานำมาฝากกันนี้ สามารถนำไปประยุกต์ใช้ได้จริง ซึ่งถ้าหากเราสามารถรับประโยชน์จากธรรมชาติมาใช้งานได้อย่างเต็มที่และเหมาะสม ก็จะทำให้เราประหยัดค่าใช้จ่ายในเรื่องของ ค่าไฟฟ้า ได้มากขึ้นอีกด้วย เกิดประโยชน์ทั้งต่อตัวเราเองและต่อสิ่งแวดล้อม นอกจากนี้เราควรใส่ใจการประหยัดไฟฟ้า ประหยัดน้ำ และพลังงานอื่นๆ เพิ่มเติม เช่น การปิดสวิตซ์ไฟเมื่อไม่ได้ใช้, การแยกสวิตซ์ไฟฟ้าออกจากกันทั้งบ้าน เพื่อสามารถเลือกเปิด-ปิด ได้เฉพาะจุด, การเลือกขนาดตู้เย็นให้เหมาะกับขนาดของครอบครัว และเรื่องเล็กๆ น้อยๆ อื่นๆ อย่างเช่น การแยกประเภทขยะ, การใช้ผลิตภัณฑ์ที่สามารถนำกลับมาใช้ใหม่ได้ หรือการใช้ตะกร้าหรือถุงผ้าไปจ่ายตลาด ก็มีส่วนช่วยในการประหยัดพลังงานได้ทั้งนั้นค่ะ