บ้านแมวจับหนู "Tom & Jerry" สุดยอดบ้านไม่เหมือนใคร ไอเดียคนไทย
บ้านใหม่บริเวณชายหาดชะอำหลังนี้ (ซึ่งออกแบบโดยบริษัทสถาปนิกไทยชื่อ "Onion" (
www.onion.co.th)) ถือเป็นสิ่งประดิษฐ์ที่สะท้อนแนวคิดของการ "คิดนอกกรอบ" (Think Outside the Box) ได้ดีที่สุดแห่งหนึ่ง บ้านหลังนี้ต้องชมทั้งไอเดีย และเจตนาที่ดีต่อลูกๆ ทั้ง 4 คนของเจ้าของบ้าน (คุณ Patta Sahawat) และบริษัทสถาปนิก Onion ที่ตกผลึกไอเดีย และสร้างบ้านหลังนี้จากจินตนาการจนออกมาเป็นของจริงได้สำเร็จ (ใช้เวลา 3 ปี (2011-2014)) เรามาดูกันครับว่าบ้านหลังมีอะไรน่าสนใจนอกกรอบกันบ้าง
จุดเริ่มต้นของบ้าน 435 ตร.ม. หลังนี้
เริ่มแรกเลยเจ้าของบ้านอยากได้บ้านที่เป็นบ้านสำหรับช่วงวันหยุดจริงๆ ที่ลูกๆ จะใช้เวลาร่วมกันอย่างมีความสุข และเมื่ออยู่แล้วจะได้ความรู้สึกของการพักผ่อนตากอากาศอย่างแท้จริง เปลี่ยนบรรยากาศจากบ้านในกรุงเทพ กิจกรรมในบ้านที่ลูกๆ ทั้ง 4 อาจเล่นร่วมกันก็มีทั้งวิ่งเล่น ปีนป่าย ห้อยตัว ซ่อนหา หรือแม้กระทั่งหกคะเมนตีลังกากันในบ้าน ซึ่งเป็นรูปแบบกิจกรรมที่นอกเหนือจากไลฟ์สไตล์ในบ้านของคนทั่วๆ ไป ทาง Onion จึงได้ออกแบบบ้านที่เรียกว่า "Jerry House" ขึ้นมา ซึ่งได้ไอเดียมาจากหนังการ์ตูนเรื่อง "Tom and Jerry" ด้วยการเปรียบเทียบบ้านหลังนี้ให้เป็นชีสชิ้นใหญ่ๆ (a big piece of cheese) บนสมมติฐานที่ว่า ถ้าหนู (Jerry) จะสร้างบ้านขึ้นมาเพื่อหลบแมว (Tom) บ้านนั้นน่าจะมีหน้าตาแบบชีสชิ้นใหญ่ๆ มีรูพรุนล้อมรอบเต็มไปหมด เป็นช่องทางเดิน หรือช่องวิ่งภายในที่หนูสามารถวิ่งหนีแมวไปได้เรื่อยๆ ไม่มีที่สิ้นสุดเหมือนแถบวงแหวนเมอบิอุส (Mobius Strip)

สถาปนิกออกแบบบริเวณกลางบ้านของบ้านหลังนี้มาจากไอเดียของก้อนชีสใหญ่ที่มีรูพรุน (Holes)
ซึ่งมีช่องทางให้หนู (Jerry) วิ่งหนีหลบแมว (Tom) ไปมาได้แบบไม่มีที่สิ้นสุด (Continuous Circulation)
สนามเด็กเล่นแนวตั้ง (Vertical Playground) ภายในบ้าน
หากดู Layout บ้านหลังนี้จากรูปข้างล่างก็ดูเหมือนเป็นบ้านธรรมดา แต่หากดูแนวตั้ง จะเห็นว่าพื้นที่ส่วนที่เป็น Main Living Hall ของทุกชั้นได้ทำให้เป็นส่วนโปร่งโล่ง (Void) เจาะทะลุยาว 3 ชั้นจากชั้นบนลงชั้นล่าง และขึงด้วยตาข่ายยืดหยุ่นเด้งได้ (Springy Nets) 5 ระดับในระดับความลาดชัน และความสูงที่ไม่เท่ากันในระหว่าง 3 ชั้นนั้น พร้อมทั้งมีบันได หรือทางลาดขึ้น-ลงพาดไปมาในแต่ระดับของตาข่ายนั้น ทั้งหมดนี้เพื่อให้เด็กๆ หรือแม้กระทั่งผู้ใหญ่ได้ปีนป่ายอย่างมีความสุข เรียกได้ว่าเป็นสนามเด็กเล่นแนวตั้ง (Vertical Playground) ภายในบ้านตากอากาศหลังนี้เลย

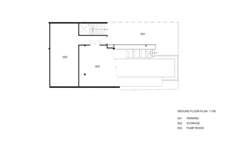
Floor Plan ชั้นล่างสุด (Ground Floor)

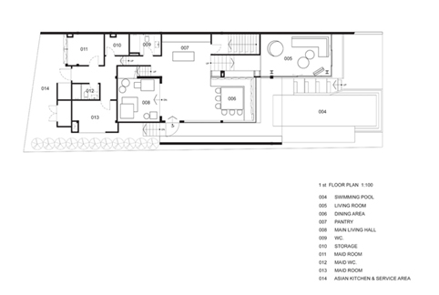
Floor Plan ชั้นที่ 1

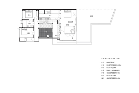
Floor Plan ชั้นที่ 2
Floor Plan ชั้นที่ 3 
ภาพบ้านนี้ภายในแนวตั้ง จะเห็นพื้นที่โปร่งโล่งที่มีการนำตาข่าย บันได และทางลาดขึ้น-ลงต่างๆ
มาติดตั้งเพื่อให้เป็นสนามเด็กเล่นแนวตั้ง (Vertical Playground) สำหรับลูกๆ 4 คนได้เล่นกัน
อย่างสนุกสนานในบ้านพักตากอากาศหลังนี้
เรามาชมภาพแต่ละชั้นของบ้านหลังนี้กัน

ภาพทางเข้า Main Living Hall ชั้นล่างสุดของบ้านหลังนี้

ภาพอีกด้านหนึ่งของ Main Living Hall ซึ่งทุกชั้นของบ้าน ก็จะมีบันไดเดินขึ้นลงได้เหมือนบ้านทั่วๆ ไปด้วย

บริเวณสนามเด็กเล่นแนวตั้งทั้งหมดจะทาสีขาว ส่วนอื่นๆ ของบ้านจะทาสีที่แตกต่างกันออกไป

พื้นที่ส่วนตาข่ายระดับ 2 (ทั้งหมดมี 5 ระดับชั้นตาข่าย)

พื้นที่ตาข่ายระดับ 2 และ 3 ถ้าจะไม่เดินขึ้นบันไดบ้านปกติ ก็สามารถปีนขึ้นตามบันได้ที่เห็นในรูปได้

ไม่เดินขึ้นบันไดปกติ ก็สามารถปีนขึ้นบันไดแบบนี้ได้ครับ

บางส่วนก็มีทางลาด ให้สไลด์ลงมาได้อย่างเมามันกันแบบนี้

หรือจะกระโดดโลดเต้น ตีลังกา เด้งไปเด้งมาได้หมดครับ เรียกว่าเป็นสวนสนุกในบ้านได้เลย
รูตามชั้นต่างๆ ที่เด็กๆ จะมุดออกมากระโดดโลดเต้นกันในกลางบ้านนี้

เมื่อมุดออกจากรูแล้วเด็กๆ ก็สามารถกระโดดโลดเต้นบนตาข่ายนี้ได้เลย

นอกเหนือจากสนามเด็กเล่นแนวตั้งแล้ว บริเวณทางเดินแนวนอนระหว่างห้องบางส่วน
ก็ทำเป็นเหมือนรูชีสเล็กๆ ให้เด็กวิ่งเล่นได้

ภาพตัวอย่างอีกช่องทางเดินหนึ่ง

ตัวอย่างห้องนอนของเด็กๆ ซึ่งก็มีการตกแต่งช่อง หรือทางเดิน
แบบจินตนาการให้คล้ายบ้านแมวบ้าง หรือรูชีส (Cheese Holes) บ้าง หลากหลายดีไซน์

ภาพห้องเดิมในอีกมุมหนึ่ง ซึ่งมองเข้าไปจะเหมือนรูหนูยังไงยังงั้น

ภาพห้องนอน Master Bedroom มีการทำบานประตู และหน้าต่าง
ให้เข้ากับคอนเซปต์ Tom & Jerry แตกต่างไม่เหมือนบ้านทั่วไป

ห้อง Master Bedroom มองจากด้านนอก

ภาพตัวอย่างอีกห้องนอนหนึ่ง

ผนังบนสุดของบ้านจะมีการติดฟิล์มแผ่นกระจก (Mirrored Film) เพื่อให้มีมิติ และมุมมองที่ดูโปร่งโล่งสูงกว่าปกติ

ปิดท้ายด้วยภาพระเบียงภายนอกบ้านสำหรับชมวิวทะเล

Design Director 2 ท่าน ของ Onion "Jerry House is thought of as the object that children would yearn for
and that increases the meaning of having a holiday at Cha-Am Beach for the parents."
สุดยอดบ้านหลังนี้ได้รับการยกย่อง และเผยแพร่ในเว็บไซต์ต่างประเทศหลายๆ เว็บไซต์ ซึ่งเราต้องขอปรบมือดังๆ ให้กับคุณพ่อคุณแม่เจ้าของบ้านน่ารักหลังนี้ และบริษัทสถาปนิกไทย Onion ซึ่งทำบ้านหลังนี้จากไอเดียการ์ตูน Tom & Jerry ให้ออกมาเป็นจริงได้ พบกันใหม่คราวหน้ากับบทความดีๆ แบบนี้จาก Checkraka.com ครับ