ใครกำลังมองหาคอนโดพร้อมอยู่ใจกลางเมืองในราคาที่จับต้องได้ง่ายต้องชมรีวิวนี้ เพราะวันนี้เราจะพาไปชมโครงการ เบลส เรสสิเดนซ์ เอกมัย
เบลส เรสสิเดนซ์ เอกมัย (Bless Residence Ekkamai) คอนโดแต่งครบพร้อมอยู่บนทำเลใจกลางเอกมัย ใกล้รถไฟฟ้า BTS เอกมัย และ BTS พระโขนง แวดล้อมไปด้วย ห้างสรรพสินค้า โรงเรียนนานาชาติ คาเฟ่ แหล่งแฮงเอาท์ มาพร้อม Hotel Service แบบโรงแรม นอกจากนี้ยังได้ความเป็นส่วนตัวสูง เพราะมีห้องพักอาศัยเพียง 127 ยูนิตเท่านั้น และมีร้านค้าอีก 1 ร้านที่ตั้งอยู่ภายในโครงการ สำหรับโครงการนี้จะมีความน่าสนใจขนาดไหนไปชมกันค่ะ
ข้อมูลโครงการ - เจ้าของและผู้พัฒนาโครงการ : ภูมิใจภัทร แอสเซ็ท พลัส จำกัด
- ที่ตั้งโครงการ : 919 ถนนสุขุมวิท 71, คลองตันเหนือ, วัฒนา, กรุงเทพฯ 10110
- อาคารชุดพักอาศัย : สูง 8 ชั้น จำนวน 1 อาคาร ห้องพักอาศัย 127 ยูนิต และ 1 ร้านค้า
- ขนาดที่ดินทั้งโครงการ : 1-0-4 ไร่
- ลิฟต์ : ลิฟต์โดยสาร 2 ตัว แบบล็อกชั้น
- ห้องชุด : มี 7 Type ได้แก่
- 1 ห้องนอน ขนาด 27 ตร.ม.
- 1 ห้องนอน ขนาด 32 ตร.ม.
- 1 ห้องนอน ขนาด 33 ตร.ม.
- 1 ห้องนอน ขนาด 35 ตร.ม.
- 1 ห้องนอน ขนาด 40 ตร.ม.
- 2 ห้องนอน ขนาด 39 ตร.ม.
- 2 ห้องนอน ขนาด 54 ตร.ม. - ที่จอดรถ : 50% รวมซ้อนคัน
- ราคาเริ่มต้น : 2.89 ล้านบาท (ข้อมูล ณ พ.ค. 2564)
- วันที่เข้าเยี่ยมชม - รีวิวคอนโด : 22 เม.ย. 2564
ทำเลที่ตั้งและสภาพแวดล้อมรอบๆ โครงการ ตัวโครงการตั้งอยู่ใจกลางสุขุมวิท ภายในซอยเอกมัย 22 แขวงคลองเตยเหนือ เขตวัฒนา กรุงเทพฯ ถือเป็นทำเลที่สะดวกสบายไม่ว่าจะเดินทางด้วยรถยนต์ส่วนตัว หรือจะเดินทางด้วยขนส่งสาธารณะอย่างรถไฟฟ้าก็ตาม ที่ตั้งของตัวโครงการสามารถเข้าออกได้ 2 เส้นทางหลักคือ จากสุขุมวิท 71 และ เอกมัยซอย 22 เป็นทำเลที่สามารถเชื่อมต่อเข้าสู่ถนนสายสำคัญๆ ได้หลากหลายเส้นทางมากๆ ไม่ว่าจะเป็นทองหล่อ เอกมัย, พระราม 9, RCA, เพชรบุรีตัดใหม่, พัฒนาการ, รามคำแหง หรือแม้กระทั่งย่านเลียบทางด่วนรามอินทรา-อาจณรงค์ ก็ไปได้สะดวก นอกจากนี้ตัวโครงการยังอยู่ไม่ไกลจากจุดขึ้นลงทางด่วนฉลองรัชอีกด้วย

แผนที่โครงการ Bless Residence Ekkamai
พิกัด Google map :
13.733315, 100.594340 การเดินทางโดยรถยนต์
ขาเข้าเส้นทางที่ 1 : จากถนนสุขุมวิท เข้าได้ทั้งจากซอยเอกมัย 22 และสุขุมวิท 71 ซอยปรีดี พนมยงค์ 41
ขาเข้าเส้นทางที่ 2 : จากพระราม 9 มุ่งหน้าถนนเพชรบุรี เข้าซอยสุขุมวิท 71
ขาออกเส้นทางที่ 1 : ใช้ทางพิเศษฉลองรัช
การเดินทางโดยรถไฟฟ้า
ทางโครงการได้อำนวยความสะดวกให้กับลูกบ้านที่ใช้รถ BTS ด้วย Shuttle Service รับ-ส่ง BTS เอกมัย และ BTS สถานีพระโขนง ไม่ต้องกังวลเรื่องการเดินทางเลยค่ะ

รถไฟฟ้า BTS สถานีเอกมัย ห่างจากโครงการประมาณ 2.9 กม.

รถไฟฟ้า BTS สถานีพระโขนง ห่างจากโครงการประมาณ 2.9 กม.

และรถไฟฟ้า Airport Link สถานีรามคำแหง ห่างจากโครงการประมาณ 1.6 กม.
(Credit : www.facebook.com/AirportRailLink)
สถานที่ใกล้เคียง และสภาพแวดล้อมรอบโครงการ หากพูดถึงทำเล "เอกมัย" ต้องถือว่าเป็นทำเลที่มีศักยภาพและความเจริญในหลายๆ ด้าน เพราะเป็นทำเลทองของการอยู่อาศัย มีอาคารสำนักงานขนาดใหญ่ ห้างสรรพสินค้า และแหล่งรวมไลฟ์สไตล์ระดับไฮเอนด์ของคนกรุงเทพฯ รวมตัวกันอยู่ในย่านนี้ครบทั้งหมด เรื่องอาหารการกินก็อุดมสมบูรณ์ไม่แพ้กัน เรียกว่ามีร้านค้าเปิดขายของกันตั้งแต่ปากซอยเอกมัยไปจนถึงท้ายซอย หิวเมื่อไหร่ก็แวะมาซื้อหาได้ตลอด นอกจากนี้ยังอยู่ใกล้โรงเรียนนานาชาติหลายแห่ง จึงไม่ต้องแปลกใจว่าทำไมเอกมัยถึงเป็นทำเลอันดับต้นๆ ที่อยู่ในความสนใจของคนที่ต้องการพักอาศัยในใจกลางเมือง

แผนที่แสดงให้เห็นสถานที่ใกล้เคียง

ภาพตำแหน่งที่ตั้งโครงการ
พิกัด Google map : 13.733315, 100.594340 
โรงเรียนนานาชาติแอ๊ดเวนตีสกรุงเทพ ตั้งอยู่ตรงข้ามกับตัวโครงการ

โรงเรียนทอสี ห่างจากโครงการประมาณ 100 เมตร

ติดกับโรงเรียนทอสีมีร้าน 7-ELEVEN

โรงเรียนไทยคริสเตียน ห่างจากโครงการประมาณ 160 เมตร

โรงเรียนนานาชาติเอกมัย ห่างจากโครงการประมาณ 1.3 กม.

เกตเวย์เอกมัย ห่างจากโครงการประมาณ 3.7 กม.

เมเจอร์เอกมัย ห่างจากโครงการประมาณ 3 กม.

Park Lane ห่างจากโครงการประมาณ 2.5 กม.

Big C เอกมัย ห่างจากโครงการประมาณ 2 กม.

ดองกิ มอลล์ ห่างจากโครงการประมาณ 1.6 กม.

เจ อเวนิว ห่างจากโครงการประมาณ 2 กม.

เดอะ คอมมอน ห่างจากโครงการประมาณ 2.3 กม.

โรงพยาบาลคามิลเลียน ห่างจากโครงการประมาณ 2 กม.

โรงพยาบาลสมิติเวช ห่างจากโครงการประมาณ 2.6 กม.
รูปแบบตึก และตัวโครงการโดยรวม เป็นคอนโดมิเนียม Low-rise สูง 8 ชั้น จำนวน 1 อาคาร พื้นที่โครงการขนาด 1-0-4 ไร่ ตัวอาคารเป็นโทนสีขาวสไตล์เรียบหรูดูคลาสสิค โดดเด่นสะดุดตา ออกแบบภายใต้คอนเซ็ปต์ Luxury Within Reach รูปแบบอาคารลักษณะรูปทรงตัว U โอบล้อมพื้นที่ส่วนกลาง เพื่อให้ลูกบ้านได้ความเป็นส่วนตัว หลบสายตาจากเพื่อนบ้านตึกข้างๆ เลือกใช้วัสดุคุณภาพดีที่นำเข้าจากต่างประเทศ ไม่ว่าจะเป็นหินอ่อนแท้ ตัวอาคารที่ตกแต่งด้วย Facade สีขาวผสมผสานเข้ามาให้ได้ความสวยแบบ Timeless ดูแล้วน่าสนใจ ทั้งโครงการมีห้องพักอาศัยทั้งหมดเพียง 127 ยูนิตเท่านั้น ดังนั้นลูกบ้านที่นี่จึงได้ความเป็นส่วนตัวแบบสูงสุด รูปแบบห้องพักอาศัยมีให้เลือกหลักๆ ด้วยกัน 2 แบบ คือ แบบ 1 ห้องนอน และแบบ 2 ห้องนอน แต่มี Type ให้เลือกแยกย่อยไปอีกมากถึง 7 Type ด้วยกัน เรียกว่าสามารถตอบโจทย์การใช้ชีวิตของลูกบ้านได้อย่างครบถ้วน มีลิฟต์โดยสาร 2 ตัว เป็นลิฟต์แบบล็อกชั้น เข้าออกได้เฉพาะชั้นพักอาศัยของตัวเองและชั้นส่วนกลาง

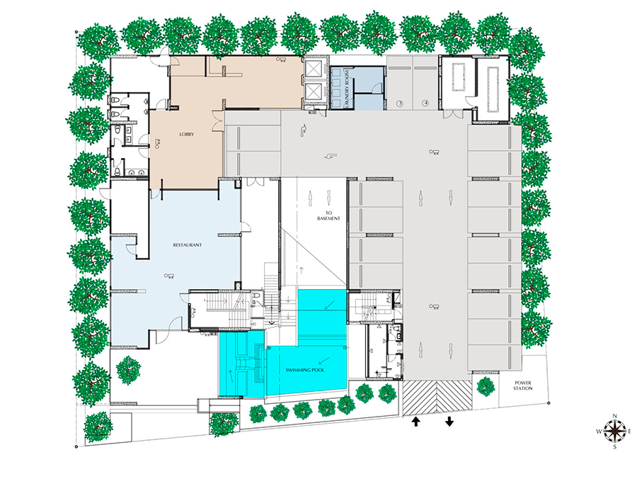
Floor Plan ชั้น 1

Floor Plan ชั้น 2

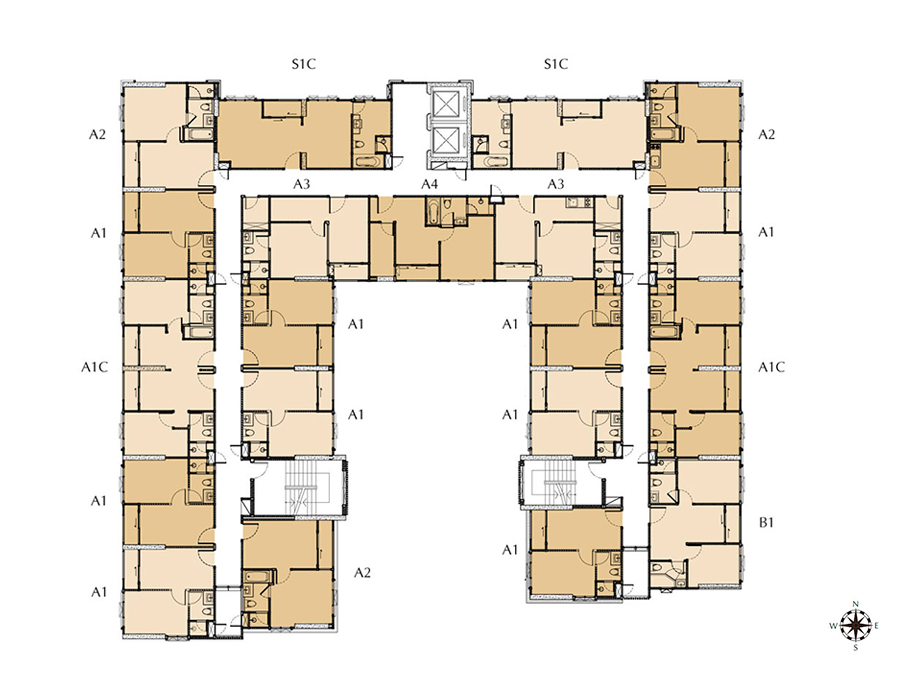
Floor Plan ชั้น 3-6

Floor Plan ชั้น 7

Floor Plan ชั้น 8
ส่วนกลางและสิ่งอำนวยความสะดวก เบลส เรสสิเดนซ์ เอกมัย เป็นคอนโด Low-rise ที่มอบส่วนกลางมาให้ครบ พร้อมการออกแบบที่หรูหราดูมีระดับ โดยจัดวางไว้ที่ชั้น 1, ชั้น 2, และชั้น 7 โดยแต่ละชั้นประกอบด้วย
ชั้น 1 - ล็อบบี้
- ห้องจดหมาย
- ห้องซักผ้า
- ที่จอดรถ
- ร้านอาหาร
ชั้น 2 - สระว่ายน้ำ
- สระเด็ก
- สวนส่วนกลาง
- ห้องออกกำลังกาย
- ห้องพักผ่อนอเนกประสงค์
สิ่งอำนวยความสะดวกอื่นๆ - ระบบ Fire Alarm
- Smoke Detector
- Fire Sprinkle
- กล้อง CCTV
- รปภ. 24 ชั่วโมง
- Key Card Access
- Security by SECOM

ทางเข้าโครงการจะมี 2 ทางด้วยกัน ทางแรกคือทางเข้าสำหรับรถยนต์

ส่วนทางเข้าอีกทางจะอยู่ทางด้านซ้าย ทางนี้จะเชื่อมต่อกับส่วนของร้านอาหาร และผ่านไปยังส่วนของล็อบบี้
ตรงบริเวณนี้จัดเก้าอี้ไว้สำหรับให้ลูกบ้านมานั่งพักผ่อนได้ด้วย

ตรงจุดนี้ทางโครงการมีเจ้าหน้าที่รักษาความปลอดภัยคอยดูแลตลอด 24 ชม.

มีรถ Shuttle Service สำหรับรับส่งลูกบ้านไปยังสถานีรถไฟฟ้า จอดรอให้บริการอยู่บริเวณลานจอดรถชั้น 1

จากหน้าโครงการขับเข้ามาจะมีทางลงไปยังโซนจอดรถชั้นใต้ดิน

โดยที่ชั้นใต้ดินนี้จะเป็นการเดินรถแบบทางเดียว
บรรยากาศบริเวณพื้นที่จอดรถติดไฟส่องสว่างมาให้ ไม่มืด และไม่แคบจนเกินไป

ที่โครงการมีเครื่องซักผ้าหยอดเหรียญไว้บริการให้กับลูกบ้าน
นอกจากนี้ยังมีบริการรับซักรีดด้วยนะคะ แต่เป็นบริการเสริมมีค่าใช้จ่ายเพิ่มเติมไม่รวมอยู่ในค่าส่วนกลาง

ล็อบบี้มีความพิเศษและโดดเด่นสะดุดตา ตกแต่งด้วยหินอ่อนแท้แผ่นใหญ่มีลวดลายที่แตกต่างกันเน้นโทนสว่างแต่เข้ากันได้อย่างลงตัว

พื้นปูด้วยหินอ่อน White Carrara Extra ส่วนเคาน์เตอร์ประชาสัมพันธ์ตกแต่งด้วยหินอ่อน Phantom White เพิ่มความน่าสนใจด้วยวัสดุสีคอปเปอร์

สำหรับผนังเป็นหินอ่อน Arabescato ลวดลายสวยงาม

มุมนั่งเล่นบริเวณล็อบบี้จัดวางเป็นชุดเก้าอี้สีคอปเปอร์เมื่ออยู่กับหินอ่อนยิ่งทำให้มุมนี้ดูหรูขึ้นไปอีก

จากหน้าเคาน์เตอร์มองตรงไปจะเป็นโถงลิฟต์

ใกล้กับโถงลิฟต์จะมีห้อง Mailbox

มีตู้จดหมายให้ครบทุกห้องพร้อมกุญแจล็อก ออกแบบมาในโทนสีคอปเปอร์ดูดีน่าใช้งาน

โถงลิฟต์บริเวณชั้น 1 ออกแบบได้เรียบหรู ตกแต่งด้วยหินดำอินเดีย Indian Black Granite

บรรยากาศบริเวณทางเดินที่เชื่อมต่อไปยังสระว่ายน้ำ ส่วนห้องกระจกด้านขวาเป็นร้านอาหารคาดว่าจะเปิดให้บริการเร็วๆ นี้

มุมอาบน้ำ และห้องน้ำบริเวณริมสระว่ายน้ำ

พื้นที่ส่วนกลางถูกโอบล้อมด้วยอาคารพักอาศัย

ออกแบบสระว่ายน้ำมาให้ 2 สระ แยกสระเด็กและสระผู้ใหญ่แบ่งเป็นสัดส่วน เป็นสระว่ายน้ำระบบเกลือ

สระว่ายน้ำผู้ใหญ่มีขนาด 5x6 เมตร ความลึก 1.30 เมตร

ส่วนสระว่ายน้ำเด็กมีความลึก 0.60 เมตร ให้เด็กๆ สามารถเล่นน้ำได้อย่างปลอดภัย

จัดชุดเก้าอี้สำหรับนั่งเล่นริมสระ ให้ผู้ปกครองสามารถดูแลเด็กๆ ได้อย่างใกล้ชิดขณะเล่นน้ำได้ด้วย

ออกแบบให้มีมุมน้ำตกเล็กๆ อยู่ริมสระ

สวนส่วนกลางขนาดกะทัดรัดให้เด็กๆ หรือลูกบ้านได้มาทำกิจกรรมในวันว่าง

จากมุมนี้ทางซ้ายจะเป็นห้อง Co-Working Space แต่ถ้าตรงไปจะเป็นห้องฟิตเนส

ภายในห้องฟิตเนสมีเครื่องออกกำลังกายครบครัน

ผนังบางส่วนแต่งด้วยกระจก เปิดรับแสงธรรมชาติทำให้ห้องดูกว้าง สว่าง ไม่อึดอัด

มองไปด้านนอกเห็นวิวสระว่ายน้ำและสวน

มีห้องพักอาศัยบางส่วนอยู่ใกล้กับห้องฟิตเนส

จากห้องฟิตเนสมีประตูสำหรับเดินเชื่อมต่อไปยังห้อง Co-Working Space

ตรงจุดนี้มีห้องน้ำส่วนกลางแยกชาย-หญิง

ภายในห้องน้ำจัดมาให้ครบทั้งห้องอาบน้ำ และห้องสุขา นี่เป็นบรรยากาศภายในห้องน้ำหญิง

ส่วนภายในห้องน้ำชายก็จัดมาให้ครบทั้งห้องอาบน้ำ และห้องสุขาเช่นกัน

บรรยากาศภายในห้อง Co-Working Space

พื้นที่ใช้สอยขนาดใหญ่เหมาะสำหรับให้ลูกบ้านได้มานั่งทำงาน หรือเป็นมุมติวหนังสือสำหรับนักเรียน

ผนังบางส่วนตกแต่งด้วยกระจกสามารถเทควิวสวนด้านนอกได้

มีเคาน์เตอร์ครัวเล็กๆ จัดวางไว้ที่มุมนี้

โถงลิฟต์บนชั้นพักอาศัย เจาะผนังบางส่วนเพื่อเปิดรับช่องแสงธรรมชาติทำให้ดูสว่าง

ทุกชั้นติดตั้งไฟฉุกเฉินไว้ให้กรณีที่เกิดไฟดับ

มีป้ายแสดงบอกตำแหน่งเลขที่ห้องพักอย่างชัดเจน

มีกล้อง CCTV ติดไว้บริเวณโถงทางเดินหันครอบคลุมครบทุกมุม

โถงทางเดินกว้างประมาณ 1.5 เมตร พร้อมติดป้ายบอกทางหนีไฟชัดเจน

ทางเดินออกไปยังพื้นที่ส่วนของ Sky Garden บนชั้น 7

Sky Garden บนชั้น 7 จะมีด้วยกัน 2 โซน คือ โซนปีกซ้าย และปีกขวาของตัวอาคาร
สามารถขึ้นมานั่งเล่นชมวิวเมืองสวยๆ ได้ที่มุมนี้
ภาพห้องตัวอย่างและ Lay out ห้องพักอาศัยขายแบบ Fully Furnished ความสูงจากพื้นถึงฝ้า 2.4 เมตร รายการเฟอร์นิเจอร์ มาตรฐาน Digital Door Lock, ชุดครัว Built-in, เตาไฟฟ้า, เครื่องดูดควัน, อ่างล้างจาน, เครื่องปรับอากาศ และ สุขภัณฑ์ในห้องน้ำ พร้อมฉากกั้นอาบน้ำ
- 1 ห้องนอน ขนาด 27 ตร.ม.
- 1 ห้องนอน ขนาด 32 ตร.ม.
- 1 ห้องนอน ขนาด 33 ตร.ม.
- 1 ห้องนอน ขนาด 35 ตร.ม.
- 1 ห้องนอน ขนาด 40 ตร.ม.
- 2 ห้องนอน ขนาด 39 ตร.ม.
- 2 ห้องนอน ขนาด 54 ตร.ม.
วันนี้เราจะพาไปชมด้วยกัน 2 แบบ เป็นห้องแบบ 1 ห้องนอน ขนาด 27 ตร.ม. และ 2 ห้องนอน ขนาด 54 ตร.ม. เริ่มจากห้องแรก
1) ห้องแบบ 1 ห้องนอน พื้นที่ใช้สอยขนาด 27 ตร.ม.

ประตูสำเร็จรูปพร้อมช่องส่อง

ทางโครงการติด Digital Door Lock ของ Adel มาให้ ใช้ได้ทั้งระบบ Keycard และกุญแจ

มีปุ่มสัญลักษณ์ Do not Disturb เมื่อต้องการความเป็นส่วนตัวและไม่ต้องการให้ใครรบกวน
และมีปุ่ม Make Up Room กรณีที่ต้องการให้แม่บ้านทำความสะอาด

โดยตำแหน่งของปุ่ม Make Up Room และปุ่ม Do not Disturb จะอยู่ที่โซนห้องครัว มีช่องเสียบการ์ดสำหรับเปิด-ปิดไฟเหมือนเวลาที่เข้าพักในโรงแรม

เปิดเข้ามาทางซ้ายจะเป็นห้องครัวที่เชื่อมต่อกับห้องนั่งเล่น
ความสูงจากพื้นถึงฝ้า 2.4 เมตร

พื้นของโซนห้องครัวและห้องนั่งเล่นปูด้วยกระเบื้องแกรนิตโต้ลายหินอ่อน ทำความสะอาดง่าย

จากมุมนี้มองย้อนกลับไปยังประตูทางเข้า จะเห็นตำแหน่งของพื้นที่ครัวได้อย่างชัดเจน ได้เคาน์เตอร์ครัวรูปทรงตัว L

วัสดุท็อปเป็นหินดำอินเดียทนความร้อนความชื้นและรอยขีดข่วนได้ดี

มีช่องเก็บของทั้งด้านบนและด้านล่าง

มีช่องสำหรับวางไมโครเวฟที่ด้านล่าง

ติดตั้งปลั๊กมาให้เรียบร้อย

ออกแบบด้ามจับมาได้ถนัดมือ
หน้าบานของตู้เก็บของปิดผิวด้วยลามิเนตบานพับทั้งหมดเป็นระบบ Soft Close เปิดปิดตู้ได้อย่างสบายใจหมดกังวลเรื่องการกระแทก

ได้อ่างล้างจานหลุมเดียวของ Max พร้อมก๊อกน้ำหัวโค้ง

ได้เตาไฟฟ้า 2 หัวของ Electrolux

และเครื่องดูดควันของ Electrolux เป็นระบบมีฟิลเตอร์กรองในตัว

ถัดมาเป็นมุมสำหรับทานอาหาร วางโต๊ะทานอาหารได้ขนาด 2 ที่นั่ง ตั้งไว้ด้านข้างโซฟา

หรือจะวางเก้าอี้ชิดผนังในลักษณะนี้ก็ได้ ทำให้ได้พื้นที่ทางเดินกว้างขึ้น

ห้องนี้เหมาะสำหรับวางโซฟาขนาด 2 ที่นั่ง

ระยะดูทีวีอยู่ที่ประมาณ 1.3 เมตร

ผนังห้องมาตรฐานที่ส่งมอบให้ลูกค้าเป็นแบบฉาบเรียบทาสี
ทุกห้องจะได้ม่าน 2 ชั้น ทั้งม่านโปร่งและม่านทึบแสงให้ความรู้สึกเหมือนห้องพักที่โรงแรม

บริเวณห้องนั่งเล่นเชื่อมต่อกับส่วนของระเบียง ตรงจุดนี้ยกธรณีสูงประมาณ 15 ซม. ป้องกันน้ำเข้าห้องได้ดี แต่เวลาเดินเข้าออกระวังสะดุดด้วยนะคะ

ราวระเบียงสูงประมาณ 100 ซม.
ทางซ้ายเป็นตำแหน่งของคอมเพรสเซอร์แอร์ยกลอยขึ้นด้านบน ส่วนด้านล่างติดตั้งก๊อกน้ำสำหรับซักล้างมาให้ที่บริเวณนี้

ที่ระเบียงของทุกห้องติดตั้งระแนงบังสายตามาให้ด้วยเพื่อความเรียบร้อยสวยงาม

บนเพดานของระเบียงติดตั้งโคมซาลาเปามาให้ 1 ดวง

จากระเบียงห้องสามารถมองเห็นวิวสวยๆ ของสระว่ายน้ำ และสวนส่วนกลางได้

มุมนี้จากระเบียงมองย้อนเข้าไปยังส่วนของห้องพักเพื่อให้เห็นภาพรวมภายในห้อง

ห้องนอนกั้นเป็นสัดส่วนด้วยประตูบานทึบได้ความเป็นส่วนตัว

ประตูทางเข้าห้องนอนจะอยู่ระหว่างโซนห้องครัวกับโซนห้องนั่งเล่น
พื้นห้องนอนปูด้วยลามิเนตหนา 12 มม.

ภายในห้องนอนได้เตียงขนาด 6 ฟุต พร้อมฟูกที่นอน 
เหลือระยะเดินปลายเตียงประมาณ 30 ซม.

ใครที่ชอบดูทีวีในห้องนอนสามารถติดทีวีไว้ที่ผนังในลักษณะนี้ได้
และในห้องนอนทุกห้องจะได้แอร์ Daikin Inverter ขนาด 9,000 BTU
ตรงจุดนี้ทางโครงการติดตั้งปลั๊กไฟมาให้สำหรับพร้อมใช้งาน 
ในห้องนอนได้หน้าต่างบานใหญ่สูงจรดฝ้า พร้อมหน้าต่างบานกระทุ้งอีก 1 บาน สำหรับเปิดระบายอากาศ วัสดุเป็นกระจกตัดแสงสีเขียว

ข้างเตียงเหลือพื้นที่อีกเยอะพอสมควรสามารถวางโต๊ะเครื่องแป้งได้สบายๆ

ห้องนี้ได้ตู้เสื้อผ้า Built-in หน้าบานเป็นกระจกเงาแบบเต็มบานสูงจรดฝ้า

ภายในออกแบบพื้นที่สำหรับแขวนได้ทั้งเดรสยาว และเสื้อผ้าทั่วไป พร้อมลิ้นชักและช่องเก็บของทั้งด้านบนและด้านล่าง

ซึ่งทางโครงการติดไฟซ่อนภายในตู้มาให้ด้วย

ตำแหน่งของห้องน้ำจะอยู่ภายในห้องนอน สะดวกและได้ความเป็นส่วนตัว ออกจากห้องน้ำปุ๊บก็สามารถแต่งตัวได้เลย

ประตูห้องน้ำเป็นแบบบานผลักลูกบิดกลมมีช่องระบายอากาศด้านล่าง

ภายในห้องน้ำแบ่งพื้นที่โซนเปียก และโซนแห้งมาให้อย่างชัดเจน

ได้อ่างล้างหน้าทรงสี่เหลี่ยมสีขาวของ Kohler พร้อมก๊อกน้ำหัวผสม
พื้นที่รอบอ่างล้างหน้าสามารถวางอุปกรณ์อาบน้ำได้อีกเล็กน้อย

ติดตั้งเครื่องทำน้ำร้อนไว้ให้ที่ใต้อ่างล้างหน้า

โถสุขภัณฑ์ของ Kohler ระบบประหยัดน้ำ 2 ปุ่มกด

โซนอาบน้ำกั้นด้วยกระจกนิรภัย Tempered Glass ประตูผลักเข้าด้านใน
ขอบประตูติดยางป้องกันน้ำรั่วซึมออกมาด้านนอก

เจาะผนังบางส่วนดีไซน์เป็นพื้นที่สำหรับเก็บอุปกรณ์อาบน้ำ

ได้ Hand Shower ของยี่ห้อ Kohler

และ Rain Shower ยี่ห้อ Kohler เช่นกัน

บนเพดานติดพัดลมระบายอากาศมาให้ 1 ตัว
2) ห้องแบบ 2 ห้องนอน พื้นที่ใช้สอยขนาด 54 ตร.ม.

เปิดประตูเข้ามาด้านขวาทางโครงการ Built-in เป็นตู้สำหรับเก็บรองเท้าและตู้เก็บของมาให้ดูเป็นไอเดีย

ส่วนด้านซ้ายจะเป็นโซนของห้องครัว ได้ชุดครัวรูปตัว L คล้ายห้องที่แล้ว แต่ขนาดใหญ่กว่าฟังก์ชันการใช้งานมากกว่า มีพื้นที่สำหรับวางตู้เย็นมาให้ด้วย

ห้องนี้ได้เตาไฟฟ้าขนาดใหญ่ขึ้นเป็นแบบ 4 หัว และเครื่องดูดควันของ Electrolux

ลิ้นชักและตู้เก็บของก็มากขึ้นตามไปด้วย เก็บของได้เยอะมากๆ

ภายในลิ้นชักมีถาดจัดระเบียบสำหรับเก็บช้อนส้อมและอุปกรณ์เครื่องครัวมาให้ด้วย

ตรงข้ามกับโซนครัวเป็นพื้นที่รับประทานอาหาร

สามารถวางโต๊ะทานอาหารได้ขนาด 4 ที่นั่งตามลักษณะนี้

ด้านข้างยังเหลือพื้นที่อีกพอสมควร สำหรับครอบครัวใหญ่สามารถจัดวางเป็นโต๊ะทานอาหารขนาด 6 ที่นั่งก็ยังได้

พื้นที่ทานอาหารอยู่ติดกับระเบียง แสงจากธรรมชาติทำให้ห้องสว่างโดยที่ไม่ต้องเปิดไฟ

ความพิเศษอย่างหนึ่งของห้องนี้คือจัดแบ่งห้องทานอาหาร และห้องนั่งเล่นแยกจากกันเป็นสัดส่วน

พื้นที่ห้องนั่งเล่นก็ยังคงอยู่ติดกับระเบียงเช่นกัน วันไหนเบื่อๆ ก็สามารถออกไปยืนรับลมชมวิวที่ระเบียงได้

มุมนี้ยังคงเหมาะสำหรับวางโซฟาขนาด 2 ที่นั่งเช่นกัน

ระยะดูทีวีอยู่ที่ประมาณ 1.3 เมตร

สำหรับห้องนอนก็ยังคงจัดแบ่งเป็นสัดส่วนและให้ความเป็นส่วนตัวด้วยประตูบานทึบ

ภายในห้อง Master Bedroom จะได้เตียงขนาดใหญ่ขึ้นเป็นแบบ 6 ฟุต พร้อมฟูกที่นอน

ในห้องนอนได้แอร์ 1 เครื่อง ตำแหน่งแอร์ติดตั้งไว้ให้ที่ผนังปลายเตียง และห้องนี้ยังคงได้หน้าต่างบานใหญ่เปิดรับแสงธรรมชาติได้ดี

ยังคงได้ตู้เสื้อผ้า Built-in ขนาดใหญ่ พร้อมไฟซ่อนสำหรับส่องสว่างภายในตู้

กระจกจากตู้เสื้อผ้าช่วยสะท้อนทำให้ห้องดูกว้างมากยิ่งขึ้นไปอีก

ห้อง Master Bedroom จะมีห้องน้ำอยู่ภายในห้อง

ขนาดพื้นที่ใช้สอยค่อนข้างกว้างจัดฟังก์ชันการใช้งานมาให้ครบ พร้อมสุขภัณฑ์ของ Kohler

โซนซ้ายของห้องน้ำจะได้ฉากกั้นอาบน้ำพร้อม Rain Shower และ Hand Shower ครบ
ประตูฉากกั้นอาบน้ำห้องนี้เป็นแบบเปิดออกเดินเข้าออกสะดวก

โซนกลางของห้องจะเป็นโถสุขภัณฑ์ และอ่างล้างหน้า

และความพิเศษอีกอย่างของห้องนี้คือได้อ่างอาบน้ำแบบเข้ามุมขนาดพอเหมาะ สำหรับให้นอนแช่ตัวในวันพักผ่อน

สำหรับห้องนอนเล็กจะอยู่ใกล้กับพื้นที่รับประทานอาหาร
จากมุมนี้ประตูที่เห็นทางซ้ายจะเป็นห้องน้ำ และประตูทางขวาเป็นห้องนอนเล็ก

ต้องบอกว่าถึงจะเป็นห้องนอนเล็ก แต่ขนาดที่ทางโครงการให้มาไม่ได้เล็กเลย
สำหรับห้องนอนเล็กในห้องตัวอย่างจัดเตียงแบบ 3.5 ฟุตมาให้ดูเป็นตัวอย่างแต่ห้องจริงจะได้เตียงแบบ 5 ฟุต

ยังคงได้ตู้เสื้อผ้า Built-in ขนาดใหญ่พร้อมติดไฟซ่อนเหมือนเดิม

และในห้องนอนนี้ก็ยังคงได้แอร์อีก 1 เครื่อง

สำหรับห้องน้ำที่ 2 ไม่ได้อยู่ภายในห้องนอนเล็ก แต่เป็นห้องน้ำที่ใช้ร่วมกันระหว่างห้องนอนเล็กและห้องรับแขก
ข้อดีคือยังคงได้ความเป็นส่วนตัวเวลามีเพื่อนมาที่ห้องจะได้ไม่ต้องเดินผ่านเข้าไปยังห้องนอน

ภายในห้องน้ำที่ 2 นี้แบ่งพื้นที่โซนเปียก โซนแห้งมาให้อย่างชัดเจน พร้อมสุขภัณฑ์ในห้องน้ำของ Kohler
ราคาและค่าใช้จ่ายที่เกี่ยวข้องโดยประมาณ (ณ พ.ค. 2564) ราคาเริ่มต้น - ห้องแบบ 1 ห้องนอน ขนาด 27 ตร.ม. ราคาเริ่มต้น 2.89 ล้านบาท
ค่าใช้จ่ายอื่นๆ - เงินกองทุน 750 บาท/ตร.ม. (ชำระครั้งเดียว ณ วันโอนกรรมสิทธิ์)
- ค่าบำรุงส่วนกลาง 75 บาท/ตร.ม. (ชำระล่วงหน้า 1 ปี)
โปรโมชั่น - ตกแต่งครบพร้อมเฟอนิเจอร์
- ฟรีค่าส่วนกลาง
- ฟรีค่ากองทุน
- ฟรีค่าธรรมเนียมการโอน
สถานะปัจจุบันของโครงการ (ณ พ.ค. 2564) ปัจจุบันโครงการ เบลส เรสสิเดนซ์ เอกมัย (Bless Residence Ekkamai) ก่อสร้างแล้วเสร็จพร้อมให้ลูกบ้านเข้าอยู่แล้ว โดยมียอดขายไปแล้วกว่า 70% สามารถติดต่อเข้าชมโครงการได้ทุกวัน ตั้งแต่เวลา 9.30 - 18.30 น.
โครงการ เบลส เรสสิเดนซ์ เอกมัย (Bless Residence Ekkamai) ถือเป็นอีกหนึ่งโครงการที่น่าสนใจ ด้วยราคาที่สามารถจับต้องได้ง่าย ตอบโจทย์ลูกค้าที่อยากพักอาศัยอยู่ใจกลางเมือง ถือว่ามีความคุ้มค่าเมื่อเทียบกับราคาในย่านเดียวกันที่ปัจจุบันราคาคอนโดในย่านเอกมัยเฉลี่ยอยู่ที่ประมาณ 180,000 บาท/ตร.ม. ขึ้นไป แต่โครงการ เบลส เรสสิเดนซ์ เอกมัย ราคาเฉลี่ยเริ่มต้นเพียง 115,000 บาท/ตร.ม. เท่านั้น แต่ได้ทั้งวัสดุคุณภาพระดับพรีเมียมพร้อมส่วนกลางที่ครบครัน เรียกว่าจะซื้อไว้อยู่เองก็ดี หรือจะซื้อไว้สำหรับลงทุนปล่อยเช่าก็คุ้ม
สอบถามข้อมูลเพิ่มเติมที่ โทร. 094-952-5252 หรือ www.blessekkamai.com