รีวิว-เยี่ยมชม คอนโด แอชตัน อโศก (Ashton Asoke)
รอบนี้เราจะพาไปชมคอนโดมิเนียม High-Rise ระดับลักซ์ชัวรี่ใจกลางสุขุมวิท
แอชตัน อโศก (Ashton Asoke) จากอนันดาฯ ที่ออกแบบในสไตล์ "Serenity design" ที่หรูเรียบเฉียบคมในทุกมุมมอง เทควิวได้แบบ 270 องศา บนทำเล Prime Location ใกล้แยกอโศก เชื่อมต่อรถไฟฟ้า 2 สาย เพียง 20 เมตร จาก MRT สถานีสุขุมวิท และเพียง 230 เมตร จาก BTS สถานีอโศก ตามเราไปสัมผัสความหรูหราของโครงการนี้หลังจากสร้างเสร็จแล้วกันค่ะ ว่าบรรยากาศจริงๆ จะมีความสวยงามขนาดไหน

- เจ้าของและผู้พัฒนาโครงการ : บริษัท อนันดา ดีเวลลอปเม้นท์ จำกัด (มหาชน)
- ที่ตั้งโครงการ : ถนนอโศกมนตรี แขวงคลองเตยเหนือ เขตวัฒนา กรุงเทพฯ
- อาคารชุดพักอาศัย : สูง 50 ชั้น จำนวน 1 อาคาร จำนวนห้องพักอาศัย 783 ยูนิต
- ขนาดที่ดินทั้งโครงการ : 7-3-47.60 ไร่
- ลิฟต์ : ลิฟต์โดยสาร 6 ตัว และลิฟต์ดับเพลิง 1 ตัว
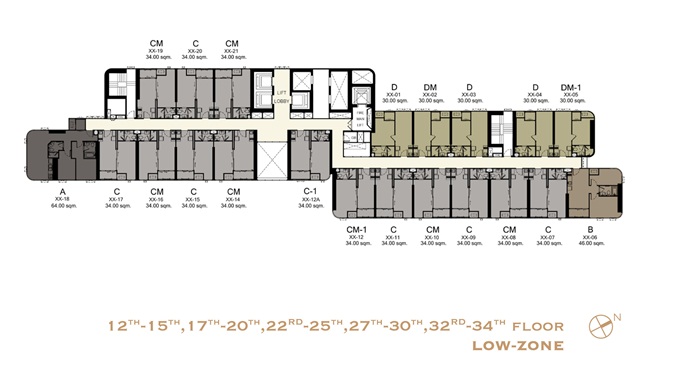
- ห้องชุด : มี 4 Type ได้แก่
- 1 ห้องนอน ขนาด 30 ตร.ม.
- 1 ห้องนอน ขนาด 34 ตร.ม.
- 2 ห้องนอน 1 ห้องน้ำ ขนาด 46 ตร.ม.
- 2 ห้องนอน 2 ห้องน้ำ ขนาด 64 ตร.ม. - ที่จอดรถ : 371 คัน (ไม่รวมซ้อนคัน)
- ราคาเริ่มต้น : 7.49 ล้านบาท (ข้อมูล ณ 19 ธ.ค. 62)
- วันที่เข้าเยี่ยมชม - รีวิวคอนโด : 19 ธ.ค. 62
ทำเลที่ตั้งและสภาพแวดล้อมรอบๆ โครงการ
ตั้งอยู่ติดถนนอโศกมนตรี แขวงคลองเตยเหนือ เขตวัฒนา กรุงเทพฯ ซึ่งเชื่อมต่อไปถนนสุขุมวิท, ถนนเพชรบุรี, ถนนรัชดาภิเษก ใกล้ MRT สถานีสุขุมวิทเพียง 30 เมตร และใกล้ BTS สถานีอโศกเพียง 230 เมตร

แผนที่โครงการ แอชตัน อโศก
พิกัด Google map :
13.738764, 100.561305 สำหรับโครงการ แอชตัน อโศก สามารถเดินเข้าโครงการได้จากซอยสุขุมวิท 19 (ซอยโรงแรม The Westin Grande) ซึ่งประตูทางเข้านี้สำหรับคนเดินเท้าอย่างเดียวนะคะ รถยนต์ต้องเข้าที่ทางหลักตรงอโศกมนตรีค่ะ
ถนนเส้นหลักก็คือ "อโศกมนตรี" ซึ่งสามารถเชื่อมต่อไปถนนสุขุมวิท, ถนนเพชรบุรี, ถนนรัชดาภิเษก รวมถึงเชื่อมไปยังทางด่วนได้สะดวก
ขาเข้าเส้นทางที่ 1 : จากทางด่วนเพลินจิต
ขาเข้าเส้นทางที่ 2 : จากถนนพระราม 4
ขาออกจากโครงการ : ไปแยกพระราม 9

ภาพมุมสูงแสดงให้เห็นโครงการ รถไฟฟ้า และสภาพแวดล้อมรอบๆ โครงการ
รถไฟฟ้า MRT สถานีสุขุมวิท ห่างประมาณ 230 เมตร
รถไฟฟ้า BTS สถานีอโศก ห่างประมาณ 230 เมตร
สถานที่ใกล้เคียง และสภาพแวดล้อมรอบโครงการ
หากพูดถึงทำเล "อโศก" ถือว่าเป็นศูนย์กลางความเจริญในหลายด้าน เป็นทำเลทองของการอยู่อาศัย ที่ตั้งของอาคารสำนักงานขนาดใหญ่ ห้างสรรพสินค้า และร้านค้าต่างๆ และมีความสะดวกด้านการเดินทาง เพราะเป็นที่ตั้งของสถานี Interchange ระหว่างรถไฟฟ้า 2 สาย คือ รถไฟฟ้า MRT สถานีสุขุมวิท และรถไฟฟ้า BTS สถานีอโศก ทำให้ทำเลนี้ถูกรายล้อมด้วยสถานที่สำคัญ อาทิ ห้างสรรพสินค้า เทอมินัล 21, โรบินสันสุขุมวิท, มหาวิทยาลัยศรีนครินทรวิโรฒ, ห้างเอ็มควอเทียร์, ดิเอ็มโพเรียม, Interchange Tower, Exchange Tower เป็นต้น

แผนที่แสดงให้เห็นสถานที่ใกล้เคียง

ทางเข้าโครงการอยู่ติดถนนอโศกมนตรีซึ่งห่างจาก ประตูทางเข้ารถไฟฟ้า MRT เพียงแค่ 30 เมตรเท่านั้น

ประตู 1 ซึ่งเป็นทางเข้ารถไฟฟ้า MRT ที่ถือว่าใกล้มากทีเดียว และยังเป็นทางเชื่อมไปรถไฟฟ้า BTS ได้อีกด้วย

ลงมาด้านล่างแล้ว จะเห็น Metro Mall ซึ่งทางตรงนี้สามารถเดินเชื่อมไปที่รถไฟฟ้า BTS สถานีอโศกได้
โดยไม่ต้องเดินตากแดดด้านบน สะดวกมากเลยค่ะ

ภายใน Metro Mall มีร้านอาหาร ร้านกาแฟ และร้านขายของใช้หลากหลายร้าน

จาก Metro Mall เลี้ยวซ้ายมาจะเห็นบันไดเลื่อนซึ่งเป็นทางเชื่อมไปขึ้นรถไฟฟ้า BTS สถานีอโศก

รถไฟฟ้า BTS สถานีอโศกซึ่งห่างจากโครงการประมาณ 300 เมตร

Terminal 21 อยู่ติดกับรถไฟฟ้า BTS สถานีอโศก ห่างจากโครงการประมาณ 350 เมตร

ภายในห้างมีทั้งซุปเปอร์ มาร์เก็ต โรงหนัง และร้านอาหารอีกมากมาย

Robinson สุขุมวิท ติดกับ โรงแรม Westin Grande ตั้งอยู่หน้าปากซอยสุขุมวิท 19
ซึ่งสามารถเดินไปโครงการได้จากซอยนี้

ภายในซอยสุขุมวิท 19 จะเป็นที่ตั้งของ รร.วัฒนาวิทยาลัย ซึ่งห่างจากโครงการประมาณ 800 เมตร

Interchange Tower อาคารสำนักงานตั้งอยู่แยกอโศก

Exchange Tower อาคารสำนักงานตั้งอยู่แยกอโศก

จากทางเข้าตรงถนนอโศกมนตรี มาเดินดูด้านซ้ายของโครงการในระยะ 200 เมตร บ้างค่ะ

ฝั่งนี้จะมีร้าน Black Canyon

เดินมาตามทางเรื่อยๆ จะมีทั้งร้านกาแฟ ร้านอาหาร เรียงรายให้เลือกมากมาย

เคนชิน อิซากายะ ร้านอาหารญี่ปุ่นห่างจากโครงการ 200 เมตร

SINO-THAI Tower ก็อยู่ไม่ไกลจากโครงการเลยค่ะ

ม.ศรีนครินทรวิโรฒ ห่างจากโครงการประมาณ 750 เมตร

อุทยานเบญจสิริ ห่างจากโครงการประมาณ 1.3 กม.

EmQuartier ห่างจากโครงการประมาณ 1.4 กม.

Emporium ห่างจากโครงการประมาณ 1.4 กม.
รูปแบบตึก และตัวโครงการโดยรวม
ตัวอาคารเป็นคอนโดมิเนียม High-rise สูง 50 ชั้น 1 อาคาร พื้นที่โครงการขนาด 7-3-47.60 ไร่ ที่ตั้งของตัวอาคารมีระยะถอยร่นห่างจากถนนอโศกมนตรีประมาณ 70 เมตร ทำให้ได้ความเป็นส่วนตัวมากยิ่งขึ้น ตัวอาคารรูปทรงแบน สูงโดดเด่นสะดุดตา ออกแบบให้มีความเล่นระดับในสไตล์โมเดิร์น มีความหรูหราล้ำสมัย ด้านมุมของตัวอาคารออกแบบให้กระจกมีความโค้งมนสามารถชมวิวเมืองได้แบบเต็มๆ ตา ห้องพักอาศัยรวม 783 ยูนิต เริ่มต้นตั้งแต่ชั้น 11 ขึ้นไป รูปแบบห้องพักอาศัยมีให้เลือกตั้งแต่แบบ 1 - 2 ห้องนอน ทุกห้องเป็นระเบียง 2 ชั้น แบบ Double Windows
มีลิฟต์โดยสาร 6 ตัว และลิฟต์หนีไฟ 1 ตัว เป็นลิฟต์แบบล็อคชั้น เข้าออกได้เฉพาะชั้นพักอาศัยของตัวเองและชั้นส่วนกลาง โดยแบ่งเป็นฝั่ง Low Zone 3 ตัว สำหรับลูกบ้านที่พักอาศัยตั้งแต่ชั้น 11-35 และฝั่ง High Zone 3 ตัว สำหรับลูกบ้านที่พักอาศัยตั้งแต่ชั้น 36 - 50 โดยลิฟต์ของทั้ง 2 ฝั่งจะจอดที่ชั้นส่วนกลาง และชั้นจอดรถ (ชั้น 1-9) ลูกบ้านสามารถเลือกขึ้นตัวไหนก็ได้
การเดินรถภายในโครงการบางช่วงจะเป็นแบบ 2 ทางสวนกัน โดยจากประตูทางเข้าโครงการขับตรงเข้ามาเป็นทางบังคับเลี้ยวขวา ก็จะเจอไม้กระดกกั้นอยู่ ให้ขับตามลูกศรเพื่อไปยังทางเข้าที่จอดรถ โดยพื้นที่จอดรถจะกระจายอยู่ที่บริเวณชั้น 1 - 10 และบริเวณรอบอาคาร ทั้งโครงการสามารถจอดรถได้ประมาณ 371 คัน พร้อม EV Charger และที่จอดรถ Super Car
ส่วนกลางและสิ่งอำนวยความสะดวก
สิ่งอำนวยความสะดวกส่วนกลางจัดมาให้ครบ พร้อมการออกแบบที่หรูหราดูมีระดับ และโดดเด่นกว่าโครงการอื่นๆ โดยจัดวางไว้ที่ชั้น Ground, ชั้น 35, ชั้น 35M, ชั้น 47 และชั้น 48 โดยแต่ละชั้นประกอบด้วย
ชั้น Ground - ล็อบบี้
- ห้องจดหมาย
- ห้องประชุม
- สวนหย่อม
- ที่จอดรถ
ชั้น 35 - สระว่ายน้ำ
- สระเด็ก
- จากุซซี่
- ห้องออกกำลังกาย
- ห้องเปลี่ยนเสื้อผ้าและห้องน้ำ
- ห้องอบไอน้ำ
- ห้องซาวน่า
- ห้องซักรีด
ชั้น 47 และชั้น 48 - สวนหย่อม และพื้นที่สีเขียว

ทางโครงการมีเจ้าหน้ารักษาความปลอดภัยตลอด 24 ชม.
แนวรั้วโครงการปลูกเป็น Green Wall สวนแนวตั้งดูสบายตา

ด้านหน้าโครงการตกแต่งเป็นสวนขนาดใหญ่ให้ความร่มรื่น มีต้นไม้ใหญ่ที่ช่วยให้ร่มเงา
และช่วยบังแดดได้ดี สามารถมานั่งพักผ่อนตรงนี้ได้

จากหน้าโครงการขับเข้ามาจะเป็นทางบังคับเลี้ยวขวา ตรงจุดนี้จะมีไม่กระดกกั้น
พร้อมป้ายแสดงจำนวนพื้นที่ว่างสำหรับการจอดรถในแต่ละชั้น

มีกล้อง CCTV และ
ผ่านเข้าออกด้วยระบบ Key Card Access 
มีจุดชาร์จรถยนต์ไฟฟ้า (EV Charger)

และยังมีที่จอดรถ Supercar

ทางขึ้นที่จอดรถ จำกัดความสูงของรถอยู่ที่ 2.10 เมตร

บรรยากาศบนลานจอดรถ

มุมนี้เป็น Semi-Outdoor Lobby
ดีไซน์ให้มีบ่อน้ำล้อมรอบ ตกแต่งด้วยหิน และไม้ให้ความสดชื่นเหมือนได้อยู่ใกล้ชิดธรรมชาติ

ออกแบบมาเป็น Sunken seat ตกแต่งได้อย่างประณีตงดงาม
ที่นั่งจัดแบ่งเป็น 2 ฝั่ง รองรับแขกได้เยอะมาก

พื้นปูด้วยลายหินอ่อน ชุดโซฟาพร้อมหมอนอิงโทนสีน้ำเงินเข้มและสีเทา

อยากบอกว่าตรงนี้วิวดี และมีลมพัดเย็นสบายตลอดเวลา ถึงแม้จะไม่มีแอร์แต่ตรงนี้ไม่ร้อนเลยค่ะ เย็นสบายมาก

จากมุมนี้จะมองเห็นทางเข้าล็อบบี้

เปิดเข้ามาจะเจอกับบรรยากาศของ Lobby ออกแบบให้เพดานสูงโปร่งแบบ Double Volume
เน้นโทนสีดำ น้ำตาล ตกแต่งด้วยไม้ และหินอ่อน

มีมุมให้นั่งพักผ่อนหลากหลาย

ห้อง Meeting room ออกแบบให้มีเพดานสูงโปร่ง มีโต๊ะประชุมอยู่กลางห้อง รองรับผู้เข้าประชุมได้ประมาณ 10 ที่นั่ง

ห้อง Mailbox มีตู้จดหมายให้ครบทุกห้องพร้อมกุญแจล็อค

โถงลิฟต์บริเวณชั้น 1 ออกแบบได้เรียบหรูน่าใช้งาน

ภายในลิฟต์ตกแต่งด้วยกระจก ทำให้ลิฟต์ดูกว้างขึ้น เดินเส้นให้ดูโมเดิร์นสวยงาม ใช้ระบบ Key Card Access

โถงลิฟต์บนชั้น 35 ซึ่งเป็นชั้นส่วนกลาง ตรงจุดนี้มีกระจกบานกระทุ้ง 3 บาน ช่วยระบายอากาศ

สระว่ายน้ำในร่มเพดานสูง เป็นสระขนาดใหญ่แบบ Lap Pool ลึก 1.2 เมตร ระบบเกลือ
ข้อดีคือ ไม่ร้อน สามารถว่ายน้ำเวลาไหนก็ได้ไม่ต้องกลัวแดด

ผ่อนคลายไปกับจากุชชี ที่นี่ไม่ได้มีแค่ 1 แต่ให้มากถึง 6 จุด โดยแบ่งเป็นล็อค ออกแบบมาเป็น Sunken seat ยาวไปจนถึงปลายสระ ได้ความเป็นส่วนตัวแบบสุดๆ สามารถแช่ตัวพร้อมกับเทควิวเมืองไปได้ด้วยพร้อมๆ กัน

ที่สระว่ายน้ำลมดีมากๆ นั่งอยู่ตรงนี้เรียกว่าลมพัดเย็นตลอด นั่งตรงนี้นานๆ มีเคลิ้มหลับเอาง่ายๆ

มุมสำหรับนั่งเล่นชิลล์ริมสระอีกมุม

วิวสวยๆ จากชั้น 35 บริเวณสระว่ายน้ำ มองเห็นวิวของฝั่งถนนอโศกมนตรี

แยกสระว่ายน้ำสำหรับเด็กเป็นสัดส่วน
ความลึก 50 ซม. ให้เด็กๆ สามารถเล่นน้ำได้อย่างปลอดภัย 
ออกแบบให้มีม่านน้ำตก ซึ่งทางโครงการจะเปิดน้ำเป็นเวลา พร้อมมุมนั่งเล่นมาให้ด้วย

ภายในห้องน้ำของชั้น 35 นี้จะแยกห้องน้ำชาย-หญิงชัดเจน

ภายในห้องน้ำจะมีทั้งห้องอาบน้ำ และห้องสุขา

มีตู้ล็อคเกอร์สำหรับเก็บของไว้ 9 ช่อง

ภายในห้องน้ำชายจะมีห้องซาวน่า

ส่วนในห้องน้ำหญิงจะมีห้องตรีม
เปิดบริการตั้งแต่ 6.00 - 22.00 น. 
ห้องฟิตเนส มีเครื่องออกกำลังกายมาให้ 19 เครื่อง
ตกแต่งด้วยกระจกเงาทำให้ห้องดูกว้าง สว่าง ไม่อึดอัด เปิดบริการตั้งแต่ 6.00 - 23.00 น.

สามารถเทควิวเมืองได้ 270 องศา

มีตู้ล็อกเกอร์สำหรับเก็บของให้ 9 ช่อง มีตู้กดน้ำดื่มไว้คอยบริการ

เดินขึ้นไปดูที่ชั้น 35M กันต่อ

บนนี้จะเป็นห้อง Library room เปิดบริการ 8.00 - 23.00 น.
เข้ามาจะมีมุมสำหรับนั่งพักผ่อนอ่านหนังสือ ได้วิวเปิดโล่งเหมือนกัน

ขยับเข้ามาหน่อยจะมีชุดโซฟา พร้อมม้านั่งยาวอีก 1 ชุด

ส่วนอีกฝั่งเป็นห้อง Social Club เปิดบริการ 8.00 - 23.00 น.
เข้ามายังคงคุมโทนตกแต่งด้วยกระจกเงาโทนสีดำ มีโซนนั่งเล่น

อีกโซนของห้อง Social Club จะมีโต๊ะพลูให้ขึ้นมาเล่นพักผ่อนบนนี้ได้ ห้องนี้มี WiFi ฟรีด้วย

ห้องนี้ก็สามารถเทควิวได้เหมือนกัน

มีมุมพักผ่อนเล็กๆ สำหรับใครที่ต้องการความเป็นส่วนตัว

สวนบนชั้น 47 - 48 สามารถเดินเชื่อมต่อกันได้

สวนนี้ตอนช่วงบ่ายไม่โดนแดดด้วยนะคะ สามารถขึ้นมานั่งเล่นรับลมได้ไม่ร้อน

มี Atrium ใกล้โถงทางเดิน ที่ชั้น 11, 16, 21, 26, 31
พร้อมปลูกต้นไม้ไว้ในกระถาง เพิ่มพื้นที่สีเขียวและยังช่วยให้รู้สึกสบายตาสบายใจเวลามอง
ภาพห้องตัวอย่างและ Lay out
ห้องพักอาศัยโดดเด่นด้วยห้องเพดานสูง 2.7 เมตร โดยขายแบบ Fully Fitted รายการเฟอร์นิเจอร์ มาตรฐาน Digital Door Lock, ชุดครัว Built-in, เตาไฟฟ้า, เครื่องดูดควัน, อ่างล้างจาน, เครื่องปรับอากาศ, สุขภัณฑ์ในห้องน้ำ พร้อมฉากกั้นอาบน้ำ และแอร์แบบฝั่งฝ้า มีห้องพักให้เลือก 4 แบบ
- 1 ห้องนอน ขนาด 30 ตร.ม.
- 1 ห้องนอน ขนาด 34 ตร.ม.
- 2 ห้องนอน 1 ห้องน้ำ ขนาด 46 ตร.ม.
- 2 ห้องนอน 2 ห้องน้ำ ขนาด 64 ตร.ม.
วันนี้เราจะพาไปชมด้วยกัน 2 แบบ เป็นห้องแบบ 1 ห้องนอน ขนาด 30 ตร.ม. และ 1 ห้องนอน ขนาด 35 ตร.ม. เริ่มจากห้องแรก
1) ห้องแบบ 1 ห้องนอน พื้นที่ใช้สอยขนาด 30 ตร.ม.

ห้องพักอาศัยได้ประตูสำเร็จรูปปิดผิวลามิเนต ติดแถบยางลดเสียง พร้อมช่องมองตาแมว

ทางโครงการติด Digital Door Lock ของ Yale มาให้

ความสูงจากพื้นถึงฝ้า ห้องนั่งเล่นและห้องนอนสูง 2.7 เมตร ส่วนห้องน้ำ และห้องครัวสูง 2.5 เมตร

จากภาพเข้าประตูมาฝั่งหนึ่งจะเป็นพื้นที่ครัว และอีกฝั่งเป็นตำแหน่งของตู้เก็บรองเท้า และพื้นที่วางตู้เย็น
พื้นโซนห้องครัวปูด้วยกระเบื้องแกรนิตโต้ ขนาด 60 x 60 ซม. ลายหินอ่อน

ได้ชุดเคาน์เตอร์ครัว Built-in โทนสีดำ Top วัสดุเป็นหินสังเคราะห์
ติด Backsplash ที่ผนังสำหรับกันน้ำมันกระเด็นมาให้ ช่วยให้ทำความสะอาดง่าย

พร้อมช่องเก็บของทั้งข้างบนและข้างล่าง บานพับแบบ Soft close ทั้งหมด

ด้านล่างติดตั้งถังขยะมาให้ด้วย 1 ใบ มีลิ้นชักสำหรับเก็บช้อนส้อม ตู้เก็บของ และช่องสำหรับวางเครื่องซักผ้า

ได้อ่างล้างจานหลุมเดียวพร้อมก๊อกน้ำหัวโค้ง
พร้อมแผ่นสำหรับปิดช่วยเพิ่มพื้นที่ใช้สอยให้เกิดประโยชน์ในการใช้งานได้ดียิ่งขึ้น

ได้เตาไฟฟ้า 2 หัวของ MEX

ได้เครื่องดูดควันระบบดูดออกด้านนอกของ MEX

ได้ตู้ Built-in ทรงสูงสำหรับเก็บของ หรือเก็บรองเท้า บานพับแบบ Soft Close
ติดกันเป็นพื้นที่สำหรับวางตู้เย็น

ถัดเข้ามาเป็นมุมทานอาหาร สามารถวางโต๊ะทานอาหารพร้อมเก้าอี้ได้ 2 ตัว

โซนห้องนั่งเล่นปูพื้นด้วยไม้ Engineering Wood หนา 12 ซม.
วางโซฟาขนาด 2 ที่นั่ง ระยะดูทีวีประมาณ 1.5 เมตร

โซนห้องนั่งเล่นจะได้หน้าต่างบานใหญ่ ห้องจริงทางโครงการติดม่านทึบมาให้ 1 ชั้น แต่จะไม่ได้ม่านโปร่งนะคะ

ประตูห้องนอนแบบบานผลัก มือจับก้านโยก ด้านหลังติด door stopper มาให้

ตรงมุมนี้ทางโครงการ Built-in โต๊ะเครื่องแป้งมาให้ดูเป็นไอเดีย

ภายในห้องสามารถวางเตียงขนาด 5 ฟุต หรือจะ 6 ฟุตก็ยังได้

ตำแหน่งของระเบียงอยู่ภายในห้องนอน

ได้ระเบียง 2 ชั้นแบบ Double Windows ช่วยลดฝุ่นและเสียงรบกวนได้เป็นอย่างดี
ประตูที่ระเบียงเป็นกระจกบานเลื่อน 2 กรอบอะลูมิเนียม ราวระเบียงสูงประมาณ 110 ซม.

เก็บคอมเพรสเซอร์แอร์ไว้ด้านข้างของระเบียง มีประตูปิดมิดชิดเป็นสัดส่วน

ข้างเตียงเหลือพื้นที่ให้ Built-in เป็นตู้เสื้อผ้าได้

จากมุมนี้จะมองเห็นตำแหน่งของห้องน้ำ
ประตูห้องน้ำแบบมือจับก้านโยก พื้นห้องน้ำลดระดับลงประมาณ 5 ซม.

พื้นและผนังปูด้วยกระเบื้องแกรนิตโต้แผ่นใหญ่ลายหินอ่อน ได้กระจกเงาบานใหญ่
ได้โถสุขภัณฑ์ของ Kohler แบบประหยัดน้ำ สายฉีดชำระอยู่ทางขวามือ ราวแขวนผ้าอยู่เหนือโถสุขภัณฑ์

ได้อ่างล้างหน้าทรงสี่เหลี่ยมของ Kohler พร้อมก๊อกน้ำหัวผสม ทางโครงการติดตั้งเครื่องทำน้ำร้อนไว้ให้ใต้อ่างล้างหน้า

เคาท์เตอร์อ่างล้างหน้าวัสดุเป็น Natural Stone Black Marquina มีพื้นที่สำหรับวางอุปกรณ์อาบน้ำได้ค่อนข้างเยอะ
ได้ฉากกั้นอาบน้ำกระจกเทมเปอร์ ติดตั้ง Rain Shower มาให้

พร้อมชุดฝักบัวสายอ่อนของ Grohe ก๊อกน้ำหัวผสม และที่วางสบู่

สวิตช์ไฟและปลั๊กไฟของ Schnider
2) ห้องแบบ 1 ห้องนอน พื้นที่ใช้สอยขนาด 35 ตร.ม.

ห้องนี้เข้ามายังคงเป็นพื้นที่ส่วนของห้องครัวเหมือนกับห้องที่แล้ว

ได้ชุดครัวพร้อมเตาไฟฟ้า เครื่องดูดควัน และอ่างล้างจานเหมือนเดิม

วางโต๊ะทานอาหารขนาด 2 ที่นั่งได้ตามลักษณะนี้ ช่วยให้เหลือพื้นที่บริเวณกลางห้องมากยิ่งขึ้น

ถัดมาเป็นห้องนั่งเล่น ระยะดูกว้างขึ้นเล็กน้อยอยู่ที่ประมาณ 180 ซม.
ตำแหน่งระเบียงของห้องนี้จะอยู่ติดกับห้องนั่งเล่น

ได้พื้นที่ใช้สอยตรงระเบียงกว้างมากขึ้น

ยังคงได้ระเบียง 2 ชั้น

โซนห้องนั่งเล่นเชื่อมต่อกับห้องนอน

กั้นเป็นสัดส่วนด้วยประตูบานเลื่อน 2 ตอน วัสดุทึบแสงตามแบบห้องตัวอย่าง ได้ความเป็นส่วนตัวขั้นสุด

หากเปิดประตูออกจะสามารถดูทีวีได้จากในห้องนอน หรือบนเตียงนอนเลย แถมยังได้ระยะดูทีวีที่กว้างมากยิ่งขึ้นอีกด้วย

สามารถวางเตียงขนาด 5-6 ฟุตได้

ห้อง Type นี้จะได้กระจกโค้งเปิดมุมมองให้เทควิวได้กว้างมากขึ้น จัดวางเป็นโซฟาเบดสำหรับนั่งเล่นตรงจุดนี้ได้

อีกฝั่งของเตียงสามารถ Built-in เป็นโต๊ะเครื่องแป้ง และตู้เสื้อผ้าได้
ส่วนตำแหน่งห้องน้ำยังคงอยู่ภายในห้องนอน

แบ่งส่วนเปียกส่วนแห้งเป็นสัดส่วน สุขภัณฑ์ในห้องน้ำของ Kohler และ
Grohe เหมือนกับห้องที่แล้ว ราคาและค่าใช้จ่ายที่เกี่ยวข้องโดยประมาณ (ณ 19 ธ.ค. 2562)
ราคาเริ่มต้น - ห้องแบบ 1 ห้องนอน ขนาด 30 ตร.ม. ราคาเริ่มต้น 7.49 ล้านบาท
ค่าใช้จ่ายอื่นๆ - เงินกองทุน 1,000 บาท/ตร.ม. (ชำระครั้งเดียว ณ วันโอนกรรมสิทธิ์)
- ค่าบำรุงส่วนกลาง 70 บาท/ตร.ม. (ชำระล่วงหน้า 1 ปี)
โปรโมชั่น แอชตันอโศก 12-15 มี.ค. Golden Deals ยูนิตพิเศษ 1 ห้องนอนราคาเดียว 6.99* ล้าน พร้อมรับทองคำมูลค่าสูงสุด 10* บาท
สถานะปัจจุบันของโครงการ (ณ 19 ธ.ค. 2562)
ปัจจุบันโครงการ แอชตัน อโศก (Ashton Asoke) ก่อสร้างแล้วเสร็จพร้อมให้ลูกบ้านเข้าอยู่แล้ว โดยมียอดขายไปแล้วกว่า 85% สามารถติดต่อเข้าชมโครงการได้ทุกวัน ตั้งแต่เวลา 10.00 - 19.00 น.
สำหรับนักลงทุนที่ต้องการซื้อไว้เก็งกำไร "แอชตัน อโศก" ถือเป็นตัวเลือกที่น่าสนใจ เพราะด้วยศักยภาพของทำเล "อโศก" ที่สามารถขายต่อได้ผลตอบแทนอยู่ที่ประมาณ 5% ขึ้นไป และหากปล่อยเช่า ก็จะได้ราคาปล่อยเช่าเริ่มต้นอยู่ที่ประมาณ 30,000 บาท/เดือน ขึ้นอยู่กับขนาดของห้อง ซึ่ง "แอชตัน อโศก" นอกจากจะได้เปรียบทางด้านทำเลที่อยู่ติดกับรถไฟฟ้า บวกกับราคาที่สามารถจับต้องได้ง่ายกว่าหลายๆ โครงการในย่านนี้ ทำให้โครงการนี้จัดเป็นอีกหนึ่งโครงการที่น่าซื้อไว้ลงทุน รวมถึงซื้อเก็บเป็นทรัพย์สินให้ลูกหลานในอนาคต
สอบถามข้อมูลเพิ่มเติมที่ โทร. 02-316-2222 หรือ www.ananda.co.th ดูรายละเอียดโครงการ
แอชตัน อโศก