รีวิว "Noble Revolve Ratchada" คอนโดแต่งครบ พร้อมอยู่ ติด MRT อินเตอร์เชนจ์ศูนย์วัฒนธรรม
หลังจากโครงการสร้างเสร็จมาแล้วสักพัก วันนี้เช็คราคาขอพาทุกท่านมา Update กันหน่อยว่า 2 โครงการลูกแฝดจาก
Noble อย่าง
โนเบิล รีวอลฟ์ รัชดา (Noble Revolve Ratchada) และ
โนเบิล รีวอลฟ์ รัชดา 2 (Noble Revolve Ratchada 2) ปัจจุบันเป็นยังไงกันบ้าง ยังสวยเหมือนเดิมอยู่หรือเปล่า แต่ที่สวยแน่ๆ ก็คือโปรโมชั่นโค้งสุดท้ายก่อนปิดโครงการ ที่มอบเฟอร์นิเจอร์ครบชุดพร้อมเครื่องใช้ไฟฟ้าให้ เรียกได้ว่าแทบจะไม่ต้องซื้ออะไรเพิ่มเลยค่ะ ซึ่งราคาเริ่มต้นอยู่ที่ 3.49 ล้านบาท เราไปดูกันเลยว่าของจริงให้จัดเต็มขนาดไหน
ข้อมูลโครงการ โนเบิล รีวอลฟ์ รัชดา
- เจ้าของและผู้พัฒนาโครงการ : บริษัท โนเบิล ดีเวลลอปเมนท์ จำกัด (มหาชน)
- ที่ตั้งโครงการ : ซอยรัชดาภิเษก 6 ถนนรัชดาภิเษก แขวงห้วยขวาง เขตห้วยขวาง กรุงเทพมหานคร 10310
- อาคารชุดพักอาศัย : 1 อาคาร 38 ชั้น จำนวน 766 ยูนิต
- ขนาดที่ดินทั้งโครงการ : 3-1-92.5 ไร่
- ห้องชุด : มี 3 แบบหลักๆ ได้แก่
- 1 ห้องนอน ขนาด 21.67 - 26.65 ตร.ม.
- 2 ห้องนอน ขนาด 51.59 - 54.00 ตร.ม.
- PH ขนาด 51.61 - 51.70 ตร.ม.
ข้อมูลโครงการ โนเบิล รีวอลฟ์ รัชดา 2
- เจ้าของและผู้พัฒนาโครงการ : บริษัท โนเบิล ดีเวลลอปเมนท์ จำกัด (มหาชน)
- ที่ตั้งโครงการ : ซอยรัชดาภิเษก 6 ถนนรัชดาภิเษก แขวงห้วยขวาง เขตห้วยขวาง กรุงเทพมหานคร 10310
- อาคารชุดพักอาศัย : 1 อาคาร 42 ชั้น จำนวน 755 ยูนิต
- ขนาดที่ดินทั้งโครงการ : 3-1-66.2 ไร่
- ห้องชุด : มี 3 แบบหลักๆ ได้แก่
- 1 ห้องนอน ขนาด 22.43 - 26.74 ตร.ม.
- 2 ห้องนอน ขนาด 38.87 - 53.52 ตร.ม.
- PH ขนาด 39.01 - 51.47 ตร.ม.
โครงการตั้งอยู่ที่ซอยรัชดาภิเษก 6 ติดกับอาคารจอดแล้วจร ทางออกที่ 2 MRT สถานีศูนย์วัฒนธรรมฯ ซึ่งสถานีนี้เป็นสถานีอินเตอร์เชนจ์ของรถไฟฟ้า MRT สายปัจจุบัน (สายสีน้ำเงิน) และสายสีส้มด้วย ซึ่งจะเปิดให้บริการในปี 2564 อย่างไรก็ตามปัจจุบันก็เดินทางค่อนข้างสะดวกมากอยู่แล้ว เพียงไม่กี่ก้าวก็สามารถขึ้นรถไฟฟ้าได้ และตรงข้ามกับโครงการยังมี Esplanade จะดูหนัง ละครเวที ทานข้าว ช้อปปิ้งก็ครบในห้างเดียว และด้านหลังของห้างยังมีตลาดนัดรถไฟรัชดา แหล่งรวมสตรีทฟู้ดอร่อยๆ อีกด้วย
1. เดินทางโดยรถยนต์
ขาเข้าโครงการเส้นทางที่ 1 : จากถนนพระราม 9
ขาเข้าโครงการเส้นทางที่ 2 : จากถนนวิภาวดีรังสิต
ขาออกโครงการเส้นทางที่ 1 : ไปลาดพร้าว
ขาออกโครงการเส้นทางที่ 2 : ไปบางนา
2. การเดินทางโดยรถไฟฟ้า
หากวัดระยะจากทางเข้า-ออกที่ 2 สถานีศูนย์วัฒนธรรมถึงด้านหน้าของทั้ง 2 โครงการระยะเดินก็อยู่ที่ประมาณ 100 เมตรเท่านั้น
และปัจจุบันทางการรถไฟฟ้าขนส่งมวลชนแห่งประเทศไทยกำลังก่อสร้างรถไฟฟ้ามหานครสายสีส้ม (ช่วงศูนย์วัฒนธรรมฯ-มีนบุรี) และสถานีศูนย์วัฒนธรรมฯ นี้ก็จะเป็นสถานีเชื่อมต่อกับ MRT สายสีน้ำเงินในปัจจุบัน คาดว่าจะสร้างเสร็จในปี 2564 หากเปิดใช้งานก็จะทำให้การเดินทางไปโซนรามคำแหงสะดวกมากขึ้น
โครงการอยู่ในทำเลที่เป็นเขตธุรกิจที่สำคัญของกรุงเทพฯ รายล้อมไปด้วยอาคารสำนักงานใหญ่ๆ อย่าง SET, AIA, TRUE เป็นต้น อีกทั้งตรงข้ามกับโครงการยังมีห้างสรรพสินค้า Esplanade และตลาดนัดรถไฟรัชดาฯ อยู่ด้วย ไม่ไกลจากโครงการมากนักก็มี Big C, The Street, Central Rama 9 ให้ได้เลือกซื้อสินค้าและทำกิจกรรมต่างๆ

โครงการอยู่ท่ามกลางพื้นที่ของ รฟม. ที่จัดสรรเป็นพื้นที่จอดรถ

โครงการติดอาคารจอดรถสถานีศูนย์วัฒนธรรมฯ

สภาพแวดล้อมฝั่งแยกพระราม 9

สภาพแวดล้อมใกล้ๆ กับโครงการ

บริเวณแยกเทียมร่วมมิตร
รูปแบบตึกและตัวโครงการโดยรวม
โครงการ โนเบิล รีวอลฟ์ รัชดา (Noble Revolve Ratchada) และ โนเบิล รีวอลฟ์ รัชดา 2 (Noble Revolve Ratchada 2) เป็นอาคารสูง 38 ชั้น และ 42 ชั้น ตั้งอยู่ติดกันแต่แยกพื้นที่กันอย่างชัดเจนไม่สามารถใช้พื้นที่หรือส่วนกลางร่วมกันได้ค่ะ
ส่วนกลางและสิ่งอำนวยความสะดวก
ส่วนกลางของทั้ง 2 โครงการนั้นจะแยกกันทั้งหมดไม่สามารถใช้ร่วมกันได้ รวมถึงทางเข้าโครงการด้วยนะคะ และสำหรับใครที่กังวลเรื่องปัญหาปล่อยเช่ารายวัน ทำให้โครงการไม่เป็นส่วนตัวก็หมดห่วงได้เลย เพราะที่นี่ห้ามปล่อยเช่ารายวันแบบจริงจั ง มีกฎหมายควบคุมด้วย

ทางเข้า-ออกโครงการ Noble Revolve Ratchada

ถึงโครงการจะสร้างเสร็จสักพักแล้ว แต่การดูแลรักษาและระบบต่างๆ ยังคงเหมือนใหม่เลยค่ะ

บริเวณโดยรอบอาคารสามารถจอดรถได้

ด้านหน้าโครงการมีมุมพักผ่อนนั่งเล่นด้วยค่ะ

ตรงข้ามกับจุด Drop Off

เข้ามาในอาคารโซนแรกมีชุดโซฟารับแขก

ห้องนี้เป็นห้องรวมตู้กดอัตโนมัติ 24 ชั่วโมง มีครบทั้งขนม เครื่องดื่ม และอาหารพร้อมทาน

จุดนี้เป็นเหมือน Co-Working Space เหมาะสำหรับนั่งทำงาน นั่งอ่านหนังสือ

ขึ้นมาที่ชั้น 6 จะมีฟิตเนส ออกกำลังกายชมวิวสระ

ออกมาจากฟิตเนสก็เป็นสระว่ายน้ำ ซึ่งบริเวณที่ตั้ง
Sunlounger จะมีร่มด้วยค่ะ ไม่ได้โดนแดดตรงๆ 
ทางเข้า-ออกโครงการ
Noble Revolve Ratchada 2 
Cover Way เดินเข้าสู่โครงการแบบร่มรื่น

สวนบริเวณด้านหน้าโครงการ

เข้ามาในอาคารจะเป็น Lobby ที่สามารถนั่งทำงาน นัดเพื่อนมาพบปะกันได้ ด้านหลังจะเป็น Mail Room

ชั้น 6 ของอาคารจะเป็นห้องฟิตเนสอุปกรณ์ครบ

นอกจากนั้นยังมีห้องโยคะวิวสวนอีกด้วย

สระว่ายน้ำ Infinity Edge Pool
ภาพห้องตัวอย่างและ Lay out
โครงการมียูนิตที่เหลืออยู่ประมาณ 20 ยูนิต (รวมทั้ง 2 โครงการ) มีให้เลือกทั้งแบบ 1 ห้องนอน และ 2 ห้องนอน ซึ่งวันนี้เราจะมารีวิวให้ดูทั้ง 2 แบบ โดยเฟอร์นิเจอร์และเครื่องใช้ไฟฟ้าที่ได้นั้นจะให้ครบตามแบบห้องตัวอย่างเลยค่ะ
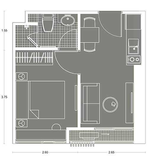
1 ห้องนอน ขนาดประมาณ 25 ตร.ม.

Unit Plan

เปิดประตูเข้ามาในห้องจะเห็นพื้นที่รับประทานอาหารก่อนเลยค่ะ โต๊ะชุดนี้ทางโครงการให้มาด้วย

เยื้องไปทางซ้ายมือจะเป็นครัวแบบเปิด

เคาน์เตอร์ครัวและเครื่องใช้ไฟฟ้าจะได้ตามนี้ทั้งหมดเลยค่ะ (ตู้เย็น เครื่องซักผ้า และไมโครเวฟ)

เปิดตู้ออกมาเก็บของได้เยอะมาก

เตาไฟฟ้าและเครื่องดูดควันของ MEX

อ่างล้างจานก็ยี่ห้อ
MEX เช่นเดียวกัน 
ติดกันจะเป็นพื้นที่นั่งเล่น โดยชั้นวางทีวี ทีวี โต๊ะกลาง และโซฟาจะให้ครบชุดแบบนี้ ความสูงจากพื้นจรดฝ้า 2.6 เมตรค่ะ

โซฟานั่งได้ 2-3 คน

แอร์ 1 เครื่องจะอยู่ที่ห้องนั่งเล่น และอีกเครื่องจะติดให้ที่ห้องนอนค่ะ

พื้นของทั้งห้องนอนและด้านนอกจะเป็นพื้นลามิเนต หนา 8 มม. ลายสวยงามแบบนี้

รับแสงด้วย กระจก Full Height พร้อมผ้าม่าน ริมหน้าต่างบิวท์อินเคาน์เตอร์เอาไว้นั่งทำงาน แต่งหน้าได้ค่ะ
ส่วนเตียงจะได้พร้อมฟูกด้วย

ตู้เสื้อผ้าสูงจรดฝ้า ด้านในมีทั้งลิ้นชัก มีชั้นวาง และราวแขวน

พื้นที่ข้างเตียงเหลือเพียงพอสำหรับยืนแต่งตัวตรงนี้ได้ และด้านในสุดเป็นมุมที่วางโต๊ะเล็กๆ ข้างเตียง

ไปดูในห้องน้ำกันต่อเลยค่ะ

โถสุขภัณฑ์ยี่ห้อ Nahm อ่างล้างหน้ายี่ห้อ Cristina ส่วนก๊อกน้ำเป็นของ Grohe

มีชั้นเก็บของน่ารักๆ ซ่อนอยู่

Shower Box ขนาดพอดีๆ พร้อมฝักบัว
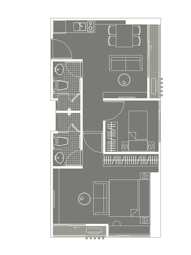
2 ห้องนอน ขนาดประมาณ 53 ตร.ม.

Unit Plan

พื้นเป็นลามิเนต 8 มม. และ Floor to Ceiling สูง 2.6 เมตร

เคาน์เตอร์ครัวและเครื่องใช้ไฟฟ้าจะได้ตามแบบนี้ทั้งหมดเลยค่ะ แทบไม่ต้องซื้ออะไรเพิ่มแล้ว

เตาไฟฟ้า 2 หัว ยี่ห้อ MEX

อ่างล้างจานของ MEX และ Top ของเคาน์เตอร์เป็นหินสังเคราะห์นะคะ

ห้องแบบ 2 ห้องนอนมีพื้นที่เหลือๆ วางโต๊ะรับประทานอาหารขนาด 4 ที่ได้สบาย

ทานข้าวไปชมวิวไปผ่านประตูกระจกบานสไลด์

ติดกันกับพื้นที่รับประทานอาหารก็จะเป็นพื้นที่นั่งเล่น ซึ่งจะกั้นด้วยโซฟา มีโต๊ะกลาง ชั้นวางทีวีและทีวีให้ค่ะ

แบบห้องนี้จะได้แอร์ทั้งหมด 3 เครื่อง คือห้องนี้ และห้องนอนอีก 2 ห้อง

ห้องน้ำจะอยู่ตรงข้ามกับพื้นที่นั่งเล่นค่ะ โถสุขภัณฑ์จะเป็นของ Nahm
อ่างล้างหน้ายี่ห้อ Cristina ส่วนก๊อกน้ำเป็นของ Grohe
มีห้องอาบน้ำไว้สำหรับห้องนอนที่ 2 มาใช้ 
เราไปดูห้องนอนกันต่อเลย

ห้องนี้เป็นห้องนอนที่ 2 ได้กระจกรับแสงบานใหญ่พร้อมผ้าม่าน

เตียง ที่นอน โต๊ะข้างเตียง และตู้เสื้อผ้าได้ตามนี้ทั้งหมดเลยจ้า

ตู้เสื้อผ้าฝั่งหนึ่งจะเป็นกระจกเมื่อเลื่อนปิดก็ทำให้ห้องดูกว้างขึ้นจากเงาสะท้อน

ต่อมาเป็น Master Bedroom

ห้องนี้ค่อนข้างกว้าง หลายๆ คนคงจะชอบห้องนี้เป็นพิเศษเพราะเป็นส่วนตัวมากค่ะ

มีพื้นที่นั่งเล่นอยู่ในห้องเลย เฟอร์นิเจอร์ก็ได้ครบไม่ต้องซื้อเพิ่มแล้ว

รับแสงแดดด้วยประตูกระจกบานสไลด์เปิดออกไปก็เป็นระเบียง

ถัดไปจะเป็นเตียงนอนขนาด 6 ฟุตให้พร้อมที่นอน และมีชุดโต๊ะข้างเตียง ตู้ เคาน์เตอร์ริมหน้าต่างออกแบบเข้าชุดกัน

ตรงเคาน์เตอร์นี้เหมาะกับนั่งทำงานมากเลยค่ะ หาเก้าอี้นุ่มๆ สักตัว นั่งทำงานชิลล์ๆ เลย

ตู้เสื้อผ้าบิวท์อินให้ 2 ตู้ใหญ่ๆ

ส่วนห้องน้ำก็มีให้ในตัวค่ะ มีกระจกบานใหญ่ให้แบบนี้ พร้อม Shower Box แยกส่วนเปียก-แห้ง
ราคาและค่าใช้จ่ายที่เกี่ยวข้องโดยประมาณ
จองวันนี้ฟรีทุกค่าใช้จ่าย! พร้อมราคาสุดพิเศษ 1 ห้องนอน เริ่ม 3.49 ล้านบาท* และ 2 ห้องนอน เริ่ม 6.59 ล้านบาท*
ปัจจุบันโครงการสร้างเสร็จพร้อมอยู่และมียูนิตเหลือขายเพียง 20 ยูนิตเท่านั้น!! ชมห้องตัวอย่างพร้อมเฟอร์นิเจอร์และเครื่องใช้ไฟฟ้าที่ให้แบบจัดเต็มได้ที่โครงการ
โนเบิล รีวอลฟ์ รัชดา (Noble Revolve Ratchada) และ โนเบิล รีวอลฟ์ รัชดา 2 (Noble Revolve Ratchada 2) รัชดาภิเษกซอย 6 ติดกับอาคารจอดรถ MRT ศูนย์วัฒนธรรมฯ ลงทะเบียนรับสิทธิพิเศษก่อนใครได้ที่ด้านล่างเลยค่ะ
สอบถามรายละเอียดเพิ่มเติมโทร. 02-2519-955 หรือ
www.noblehome.com

-
ปรียานุช สองศร
PROPERTY GURU Thailand