ประเมินวงเงินรู้ผลใน 3 นาที
กับ กรุงศรี ออโต้ พร้อมสตาร์ท

เริ่มประเมินวงเงินพร้อมสตาร์ท
ผ่านมือถือ สแกนเลย

ดูวงเงินพร้อมสตาร์ทที่ได้รับ

  • คอนโด
  • คอนโด
  • ค้นหาแบบละเอียด
  • รีวิว-เยี่ยมชม "พรีมิโอ ควินโต พหลโยธิน" คอนโด Modern & Classic เพียง 10 ม. จาก BTS เสนานิคม

    16 ก.ค. 63 11,360
    รีวิว-เยี่ยมชม "พรีมิโอ ควินโต พหลโยธิน" คอนโด Modern & Classic เพียง 10 ม. จาก BTS เสนานิคม
    วันนี้เราอยู่ที่คอนโดใหม่สร้างเสร็จพร้อมอยู่ในย่านพหลโยธิน - เกษตร ค่ะ พรีมิโอ ควินโต (Premio Quinto) นั่นเอง คอนโด Low Rise 439 ยูนิต ติดถนนพหลโยธิน อยู่กึ่งกลางระหว่างแยกรัชโยธินและแยกเกษตร ไม่ไกลจากรถไฟฟ้าสายสีเขียว (หมอชิต-สะพานใหม่) สถานีเสนานิคม ที่จะเปิดบริการปลายปี 2562 นี้ เพียง 10 ม. เท่านั้น ไปดูความน่าสนใจของโครงการนี้พร้อมๆ กันค่ะ ...
    ข้อมูลโครงการ
    • เจ้าของและผู้พัฒนาโครงการ : พี แอนด์ พี แอสเซท กรุ๊ป จำกัด
    • ที่ตั้งโครงการ : ระหว่างซอยพหลโยธิน 32 และ 34 ถนนพหลโยธิน แขวงเสนานิคม เขตจตุจักร กรุงเทพมหานคร 10900
    • อาคารชุดพักอาศัย : Low Rise 8 ชั้น 4 อาคาร 439 ยูนิต
    • ขนาดที่ดินทั้งโครงการ : 3 ไร่ 2 งาน 87 วา
    • ที่จอดรถ : 45% (160 คัน)
    • รูปแบบห้องชุด : มี 3 แบบ ได้แก่
      - Studio 22 - 23 ตร.ม.
      - 1 Bedroom 25 - 33 ตร.ม.
      - 2 Bedrooms 42 ตร.ม.
    • ราคาปัจจุบันเริ่มต้น : 3.19 ลบ.*
    • วันที่เข้าชมโครงการ : 1 ต.ค. 2562
    ทำเลที่ตั้งและการเดินทาง
    พรีมิโอ ควินโต (Premio Quinto) ตั้งอยู่ติดถนนพหลโยธิน ระหว่างซอยพหลโยธิน 32 และ 34 ห่างจากรถไฟฟ้าสายสีเขียวสถานีเสนานิคม เพียง 10 ม. (สถานีเสนานิคมจะเปิดใช้ปลายปี 2562 นี้)
    • เดินทางด้วยรถส่วนตัว
    ตัวอย่างเส้นทางที่ 1 : จากห้าแยกลาดพร้าว - ถนนพหลโยธิน
    ตัวอย่างเส้นทางที่ 2 : จากท่าอากาศยานดอนเมือง - ถนนวิภาวดีรังสิต - ถนนงามวงศ์วาน - ถนนพหลโยธิน
    • เดินทางด้วยรถไฟฟ้า
    โครงการอยู่ห่างจากรถไฟฟ้าสายสีเขียว "สถานีเสนานิคม" เพียง 10 ม. (เปิดใช้บริการปลายปี 2562 นี้)
    สภาพแวดล้อมใกล้เคียง และสถานที่สำคัญรอบๆ โครงการ
    ย่านพหลโยธิน-เกษตร จัดเป็นย่านที่เจริญมานานแล้วค่ะ ส่วนใหญ่เป็นสถานที่ราชการ รวมถึงสถานที่สำคัญต่างๆ มากมาย เช่น โรงพยาบาล, มหาวิทยาลัย, โรงเรียน รวมทั้งตลาดและห้างสรรพสินค้า
    • สภาพแวดล้อมใกล้เคียง

    ออกจากโครงการเลี้ยวขวาจะเจอ 7-Eleven ก่อนเลยค่ะ

    เดินถัดมาอีกนิดเดียวจะเป็นทางเข้าโรงพยาบาลเปาโล เกษตร

    พื้นที่ส่วนใหญ่เป็นตึกแถว 3-4 ชั้น ที่ชั้นล่างเปิดเป็นร้านค้า ไม่ว่าจะเป็นร้านเสื้อผ้า รวมถึงร้านอาหาร

    เดินกันต่ออีกนิดก็ถึงสถานีเสนานิคมแล้วค่ะ (1 ต.ค. 2562 ยังไม่เปิดให้บริการ) ปลายปีนี้ได้ใช้งานกันแน่นอน

    สภาพแวดล้อมใกล้ๆ สถานีรถไฟฟ้าก็ยังคงเป็นร้านขายของ ของกินของใช้ครบครันค่ะ

    กลับมาฝั่งด้านซ้ายมือของโครงการกันบ้างค่ะ มีป้ายรถเมล์อยู่หน้าโครงการ
    ,
    ฝั่งนี้ก็คึกคักไม่แพ้อีกฝั่งค่ะ

    Street Foods เยอะแยะไปหมด

    ร้านชาไข่มุก ร้านซูชิ มีหมดค่ะ

    ปากซอยทางเข้าตลาดบางเขนค่ะ ช่วงเที่ยงๆ คนแน่นมาก ของกินของใช้เค้าเยอะจริงๆ 
    • สถานที่สำคัญรอบๆ โครงการ

    มหาวิทยาลัยเกษตรศาสตร์ วิทยาเขตบางเขน ห่างจากโครงการประมาณ 1.4 กม.

    Major Cineplex Ratchayothin ห่างจากโครงการประมาณ 2.4 กม.

    Avenue Ratchayothin ห่างจากโครงการประมาณ 2.4 กม.

    โรงเรียนหอวัง ห่างจากโครงการประมาณ 4.3 กม.

    Central Plaza Ladprao ห่างจากโครงการประมาณ 4.5 กม.

    สถานีห้าแยกลาดพร้าว ห่างจากโครงการประมาณ 4.5 กม.

    Union Mall ห่างจากโครงการประมาณ 2.8 กม.

    สวนจตุจักร ห่างจากโครงการประมาณ 5.2 กม.
    รูปแบบตึก และตัวโครงการโดยรวม
    พรีมิโอ ควินโต (Premio Quinto) เป็นคอนโด Low Rise 8 ชั้น 4 อาคาร 439 ยูนิต บนพื้นที่ 3 ไร่ 2 งาน 87 วา ออกแบบภายใต้สไตล์ Modern & Classic ปัจจุบันสร้างเสร็จพร้อมเข้าอยู่

    Ground Floor Plan ของโครงการ พื้นที่ส่วนกลางจะอยู่ตรงกลาง ล้อมรอบด้วยอาคารทั้ง 4

    Floor Plan 2nd ชั้นพักอาศัยของทุกอาคารจะเริ่มที่ชั้นนี้ (ยกเว้นตึก B ชั้นพักอาศัยเริ่มตั้งแต่ Ground Floor)

    Floor Plan 3rd
    Floor Plan 4th - 8th
    ส่วนกลางและสิ่งอำนวยความสะดวก
    • Tower A
     - Exclusive Lounge Club (Floor 1st)
     - Book Cafe (Floor 2nd)
     - Studio Workshop (Floor 3rd)
    • Tower C
     - Co-Working Space (Floor 1st)
     - Fitness (Floor 2nd)
    • Lobby Lounge ทุกอาคาร
    • สระว่ายน้ำระบบเกลือ (8 x 15 x 1.10 เมตร)
    • Quint Pavilion ศาลากลางสวนหย่อม
    • สวนส่วนกลางสไตล์ English Garden บริเวณ Tower B, C, D
    • เจ้าหน้าที่รักษาความปลอดภัย ตลอด 24 ชั่วโมง
    • CCTV / Access Card

    ป้ายโครงการ พรีมิโอ ควินโต (Premio Quinto)

    บริเวณซุ้มทางเข้า-ออกโครงการค่ะ ป้อม รปภ. อยู่ด้านซ้ายมือ

    ทางเข้า-ออก มีไม้กั้นกระดก โดยลูกบ้านจะใช้ Access card ในการเข้า-ออก

    พื้นที่จอดรถเป็นแบบวนรถซ้ายค่ะ มีทั้งแบบจอดใต้อาคารและ Outdoor

    พื้นที่จอดรถ ตามช่องจอดมีทั้งหมด 160 คัน

    มากันที่ Tower A กันก่อนค่ะ ซึ่งพื้นที่ทั้งหมด 3 ชั้นจะเป็นส่วนของพื้นที่ส่วนกลาง ปัจจุบันชั้น 1 (Exclusive Lounge Club) ยังเป็นพื้นที่ของ Sales Office อยู่ เราขึ้นมาชั้น 2 ซึ่งเป็น Book Cafe กันดีกว่าค่ะ 

    การตกแต่งภายใน Book Cafe เน้นความเรียบหรู คลาสสิก

    มีพื้นที่นั่งพักผ่อนสำหรับลูกบ้านเยอะเลยค่ะ พร้อมบันไดวนสุดเก๋ขึ้นไปยังชั้น 3

    ขึ้นไปชั้น 3 กันค่ะ ซึ่งคือพื้นที่ในส่วนของ Studio Workshop นั่นเอง

    พื้นที่พักผ่อนมีให้เลือกหลายรูปแบบ

    เฟอร์นิเจอร์อาจมีการเปลี่ยนแปลงนิดหน่อยนะคะ เพราะตอนนี้ทางโครงการยังอยู่ระหว่างเปิดการขาย
    ทำให้ต้องใช้พื้นที่ส่วนนี้รองรับลูกค้า

    มาที่มุม Co-working Space ค่ะต้องบอกว่ามีหลายมุมจริงๆ

    กระจกใสโปร่งโล่ง รับแสงได้เต็มที่ เหมาะกับการนั่งทำงานมากๆ เลยค่ะ 

    มากันที่ส่วนของ Lobby ของแต่ละตึกค่ะ ซึ่งจะมีหน้าตาการตกแต่งเหมือนกัน

    มุมนักพักผ่อนบริเวณโถง Lobby

    Mail Box จะอยู่บริเวณ Lobby ของแต่ละอาคารค่ะ

    ทุกอาคารจะมีลิฟต์โดยสาร 2 ตัวค่ะ

    ลิฟต์แบบล็อกชั้น เพิ่มความปลอดภัยให้ลูกบ้าน

    พื้นที่โถงทางเดิน มีไฟส่องสว่างตลอดเวลา

    ไปต่อกันที่สระว่ายน้ำและพื้นที่ Co-working space อีกแห่งค่ะ

    แอบมองผ่านประตูรั้ว

    ร่มรื่นทีเดียว สระว่ายน้ำและพื้นที่สีเขียวจะอยู่กึ่งกลางระหว่าง Tower B, C และ D

    ส่วน Co-working space และ Fitness จะอยู่บริเวณ ชั้น 1 และ 2 ของ Tower C

    มีมุมนั่งเล่นนั่งพักผ่อน กระจายตัวอยู่รอบๆ

    บริเวณทางเดิน มีต้นไม้ให้ความร่มรื่นตลอดทาง

    มุมศาลานั่งพักผ่อน

    สระว่ายน้ำระบบเกลือ (8 x 15 x 1.10 เมตร)

    มีเก้าอี้ริมสระให้นั่งเล่นนอนเล่นด้วย

    ติดกันเป็นลานน้ำล้นค่ะ มี Sunken เก๋ๆ ลงไปนั่งเล่นกันได้

    ไปดูโซน Co-working space กันค่ะ ซึ่งอยู่ชั้น 1 ของ Tower C

    ภายในกว้างขวางและมีสิ่งอำนวยความสะดวกครบครันค่ะ

    น้องๆ นักศึกษามานั่งคุยงาน หรือคุณพ่อคุณแม่มานั่งรอเด็กๆ ว่ายน้ำก็ได้ค่ะ

    ขึ้นไปชั้น 2 กันค่ะ

    พื้นที่ชั้น 2 จะเป็น Fitness อุปกรณ์สำหรับออกกำลังกายหลากหลาย

    ออกกำลังไป เทควิวสระว่ายน้ำไป
    ภาพห้องตัวอย่างและ Lay out
    พรีมิโอ ควินโต (Premio Quinto) มีรูปแบบห้องทั้งหมด 3 แบบด้วยกันค่ะ ได้แก่
    • Studio 22 - 23 ตร.ม.
    • 1 Bedroom 25 - 33 ตร.ม.
    • 2 Bedrooms 42 ตร.ม. 
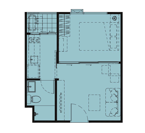
    วันนี้เราจะไปชมห้องอย่าง 1 Bedroom พื้นที่ใช้สอย 28 ตร.ม. ซึ่งขายแบบ Fully Furnished ซื้อข้าวของเพิ่มอีกนิดๆ หน่อยๆ ก็หิ้วกระเป๋าเข้าอยู่ได้เลยค่ะ

    ห้องตัวอย่าง 1 Bedroom พื้นที่ใช้สอย 28 ตร.ม.

    ประตูเป็นแบบลามิเนต Digital Door Lock จาก Hafele (ทางโครงการมีให้ทุกยูนิต)

    เปิดประตูเข้ามาจะเจอพื้นที่ห้องรับแขกก่อนเลย

    วางโซฟา 2 ที่นั่ง และยังเหลือพื้นที่วางโต๊ทำงานหรือโต๊ะทานข้าวได้

    ระยะห่างดูทีวี ไม่ไกลจนเกินไป ทางโครงการ Built-in ชั้นวางทีวี และชั้นวางของมาให้ค่ะ

    พื้นที่ใช้สอยต่างๆ แบ่งเป็นสัดส่วนชัดเจน

    สำหรับห้องนอนจะเป็นประตูบานเลื่อนอะลูมิเนียม

    ประตูบานเลื่อน 3 ตอน ทำให้ห้องดูกว้างขึ้น

    ระยะห่างปลายเตียงมีพื้นที่ให้ยืนแต่งตัวได้ ทางโครงการ Built-in ตู้เสื้อผ้ามาให้ค่ะ
    ส่วนชั้นวางของตกแต่งเพื่อความสวยงาม

    มุมมองจากปลายเตียง

    อีกมุมค่ะ ตู้เสื้อผ้า 3 ประตู ใหญ่พอสมควรทีเดียว

    แอบมองไปประตูทางเข้า

    หน้าต่างเป็นบานเลื่อนอะลูมิเนียม กระจกใสสูงถึงฝ้าเลยค่ะ

    พร้อมด้วยหน้าต่างบานกระทุ้ง เป็นกระจกใสเช่นเดียวกัน

    ไปดูห้องครัวกันค่ะ ซึ่งประตูห้องครัวจะเป็นประตูบานเลื่อนอะลูมิเนียม กระจกใสเช่นกัน

    ห้องครัวจะปูด้วยกระเบื้องค่ะ ซึ่งง่ายต่อการทำความสะอาดและดูแลรักษา โดยโครงการจะ Built-in
    เคาน์เตอร์ครัว, Hob & Hood จาก MEX และ Sink จาก MEX มาให้ด้วย

    ประตูออกไประเบียง จะเป็นประตูกระจกใส อะลูมิเนียมบานเลื่อน 3 ตอน

    เคาน์เตอร์ครัว พร้อมด้วยช่องเก็บของ

    พื้นที่เก็บของเยอะเลย

    ออกไปดูระเบียงกันบ้างค่ะ ประตูอะลูมิเนียมบานเลื่อน 3 ตอน ทำให้มีพื้นที่ใช้สอยมากขึ้น

    ระเบียงกว้างพอที่จะตากผ้าและวางเครื่องซักผ้า หรือวางต้นไม้เล็กๆ ได้

    Type Room นี้ห้องจริงจะได้แอร์ 1 ตัว (ห้องนอน) ค่ะ

    กลับมาในห้อง ไปดูห้องน้ำกันต่อค่ะ

    บรรยากาศภายในห้องน้ำ

    สุขภัณฑ์ทั้งหมดจาก American Standard เคาน์เตอร์เก็บของจาก SB

    ฝักบัวจาก American Standard พร้อมฉากกั้นอาบน้ำ Tempered Glass
    ราคาและค่าใช้จ่ายที่เกี่ยวข้องโดยประมาณ (ณ. 1 ต.ค. 2562)
    ราคาเริ่มต้น
    • ราคาเริ่มต้น 3.19 ลบ.* (เฉลี่ย 114,000 บ./ตร.ม.) สร้างเสร็จ พร้อมเข้าอยู่
    โปรโมชั่น!
    1. โอนภายในเดือนตุลาคม นี้ = ฟรี TV 40 นิ้ว, ตู้เย็น 5.9 คิว และ ไมโครเวฟ
    2. "Hot Deal" วันที่ 25-27 ตุลาคม นี้ = Free ALL (ค่าใช้จ่ายวันโอน, ค่าส่วนกลางล่วงหน้า, เงินกองทุน และค่าประกันมิเตอร์น้ำ/ไฟ)
    *เงื่อนไขเป็นไปตามที่บริษัทกำหนด
    สถานะปัจจุบันของโครงการ
    พรีมิโอ ควินโต (Premio Quinto) เป็นโครงการสร้างเสร็จพร้อมเข้าอยู่ สามารถติดต่อเข้าชมโครงการได้ทุกวัน ตั้งแต่เวลา 10.00 - 19.00 น.
    สอบถามข้อมูลเพิ่มเติม โทร. 02-579-2255

    รีวิว-พรีวิวล่าสุดอื่นๆ

    คอนโดติดรถไฟฟ้าล่าสุด

เว็บไซต์นี้มีการเก็บคุกกี้เพื่อเพิ่มความพึงพอใจในการใช้งานเว็บไซต์ และช่วยให้เราปรับปรุง และนำเสนอเนื้อหาตรงตามความสนใจของท่าน ท่านสามารถดู Privacy Notice และ ดู Cookies Policy ของเราได้ ที่นี่ ทั้งนี้ ท่านจะยินยอมให้เราเก็บคุกกี้ทั้งหมด หรือให้เก็บแค่บางส่วนโดยการคลิกเลือก ตั้งค่า

ท่านสามารถเลือกให้ความยินยอมการเก็บคุกกี้เป็นเรื่องๆ ได้ที่นี่

เมื่อคุณเข้าชมเว็บไซต์ หรือแอปพลิเคชั่น checkraka เราอาจจัดเก็บ หรือดึงข้อมูลจากเบราว์เซอร์ของคุณในรูปแบบของคุกกี้ และเทคโนโลยีอื่นที่คล้ายคลึง เช่น tag และ pixel (เรียกรวมกันว่า “คุกกี้”) ซึ่งมักเป็นข้อมูลที่ไม่สามารถระบุตัวตนได้โดยตรง แต่ช่วยให้คุณใช้งานเว็บไซต์ได้ปลอดภัย และตรงตามความต้องการมากขึ้น คุณอาจไม่ยินยอมให้เราเก็บคุกกี้บางประเภทได้ โดยการคลิกตามหัวข้อข้างล่างนี้

ประเภทคุกกี้
อ่านเพิ่มเติม ที่นี่
ยินยอม / ไม่ยินยอม
คุกกี้ที่จำเป็นต้องมีเสมอ
(Strictly Necessary)
คุกกี้สำหรับการใช้งานเว็บไซต์
(Functionality)
คุกกี้เพื่อเพิ่มประสิทธิภาพและวิเคราะห์
(Performance & Analytics)
คุกกี้เพื่อการตลาด
(Marketing)