รีวิว-เยี่ยมชม เดอะ ไลน์ พหลโยธิน พาร์ค คอนโดที่ห่างจาก BTS ห้าแยกลาดพร้าวเพียง 300 ม.
สวัสดีค่ะ วันนี้เราอยู่กันที่
เดอะ ไลน์ พหลโยธิน พาร์ค (The Line Phahonyothin Park) อีกหนึ่งโครงการ
จาก
แสนสิริ ทีนำสวนเขียวกว่า 8 ไร่ภายในโครงการมาเป็นแนวคิดหลักในการออกแบบ ผ่านแนวคิด 'Magical Tree' ซึ่งออกแบบ Pattern ของตัวอาคารให้เป็นโครงร่างของต้นไม้ เกิดเป็นแสงและเงาที่ปรับเปลี่ยนไปตามแสงธรรมชาติในแต่ละช่วงเวลา เปรียบเสมือนต้นไม้มหัศจรรย์ขนาดใหญ่ตั้งสูงสง่า 32 ชั้น บนสวนกว้างสุดสายตา สำหรับตัวโครงการตั้งอยู่บนถนนพหลโยธิน ใกล้เทสโก้ โลตัส และเซ็นทรัล ลาดพร้าว หนึ่งในย่านที่เรียกว่าครบครันเลยทีเดียว ส่วนเรื่องการเดินทางนั้นสะดวกสุดๆ เพราะใกล้ BTS สถานีห้าแยกลาดพร้าวเพียง 300 ม. และ MRT สถานีพหลโยธิน 700 ม. เท่านั้น!

เจ้าของและผู้พัฒนาโครงการ : บริษัท แสนสิริ จำกัด (มหาชน)
ที่ตั้งโครงการ : ถนนพหลโยธิน แขวงจอมพล เขตจตุจักร กรุงเทพมหานคร 10900
อาคารชุดพักอาศัย : มี 1 อาคาร Building B 32 ชั้น, อาคารจอดรถ 1 อาคาร สูง 16 ชั้น (ไม่รวมชั้นใต้ดิน)
จำนวนห้องพักอาศัย : 881 ยูนิต (ร้านค้า 1 ยูนิต)
ลิฟต์ : ลิฟต์โดยสาร 6 ตัว และลิฟต์บริการ 1 ตัว
ขนาดที่ดินทั้งโครงการ : 2 ไร่
ห้องชุด : มี 5 แบบหลักๆ ได้แก่
- 1 ห้องนอน 1 ห้องน้ำ (S) 32.00 - 33.00 ตร.ม.
- 1 ห้องนอน 1 ห้องน้ำ (M) 36.00 - 37.00 ตร.ม.
- 1 ห้องนอน 1 ห้องน้ำ (L) 39.00 - 41.00 ตร.ม.
- 2 ห้องนอน 2 ห้องน้ำ 58.75 - 66.75 ตร.ม.
- 2 ห้องนอน 2 ห้องน้ำ (Duplex) 81.50 - 82.25 ตร.ม.
ราคา : เริ่มต้น 3.99 ลบ.*
วันที่เข้ารีวิวโครงการ : 24 ก.ย. 2562
ตั้งอยู่ติดถนนพหลโยธิน แขวงจอมพล เขตจตุจักร กรุงเทพมหานคร 10900 เชื่อมต่อไปถนนลาดพร้าว, ถนนรัชดา, ถนนวิภาวดี-รังสิต รวมถึงเชื่อมไปยังทางด่วนโทลเวย์ได้สะดวก ใกล้ BTS สถานีห้าแยกลาดพร้าวเพียง 300 ม. และ MRT สถานีพหลโยธิน 700 ม.

แผนที่โครงการ เดอะ ไลน์ พหลโยธิน พาร์ค
ถนนเส้นหลักก็คือ "ถนนพหลโยธิน" ค่ะ ซึ่งสามารถเชื่อมต่อไปถนนลาดพร้าว, ถนนรัชดา, ถนนวิภาวดี-รังสิต รวมถึงเชื่อมไปยังทางด่วนโทลเวย์ได้สะดวก
ขาเข้าเส้นทางที่ 1 - จากทางคู่ขนานวิภาวดี-รังสิต
ขาเข้าเส้นทางที่ 2 - จากถนนรัชดาภิเษก
ขาออกเส้นทางที่ 2 - ขึ้นทางด่วนโทลเวย์
การเดินทางด้วยรถไฟฟ้าต้องบอกว่าสะดวกมากค่ะ เพราะโครงการเดอะ ไลน์ พหลโยธิน พาร์ค ห่างจากรถไฟฟ้า BTS สถานีห้าแยกลาดพร้าวประมาณ 300 ม. และห่างจากรถไฟฟ้า MRT สถานีพหลโยธินเพียง ประมาณ 700 ม. เท่านั้น

แผนที่แสดงให้เห็นระยะรถไฟฟ้ากับโครงการ
รถไฟฟ้า BTS สถานีห้าแยกลาดพร้าว ห่างประมาณ 300 เมตร
รถไฟฟ้า MRT สถานีพหลโยธิน ห่างประมาณ 700 เมตร
สถานที่สำคัญใกล้เคียง และสภาพแวดล้อมรอบๆ โครงการ
สำหรับย่านนี้เป็นที่รู้จักว่ามีความอุดมสมบูรณ์อยู่แล้ว เพราะเป็นย่านที่มีที่อยู่อาศัยทั้งแนวสูง แนวราบครบ การหาของกิน ของใช้ถือว่าสะดวกมาก แค่ก้าวออกมาจากโครงการก็เจอห้างสรรพสินค้า อย่าง เทสโก้ โลตัส ซึ่งมีสินค้าให้เลือกซื้อแทบทุกชนิด ห่างจากโครงการไปประมาณ 300 ม. ก็เจอกับรถไฟฟ้าสถานีห้าแยกลาดพร้าว ติดกับรถไฟฟ้าก็เป็นห้างสรรพสินค้าเซ็นทรัล ลาดพร้าว ที่เป็นแหล่งรวมไลฟ์สไตล์ ทั้งร้านอาหาร ธนาคาร ซูเปอร์มาร์เก็ต และแหล่งช้อปปิ้งต่างๆ และยังมีห้างยูเนี่ยน มอลล์ ที่เป็นแหล่งช้อปปิ้งเสื้อผ้า รองเท้าในราคาไม่แพง รับรองว่าไปทีไรได้ของติดไม้ ติดมือกลับคอนโดแน่นอนค่ะ

ทางเข้าโครงการอยู่ตรงเทสโก้ โลตัส ติดถนนพหลโยธินเลยค่ะ ทางเข้าเดียวกัน

มีป้ายบอกให้ตรงเข้าไป ตัวโครงการตั้งอยู่ในพื้นที่เดียวกันกับตึก Abstracts ค่ะ

ด้านหน้าทางเข้ามีเทสโก้ โลตัส เปิด 8.00-22.00 น. จะซื้อของกิน ของใช้สะดวกมากๆ

หน้าโลตัส มีทั้งป้ายรถเมล์ วินมอเตอร์ไซค์ และเดินตรงไปอีกนิดเดียวก็จะเป็นรถไฟฟ้า สถานีห้าแยกลาดพร้าวแล้วค่ะ
สถานีนี้มี Sky Walk ที่สามารถเดินเชื่อมจากรถไฟฟ้ามาลงตรงหน้าโลตัสได้เลย

เดินจากหน้าโครงการมาขึ้นรถไฟฟ้าสถานีห้าแยกลาดพร้าวประมาณ 300 ม. และเป็นทางขึ้นแบบมีบันไดเลื่อนด้วยนะคะ

หากจะออกไปที่โครงการให้ออกประตู 4 ค่ะ

สำหรับประตู 3 จะเป็นทางเข้าเซ็นทรัล ลาดพร้าว สะดวกสุดๆ

สถานีห้าแยกลาดพร้าว จะมีทางเชื่อมไปอีกฝั่งหนึ่งของสถานีให้ด้วย

เดินเชื่อมไปจากทางนี้ได้สบายเลยค่ะ

จากตัวสถานีรถไฟฟ้าจะมองเห็นทางเชื่อมเข้าห้างยูเนี่ยน มอลล์

เซ็นทรัล ลาดพร้าว ห่างจากโครงการประมาณ 350 ม.

รร. หอวัง ห่างจากโครงการประมาณ 350 ม.

ยูเนี่ยน มอลล์ ห่างจากโครงการประมาณ 800 ม.

สวนจตุจักร ห่างจากโครงการประมาณ 2.0 กม.

เมเจอร์ รัชโยธิน ห่างจากโครงการประมาณ 1.3 กม.
รูปแบบตึก และตัวโครงการโดยรวม
เดอะ ไลน์ พหลโยธิน พาร์ค (The Line Phahonyothin Park) เป็นอาคารพักอาศัย High Rise 32 ชั้น บนเนื้อที่โครงการประมาณ 2 ไร่ ยูนิตพักอาศัยทั้งหมด 881 ยูนิต (ยูนิตเพื่อการพาณิชย์ 1 ยูนิต) พร้อมอาคารจอดรถ 16 ชั้น และสวนส่วนกลางขนาดใหญ่ ที่ใช้ร่วมกันกับอาคาร Abstracts

Master Plan ขอบเขตทั้งหมดของโครงการ ตั้งแต่ทางเข้าโครงการ พื้นที่พักอาศัย พื้นที่ส่วนกลาง และพื้นที่ในอนาคต

โมเดลจำลอง แสดงให้เห็นตัวโครงการ และพื้นที่ทั้งหมด

สวนส่วนกลางขนาด 8 ไร่ และมีสวนที่ชั้น 2 ส่วนชั้น 22-23 เป็นพื้นที่ส่วนกลาง
และบนสุดที่ชั้น 32 มีสระว่ายน้ำ, ฟิตเนส, สวน และสนามเด็กเล่น
ไปชม Floor Plan กันต่อค่ะ ว่าแต่ละชั้นประกอบไปด้วยอะไรบ้าง

Floor Plan ชั้น 1 จะเป็นโถง Lobby ต้อนรับขนาดใหญ่ใกล้ชิดธรรมชาติ

Floor Plan ชั้น 2 ส่วนพักอาศัยจะเริ่มที่ชั้นนี้ค่ะ และมีสวนหย่อมให้ 2 ฝั่งของอาคารตามภาพ

Floor Plan ชั้น 3-12, 14, 15, 17, 18, 20 แต่ละชั้นจะมีจำนวนห้องชั้นละ 31 ห้อง

Floor Plan ชั้น 13-16, 19, 21

Floor Plan ชั้น 22 จะเป็นพื้นที่ส่วนกลาง CO-LIVING SPACE จำนวนห้องของชั้นนี้มี 14 ห้อง

พื้นที่ส่วนกลาง CO-LIVING SPACE จะกินพื้นที่มาถึงชั้น 23 เลยค่ะ จำนวนห้องของชั้นนี้มี 14 ห้อง เหมือนกัน

Floor Plan ชั้น 24

Floor Plan ชั้น 25

Floor Plan ชั้น 26, 30

Floor Plan ชั้น 27, 31

Floor Plan ชั้น 28

Floor Plan ชั้น 32 สำหรับชั้นนี้จะมีสระว่ายน้ำยาว 28 ม. พร้อมฟิตเนส และสวนพร้อมสนามเด็กเล่น
ส่วนกลางและสิ่งอำนวยความสะดวก
พื้นที่ส่วนกลางที่ถือเป็นจุดเด่นที่น่าสนใจของโครงการ เพราะมีสวนขนาดใหญ่ ซึ่งถือว่าเป็นพื้นที่สีเขียวที่ใหญ่มากสำหรับคอนโดเลยก็ว่าได้ และนอกจากนี้ยังมี พื้นที่ส่วนกลาง ที่ชั้น 22-23 เพื่อให้คุณได้ใช้งานได้ตามต้องการ และที่ชั้นบนสุด ชั้น 32 มีสระว่ายน้ำขนาดใหญ่ ฟิตเนส และสวนพักผ่อนให้อีกด้วย
ชั้น 1 - THE NATURAL SANCTUARY (LOBBY)
- EV CHARGER : 4 CARS
- JOGGING TRACK
- BIKE RACK

ทางเข้า-ออกโครงการ และสวนขนาดใหญ่ ซึ่งใช้ร่วมกันกับอาคารอื่นในพื้นที่นี้ด้วย

ภาพบรรยากาศสวนจริงภายในโครงการ

สวนส่วนกลางภายในโครงการมีต้นไม้ใหญ่ และทำทางเดินไว้เรียบร้อย

บรรยากาศบางส่วนของสวนส่วนกลาง

ชั้น 1 จะเป็น Lobby ต้อนรับ

บรรยากาศ Lobby
ชั้น 2 - NORTH GARDEN / SOUTH GARDEN
ชั้น 22-23 - CO-COOKING STUDIO
- CO-LIVING LOUNGE
- PHOTO STUDIO
- CO-WORKING SPACE
- CO-PLAYING SPACE
- HIDDEN TRAIL

CO-COOKING STUDIO พร้อมชุดครัวคุณภาพสูง เช่น เช่น ตู้เย็น LG รุ่น Instaview, ถังขยะ Smart Food Recycler
ที่แปลงเศษอาหารให้เป็นสารอินทรีย์ ที่เหมาะกับการนำไปผสมกับดินเพื่อปลูกต้นไม้

CO-LIVING LOUNGE ห้องสำหรับจัดกิจกรรม ไม่ว่าจะจัดปาร์ตี้ ดูหนัง หรือเล่นเกม

CO-WORKING SPACE ห้องนี้ถูกแบ่งออกเป็น 3 โซน เริ่มจาก Photo Studio สตูดิโอถ่ายภาพนิ่งพร้อมอุปกรณ์
ตามด้วยพื้นที่นั่งทำงานส่วนกลาง ที่ปรับเปลี่ยนได้ ตามต้องการ ใช้ Aluminium Chains Art ดีไซน์พิเศษ
สุดท้ายคือ โซนห้องประชุม และห้อง Workshop

CO-PLAYING SPACE หรือ KID ROOM ที่พัฒนาร่วมกันกับ รพ.สมิติเวช
ชั้น 32
- TWINKLE SKY POOL
- JACUZZI / KID'S POOL
- THE STARRY GYM
- RABBIT HOLE
- VISTA POINT
- FLOATING NEST

TWINKLE SKY POOL / JACUZZI / KID'S POOL สระว่ายน้ำระบบเกลือ กว้าง 28 ม. ลึก 1.20 ม.

THE STARRY GYM ห้องออกกำลังกายพร้อมอุปกรณ์ครบครัน

VISTA POINT เปรียบเสมือนจุดชมวิวเมืองชั้น 32 พร้อมสนามเด็กเล่น

FLOATING NEST สวนชั้นบนสุด ที่ให้ความรู้สึกเหมือนนั่งพัก ชมวิวอยู่บนยอดไม้
ภาพห้องตัวอย่างและ Lay out
ห้องพักอาศัยของโครงการ มีให้เลือกด้วยกันทั้งหมด 5 แบบด้วยกัน คือ
- 1 ห้องนอน 1 ห้องน้ำ (S) 32.00 - 33.00 ตร.ม.
- 1 ห้องนอน 1 ห้องน้ำ (M) 36.00 - 37.00 ตร.ม.
- 1 ห้องนอน 1 ห้องน้ำ (L) 39.00 - 41.00 ตร.ม.
- 2 ห้องนอน 2 ห้องน้ำ 58.75 - 66.75 ตร.ม.
- 2 ห้องนอน 2 ห้องน้ำ (Duplex) 81.50 - 82.25 ตร.ม.
ขายแบบ Fully Furnished ให้เฟอร์นิเจอร์ครบ รวมถึง Digital door lock และยังให้ระบบ Home Automation และ Voice Command โดยห้องแต่ละ Type จะได้เฟอร์นิเจอร์ที่แตกต่างกันเล็กน้อยค่ะ
- ห้องตัวอย่างแบบ 2 ห้องนอน 2 ห้องน้ำ ขนาด 58.75 - 60.75 ตร.ม.

Furniture Package ที่โครงการให้มา สำหรับห้องนี้จะเป็นแบบนี้ค่ะ

ห้องตัวอย่างแบบ 2 ห้องนอน 2 ห้องน้ำ

ที่นี่จะมี Digital Door Lock ของ Samsung ให้ สามารถใช้งานได้ ทั้งการใส่พาสเวิร์ด ใช้การ์ด และใช้กุญแจค่ะ

จะติด Door Stopper หรือ ตัวกันกระแทกประตูมาให้ด้วยค่ะ

เปิดประตูเข้ามาส่วนแรกจะเป็นพื้นที่ครัวแบบปิด มีประตูบานสไลด์กั้นให้ระหว่างโซน Living
ความสูงจากพื้นถึงฝ้า 2.55 ม. พื้นแกรนิตโต้

ทางโครงการให้ชุดครัวจะเป็นเคาน์เตอร์ รวมถึงชั้นวางของด้านบน หน้าตาและสีแบบนี้
ได้ราวแขวนครัวติดผนังมาให้แบบนี้ และติด Backsplash สีเขียวตามนี้เลยค่ะ

เคาน์เตอร์ครัว พร้อมช่องเก็บของ และพื้นที่วางเครื่องซักผ้า

ตู้เก็บของด้านบนบานปิดเป็น Fiber Glass จับแล้วไม่เป็นรอยนิ้วมือ

ได้เตาไฟฟ้า 2 หัว ก๊อกน้ำหัวโค้ง เครื่องดูดควัน ของ Mex และ Top ครัวเป็นหินสังเคราะห์สีดำ

ฝั่งตรงข้ามเคาน์เตอร์ครัว จะให้โต๊ะวางของและตู้รองเท้าตามลิส Furniture Package
ไม่ได้ให้หน้าตาแบบนี้แต่จะวางตำแหน่งประมาณนี้

ประตูบานสไลด์ 3 ตอน กั้นให้ระหว่างครัวกับ Living Room

Living Room มีขนาดกว้าง พื้นลามิเนต ส่วนแรกจะวางโต๊ะรับประทานอาหารขนาด 4 ที่ได้พอดี

ระยะระหว่างโซฟากับทีวีกว้างทีเดียว สามารถติดตั้งทีวีขนาดใหญ่ได้เลย

ทางโครงการจะให้โซฟาขนาด 3 ที่มา ขนาดประมาณนี้แต่คนละแบบค่ะ

มีประตูบานเลื่อนบานใหญ่เปิดออกไประเบียงส่วนตัวได้

กรอบประตูอะลูมิเนียมผิวทรายซาฮาร่า และกระจกเขียวตัดแสง

ระเบียงมีขนาดกว้าง พร้อมราวเหล็กกันตก หรือจะนำไม้กระถางมาวางก็ไม่คับแคบเกินไปนะคะ

กลับมาชมห้องที่เหลือกันต่อ

ห้องน้ำ ตัวพื้นจะลดระดับลงไปจากพื้นห้องปกติเล็กน้อย ปูกระเบื้องลายเกล็ดปลา
สามารถเข้าได้จากโถงพักผ่อนด้านนอกและเข้าได้จากห้องนอน 2

ภายในห้องน้ำให้สุขภัณฑ์มาครบ สุขภัณฑ์เป็นของ COTTO และติดตั้งพัดลมดูดอากาศมาให้

มีตู้เก็บของบานปิดให้ทั้งบนและล่าง แต่ตัวกระจกไม่ใช่บานใหญ่แบบนี้นะคะ ส่วนฝักบัวเป็นแบบ Rain Shower ค่ะ

ห้องนอน 2 ห้องนี้เหมาะจะทำเป็นห้องนอนเด็ก ทางโครงการจะให้ฐานเตียง 5 ฟุต มาค่ะ

มีหน้าต่างบานกระทุ้งและกระจกบานใหญ่รับแสงจากด้านนอก

มีทางเข้าห้องน้ำจากในห้องนอน

ตรงข้ามห้องนอน 2 จะเป็น Master Bedroom

ห้องนี้มีขนาดใหญ่ จะได้ฐานเตียงขนาด 6 ฟุต ชั้นวางทีวี โต๊ะแต่งตัว และสตูลตามแบบใน Furniture Package

กระจกและหน้าต่างบานกระทุ้งบานใหญ่ภายในห้องนอน

เมื่อวางเตียงขนาด 6 ฟุตแล้วยังเหลือพื้นที่พอให้เดินได้สะดวก

ภายในห้องนี้ยังติดตั้งระบบ Well Air ซึ่งเป็นระบบตรวจวัดและควบคุมคุณภาพอากาศภายในห้อง ที่มีระบบ Smart Control ในการควบคุมความชื้น อุณหภูมิ ปริมาณคาร์บอนไดออกไซด์ และ VOCs ให้อยู่ในปริมาณที่ดีต่อสุขภาพจาก SCG มาให้ด้วย

หากมีอากาศที่ไม่ดีจะถูกดูดออกจากตรงนี้ค่ะ

ภายในห้องน้ำส่วนตัวให้สุขภัณฑ์มาครบ เหมือนห้องน้ำห้องที่แล้ว แต่ไม่ได้กระจกบานใหญ่

แยกส่วนเปียก/แห้งอย่างชัดเจนด้วยประตูกระจก Temper

สวิตช์ไฟระบบสัมผัส
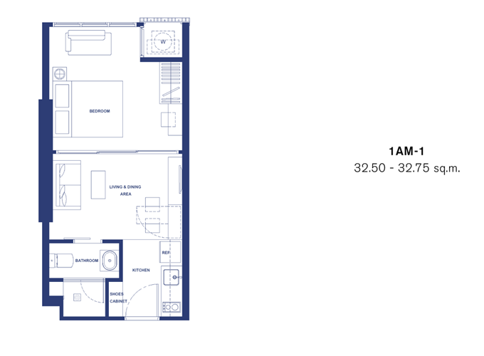
- ห้องตัวอย่างแบบ 1 ห้องนอน 1 ห้องน้ำ (S) ขนาด 32.50 - 32.75 ตร.ม.

Furniture Package ของแบบ 1 ห้องนอน

ห้องตัวอย่างแบบ 1 ห้องนอน 1 ห้องน้ำ

ส่วนแรกจะเป็นพื้นที่ครัว คล้ายกับแบบ 2 ห้องนอน พื้นแกรนิตโต้

ได้เคาน์เตอร์ ราวแขวน Backsplash รวมถึงชั้นวางของด้านบนหน้าตาแบบนี้เลยค่ะ

เคาน์เตอร์ครัว พร้อมช่องเก็บของ และพื้นที่วางเครื่องซักผ้า ได้เตาไฟฟ้า และซิงค์ล้างจาน ของ Mex

ตู้เก็บของด้านบน พร้อมเครื่องดูดควัน ของ Mex

ตรงข้ามเคาน์เตอร์ครัวจะเป็น ตู้ใส่รองเท้าจะได้ตามแบบใน Furniture Package

ถัดจากครัวจะเป็น โซน Living ห้องนี้มีความสูงจากพื้นถึงฝ้า 2.55 ม. พื้นโซนนี้เป็นพื้นลามิเนต

ห้องน้ำอยู่ติดกับโซน Living

ห้องน้ำให้สุขภัณฑ์มาครบ ของ COTTO และติดตั้งพัดลมดูดอากาศมาให้

ตู้เก็บของพร้อมบานกระจก

แยกส่วนเปียก/แห้งอย่างชัดเจนด้วยประตูกระจก Temper และมีฝักบัวแบบ Rain Shower

โซน Living สามารถวางโซฟาขนาด 3-4 ที่ได้

ฝั่งตรงข้ามโซฟา ทางโครงการจะให้ชั้นวางทีวี และโต๊ะทำงานตามแบบใน Furniture Package
ซึ่งจะสามารถวางได้พอดีและใช้งานได้อย่างคุ้มค่าต่อพื้นที่อีกด้วย

ส่วนโซนห้องนอนจะกั้นด้วยบานสไลด์ 3 ตอน

ภายในห้องนอนจะได้ฐานเตียงแบบ 5 ฟุตมาค่ะ

พื้นที่ปลายเตียงจะได้ตู้เสื้อผ้าหน้าบานและกระจก แบบนี้และโต๊ะเครื่องแป้งแบบ Multifunction

ติดตั้งระบบ Well Air ที่ห้องนี้ค่ะ

มีหน้าต่างบานกระทุ้งบานใหญ่เปิดรับลมได้สะดวก

พื้นที่ข้างเตียงยังพอมีให้จัดวางโซฟาพักผ่อนได้อีกค่ะ
ราคาและค่าใช้จ่ายที่เกี่ยวข้องโดยประมาณ (ณ 24 ก.ย. 2562)
- 1 Bedroom ราคาเริ่ม 3.99 ล้านบาท
- 2 Bedrooms ราคาเริ่ม 7.55 ล้านบาท
- ค่าส่วนกลาง 55 บาท/ตร.ม./เดือน
- เงินกองทุน 500 บาท/ตร.ม.
- เงินจอง 1 ห้องนอน 30,000 บาท, 2 ห้องนอน 50,000 บาท, Duplex 70,000 บาท
- ทำสัญญา 1 ห้องนอน 50,000 บาท, 2 ห้องนอน 80,000 บาท, Duplex 100,000 บาท
ส่วนลดโปรโมชั่น (กรณีลูกค้าชำระเงินจองพร้อมสัญญา)
| Unit Type | เครื่องใช้ไฟฟ้า | Furniture Package |
| 1BR | 1. TV 40" 2. ไมโครเวฟ 23 ลิตร 3. ตู้เย็น 9 คิว 4. Water Heater 6,000 w | 1. Furniture Package 2. Home Automation 3. Voice Command |
| 2BR | 1. TV 40" 2. TV 32" 3. ไมโครเวฟ 23 ลิตร 4. ตู้เย็น 11 คิว 5. Water Heater 6,000 w 2 Item 6. Washing Machine 8 Kg. | 1. Furniture Package 2. Home Automation 3. Voice Command |
หมายเหตุ : TV, ตู้เย็น, ไมโครเวฟ, Washing Machine ของ SAMSUNG หรือ เทียบเท่า
: Water Heater ของ STIEBEL ELTRON หรือเทียบเท่า
เดอะ ไลน์ พหลโยธิน พาร์ค (The Line Phahonyothin Park) ปัจจุบันกำลังก่อสร้างค่ะ โดยคาดว่าจะแล้วเสร็จประมาณ Q3 ในปี 2565 ราคาเริ่มต้น ณ วันที่เข้าเยี่ยมชมโครงการ
3.99 ลบ.* ผู้ที่สนใจสามารถเข้าชมห้องตัวอย่างได้ที่ Sales Gallery ของโครงการ ที่ซอยพหลโยธิน 29 นี่เองค่ะ
ลงทะเบียนเพื่อรับข้อมูลหรือสิทธิพิเศษอื่นๆ

-
ปาริชาติ ใยแก้ว
PROPERTY GURU Thailand