รีวิว-เยี่ยมชม เอ็กซ์ที ห้วยขวาง ครั้งแรกกับคอนโด Co-sharing Facilities เพียง 75 ม. จาก MRT ห้วยขวาง
วันนี้เราอยู่กันที่
เอ็กซ์ที ห้วยขวาง (XT Huaikhwang) คอนโดใหม่อีกหนึ่งโครงการของแบรนด์
"XT" แบรนด์ใหม่ล่าสุดของแสนสิริค่ะ โครงการอยู่ติดถนนรัชดาภิเษก อยู่ในย่านห้วยขวาง หนึ่งในย่านที่เรียกว่าอุดมสมบูรณ์ อีกทั้งยังไม่ไกลจาก New CBD พระราม 9 และ Asoke Interchange และสะดวกสบายเรื่องการเดินทางสุดๆ เพราะใกล้ MRT ห้วยขวางแค่ 75 เมตรเท่านั้น!
เจ้าของและผู้พัฒนาโครงการ : บริษัท แสนสิริ จำกัด (มหาชน)
ที่ตั้งโครงการ : ถนนรัชดาภิเษก แขวงห้วยขวาง เขตห้วยขวาง กรุงเทพมหานคร 10310
อาคารชุดพักอาศัย : 2 อาคาร Tower A 43 ชั้น Tower B 14 ชั้น 1,404 ยูนิต และอาคารเพื่อการพาณิชย์ 1 ยูนิต (Family Mart)
ขนาดที่ดินทั้งโครงการ : 6 ไร่
ห้องชุด : มี 4 แบบหลักๆ ได้แก่
- 1 Bedroom 1 Bathroom 27.25 - 30.00 ตร.ม.
- 1 Bedroom 1 Bathroom 34 - 34.75 ตร.ม.
- 2 Bedrooms 1 Bathroom 50 ตร.ม.
- 2 Bedrooms 2 Bathroom 52.75 - 69.75 ตร.ม.
ราคา : เริ่มต้น 4.29 ลบ.*
วันที่เข้ารีวิวโครงการ : 23 ส.ค. 2562
เอ็กซ์ที ห้วยขวาง (XT Huaikhwang) ตั้งอยู่ติดถนนรัชดาภิเษก ห่างจาก MRT สถานีห้วยขวาง 75 เมตรเท่านั้น หมดห่วงเรื่องการเดินทาง และยังไม่ไกลจาก New CBD พระราม 9 นั่ง MRT แค่ 4 สถานีถึง Asoke Interchange
ถนนเส้นหลักก็คือ "ถนนรัชดาภิเษก" ค่ะ ซึ่งสามารถทะลุไปถนนลาดพร้าว, ถนนพระราม 9, ถนนดินแดง รวมถึงเชื่อมไปยังทางพิเศษศรีรัชได้สะดวก
ตัวอย่างเส้นทางที่ 1 - ห้าแยกลาดพร้าว - ถนนลาดพร้าว - ถนนรัชดาภิเษก
ตัวอย่างเส้นทางที่ 2 - ถนนรัชดาภิเษก - ถนนดินแดง - ถนนจตุรทิศ - ทางพิเศษศรีรัช
การเดินทางด้วยรถไฟฟ้าต้องบอกว่าสะดวกมากค่ะ เพราะโครงการห่างจาก MRT สถานีห้วยขวาง (ทางออกที่ 1) เพียง 75 เมตรเท่านั้น
สถานที่สำคัญใกล้เคียง และสภาพแวดล้อมรอบๆ โครงการ
แน่นอนค่ะว่าย่านนี้มีความอุดมสมบูรณ์อยู่แล้ว เพราะไม่ไกลจาก New CBD พระราม 9 การหาของกินของใช้ รวมถึง Community Mall และแหล่งช้อปปิ้ง นั่งรถไฟฟ้าสบายๆ แค่ 1-2 สถานี ก็ได้ข้าวของติดไม้ติดมือกลับคอนโดแล้วล่ะค่ะ

Sales Gallery ของโครงการอยู่ที่ชั้น 1 อาคารภคินท์ ใกล้ MRT พระราม 9 ค่ะ

บรรยากาศภายใน Sales Gallery

บรรยากาศภายใน Sales Gallery

The Street รัชดา ติด MRT สถานีศูนย์วัฒนธรรม ห่างจากโครงการแค่ 1 สถานี

Cyber World Tower อาคารสำนักงานขนาดใหญ่ ก็อยู่ติด MRT ศูนย์วัฒนธรรม เช่นเดียวกันค่ะ

แอบมองมุม CBD พระราม 9 ตึกเรียงกันทั้ง 2 ฝั่งถนนรัชดาภิเษก

เทสโก้ โลตัส พระราม 9

เซ็นทรัล พลาซ่า แกรนด์ พระราม 9 อยู่ติด MRT สถานีพระราม 9 เลยค่ะ ห่างจากโครงการแค่ 2 สถานี

G Land Tower แลนด์มาร์คใหม่ล่าสุดของพระราม 9

เริ่มจากแมนชั่น 7 อยู่ติดถนนรัชดาภิเษกเลย

ถัดมาเป็นโครงการ เซ็นทริค รัชดา-ห้วยขวาง จาก SC ASSET

ถัดจากเซ็นทริคคือ พื้นที่โครงการของเรานั่นเอง ถนนรัชดาภิเษกช่วงเที่ยงๆ รถรายังแอบแน่นๆ อยู่

ถึงเอ็กซ์ที ห้วยขวางแล้วค่ะ ล้อมรั้วมิดชิด ด้านในกำลังก่อสร้างกันอยู่ค่ะ

ถ้ามองฝั่งนี้ จะแอบเห็นตึกของเซ็นทริคด้วย

ถัดจากทางเข้าโครงการจะเป็น โชว์รูม Honda ค่ะ

เดินมานิดเดียวก็ถึงลานจอดรถของ MRT สถานีห้วยขวางแล้วค่ะ ซึ่งตรงนี้คือ MRT ทางเข้า-ออกที่ 1

เดินเลย MRT ห้วยขวางกันนิดนึงค่ะ รถรายังแน่นอยู่ เพราะด้านหน้าคือสี่แยกห้วยขวางนั่นเอง

ขวามือเป็นถนนประชาราษฎร์บำเพ็ญนั่นเองค่ะ มีพี่วินอยู่ปากซอยเยอะเลย
รูปแบบตึก และตัวโครงการโดยรวม
เอ็กซ์ที ห้วยขวาง (XT Huaikhwang) เป็น High Rise 2 Tower คือ Tower A 43 ชั้น และ Tower B 14 ชั้น ยูนิตพักอาศัยทั้งหมด 1,404 ยูนิต และยูนิตเพื่อการพาณิชย์อีก 1 ยูนิต (Family Mart)

โมเดลจำลองด้านหน้าโครงการ ขวามือคือทางเข้าโครงการระยะทางประมาณ 120 เมตร

ลานจอดรถเริ่มตั้งแต่ชั้น 1-5 ค่ะ โซนพักอาศัยเริ่มตั้งแต่ชั้น 6 เป็นต้นไป

Sky Garden บนชั้น 14

สระว่ายน้ำขนาดโอลิมปิก พร้อมด้วยสไลเดอร์สูง 5 เมตร บนชั้น 42 ค่ะ ส่วนชั้น 43 คือ พื้นที่ Hidden Sky Bar
ไปดูส่วนของ Master Plan และ Floor Plan กันต่อค่ะ ว่าประกอบไปด้วยอะไรบ้าง

Master Plan สังเกตตรงส่วนทางเข้าจะมีพื้นที่สีเขียวตลอดเส้นทาง รวมถึง Pocket Garden ด้วยค่ะ

Floor Plan 1st

Floor Plan 6th เป็นพื้นที่ของ Oasis Garden ค่ะ เชื่อมกันระหว่าง Tower A และ B ซึ่งส่วนพักอาศัยจะเริ่มตั้งแต่ชั้นนี้

Floor Plan 7th

Floor Plan 8th-10th

Floor Plan 11th ชั้นนี้ของ Tower B มี Pocket Garden ค่ะ

Floor Plan 12th ชั้นนี้ของ Tower B มี Pocket Garden ค่ะ

Floor Plan 13th
ชั้นนี้ของ Tower B มี Pocket Garden ค่ะ 
Floor Plan 14th ชั้นนี้คือ Rooftop ของ Tower B และเป็นพื้นที่ Sky Garden
ประกอบไปด้วย Outdoor Theater และ Relaxing Sky Garden

Floor Plan 15th-21st

Floor Plan 22nd

Floor Plan 23rd-27th

Floor Plan 28th

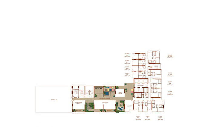
Floor Plan 29th เป็นพื้นที่
Glass House 3 ประกอบไปด้วย Tea Room, Co-working Space และ Game Room 
Floor Plan 30th

Floor Plan 31st

Floor Plan 32nd-41st

Floor Plan 42nd
Helix Rooftop สระว่ายน้ำขนาดโอลิมปิก พร้อมสไลเดอร์สูง 5 ม.
และสวนเอาไว้ด้วยกัน พร้อมด้วยพื้นที่ Freestyle Fitness Studio
Floor Plan 43th พื้นที่ Hidden Sky Bar บาร์ลับ Panoramic View ส่วนกลางและสิ่งอำนวยความสะดวก
พื้นที่ส่วนกลางที่ถือเป็นจุดเด่นที่น่าสนใจของโครงการ คือ Co-sharing Space (Creative Studio 3 แบบ ได้แก่ Arts & Crafts Studio, Cooking Studio และ Photo Studio) ที่ลูกบ้านสามารถ Co Facilities กับ XT โครงการอื่นๆ ได้ ทั้งนี้พื้นส่วนกลางอื่นๆ ยังจัดเต็มมาเพื่อลูกบ้านโดยเฉพาะ เช่น สระว่ายน้ำขนาดเท่าสระโอลิมปิก และสิ่งอำนวยความสะดวกอื่นๆ อาทิ
- Lobby Lounge
- Fitness and Freestyle Exercise Studio
- Outdoor Ozone Gym
- Oasis Garden
- Game Room
- Tea Room
- Laundry Room
- Parking Space and Bicycle Parking Space
- Smart Locker and Rental Locker
- Wireless Internet

บรรยากาศจำลองภายในโครงการ

พื้นที่ Lobby Lounge

Pocket Garden พื้นที่สีเขียวบริเวณชั้น 11, 12, 13

Outdoor Theatre ปาร์ตี้พร้อมจอ LED ขนาดใหญ่ ดูหนังหรือเชียร์กีฬาสดๆ กับเพื่อนๆ ได้เลย

Photo Studio
Arts & Crafts Studio 
Cooking Studio

Glass House 3 หลังบนชั้น 29 ประกอบไปด้วย Tea Room, Co-working Space และ Game Room

Freestyle Fitness Studio ที่แบ่งโซนกิจกรรมออกเป็น 3 โซน ได้แก่ เอาใจนักปั่นด้วย Live Streaming Bike, Rock Climbing Treadmill เหมาะกับคนรักนักปีน และพื้นโยคะ ยืดเส้นยืดสายกันให้เต็มที่

Helix Rooftop บนชั้น 42 และ 43 ที่รวมสระว่ายน้ำขนาดโอลิมปิก พร้อมสไลเดอร์สูง 5 ม. และสวนสวยเอาไว้ด้วยกัน

Hidden Sky Bar บาร์ลับ Panoramic View
ภาพห้องตัวอย่างและ Lay out
ห้องพักอาศัยของโครงการ มีให้เลือกด้วยกันทั้งหมด 4 แบบด้วยกัน คือ
- 1 Bedroom 1 Bathroom 27.25 - 30.00 ตร.ม.
- 1 Bedroom 1 Bathroom 34 - 34.75 ตร.ม.
- 2 Bedrooms 1 Bathroom 50 ตร.ม.
- 2 Bedrooms 2 Bathroom 52.75 - 69.75 ตร.ม.
ขายแบบ Fully Furnished ให้เฟอร์นิเจอร์ครบ โดยห้องแต่ละ Type จะได้เฟอร์นิเจอร์ที่แตกต่างกันเล็กน้อยค่ะ
- ห้องตัวอย่างแบบ 1 ห้องนอน 1 ห้องน้ำ ขนาด 34.75 ตร.ม.

แบบห้องตัวอย่างห้องแรกขนาด 34.75 ตร.ม. ค่ะ

เข้ามาขวามือเป็นห้องครัวค่ะ Floor to Ceiling 2.55 ม.

ห้องครัวทางโครงการ Built in เคาร์เตอร์และ Hob & Hood มาให้แบบนี้เลย ขวามือเป็นตู้เก็บรองเท้า

Top
หิน Terrazo ด้านบนจะได้ลายเก๋ๆ แบบนี้เลยค่ะ

ซ้ายมือเป็นพื้นที่ Walk-in Closet ค่ะ ซึ่งเชื่อมถึงห้องน้ำได้ ทำให้สะดวกเวลาเพื่อนๆ มาที่ห้อง ไม่ต้องรบกวนห้องนอนเรา

Walk-in Closet ใช้เป็นพื้นที่อเนกประสงค์ก็ได้ค่ะ

กลับมาที่ส่วนห้องรับแขกค่ะ เพื่อเพิ่มพื้นที่ใช้งานให้มากขึ้น ระเบียงจึงหายไป
เพราะปัจจุบันชาวคอนโดแทบจะไม่ได้ออกไปยืนที่ระเบียงกันแล้วใช่มั้ยล่ะคะ

สิ่งมาทดแทนระเบียงคือ หน้าต่างยาวที่สามารถเปิดรับลมได้
และคอมเพรสเซอร์แอร์ที่ทางโครงการยกมาไว้ด้านใน แต่ไม่ต้องกังวลเรื่องเสียงค่ะ

มองจากห้องรับแขกไปห้องครัว ขวามือคือห้องนอนค่ะ

มาต่อที่ห้องนอนค่ะ วางเตียงควีนไซส์แล้วยังเหลือพื้นที่รอบๆ อีกเยอะ วางโต๊ะทำงานหรือโต๊ะเครื่องแป้งได้อีก

Bay Window ให้ลูกบ้านเทควิวได้เต็มๆ

กว้างพอสมควรเลย เดี๋ยวไปดูห้องน้ำกันค่ะ

ห้องน้ำก็จะได้แบบนี้เลย อย่างที่บอกไปตอนแรกค่ะ ว่ามีเข้าได้ 2 ทาง เพื่อความเป็นส่วนตัวเวลามีแขก

ฉากกั้นอาบน้ำ 3 ตอน เพื่อเพิ่มพื้นที่ให้ดูกว้างขึ้น

ห้องน้ำสุขภัณฑ์ครบครัน

ไปแอบดู Walk-in Closet กันอีกครั้งค่ะ ทางโครงการจะวาง Layout มาให้แบบนี้เลย

จุของได้เยอะพอสมควรทีเดียวค่ะ เหมาะกับคนที่มีเสื้อผ้าเยอะ
- ห้องตัวอย่างแบบ 2 ห้องนอน 2 ห้องน้ำ ขนาด 58.25 ตร.ม.

มาต่อกันที่ห้องตัวอย่างแบบ 2 ห้องนอน 2 ห้องน้ำ ขนาด 58.25 ตร.ม.

Layout ดีไซน์ใหม่ ที่เรายกประตูห้องเก็บของมาไว้ด้านนอก ส่วน Foyer นี้สามารถเอาไว้เก็บข้าวของได้ อย่างเช่น จักรยานบางคนไม่อยากเข็นจักรยานเข้าไปในห้องเพราะกลัวเลอะ พื้นที่ Foyer นี่ล่ะค่ะตอบโจทย์คุณเลย

สำหรับ Type นี้เปิดประตูมาเป็นพื้นที่ของโต๊ะทานข้าว

มุมมองจากหลังโต๊ะทานข้าวค่ะ ด้านหน้าเป็นส่วนห้องรับแขก
ส่วนซ้ายมือคือส่วน Foyer ซึ่งห้องจริงจะเป็นบานกระจกกั้นค่ะ

พื้นที่ Foyer เก็บของ

Type นี้มีระเบียงค่ะ

พื้นที่ระเบียงกว้างพอสมควร วางกระถางต้นไม้ รวมถึงออกไปยืนสูดอากาศได้

วางกระถางต้นไม้หรือชุดรับแขกเล็กๆ ก็ได้ค่ะ

กลับมาในห้องค่ะ เดี๋ยวเราไปดูห้องครัวกัน

ห้องครัวทางโครงการ Built in เคาน์เตอร์พร้อม Hob&Hood มาให้อีกเช่นกันค่ะ

ถัดจากครัวคือห้องน้ำค่ะ

ห้องน้ำก็ได้สุขภัณฑ์ และเคาน์เตอร์, กระจก ตามนี้เลย

พื้นที่อาบน้ำพร้อมฉากกั้น 3 ตอน มีช่องวางสบู่เล็กๆ น่ารักมาให้ด้วย

ไปต่อกันที่ห้องแรกค่ะ ห้องตัวอย่างตกแต่งเป็นห้องทำงานค่ะ

ด้านในพื้นที่กว้างทีเดียว

มาถึงห้องนอนหลักค่ะ ห้องนี้จะมีหน้าต่างเยอะนิดนึง เพื่อให้รับแสงรับลมได้เต็มที่

เหลือที่ว่างค่อนข้างเยอะพอที่จะวางโต๊ะทำงาน

จริงๆ แล้วมีพื้นที่สำหรับ Walk-in Closet ค่ะ

Walk-in Closet จะอยู่บริเวณทางเข้าห้อง

ปลายเตียงสามารถติดทีวีแขวนผนังได้ค่ะ

ไปต่อที่ห้องน้ำในตัวค่ะ สุขภัณฑ์ครบครันเช่นเดิม

มุมมองจากห้องน้ำ
เอ็กซ์ที ห้วยขวาง (XT Huaikhwang) ปัจจุบันกำลังก่อสร้างค่ะ โดยคาดว่าจะแล้วเสร็จในปี 2564 ราคาเริ่มต้น ณ วันที่เข้าเยี่ยมชมโครงการ
4.29 ลบ.* ผู้ที่สนใจสามารถเข้าชมห้องตัวอย่างได้ที่ Sales Gallery ของโครงการ ชั้น 1 อาคารภคินท์ ใกล้ MRT พระราม 9
และตอนนี้ XT มี LIFESTYLE CAMPAIGN ที่สามารถเลือกรับข้อเสนอพิเศษจาก XT คอนโดมิเนียม ทั้ง 3 ทำเล เอกมัย, ห้วยขวาง และพญาไท LIFESTYLE PACK เลือกแพ็กเกจ กิน เที่ยว* ตามมูลค่าเงินจอง และทําสัญญา ทราบมาว่าเป็นที่พักสุดชิคจากโรงแรม The Standard หรือเลือก DISCOUNT PACK รับส่วนลดเท่ากับเงินจอง สูงสุด 600,000 บาท* แทน วันนี้ - 31 ต.ค. 62 *เงื่อนไขเป็นไปตามที่บริษัทฯ กำหนด
ลงทะเบียนเพื่อรับข้อมูลหรือสิทธิพิเศษอื่นๆ ด้านล่าง
สอบถามรายละเอียดเพิ่มเติม โทร. 1685 หรือ
www.sansiri.com/condominium/xt-huaikhwang