ประเมินวงเงินรู้ผลใน 3 นาที
กับ กรุงศรี ออโต้ พร้อมสตาร์ท

เริ่มประเมินวงเงินพร้อมสตาร์ท
ผ่านมือถือ สแกนเลย

ดูวงเงินพร้อมสตาร์ทที่ได้รับ

  • คอนโด
  • คอนโด
  • ค้นหาแบบละเอียด
  • รีวิว-เยี่ยมชม คอนโด ไอดีโอ คิว พหล-สะพานควาย (Ideo Q Phahol-Saphankwai)

    17 มิ.ย. 62 6,352
    รีวิว-เยี่ยมชม คอนโด ไอดีโอ คิว พหล-สะพานควาย (Ideo Q Phahol-Saphankwai) 
    รีวิว-เยี่ยมชมคอนโดวันนี้ พบกับโครงการ "ไอดีโอ คิว พหล-สะพานควาย (Ideo Q Phahol-Saphankwai)" คอนโด High Rise จากอนันดาฯ มีจุดเด่นในเรื่องของทำเลที่ตั้งที่ติดถนนใหญ่พหลโยธิน และที่สำคัญอยู่ติดทางขึ้น-ลงบันไดรถไฟฟ้า BTS สถานีสะพานควาย เพียง 0 เมตร! เดินทางก็สะดวก อยู่ก็สบาย และสิ่งอำนวยความสะดวกครบครัน ในราคาเริ่มต้นที่ 5.5 ล้านบาท พร้อมทั้งยังมีความน่าสนใจ และรายละเอียดอื่นๆ ให้ชมอีกมากมาย ตามไปดูกันเลยค่ะ
    ข้อมูลโครงการ
    • เจ้าของและผู้พัฒนาโครงการ : บริษัท อนันดา ดีเวลลอปเม้นท์ จำกัด (มหาชน)
    • ที่ตั้งโครงการ : ถนนพหลโยธิน แขวงสามเสนใน เขตพญาไท กรุงเทพมหานคร 10400
    • อาคารชุดพักอาศัยสูง 39 ชั้น จำนวน 3 อาคาร Tower Terra, Tower Luna, และ Tower Sol
    • มีทั้งหมด 1,119 ยูนิต แบ่งเป็น ห้องพักอาศัย 1,114 ยูนิต และร้านค้า 5 ยูนิต (Tower Terra 396 ยูนิต Tower Luna 287 ยูนิต และ Tower Sol 431 ยูนิต)
    • ขนาดที่ดินทั้งโครงการ : 5-3-69.5 ไร่
    • ลิฟต์โดยสาร 9 ตัว
    • พื้นที่จอดรถ ชั้น 1-5 จำนวน 546 คัน
    • ห้องชุดมี 3 แบบ ได้แก่ แบบ Studio, 1 Bedroom, และ 2 Bedrooms
    • ขนาดตั้งแต่ : 26.5 - 72.0 ตร.ม.
    • ราคาเริ่มต้น 5.5 ล้านบาท หรือ 220,000 บาท/ตร.ม. (ข้อมูล ณ 24 พ.ค. 62)
    • วันที่เข้าเยี่ยมชม - รีวิวคอนโด 24 พ.ค. 62
    ทำเลที่ตั้ง และสภาพแวดล้อมรอบๆ โครงการ
    โครงการตั้งอยู่บนถนนพหลโยธิน แขวงสามเสนใน เขตพญาไท กรุงเทพมหานคร ความโดดเด่นของโครงการคือ ที่ตั้งของโครงการนั้นตั้งอยู่ติดกับรถไฟฟ้า BTS สถานีสะพานควายเพียง 0 เมตร ถ้าเดินออกมาจากโครงการก็จะเห็นบันไดทางขึ้น BTS ได้ทันทีเลย และทำเลนี้ก็ขึ้นชื่อเรื่องความอุดมสมบูรณ์ทั้งอาหารการกิน สาธารณูปโภค และการเดินทางที่แสนสะดวกสบายทั้งรถไฟฟ้า รถสาธารณะ และรถยนต์ส่วนตัว

    แผนที่ตั้งโครงการ (คลิกดูภาพใหญ่)

    แผนที่โครงการ และสถานที่สำคัญโดยรอบ (พิกัด 13.793034, 100.549618)
    บรรยากาศรอบๆ โครงการ และสถานที่ใกล้เคียง
    สถานที่รอบๆ โครงการนั้นครบและครอบคลุมไปทุกรอบด้าน ทั้งโรงพยาบาลที่อยู่ติดกับโครงการเลยคือ โรงพยาบาลเปาโล และถัดไปเป็นห้างสรรพสินค้า Big C และสภาพแวดล้อมรอบโครงการก็เต็มไปด้วย ร้านค้า ร้านอาหาร และตลาด ที่ทำให้การอุปโภค บริโภคนั้นเป็นเรื่องง่าย และมีของให้เลือกรับประทานได้หลากหลายแบบ ไม่ต้องเดินทางไปไหนไกลๆ เลยทีเดียว

    แผนที่แสดงสภาพแวดล้อม และสถานที่รอบๆ โครงการ 

    เดี๋ยวจะพาชมทางฝั่งซ้ายมือกันก่อนค่ะ เดินออกมาก็มีวินมอเตอร์ไซค์บริการเลย

    พร้อมมีป้ายราคาบอกให้เสร็จสรรพ

    ถัดมามีเซเว่น อีเลฟเว่น

    โรงพยาบาลเปาโล เมโมเรียล อยู่ห่างจากโครงการเพียง 70 เมตร

    ตึกโรงพยาบาล ด้านในมีร้านอาหาร ร้านกาแฟบริการ

    เดินมาอีกหน่อยก็จะเจอ Big C Supercenter

    ลองเดินไปดูฝั่งขวาของโครงการกันบ้างค่ะ ออกมาก็เจอทางขึ้นบีทีเอสสะพานควายเลย สะดวกสุดๆ

    ถ้าไม่ขึ้นบีทีเอส ก็เดินมาดูบรรยากาศริมถนนพหลโยธิน ช่วงสะพานควายกันค่ะว่ามีอะไรบ้าง

    ร้านอาหารแซ่บ สเตชั่น จากชื่อร้านก็พอเดาได้ว่าเป็นอาหารอีสาน

    ร้านหนังสือมือสองชื่อดังย่านสะพานควาย

    เลยไปหน่อยก็มีร้านก๋วยเตี๋ยวหมูตำลึง ข้าวมันไก่ โจ๊กหมู ป้ายแดงสดใส

    เดินเลยสะพานลอยบีทีเอสไป มีโครงการพี่น้องของอนันดาอย่าง ไอดีโม มิกซ์ พหลโยธินมี Max Valu บริการ

    ข้ามไปฝั่งตรงข้ามกันต่อเลยค่ะ มีซอยวัดไผ่ตัน แหล่งชุมชนของขายเยอะแยะ

    มีร้านอาหารทานง่ายๆ เป็นแนวยาว

    ฝั่งนี้ก็มีเซเว่น อิเลฟเว่น ข้างหน้ามีไก่ย่างห้าดาว และร้านเครื่องดื่ม

    ไปรษณีย์ไทยก็อยู่ใกล้ๆ แค่ข้ามฝั่งมา

    เดินเลยไปอีกหน่อย ตรงบันไดทางขึ้นบีทีเอส มีร้านอาหารปักษ์ใต้-กลาง

    Tesco Lotus Express ก็มี
    การเดินทาง
    การเดินทางที่สะดวกที่สุดคงหนีไม่พ้นรถไฟฟ้า BTS แต่โครงการก็ยังสามารถเดินทางเข้าออกได้อย่างสะดวกด้วยรถยนต์ส่วนตัวเหมือนกันค่ะ โดยสามารถใช้เส้นทางได้ดังต่อไปนี้
    เดินทางด้วยรถยนต์
    ขาเข้าเส้นทางที่ 1 มาจากถนนสุขุมวิท
    ขาเข้าเส้นทางที่ 2 มาจากถนนลาดพร้าว
    ขาออกเส้นทางที่ 1 ไปถนนสุขุมวิท
    ขาออกเส้นทางที่ 2 ไปถนนลาดพร้าว
    เดินทางด้วยรถไฟฟ้า
    เพียงแค่มีบัตรรถไฟฟ้าก็เดินมาโครงการได้อย่างง่ายดาย เพียงมาลงที่ BTS สถานีสะพานควาย ออกทางประตู 2 ก็ถึงโครงการแล้ว และจะเดินทางไปไหนมาไหน ก็ไปได้ทุกที่ด้วยรถไฟฟ้า เราสามารถไปสยามโดยจะใช้เวลาเพียง 14 นาที หรือเพียงแค่ 6 สถานีเท่านั้น โดยไม่ต้องเปลี่ยนขบวนอีกด้วยค่ะ

    BTS สะพานควาย ด้านหน้าโครงการ และป้ายรถเมล์

    ใช้ทางออกที่ 2 นะคะ

    เดินลงไปก็เห็นโครงการแล้ว

    ถ้านับกันตามจริงอาจจะไม่ใช่ 0 เมตร แต่เดินเพียงไม่กี่ก้าวก็ถึง สบายกว่านี้ไม่มีอีกแล้ว
    รูปแบบตึก และตัวโครงการโดยรวม
    โครงการ ไอดีโอ คิว พหล-สะพานควาย ออกแบบภายใต้แนวคิด "BE eTRINITY" สิ่งต่างๆ บนโลกใบนี้ ล้วนมีส่วนผสมสำคัญของ 3 แกนหลัก อาทิ ส่วนผสมอะตอม หรือแม่สี เช่นเดียวกับวิถีการอยู่อาศัยของคนเมือง ที่จะสมบูรณ์พร้อมได้ก็ต่อเมื่อ "ธรรมชาติ-คน-เมือง" ถูกถักทอเข้าไว้ด้วยกันอย่างแนบสนิท ตัวอาคารออกแบบมาได้โดดเด่นสะดุดตา และดูทันสมัยตามแบบฉบับของอนันดาฯ เลือกใช้โทนสีเข้มดูสุขุมน่าค้นหา ตกแต่งอาคารด้วยกระจกบานใหญ่
    ตัวอาคารเป็นโครงการคอนโดมิเนียมแบบ High Rise ความสูง 39 ชั้น บนพื้นที่ 5-3-69.5 ไร่ แบ่งเป็น 3 อาคาร จำนวนห้องพักอาศัยทั้งหมด 1,114 ยูนิต ประกอบด้วย Tower Terra มีจำนวน 396 ยูนิต, Tower Luna จำนวน 287 ยูนิต และ Tower Sol จำนวน 431 ยูนิต นอกจากนี้มียูนิตร้านค้าอีก 5 ยูนิต เรื่องสิ่งอำนวยความสะดวกส่วนกลาง อนันดาฯ ก็ไม่เคยทำให้ผิดหวังยังคงจัดเต็มมาให้ลูกบ้านแบบไม่มีกั๊ก สามารถจอดรถได้ทั้งหมด 546 คัน
    เรามาดูแปลนอาคารแต่ละชั้นกันค่ะ

    แปลนอาคารทั้งหมด

    ยูนิตที่เป็นร้านค้า 5 ยูนิตจะอยู่ชั้นล่าง ด้านหน้าโครงการ

    ชั้น 6 เป็นพื้นที่ของส่วนกลาง และที่อยู่อาศัย อาคาร Terra อยู่ด้านหน้า ฝั่งที่ติดถนนค่ะ

    ชั้น 7-26 เป็นห้องพักอาศัย ที่มีตำแหน่งห้องและแบบแปลนเดียวกันหมด

    ชั้น 27 เป็นห้องพักอาศัย

    ชั้น 28 เป็นห้องพักอาศัย

    ชั้น 29 เป็นห้องพักอาศัย

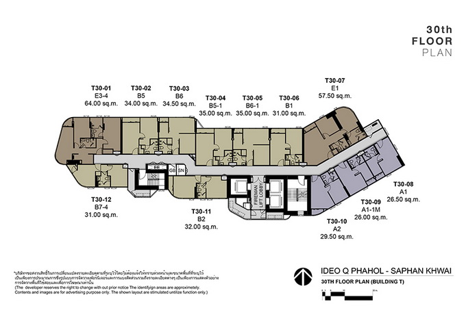
    ชั้น 30 เป็นห้องพักอาศัย

    ชั้น 31 ก็ยังเป็นห้องพักอาศัยค่ะ

    ชั้น 32 เป็นห้องพักอาศัย

    ชั้น 33 เป็นห้องพักอาศัย

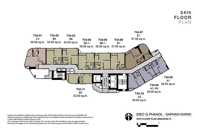
    ชั้น 34 เป็นห้องพักอาศัย

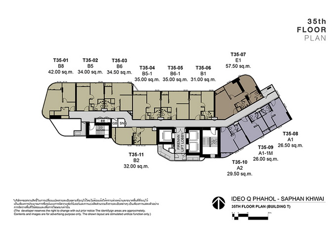
    ชั้น 35 เป็นห้องพักอาศัย

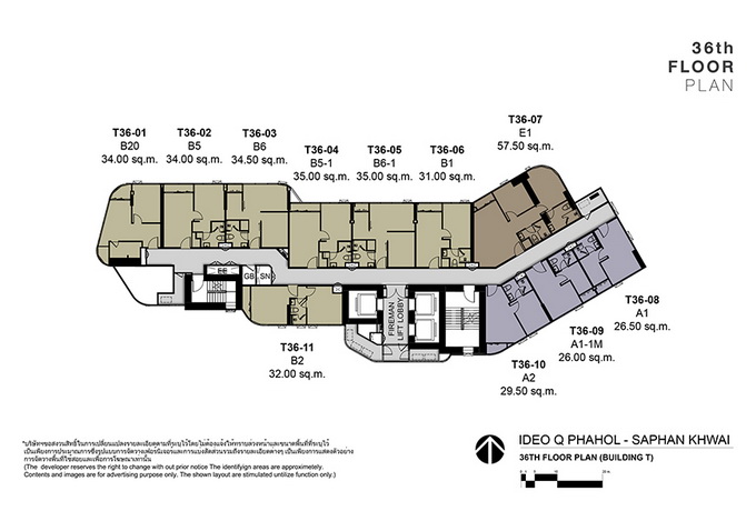
    ชั้น 36 เป็นห้องพักอาศัย

    ชั้น 37 เป็นห้องพักอาศัย

    ชั้น 38 เป็นห้องพักอาศัย

    ชั้น 39 เป็นห้องพักอาศัย และมีพื้นที่ส่วนกลางด้วยค่ะ

    มาดูแบบโมเดลกันต่อค่ะ ตัวอาคารดูโมเดิร์นทันสมัย หน้าตา 3 ตึกตั้งแบบนี้ 

    ทางลงบีทีเอสสะพานควาย เชื่อมต่อกับทางเข้าโครงการ

    Sales Gallery ในอนาคตจะกลายเป็น Shop ค่ะ

    เข้ามาจะเจอกับสวนสีเขียวกระจัดกระจายทั่วโครงการ ตึกด้านหน้าสุดคือ อาคาร Terra ที่เปิดขายก่อนนี่เองค่ะ

    มีการไล่ระดับชั้น ตกแต่งอาคารด้วยต้นไม้และพื้นที่สีเขียว

    ชั้น 1 - 5 เป็นที่จอดรถ

    สระว่ายน้ำชั้น 6 ยาวถึง 50 เมตรเลยทีเดียว

    พื้นที่ส่วนกลางที่อยู่บริเวณชั้น 6 มีทั้งพื้นที่สระว่ายน้ำขนาดใหญ่ และอ่างจากุชชี่ 

    พื้นที่ส่วนกลางออกแบบให้มี 3 โซนคือ Play House, Social House, และ Air House 

    และชั้น 39 บนสุดก็ยังมีพื้นที่ส่วนกลาง แบ่งออกเป็น 3 โซน Sky Lounge, Startarium,
    และ Sunset Lounge สำหรับรับลมชมวิวบนชั้นดาดฟ้า
    ส่วนกลางและสิ่งอำนวยความสะดวก
    สิ่งอำนวยความสะดวกและส่วนกลางของโครงการมาในคอนเซ็ปต์ "Tree House" มีความสูงถึง 3 ชั้น ซึ่งประกอบไปด้วย 3 ส่วนใหญ่ๆ คือ Play House, Social House, และ Air House ปัจจุบันโครงการอยู่ในระหว่างเริ่มก่อสร้าง จึงยังไม่มีภาพจริงของส่วนกลางและสิ่งอำนวยความสะดวก แต่เราก็มีภาพจำลองมาให้ดูกันก่อนค่ะ โดยจะประกอบไปด้วย
    • Lobby
    • Mail Room
    • Meeting room
    • Juristic Person Office (ห้องนิติบุคคล)
    • Car Park
    • Garden
    • Swimming Pool (Kids Pool, Hydrotherapy Pool, Hot Spring Bath, Cold Bath)
    • Social House
    • Laundry
    • Climbing Wall
    • Fitness room
    • Changing room
    • Steam and Sauna Room
    • Security 24 hours

    ส่วนกลางของโครงการกินพื้นที่ไป 3 ชั้นเลยทีเดียว

    บรรยากาศชั้นส่วนกลาง

    Lobby Lounge อยู่ที่บริเวณชั้น Ground ซึ่งชั้นนี้จะมีในส่วนของ
    Mail Room, Meeting room, ห้องนิติบุคคล, และห้องน้ำอยู่ด้วย

    โซน Social House สำหรับลูกบ้านมานั่งพูดคุยกัน

    บรรยากาศจำลองภายในฟิตเนสสุดอลังการ อยู่ชั้น 6

    มาพร้อมเครื่องเล่นที่ทันสมัย

    สระว่ายน้ำยาว 50 เมตร

    สระว่ายน้ำขนาดใหญ่ แยกสระเด็กและผู้ใหญ่ มีความยาวถึง 50 เมตร
    ล้อมรอบไปด้วยต้นไม้ใหญ่ เพิ่มบรรยากาศให้ร่มรื่นและผ่อนคลาย

    ชั้น 6 ยังมีสระน้ำแบบ Hot & Cold Relaxing Pool

    มาที่โซน Play House บริเวณชั้น 8

    ชั้น 39 แบ่งออกเป็น 3 โซน Sky Lounge, Startarium, และ Sunset Lounge

    โซนชมวิวท้องฟ้ายามค่ำคืน Startarium พร้อมมุมมองแบบ Panoramic

    และโซน Sunset ที่สามารถนั่งชมวิวพระอาทิตย์ตกสวยๆ ได้อย่างโรแมนติก
    ภาพห้องตัวอย่างและ Lay out
    ห้องพักอาศัยของโครงการนี้มีรูปแบบห้องให้เลือกเยอะมากๆ ข้อดีคือ สามารถตอบสนองได้ครบทุกไลฟ์สไตล์การใช้ชีวิต ไม่ว่าจะเป็นครัวปิด ครัวเปิด ห้องขนาดกระทัดรัดสำหรับพักอาศัยเพียงคนเดียว หรือสำหรับครอบครัวใหญ่ ที่นี่มีรองรับทุกรูปแบบ โดยแบ่งเป็น 3 แบบหลักด้วยกัน คือ Studio, 1 Bedroom, และ 2 Bedrooms
    ห้องของโครงการนี้ขายแบบ Fully Fitted ให้เฟอร์นิเจอร์บางส่วน โดยสิ่งที่โครงการให้มาประกอบด้วย ชุดเคาน์เตอร์ครัว ตู้เก็บของข้างบนและข้างล่าง, เตาไฟฟ้า, เครื่องดูดควัน, ไมโครเวฟ, สุขภัณฑ์ในห้องน้ำ และเครื่องปรับอากาศแบบฝังฝ้าเพดาน
    ที่สำนักงานขายจัดห้องตัวอย่างให้ได้ชมด้วยกันถึง 3 Type คือแบบ 1 Bedroom ขนาด 34.50 ตร.ม., แบบ 1 Bedroom ขนาด 35.00 ตร.ม. และแบบ 2 Bedrooms ขนาด 72.00 ตร.ม. เราจะพาไปชมกันทีละห้องค่ะ เริ่มจากห้องแรก
    1) ห้องแบบ 1 Bedroom พื้นที่ใช้สอยขนาด 34.50 ตร.ม.

    ประตูหน้าห้องที่ได้จะเป็นประตูสำเร็จรูป มือจับแบบก้านโยก พร้อมช่องมองตาแมว

    ความสูงจากพื้นถึงฝ้า 2.7 เมตร ทำให้ห้องสูงโปร่ง ไม่อึดอัด
    พื้นห้องครัวปูด้วยกระเบื้องแผ่นใหญ่ลายหินอ่อนทำความสะอาดง่าย และพื้นห้องนั่งเล่นปูด้วย Engineered Wood

    เข้ามาจะเจอกับโซนห้องครัวอยู่ทางซ้าย เป็นแบบครัวเปิดได้ชุดครัว Built-in รูปตัว L ตามแบบห้องตัวอย่าง 

    มีตู้เก็บของทั้งชั้นบนและชั้นล่าง บานพับแบบ Soft close ทั้งหมด
     หน้าบานปิดผิวด้วย Hi gloss ทำความสะอาดง่ายและได้ความสวยงาม

    ได้ไมโครเวฟแบบ Built-in ยี่ห้อ FRANKE

    ได้เครื่องดูดควัน ยี่ห้อ FRANKE

    อ่างล้างจานหลุมเดียวทรงสี่เหลี่ยมพร้อมก๊อกน้ำหัวโค้งของ FRANKE 

    มีแผ่นสำหรับปิดบริเวณอ่างล้างจานมาให้เวลาที่ไม่ได้ใช้งาน
    วัสดุผิวปิดท็อปครัวเป็นหินสังเคราะห์โทนสีเทา พร้อมพื้นที่เตรียมอาหาร

    ติดตั้งถังขยะชนิดมีฝาปิดมาให้ที่ใต้ตู้ชั้นล่าง

    ฝั่งขวา หรือตรงข้ามกับครัว ทางโครงการ Built-in เป็นตู้บานเปิดสำหรับเก็บเครื่องซักผ้า ปิดมิดชิดเรียบร้อย 

    ภายในตู้ติดตั้งปลั๊กไฟมาให้พร้อมใช้งาน แบ่งเป็นชั้นสำหรับวางของ และด้านข้างเก็บอุปกรณ์สำหรับทำความสะอาดได้

    ถัดเข้ามาเป็นห้องนั่งเล่นขนาดใหญ่

    เหมาะสำหรับวางโซฟาขนาด 2 ที่นั่ง ระยะดูทีวีค่อนข้างกว้าง สามารถวางโต๊ะกลางได้

    ห้องนั่งเล่นติดกันเป็นระเบียงขนาดใหญ่ กั้นด้วยประตูกระจกบานเลื่อนสีเขียวตัดแสง

    สามารถใช้งานพื้นที่ระเบียงได้อย่างเต็มพื้นที่ เนื่องจากทางโครงการเก็บคอมเพรสเซอร์แอร์ไว้ในพื้นที่ส่วนกลางแล้วนั้นเอง
    ราวระเบียงสูงประมาณ 110 ซม.

    ประตูห้องนอนที่ได้จะเป็นประตูบานสวิง มิดชิดเป็นสัดส่วน

    ตำแหน่งเตียงนอนอยู่ทางซ้ายชิดกับหน้าต่าง สามารถวางเตียงได้ขนาด 5-6 ฟุต

    หน้าต่างห้องนอนออกแบบเป็นกระจกแบบเข้ามุมบานใหญ่ เปิดมุมมองให้สามารถเทควิวได้กว้างมากยิ่งขึ้น

    ใครชอบดูทีวีสามารถติดตั้งทีวีแบบแขวนผนังไว้ที่ปลายเตียงได้

    สามารถวางโต๊ะเครื่องแป้ง หรือจะวางเป็นโต๊ะทำงานข้างเตียงได้

    ห้องน้ำตั้งอยู่ภายในห้องนอน 
    ด้านขวาก่อนเข้าห้องน้ำมีพื้นที่อีกพอสมควรสามารถทำเป็น Work in closet ขนาดย่อมๆ ได้

     ได้พื้นที่ใช้สอยขนาดใหญ่ ใครที่ชอบอยู่ภายในห้องน้ำนานๆ น่าจะชอบ
    แยกพื้นที่ส่วนเปียกส่วนแห้งไว้เป็นสัดส่วน ได้กระจกเงาบานใหญ่

    ได้อ่างล้างหน้าแบบฝัง ท๊อปของอ่างวัสดุเป็นหินสังเคราะห์สีขาวดูสะอาดตา 

    ใต้อ่างเป็นตู้เก็บของได้อีก

    ได้โถสุขภัณฑ์สีขาว ยี่ห้อ TOTO

    เป็นระบบ Auto Washlet

    ติดตั้งฉากกั้นอาบน้ำกระจกเทมเปอร์ 

    ได้ชุดฝักบัวสายอ่อนทรงกลม พร้อมก๊อกน้ำหัวผสม ที่วางสบู่ 

    และ Rain Shower ทรงกลมขนาดใหญ่

    ผนังและพื้นห้องน้ำกรุด้วยกระเบื้องแกรนิตโต้ลายหินอ่อนแผ่นใหญ่ ทำความสะอาดง่าย
    เลือกใช้โทนสีสว่างทำให้ห้องดูกว้าง 

    ในห้องน้ำได้พัดลมดูดอากาศของ Panasonic

    สวิตช์ และ ปลั๊กไฟโทนสีเทาของ Schneider
    2) ห้องแบบ 1 Bedroom พื้นที่ใช้สอยขนาด 35.00 ตร.ม.

    ห้อง Type นี้จัดวางพื้นที่ใช้งานอย่างห้องน้ำ และห้องครัวไว้ทางปีกซ้ายของห้อง ส่วนพื้นที่พักผ่อนอย่างห้องนอนไว้ทางปีกขวา และจัดวางห้องนั่งเล่นไว้ด้านในสุดของห้อง

    เข้าห้องมาทางซ้ายจะเป็นโซนของห้องน้ำ ติดกับห้องน้ำเป็นตู้สำหรับเก็บเครื่องซักผ้า

    ยังคงได้ห้องน้ำขนาดใหญ่ กั้นแบ่งพื้นที่ใช้งานเป็นสัดส่วน ได้กระจกเงาบานใหญ่ และท๊อปอ่างล่างหน้า
    เหลือพื้นที่สำหรับวางของหรืออุปกรณ์อาบน้ำได้อีกเยอะมากๆ

    แบ่งโซนเปียกโซนแห้งมาให้พร้อมใช้งาน

    ฝั่งขวาตรงข้ามกับห้องน้ำเป็นผนังห้อง
    ทางโครงการติดกระจกมาให้ดูเป็นไอเดียทำให้โถงทางเดินที่จะเชื่อมต่อไปห้องนั่งเล่นดูกว้างยิ่งขึ้น

     เดินเข้ามาอีกหน่อยจะเป็นห้องครัว ห้อง Type ได้ครัวแบบปิด

    กั้นด้วยประตูกระจกบานเลื่อนกรอบอะลูมิเนียมสีคอปเปอร์ เหมาะสำหรับผู้ที่ชื่นชอบการทำอาหาร

    ยังคงได้ชุดครัว ตู้เก็บของ พร้อมเครื่องใช้ไฟฟ้าครบเซ็ท

    ห้องครัวจะเชื่อมต่อกับส่วนของระเบียง เปิดประตูระเบียงเพื่อช่วยระบายกลิ่นเวลาทำอาหารได้ดี

    จุดเด่นของห้อง Type นี้คือ พื้นที่ห้องนั่งเล่นที่จัดวางไว้ด้านในสุดของห้องติดกับผนังกระจกบานใหญ่  สามารถเทควิวเมืองได้อย่างเต็มที่ นอกจากนี้กระจกบานใหญ่ยังเป็นช่องให้แสงธรรมชาติผ่านเข้ามาในห้องได้เป็นอย่างดี ทำให้ห้องดูสว่างขึ้น

    การจัดวางห้องนั่งเล่นไว้ในสุดแบบนี้ทำให้ค่อนข้างได้ความเป็นส่วนตัวมากยิ่งขึ้น
    สามารถใช้เวลานั่งเล่นพักผ่อนตรงมุมนี้ได้แบบยาวๆ 

    ติดกันเป็นโซนของห้องนอน กั้นด้วยประตูกระจกบานเลื่อนแบบเข้ามุม
    แบ่งพื้นที่ให้เป็นสัดส่วน แต่ยังคงได้ความโปร่งสบาย ไม่อึดอัด

    ในห้องนอนเหมาะสำหรับวางเตียงขนาด 5 ฟุต เหลือพื้นที่สำหรับเดินปลายเตียงนิดหน่อย

    แต่ด้านข้างเตียงยังเหลือพื้นที่พอให้วางโต๊ะข้างเตียงได้สบายๆ

    สามารถเปิดประตูเชื่อมต่อระหว่างพื้นที่ห้องนอน และห้องนั่งเล่นเข้าด้วยกัน ขยายพื้นที่พักผ่อนให้กว้างมากยิ่งขึ้น
    3) ห้องแบบ 2 Bedrooms พื้นที่ใช้สอยขนาด 72.00 ตร.ม.

    ห้องนี้เป็นห้องแบบหน้ากว้าง

    เข้ามาทางซ้ายจะเป็นห้องน้ำที่ 2 ห้องนอนที่ 2 ห้องครัว และห้องนั่งเล่น ส่วนทางขวาเป็นห้อง Master bedroom

    เข้าไปสำรวจห้องนอนใหญ่ หรือห้อง Master bedroom กันก่อนค่ะ

    พื้นที่ห้องนอนขนาดใหญ่วางเตียงขนาด 6 ฟุตได้สบายๆ จัดวางโซฟาขนาดกระทัดไว้ข้างๆ เตียงก็ได้ 

    ใครที่ชอบการแต่งตัวหรือมีเสื้อผ้าเยอะ สามารถ Built-in เป็น walk in closet ก็ยังได้

    ในห้อง Master bedroom จะมีห้องน้ำในตัว โดยทางเข้าห้องน้ำจะอยู่ปลายเตียง

     ห้องน้ำนี้จะพิเศษกว่า 2 ห้องที่ผ่านมาคือ มีอ่างอาบน้ำขนาดใหญ่ของ TOTO มาให้ด้วย

    โดยห้องน้ำในห้อง Master bedroom ของ Type แบบ 2 Bedrooms จะได้อ่างอาบน้ำแบบนี้ทั้งหมด

    ไปสำรวจส่วนอื่นๆ ของห้องกันต่อ
    จากจุดนี้ทางซ้ายจะเห็นห้องครัว ทางขวาเป็นห้องน้ำที่ 2 และห้องนอนที่ 2 ส่วนตรงไปจะเป็นห้องนั่งเล่น

    ห้องครัวจะอยู่ตรงข้ามกับห้องน้ำ มีประตูบานเลื่อนกั้นเป็นสัดส่วน ได้ชุดเคาน์เตอร์ครัวรูปตัว L

    ตำแหน่งตู้เก็บเครื่องซักผ้าจะอยู่ทางซ้ายของห้องครัว

    ห้องน้ำตรงจุดนี้เป็นแบบ Double Access เข้าออกได้ 2 ทาง ทั้งจากโถงทางเดิน และห้องนอนที่ 2

    แบ่งส่วนเปียกส่วนแห้งมาให้ แต่โถสุขภัณฑ์จะเป็นแบบธรรมดา

    ห้องนอนที่ 2 ทางโครงการตกแต่งมาให้ดูในรูปแบบของห้องอเนกประสงค์
    แต่ลูกบ้านจะจัดเป็นห้องนอนก็ได้ โดยห้องนี้เหมาะสำหรับวางเตียงขนาดประมาณ 3.5 - 5 ฟุต

    ต้องบอกว่าพื้นที่ห้องนั่งเล่นของ Type นี้กว้างมากจริงๆ

    ตกแต่งด้วยผนังกระจกบานใหญ่รอบด้าน ขอบด้านข้างโค้งมนสามารถเทควิวได้แบบเต็มๆ ตา

    สามารถวางโซฟาแบบ L-Shape ได้แบบสบาย

    มุมนี้มองย้อนกลับไปยังโถงทางเดินจะเห็นความกว้างของห้องนั่งเล่นได้อย่างชัดเจน
    ตัวอย่างราคาและค่าใช้จ่ายที่เกี่ยวข้องโดยประมาณ (ณ วันที่ 24 พ.ค. 62)
    ราคาเริ่มต้น 5.5 ล้านบาท
    ราคาเฉลี่ยโครงการ 220,000 บาท/ตร.ม.
    Promotion: Project Presale
    • Deal พิเศษลด 7%
    สถานะปัจจุบันของโครงการ (ณ วันที่ 24 พ.ค. 62)
    โครงการออกแบบไว้ให้มีทั้งหมด 3 อาคาร แต่ ณ ปัจจุบัน เปิดขายอาคาร TERRA อาคารเดียวเท่านั้นค่ะ โดยมีทั้งหมด 396 ยูนิต และขายให้กับเฉพาะคนไทยเท่านั้น ในราคาเริ่มต้นที่ 5.5 ล้านบาท ท่านใดที่สนใจสามารถเข้าไปเยี่ยมชมที่สำนักงานขายของโครงการได้ทุกวันค่ะ และสามารถลงทะเบียนรับสิทธิพิเศษได้ที่ลิงก์ด้านล่างนี้

    รีวิว-พรีวิวล่าสุดอื่นๆ

    คอนโดติดรถไฟฟ้าล่าสุด

เว็บไซต์นี้มีการเก็บคุกกี้เพื่อเพิ่มความพึงพอใจในการใช้งานเว็บไซต์ และช่วยให้เราปรับปรุง และนำเสนอเนื้อหาตรงตามความสนใจของท่าน ท่านสามารถดู Privacy Notice และ ดู Cookies Policy ของเราได้ ที่นี่ ทั้งนี้ ท่านจะยินยอมให้เราเก็บคุกกี้ทั้งหมด หรือให้เก็บแค่บางส่วนโดยการคลิกเลือก ตั้งค่า

ท่านสามารถเลือกให้ความยินยอมการเก็บคุกกี้เป็นเรื่องๆ ได้ที่นี่

เมื่อคุณเข้าชมเว็บไซต์ หรือแอปพลิเคชั่น checkraka เราอาจจัดเก็บ หรือดึงข้อมูลจากเบราว์เซอร์ของคุณในรูปแบบของคุกกี้ และเทคโนโลยีอื่นที่คล้ายคลึง เช่น tag และ pixel (เรียกรวมกันว่า “คุกกี้”) ซึ่งมักเป็นข้อมูลที่ไม่สามารถระบุตัวตนได้โดยตรง แต่ช่วยให้คุณใช้งานเว็บไซต์ได้ปลอดภัย และตรงตามความต้องการมากขึ้น คุณอาจไม่ยินยอมให้เราเก็บคุกกี้บางประเภทได้ โดยการคลิกตามหัวข้อข้างล่างนี้

ประเภทคุกกี้
อ่านเพิ่มเติม ที่นี่
ยินยอม / ไม่ยินยอม
คุกกี้ที่จำเป็นต้องมีเสมอ
(Strictly Necessary)
คุกกี้สำหรับการใช้งานเว็บไซต์
(Functionality)
คุกกี้เพื่อเพิ่มประสิทธิภาพและวิเคราะห์
(Performance & Analytics)
คุกกี้เพื่อการตลาด
(Marketing)