ประเมินวงเงินรู้ผลใน 3 นาที
กับ กรุงศรี ออโต้ พร้อมสตาร์ท

เริ่มประเมินวงเงินพร้อมสตาร์ท
ผ่านมือถือ สแกนเลย

ดูวงเงินพร้อมสตาร์ทที่ได้รับ

  • คอนโด
  • คอนโด
  • ค้นหาแบบละเอียด
  • รีวิว-เยี่ยมชม คอนโด ไฮ แจ้งวัฒนะ 19 คอนโด (HI Chaengwattana 19 Condo)

    24 พ.ย. 63 15,588
    รีวิว-เยี่ยมชม คอนโด ไฮ แจ้งวัฒนะ 19 คอนโด (HI Chaengwattana 19 Condo)
    วันนี้เราจะพามาชมคอนโดมิเนียม Low-rise โครงการใหม่ ไฮ แจ้งวัฒนะ 19 คอนโด (HI Chaengwattana 19 Condo) จาก บริษัท ยูทีลิตี้ เรียล เอสเตท จำกัด ที่ตั้งอยู่ภายในซอยแจ้งวัฒนะ 19 ตรงข้ามกับเซ็นทรัลแจ้งวัฒนะ และยังอยู่ใกล้กับรถไฟฟ้าสายสีชมพู สถานีแจ้งวัฒนะ-ปากเกร็ด 28 (ในอนาคต) พร้อมสิ่งอำนวยความสะดวกครบ กับราคาเบาๆ ที่สามารถเป็นเจ้าของได้ไม่ยาก จะมีความน่าสนใจขนาดไหน ตามไปชมพร้อมๆ กันเลยค่ะ
    ข้อมูลโครงการ
    • เจ้าของและผู้พัฒนาโครงการ : บริษัท ยูทีลิตี้ เรียล เอสเตท จำกัด 
    • ที่ตั้งโครงการ : ซอยแจ้งวัฒนะ - ปากเกร็ด 23 ตำบลคลองเกลือ อำเภอปากเกร็ด จังหวัด นนทบุรี
    • อาคารชุดพักอาศัย : สูง 8 ชั้น จำนวน 2 อาคาร 
    • จำนวนห้องพักอาศัย : รวมทั้งหมด 347 ยูนิต แบ่งเป็น อาคาร A จำนวน 137 ยูนิต และอาคาร B จำนวน 210 ยูนิต
    • ลิฟต์โดยสาร : อาคารละ 2 ตัว
    • ห้องชุด : แบบ 1 ห้องนอน ขนาด 28 ตร.ม.
    • ที่จอดรถ : จำนวน 114 คัน หรือคิดเป็นประมาณ 33% กรณีจอดซ้อนคันรวม 124 คัน หรือคิดเป็นประมาณ 36%  
    • ราคาเริ่มต้น : 999,000 บาท - 1.2 ล้านบาท (ข้อมูล ณ 20 ก.ค. 63)
    • วันที่เข้าเยี่ยมชม-รีวิวคอนโด : 15 พ.ค. 62
    ทำเลที่ตั้งและสภาพแวดล้อมรอบๆ โครงการ
    โครงการ ไฮ แจ้งวัฒนะ 19 คอนโด ตั้งอยู่ภายในซอยแจ้งวัฒนะ - ปากเกร็ด 23 ถนนแจ้งวัฒนะ อำเภอปากเกร็ด จังหวัดนนทบุรี ห่างจากถนนแจ้งวัฒนะประมาณ 650 เมตร โดยจากถนนแจ้งวัฒนะสามารถเข้าไปยังที่ตั้งของโครงการได้ถึง 3 เส้นทางด้วยกัน ทั้งจากซอยแจ้งวัฒนะ 19 สังเกตง่ายๆ คือ ซอยจะอยู่ตรงข้ามกับห้างเซ็นทรัลแจ้งวัฒนะ หรือจะเข้าซอยแจ้งวัฒนะ 21 และซอยแจ้งวัฒนะ 23 ก็ได้เช่นกัน การเดินทางด้วยรถยนต์จึงถือว่าสะดวก เพราะด้วยตัวถนนแจ้งวัฒนะนั้นสามารถวิ่งเชื่อมต่อไปยังถนนเส้นสำคัญๆ ได้อีกหลากหลายเส้นทาง อาทิ ถนนเลียบคลองประปา ถนนรามอินทรา ถนนชัยพฤกษ์ ถนนเลี่ยงเมืองปากเกร็ด และถนนติวานนท์ แถมยังใกล้ทางด่วนพิเศษอุดรรัถยาอีกด้วย ซึ่งออกจากโครงการไปประมาณ 5 นาทีเท่านั้น 

    รูปแผนที่โครงการ 
    ไฮ แจ้งวัฒนะ 19 คอนโด
    • การเดินทางโดยรถยนต์
    เส้นทางที่ 1 จากถนนเลี่ยงเมืองปากเกร็ด : วิ่งตรงมาถึงสี่แยกปากเกร็ด-แจ้งวัฒนะ เลี้ยวซ้ายเข้าถนนแจ้งวัฒนะ ขับตรงมาประมาณ 1.3 กม. เลี้ยวซ้ายเข้าซอยแจ้งวัฒนะ 19 จากนั้นขับเข้าซอยไปอีกประมาณ 750 เมตร ก็จะถึงที่ตั้งโครงการ
    เส้นทางที่ 2 จากวงเวียนหลักสี่ : ขับมาตามถนนแจ้งวัฒนะ ผ่านเซ็นทรัลแจ้งวัฒนะ ผ่านโรงพยาบาลเวิลด์เมดิคอล ขับตรงไปอีกประมาณ 550 เมตร และกลับรถบริเวณศรีสวัสดิ์ จากนั้นขับตรงมาประมาณ 1.3 กม. เลี้ยวเข้าซอยแจ้งวัฒนะ 19
    เส้นทางที่ 3 ใช้ทางด่วนพิเศษอุดรรัถยา : จากโครงการขับไปถนนใหญ่แจ้งวัฒนะโดยใช้ซอยแจ้งวัฒนะ 23 จากนั้นเลี้ยวซ้ายเพื่อไปขึ้นทางด่วน
    • การเดินทางโดยรถไฟฟ้า
    สำหรับการเดินทางด้วยรถไฟฟ้าถือว่าสะดวกมาก เพราะอยู่ใกล้กับรถไฟฟ้าสายสีชมพู (แคราย - มีนบุรี) โดยสถานีที่ใกล้ที่สุดคือ สถานีแจ้งวัฒนะ-ปากเกร็ด 28 ซึ่งทางโครงการอำนวยความสะดวกให้กับลูกบ้าน โดยโครงการมีรถบริการ จากโครงการไปส่งที่สถานีรถฟฟ้า ไม่ต้องเดินให้เหนื่อย โดยตัวสถานีแจ้งวัฒนะ-ปากเกร็ด 28 จะตั้งอยู่บริเวณปากซอยแจ้งวัฒนะ 19 (คาดว่าจะสร้างเสร็จปี 2564) สามารถนั่งรถไฟฟ้าสายสีชมพูเพื่อไปเชื่อมต่อกับรถไฟฟ้าสายอื่นๆ ได้อีกหลายสายไม่ว่าจะเป็น รถไฟฟ้าสายสีม่วง (บางใหญ่-เตาปูน) ที่สถานีศูนย์ราชการนนทบุรี ที่เปิดให้บริการตั้งแต่ปี 2559 ที่ผ่านมา หรือสายสีส้ม (ศูนย์วัฒนธรรมแห่งประเทศไทย-มีนบุรี) ที่สถานีมีนบุรี หรือจะไปเชื่อมต่อกับรถไฟฟ้าสายสีเขียวส่วนต่อขยาย (หมอชิต-สะพานใหม่-คูคต) ที่สถานีวงเวียนหลักสี่ก็ยังได้ (คาดว่าจะสร้างเสร็จปี 2561 เป็นต้นไป) และในอนาคตรถไฟฟ้าสายสีชมพูยังจะเป็นทางเชื่อมต่อเข้าอิมแพคเมืองทองธานีอีกด้วย 
    • สภาพแวดล้อมรอบโครงการ
    จากปากซอยแจ้งวัฒนะ 19 เราจะลองเดินไปยังโครงการกันค่ะ ไปสำรวจดูซิว่าซอยนี้เค้ามีบรรยากาศเป็นอย่างไรกันบ้าง และมีความอุดมสมบูรณ์มากน้อยแค่ไหน

    เริ่มจากปากซอยแจ้งวัฒนะ 19 ซึ่งเป็นที่ตั้งของตลาดขนาดกลางๆ ไม่เล็ก ไม่ใหญ่

    ในตลาดมีของกินเพียบ 

    และยังมีของให้ช้อปปิงเพลินๆ ได้อีกด้วย

    ถัดมาจะมีร้าน 7-Eleven

    โซนอาหารตรงนี้มีให้เลือกครบทั้งข้าวราดแกง อาหารตามสั่ง รวมไปถึงขนมหวาน และผลไม้
    จัดโต๊ะสำหรับนั่งทานตรงนี้ได้เลย เรียกว่ามาที่เดียวอิ่มครบ

    มีร้านคาเฟ่น่ารักๆ อยู่ใกล้ๆ เข้าไปนั่งสั่งอาหาร และเครื่องดื่มทานหลบร้อนได้

    หรือหากเดินเข้ามาในซอยอีกหน่อยก็จะมีร้านอาหารในบรรยากาศชิวๆ หรือนั่งสังสรรค์ช่วงเย็นได้

    ถัดมาไม่ไกลจะมีคลินิกทำฟัน

    ฝั่งตรงข้ามยังมีร้าน 7-Eleven อีก 1 ร้าน

    ส่วนปากซอยแจ้งวัฒนะ 21 ทางซ้ายคือ อาคารซอฟแวร์ปาร์ค เป็นอาคารสำนักงานขนาดใหญ่
    และทางขวาเป็นคอนโด ASTRO 

    ตรงเข้าซอยแจ้งวัฒนะ 21 มาไม่ไกลจะมีร้านอาหาร ส.กุ้งเผา

    ปากซอยแจ้งวัฒนะ 23 อยู่ใกล้กับโรงแรม BEST WESTERN PLUS Wanda Grand Hotel

    ซึ่งซอยนี้จะเป็นที่ตั้งของ Sales Gallery ของ ไฮ แจ้งวัฒนะ 19
    พื้นที่รอบโครงการส่วนใหญ่จะติดกับบ้านพักอาศัยและอาคารสูงประมาณ 2 ชั้น มีเพียงทิศเหนือของฝั่งอาคาร A ที่หันหน้าไปทางอาคารพักอาศัยสูง 8 ชั้น แต่เนื่องจากมีถนนของซอยกั้นระหว่าง 2 อาคาร จึงทำให้มีระยะห่างระหว่าง 2 อาคารกว้างประมาณ 20 เมตร ถือว่าเป็นระยะที่ไม่ประชิดจนเกินไป จนทำให้รู้สึกสูญเสียความเป็นส่วนตัว ส่วนทิศใต้ของอาคาร B บางส่วนอาจจะโดนบล็อควิวจาก พราวคอนโดที่มีความสูง 7 ชั้น

    แผนที่แสดงสภาพแวดล้อมรอบๆ โครงการในระยะใกล้
    ด้านสิ่งอำนวยความสะดวกต้องบอกว่าในรัศมี 10 กม. จากที่ตั้งโครงการนั้นตอบโจทย์การใช้ชีวิตได้อย่างครบถ้วนจริงๆ ไม่ว่าจะเป็นห้างสรรพสินค้า โรงพยาบาล สถานศึกษา ศูนย์แสดงสินค้า และการประชุมขนาดใหญ่ รวมถึงศูนย์ราชการสำคัญๆ และแหล่งงานขนาดใหญ่ อาทิ

    แผนที่แจกแจงให้เห็นระยะใกล้-ไกลของโครงการกับสถานที่สำคัญที่น่าสนใจ
    พิกัดที่ตั้งโครงการ 13.907901, 100.531542
    พิกัดที่ตั้งสำนักงานขาย 13.905867, 100.531237

    ห้างสรรพสินค้าขนาดใหญ่ Central Plaza แจ้งวัฒนะ ตรงข้ามซอยแจ้งวัฒนะ 19

    โรงพยาบาลเวิลด์เมดิคอล

    สถาบันการจัดการปัญญาภิวัฒน์

    ศูนย์แสดงสินค้าขนาดใหญ่ระดับนานาชาติ อิมแพ็ค เมืองทองธานี

    นอกจากนี้ภายในเมืองทองยังเต็มไปด้วยร้านอาหารและคาเฟ่ชิคๆ มากมายหลายร้าน

    ร้านราดหน้าเจ้าดังในเมืองทอง กับลีลาการผัดอาหารที่ไม่ธรรมดา

    ศูนย์ราชการแจ้งวัฒนะ
    (ขอบคุณภาพ : www.governmentcomplex.com)

    บิ๊กซี ซูเปอร์ เซ็นเตอร์ แจ้งวัฒนะ

    Tesco Lotus แจ้งวัฒนะ

    ดิ อเวนิว แจ้งวัฒนะ
    รูปแบบตึก และตัวโครงการโดยรวม
    โครงการ ไฮ แจ้งวัฒนะ 19 คอนโด เป็นอาคารแบบ Low-Rise ความสูง 8 ชั้น จำนวน 2 อาคาร แบ่งเป็นอาคาร A ลักษณะอาคารรูปทรงตัว L และอาคาร B รูปทรงตัว I ในโทนสีเทาอ่อน เทาเข้ม เพิ่มความน่าสนใจด้วยลายเส้นสี Copper ตัวอาคารออกแบบได้ดูหรู และทันสมัย ยูนิตพักอาศัยรวม 347 ยูนิต แบ่งเป็น อาคาร A จำนวน 137 ยูนิต และอาคาร B จำนวน 210 ยูนิต ห้องพักอาศัยเริ่มต้นตั้งแต่ชั้น 2 - 8 ส่วนวัสดุที่จัดมาให้โดยรวมถือว่าเกรดดีทีเดียวเมื่อเทียบกับราคา
    ภายในโครงการเป็นการเดินรถแบบสองเลนวิ่งสวนกันได้ ตัวโครงการมีพื้นที่สำหรับจอดรถ สามารถจอดได้ 114 คัน หรือคิดเป็นประมาณ 33% (ไม่รวมซ้อนคัน) กรณีจอดซ้อนคันสามารถจอดได้ 124 คัน หรือคิดเป็นประมาณ 36% โดยพื้นที่จอดรถจะอยู่ใต้อาคาร A, อาคาร B + ชั้นใต้ดินของอาคาร B และที่จอดรถรอบโครงการอีกนิดหน่อย มีลิฟต์โดยสารมาให้ 2 ตัว/อาคาร อัตราส่วนการใช้ลิฟต์รวมทั้งโครงการอยู่ที่ 86:1 ถือเป็นตัวเลขที่ดีไม่หนาแน่น

    Master Plan ชั้น Ground : จะเป็นส่วนของ จุด Drop off, Lobby และที่จอดรถ

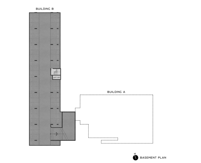
    Floor Plan ชั้นใต้ดิน : เป็นพื้นที่จอดรถทั้งหมด มีเฉพาะอาคาร B

    Floor Plan ชั้น 2 อาคาร A : เป็นชั้นของสิ่งอำนวยความสะดวก และห้องพักอาศัย
    Floor Plan ชั้น 2 อาคาร B : เป็นห้องพักอาศัยทั้งหมด

    Floor Plan ชั้น 3 : เป็นส่วนพักอาศัยทั้งหมด

    Floor Plan ชั้น 4 : เป็นส่วนพักอาศัยทั้งหมด

    Floor Plan ชั้น 5 : เป็นส่วนพักอาศัยทั้งหมด

    Floor Plan ชั้น 6 : เป็นส่วนพักอาศัยทั้งหมด

    Floor Plan ชั้น 7 : เป็นส่วนพักอาศัยทั้งหมด

    Floor Plan ชั้น 8 : เป็นส่วนพักอาศัยทั้งหมด

    ภายในสำนักงานขายของโครงการ ไฮ แจ้งวัฒนะ 19 มีโมเดลจำลองไว้ให้ชมด้วยค่ะ

    และนี่เป็นโมเดลจำลองอาคารพักอาศัยมุมมองฝั่งทิศเหนือ

    ทางเข้าออกโครงการติดถนนซอยแจ้งวัฒนะ 23 มีไม้กระดกกั้นพร้อม รปภ. ดูแลตลอด 24 ชั่วโมง
    เมื่อเลี้ยวเข้ามาแล้วจะเจออาคาร A อยู่ทางซ้าย และอาคาร B อยู่ทางขวา

    มุมมองโมเดลจำลองอาคารฝั่งทิศใต้ ติดกับที่ดินเปล่าและบ้านพักอาศัย

    โมเดลจำลองสระว่ายน้ำ พร้อมพื้นที่ Pool Deck สำหรับนั่งพักผ่อน หรือจะแช่น้ำวน JACUZZIก็รู้สึกผ่อนคลายไปอีกแบบ บริเวณชั้น 2 ของอาคาร A นอกจากนี้บนชั้นยังมีห้องฟิตเนส และ Co-working space อยู่ใกล้ๆ กันอีกด้วย

    จุดขึ้นลงลานจอดรถชั้นใต้ดินจะอยู่ระหว่างอาคาร A และอาคาร B

    ทางโครงการจัดเป็นพื้นที่สวนสีเขียวไว้บนชั้นดาดฟ้าของทั้ง 2 อาคาร
    ส่วนกลางและสิ่งอำนวยความสะดวก
    สิ่งอำนวยความสะดวกส่วนใหญ่จะอยู่ที่อาคาร A เกือบทั้งหมด นอกจากนี้ทางโครงการยังจัดให้มีพื้นที่สวนสีเขียวกระจายตัวอยู่รอบโครงการบริเวณชั้น G และชั้นดาดฟ้าอีกด้วย นอกจากนี้โครงการนี้เค้าดูแลนิติบุคคลเองเพื่อเพิ่มความมั่นใจให้กับลูกบ้าน ถึงการรับประกันและช่วยรักษาบรรยากาศในการอยู่อาศัยร่วมกันของลูกบ้านให้เป็นสังคมที่น่าอยู่ตลอดไป โดยสิ่งที่ทางโครงการให้มา ประกอบด้วย
    ชั้น G
    • Lobby แยกแต่ละอาคาร
    • พื้นที่สวนสีเขียว
    • ห้องจดหมาย และห้องนิติบุคคล
    ชั้น 2
    • สระว่ายน้ำ ระบบเกลือ พร้อมสระเด็ก และ JACUZZI
    • ห้องฟิตเนสพร้อมเครื่องออกกำลังกาย
    • พื้นที่ Deck area แบบ outdoor
    • ห้อง Co-working space
    ชั้น Rooftop
    • สวนพักผ่อนชั้นดาดฟ้า
    สิ่งอำนวยความสะดวกอื่นๆ
    • กล้อง CCTV ทุกชั้น
    • ระบบควบคุมการเข้าออกด้วยคีย์การ์ด
    • เจ้าหน้าที่รักษาความปลอดภัยตลอด 24 ชั่วโมง
    • ลิฟต์โดยสาร อาคารละ 2 ตัว แบบล็อคชั้นควบคุมการเข้าออกด้วยคีย์การ์ด
    • ที่จอดรถภายในอาคาร และที่จอดรถใต้ชั้นใต้ดิน (เฉพาะอาคาร B) ประมาณ 35% ยังไม่รวมซ้อนคันค่ะ หรือประมาณ 114 คัน 

    ภาพจำลองบรรยากาศส่วนพักผ่อนบริเวณชั้น 1 ของอาคาร A

    ภาพจำลองตำแหน่งสระว่ายน้ำอยู่ฝั่งทิศใต้ของอาคาร A แยกออกจากอาคารพักอาศัย
    จากมุมนี้จะมองเห็นพื้นที่จอดรถใต้อาคาร A ด้วย

    สระว่ายน้ำอยู่บริเวณชั้น 2 ของอาคาร A 

    ริมสระเป็น Deck area แบบ outdoor จัดเก้าอี้มาไว้ให้สำหรับนั่งเล่น

    พร้อมจากุชชีให้นอนแช่ตัวสบายๆ ในสระว่ายน้ำ

    ภาพจำลองบรรยากาศภายในห้องฟิตเนส

    ภาพจำลองบรรยกาศภายในห้อง Co-working space

    ภาพจำลองบรรยากาศบริเวณล็อบบี้
    ภาพห้องตัวอย่างและ Lay out
    โครงการนี้มีห้องพักอาศัยเพียง 1 Type เท่านั้นคือ แบบ 1 Bedroom พื้นที่ใช้สอยขนาด 28 ตร.ม. ขายแบบ Fully Fitted ได้เฟอร์นิเจอร์บางส่วน อาทิ ชุดครัว Built-in พร้อมตู้เก็บของ และสุขภัณฑ์ภายในห้องน้ำ โดยทางสำนักงานขายได้จัดห้องตัวอย่างไว้ให้ผู้ที่สนใจโครงการเข้าชมกันแล้ว ไปดูกันว่าห้องของโครงการนี้ตกแต่งออกมาแล้วจะน่าอยู่ขนาดไหน
    1) ห้องแบบ 1 Bedroom พื้นที่ใช้สอยขนาด 28 ตร.ม.

    ประตูหน้าห้องวัสดุเป็นไม้ HDF ทาสี มือจับลูกบิดกลม พร้อมช่องมองตาแมว

    เข้ามาโซนแรกที่เจอจะเป็นโซนห้องนั่งเล่น พื้นของห้องนั่งเล่น และห้องนอนปูพื้นไวนิลลายไม้ หนา 4 มม.
    ผนังภายในห้องฉาบปูนเรียบทาสี ฝ้าเพดานบุแผ่นยิบซั่มบอร์ดแผ่นเรียบ
    ความสูงจากพื้นถึงฝ้าสูง 2.4 เมตร บนเพดานได้ไฟดาวน์ไลท์

    ด้านขวาเป็นพื้นที่สำหรับชั้นวางทีวี สามารถวางทีวีขนาด 40 นิ้วได้เลย
    ด้านข้างของชั้นวางยังเหลือพื้นที่อีกพอสมควร สามารถวางตู้สำหรับเก็บของเพิ่มอีกก็ยังได้

    อีกฝั่งของห้องสามารถวางโซฟาได้ขนาด 2 ที่นั่ง

    ระยะดูทีวีกว้างประมาณ 2.5 เมตร เป็นระยะที่นั่งดูทีวีได้สบายๆ ไม่รู้สึกว่าใกล้เกินไป

    ใกล้กันยังเหลือพื้นที่สามารถวางโต๊ะทานอาหารแบบเข้ามุมพร้อมเก้าอี้ได้ 2 ตัว

    ถัดไปเป็นส่วนพักผ่อนหรือห้องนอน สามารถกั้นเป็นสัดส่วนด้วยประตูกระจกบานเลื่อน 2 ตอน
    (หากติดกระจกบานเลื่อนจะมีค่าใช้จ่ายเพิ่มเติม 20,000 บาท)

    ในห้องนี้วางเตียงขนาด 5 ฟุต ชิดริมหน้าต่าง
    หรือจะวางเตียง ขนาด 6 ฟุต ก็สามารถวางได้สบายๆ

    ระยะเดินปลายเตียงเหลือค่อนข้างกว้างเดินได้แบบสบายๆ

    หน้าต่างด้านบนเป็นแบบบานเลื่อน 2 ตอนกรอบอะลูมิเนียมสีดำ ส่วนด้านล่างเป็นบานฟิก

    ตัวล็อคมาตรฐาน

    ข้างเตียงฝั่งนี้เหลือพื้นที่เล็กน้อยพอสไลด์ตัวเปิดปิดม่านได้

    มุมนี้มองย้อนกลับไปที่ห้องนั่งเล่น

    สำหรับใครที่ชอบเปิดไฟนอนตอนกลางคืน ด้านข้างเตียงนอนเหลือพื้นที่พอให้วางหัวเตียงขนาดกะทัดรัดได้

    ตรงมุมนี้สามารถ Built-in ตู้เสื้อผ้าทรงสูงแบบนี้ได้ค่ะ เก็บเสื้อผ้าได้เยอะดี

    ผนังปลายเตียงสามารถติดตั้งทีวีติดผนัง และติดแอร์ได้ที่ตำแหน่งนี้

    เข้าไปสำรวจห้องครัวกันต่อดีกว่า 

    โครงการนี้เป็นครัวแบบเปิดทั้งหมด ใครที่ชอบทำอาหาร แนะนำให้ติดประตูบานเลื่อนเพิ่ม
    นอกจากจะกั้นเป็นสัดส่วนแล้ว ยังช่วยป้องกันกลิ่นลอยเข้ามายังพื้นที่พักผ่อนได้อีกด้วย

    เคาน์เตอร์ครัวจะอยู่ใกล้กับประตูระเบียง เหลือพื้นที่ด้านข้างสำหรับวางตู้เย็นหรือโต๊ะเตรียมอาหารได้อีก

    ได้เคาน์เตอร์ครัวครบชุดตามแบบห้องตัวอย่างเลยค่ะ

    ได้อ่างล้างจานสแตนเลสแบบหลุมเดียว พร้อมก๊อกน้ำหัวโค้ง

    ประตูกระจกสีเขียวตัดแสงแบบบานเลื่อน เวลาทำอาหารสามารถเปิดประตูเพื่อช่วยระบายกลิ่นอาหารได้

    ธรณีประตูค่อนข้างสูง เนื่องจากกันฝนและสิ่งแปลกปลอมพัดเข้าในห้อง เวลาเดินจึงต้องระมัดระวังเป็นพิเศษ

    ราวระเบียงกันตกสูงพอประมาณ แนะนำให้ยกคอมเพรสเซอร์แอร์ไว้ด้านบนในลักษณะนี้
    จะช่วยให้เหลือพื้นที่ใช้งานบริเวณระเบียงได้อย่างเต็มที่

    ติดตั้งปลั๊กไฟกันน้ำ พร้อมก๊อกน้ำหัวแดงมาให้พร้อมใช้งาน ถ้าจะซักล้างตรงนี้สะดวกมากๆ

    เข้าไปดูห้องน้ำกันต่อ
    ประตูห้องมือจับเป็นลูกบิดกลมวัสดุเป็นบานไม้ HDF กันน้ำ

    ยกธรณีประตูสูง
    พื้นปูด้วยกระเบื้องกันลื่นสีเทา ขนาด 30x30 ซม.

    ผนังในห้องน้ำกรุด้วยกระเบื้องสีขาวครีมแผ่นใหญ่ บางส่วนกรุด้วยกระเบื้องลายไม้
    ให้ความรู้สึกผ่อนคลายและใกล้ชิดธรรมชาติ

    ธรณียกสูงประมาณ 5 ซม. ป้องกันน้ำไหลออกมาด้านนอก

    อ่างล้างหน้าสีขาวยี่ห้อม Hefele ขนาดกำลังดีไม่เล็กไม่ใหญ่จนเกินไป

    โถสุขภัณฑ์แบบประหยัดน้ำมี 2 ปุ่มกด ยี่ห้อ Helele ได้กระจกเงาบานใหญ่ตามแบบน้ำเลยค่ะ ชอบๆ
    นอกจากจะทำให้ห้องน้ำดูกว้างขึ้นแล้ว เวลาแต่งตัวยังสามารถส่องกระจกได้แบบเต็มที่อีกด้วย

    ได้ชุดฝักบัวสายอ่อนตามแบบนี้เลยค่ะ ใครชอบอาบน้ำอุ่นๆ ติดตั้งเครื่องทำน้ำอุ่นเพิ่มก็ดีนะคะ

    ชุดฝักบัวยี่ห้อ Hefele ขนาดฝักบัวจับถนัดมือ

    ทางโครงการติดตั้งพัดลมดูดอากาศสีขาวมาให้ด้วย

    ได้สวิตซ์ไฟ และปลั๊กไฟ โทนสีขาวที่ทางโครงการให้มาค่ะ
    ราคาและค่าใช้จ่ายที่เกี่ยวข้องโดยประมาณ (ณ 15 พ.ค. 2562)
    • ราคาเริ่มต้น 999,000 บาท (หลังหักส่วนลด)
    • ราคาขายเฉลี่ย 1,350,000 บาท/หน่วย (58,000 บาท/ตารางเมตร) 
    โปรโมชั่นพิเศษ
    • รับส่วนลดกว่า 500,000 จาก 1.5 ล้าน เหลือเพียง 999,000* บาท ราคานี้เพียง 10 ยูนิต
    • แถมโปรความเสี่ยง 0%* ลดประชดโควิด
    *เงื่อนไขเป็นไปตามบริษัทฯกำหนด
       
    สถานะปัจจุบันของโครงการ (ณ 15 พ.ค. 2562)
    โครงการ ไฮ แจ้งวัฒนะ 19 คอนโด อยู่ในระหว่างการยื่นขอ EIA Approved เตรียมเปิดขายรอบ Pre-Sale ในวันที่ 15 มิถุนายน 2562 นี้ ที่สำนักงานขาย คาดว่าจะเริ่มก่อสร้างประมาณต้นปี 2563 จะแล้วเสร็จกลางปี 2564
    สอบถามข้อมูลเพิ่มเติมที่ โทร. 080-440-0088 หรือ www.hicondo19.com
    ดูรายละเอียดโครงการ ไฮ แจ้งวัฒนะ 19 คอนโด

    รีวิว-พรีวิวล่าสุดอื่นๆ

    คอนโดติดรถไฟฟ้าล่าสุด

เว็บไซต์นี้มีการเก็บคุกกี้เพื่อเพิ่มความพึงพอใจในการใช้งานเว็บไซต์ และช่วยให้เราปรับปรุง และนำเสนอเนื้อหาตรงตามความสนใจของท่าน ท่านสามารถดู Privacy Notice และ ดู Cookies Policy ของเราได้ ที่นี่ ทั้งนี้ ท่านจะยินยอมให้เราเก็บคุกกี้ทั้งหมด หรือให้เก็บแค่บางส่วนโดยการคลิกเลือก ตั้งค่า

ท่านสามารถเลือกให้ความยินยอมการเก็บคุกกี้เป็นเรื่องๆ ได้ที่นี่

เมื่อคุณเข้าชมเว็บไซต์ หรือแอปพลิเคชั่น checkraka เราอาจจัดเก็บ หรือดึงข้อมูลจากเบราว์เซอร์ของคุณในรูปแบบของคุกกี้ และเทคโนโลยีอื่นที่คล้ายคลึง เช่น tag และ pixel (เรียกรวมกันว่า “คุกกี้”) ซึ่งมักเป็นข้อมูลที่ไม่สามารถระบุตัวตนได้โดยตรง แต่ช่วยให้คุณใช้งานเว็บไซต์ได้ปลอดภัย และตรงตามความต้องการมากขึ้น คุณอาจไม่ยินยอมให้เราเก็บคุกกี้บางประเภทได้ โดยการคลิกตามหัวข้อข้างล่างนี้

ประเภทคุกกี้
อ่านเพิ่มเติม ที่นี่
ยินยอม / ไม่ยินยอม
คุกกี้ที่จำเป็นต้องมีเสมอ
(Strictly Necessary)
คุกกี้สำหรับการใช้งานเว็บไซต์
(Functionality)
คุกกี้เพื่อเพิ่มประสิทธิภาพและวิเคราะห์
(Performance & Analytics)
คุกกี้เพื่อการตลาด
(Marketing)