ประเมินวงเงินรู้ผลใน 3 นาที
กับ กรุงศรี ออโต้ พร้อมสตาร์ท

เริ่มประเมินวงเงินพร้อมสตาร์ท
ผ่านมือถือ สแกนเลย

ดูวงเงินพร้อมสตาร์ทที่ได้รับ

  • คอนโด
  • คอนโด
  • ค้นหาแบบละเอียด
  • รีวิว-เยี่ยมชม คอนโด SUPER LUXURY "ศุภาลัย ไอคอน สาทร (Supalai ICON Sathorn)"

    8 ต.ค. 64 6,427
    รีวิว-เยี่ยมชม คอนโด SUPER LUXURY "Supalai ICON Sathorn" บนถนนสาทรใต้ เริ่ม 8.2 - 280 ล้านบาท*
    ศุภาลัยยืนหนึ่งได้ทำเลใจกลางสาทรขนาดนี้ แน่นอนว่าต้องเป็นโครงการที่ไม่ธรรมดาแน่นอน โครงการที่เราพูดถึงอยู่นี้คือสุดหรูบนที่ดินอันทรงคุณค่า ศุภาลัย ไอคอน สาทร (Supalai ICON Sathorn) ด้วยที่ดินเก่าเป็นสถานทูตออสเตรเลีย โครงการจึงนำเอาแรงบันดาลใจนี้มาสร้างสรรค์ตัวโครงการให้มีลูกเล่นหลากหลาย และโดดเด่นกว่าโครงการอื่นๆ กับการออกแบบที่สะท้อนถึงอารมณ์ได้อย่างหลากหลายทั้งสวนลอยฟ้า ป่าโปร่ง ชายหาด และสระน้ำขนาดใหญ่ นำสัตว์สัญลักษณ์เข้ามาเป็นประติมากรรมประจำโครงการ อาทิ จิงโจ้ และหมีโคอาล่า จะน่าอยู่และควรค่าแก่การครอบครองอย่างไร เราไปชมรีวิวกันเลยค่ะ
    ข้อมูลโครงการ
    เจ้าของและผู้พัฒนาโครงการ : บริษัท ศุภาลัย จำกัด (มหาชน) 
    ที่ตั้งโครงการ : ถนนสาทรใต้ แขวงทุ่งมหาเมฆ เขตสาทร กรุงเทพมหานคร 10120 
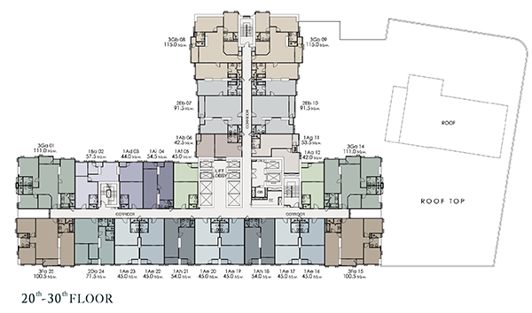
    อาคารชุดพักอาศัยสูง : 56 ชั้น 1 อาคาร
    จำนวนห้องพักอาศัย : 787 ยูนิต
    ขนาดที่ดินทั้งโครงการ : 7-3-82 ไร่
    ห้องชุดพักอาศัย : มี 3 รูปแบบ ได้แก่
    • แบบ 1 ห้องนอน ขนาด 42 ตารางเมตร ราคาเริ่มต้น 8.2 ล้านบาท*
    • แบบ 3 ห้องนอน ขนาด 115 ตารางเมตร ราคาประมาณ 24 ล้านบาท*
    • แบบ Penthouse ขนาด 970 ตารางเมตร ราคา 280 ล้านบาท*
      (ข้อมูล ณ วันที่ 7 พ.ค. 2562)
    ทำเลที่ตั้ง
    ศุภาลัย ไอคอน สาทร (Supalai ICON Sathorn) ตั้งอยู่บนที่ดินเก่าสถานทูตออสเตรเลีย ติดถนนสาทรใต้ ซึ่งทำเล "สาทร" ในขณะนี้ถือเป็นทำเลที่มีที่ดินแพงที่สุดมาตลอด เพราะสภาพแวดล้อมรอบๆ ทำเลนี้บ่งบอกความเป็น "ทำเล CBD" ได้อย่างชัดเจน ดูได้จากอาคารสำนักงาน ศูนย์การค้า โรงเรียนนานาชาติ มหาวิทยาลัย โรงพยาบาลชั้นนำ รวมถึงสถานทูต ที่กระจุกตัวอยู่ในสาทร โครงการนี้จึงเป็นอีกหนึ่งโครงการที่ได้ที่ดินทำเลทอง เหมาะกับการอยู่อาศัยและการลงทุนในระยะยาว
    • การเดินทางเข้าโครงการ (จากฝั่งธนบุรี)
    • การเดินทางเข้าโครงการ (ลงจากทาง ทางพิเศษเฉลิมมหานคร)
    • การเดินทางออกจากโครงการ (ไปเพลินจิต)
    • การเดินทางออกจากโครงการ (ไปขึ้นทาง ทางพิเศษเฉลิมมหานคร)
    • การเดินทางโดยรถไฟฟ้า
    การเดินทางโดยรถไฟฟ้า อาจจะเป็นทางเลือกสำรองหรืออาจจะเป็นทางเลือกหลักสำหรับคนที่ชอบความสะดวกสบายก็ได้ เพราะที่ตั้งของโครงการ ศุภาลัย ไอคอน สาทร (Supalai ICON Sathorn) ใกล้กับ MRT สถานีลุมพินี ประมาณ 800 เมตร ทางออก 2 ถือว่าใกล้โครงการมากที่สุด หรือถ้าไม่อยากเดินออกไปขึ้นรถไฟฟ้า ก็ไปส่งเพื่อนที่ MRT ได้ด้วยการลัดเข้าซอยสวนพลู ไปออกตรงซอยสาทร 1 แล้วเดินไปขึ้น MRT ลุมพินี ไม่ไกล หรือถ้าใครที่จะเข้าไปสยามก็ใช้บริการรถไฟฟ้าสายสีเขียวได้ เพราะโครงการนี้ก็ใกล้ BTS สายสีเขียว สถานีช่องนนทรี และ สถานีศาลาแดง ประมาณ 900 เมตร 
    สภาพแวดล้อมใกล้เคียง
    รอบๆ โครงการ แวดล้อมไปด้วยสถานที่สำคัญมากมาย โดยเฉพาะสถานทูต ที่มีทั้ง สถานทูตเยอรมนี, สถานทูตเม็กซิโก, สถานทูตมาเลเซีย, สถานทูตเดนมาร์ก, สถานทูตแคนาดา, สถานทูตญี่ปุ่น ฯลฯ ด้านสถานศึกษาก็มี โรงเรียนเซนต์โยเซฟคอนแวนต์, โรงเรียนนานาชาติ St.Andrews, โรงเรียนเซนต์หลุยส์ศึกษา, โรงเรียนนานาชาติเครซเซนต์, โรงเรียนอัสสัมชัญคอนแวนต์, โรงเรียนนานาชาติการ์เด้น, โรงเรียนสาธิต จุฬาฯ, โรงเรียนเตรียมอุดมฯ, โรงเรียนสาธิต มศว., จุฬาลงกรณ์มหาวิทยาลัย และมหาวิทยาลัยเทคโนโลยีราชมงคล ด้านโรงพยาบาล ก็มี โรงพยาบาลบีเอนเอช, โรงพยาบาลเซนต์หลุยส์, โรงพยาบาลกรุงเทพคริสเตียน และโรงพยาบาลจุฬาฯ เป็นต้น ส่วนศูนย์การค้าก็ไม่ไกลจากโซนสยามที่มีทั้ง Siam Discovery, Siam Square One, Siam Paragon, Central World, Gaysorn, Central Chidlom, Central Embassy เป็นต้น

    ไล่เรียงจากหน้าโครงการไปทางซอยสวนพลู ก็พบว่าทั้ง 2 ฝั่งเต็มไปด้วยอาคารสำนักงานและสถานที่สำคัญๆ

    ใกล้ๆ กับโครงการก็มีร้านกาแฟ Caffe' D'Oro ให้นั่งชิลล์ได้ด้วย

    ถัดมามีปั๊ม Shell อยู่ด้วย ด้านในมีร้านล้างรถ

    รวมถึงมีร้าน Family Mart ในปั๊มด้วย

    ฝั่งตรงข้ามกับโครงการเป็นฝั่งสาทรเหนือ ตึกที่เราเห็นนี่คือ อาคารหะรินธร

    เดินต่อมาจนถึงซอยสวนพลู มุมนี้ก็แอบเห็นตึกมหานครทางด้านขวา

    บรรยากาศในซอยสวนพลูช่วงเวลากลางวัน

    ซึ่งปากซอยสวนพลูมีร้านอาหารไทย Baan Khanitha ด้วยนะคะ

    ร้าน The Missing Piece ก็เป็นคาเฟ่อีกหนึ่งร้านที่อยู่ใกล้กับโครงการค่ะ

    อาคาร สาทรซิตี้ ทาวเวอร์ ตั้งอยู่ฝั่งเดียวกันกับโครงการ ห่างกันประมาณ 700 เมตรค่ะ

    สกายวอล์คแยกสาทร-นราธิวาส อีกหนึ่งแลนด์มาร์คของสาทร
    รูปแบบตึก และตัวโครงการโดยรวม
    ศุภาลัย ไอคอน สาทร (Supalai ICON Sathorn) เป็นอาคารสูง 56 ชั้น 1 อาคาร จำนวน 787 ยูนิต ตัวโครงการตั้งอยู่บนที่ดินขนาด 7-3-82 ไร่ แปลงที่ดินเดิมนั้นเป็นสถานทูตออสเตรเลีย ติดถนนสาทรใต้ อาคารออกแบบสไตล์ Modern Contemporary โดยได้รับแรงบันดาลใจจากธรรมชาติและอิสระของเส้นสายลวดลายแบบออสเตรเลีย ส่วนกลางที่สูงที่สุดคือชั้น 53-54 ส่วนชั้น 55-56 เป็น Penthouse ขนาด 970 ตารางเมตร
    ส่วนกลางและสิ่งอำนวยความสะดวก
    ส่วนกลางของโครงการ ศุภาลัย ไอคอน สาทร (Supalai ICON Sathorn) ได้นำเอาสัญลักษณ์ของประเทศออสเตรเลียมาเป็นแรงบันดาลใจ อาทิ หมีโคอาล่า จิงโจ้ ภูมิประเทศของประเทศออสเตรเลีย รวมไปถึง Opera House ออกแบบได้หรูหราสมกับเป็น Icon แห่งสาทรจริงๆ ค่ะ อีกทั้งยังมีความหลากหลายทั้งในแง่ของ Function ที่อยู่เหนือทุกความต้องการของผู้อยู่อาศัย และยังมีหลากหลาย Emotion ที่เข้าไปแต่ละที่ก็ได้อารมณ์คนละแบบ เหมือนได้ไปพักผ่อนตากอากาศทั้งๆ ที่อยู่คอนโดของตัวเอง
    ชั้น 1
    • Main Drop off Resident
    • Lobby Gallery Hall
    • Board Room
    ชั้น 11
    • Muldives Swimming pool
    • Jacuzzi
    • Pool Deck
    • Double-Space Fine Fitness
    • Table tennis Space
    • Yoga Fly
    • Aerobic & Yoga
    • Boxing
    • Group Cycling
    • Hydrotherapy
    • Sauna & Steam
    • Milky way Theatre & Karaoke
    • Mini Climbing Simulation
    • Playground
    • Kid's Room
    • Wisdom Library & Co-living Space
    ชั้น 53-54
    • Heaven Garden
    • Exclusive Opal Sky Lounge

    ทางเข้าโครงการ

    ประติมากรรมจิงโจ้ที่ด้านหน้าโครงการ

    Entry Plaza Drop Off ประติมากรรมครอบครัวโคอาล่า ชุ่มฉ่ำด้วยพันธุ์ไม้เขตร้อนชื้น

    Lobby ออกแบบด้วยสไตล์หรูหราสง่างาม

    ตกแต่งด้วยลวดลายหิน ธรรมชาติ เพิ่มความหรูหราด้วย Copper Plate ฉลุลาย สร้างความสง่างามและยิ่งใหญ่

    Forest Garden มุมพักผ่อนส่วนตัวในศาลารูปกรงนก ในพื้นที่สวนขนาดใหญ่กว่า 1,000 ตร.ม.

    Muldives Swimming Pool & Jacuzzi สระว่ายน้ำแบบ Infinity Edge พร้อมชายหาดเทียม ซุ้มไม้ระแนง ฯลฯ

    Milky Way Theatre & Karaoke ห้องชมภาพยนตร์มุมมมอง Wide Screen พร้อมชมวิวเมืองที่สวยงามยามค่ำคืน

    Kids' Club Playground ในบรรยากาศซาฟารี

    Wisdom Library & Co-living Space ตกแต่งด้วยสีทองหรูหรา

    สามารถมานั่งอ่านหนังสือ นั่งทำงาน หรือนั่งเล่นพร้อมชมวิวสวยๆ 

    เพิ่มพื้นที่ให้คนรักสุขภาพ มีหลายกิจกรรมให้เลือก อาทิ Fitness, Flying yoga, Yoga & Aerobic

    Aqua Hydrotherapy ช่วยให้ผ่อนคลาย ปรับสมดุล

    Exclusive Opal Sky Lounge บนชั้น 53 

    Exclusive Opal Sky Lounge บนชั้น 54
    ภาพห้องตัวอย่างและ Lay out
    ศุภาลัย ไอคอน สาทร (Supalai ICON Sathorn) เป็นโครงการตัว Top ของศุภาลัย ใช้วัสดุคุณภาพพรีเมียม ขายแบบ Fully Fitted ได้ชุดครัวพร้อมเครื่องใช้ไฟฟ้าภายในครัว (ตู้เย็น, เครื่องซักผ้า, เตาไฟฟ้า, เครื่องดูดควัน, เตาอบ และเครื่องบดเศษอาหาร) และได้แอร์ระบบ VRV ที่ทำให้ความเย็นทั่วถึง สม่ำเสมอ และประหยัดพลังงานอีกด้วย
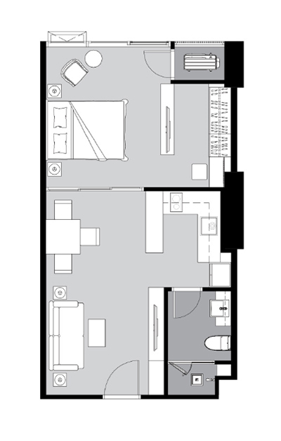
    ห้องตัวอย่างแบบ 1 ห้องนอน ขนาด 45 ตารางเมตร

    เข้ามาในห้องส่วนแรกจะเป็นพื้นที่นั่งเล่น/รับแขก ความสูงจากพื้นจรดฝ้าอยู่ที่ 2.85 เมตร
    ส่วนพื้นจะเป็นกระเบื้องอิตาเลีย ลายหินอ่อนสีขาว ผิวสัมผัสซาตินตามแบบนี้เลย

    ระยะดูทีวีค่อนข้างกว้างสามารถติดตั้งทีวีขนาด 40 - 50 นิ้ว ได้เลยค่ะ

    เฟอร์นิเจอร์ทางโครงการตกแต่งให้ดูเป็นตัวอย่างนะคะ

    ถัดไปจะเป็นพื้นที่รับประทานอาหาร อยู่ตรงข้ามกับครัว

    ครัวที่ได้จะเป็นครัวแบบเปิดอยู่ตรงกลางห้อง

    เคาน์เตอร์ครัวที่ได้จะเป็นรูปตัว U ดีไซน์สวยหรู Top เป็นหินเทียม 

    ตู้เก็บของด้านบนก็บิวท์อินให้จรดเพดาน สามารถเก็บของได้เยอะมาก 

    ให้เตาไฟฟ้า เครื่องดูดควัน ยี่ห้อ Kuppersbusch

    แขวนมีดแม่เหล็กแขวนมีดได้ทุกแบบ และที่แขวนกระดาษทิชชู่

    เครื่องซักผ้าได้เป็นยี่ห้อ Teka สามารถซักและอบได้ในเครื่องเดียว

    ตู้เย็นก็จะเป็นยี่ห้อ Teka เช่นเดียวกันค่ะ บิวท์อินมาให้เนียนๆ ไปกับชั้นเก็บของเลย
    ส่วนแอร์จะได้แบบแอร์ฝังฝ้าปล่อยความเย็น 4 ทิศทาง และเป็นระบบ VRV ข้อดีก็คือ เย็นเร็วและประหยัดพลังงาน

    สำหรับทางเข้าห้องน้ำจะอยู่บริเวณครัวค่ะ

    ภายในห้องน้ำเป็นกระเบื้องอิตาเลีย ทั้งห้องผนังเป็นผิวซาติน ส่วนพื้นเป็นผิวด้านป้องกันการลื่น
    ตัวสุขภัณฑ์ยี่ห้อ Kohler ตามแบบนี้เลยค่ะ

    มาถึงห้องนอนกันบ้าง ประตูห้องนอนจะเป็นแบบบานเลื่อน 3 ตอน บริเวณพื้นรอยต่อเรียบเพื่อป้องกันการสะดุด

    ห้องที่ได้จะเป็นห้องเปล่าผนังฉาบเรียบนะคะ

    โครงการมีระบบ Home Automation สามารถเปิด-ปิดไฟ แอร์ รวมถึงม่านผ่าน Application ได้ค่ะ

    ห้องนี้จะไม่มีระเบียงนะคะ แต่สามารถเปิดหน้าต่างบานใหญ่เพื่อระบายอากาศได้ และจะมีระเบียงกันตกให้ด้วย

    ส่วน Walk-in Closet นี้ก็ตกแต่งให้ดูเป็นไอเดีย
    ห้องตัวอย่างแบบ 3 ห้องนอน ขนาด 115 ตารางเมตร

    เปิดประตูเข้ามาส่วนแรกจะเป็นทางเข้าไปสู่ โซน Living ขวามือจะบิวท์อินชั้นวางรองเท้าให้ค่ะ

    โถงกลางของห้องจะประกอบไปด้วยโซนนั่งเล่น ดูทีวี รับแขก และด้านหลังเป็นพื้นที่รับประทานอาหารค่ะ

    ความสูงจากพื้นจรดฝ้าจะอยู่ที่ 2.8 เมตร ฝั่งตรงข้ามที่เป็นห้องกระจกนั้นคือครัวค่ะ

    ครัวที่ได้เป็นครัวแบบปิดด้วยกระจกมาพร้อมกับประตูบานเลื่อน
    มุมของครัวจะเห็นว่าตัดมุมเพื่อป้องกันอุบัติเหตุ และยังทำให้ห้องดูกว้างขึ้นด้วย

    สิ่งที่ได้ในห้องครัวก็จะได้แบบนี้เลยค่ะ ยกเว้นตู้แช่ไวน์ทางด้านขวามือ

    ตู้เย็นขนาดใหญ่อยู่ใกล้ประตูเพื่อให้สะดวกแก่การหยิบของ
    พื้นที่ในครัวก็ไม่แคบสามารถเข้าไปช่วยกัน ทำอาหารได้ 2-3 คนเลย

    ครัวกระจกแบบนี้ทำให้ห้องโปร่ง ไม่ทึบ และกลิ่นก็ไม่ไปรบกวนห้องอื่นๆ ค่ะ

    อ่างล้างจานพร้อมติดตั้งเครื่องบดอาหารไว้ให้เรียบร้อย

    ต่อไปจะเป็นพื้นที่ระเบียงที่มีกระจกให้อีกชั้น สามารถมานั่งเล่นได้แบบไม่ร้อน เปิดแอร์มาจากในห้องก็เย็นมาถึงระเบียงด้วย

    โซนรับประทานอาหารอยู่หน้าห้องครัว

    Master Bedroom เป็นห้องหน้ากว้างค่ะ วางเตียงขนาดใหญ่เข้าไปก็จะเหลือพื้นที่ปลายเตียงเล็กน้อย  

    พื้นของห้องนอนจะเป็น Engineering wood ทั้งหมด ส่วนกระจกในห้องนอนเป็น Double Glazing
    ช่วยลดเสียง และความร้อนจากภายนอกได้

    ห้องนี้ทางโครงการทำมุมทำงานและมุมพักผ่อน โดยตั้งโซฟาเล็กๆ ไว้ให้ดูเป็นตัวอย่างที่ริมกระจกด้วย

    อีกฝั่งจะเป็นห้องน้ำค่ะ

    ห้องน้ำตกแต่งด้วยกระเบื้องอิตาเลียทั้งห้อง แยกห้องสุขาและห้องอาบน้ำ

    สุขภัณฑ์ของ Kohler โถสุขภัณฑ์เปิด-ปิดอัตโนมัติ 

    โถสุขภัณฑ์ระบบอัตโนมัติ Kohler รุ่น Veil ตัว Top สุดของ Kohler ที่ทางโครงการจัดเต็มให้แบบนี้ทุกห้อง

    Master Bedroom จะได้อ่างอาบน้ำด้วย

    อ่างขนาดมาตรฐานสำหรับลงแช่ 1 คน

    ห้องนอนที่ 2 และ 3 จะอยู่อีกฝั่งค่ะ

    ก่อนเข้าห้องนอนอีก 2 ห้อง จะเจอห้องน้ำอีกห้อง ซึ่งห้องนี้จะเป็นห้องน้ำแขกและห้องนอน 3 ใช้ด้วยกัน

    ห้องนอนห้องที่ 2 ตกแต่งแนวเท่ๆ ด้วยสีน้ำเงิน

    สามารถบิวท์อินตู้เสื้อผ้าได้ เพราะโครงการทำเป็นช่องไว้ให้พอดี

    ห้องนอนที่ 2 มีห้องน้ำในตัวค่ะ

    ห้องน้ำก็จะได้ตามห้องตัวอย่างเป๊ะๆ

    สุดท้ายเป็นห้องนอนห้องที่ 3 ก็ยังคงมีกระจกบานใหญ่ ช่วยทำให้ห้องดูโปร่ง

    ห้องไม่ได้เล็กมาก เตียงคิงไซส์วางได้สบายๆ

    ทุกห้องของโครงการนี้ใช้สวิตซ์และปลั๊กไฟสี Copper ยี่ห้อ Schneider 
    ส่วนแอร์ในห้องนี้จะได้แอร์แบบฝังฝ้าระบบ VRV ค่ะ
    ลงทะเบียนเพื่อรับสิทธิพิเศษได้ที่นี่
    ศุภาลัย ไอคอน สาทร (Supalai ICON Sathorn) คอนโด SUPER LUXURY ที่สุดจากศุภาลัย บนที่ดิน Freehold ผืนท้ายๆ ของสาทร ด้วยศักยภาพของที่ดินที่เคยเป็นที่ตั้งสถานทูตออสเตรเลียมาก่อน เดินไป MRT ลุมพินี ประมาณ 800 เมตร สิ่งอำนวยความสะดวกต่างๆ ที่ให้มาแบบอัดแน่นจัดเต็ม รูปแบบของห้องมีให้เลือกหลากหลาย มีตั้งแต่ 1-4 Bedroom ขนาด 42-350 ตร.ม. และ Super Penthouse ขนาด 970 ตร.ม. ราคาเริ่มต้นตั้งแต่ 8.2-280 ล้านบาท* ใครที่สนใจสามารถเข้าไปชมห้องตัวอย่างที่ Sales Gallery ได้เลยนะคะ และทางโครงการจะเปิดพรีเซลในวันที่ 25-26 พ.ค. 62 นี้ ตั้งแต่ 9.00 - 18.00 น. ที่ Sales Gallery ของโครงการค่ะ  
    สอบถามรายละเอียดเพิ่มเติมได้ที่ โทร. 1720 หรือ www.supalaiicon.com

    รีวิว-พรีวิวล่าสุดอื่นๆ

    คอนโดติดรถไฟฟ้าล่าสุด

เว็บไซต์นี้มีการเก็บคุกกี้เพื่อเพิ่มความพึงพอใจในการใช้งานเว็บไซต์ และช่วยให้เราปรับปรุง และนำเสนอเนื้อหาตรงตามความสนใจของท่าน ท่านสามารถดู Privacy Notice และ ดู Cookies Policy ของเราได้ ที่นี่ ทั้งนี้ ท่านจะยินยอมให้เราเก็บคุกกี้ทั้งหมด หรือให้เก็บแค่บางส่วนโดยการคลิกเลือก ตั้งค่า

ท่านสามารถเลือกให้ความยินยอมการเก็บคุกกี้เป็นเรื่องๆ ได้ที่นี่

เมื่อคุณเข้าชมเว็บไซต์ หรือแอปพลิเคชั่น checkraka เราอาจจัดเก็บ หรือดึงข้อมูลจากเบราว์เซอร์ของคุณในรูปแบบของคุกกี้ และเทคโนโลยีอื่นที่คล้ายคลึง เช่น tag และ pixel (เรียกรวมกันว่า “คุกกี้”) ซึ่งมักเป็นข้อมูลที่ไม่สามารถระบุตัวตนได้โดยตรง แต่ช่วยให้คุณใช้งานเว็บไซต์ได้ปลอดภัย และตรงตามความต้องการมากขึ้น คุณอาจไม่ยินยอมให้เราเก็บคุกกี้บางประเภทได้ โดยการคลิกตามหัวข้อข้างล่างนี้

ประเภทคุกกี้
อ่านเพิ่มเติม ที่นี่
ยินยอม / ไม่ยินยอม
คุกกี้ที่จำเป็นต้องมีเสมอ
(Strictly Necessary)
คุกกี้สำหรับการใช้งานเว็บไซต์
(Functionality)
คุกกี้เพื่อเพิ่มประสิทธิภาพและวิเคราะห์
(Performance & Analytics)
คุกกี้เพื่อการตลาด
(Marketing)