ประเมินวงเงินรู้ผลใน 3 นาที
กับ กรุงศรี ออโต้ พร้อมสตาร์ท

เริ่มประเมินวงเงินพร้อมสตาร์ท
ผ่านมือถือ สแกนเลย

ดูวงเงินพร้อมสตาร์ทที่ได้รับ

  • คอนโด
  • คอนโด
  • ค้นหาแบบละเอียด
  • รีวิว - เยี่ยมชม เดอะริช เพลินจิต - นานา (The Rich Ploenchit - Nana)

    10 ต.ค. 61 7,323
    รีวิว - เยี่ยมชม เดอะริช เพลินจิต - นานา  (The Rich Ploenchit - Nana)
    วันนี้ CheckRaka.com จะพาไปเยี่ยมชมโครงการมิกซ์ยูส (Mixed - use) ระดับ Luxury บนทำเลต้นสุขุมวิทกับโครงการ  เดอะริช เพลินจิต - นานา (The Rich Ploenchit - Nana) หนึ่งเดียวในย่านนานาเหนือ ซึ่งประกอบด้วย คอนโดมิเนียมแบบ High - rise และมี Shopping Mall 3 ชั้น ใช้ชีวิตอยู่ในโครงการได้อย่างสะดวกสบาย ประมาณ 300 เมตร จาก BTS นานา และ ประมาณ 400 เมตร จาก BTS เพลินจิต หรือเดินไม่เกิน 5 นาทีก็ถึงแล้ว นอกจากนี้ยังใกล้จุดขึ้นลงทางด่วนเพลินจิต ใกล้ห้างเซ็นทรัลเอ็มบาสซี และใกล้โรงพยาบาลบำรุงราษฎร์ โครงการนี้จะมีความน่าสนใจขนาดไหนตามไปชมกันค่ะ
    ข้อมูลโครงการ 
    • เจ้าของและผู้พัฒนาโครงการ : บริษัท ริชี่เพลส 2002 จำกัด (มหาชน)
    • ที่ตั้งโครงการ : สุขุมวิทซอย 3, เขตวัฒนา กรุงเทพฯ
    • อาคารชุดพักอาศัย : 32 ชั้น พร้อมชั้นใต้ดิน 7 ชั้น จำนวน 1 อาคาร 427 ยูนิต แบ่งเป็นห้องพักอาศัย 377 ยูนิตและ Retail Shop 50 ยูนิต
    • ขนาดที่ดินทั้งโครงการ : 2-0-37.8 ไร่
    • ลิฟต์โดยสาร 3 ตัว และลิฟต์บริการ 1 ตัว
    • ห้องชุด : มี 3 แบบหลักๆ ได้แก่ 
      - 1 ห้องนอน ขนาด 34 - 40 ตร.ม.
      - 1 ห้องนอน พลัส ขนาด 50 - 60 ตร.ม.
      - 2 ห้องนอน ขนาด 70 - 87 ตร.ม.
    • ราคาเริ่มต้น : 8.9 ล้านบาท (ข้อมูล ณ 20  มิ.ย. 61)
    • วันที่เข้าเยี่ยมชม - รีวิวคอนโด : 20 มิ.ย. 61
    ทำเลที่ตั้ง
    "นานา (เหนือ)" ย่านนี้เป็นที่รู้จักกันดีในฐานะทำเล "นานาชาติ" มีคนต่างชาติอาศัยอยู่ในย่านนี้เยอะมาก รวมไปถึงร้านอาหารที่กระจายตัวอยู่ในย่านนี้ ตั้งแต่แยกนานาไปจนถึงแยกมิตรสัมพันธ์มีแต่ร้านอาหารสไตล์ต่างชาติ หรือไม่ก็ร้านอาหารไทยที่รองรับชาวต่างชาติ ข้อดีของเรื่องนี้คือ ทำให้อัตราความต้องการที่อยู่อาศัยมีมาก ในซอยสุขุมวิท 3 ซึ่งเป็นที่ตั้งของโครงการ เดอะริช เพลินจิต - นานา นั้นเต็มไปด้วยโรงแรม สลับกับอาคารพาณิชย์ ที่สำคัญคือ มีโรงพยาบาลชื่อดังอย่าง โรงพยาบาลบำรุงราษฎร์ ตั้งอยู่ในซอยด้วย ห่างจากโครงการประมาณ 300 เมตรเท่านั้นเอง นั่นก็หมายความว่าคนที่จะอยู่ในย่านนี้ก็มีบุคลากรที่ทำงานในโรงพยาบาล หรืออาจจะเป็นผู้ที่มาใช้บริการด้วยก็ได้ จุดนี้ทำให้โครงการเป็นที่น่าสนใจสำหรับนักลงทุนทีเดียว
    นอกจากนี้บริเวณรอบๆ "นานาเหนือ" เต็มไปด้วยสถานที่สำคัญๆ ถ้าขยับไปทางซ้ายก็เป็นเพลินจิต ชิดลม สยาม แน่นอนว่าสามทำเลนี้เป็นแหล่งรวมของศูนย์การค้าขนาดใหญ่ ทั้งอาคารสำนักงาน ห้างสรรพสินค้า โรงเรียน มหาวิทยาลัย ครบครันไปหมด หรือถ้าไปมองทางขวาบ้านก็เป็นโซนอโศก พร้อมพงษ์ ทองหล่อ ถือเป็นย่านที่อุดมสมบูรณ์มากๆ สถานที่สำคัญๆ ก็มี เทอร์มินัล 21, ดิ เอ็มควอเทียร์, ดิ เอ็มโพเรียม, มหาวิทยาลัยศรีนครินทรวิโรฒ, โรงเรียนสาธิตมหาวิทยาลัยศรีนครินทรวิโรฒ ประสานมิตร คือไม่ว่าจะหันไปทางไหนก็เจริญรุ่งเรืองกันทั้งสองฝั่ง
    การเดินทาง
    การเดินทางโดยรถยนต์
    เส้นทางการเดินทางขาเข้าโครงการ
    เส้นทางที่ 1 จากประตูน้ำมายังโครงการ มุ่งหน้าบนถนนเพชรบุรี พอถึงแยกมิตรสัมพันธ์ให้เลี้ยวขวาเข้าโครงการได้เลย มุ่งหน้าต่ออีกประมาณ 750 เมตร ก็ถึงโครงการแล้วค่ะ 
    เส้นทางที่ 2 จากจุดลงทางด่วน "ทางพิเศษเฉลิมมหานคร" ซอยสุขุมวิท 3 เป็นเส้นที่เดินรถทางเดียว การเข้าโครงการจึงต้องใช้ซอยสุขุมวิท 11 แล้วลัดเข้าซอยสุขุมวิท 3 ค่ะ ระยะทางไม่เกิน 2 กิโลเมตร 
    เส้นทางการเดินทางขาออกจากโครงการ
    เส้นทางที่ 1 จากโครงการไปขึ้นทางด่วน เส้นทางนี้สะดวกทีเดียวค่ะ เพราะออกจากโครงการไปที่แยกนานา แล้วเลี้ยวขวาเข้าถนนสุขุมวิท มุ่งหน้าต่อประมาณ 300 เมตร ก็เลี้ยวขวาขึ้นทางด่วนได้เลย ระยะทางการเดินทางไม่เกิน 400 เมตรค่ะ 
    เส้นทางที่ 2 จากโครงการไป อโศก พร้อมพงษ์ โดยใช้ถนนสุขุมวิท เป็นเส้นทางที่สะดวกทีเดียว เพราะแค่ออกจากโครงการมาแล้วเลี้ยวซ้ายเข้าถนนสุขุมวิท แล้วมุ่งหน้าตรงต่อไปเรื่อยๆ ไม่ไกลมาก แต่เส้นทางนี้เป็นเส้นทางหลัก ช่วงเวลาเช้าและเย็นรถจะหนาแน่นมากเป็นพิเศษค่ะ อาจจะต้องเลือกใช้เส้นทางอื่น หรือใช้บริการ BTS แทนจะสะดวกกว่ามาก
    การเดินทางโดยรถไฟฟ้า

    ระยะทางการเดินไปยัง BTS สถานีนานา ประมาณ 300 เมตร
    ระยะทางการเดินไปยัง BTS สถานีเพลินจิต ประมาณ 400 เมตร
    สภาพแวดล้อมใกล้เคียง
    โครงการเดอะริช เพลินจิต - นานา ตั้งอยู่ในซอยสุขุมวิท 3 (นานาเหนือ) เข้ามาใน "แยกนานา" แค่ 130 เมตร ซึ่งใกล้กับ BTS นานา ประมาณ 300 เมตรเท่านั้น ในระยะนี้เป็นระยะการเดินที่ชิวเลยล่ะค่ะ นอกจากนั้นสถานที่สำคัญในซอยมีธนาคารกรุงไทย ตั้งอยู่ติดกับโครงการเลย โรงพยาบาลบำรุงราษฎร์ ห่างจากโครงการประมาณ 300 เมตร ธนาคารกรุงเทพ สาขานานา ห่างจากโครงการประมาณ 100 เมตร มีสถานทูตปากีสถาน ห่างจากโครงการประมาณ 200 เมตร นอกจากนี้ยังมีสถานเอกอัครราชทูตญี่ปุ่นตั้งอยู่ด้วย ห่างจากโครงการประมาณ 400 เมตรเท่านั้นเอง บรรยากาศจะเป็นแบบไหนเลื่อนลงไปชมกันได้เลย  

    มุมนี้เป็นมุมทางทิศเหนือ เป็นบรรยากาศในซอยสุขุมวิท 3 (นานา) ที่มุ่งหน้าไปยังแยกมิตรสัมพันธ์
    ดูจากภาพนี้โครงการอยู่ใกล้ รพ.บำรุงราษฎร์ มาก คนที่จะมาซื้อหรือเช่าโครงการก็มีส่วนที่จะเป็นบุคลากรที่ทำงานในโรงพยาบาล นอกจากนี้ในซอยยังมีสถานทูตปากีสถานด้วย ถ้าซื้อไว้ปล่อยเช่าก็น่าสนใจไม่น้อยค่ะ

    มุมนี้เป็นบรรยากาศด้านหลังโครงการค่ะ มองเห็นรางรถไฟฟ้าที่มุ่งหน้าไปทางเพลินจิต

    บรรยากาศตรงที่ตั้งโครงการค่ะ กำลังก่อสร้างส่วนที่เป็นชั้นใต้ดินอยู่

    คราวนี้เรามาเดินดูบรรยากาศในซอยสุขุมวิท 3 กันค่ะ

    มุ่งหน้าไปยังปากซอย ติดกับโครงการเลยคือ ธนาคารกรุงไทย สำนักงานใหญ่ค่ะ

    ด้านในก่อนถึงอาคารเป็นลานจอดรถของธนาคาร ซึ่งจุดนี้ตรงกับที่ตั้งอาคารของโครงการเลยนะคะ
    ทำให้ตึกของธนาคารซึ่งสูงไม่เกิน 20 ชั้น ไม่บัง ไม่บล็อควิวค่ะ

    เดินต่อไปอีกนิดเดียว จุดนี้มีร้าน S&P มีกาแฟ ขนม ซื้อทานก่อนไปทำงานก็สะดวกดีค่ะ

    ดูจากป้ายตรงนี้ ซอยสุขุมวิท 3 เป็นเส้นทางวันเวย์นะคะ คือ เดินรถได้ทางเดียว มุ่งหน้าไปยังถนนสุขุมวิท 
    เลี้ยวซ้ายไป นานา อโศก เลี้ยวขวาไปเพลินจิต ชิดลม สยาม ค่ะ

    บรรยากาศในซอยสุขุมวิท 3 ช่วงเที่ยงค่ะ

    เท่าที่เดินดู ในซอยมีร้านอาหารอยู่ค่อนข้างเยอะ ส่วนใหญ่เป็นร้านอาหารต่างชาติ
    หรือไม่ก็อาหารไทย ที่ชาวต่างชาติมาใช้บริการกันเยอะค่ะ

    พื้นทางเดินไปยัง BTS ไม่ค่อยน่ารักเท่าไหร่ แต่ก็ดีตรงที่มีบริเวณกว้างพอสมควร

    มองไปยังฝั่งตรงข้ามกับโครงการ ก็มีร้านสะดวกซื้อ 7-eleven ค่ะ
    แต่คงไม่จำเป็นต้องเดินข้ามไป เพราะโครงการนี้เขามี Shopping Mall เป็นของตัวเองด้วย

    จุดนี้มาถึงแยกนานาแล้วค่ะ ถ้าเลี้ยวไปทางซ้าย เดินข้ามทางม้าลายไปประมาณ 200 เมตร ก็ถึงสถานีนานาค่ะ

    ตรงแยกนานาก็มีปั๊มน้ำมัน ปตท. ค่ะ

    มองไปทางขวาของแยกนานา จุดนี้มุ่งหน้าไปทางเพลินจิตนะคะ เดินไปไม่เกิน 500 เมตร ก็ถึงสถานีเพลินจิต

    ตอนนี้แวะหาอะไรทานที่ Nana Square ก่อนนะคะ สำหรับใครที่มาอยู่โครงการนี้
    ถ้าสร้างเสร็จเรียบร้อยเมื่อไหร่ จะมี Retail Shop ในโครงการเยอะมาก ทำให้สะดวกขึ้นไปอีก
    รูปแบบตึกและตัวโครงการโดยรวม
    เดอะริช เพลินจิต - นานา เป็นโครงการ Mixed - use ประกอบด้วย Shopping Mall 3 ชั้น และคอนโดแบบ High - rise ความสูง 32 ชั้น และชั้นใต้ดิน 7 ชั้น รวม 427 ยูนิต แบ่งเป็นห้องพักอาศัย 377 ยูนิต ตั้งอยู่บนที่ดินขนาด 2-0-37.8 ไร่ ตัวอาคารออกแบบมาในโทนสีเอิร์ธโทน ขาว ครีม น้ำตาล ดูอบอุ่น ห้องพักอาศัยเริ่มตั้งแต่ชั้น 3 เป็นต้นไปจนถึงชั้น 32 ความพิเศษอย่างหนึ่งของโครงการนี้คือ ตัวอาคารสามารถรองรับการเกิดแผ่นดินไหวขนาด 6.5 ตามมาตราริกเตอร์ได้แบบสบายๆ และสำหรับห้องที่อยู่ชั้นสูงๆ จะออกแบบให้กระจกมีความหนาเป็นพิเศษ เพื่อรองรับแรงปะทะจากลมภายนอกโครงการอีกด้วย
    ในส่วนของ Shopping Mall มีทั้งหมด 3 ชั้นด้วยกัน คือ ชั้น B1, ชั้น G และชั้น 2 มี Retail Shop ทั้งหมด 50 ยูนิต ทำมาเพื่ออำนวยความสะดวกให้กับลูกบ้านที่พักอาศัยอย่างแท้จริง แต่บุคคลภายนอกก็สามารถเข้ามาใช้บริการในส่วน Shopping Mall ได้เช่นกัน ทางโครงการแบ่งพื้นที่ในส่วนของ Shopping Mall แยกออกจากพื้นที่พักอาศัยอย่างชัดเจน โดยโซนพักอาศัยเข้าออกด้วยระบบ Key Access Card บุคคลภายนอกจะไม่สามารถเข้าไปได้ 
    มีชั้นใต้ดินเป็นพื้นที่สำหรับจอดรถจำนวน 6 ชั้น สามารถจอดรถได้ 250 คัน หรือประมาณ 60% แบ่งเป็นระบบจอดรถอัตโนมัติ (Automatic Parking) เป็นระบบนำเข้าจากต่างประเทศมาตรฐานสูงสุด ณ ขณะนี้ โดยลูกบ้านจะต้องขับไปจอดในลิฟต์สำหรับจอดรถ ซึ่งอยู่ที่ชั้น G มีทั้งหมด 2 ตัว จากนั้นให้ลูกบ้านออกจากลิฟต์นำการ์ดมาแตะด้านหน้าลิฟต์ แล้วระบบก็จะนำรถลงไปจอดให้อัตโนมัติ เวลาในการจอดรถ หรือรับรถประมาณ 3 นาทีครึ่งต่อการทำงาน 1 ครั้ง ที่จอดรถออกแบบมารองรับรถหลังคาสูง ยกเว้นรถบิ๊กฟุตซึ่งมีความสูงเกินมาตรฐาน นอกจากนี้ยังมีที่จอดรถ Super Car อีก 4 คัน อยู่ที่ชั้น G ถนนภายในโครงการกว้าง 6 เมตร เป็นการเดินรถแบบทางเดียว (One way)  วิ่งวนตามเข็มนาฬิกาจากซ้ายไปขวา
    สิ่งอำนวยความสะดวกหลักๆ จะอยู่ที่ชั้น G, ชั้น 4 และ ชั้น 5 ลิฟต์โดยสารความเร็วสูง (High Speed) 3 ตัว และลิฟต์บริการ 1 ตัว คิดเป็นอัตราส่วนเฉลี่ยในการใช้ลิฟต์อยู่ที่ประมาณ 125 ยูนิตต่อลิฟต์ 1 ตัว
    โดยรวมแล้วรอบโครงการในระยะประชิดถือว่าค่อนข้างได้วิวแบบเปิดโล่ง ไม่มีอาคารสูงมาบดบังมากนัก ส่วนใหญ่เป็นบ้านเดี่ยวสูง 1 - 2 ชั้น และอาคารพาณิชย์สูง 4 - 7 ชั้น มีเพียงธนาคารกรุงไทยสูง 16 ชั้นเท่านั้น
    ทางทิศตะวันออก : ฝั่งด้านหน้าโครงการติดกับซอยสุขุมวิท 3 (ถนนนานาเหนือ) ฝั่งตรงข้ามเป็นอาคารพาณิชย์สูง 4 - 7 ชั้น
    ทิศใต้ : ติดกับพื้นที่จอดรถของสำนักงานใหญ่ธนาคารกรุงไทย มองเห็นวิวถนนสุขุมวิท ซึ่งห้องพักส่วนใหญ่ของโครงการจะอยู่ทางทิศนี้
    ทิศเหนือ : ติดกับบ้านเดี่ยวและร้านอาหาร 1 - 2 ชั้น
    ทิศตะวันตก : ติดกับอาคารจอดรถสูงประมาณ 4 - 5 ชั้น

    โมเดลจำลองฝั่งทิศตะวันออกฝั่งด้านหน้าโครงการ และฝั่งทิศเหนือติดกับร้านอาหารสูง 2 ชั้น

    โมเดลจำลองฝั่งทิศตะวันตก

    โมเดลจำลองฝั่งทิศใต้ และทิศตะวันออก

    ด้านหน้าโครงการ ประตูที่เห็นเป็นทางเข้า Shopping mall

    วนมาทางด้านซ้ายของอาคารจะมีที่จอดรถ Super Car

    ถัดมาเป็นจุด Drop off และประตูทางเข้าส่วนพักอาศัย

    ด้านหลังเป็นพื้นที่ของสวน Cocoon Garden ส่วนทางเข้าลิฟต์จอดรถจะอยู่ตรงข้ามกับสวน

    จากสวนถ้าขับตรงไป จะถึงที่ด้านหน้าโครงการ

    สิ่งอำนวยความสะดวกบนชั้น 4 - 5

    จากชั้น 4 จะมีบันไดเดินขึ้นไปยังชั้น 5 ซึ่งเป็นที่ตั้งของห้องฟิตเนส และมีประตูเชื่อมต่อกับห้องโยคะ

    นอกจากนี้ยังมี Outdoor Garden Terrace อยู่ที่ชั้น 17, 20, 23, 26 และชั้น 30
    ส่วนชั้น Rooftop เป็น Sky Garden Terrace สามารถเดินออกมายื่นรับลมได้
    และยังมีที่สำหรับหนีไฟทางอากาศ ในกรณีเกิดเหตุฉุกเฉิน
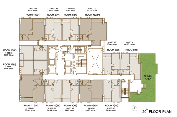
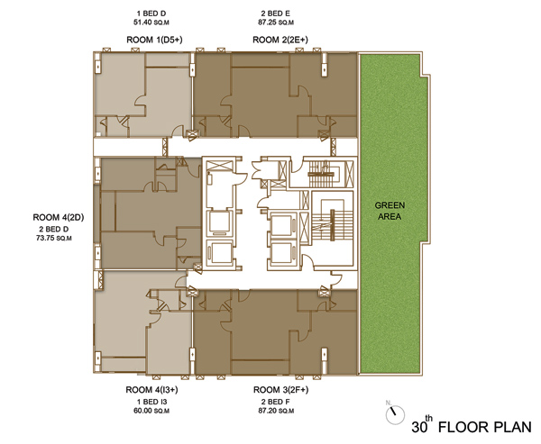
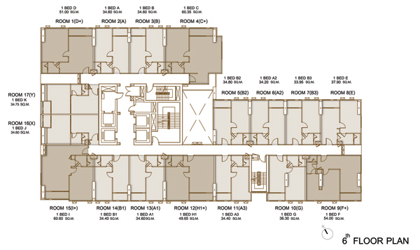
    ไปดูในส่วนของ Master Plan และ Floor Plan กันต่อเลยค่ะ ว่าแต่ละอาคารมีอะไรกันบ้าง

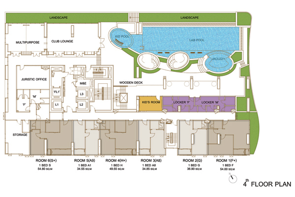
    ชั้น 1 หรือชั้น G : จะเป็น Shopping Mall, ที่จอดรถ Super car, สวนสีเขียว, Lobby, ลิฟต์โดยสาร และลิฟต์จอดรถ

    ชั้น 3 : มีห้องพักอาศัย 7 ยูนิต, ห้องนิติบุคคล และงานระบบทั้งหมด

    ชั้น 4 : สิ่งอำนวยความสะดวก อาทิ สระว่ายน้ำ พร้อมสระเด็ก, Jacuzzi, Multipurpose Room, Club Lounge,
    Kid's room, Locker และห้องซาวน่าแยกชาย - หญิง

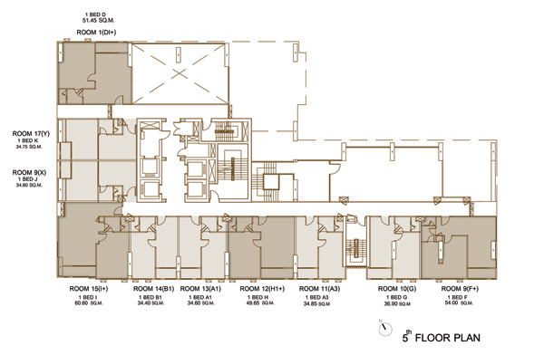
    ชั้น 5 : มีห้องฟิตเนส, ห้องโยคะ และ ห้องพักอาศัยอีก 10 ยูนิต

    ชั้น 6 - 15 : จะคล้ายกันคือ เป็นส่วนพักอาศัยทั้งหมด 17 ยูนิต/ชั้น

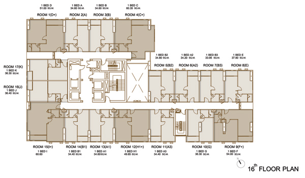
    ชั้น 16 : มีห้องพักอาศัย 17 ยูนิต

    ชั้น 17 : เป็นมีห้องพักอาศัย 15 ยูนิต และ Green Area

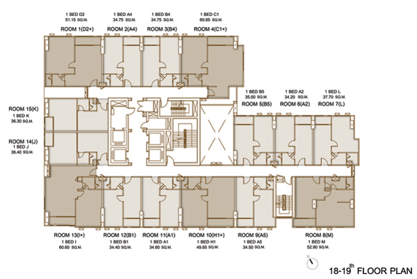
    ชั้น 18 - 19 : จะคล้ายกันคือเป็นส่วนพักอาศัยทั้งหมด 15 ยูนิต/ชั้น

    ชั้น 20 : เป็นมีห้องพักอาศัย 13 ยูนิต และ Green Area

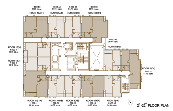
    ชั้น 21 - 22 : จะคล้ายกันคือ เป็นส่วนพักอาศัยทั้งหมด 13 ยูนิต/ชั้น

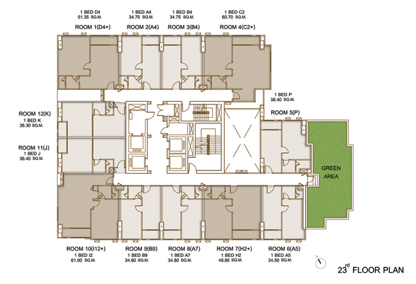
    ชั้น 23 : เป็นมีห้องพักอาศัย 12 ยูนิต และ Green Area

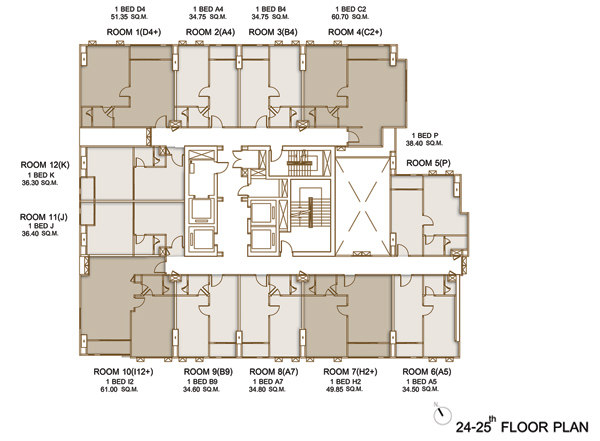
    ชั้น 24 - 25 : จะคล้ายกันคือ เป็นส่วนพักอาศัยทั้งหมด 12 ยูนิต/ชั้น

    ชั้น 26 : เป็นมีห้องพักอาศัย 8 ยูนิต โดยจะเริ่มมีห้องแบบ 2 ห้องนอน และ Green Area

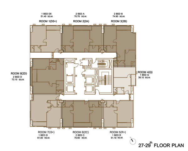
    ชั้น 27 - 29 : จะคล้ายกันคือ เป็นส่วนพักอาศัยทั้งหมด 8 ยูนิต/ชั้น

    ชั้น 30 : เป็นมีห้องพักอาศัย 5 ยูนิต และ Green Area

    ชั้น 31 - 32 : จะคล้ายกันคือ เป็นส่วนพักอาศัยทั้งหมด 5 ยูนิต/ชั้น
    โดยจะเริ่มมีห้อง 2 Bedroom Plus ซึ่งสามารถทำเป็น 3 Bedrooms ได้
    ส่วนกลางและสิ่งอำนวยความสะดวก
    สิ่งอำนวยความสะดวกมีขนาดค่อนข้างใหญ่ ดีไซน์มาคล้ายรูปแบบของโรงแรมในสไตล์โมเดิร์นดูน่าใช้งาน ให้ผู้ที่อยู่อาศัยในโครงการสามารถพักผ่อนได้อย่างเต็มที่ โดดเด่นด้วยสระว่ายน้ำ Infinity Edge Pool ความยาวกว่า 25 เมตร จัดว่าเป็นไฮไลท์ของโครงการนี้เลยทีเดียว นอกจากนี้ยังมีสิ่งอำนวยความสะดวกอีก ประกอบด้วย
    สิ่งอำนวยความสะดวก
    • Shopping Mall 3 ชั้น
    • สระว่ายน้ำ Infinity Edge Pool ระบบเกลือ ความยาวประมาณ 25 เมตร
    • Rain Curtain หรือม่านน้ำตกในร่ม 
    • สระเด็ก ออกแบบมาเป็นสระแบบ Indoor ให้เด็กๆ สามารถเล่นได้ถึงแม้ฝนจะตก หรือแดดจะออก
    • Jacuzzi
    • ห้องอาบน้ำแยกชายหญิง ภายในห้องน้ำมี Locker Room
    • ห้องซาวน่าแยกชาย - หญิง
    • Ambient Lobby
    • Business Lounge
    • Business Meeting Room
    • Club Lounge
    • Multipurpose Room
    • Kid's room อยู่ไม่ไกลจาก สระว่ายน้ำเด็ก
    • Foyer
    • ห้อง Yoga Room
    • Wellness & Fitness Center
    • Outdoor Garden Terrace
    • Sky Garden Terrace
    • ฟรี Wi - Fi Internet บริเวณพื้นที่ส่วนกลาง
    • กล้องวงจรปิด CCTV
    • ระบบ Access Card Control
    • ลิฟต์โดยสารความเร็วสูง (High Speed) 3 ตัว และลิฟต์บริการ 1 ตัว 
    • ระบบรักษาความปลอดภัยตลอด 24 ชั่วโมง
    • Automated Parking System
    • ที่จอดรถ 60%
    • EV Charger

    ตัวอย่างบรรยากาศด้านหน้า Shopping Mall

    ตัวอย่างบรรยากาศภายใน Shopping Mall

    ตัวอย่างบรรยากาศภายใน Shopping Mall

    สระว่ายน้ำแบบ Infinity Edge Pool ระบบเกลือ ความยาวประมาณ 25 เมตร กว้าง 5 - 7.5 เมตร ลึก 1.2 เมตร
    พิเศษตรงที่เป็น Chromotherapy Healing Swimming Pool ไฟสามารถเปลี่ยนสีได้ 7 สี ช่วยให้รู้สึกผ่อนคลาย
    พร้อม Rain Curtain หรือม่านน้ำตกในร่ม และ Jacuzzi

    ห้อง Multi - purpose บนชั้น 4

    ห้องฟิตเนสบนชั้น 5 มองลงมาเห็นสระว่ายน้ำ
    ภาพห้องตัวอย่าง และ Layout
    โดยห้องของโครงการนี้มีให้เลือกทั้งผู้ซึ้อทั่วไปที่ซื้อไว้สำหรับอยู่เอง ก็จะได้เฟอร์นิเจอร์แบบ Fully Fitted ตามแบบมาตรฐานของโครงการ ประกอบด้วย ชุดเคาน์เตอร์ครัว Built - in, เตาไฟฟ้า, เครื่องดูดควัน, ตู้เสื้อผ้า Built - in, สุขภัณฑ์ในห้องน้ำ และอ่างอาบน้ำ (เฉพาะห้องแบบ 2 Bedrooms ขึ้นไป) และยังมียูนิตสำหรับเพื่อการลงทุน หรือสำหรับนักลงทุนโดยเฉพาะอีกประมาณ 30% ของยูนิตทั้งหมด โดยจะได้เฟอร์นิเจอร์แบบ Fully Furnished ที่ตกแต่งมาให้ใกล้เคียงกับห้องตัวอย่าง
    ห้องของที่นี่มีห้องเริ่มต้นขนาดใหญ่เหมาะกับการอยู่อาศัยจริง เพดานสูง 2.7 เมตร เน้นกระจกบานใหญ่และสูงแบบ Full Height แสงธรรมชาติเข้ามาได้มาก ทำให้ห้องดูโปร่งและสว่าง ระเบียงกว้างเมื่อเที่ยบกับโครงการในย่านเดียวกัน สามารถออกไปนั่งเล่นเทควิวได้ หรือใช้งานได้จริง ห้องแบบ 2 Bedroom จะติดตั้งอ่างอาบน้ำมาให้ ออกแบบห้องมาในโทนสีเอิร์ธโทน ใช้สีขาว ครีม น้ำตาล
    ที่สำนักงานขายมีห้องตัวอย่างให้ชมด้วยกัน 2 แบบ คือ แบบ 1 Bedroom Plus ขนาด 50 ตร.ม. และแบบ 2 Bedrooms ขนาด 70 ตร.ม.
    1) ภาพห้องตัวอย่างแบบ 1 Bedroom Plus ขนาด 50 ตร.ม.

    ทางเข้าห้องตัวอย่างแบบ 1 Bedroom Plus

    ประตูบานไม้สำเร็จรูปปิดผิวด้วยลามิเนตสีขาวครีม มือจับก้านโยก มีตาแมว

    ได้ Digital door lock ของ KABA ใช้งานได้ 2 ระบบ ทั้งแบบกดรหัส และคีย์การ์ด

    พื้นปูด้วยกระเบื้องแกรนิตโต้ขนาด 60x60 ซม. ลายหินอ่อนโทนสีขาว
    ข้อดีคือ ทำความสะอาดง่าย ป้องกันน้ำ และความชื้นได้ดี ไม่ว่าจะทำครัว หรือซักผ้าหมดกังวลได้เลย

    ความสูงจากพื้นถึงฝ้า 2.70 เมตร ผนังฉาบเรียบทาสี
    สำหรับห้องมาตรฐานเดินเข้ามาทางซ้ายมือจะเป็นพื้นที่โล่ง แต่ในห้องตัวอย่างทางโครงการ Built - in มาให้ดูเป็นไอเดีย
    โดยจัดวางเป็นตู้เก็บของบานสูง พร้อมเก้าอี้สำหรับนั่งใส่รองเท้า และติดกระจกเงาที่ผนัง ทำให้พื้นที่ตรงนี้ดูกว้างมากขึ้น

    ภายในตู้ด้านล่างเป็นพื้นที่เก็บรองเท้า ด้านบนสามารถเก็บของได้อีกเช่นกัน

    อีกฝั่งทางโครงการให้ชุดครัว Built - in พร้อมเตาไฟฟ้า เครื่องดูดควัน และอ่างล้างจาน มาให้ครบพร้อมใช้งาน
    (ยกเว้นเครื่องซักผ้า และไมโครเวฟ)

    หน้า Top วัสดุเป็นหินสังเคราะห์สีขาว ตำแหน่งเครื่องซักผ้าอยู่ใต้เคาน์เตอร์ครัว
    บานพับตู้เก็บของแบบ Soft Close ทั้งหมด ปิดผิวด้วยลามิเนตโทนสีน้ำตาล

    มีช่องเก็บของและถังขยะด้านล่าง

    อ่างล้างจานแบบฝังค่อนข้างลึก พร้อมก๊อกน้ำทรงโค้งของ Mex

    ได้เตาแม่เหล็กไฟฟ้า 2 หัวของ Mex 

    ได้เครื่องดูดควันระบบดูดออกด้านนอกของ Mex

    ช่องเก็บของเหนือเคาน์เตอร์ครัวหน้าบานปิดผิวด้วย Hi-Gloss สีขาว ติดตั้งไฟราวมาให้ตามแบบนี้เลย

    ภายในตู้แบ่งพื้นที่สำหรับเก็บของมาให้ตามแบบนี้

    ห้องครัวเชื่อมต่อกับห้องนั่งเล่นขนาดใหญ่ อยู่ใกล้ระเบียงรับแสงธรรมชาติเข้ามาได้เยอะ
    พื้นปูด้วยเอ็นจิเนียร์วูด ผิวหน้าไม้จริงสี ivory

    ทางโครงการวางโซฟาแบบ 2 ที่นั่งมาให้ดู หรือตรงจุดนี้จะวางโซฟาแบบ L - Shape ก็ยังได้ เพราะพื้นที่กว้าง

     ระยะดูทีวีกว้างประมาณ 240 ซม.
    ติดทีวีแบบแขวนผนังตามแบบนี้ก็ดี ทำให้ประหยัดพื้นที่ไปในตัว

    ด้านหลังโซฟาเป็นมุมสำหรับนั่งทานอาหาร จัดวางโต๊ะแบบ 2 ที่นั่งมาให้ดู

    หรือจะขยับโต๊ะไปชิดผนัง และวางเป็นโต๊ะทานอาหารขนาด 4 ที่นั่งก็ยังได้

    ประตูกระจกบานเลื่อนขนาดใหญ่ สูง 2.4 เมตร เลื่อนจากตรงกลางไปด้านข้าง

    ตัวล็อคแบบเซาะร่อง กรอบอะลูมิเนียมเคลือบสีซาฮาร่า (สีน้ำตาลอมทองมีความวิ้งๆ นิดหน่อย)

    พื้นที่บริเวณระเบียงกว้างสามารถใช้งานได้สะดวก เหมาะกับชาวต่างชาติที่ชอบมานั่งเล่นชมวิวที่ระเบียง
    พื้นระเบียงปูด้วยกระเบื้องเซรามิก ขนาด 40x40 ซม. ลดระดับลงจากพื้นห้องประมาณ 5 ซม.

     ราวระเบียงสูง 1.20 เมตร วัสดุเป็นกระจกเทมเปอร์ กรอบสแตนเลสสีเงิน

    คอมเพรสเซอร์แอร์อยู่ฝั่งขวาของระเบียงเป่าลมร้อนเข้าระเบียง
    แนะนำให้ติดกริลเพื่อเบี่ยงลมร้อนออกด้านนอกตัวอาคาร

    ที่ระเบียงได้ไฟโคมไฟทรงสี่เหลี่ยม 2 ดวง

    ตรงข้ามมุมรับประทานอาหารคือ ห้อง Plus กั้นด้วยประตูบานเลื่อน 2 ตอน กระจกสีเขียวตัดแสง กรอบอะลูมิเนียมสีขาว

    จัดเป็น Study Room มาเป็นไอเดีย สามารถปรับเปลี่ยนทำเป็นห้องนอน วางเตียงขนาด 3.5 ฟุต หรือทำเป็นห้องทำงาน หรือจะเป็น Walk in closet ก็ได้เช่นกัน ในห้องได้ไฟ 2 ดวง

    สวิชต์ไฟของ Panasonic

    ไปดูห้องน้ำและห้องนอนกันต่อ

    ห้องน้ำอยู่ติดกับห้องนอน ประตูห้องน้ำที่ได้เป็นบานสำเร็จรูปปิดผิวลามิเนต สูง 2.2 เมตร

    พื้นห้องน้ำปูด้วยกระเบื้องแกรนิตโต้กันลื่น ขนาด 60x60 ซม.
    พื้นลดระดับ 5 ซม.

    พื้นที่ห้องน้ำขนาดใหญ่และกว้างมาก ผนังกรุกระเบื้องเซรามิค ขนาด 60x60 ซม.
    ทำความสะอาดง่ายและดูสวยงาม ได้กระจกเงาขนาดใหญ่

    อ่างล้างมือสีขาวของ Kasch (หรือเทียบเท่า) 

    ก๊อกน้ำหัวผสมของ Kasch (หรือเทียบเท่า)

    ใต้อ่างเป็นตู้เก็บของบานเปิด บานพับแบบ Soft Close สามารถติดตั้งเครื่องทำน้ำร้อนได้

    มีปลั๊กไฟแบบกันน้ำ พร้อมฝาครอบติดตั้งไว้ที่ผนังทางซ้ายมือ

     โถสุขภัณฑ์ของ Kasch (หรือเทียบเท่า) ควบคุมด้วยระบบอัตโนมัติไฟฟ้า
    สายฉีดชำระอยู่ทางขวา และที่ใส่กระดาษทิชชู่ทางซ้าย

    ผนังฝั่งตรงข้ามโถสุขภัณฑ์ติดตั้งที่แขวนผ้ามาให้ 1 จุด

    ด้านขวามือได้ฉากกั้นอาบน้ำกระจกเทมเปอร์ของ Cistina พื้นที่อาบน้ำค่อนข้างกว้าง
    ประตูแบบบานสวิงเปิดเข้าด้านใน มือจับรูปตัว U ที่ขอบประตู ติดยางกันน้ำยกธรณีสูง 5 ซม. 

    ฝั่งซ้ายเป็นโซนอาบน้ำพร้อมที่นั่ง ฝั่งขวาเจาะผนังติดกระจกทำเป็นชั้นวางของมาให้

    ชุดฝักบัวทรงกลมของ Kasch ก๊อกหัวผสม

    ได้พัดลมดูดระบายอากาศด้วย

    ไปชมห้องนอนกันต่อค่ะ ประตูห้องนอนที่ได้เป็นบานสำเร็จรูปปิดผิวลามิเนต สูง 2.2 เมตร

    ได้ตู้เสื้อผ้า Built - in แบบบานเลื่อน 2 ตอน วัสดุมาตรฐานโครงการ สูงจรดฝ้า
    ด้านข้างเป็นชั้นสำหรับวางของ

    ห้องนี้ทางโครงการทำเป็นโต๊ะเครื่องแป้งติดผนัง ด้วยกระจกเงาบานใหญ่มาให้ดูเป็นไอเดีย

    ผนังภายในห้องนี้จะเป็นเพียงฉาบเรียบทาสีเท่านั้นนะคะ ปลายเตียงสามารถติดทีวีแขวนผนังได้

    ในห้องนี้วางเตียงขนาด 6 ฟุต ได้สบายๆ พื้นที่ปลายเตียงกว้างประมาณ 75 ซม.

    ข้างเตียงถึงหน้าต่างกว้างประมาณ 65 ซม.

    ได้หน้าต่างบานกระทุ้งกรอบอะลูมิเนียมเคลือบสี ความสูง 2.7 เมตร

    ติดตั้งบานกระทุ้งมาให้ 2 จุด สำหรับช่วยระบายอากาศ

    ตัวล็อคตามแบบนี้

    มุมนี้จากหน้าต่างมองย้อนกลับไปยังตู้เสื้อผ้า
    2) ภาพห้องตัวอย่างแบบ 2 Bedrooms ขนาด 70 ตร.ม.

    ห้อง Type นี้จะเป็นห้องแบบหน้ากว้าง

    ด้านหน้าห้องตัวอย่าง 2 Bedrooms

    เข้ามาทางซ้ายเป็นห้องน้ำ ใช้ร่วมกันระหว่างห้องนอนที่สอง และห้องนั่งเล่น

    สุขภัณฑ์ในห้องน้ำของ Kasch เหมือนห้องที่แล้ว

    กระจกบานใหญ่ ได้ฉากกั้นอาบน้ำด้วย ใช้งานได้อย่างสะดวกไม่ต้องไปรบกวนในส่วนของห้องนอนใหญ่
    ห้องนี้ได้ Rain Shower ทรงกลมพร้อมฝักบัวมือถือทรงกระบอก

    ฝั่งขวาเป็นห้องครัวแบบเปิด วางเชื่อมต่อกับพื้นที่นั่งเล่น

    ได้เคาน์เตอร์ครัวขนาดใหญ่ขึ้น พื้นที่เก็บของเยอะขึ้น ห้องนี้ได้เตาไฟฟ้า 4 ตัว อ่างล้างจาน
    พร้อมเครื่องดูดควันของ Mex ตำแหน่งเครื่องซักผ้าวางไว้ใต้เคาน์เตอร์ครัว
    พื้นที่วางตู้เย็นกว้างประมาณ 80 ซม. (ตู้เก็บของเหนือตู้เย็นไม่ได้)

    วางโต๊ะทานอาหารขนาด 4 - 6 ที่นั่งได้

    วางโซฟาขนาด 2 ที่นั่งมาให้ดูเป็นไอเดีย หรือจะวางโซฟาแบบ L - Shape ก็ยังได้ เพราะพื้นที่ยังเหลืออีกพอสมควร

    มีระยะดูทีวีค่อนข้างกว้างประมาณ 330 ซม.

    ยังคงวางห้องนั่งเล่นติดกับระเบียง

    ได้ระเบียงขนาดใหญ่เหมือนเดิม แต่ห้องนี้วางคอมเพรสเซอร์แอร์ไว้ทางซ้ายของระเบียง
    ส่วนฝั่งขวาเป็นผนังฉาบเรียบทาสี

    ห้องนอนที่ 2 กั้นด้วยประตูบานเลื่อน 2 ตอน บานใหญ่สูงจรดฝ้า (วัสดุมาตรฐานโครงการ)

    ในห้องนี้ได้เฉพาะตู้เสื้อผ้า Built - in เท่านั้น (มาตรฐานโครงการ)

    ทางโครงการตกแต่งเป็นห้องทำงานมาให้ดูเป็นไอเดีย

    ได้หน้าต่างบานใหญ่กรอบอะลูมิเนียมเคลือบสี ความสูง 2.7 เมตร
    ห้องนี้จะวางเตียงขนาด 6 ฟุตก็ยังได้

    เข้าไปชมห้องนอนใหญ่กันต่อ ประตูห้องนอนเป็นบานสำเร็จรูปปิดผิวลามิเนต สูง 2.2 เมตร แบบบานสวิง มือจับก้านโยก

    ห้องนี้สามารถวางเตียงขนาด 6 ฟุตได้ ตำแหน่งเตียงอยู่ใกล้หน้าต่าง ปลายเตียงเหลือระยะเดินประมาณ 65 ซม.

    ติดทีวีแบบแขวนผนังแบบนี้ก็ได้ เพื่อประหยัดพื้นที่ในการเดิน

    ได้ตู้เสื้อผ้าบานใหญ่ Built - in หน้ากว้างประมาณ 170 ซม. สูงจรดฝ้า
    ห้องนี้มีห้องน้ำในตัวด้วย

    ฟังก์ชันในห้องน้ำจัดมาให้ครบ มีอ่างล้างหน้า โถสุขภัณฑ์ อยู่ทางซ้าย และฉากกั้นอาบน้ำอยู่ทางขวา

    ข้างอ่างล้างหน้าก่อเป็น Top สำหรับวางอุปกรณ์อาบน้ำไว้ให้ตามแบบนี้

    ห้องนี้ได้ Rain Shower ทรงสี่เหลี่ยมติดไว้ที่ด้านบนเพดาน

    พร้อมชุดฝักบัวทรงกลม และก๊อกน้ำของ Kasch
    เจาะผนังบางส่วนไว้เป็นพื้นที่วางอุปกรณ์อาบน้ำ

    ได้อ่างอาบน้ำทรงสี่เหลี่ยมสีขาวตามแบบนี้ของ Cistina (หรือเทียบเท่า)

    และมีที่สำหรับนั่งอาบน้ำอยู่ด้านหลังประตู
    ราคาและค่าใช้จ่ายที่เกี่ยวข้องโดยประมาณ (11 มิ.ย. 61)
    • ราคาเริ่มต้นที่ 8.9 ล้านบาท สำหรับห้อง 1 Bedroom ขนาด 34.4 ตร.ม.
    • ราคาเฉลี่ยประมาณ 2xx,xxx บาท/ตร.ม.
    ค่าใช้จ่ายอื่นๆ
    • ค่าส่วนกลาง 70 บาท/ตร.ม./เดือน (ชำระล่วงหน้า 1 ปี) 
    • ค่าเงินกองทุนแรกเข้า 700 บาท/ตร.ม. (ชำระครั้งเดียว ณ วันโอนกรรมสิทธิ์)
    สถานะปัจจุบันของโครงการ (11 มิ.ย. 61)
    โครงการ เดอะริช เพลินจิต-นานา มียอดขายไปแล้วกว่า 50% ปัจจุบันผ่าน EIA เรียบร้อยแล้วอยู่ระหว่างดำเนินการก่อสร้าง ซึ่งเป็นงานระบบใต้ดิน มีความลึกถึง 57 เมตร หรือเทียบเท่าประมาณตึก 19 ชั้น (รองรับการเกิดแผ่นดินไหว) คาดว่าจะโอนให้ลูกบ้านประมาณปี 2563 โดยโครงการนี้สามารถปล่อยเช่าแบบรายเดือนได้ด้วย ซึ่งการปล่อยเช่าลักษณะนี้จะได้ค่าเช่าหรือผลตอบแทนที่สูงกว่า และดีกว่าการปล่อยเช่าแบบระยะยาว และมีโอกาสทำกำไรได้ค่อนข้างเยอะ ซึ่งค่า Yield โดยเฉลี่ยในย่านนี้ไม่ต่ำกว่า 6%
    สอบถามรายละเอียดเพิ่มเติมได้ที่ โทร. 02-886-1817 หรือ https://therich-phloenchit-nana.com

    รีวิว-พรีวิวล่าสุดอื่นๆ

    คอนโดติดรถไฟฟ้าล่าสุด

เว็บไซต์นี้มีการเก็บคุกกี้เพื่อเพิ่มความพึงพอใจในการใช้งานเว็บไซต์ และช่วยให้เราปรับปรุง และนำเสนอเนื้อหาตรงตามความสนใจของท่าน ท่านสามารถดู Privacy Notice และ ดู Cookies Policy ของเราได้ ที่นี่ ทั้งนี้ ท่านจะยินยอมให้เราเก็บคุกกี้ทั้งหมด หรือให้เก็บแค่บางส่วนโดยการคลิกเลือก ตั้งค่า

ท่านสามารถเลือกให้ความยินยอมการเก็บคุกกี้เป็นเรื่องๆ ได้ที่นี่

เมื่อคุณเข้าชมเว็บไซต์ หรือแอปพลิเคชั่น checkraka เราอาจจัดเก็บ หรือดึงข้อมูลจากเบราว์เซอร์ของคุณในรูปแบบของคุกกี้ และเทคโนโลยีอื่นที่คล้ายคลึง เช่น tag และ pixel (เรียกรวมกันว่า “คุกกี้”) ซึ่งมักเป็นข้อมูลที่ไม่สามารถระบุตัวตนได้โดยตรง แต่ช่วยให้คุณใช้งานเว็บไซต์ได้ปลอดภัย และตรงตามความต้องการมากขึ้น คุณอาจไม่ยินยอมให้เราเก็บคุกกี้บางประเภทได้ โดยการคลิกตามหัวข้อข้างล่างนี้

ประเภทคุกกี้
อ่านเพิ่มเติม ที่นี่
ยินยอม / ไม่ยินยอม
คุกกี้ที่จำเป็นต้องมีเสมอ
(Strictly Necessary)
คุกกี้สำหรับการใช้งานเว็บไซต์
(Functionality)
คุกกี้เพื่อเพิ่มประสิทธิภาพและวิเคราะห์
(Performance & Analytics)
คุกกี้เพื่อการตลาด
(Marketing)