ประเมินวงเงินรู้ผลใน 3 นาที
กับ กรุงศรี ออโต้ พร้อมสตาร์ท

เริ่มประเมินวงเงินพร้อมสตาร์ท
ผ่านมือถือ สแกนเลย

ดูวงเงินพร้อมสตาร์ทที่ได้รับ

  • คอนโด
  • คอนโด
  • ค้นหาแบบละเอียด
  • รีวิว-เยี่ยมชม ไอดีโอ คิว สยาม-ราชเทวี (Ideo Q Siam-Ratchathewi)

    4 มิ.ย. 61 10,723
    รีวิว-เยี่ยมชม คอนโด ไอดีโอ คิว สยาม-ราชเทวี (Ideo Q Siam-Ratchathewi)
    วันนี้เช็คราคา.คอม จะพาไปชมคอนโดมิเนียมพร้อมอยู่สุด Exclusive ใจกลางเมืองในย่านสยาม ราชเทวี กับโครงการ ไอดีโอ คิว สยาม-ราชเทวี (Ideo Q Siam-Ratchathewi) เป็นโครงการ Luxury Condo ที่อยู่ใกล้รถไฟฟ้าถึง 3 สายด้วยกัน ไม่ว่าจะเป็นใกล้รถไฟฟ้า BTS สถานีราชเทวี 390 เมตร ใกล้ Airport Link พญาไท 800 เมตร ใกล้รถไฟฟ้าสายสีส้ม (สถานีประตูน้ำในอนาคต) และยังใกล้แหล่งช้อปปิ้งอย่างสยามพารากอนอีกด้วย ซึ่งโครงการนี้เป็นการร่วมทุนกันระหว่างบริษัท อนันดาฯ กับกลุ่มมิตซุย ฟูโดซัง ยักษ์ใหญ่อสังหาริมทรัพย์จากประเทศญี่ปุ่น มาพร้อมความสะดวกสบายเหนือระดับด้วยลิฟต์ส่วนตัว และ Sky facility พร้อมสระว่ายน้ำแบบ 360 องศารอบตัวอาคาร โครงการนี้สร้างเสร็จแล้วจะมีความสวยงามน่าอยู่ขนาดไหน ตามไปชมกันค่ะ 
    ข้อมูลโครงการ
    • เจ้าของและผู้พัฒนาโครงการ : บริษัท  อนันดา ดีเวลลอปเม้นท์  จำกัด (มหาชน)
    • ที่ตั้งโครงการ : ถ.เพชรบุรี เขตราชเทวี กทม.
    • อาคารชุดพักอาศัย : 36 ชั้น 1 อาคาร จำนวน 552 ยูนิต (ห้องพักอาศัย 550 และร้านค้า 2 ยูนิต)
    • ขนาดที่ดินทั้งโครงการ : 2-1-63.70 ไร่
    • ลิฟต์โดยสาร 12 ตัว และลิฟต์บริการ 1 ตัว
    • ห้องชุด : มี 3 แบบ ได้แก่
      - 1 ห้องนอน 1 ห้องน้ำ ขนาด 29.5 - 37 ตร.ม
      - 2 ห้องนอน 1 ห้องน้ำ ขนาด 51 ตร.ม.
      - 2 ห้องนอน 2 ห้องน้ำ ขนาด 62 - 69 ตร.ม.
    • ที่จอดรถ : 258 คัน (ไม่รวมจอดซ้อนคัน)
    • ราคาเริ่มต้น : 5.79 ล้านบาท (ข้อมูล ณ 9 พ.ค. 61)
    • วันที่เข้าเยี่ยมชม-รีวิวคอนโด : 9 พ.ค. 61
    ทำเลที่ตั้งและสภาพแวดล้อมรอบๆ โครงการ
    ไอดีโอ คิว สยาม-ราชเทวี ตั้งอยู่บนถนนเพชรบุรี แขวงถนนพญาไท เขตราชเทวี ติดซอยเพชรบุรี 11 ฝั่งมุ่งหน้าไปแยกประตูน้ำ หรือห่างจากแยกราชเทวีมาประมาณ 300 ม. ถนนเพชรบุรีถือเป็นเส้นหลักที่สำคัญเส้นหนึ่งในย่านนี้สามารถเชื่อมต่อกับถนนเส้นอื่นได้หลายสาย ไม่ว่าจะเป็น ถนนพญาไท ถนนราชปรารภ ถนนราชดำริ ถนนชิดลม หรือถนนวิทยุ นอกจากนี้ยังใกล้ทางพิเศษศรีรัช และทางพิเศษเฉลิมมหานคร เรียกว่าจะเดินทางเข้าเมืองหรือออกนอกเมืองก็สะดวกสบาย แต่ก็ต้องยอมรับว่าทำเลใจกลางเมืองแบบนี้ในช่วงเวลาเร่งด่วนการจราจรก็จะหนาแน่นหน่อยเป็นธรรมดา ดังนั้นจึงควรเผื่อเวลาเดินทางกันไว้บ้าง 
    การเดินทางด้วยรถไฟฟ้าก็ถือเป็นตัวเลือกที่ดีสำหรับการเดินทางในย่านใจกลางเมืองหลวงแบบนี้ โดยตัวโครงการอยู่ใกล้รถไฟฟ้า BTS ราชเทวีเพียง 390 เมตร และห่างจาก Airport Link สถานีพญาไทเพียง 1 สถานี ซึ่งในอนาคตข้างหน้าจะมีรถไฟฟ้า MRT สายสีส้มวิ่งผ่านหน้าโครงการอีกด้วย เรียกว่าทำเลย่านนี้สะดวกครบทุกการเดินทาง นอกจากนี้ยังใกล้สยามเพียง 1 สถานี ซึ่งเป็นแหล่งรวม Lifestyle Shopping Mall ทั้งชาวไทยและชาวต่างชาติ หรือแม้แต่ย่านราชเทวีเองก็เต็มไปด้วยร้านอาหารสำหรับนั่งชิลล์ตอนกลางวัน หรือจะเป็นร้านกินดื่มตอนกลางวันก็มีครบ หรือจะเป็นสถาบันการศึกษาชั้นนำอย่าง จุฬาลงกรณ์มหาวิทยาลัย โรงเรียนเตรียมอุดมศึกษา ก็อยู่ไม่ไกลจากโครงการ

    รูปแผนที่โครงการ 
    ไอดีโอ คิว สยาม-ราชเทวี
    • การเดินทางโดยรถยนต์
    การเดินทางเข้าออกโครงการสามารถเดินทางได้หลายเส้นทาง ดังนี้
    ขาเข้าโครงการ เส้นทางที่ 1 : จากถนนสุขุมวิท
    ขาเข้าโครงการ เส้นทางที่ 2 : จากถนนพญาไท
    ขาเข้าโครงการ เส้นทางที่ 3 : มาจากอนุสาวรีย์ชัยสมรภูมิ
    ขาออกโครงการ เส้นทางที่ 1 : ไปขึ้นทางพิเศษเฉลิมมหานคร
    • การเดินทางโดยรถไฟฟ้า
    จากจุดที่ตั้งของตัวโครงการสามารถเดินไปขึ้น BTS ราชเทวีได้สบาย เพราะอยู่ห่างจากโครงการเพียงแค่ 390 เมตรเท่านั้น หรือจะนั่ง BTS ต่อไปยังสถานีสยามก็แค่ 1 สถานีเท่านั้น ส่วนสถานี Airport Link ก็อยู่ไม่ใกล้จากโครงการ สำหรับใครที่ไปต่างประเทศบ่อย การเดินทางด้วย Airport Link ถือว่าสะดวกไม่ต้องขับรถให้เมื่อย เรียกว่ารายล้อมด้วยรถไฟฟ้าที่ช่วยอำนวยความสะดวกและประหยัดเวลาในการเดินทางตอบโจทย์ Lifestyle คนเมืองได้เป็นอย่างดี

    เส้นทางรถไฟฟ้าสายเขียว, Airport Link และรถไฟฟ้าสายสีส้ม (ในอนาคต)
    (คลิกเพื่อดูภาพขนาดใหญ่)
    ทำเลเส้นนี้ในอนาคตจะมีรถไฟฟ้าใต้ดินสายสีส้มผ่านหน้าโครงการอีกด้วย โดยสถานีที่ใกล้ที่สุดคือ สถานีประตูน้ำ จะอยู่ระหว่างตัวโครงการกับพันธุ์ทิพย์พลาซ่า ห่างจากโครงการประมาณ 50 เมตร 
    • สภาพแวดล้อมรอบโครงการ
    รอบโครงการส่วนใหญ่จะติดกับบ้านพักอาศัยและอาคารพาณิชย์สูงไม่เกิน 6 ชั้น โดยรวมถือว่าค่อนข้างได้วิวเปิดโล่ง อาจจะมีอาคารสูงอยู่บ้างแต่ก็ไม่ได้อยู่ในระยะประชิดจนทำให้ลูกบ้านสูญเสียความเป็นส่วนตัวไป บวกกับห้องพักอาศัยของโครงการที่เริ่มต้นที่ชั้น 8 ดังนั้นอาคารสูงที่ติดกับโครงการจึงไม่มีผลกระทบกับลูกบ้าน

    • ทิศใต้ : เป็นฝั่งด้านหน้าโครงการถนนเพชรบุรี ฝั่งตรงข้ามถนนเป็นโครงการ Wish Signature Midtown Siam ได้วิวเมืองฝั่งถนนเพชรบุรี
    • ทิศตะวันตก : ติดกับซอยเพชรบุรี 11 และบ้านพักอาศัย สูง 2-3 ชั้น ได้วิวฝั่งถนนพญาไท
    • ทิศเหนือ : ติดกับอาคารพาณิชย์สูง 5 ชั้น ได้วิวฝั่งทางถนนศรีอยุธยา
    • ทิศตะวันออก : ติดกับอาคารพาณิชย์สูง 5 ชั้น ได้วิวฝั่งถนนราชดำริ ถนนราชปรารภ
    ลองเดินไปสำรวจบรรยากาศรอบๆ โครงการกันดูค่ะว่าในละแวกนี้มีอะไรกันบ้าง

    แผนที่แจกแจงให้เห็นระยะใกล้-ไกลของโครงการกับสถานที่สำคัญ และแหล่งช้อปปิ้งที่น่าสนใจ

    ลองเดินไปทางซ้ายของโครงการมุ่งหน้าแยกราชเทวี

    ด้านข้างติดกับซอยเพชรบุรี 11 ซึ่งซอยนี้สามารถวิ่งลัดไปออกประตูน้ำเซ็นเตอร์ และถนนราชปรารภได้

    ถัดมาเป็นบ้านพักอาศัยความสูงประมาณ 2 ชั้น

    เดินต่อมาอีกหน่อยจะเจอโครงการ ไอดีโอ คิว ราชเทวี มีร้าน 7-Eleven อยู่ด้านหน้าโครงการด้วย

    ถัดมาจะเป็นแนวอาคารพาณิชย์ยาวตลอดแนวถนน

    มี Hostel เล็กๆ ชื่อ MOVYLODGE อยู่ไม่ไกลจากแยกราชเทวี

    ติดกันจะเป็น Hostel & Cafe ชื่อยิ้มแย้ม

    เดินต่อมาจะเจอ The Quarter Bangkok
    ที่เป็นทั้ง Poshtel, Coworking และ Cafe ตั้งอยู่หัวมุมถนนบริเวณแยกราชเทวี

    เดินข้ามถนนไปอีกหน่อยก็จะถึงทางขึ้น BTS ราชเทวีแล้วค่ะ

    ถึงแล้วค่ะ BTS สถานีราชเทวี

    ใกล้ BTS ราชเทวีจะเป็นอีกหนึ่งจุดที่รวมร้านอาหารเก๋ คาเฟ่น่ารักๆ รวมถึงผับสำหรับนั่งดริงค์ไว้เพียบ
    หนึ่งในร้านอร่อยในย่านนี้คือ Hungry Nerd ร้านสเต็กรสชาติดีราคาไม่แพง

    มีทั้งสเต็ก สปาเก็ตตี้ สลัดผัก และอีกหลากหลายเมนู จะมาคนเดียวหรือมาเป็นกลุ่มเลือกสั่งได้เลย

    ย้อนกลับมาหน้าโครงการอีกครั้งค่ะ รอบนี้ลองมุ่งหน้าเดินไปทางแยกประตูน้ำกันบ้าง
    จากจุดนี้จะเห็นสะพานลอยคนข้ามอยู่ห่างจากโครงการประมาณ 50 เมตร มีป้ายรถประจำทางอยู่ใกล้ๆ

    เดินข้ามสะพานลอยมาจะเจอกับซอยกรุงเทพการบัญชีวิทยาลัย ซึ่งซอยนี้สามารถเดินลัดไปสยามพารากอนได้

    แผนที่การเดินเท้าจากโครงการ โดยเส้นทางลัดเข้าซอยกรุงเทพการบัญชีวิทยาลัย ไปยังสยามพารากอน

    มุ่งหน้าไปทางแยกประตูน้ำกันต่อค่ะ.. เดินมาไม่ไกลจะเจอห้างพันธุ์ทิพย์พลาซ่า อยู่ห่าจากโครงการประมาณ 300 ม.

    ห้าง Grand Diamond Plaza อยู่ห่างจากโครงการประมาณ 430 ม.

    ห้าง Shibuya 19 อยู่ห่างจากโครงการประมาณ 350 ม.

    เดอะ แพลตตินั่ม อยู่ห่างจากโครงการประมาณ 480 ม.

    ห้างกรุงทองพลาซ่า อยู่ห่างจากโครงการประมาณ 500 ม.

    ห้าง City Complex และโรงแรม อมารี วอเตอร์เกท ห่างจากโครงการประมาณ 550 ม.
    โดยรวมถือว่าทำเลนี้อุดสมบูรณ์มากทั้งอาหารการกิน และแหล่งช้อปปิ้งทำเลนี้มีครบ สามารถใช้ชีวิตได้อย่างสะดวกสบาย ตอบโจทย์ไลฟ์สไตล์คนเมืองได้อย่างเต็มที่ เพราะถือเป็นทำเล Fashion ใจกลางเมืองศูนย์กลาง Lifestyle ระดับเอเชีย ที่รวบรวมแหล่งช้อปปิ้งระดับโลกขนาดใหญ่ไว้ให้นักช้อปได้จับจ่ายใช้สอยอยู่หลายที่ อาทิ

    สยามพารากอน (Siam Paragon) ห่างจากโครงการประมาณ 650 ม.

    สยามเซ็นเตอร์ (Siam Center) ห่างจากโครงการประมาณ  750 ม.

    สยามดิสคัฟเวอรี่ (Siam Discovery) ห่างจากโครงการประมาณ 1 กม. 

    มาบุญครอง (MBK) ห่างจากโครงการประมาณ 1.3 กม.

    เซ็นทรัลเวิลด์ (Central World) ห่างจากโครงการประมาณ 1.1 กม.

    เกษรพลาซ่า (Gaysorn Plaza) ห่างจากโครงการประมาณ 1.2 กม.

    อัมรินทร์ พลาซ่า (Amarin Plaza) ห่างจากโครงการประมาณ 1.3 กม.

    เซ็นทรัล ชิดลม (Central Chidlom) ห่างจากโครงการประมาณ 1.8 กม.

    เซ็นทรัล แอมบาสซี่ (Central Embassy) ห่างจากโครงการประมาณ 2 กม.
    รูปแบบตึก และตัวโครงการโดยรวม
    ตัวโครงการ "ไอดีโอ คิว สยาม-ราชเทวี" ออกแบบตัวอาคารมาได้สวยงาม ดูโดเด่นสะดุดตามาแต่ไกลในรูปแบบ Futuristic ผสมผสานกับแนวคิด ECO Urban Life ที่ใส่ใจสิ่งแวดล้อม แต่ยังคงไม่ทิ้งดีไซน์ที่ล้ำสมัยตามแบบฉบับของแบรนด์ "IDEO" ตัวอาคารออกแบบเน้นเส้นสายในแนวตั้งดูโดดเด่น ถือเป็นอีกหนึ่ง Landmark ในย่านราชเทวี โทนสีที่ใช้จะเป็นสีเทาอ่อนตัดกับเทาเข้ม ตกแต่งด้วยสวนแนวตั้ง และสวนเล่นระดับ
    ตัวอาคารเป็นคอนโดมิเนียม High-rise สูง 36 ชั้น อยู่บนพื้นที่ 2-1-63.70 ไร่ ประกอบด้วยอาคารรูปทรงตัว I จำนวน 1 อาคาร มีห้องพักอาศัยรวมทั้งหมด 550 ยูนิต และร้านค้า 2 ยูนิต โดยข้อดีของอาคารรูปทรงตัว I คือห้องพักอาศัยทุกห้องจะไม่อยู่ในตำแหน่งที่บังวิวกัน ดังนั้นจึงสามารถเทควิวเมืองได้อย่างเต็มที่ ห้องพักอาศัยเริ่มต้นตั้งแต่ชั้น 8-36 รูปแบบห้องพักอาศัยมีให้เลือกตั้งแต่แบบ 1 ห้องนอน - 2 ห้องนอน ห้องพักของโครงการแบ่งเป็น 2 ฝั่งคือ ห้องฝั่งที่เป็น Garden View และฝั่ง City View
    ความโดดเด่นของโครงการนี้อยู่ที่สิ่งอำนวยความสะดวกส่วนกลางแบบ Sky Facilities ที่จัดไว้บนชั้น 30 มีสระว่ายน้ำแบบ 360 องศาโอบล้อมอาคาร ได้ความรู้สึกเหมือน Marina bay sands ของประเทศสิงคโปร์ นอกจากนี้ยังมี Social club และห้องออกกำลังกาย
    และอีกหนึ่งความพิเศษของโครงการนี้คือ Private lift หรือลิฟต์ส่วนตัวที่ลูกบ้านสามารถขึ้นลิฟต์จากชั้น Lobby หรือชั้นจอดรถ ตรงเข้าสู่หน้าห้องพักได้เลย ห้องใครห้องมันไม่จอดระหว่างชั้น เน้นความสะดวก ปลอดภัย และเป็นส่วนตัวแบบ Exclusive สุดๆ โดยก่อนเข้าห้องพักอาศัยจะมีประตูกั้นอีก 1 ชั้น ถือเป็น Double Security ให้ลูกบ้านอีกด้วยเรียกว่าเพิ่มความปลอดภัยแบบคูณสองกันไปเลย คีย์การ์ดที่นี่เป็นแบบล็อคชั้น ล็อคห้อง จะจอดเฉพาะชั้น Lobby ชั้น Facilities และชั้นห้องพักอาศัยของลูกบ้านเท่านั้น โดยลิฟต์จะถูกเซ็ตระบบให้สามารถกดใช้งานได้เพียง 1 ชั้น ต่อการใช้งาน 1 ครั้งเท่านั้น เพื่อความปลอดภัยสูงสุด กรณีที่ Private Lift เสียก็สามารถใช้ Main Lift ส่วนกลางชั่วคราวได้ ซึ่งลิฟต์ส่วนกลางสามารถจอดได้ทุกชั้น และเดินเข้าห้องพักอาศัยผ่านทางโถงทางเดินหน้าห้องแทน สำหรับอัตราส่วนการใช้ลิฟต์เฉลี่ยทั้งโครงการอยู่ที่ 46 ยูนิตต่อลิฟต์ 1 ตัว ถือว่าเป็นตัวเลขที่ดี
    ส่วนพื้นที่จอดรถอยู่ที่ชั้น 1-7 โดยที่ชั้น 1 ทั้งหมดจะเป็นที่จอดรถสำหรับ Visitor ส่วนลูกบ้านจอดที่ชั้น 2-7 โดยที่รถของลูกบ้านจะมี Easy pass ติดหน้ารถให้สิทธิ์จอดรถ 1 ห้องต่อรถ 1 คัน แบบหมุนเวียนไม่ฟิกที่จอด ทั้งโครงการสามารถจอดรถได้ 258 คัน หรือประมาณ 45% ไม่รวมจอดซ้อนคัน

    Master Plan ชั้น Ground : จะเป็นส่วนของ จุด Drop off, Lobby, Mailbox, สวน, ร้านค้า และที่จอดรถ

    แผนที่แสดงเส้นทางการเดินรถภายในโครงการ

    Floor Plan ชั้น 2-7 : เป็นพื้นที่จอดรถทั้งหมด จอดรถได้ 258 คัน แบบไม่รวมจอดซ้อนคัน ให้สิทธิจอดรถยูนิตละ 1 คัน

    Floor Plan ชั้น 8:
     เป็นส่วนพักอาศัยจำนวน 12 ยูนิต และพื้นที่สวนสีเขียว
    Private Lift จำนวน 12 ตัว

    Floor Plan ชั้น 9-28 : จะเหมือนกันคือเป็นส่วนพักอาศัยทั้งหมด จำนวนยูนิตมากที่สุดคือ 22 ยูนิต/ชั้น
    Private Lift จำนวน 12 ตัว

    Floor Plan ชั้น 29 : เป็นสวนพักผ่อน และห้องพักอาศัย 20 ยูนิต เพราะห้องมุม 2 ห้องทางทิศใต้ เป็นส่วนหลังคา

    Floor Plan ชั้น 29M : 
    อยู่ใต้ชั้น Facilities ประกอบด้วย ห้องสตีม ซาวน่า และห้องซักผ้า


    Floor Plan ชั้น 30 : 
    เป็นชั้น Facilities ทั้งหมด โซเซียลคลับ, สระว่ายน้ำ,
    บาร์สระว่ายน้ำ, สระเด็ก, จากุซซี่, คาบาน่า, ห้องสมุด และบิซิเนสเซ็นเตอร์


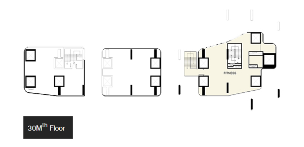
    Floor Plan ชั้น 30M : 
    อยู่เหนือชั้น Facilities ขึ้นมาเป็นที่ตั้งของห้องฟิตเนส

    Floor Plan ชั้น 31 : 
    เป็นส่วนพักอาศัยทั้งหมด จำนวนยูนิตมากที่สุดคือ 14 ยูนิต Private Lift จำนวน 8 ตัว

    Floor Plan ชั้น 32-33 : 
    เป็นส่วนพักอาศัยทั้งหมด จำนวนยูนิตมากที่สุดคือ 14 ยูนิต Private Lift จำนวน 8 ตัว

    Floor Plan ชั้น 34-36 : 
    เป็นส่วนพักอาศัยทั้งหมด จำนวนยูนิต 14 ยูนิต Private Lift จำนวน 8 ตัว
    ส่วนกลางและสิ่งอำนวยความสะดวก
    สำหรับส่วนกลางนั้นอนันดาฯ ก็ไม่เคยทำให้ผิดหวัง โครงการนี้ก็เช่นกัน ออกแบบเป็น Sky Facilities ตั้งอยู่บนชั้น 30 แบ่งเป็น 3 โซนคือ Social Club, โซน Game room และโซน Library & Business Center ออกแบบให้สามารถเดินเชื่อมต่อกันได้หมด เปิดให้บริการตั้้งแต่ 6.00 - 22.00 น. โดยทั้งหมดถูกโอบล้อมด้วยสระว่ายน้ำ แต่ละจุดออกแบบฟังก์ชั่นการใช้งานมาให้หลากหลาย ทั้งโซน Lab Pool, Jacuzzi, Pool Bar, Kid's Pool นอกจากนี้ยังมีห้อง Fitness และ City Life View แบบ 360 องศา ให้ลูกบ้านสามารถขึ้นมาเทควิวเมืองได้อย่างเต็มตา นอกจากนี้ภายในโครงการยังจัดพื้นที่สีเขียวเป็นสวนเล่นระดับไว้ที่ชั้น 1 ชั้น 8 และชั้นดาดฟ้าอีกด้วย
    ชั้น G
    • ล็อบบี้
    • พื้นที่สวนสีเขียว
    • ห้องจดหมาย และห้องนิติบุคคล
    ชั้น 8
    • พื้นที่เปิดโล่ง และสวนพักผ่อน
    ชั้น 29M, ชั้น 30, ชั้น 30M
    • ห้องเปลี่ยนเสื้อผ้าและห้องน้ำ
    • ห้องอบไอน้ำ
    • ห้องซาวน่า
    • ห้องซักรีด
    • สระว่ายน้ำระบบเกลือ ความลึกประมาณ 1.0 - 1.5 เมตร ประกอบด้วย Lab Pool, Jacuzzi, Pool Bar, Kid's Pool (ลึก 0.40 เมตร)
    • โซเซียลคลับ
    • ห้องเกมรูม
    • ห้อสมุด และบิซิเนสเซ็นเตอร์
    • ห้องออกกำลังกาย
    สิ่งอำนวยความสะดวกอื่นๆ
    • ที่จอดรถประมาณ
    • ลิฟต์โดยสาร 12 ตัว และลิฟต์บริการ 1 ตัว อัตราส่วนลิฟท์รวมทั้งโครงการ 45 : 1
    • กล้องวงจรปิดตลอด 24 ชั่วโมง
    • ระบบควบคุมการเข้าออกด้วยคีย์การ์ด
    • เจ้าหน้าที่รักษาความปลอดภัยตลอด 24 ชั่วโมง 

    ด้านหน้าโครงการตกแต่งด้วยกำแพงต้นไม้ และลายเส้นโค้งเว้านำสายตาดูสวยดีค่ะ 
    มีป้อม รปภ. อยู่ทางขวามือ

    มีพื้นที่ทางเดินสำหรับลูกบ้านด้านซ้ายมือ และถัดไปเป็นสวนเล่นระดับบริเวณหน้าโครงการ

    ที่พื้นถนนในโครงการทำลูกศรบอกเส้นทางการเดินรถไว้ให้เรียบร้อย
    จากจุดนี้จะขับตรงไป หรือจะเลือกเลี้ยวซ้ายเพื่อไปทางขึ้นลานจอดรถก็ได้

    จากป้อม รปภ. หากขับตรงมาจะผ่านจุด Drop off ในร่ม อยู่ฝั่งตะวันออกของอาคาร

    บริเวณชั้น 1 รอบอาคารเป็นที่จอดรถสำหรับ Visitor
    ด้านหลังอาคารทางโครงการจัดเป็นพื้นที่สวนสีเขียวอีกหนึ่งจุดขนาดไม่ใหญ่มาก

    เลี้ยวซ้ายตามลูกศรมาจะเป็นพื้นที่ฝั่งทิศเหนือด้านหลังโครงการ

    เลี้ยวซ้ายอีกครั้งก็จะเจอทางขึ้นอาคารจอดรถ

    ทางขึ้นพื้นที่จอดรถจะกั้นด้วยไม้กระดก

    แต่หากจากหน้าโครงการวิ่งวนทางซ้ายของอาคารจะผ่านสำนักงานขาย
    และในอนาคตสำนักงานขายจะถูกปรับเปลี่ยนเป็น MaxValu บุคคลภายนอกสามารถเข้ามาซื้อของได้

    ขับตรงมาอีกนิดจะเห็นทางขึ้นที่จอดรถอยู่ทางขวา

    มีกล้อง CCTV และจุดสแกนบัตร Easy pass ก่อนขึ้นที่จอดรถ

    ทางขึ้นที่จอดรถมี 2 เลน วิ่งสวนกันได้สบาย

    พื้นที่จอดรถในร่มอยู่บริเวณชั้น 2 - 7

    พื้นที่ชั้น 2-7 ของอาคารบางส่วนจัดเป็นพื้นที่สวนสีเขียวแนวตั้ง
    นอกจากจะให้ความร่มรื่นกับอาคารแล้วยังช่วยบังแดดให้กับพื้นที่จอดรถได้ด้วย

    Lobby แบบ Double Volume สูงโปร่ง
    เข้า-ออกด้วยระบบคีย์การ์ด Visitor ไม่สามารถเข้าได้เองต้องให้ลูกบ้านลงมารับเท่านั้น

    ผนังบริเวณ Lobby กรุด้วยหินอ่อน และกระจกเงาที่ดำ ฝ้าเพดานเล่นระดับ จัดไฟหลืบไฟซ่อนดูสวยงาม

     ตู้ Mailbox ก็ออกแบบด้วยโทนสีดำมีความเงาวาวดูดีมากค่ะ

    อีกโซนหนึ่งของ Lobby

    Private Lift จะมีทั้งหมด 12 ตัว เข้าออกได้เฉพาะชั้น Lobby, ชั้น 30 ที่เป็น Facility และห้องพักอาศัยของลูกบ้านเท่านั้น ส่วนถ้าจะไปสวนที่ชั้น 8 ต้องไปต่อลิฟต์ส่วนกลางเท่านั้น

    ภายในลิฟต์จะมีแผงปุ่มกด 2 ฝั่ง ติดตั้งกล้อง CCTV มาให้ด้วย สามารถใช้บริการได้สูงสุดครั้งละ 8 คน

    ขึ้นมาที่ชั้น 8 จัดเป็นพื้นที่สวนสีเขียวมาให้ 2 จุด ทั้งฝั่งทิศตะวันออก และทิศตะวันตก เข้าออกด้วยระบบคีย์การ์ดเช่นกัน

    พื้นที่สวนเล่นระดับฝั่งทิศตะวันตกออกแบบมายาวตลอดแนวอาคาร จัดเก้าอี้สำหรับนั่งเล่นรับลมมาให้ 3 ตัว

    ขึ้นมาดู Facilities บนชั้น 30 กันค่ะ เริ่มจากโซนแรกคือโซน Social Club
    มี Long Table ที่ออกแบบเป็นเคาน์เตอร์บาร์ สำหรับการจัดปาร์ตี้ไว้ แต่หากจะจัดปาร์ตี้อาจต้องแจ้งทางนิติล่วงหน้า

    ประตูทุบานสามารถเปิดออกรับลมได้ แต่ไม่อนุญาตให้ลงสระน้ำนะคะ ขึ้นลงได้เฉพาะโซนที่กำหนดไว้ให้เท่านั้น

    จัดชุดสำหรับนั่งพักผ่อนมาให้หลายมุม

    Social Club ออกแบบเป็น double volume เพดานสูงโปร่ง มองเห็นวิวสระว่ายน้ำทั้ง 2 ฝั่ง

    สระว่ายน้ำ Lab Pool ฝั่งทิศตะวันตก

    โซน Jacuzzi ที่มีระบบ Bubble & Jet Massage ช่วยนวดตัวเพิ่มความผ่อนคลาย

    ชุดเก้าอี้ที่เลือกใช้ยังคงความเป็นโมเดิร์นดูล้ำสมัยตามสไตล์ IDEO

    มุมนี้ได้วิวฝั่งแยกประตูน้ำ

    อีกหนึ่งมุมสวยๆ ของสระว่ายน้ำ

    ระหว่างห้อง Social Club และห้อง Game Room จะมีเป็นจุดสำหรับเดินขึ้น-ลงสระว่ายน้ำ

    มีเตียง Day Bed ให้นั่งเล่นชมวิวหลายตัว

    ถึงแม้จะไม่ได้ว่ายน้ำแค่ได้มานั่งชิลล์ๆ ชมวิวสวยๆ บนนี้แค่นี้ก็มีความสุขแล้ว

    ระหว่างห้อง Social Club และห้อง Game Room จะมีบันไดอยู่ค่ะ หากเดินขึ้นไปจะเป็นห้องฟิตเนส
    แต่ถ้าเดินลงจะไปห้องน้ำ และห้อง Laundry

    ห้องฟิตเนสอยู่บนชั้น 30M เดินขึ้นบันไดมานิดนึง เข้าออกได้เลยไม่ต้องใช้คีย์การ์ด
    ตกแต่งด้วยกระจกรอบด้านเทควิวได้อย่างเต็มที่

    ห้องฟิตเนสขนาดพื้นที่ค่อนข้างใหญ่จัดเครื่องเล่นมาให้หลายเครื่อง

     เครื่องเล่นมีทั้งแบบคาร์ดิโอ

    และเวทเทรนนิ่ง

    มีมุมออกกำลังกายแบบเป็นส่วนตัวมาให้หลายมุม

    ห้องน้ำอยู่ด้านล่างแยกชาย-หญิง พร้อมตู้ล็อคเกอร์เก็บของ โดยภายในห้องน้ำชายจะมีซาวน่า และห้องน้ำหญิงมีสตีม
    ติดกับห้องน้ำเป็นห้อง Laundry มีเครื่องซักผ้าแบบหยอดเหรียญ 2 เครื่องและเครื่องอบผ้า 1 เครื่อง

    ห้อง Game room จัดโต๊ะพูลมาให้ 2 ตัว โซนนี้เป็นห้องเพดานสูงโปร่ง ตกแต่งด้วยแชนเดอเลียร์ดูสวยงาม

    จัดชุดโฟซายาว พร้อมเก้าอี้รองรับลูกบ้านได้หลายคน

    มีชุดเก้าอี้นั่งเล่นอยู่ริมสระว่ายน้ำ

    อีกหนึ่งวิวสวยๆ บนชั้น 30

    เดินไปดูโซนสุดท้ายคือโซน Library & Business Center กันต่อเลยค่ะ

    โซนนี้มีห้องประชุมมาให้ 1 ห้อง 

    โซนนี้เพดานสูงมากแสงธรรมชาติเข้ามาได้อย่าเต็มที่ ทำให้ห้องดูโปร่งและดูโอ่อ่ามาก
    จัดชุดโซฟาสำหรับนั่งเล่นหรือนั่งอ่านหนังสือมาให้หลายมุมเพียงพอต่อจำนวนลูกบ้านแน่นอน

    ห้องนี้ก็มี Private Lift เช่นกัน

    โซนนี้ก็ยังคงได้หน้าต่างบานใหญ่เทควิวเมืองได้เต็มตา

    ต้องบอกว่าวิวพระอาทิตย์ตกยามเย็นที่มองจากชั้นนี้สวยมาก

    อีกหนึ่งวิวสวยๆ จากโครงการ ไอดีโอ คิว สยาม-ราชเทวี 

    โถงทางเดินกว้าง 1.5 เมตร ค่อนข้างเงียบสงบ เนื่องจากทุกห้องมีลิฟต์ส่วนตัว
    ช่วยลดปัญหาเสียงรบกวนจากโถงทางเดินไปได้เยอะเลย
    ภาพห้องตัวอย่าง และ Layout
    ห้องพักของโครงการนี้ส่วนเป็นห้องแบบ 1 Bedroom ส่วนที่เหลือเป็นห้องแบบ 2 Bedroom รองรับทุกไลฟ์สไตล์ของการอยู่อาศัยไม่ว่าจะอยู่คนเดียว หรือจะอยู่กันเป็นครอบครัวขนาดใหญ่ การออกแบบภายในห้องให้สามารถใช้งานได้อย่างเต็มที่ มีให้เลือก 3 แบบด้วยกัน
    ห้องของโครงการนี้ขายแบบ Fully Furnished ทั้งเฟอร์นิเจอร์ Built-in และเฟอร์นิเจอร์ลอยตัว เฟอร์นิเจอร์ที่ได้เป็นรุ่นพิเศษที่ผลิตขึ้นมาเฉพาะโครงการนี้เท่านั้น ไม่มีขายทั่วไปตามท้องตลาด วัสดุปิดผิวหน้าไม้แบบ HI-GLOSS ให้ความรู้สึกหรูหรากว่าลามิเนต นอกจากนี้ยังได้แอร์ Daikin ระบบอินเวอร์เตอร์ช่วยประหยัดไฟ และผ้าม่าน เรียกว่าสิ่งที่ไม่ให้มีแค่เพียงฟูกที่นอน วอลล์เปเปอร์ และเครื่องใช้ไฟฟ้า (ตู้เย็น ทีวี ไมโคเวฟ เครื่องซักผ้า) เท่านั้น วัสดุพื้นฐานโดยรวมของโครงการนี้อัพเกรดเทียบเท่ากับโครงการแอชตัน (Ashton) ในเครืออนันดาฯ ไม่ว่าจะเป็นพื้นไม้ Engineering wood, สุขภัณฑ์ในห้องน้ำของ KOHLER
    การตกแต่งมีให้เลือก 2 สไตล์ด้วยกัน ทั้งโทนสว่าง และโทนขรึมๆ เลือกได้ตามใจชอบ โดยรายการเฟอร์นิเจอร์ที่ทางโครงการให้มาก็จะมีประมาณนี้ค่ะ
    วันนี้เราจะพาไปชมห้องตัวอย่างด้วยกัน 2 Type ซึ่งทางโครงการจัดไว้ให้ดูอยู่ที่ชั้น 10 เป็นแบบ 1 Bedroom ทั้ง 2 Type ขนาด 29.50 ตร.ม. และขนาด 34.00 ตร.ม. ตามไปชมกันทีละห้องเลยค่ะ เริ่มจากห้องแรก
    1) ห้องแบบ 1 Bedroom พื้นที่ใช้สอยขนาด 34.00 ตร.ม.
    ห้องนี้มี 1 ห้องนอน 1 ห้องน้ำ จุดเด่นอย่างแรกของห้องนี้คือตัวระเบียง 2 ชั้น แบบ Semi Outdoor หรือพื้นที่กึ่งภายในกึ่งภายนอก จะเลือกเปิดหน้าต่างรับลม หรือจะปิดหน้าต่างและตากแอร์เย็นฉ่ำภายในห้องก็ทำได้ โดยพื้นที่ส่วนนี้สามารถวางชุดโต๊ะเก้าอี้ขนาดเล็กได้ นอกจากนี้หน้าต่างแบบ 2 ชั้นยังช่วยลดเรื่องเสียงรบกวนและช่วยกันฝุ่นจากภายนอกตัวอาคารได้อีกด้วย

    ประตูสำเร็จรูปปิดผิวด้วยเมลามีน มือจับก้านโยก พร้อมช่องมองตาแมว

     มีกริ่งสำหรับกดเรียกติดไว้ที่หน้าห้อง

    พี้นห้องยกสูงจากโถงทางเดินประมาณ 3 ซม. 

    เดินเข้ามาจะเจอกับพื้นที่ครัว จากภาพทางขวามือจะเป็น Private lift และทางซ้ายเป็นชุดเคาน์เตอร์ครัว

    หน้าตา Private lift ค่ะ วันไหนเบื่อๆ ก็สามารถกดลิฟต์และขึ้นไปนั่งเล่นที่ Sky Facility บนชั้น 30 ได้เลยสะดวกมาก

     ได้ชุดเคาน์เตอร์ครัว Built-in พร้อมช่องเก็บของทั้งข้างบนและข้างล่าง บานพับแบบ Solf close ทั้งหมด
    พื้นห้องครัวปูด้วยกระเบื้องแกรนิตโต้

    ด้านล่างติดตั้งถังขยะขนาดไม่ใหญ่มากมาให้ด้วย 1 ใบ มีลิ้นชักสำหรับเก็บช้อนส้อม และด้านซ้ายเป็นตู้เก็บของ 2 ชั้น
    วางตู้เย็นได้ขนาด 9.7 คิว ความกว้างประมาณ 70 ซม.

    วัสดุผิวปิดท็อปครัวเป็นฟอร์ไมก้า ได้ผนังติด backspace กันเปื้อน พร้อมติดตั้งปลั๊กไฟมาให้ด้วย 1 จุด
    เครื่องซักผ้าตั้งอยู่ใต้เคาน์เตอร์ครัว เหมาะสำหรับเครื่องซักผ้าแบบฝาหน้า

    ได้เตาไฟฟ้า 2 หัวและเครื่องดูดควันระบบปล่อยควันออกด้านนอก

    อ่างล้างจานหลุมเดียวพร้อมก๊อกน้ำหัวโค้งของ MEX

    อ่างล้างจานมีแผ่นสำหรับปิดมาให้เวลาที่ไม่ได้ใช้งาน ข้อดีคือช่วยเพิ่มพื้นที่ใช้สอยให้เกิดประโยชน์ในการใช้งานได้ดียิ่งขึ้น

     ระยะทำครัวจากเคาน์เตอร์ครัวถึงผนังอีกฝั่งห่างกันประมาณ 105 ซม.
    ก่อนเข้าห้องส่วนพักอาศัยจะต้องผ่านประตูอีกหนึ่งชั้น

    ทางโครงการติดตั้ง Digital Door lock ของ YALE แบบ 2 ระบบ ใช้ได้ทั้งระบบ Touch Screen และระบบคีย์การ์ด

    พื้นห้องปูด้วย Engineering wood มีความแข็งแรง หน้าไม้แท้ให้ผิวสัมผัสที่ดีกว่าลามิเนต
    มีความแข็งแรง ทนน้ำและทนความชื้นได้ดีกว่าลามิเนต

    Floor to Ceiling ห้องนั่งเล่นและห้องนอน สูง 2.6 เมตร ส่วนห้องครัวและห้องน้ำ Floor to Ceiling จะสูง 2.45 เมตร
    ผนังห้องมาตรฐานส่งมอบลูกค้าฉาบเรียบทาสีขาว

    จากห้องครัวเปิดประตูเข้ามาจะเป็นโซนห้องนั่งเล่น จากภาพทางขวาจะเป็นตู้เก็บรองเท้า หรือจะทำเป็นตู้เก็บของก็ได้
    ส่วนทางซ้ายได้จะเป็นพื้นที่สำหรับทานอาหาร ได้โต๊ะแบบเข้ามุมพร้อมเก้าอี้ 2 ตัว

    ได้ตู้เก็บของ Built-in สูงจรดฝ้าแบบบานเปิด หน้าบานปิดผิวด้วย HI-GLOSS ภายในแบ่งเป็นชั้นวางของ 7 ชั้น
    หรือจะทำเป็นตู้เก็บรองเท้าก็ได้ 

    ถัดมาเป็นพื้นที่นั่งเล่นวางโซฟาขนาด 2 ที่นั่ง ระยะดูทีวีประมาณ 160 ซม. วางทีวีได้ขนาดไม่ใหญ่มาก
    ได้แอร์ 2 ตัวที่ห้องนั่งเล่น และห้องนอน

    ห้องนี้จัดห้องนั่งเล่นติดกับระเบียง ได้ประตูกระจกบานเลื่อน 3 ตอน กระจกสีเขียวตัดแสง

    ข้อดีของประตูบานเลื่อนแบบ 3 ตอนคือสามารถเปิดได้กว้าง

    ระเบียงลดระดับลงประมาณ 3 ซม. พื้นปูด้วยกระเบื้องแกรนิตโต้สีอ่อน

    ระเบียง 2 ชั้นที่เป็นเอกลักษ์อีกอย่างของอนันดาฯ จะเปิดหน้าต่างเพื่อรับลมชมวิว
    หน้าต่างบานนอกเป็นแบบบานเลื่อนเปิดจากตรงกลางออกไปด้านข้าง

    หรือจะปิดหน้าต่างแล้วจัดเป็นพื้นที่อเนกประสงค์ก็ได้เช่นกัน

    พื้นที่เก็บคอมเพรสเซอร์แอร์อยู่ด้านข้างกั้นเป็นห้องมิดชิดเรียบร้อย แขวนคอมเพรสเซอร์แอร์ไว้ด้านบน
    ด้านล่างเหลือพื้นที่อีกนิดหน่อยใช้เป็นพื้นที่เก็บของใช้ที่ไม่จำเป็นได้ มีระแนงเหล็กบังสายตาจากภายนอก
    ราวระเบียงกันตกสูง 115 ซม.

    วิวฝั่งทิศตะวันตกจากห้องตัวอย่าง

    ห้องนอนกั้นด้วยประตูบานเลื่อนแบบทึบแสง ให้ความเป็นส่วนตัวค่อนข้างมาก อยู่ด้านหลังโซฟา

    สามารถเปิดเพื่อเชื่อมต่อกับพื้นที่นั่งเล่นได้ ทำให้พื้นที่ตรงจุดนี้ดูกว้างมากขึ้น
    ในห้องนอนวางเตียงขนาด 5 ฟุต ผนังหัวเตียงตกแต่งให้ตามนี้

    ระยะห่างระหว่างโซฟากลับปลายเตียงนอนเหลือระยะเดินประมาณ 50 ซม. เดินได้สบาย
    พื้นห้องนอนก็ปูด้วย Engineering wood เช่นกัน

    มีลิ้นชักเก็บของใต้เตียง

    หากเปิดประตูบานเลื่อนออก ก็สามารถนอนดูทีวีได้จากเตียงนอนได้เลย

    มุมนี้จะเสียพื้นที่ไปบางส่วนเพราะถูกใช้เป็นห้องเก็บคอมเพรสเซอร์แอร์
    สามารถติดทีวีทีผนังฝั่งนี้ได้ แต่ถ้าไม่ค่อยได้ดูทีวีตรงจุดนี้ไม่จำเป็นต้องติดทีวีก็ได้

    ในห้องนอนได้หน้าต่างบานกระทุ้งและบานติดตายสำหรับระบายอากาศ และเป็นช่องแสงธรรมชาติ
    เหลือพื้นที่อีกนิดหน่อย วางโซฟาตัวเล็กสำหรับนั่งเล่นหรือนั่งอ่านหนังสือตรงมุมนี้ได้

    อีกฝั่งของเตียงเป็นพื้นที่สำหรับวางตู้เสื้อผ้า โต๊ะเครื่องแป้ง และห้องน้ำ

    ได้ตู้เสื้อผ้าบานเลื่อน 2 ตอนโทนสีเทาสูงจรดฝ้า หน้าบานปิดผิวด้วย HI-GLOSS

    ฝั่งตรงข้ามได้โต๊ะเครื่องแป้งพร้อมเก้าอี้อีก 1 ตัว

    ประตูห้องน้ำสีขาวมือจับก้านโยก
    Floor to Ceiling ในห้องน้ำลดลงมาเหลือ 2.45 เมตร

    ได้อ่างล้างหน้าทรงสี่เหลี่ยมสีขาวของ KOHLER มีพื้นที่วางอุปกรณ์อาบน้ำด้านข้าง
    ก๊อกน้ำทรงโค้งของ GROHE

    ด้านล่างมีลิ้นชักสำหรับเก็บของได้

    ได้กระจกเงาบานใหญ่สูงจรดฝ้า

    โถสุขภัณฑ์ของ KOHLER สายฉีดชำระและกระดาษทิชชู่อยู่ฝั่งขวาของ American Standard
    ผนังห้องน้ำแต่งด้วยกระเบื้องลายหินอ่อนตามแบบนี้

    ฉากกั้นอาบน้ำกระจกเทมเปอร์แบบบานสวิง ผลักเข้าด้านใน มือจับสแตนเลส ซีลยางกันน้ำ

    ตรงจุดนี้ยกธรณีสูงขึ้นมาประมาณ 5 ซม. ป้องกันน้ำไหลออกมาด้านนอก ส่วนผนังด้านหลังติดตัวกันกระแทกมาให้ 

    ได้ฝักบัวก้านแข็ง มีฟังก์ชั่นปรับระดับน้ำได้ 5 แบบของ GROHE พร้อมก๊อกผสม น้ำร้อนน้ำเย็น

    ได้ 
    Rain Shower ทรงกลมของ GROHE

    ที่วางสบู่ก็เป็นของ GROHE เช่นกัน

    ในห้องน้ำได้พัดลมดูดอากาศของ Panasonic

    สวิตช์ และ ปลั๊กไฟ ของ Schneider
    2) ห้องแบบ 1 Bedroom พื้นที่ใช้สอยขนาด 29.50 ตร.ม.
    ฟังก์ชั่นการจัดวางคล้ายกับห้องที่แล้ว ได้พื้นที่ภายในห้องครัวจะเท่ากัน จะแตกต่างกันเฉพาะส่วนพักอาศัยภายใน และส่วนของระเบียง ห้องนี้ได้ระเบียงชั้นเดียวแบบปกติ ตกแต่งด้วยเฟอร์นิเจอร์สี Gold Pink โทนสว่างทำให้ห้องดูกว้างและโปร่งมากขึ้น

    ออกจากลิฟต์มาจะเจอกับห้องครัว ซึ่งเป็นครัวปิด ได้เคาน์เตอร์ Built-in เหมือนห้องที่แล้ว

    Private lift และประตูที่จะเข้าส่วนพักอาศัย

    ตู้เก็บของโทนสี Gold Pink ขนาดเล็กกว่าห้องที่แล้วนิดหน่อย แต่ยังคงสูงจรดฝ้าเหมือนเดิม

    ภายในตู้เก็บของแบ่งเป็นชั้นเก็บของ 7 ชั้น

    โต๊ะทานอาหารพร้อมเก้าอี้ 2 ตัวโทนสี Gold Pink

    ระยะดูทีวีก็จะเล็กลงมาหน่อยนึงอยู่ที่ประมาณ 150 ซม. แต่ก็ยังอยู่ในระยะที่ไม่ได้แคบจนเกินไป

    ได้โซฟา 2 ที่นั่งโทนสีสว่าง พร้อมโต๊ะกลาง

    ห้องนี้ได้ระเบียงชั้นเดียวแบบปกติ คอมเพรสเซอร์แอร์แขวนลอยขึ้นด้านบน

     ราวระเบียงสูง 115 ซม. เดินท่อน้ำดีน้ำทิ้งมาให้ แต่ต้องติดก๊อกน้ำเพิ่มเองนะคะ

    วิวจากห้องพักมองลงไปเห็นบรรยากาศสวนที่ชั้น 8

    กั้นห้องด้วยประตูทึบแสงแบบบานเลื่อน 3 ตอน

    เปิดออกเชื่อมต่อกันระหว่างห้องนอนกับห้องนั่งเล่น ไปหลือบและผนังที่หัวเตียงได้ตามแบบนี้

    เนื่องจากห้องนี้ไม่มีห้องเก็บคอมเพรสเซอร์แอร์ ทำให้ไม่สูญเสียพื้นที่ใช้งานเหมือนห้องที่แล้ว

    ปลายเตียงเหลือระยะเดินประมาณ 50 ซม.

    ได้หน้าต่างบานใหญ่เป็นบานกระทุ้ง 1 บาน ที่เหลือเป็นบานติดตาย เปิดรับแสงธรรมชาติได้มากขึ้น
    ทำให้ห้องดูโปร่งและสว่างมากขึ้น หาโต๊ะทำงานมาวางชิดผนังเพื่อนั่งทำงานตรงจุดนี้ได้

    ตำแหน่งตู้เสื้อผ้า และโต๊ะเครื่องแป้งอยู่หน้าห้องน้ำเหมือนเดิม

    ได้โถสุขภัณฑ์ และอ่างล้างหน้าของ KOHLER, ฝักบัว และ Rain Shower ของ GROHE
    พร้อมฉากกั้นอาบน้ำกระจกเทมเปอร์เหมือนห้องที่แล้ว
    ราคาและค่าใช้จ่ายที่เกี่ยวข้องโดยประมาณ (ณ 9 พ.ค. 61)
    • ห้อง 1 ห้องนอน ขนาด 34.00 ตร.ม. ราคาเริ่มต้น 5.79 ล้านบาท
    • ห้อง 2 ห้องนอน ขนาด 50.83 ราคาเริ่มต้น 10.8 ล้านบาท
    • ราคาเฉลี่ยประมาณ 180,000 บาท/ตร.ม. 
    ค่าใช้จ่ายอื่นๆ
    • ค่าส่วนกลาง : 65 บาท/ตร.ม./เดือน
    • เงินกองทุนแรกเข้า : 600 บาท/ตร.ม. 
    • ค่าธรรมเนียมการโอน 2%  (ผู้ซื้อและผู้ขายชำระคนละ 1%)
    โปรโมชั่น 
    • Homepro Gift Voucher มูลค่า 50,000 บาท
    • ฟรี Furniture package
    • ฟรี ทุกค่าธรรมเนียมการโอน
    • ฟรี ค่าบริการส่วนกลาง 1 ปี
    • ฟรี กองทุนแรกเข้า
    • ห้องโปรโมชั่นราคาพิเศษ (จำนวน 5 ยูนิต) รับส่วนลดเพิ่มอีก 100,000 บาท
    สถานะปัจจุบันของโครงการ (ณ 9 พ.ค. 61)
    ปัจจุบันโครงการ ไอดีโอ คิว สยาม-ราชเทวี สร้างแล้วเสร็จตั้งแต่ปลายปี 2560 มียอดขายประมาณ 80% ต้องบอกว่าสำหรับโครงการระดับ Luxury ที่ให้ Private Lift ในราคาเฉลี่ย 180,000 บาท/ตร.ม. ถือว่าเป็นราคาที่จับต้องได้ง่ายกว่าคอนโดโครงการอื่นที่มี Private Lift เหมือนกันที่ส่วนใหญ่จะมีราคาเฉลี่ยอยู่ที่ประมาณ 300,000 บาท/ตร.ม. ซึ่ง Growth rate ในย่านราชเทวี-สยาม ก็จัดว่าเป็นอีกหนึ่งทำเลที่คุ้มค่าและน่าลงทุนหากอยากซื้อไว้เก็งกำไรหรือปล่อยเช่า ค่า Yield อยู่ที่ประมาณ 6% ต่อปี ส่วนค่าเช่าก็อยู่ที่ประมาณ 25,000 - 50,000 บาท/เดือน ขึ้นอยู่กับขนาดของห้องพัก
    สอบถามข้อมูลเพิ่มเติมที่โทร. 02-316-2222 และ 02-252-6436 หรือ www.ananda.co.th

    รีวิว-พรีวิวล่าสุดอื่นๆ

    คอนโดติดรถไฟฟ้าล่าสุด

เว็บไซต์นี้มีการเก็บคุกกี้เพื่อเพิ่มความพึงพอใจในการใช้งานเว็บไซต์ และช่วยให้เราปรับปรุง และนำเสนอเนื้อหาตรงตามความสนใจของท่าน ท่านสามารถดู Privacy Notice และ ดู Cookies Policy ของเราได้ ที่นี่ ทั้งนี้ ท่านจะยินยอมให้เราเก็บคุกกี้ทั้งหมด หรือให้เก็บแค่บางส่วนโดยการคลิกเลือก ตั้งค่า

ท่านสามารถเลือกให้ความยินยอมการเก็บคุกกี้เป็นเรื่องๆ ได้ที่นี่

เมื่อคุณเข้าชมเว็บไซต์ หรือแอปพลิเคชั่น checkraka เราอาจจัดเก็บ หรือดึงข้อมูลจากเบราว์เซอร์ของคุณในรูปแบบของคุกกี้ และเทคโนโลยีอื่นที่คล้ายคลึง เช่น tag และ pixel (เรียกรวมกันว่า “คุกกี้”) ซึ่งมักเป็นข้อมูลที่ไม่สามารถระบุตัวตนได้โดยตรง แต่ช่วยให้คุณใช้งานเว็บไซต์ได้ปลอดภัย และตรงตามความต้องการมากขึ้น คุณอาจไม่ยินยอมให้เราเก็บคุกกี้บางประเภทได้ โดยการคลิกตามหัวข้อข้างล่างนี้

ประเภทคุกกี้
อ่านเพิ่มเติม ที่นี่
ยินยอม / ไม่ยินยอม
คุกกี้ที่จำเป็นต้องมีเสมอ
(Strictly Necessary)
คุกกี้สำหรับการใช้งานเว็บไซต์
(Functionality)
คุกกี้เพื่อเพิ่มประสิทธิภาพและวิเคราะห์
(Performance & Analytics)
คุกกี้เพื่อการตลาด
(Marketing)