ประเมินวงเงินรู้ผลใน 3 นาที
กับ กรุงศรี ออโต้ พร้อมสตาร์ท

เริ่มประเมินวงเงินพร้อมสตาร์ท
ผ่านมือถือ สแกนเลย

ดูวงเงินพร้อมสตาร์ทที่ได้รับ

  • คอนโด
  • คอนโด
  • ค้นหาแบบละเอียด
  • รีวิว-เยี่ยมชม ไอดีโอ โมบิ พระราม 4 (Ideo Mobi Rama 4)

    10 ม.ค. 61 24,234
     
    เยี่ยมชม-รีวิว โครงการ ไอดีโอ โมบิ พระราม 4 (Ideo Mobi Rama 4)
    0 เมตร ถึง MRT คลองเตย ใกล้ทางขึ้น-ลงทางด่วนพระราม 4  อยู่ใจกลางระหว่าง 2 CBD ของกรุงเทพฯ คือสาทรและอโศก จะมีใครเจาะทำเลดีๆ แบบนี้ได้อีกนอกจากผู้นำตลาดคอนโดมิเนียมติดรถไฟฟ้า "อนันดา ดีเวลลอปเม้นท์" ทำเลที่ว่านั่นก็คือที่ตั้งของคอนโด "ไอดีโอ โมบิ พระราม 4 (Ideo Mobi Rama 4)" พร้อมนำเทคโนโลยี Solar Fresh Air ระบบระบายอากาศพลังงานแสงอาทิตย์มาใช้กับทุกยูนิตในโครงการด้วย ในราคาเริ่มต้น 6.59 ล้านบาท เราไปชมรายละเอียดโครงการนี้กันเลยค่ะ
    ข้อมูลโครงการ
    • เจ้าของโครงการ: บริษัท อนันดา ดีเวลลอปเม้นท์ จํากัด (มหาชน)
    • ที่ตั้งโครงการ: ถนนพระรามที่ 4 แขวงคลองเตย เขตคลองเตย กรุงเทพมหานคร 10110
    • อาคารชุดพักอาศัย: High-rise 1 อาคาร จำนวน 486 ยูนิต
    • ขนาดที่ดินทั้งโครงการ: 2-3-81 ไร่
    • ลิฟต์โดยสาร: 3 ตัว และ ลิฟต์ขนส่ง 1 ตัว
    • ห้องชุดพักอาศัย: 6 แบบ ดังนี้
      • Studio ขนาด 25.50 - 27.00 ตร.ม.
      • 1 Bedroom ขนาด 34.50 - 48.00 ตร.ม.
      • 1 Bedroom Plus ขนาด 49.50 ตร.ม.
      • 2 Bedrooms ขนาด 60.60 - 66.50 ตร.ม.
      • 3 Bedrooms ขนาด 101.50 - 113.50 ตร.ม.
      • Penthouse 1 ยูนิต
    • ที่จอดรถ : 56% (รวมจอดซ้อนคัน)
    • ราคาเริ่มต้น : 6.59 ล้านบาท
    • ราคาเฉลี่ย : 235,000 บาท/ตร.ม. (ข้อมูล ธ.ค.60)
    • วันที่เข้าเยี่ยมชม-รีวิวคอนโด : 12 ธ.ค. 60
    ทำเลที่ตั้งและสภาพแวดล้อมรอบๆ โครงการ
    Ideo Mobi Rama 4 ตั้งอยู่ที่ริมถนนพระราม 4 เขตคลองเตย, กรุงเทพมหานคร ติดรถไฟฟ้า MRT สถานีคลองเตย ทางออกที่ 1 และยังใกล้กับทางขึ้นทางด่วนพิเศษเฉลิมมหานคร เพียงแค่ 50 เมตรเท่านั้น การเดินทางเชื่อมต่อกับย่านธุรกิจสำคัญก็เป็นเรื่องง่ายไม่ว่าจะเป็นย่านสาทรหรือย่านอโศก อยู่ใกล้สวนสาธารณะขนาดใหญ่ใจกลางกรุงเทพฯ ไม่ว่าจะเป็นสวนของโรงงานยาสูบ สวนเบญจกิตติ และสวนลุมพินี นอกจากนั้นโครงการมิกซ์ยูส (Mixed-use) ขนาดใหญ่อย่าง "ONE BANGKOK" และ "โครงการร่วมทุนระหว่าง Central และ Dusit Thani" ก็กำลังจะเปิดตัวในอนาคตอันใกล้นี้

    แผนที่ตั้งโครงการและสถานที่ใกล้เคียง (Google Map)
    • การเดินทางโดยรถยนต์
    เส้นทางที่ 1 - มาจากทางพิเศษเฉลิมมหานคร ออกทางออกที่ 6 (พระราม 4 คลองเตย-ลุมพินี) เลี้ยวซ้ายเข้าถนนพระราม 4 จากนั้นตรงไปเพื่อกลับรถมายังโครงการ
    เส้นทางที่ 2 - มาจากถนนสุขุมวิทสามารถเข้าซอยสุขุมวิท 22 มาทะลุออกที่ถนนพระราม 4 และตรงมายังตัวโครงการได้ ซึ่งนอกจากซอย 22 แล้ว ก็ยังสามารถใช้ซอยอื่นเพื่อเป็นเส้นทางลัดมาที่โครงการได้อีก ไม่ว่าจะเป็นซอยสุขุมวิท 24 ซอยสุขุมวิท 26 เป็นต้น
    • การเดินทางโดยรถไฟฟ้า
    "MRT สถานีคลองเตย" คือสถานีที่อยู่ติดกันกับโครงการค่ะ ออกทางออกที่ 1 เดินไปอีกไม่กี่ก้าวก็เข้าโครงการได้เลย 2 สถานีถึง CBD อโศก และ 2 สถานีถึง CBD สาทร เชื่อมต่อไปยัง BTS ได้และเพียง 1 สถานีถึงศูนย์แห่งชาติสิริกิติ์และสวนเบญจกิติ ถือว่าเป็นการเดินทางที่สะดวกที่สุดค่ะ

    MRT คลองเตย ทางออกที่ 1

    ที่ตั้งโครงการ ไอดีโอ โมบิ พระราม 4
    • สภาพแวดล้อมรอบๆ โครงการ
    ย่านพระราม 4 - คลองเตย เป็นย่านที่มีส่วนผสมของทั้งย่านธุรกิจและที่พักอาศัย ทำให้มีทั้งอาคารสำนักงานและร้านค้าร้านอาหารคึกคักพอสมควร ที่ใกล้ๆ กับโครงการมากที่สุดก็จะเป็นร้านสะดวกซื้อข้างใน MRT สถานีคลองเตย ออกมาที่ถนนพระราม 4 ก็จะมีธนาคาร ร้านอาหาร ร้านสะดวกซื้ออีกมากมาย และโครงการยังอยู่ไม่ไกลจากตลาดสดคลองเตย ตลาดสดที่ใหญ่และมีชื่อเสียงของกรุงเทพฯ ด้วย

    ภายในสถานี MRT คลองเตย จะมีร้านสะดวกซื้อ Lawson 108 และ Metro Mall

    ถัดจากโครงการจะเป็นการไฟฟ้านครหลวง

    ด้านหน้าการไฟฟ้าฯ มีวินมอเตอร์ไซค์คอยให้บริการอยู่ค่ะ

    เดินถัดมาอีกจะเริ่มเป็นแนวอาคารพาณิชย์ ด้านล่างเปิดเป็นร้าน 7-ELEVEN ร้านค้า และร้านอาหาร
    (ห่างจากโครงการประมาณ 250 เมตร)

    ร้านก๋วยเตี๋ยวเป็ดเต้นระบำ ร้านอร่อยในย่านคลองเตย (ห่างจากโครงการประมาณ 290 เมตร)

    ถัดมาเป็นร้านก๋วยเตี๋ยวเนื้อตุ๋น-หมูตุ๋น เฮ้งชุนเส็ง ร้านเก่าแก่เจ้าอร่อยอีกหนึ่งร้านในย่านคลองเตย
    (ห่างจากโครงการประมาณ 300 เมตร)

    ธนาคารกสิกรไทย (ห่างจากโครงการประมาณ 330 เมตร)

    ค่าเฟ่บรรยากาศชิลๆ ชื่อว่า House of Coffee ค่ะ (ห่างจากโครงการประมาณ 350 เมตร)

    ฝั่งตรงข้ามกับคาเฟ่เป็นที่จอดรถ รฟม. สถานีศูนย์สิริกิติ์ ในอนาคตอาจพัฒนาเป็นส่วนต่อขยาย
    ของศูนย์ประชุมแห่งชาติสิริกิติ์

    ตึก FYI

    ตลาดสดคลองเตย (ห่างจากโครงการประมาณ 500 เมตร)
    รูปแบบตึก และตัวโครงการโดยรวม
    ไอดีโอ โมบิ พระราม 4 (Ideo Mobi Rama 4) เป็นอาคาร High-rise สูง 36 ชั้น จำนวน 1 อาคาร มีจำนวนยูนิตทั้งหมด 486 ยูนิต มีที่จอดรถ 269 คัน หรือประมาณ 56% โดยชั้นจอดรถจะเริ่มที่ชั้น 1-4 และชั้นพักอาศัยจะเริ่มที่ชั้น 4 ตัวอาคารออกแบบเป็น Y Shape เพื่อให้รับกับวิวทุกทิศทางค่ะ

    ทางเข้าออกโครงการด้านทิศเหนือติดกับถนนพระราม 4

    ทางเข้า-ออกโครงการ ติดถนนพระราม 4 

    ตัวอาคารด้านทิศตะวันออก

    ตัวอาคารด้านทิศใต้

    ตัวอาคารด้านทิศตะวันตก

    Ground Floor
    ทิศเหนือ : ติดถนนพระราม 4 
    ทิศตะวันออก : ติดกับการไฟฟ้านครหลวง 
    ทิศตะวันตก : บ้านพักอาศัย 2-4 ชั้น
    ทิศใต้ : บ้านพักอาศัย 2-4 ชั้น

    2nd Floor

    3rd Floor

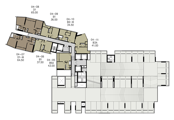
    4th Floor

    5th Floor

    6th Floor

    7th Floor

    8th Floor

    9th-21st Floor

    22nd-28th 
    Floor

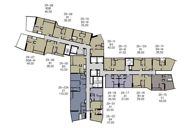
    29th 
    Floor

    30th 
    Floor

    31st 
    Floor

    32nd 
    Floor

    33nd 
    Floor

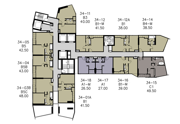
    34th-35th 
    Floor

    36th 
    Floor

    Roof 
    Floor
    ส่วนกลางและสิ่งอำนวยความสะดวก
    สิ่งอำนวยความสะดวกของโครงการจะอยู่ที่ชั้น G ที่จะเป็นพื้นที่สีเขียวขนาดใหญ่ และที่ชั้น 7 สระว่ายน้ำ Free Form สวยและยาวมากๆ ค่ะ เดี๋ยวเราไปดูกันว่าส่วนกลางทั้งหมดมีอะไรบ้าง
    ชั้น G
    • The Paradise Valley
    • Lush Green Lobby
    • The Mountainside
    • Car Park
    • Mail Area
    • Property Management Office
    ชั้น 2
    • Car Park
    • The Mountainside
    • Property Management Office
    ชั้น 3-6
    • Car Park
    • The Mountainside
    ชั้น 7
    • Park
    • The Mountainside
    • The Hide away Lagoon Pool
    • Fit by the Lagoon
    • Male WC + Locker
    • Female WC + Locker
    ชั้น 31-32
    • Garden
    ชั้น 36
    • Celestial Lounge
    ชั้นดาดฟ้า
    • Roof Garden

    ด้านหน้าโครงการทางขวามือจะเห็น The Mountainside ที่จำลองให้เหมือนกับภูเขาขึ้นไปบนชั้น 7 ได้
    นอกจากนั้นยังมี Lush Green Lobby, The Paradise Valley เพิ่มพื้นที่สีเขียวให้กับโครงการ

    The Hide away Lagoon Pool ที่ชั้น 7 เชื่อมมาจาก The Mountainside

    สวนที่ชั้นดาดฟ้า

    The Hide away Lagoon Pool 

    Fit by the Lagoon

    Lobby

    Celestial Lounge
    ภาพห้องตัวอย่างและ Lay out
    ห้องพักอาศัยของโครงการเน้นความหรูหรา สะดวกสบาย เหมาะกับการพักผ่อน ห้องนอนมีกระจกเข้ามุม Panoramic 270 องศา ห้องน้ำตกแต่งหรูหรา พร้อมอ่างอาบน้ำ และโถสุขภัณฑ์แบบอัตโนมัติ ความสูงของเพดานอยู่ที่ 2.7 เมตร และตรงพื้นที่ครัวอยู่ที่ 2.4 เมตร แอร์ให้ครบทุกห้อง ติดตั้งระบบ Solar Fresh Air ทุกยูนิต พร้อมเฟอร์นิเจอร์แบบ Fully Furnished แต่แบบของเฟอร์นิเจอร์ที่โชว์ในห้องตัวอย่างยังไม่แน่นอนค่ะ คงต้องรอตอนเฟิร์มกันอีกรอบ โดยห้องทั้งหมดมี 6 แบบด้วยกัน แต่วันนี้เราจะมารีวิวให้ชมกัน 2 แบบ คือ 1 Bedroom Plus ขนาด 49.50 ตร.ม. และ 2 Bedrooms ขนาด 66.50 ตร.ม. ค่ะ 
    • 1 Bedroom Plus ขนาด 49.50 ตร.ม.

    1 Bedroom Plus ขนาด 49.5 ตร.ม.
    จอแสดงผลที่เห็นอยู่นี้เรียกว่า Dashboard ค่ะ จริงๆ แล้วจอนี้จะอยู่ในห้องโดยจะโชว์การทำงานของ Solar Fresh Air เป็นระบบระบายอากาศให้หมุนเวียนภายในห้อง ทำให้ไม่อับชื้น โดยในตอนกลางวันจะทำงานผ่านพลังงานแสงอาทิตย์ หรือถ้าอยากให้ทำงานโดยใช้ไฟฟ้าก็สามารถปรับเป็นโหมด Grid ได้ โดยพลังงานที่ใช้เท่ากับการเปิดไฟไว้แค่ 1 ดวง

    เข้ามาดูในห้องกันเลยค่ะ

    เข้ามาซ้ายมือจะเจอไอส์แลนด์ตัวใหญ่ มีอ่างล้างจานและมีพื้นที่สำหรับรับประทานอาหารหรือจัดเตรียมอาหารค่ะ

    อ่างล้างจาน

    พื้นที่ตรงส่วนครัวค่อนข้างจะโล่งและกว้างค่ะ

    พื้นที่ครัวเปิด

    เคาน์เตอร์ครัว Top เป็นหินสังเคราะห์ ส่วนเตาไฟฟ้าและเครื่องดูดควันเป็นของ Franke 

    เคาน์เตอร์ครัวจะบิวท์อินให้แบบนี้เลยค่ะ ส่วนเครื่องใช้ไฟฟ้าอื่นๆ สำหรับเพื่อการตกแต่งเท่านั้น

    ถัดมาจะเป็นโซนนั่งเล่น/รับแขก ที่ Layout จะเป็นล็อคเข้าไปเหมือนกับเป็นอีกห้องหนึ่งเลยค่ะ

    เฟอร์นิเจอร์ที่ได้ก็จะมีโซฟา โต๊ะกลาง ชั้นวางทีวี พร้อมแอร์ 1 ตัว

    ด้านข้างเปิดประตูบานสไลด์ กระจกลามิเนตบานใหญ่ออกไประเบียงได้

    ริมสุดจะเป็นที่ตั้งคอมเพรสเซอร์แอร์ พร้อม Grill บังเพื่อความสวยงาม

    ที่ระเบียงจะเป็นพื้นกระเบื้อง ราวกันตกเป็นเหล็กทาสีสูง 1.10 เมตร

    มองจากทางระเบียงเข้ามาในห้อง

    ติดกับกับพื้นที่นั่งเล่นจะเป็นห้องอเนกประสงค์ค่ะ 

    ห้องนี้จะตกแต่งไว้เป็นห้องทำงาน แต่ห้องที่ได้จริงจะเป็นห้องเปล่าที่ได้ Sofa Bed พร้อมแอร์ 1 เครื่อง
     สำหรับเป็นห้องนอนอีกห้อง เผื่อมีแขกหรือเพื่อนๆ มาเยี่ยมค่ะ

    ห้องมีขนาดไม่ได้กว้างมาก แต่ก็เพียงพอสำหรับการเป็นห้องนอนได้

    ไปดู Master Bedroom กันต่อค่ะ

    เข้ามาซ้ายมือจะเป็นตู้เสื้อผ้า ถัดไปเป็นประตูทางเข้า-ออกห้องน้ำ

    เฟอร์นิเจอร์ที่จะได้มีโต๊ะข้างเตียง เตียงนอน ชั้นวางทีวี ตู้เสื้อผ้า 2 ตู้ และแอร์ 1 เครื่อง

    ตู้เสื้อผ้าทั้ง 2 ค่ะ

    ชั้นวางทีวี

    ห้องไซส์นี้จะเป็น
    ห้องนอนห้องมุม ได้วิวโค้งบางกระเจ้า ชมวิวผ่านกระจกเข้ามุม 270 องศา

    ห้องน้ำของห้องนี้จะใหญ่เป็นพิเศษ พร้อมกระจกบานใหญ่ ทางเข้า-ออกจะเป็น 2 ทาง คือจากทาง
    Master Bedroom และจากทางครัว

    ภายในห้องน้ำตกแต่งด้วยกระเบื้องลายหินอ่อนดูสะอาดตา

    โถสุขภัณฑ์เป็นแบบอัตโนมัติ

    อ่างเป็น Free standing bathtub มีเฉพาะห้องนี้ที่เป็นอ่างแบบนี้ค่ะ

    นอกจากนั้นยังมี Shower Box ด้านในมีชั้นวางอุปกรณ์ เครื่องใช้ต่างๆ ฝักบัว และ Rain Shower ด้วย
    • 2 Bedrooms ขนาด 66.50 ตร.ม.

    2 ห้องนอน ขนาด 66.50 ตร.ม.

    เข้ามาในห้องซ้ายมือจะเป็นครัวและ Master Bedroom ส่วนทางขวามือจะเป็นห้องน้ำและห้องนอนห้องที่ 2 ค่ะ

    พื้นของครัวและห้องน้ำจะเป็นกระเบื้องลายหินอ่อน ส่วนห้องอื่นๆ จะเป็นพื้นลามิเนตหนา 12 มม.

    เคาน์เตอร์ครัวจะได้แบบนี้เลยค่ะ Top เป็นหินสังเคราะห์ เครื่องใช้ไฟฟ้าที่เห็นเพื่อการตกแต่งนะคะ 

    ชั้นเก็บของด้านบนเก็บของได้เยอะมากๆ 

    อ่างล้างจาน

    เตาไฟฟ้า 4 หัว และเครื่องดูดควันที่ได้เป็นของ Franke 

    ส่วนพื้นที่โล่งๆ ตรงกลางห้องจะเป็นพื้นที่สำหรับตั้งโต๊ะรับประทานอาหารและพื้นที่นั่งเล่นค่ะ

    ได้โต๊ะรับประทานอาหารด้วยค่ะ แต่แบบที่ได้ยังไม่แน่นอน 

    ติดกันก็จะเป็นพื้นที่นั่งเล่น

    เฟอร์นิเจอร์ที่ได้มีโซฟาและโต๊ะกลาง

    เปิดประตูบานสไลด์ออกไปก็จะเป็นระเบียงยาวเลยค่ะ ราวกันตกสูง 1.10 เมตร

    คอมเพรสเซอร์แอร์ถูกเก็บไว้ในตู้ริมสุดด้านนู้นค่ะ

    ไปดูห้องนอนห้องที่ 2 กันต่อเลยค่ะ 

    ห้องนี้ก็ได้เตียงขนาด 5 ฟุต โต๊ะข้างเตียง และตู้เสื้อผ้า 

    พื้นที่ริมหน้าต่างตรงนี้สามารถจัดเป็นมุมนั่งเล่น หรือมุมทำงานก็ได้

    ตู้เสื้อผ้าฝั่งนี้สำหรับแขวน และเป็นชั้นด้านบน

    อีกฝั่งจะเป็นลิ้นชัก ราวแขวน และชั้นด้านบน

    ห้องน้ำจะเข้าได้ 2 ทางค่ะ คือจากทางด้านนอกและในห้องนอน

    ห้องน้ำจะได้แบบนี้เลย 

    สุขภัณฑ์ในห้องน้ำเป็นของ Toto

    ด้านในสุดเป็น Shower Box พร้อมฝักบัวและ Rain Shower

    ตรงข้ามกันจะเป็น Master Bedroom ค่ะ

    ห้องแบบ 2 ห้องนอน จะได้กระจกเข้ามุม 270 องศา แบบนี้ทุกห้องเลยค่ะ

    กระจกเป็นกระจกแบบลามิเนต เฟอร์นิเจอร์ที่ได้ก็จะมีเตียง 5 ฟุต ตู้เสื้อผ้า ชั้นวางทีวี และโต๊ะข้างเตียง

    พื้นที่ปลายเตียง

    ห้องน้ำของ Master Bedroom จะมี Shower Box อ่างอาบน้ำ โถสุขภัณฑ์แบบอัตโนมัติ อ่างล้างหน้า

    แช่น้ำไปชมวิวไปผ่านกระจกสูงจรดฝ้า

    Shower Box พร้อมฝักบัวและ Rain Shower
    ราคาและค่าใช้จ่ายที่เกี่ยวข้องโดยประมาณ (12 ธ.ค. 60)
    • ค่าส่วนกลาง 65 บาท/ตร.ม./เดือน 
    • เงินกองทุนแรกเข้า 600 บาท/ตร.ม.
    • ราคาเริ่มต้น 6.59 ล้านบาท* เฉลี่ยประมาณ 235,000 บาท/ตร.ม.
       
    โปรโมชั่นพิเศษ 
    • Studio รับส่วนลด 50,000 บาท
    • 1 Bedroom รับส่วนลด 150,000 บาท
    • 1 Bedroom Plus รับส่วนลด 250,000 บาท
    • 2 Bedrooms รับส่วนลด 350,000 บาท
       
    สถานะปัจจุบันของโครงการ (12 ธ.ค. 60)
    ปัจจุบันโครงการ ไอดีโอ โมบิ พระราม 4 (Ideo Mobi Rama 4) ได้เปิดพรีเซลไปเป็นที่เรียบร้อย คาดว่าจะก่อสร้างแล้วเสร็จในเดือนมิถุนายน 2563
    สอบถามรายละเอียดเพิ่มเติมได้ที่ โทร. 02 316 2222 หรือ www.ananda.co.th
    ดูรายละเอียดโครงการ ไอดีโอ โมบิ พระราม 4 (Ideo Mobi Rama 4)
    • ปรียานุช สองศร
    • ปรียานุช สองศร
      PROPERTY GURU Thailand

    รีวิว-พรีวิวล่าสุดอื่นๆ

    คอนโดติดรถไฟฟ้าล่าสุด

เว็บไซต์นี้มีการเก็บคุกกี้เพื่อเพิ่มความพึงพอใจในการใช้งานเว็บไซต์ และช่วยให้เราปรับปรุง และนำเสนอเนื้อหาตรงตามความสนใจของท่าน ท่านสามารถดู Privacy Notice และ ดู Cookies Policy ของเราได้ ที่นี่ ทั้งนี้ ท่านจะยินยอมให้เราเก็บคุกกี้ทั้งหมด หรือให้เก็บแค่บางส่วนโดยการคลิกเลือก ตั้งค่า

ท่านสามารถเลือกให้ความยินยอมการเก็บคุกกี้เป็นเรื่องๆ ได้ที่นี่

เมื่อคุณเข้าชมเว็บไซต์ หรือแอปพลิเคชั่น checkraka เราอาจจัดเก็บ หรือดึงข้อมูลจากเบราว์เซอร์ของคุณในรูปแบบของคุกกี้ และเทคโนโลยีอื่นที่คล้ายคลึง เช่น tag และ pixel (เรียกรวมกันว่า “คุกกี้”) ซึ่งมักเป็นข้อมูลที่ไม่สามารถระบุตัวตนได้โดยตรง แต่ช่วยให้คุณใช้งานเว็บไซต์ได้ปลอดภัย และตรงตามความต้องการมากขึ้น คุณอาจไม่ยินยอมให้เราเก็บคุกกี้บางประเภทได้ โดยการคลิกตามหัวข้อข้างล่างนี้

ประเภทคุกกี้
อ่านเพิ่มเติม ที่นี่
ยินยอม / ไม่ยินยอม
คุกกี้ที่จำเป็นต้องมีเสมอ
(Strictly Necessary)
คุกกี้สำหรับการใช้งานเว็บไซต์
(Functionality)
คุกกี้เพื่อเพิ่มประสิทธิภาพและวิเคราะห์
(Performance & Analytics)
คุกกี้เพื่อการตลาด
(Marketing)