ประเมินวงเงินรู้ผลใน 3 นาที
กับ กรุงศรี ออโต้ พร้อมสตาร์ท

เริ่มประเมินวงเงินพร้อมสตาร์ท
ผ่านมือถือ สแกนเลย

ดูวงเงินพร้อมสตาร์ทที่ได้รับ

  • คอนโด
  • คอนโด
  • ค้นหาแบบละเอียด
  • รีวิว-เยี่ยมชม โนเบิล อราวน์ สุขุมวิท 33 (Noble Around Sukhumvit 33)

    20 ต.ค. 60 9,958
    รีวิว-เยี่ยมชม โครงการ โนเบิล อราวน์ สุขุมวิท 33 (Noble Around Sukhumvit 33)
    คนนิจิวะ วันนี้ CheckRaka.com อยากไปเดินชิลๆ ที่พร้อมพงษ์ ทำเลที่มีกลิ่นอายความญี่ปุ่นหน่อยๆ ที่นั่นมีคอนโดมิเนียมโครงการหนึ่งน่าสนใจมาก ตั้งอยู่ที่ซอยสุขุมวิท 33 ชื่อว่า โนเบิล อราวน์ สุขุมวิท 33 ค่ะ ที่นี่ชูคอนเซปต์ "Contrast Is The New Exquisiteness" โครงการนี้มาพร้อมกับสิ่งอำนวยความสะดวกแบบจัดเต็ม เน้นต้นไม้ ร่มรื่น เหมือนใช้ชีวิตอยู่บนเนินเขา เอาล่ะ ไม่อยากพูดอะไรมาก ไปดูด้วยตาคุณเองดีกว่าค่ะ
    ข้อมูลโครงการ
    • เจ้าของและผู้พัฒนาโครงการ : บริษัท โนเบิล ดีเวลลอปเมนท์ จำกัด (มหาชน)
    • ที่ตั้งโครงการ : ซอยสุขุมวิท 33 ถนนสุขุมวิท แขวงคลองตันเหนือ เขตวัฒนา กรุงเทพมหานคร 10110
    • อาคารชุดพักอาศัยสูง : 25 ชั้น 1 อาคาร ห้องชุดพักอาศัย จำนวน 268 ยูนิต พร้อมชั้นใต้ดิน 3 ชั้น
    • ขนาดที่ดินทั้งโครงการ : 1-2-95.8 ไร่
    • สีอาคาร : ใช้สีลักษณะ Two Tone - สีน้ำตาลเข้ม / เทา ตัดด้วยเส้นอะลูมิเนียมสีน้ำตาลอ่อน
    • ลิฟต์ : Passenger Lift ระบบความเร็วสูง 2 ตัว, Service Life 1 ตัว
    • ห้องแต่งครบ Fully Fitted แบบ 1 ห้องนอน ขนาดประมาณ 27-51 ตร.ม. และ แบบ 2 ห้องนอน ขนาดประมาณ 54-65 ตร.ม.
    • ที่จอดรถ : ที่จอดรถชั้นใต้ดิน 3 ชั้น (B1-B3) และที่จอดรถบนอาคาร 2 ชั้น (P2-P3) คิดเป็น 53% ของจำนวนห้องพักทั้งหมด ไม่ Fix ที่จอดรถ (รวมที่ชาร์จรถระบบไฟฟ้า 2 คัน)
    • ราคาเริ่มต้น : 5.5 ล้านบาท (ข้อมูล ณ วันเปิดตัว)
    • คาดว่าจะแล้วเสร็จประมาณ ตุลาคม พ.ศ. 2563
    • วันที่เข้าเยี่ยมชม-รีวิวคอนโด 4 กรกฎาคม 2560
    เจ้าของและผู้พัฒนาโครงการ
    บริษัท โนเบิล ดีเวลลอปเมนท์ จำกัด (มหาชน) ก่อตั้งในปี 2534 ด้วยกลุ่มนักธุรกิจไทย ที่มีวิสัยทัศน์กว้างไกล ธุรกิจของโนเบิล คือการพัฒนาอสังหาริมทรัพย์ในประเทศไทย โดยเน้นที่การพัฒนาที่อยู่อาศัย โครงการทุกโครงการของโนเบิล คือภาพสะท้อนของแนวคิด และปฏิญญาที่บุคลากรของโนเบิลทุกคนยึดถือ ความแปลกใหม่ ที่สามารถตอบสนองความต้องการ และรูปแบบการใช้ชีวิต ของโลกยุคปัจจุบัน คือส่วนหนึ่งของการออกแบบ ที่อยู่อาศัยของโนเบิล ความคิดริเริ่มที่มีเอกลักษณ์ ปรากฏอยู่ในบ้านทุกๆ หลัง ความพอใจที่เกินความคาดหมายของลูกค้า
    ทำเลที่ตั้ง

    แผนที่ตั้งโครงการ โนเบิล อราวน์ สุขุมวิท 33 (Noble Around Sukhumvit 33)
    (คลิกเพื่อดูภาพขนาดใหญ่)

    แหล่งรวมไลฟ์สไตล์ ห้างสรรพสินค้า และอาคารสำนักงานต่างๆ มากมาย

    โครงการนี้ตั้งอยู่ใกล้ BTS พร้อมพงษ์มากที่สุด ประมาณ 500 เมตร

    มุมมองรางรถไฟฟ้าจากสวนเบญจสิริ แม้ว่าจะมีตึกสูงระฟ้า แต่เราก็ต้องมีธรรมชาติหยุดเวลา
    หยุดความเร่งรีบของเมืองใหญ่เอาไว้ สักพักก็ยังดี

    สวนเบญจสิริ ห่างจากโครงการประมาณ 500 เมตร

    สวนเบญจสิริ ห่างจากโครงการประมาณ 450 เมตร
    การเดินทาง
    การเดินทางเข้าออกโครงการสามารถเดินทางได้หลายเส้นทางด้วยกันนะคะ
    1. การเดินทางด้วยรถยนต์
    เส้นทางที่ 1 เส้นทางจากถนนเพชรบุรี เลี้ยวขวาเข้าซอยเพชรบุรี38/1 ตรงเข้าซอยมา เจอสามแยกให้เลี้ยวซ้าย มุ่งหน้าต่อแล้วเลี้ยวขวาตามเส้นทาง สังเกตร้าน Rakuten ด้วยนะคะ ถึงแล้วเลี้ยวซ้ายเข้าซอยสุขุมวิท 33 ตรงมาอีกประมาณ 100 เมตร ก็ถึงโครงการแล้วค่ะ
    เส้นทางที่ 2 เข้าซอยสุขุมวิท 55 หรือซอยทองหล่อกันบ้างค่ะ มุ่งหน้าตรงไปผ่าน รพ.สมิติเวช ตรงไปเจอสี่แยกแล้วเลี้ยวซ้ายนะคะ ตรงไปอีกเจอสามแยกให้เลี้ยวขวา และเลี้ยวซ้ายไปตามเส้นทางบังคับ สังเกตร้าน Rakuten ด้านซ้ายมือ แล้วเลี้ยวซ้ายเข้าซอยสุขุมวิท 33 ตรงไปอีกประมาณ 100 เมตร ก็ถึงโครงการแล้วค่ะ
    เส้นทางที่ 3 เส้นทางจากถนนสุขุมวิท มุ่งหน้าตามถนนสุขุมวิท เลี้ยวซ้ายเข้าสุขุมวิท 33 เข้าซอยประมาณ 350 เมตรก็ถึงโครงการแล้วล่ะค่ะ
    2. การเดินทางด้วยรถไฟฟ้า

    เมื่อลงจากรถไฟฟ้าสถานีพร้อมพงษ์แล้ว ถ้าเลือกออกทางออกที่ 2 เข้า Emporium ได้เลย

    ถ้าจะเข้าโครงการ ใช้ทางออกที่ 5 ได้เลยนะคะ ส่วนทางออกที่ 6 ลงไปจะเป็นสวนเบญจสิริค่ะ

    สถานีพร้อมพงษ์ ทางออกที่ 5 จุดนี้ห่างจากโครงการประมาณ 500 เมตรค่ะ
    สภาพแวดล้อมใกล้เคียง
    "พร้อมพงษ์" ทำเลนี้ฮอตฮิตมาตลอด โดยเฉพาะชาวต่างชาติ จนมี Little Japan เลยเห็นได้ชัดว่า ชาวญี่ปุ่นอยู่ย่านนี้ค่อนข้างเยอะ แน่นอนว่าผลพวงคือ อัตราการเช่าคอนโดมิเนียมย่านนี้สูงทีเดียว ด้วยความที่พร้อมพงษ์มีพร้อมทั้งรถไฟฟ้า ห้างสรรพสินค้า ร้านอาหารก็หลากหลายทั้งไทย ญี่ปุ่น มีโรงพยาบาล แถมยังใกล้มหาวิทยาลัยด้วย แว่วๆ ว่าจะมีห้าง Emsphere มาปักหมุดลงแทนที่ Dinosaur Planet แต่ก็ยังคงสงสัยกันอยู่ว่าในเมื่อย่านนี้ก็มี Emporium หรือ Emquartier อยู่แล้ว จะมีอีกห้างไปเพื่ออะไร ความคิดเห็นหนึ่งในพันทิปตอบคำถามนี้ได้เห็นภาพมากว่า ถ้า Emporium คือแชมเปญ Emquartier ก็เหมือนไวน์ ส่วน Emsphere ก็คือ กาแฟ จะมาเติมเต็มย่านนี้ให้ครบรสมากยิ่งขึ้น ส่วนจะมาเมื่อไหร่นั้นเดี๋ยวมาอัพเดตกันอีกทีนะคะ เอาเป็นว่าตอนนี้ไปชมบรรยากาศใน "ซอยสุขุมวิท 33" กันดีกว่าค่ะ

    สำนักงานขายของ โนเบิล บี33 ไม่นานจะกลายเป็น สำนักงานขายโครงการโนเบิล อราวน์ สุขุมวิท 33 แล้วค่ะ
    ต้นไม้ใหญ่ต้นนี้ให้ร่มเงา ร่มรื่นมากเลย

    กลับมาที่โครงการกันค่ะ แล้วเดี๋ยวเราจะลองเดินไป BTS พร้อมพงษ์กันบ้าง

    แวะทานราเมนที่ร้านอาหารญี่ปุ่นใกล้ๆ โครงการก่อนนะคะ

    เส้นหนานุ่ม ให้เยอะมากเลย โดนไป 140 บาท ก็ถือว่าคุ้มนะคะ รสชาติดีทีเดียวค่ะ

    นี่มันตอนเที่ยงอ่ะเนอะ ชนน้ำผลไม้ไปก่อนละกัน

    ญี่ปุ่นไปอี๊กกก จานนี้ 59 บาทเอง

    บรรยากาศในร้านค่ะ

    มุ่งหน้าต่อ ไป BTS พร้อมพงษ์

    ปากซอยสุขุมวิท 33 มีพี่วินคอยให้บริการค่ะ

    ค่าบริการตามนี้เลย

    เลี้ยวซ้ายกันค่ะ

    แวะซื้อน้ำปั่นแป๊บ ร้านนี้ทำผลไม้ปั่นอร่อยมากเลย ใครผ่านมาทางนี้แวะชิมดูได้นะคะ

    สถานี BTS พร้อมพงษ์

    The EmQuartier

    ข้ามไปดูฝั่งสวนเบญจสิริกันบ้าง

    ด้านหน้าสวนเบญจสิริ

    มองมุมนี้เหมือนตึกล่องหนเลยว่าไหม

    ด้านในสวนเบญจสิริมีสนามเด็กเล่นอยู่ 2 สนามเลยนะคะ กว้างขวางมาก

    เห็นต้นไม้สีเขียวเยอะๆ แล้วสดชื่นขึ้นมากเลยค่ะ
    รูปแบบตึก และตัวโครงการโดยรวม
    โครงการโนเบิล อราวน์ สุขุมวิท 33 เป็นอาคารชุดพักอาศัย สูง 25 ชั้น พร้อมชั้นใต้ดิน 3 ชั้น สีอาคารใช้สีลักษณะ Two Tone สีน้ำตาลเข้ม - เทา ตัดด้วยเส้นอลูมิเนียมสีน้ำตาลอ่อน มีห้องพักทั้งหมด 268 ยูนิต แบ่งเป็น
    • 1 ห้องนอน (S) ขนาดประมาณ 27 ตร.ม.
    • 1 ห้องนอน (M) ขนาดประมาณ 34 -35 ตร.ม.
    • 1 ห้องนอน (L) ขนาดประมาณ 43-51 ตร.ม.
    • 2 ห้องนอน ขนาดประมาณ 54-65 ตร.ม.
    ทิศเหนือ : ติดกับอาคาร (ร้านอาหาร) ความสูงประมาณ 2 ชั้น วิว - เพชรบุรี
    ทิศใต้ : ติดกับอาคารที่อยู่อาศัย Beverly 33 ความสูงประมาณ 8 ชั้น วิว - สุขุมวิท
    ทิศตะวันออก : ติดกับอาคารที่อยู่อาศัย อาคารพาณิชย์ ความสูงประมาณ 4-5 ชั้น วิว - ทองหล่อ
    ทิศตะวันตก : ติดกับอาคารที่อยู่อาศัยส่วนบุคคล ความสูงประมาณ 2 ชั้น วิว - อโศก

    ทางเข้าโครงการ ด้านหน้าติดกับถนนสุขุมวิท 33 พอดีค่ะ

    ด้านหน้าโครงการ หันมาทางทิศตะวันออก สามารถมองเห็นวิวทองหล่อ

    ด้านขวามือของโครงการ เป็นทิศเหนือ สามารถมองเห็นวิวถนนเพชรบุรี

    ด้านหลังตัวอาคาร หันมาทางทิศตะวันตก สามารถมองเห็นวิวอโศก

    ส่วนด้านซ้ายของอาคารหันมาทางทิศใต้ มองเห็นวิวสุขุมวิท

    ทางเข้า-ออก โครงการ ติดกับถนนสุขุมวิท ซอย 33 ใช้ระบบ Keycard Access
    ที่จอดรถของโครงการมี 2 จุด คือชั้นใต้ดิน มีทั้งหมด 3 ชั้น (B1-B3)
    และที่จอดรถบนอาคาร 2 ชั้น (P2-P3) คิดเป็น 51% ของจำนวนห้องพักทั้งหมด ไม่ Fix ที่จอดรถ

    ชั้น Ground มีสวนอยู่ล้อมรอบโครงการ มีต้นหางนกยูงต้นใหญ่ให้ความร่มรื่น

    ตัวอาคารทำเป็นสเต็ปเล่นระดับไว้ 3 ชั้น แต่ละชั้น มีสิ่งอำนวยความสะดวกรองรับ

    สวนบริเวณชั้น 4 Forest Valley พื้นที่นั่งพักผ่อนและทำกิจกรรมที่มีระดับและรูปแบบการเข้าถึงที่ต่างกัน
    ทำให้เกิดการใช้งานของที่นั่งที่แตกต่างกัน

    สวนบริเวณชั้น 14 Party Hill พื้นที่ขนาดใหญ่รองรับการทำกิจกรรมเป็นกลุ่ม เช่น Meeting Party BBQ
    โดยลักษณะของพื้นที่คือมีการเดินขึ้นไปใช้งานเพื่อให้เกิดความเป็นส่วนตัวจากบริเวณห้องพัก
    และค่อยๆ เห็นทัศนียภาพของเมืองมากขึ้น

    สวนบริเวณชั้น 21, 22 Napping Valley พื้นที่เชื่อมต่อระหว่าง 2 ชั้นมีลักษณะเหมือนการเดินขึ้น-ลงป่าเขา
    เป็นพื้นที่สำหรับการนอนพักผ่อนโดยมีลักษณะการนอนที่แตกต่างกัน

    และชั้น 25 สระว่ายน้ำ Sky Pool ขนาด 21 เมตร infinity edged with shallow pool
    ที่มีสวนพักผ่อนและออกกำลังกาย สระว่ายน้ำ และพื้นที่สวนข้างสระว่ายน้ำสำหรับนั่งพักผ่อนหลังจากว่ายน้ำ

    มี Fitness Center อยู่ที่ชั้นนี้ด้วยเช่นกัน
    ส่วนกลางและสิ่งอำนวยความสะดวก
    • ล็อบบี้ขนาดใหญ่
    • สวนภายในโครงการบริเวณชั้นที่ 1, 4, 14, ระหว่างชั้น 21 และ 22
    • Sky Pool (Infinity Edge Pool ระบบเกลือ ขนาดยาว 21 เมตร)
    • Sky Fitness
    • Party Lounge เป็นพื้นที่สำหรับจัด Party ในอาคาร
    • ห้องจดหมาย (Mail room)
    • Self-Laundry Room
    • Steam Room แยกห้องชายหญิง
    • CCTV กล้องวงจรปิด 24 ชม.
    • ระบบ Access Control - เช่น Key Card ผ่านเข้าออกอาคาร/ กดลิฟต์ Lock ชั้น / ผ่านเข้าออกบริเวณชั้นจอดรถ
    • เจ้าหน้าที่รักษาความปลอดภัย /เจ้าหน้าที่ฝ่ายอาคาร ดูแลตลอด 24 ชั่วโมง

    Forest Valley
    เป็นพื้นที่สวนขนาดใหญ่ที่จะรองรับการทำกิจกรรมหลากหลายรูปแบบของลูกบ้าน เช่น ปาร์ตี้บาร์บีคิว
    ด้วยการออกแบบสวนให้มีชั้นลดหลั่นกัน ให้ความรู้สึกเหมือนยืนมอง city view อยู่บนเขา

    Party Lounge
    เป็นห้องอเนกประสงค์ที่ขยายความของห้องรับแขก, ทานอาหาร LIVING + DINING + LIBRARY
    ที่เน้นโทนสีของกระจกที่กรุผนังเป็นสีเขียว สร้างมิติเพิ่มขึ้น หรูหรา แต่ยังให้ความรู้สึกอบอุ่นสบายๆ

    Lobby ออกแบบโดยใช้เส้นโค้งบนผนังไหลต่อเนื่องจรดเพดาน
    ตรงนี้ช่วยลดทอนห้องสี่เหลี่ยมให้ดูโค้งมนขึ้น สร้างมิติพิเศษให้ดูทันสมัย

    Sky Pool
    มีสระว่ายน้ำ city view พื้นที่ริมสระก็ไม่ลืมที่จะใส่ต้นไม้เขียวๆ ให้รู้สึกสดชื่นสบายตา
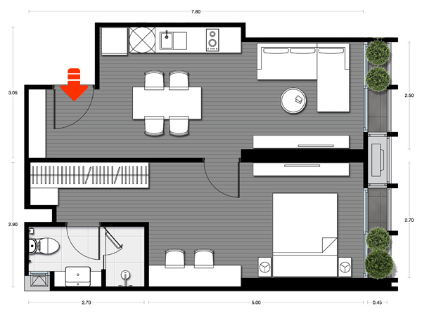
    ภาพห้องตัวอย่างและ Lay out
    ห้องของโครงการนี้ขายแบบ Fully Fitted
    ขนาด 1 ห้องนอน
    1. ขนาด 27 ตร.ม.
    2. ขนาด 45.80 ตร.ม.
    สำหรับห้องตัวอย่างที่ทางโครงการจัดไว้ให้จะมีแบบ 1 ห้องนอน ขนาด 27 ตร.ม. และ ขนาด 45.80 ตร.ม. ไปชมแบบขนาด 27 ตร.ม. กันก่อนเลยค่ะ

    Plan ห้องแบบ 1 ห้องนอน ขนาด 27 ตร.ม.

    เริ่มกันที่ห้องขนาด 27 ตารางเมตร เป็นห้องแบบ 1 ห้องนอน หน้าบานปิดผิวลามิเนตลายไม้ สูง 2.40 เมตร

    มาพร้อมระบบควบคุมการล็อคอิเล็กทรอนิกส์ ใช้การ์ด Electronic Door Lock

    เข้ามาด้านในจะพบกับโซนห้องครัว เป็นแบบครัวเปิดค่ะ

    ชุดครัวที่ได้ก็จะมี ชุดครัวหน้าบานปิดผิว Laminate ภายในปิดผิวเมลามีน Full-Height ท็อปหินสังเคราะห์ หรือ เทียบเท่า
    ผนังกั้นเปื้อนเป็นกระจก หรือ เทียบเท่า เตาไฟฟ้า 2 หัว /เครื่องดูดควัน /
    อ่างล้างจาน พร้อมหัวก็อก ยี่ห้อ FRANKE หรือ เทียบเท่า

    มีพื้นที่เก็บของด้านบน

    ในโซนครัว จะเป็นพื้นที่โต๊ะรับแขกไปในตัว สามารถทำเป็นโต๊ะรับประทานอาหารได้
    สำหรับโซนนี้ พื้นไม้สำเร็จรูปลามิเนต หนา 10 มม. ผิวสัมผัสเลียนแบบไม้จริง (Premium Grade Laminate)
    นำเข้าจากเยอรมันหรือเทียบเท่า

    ด้านในเป็นพื้นที่ห้องนอน มีประตูเลื่อนบานกระจก กั้นเป็นห้องให้

    ด้านในห้องนอนวางเตียง Queen Size ได้พอดี

    ปลายเตียงสามารถวางชั้นวางโทรทัศน์ได้ บริเวณห้องทั่วไป สูงประมาณ 2.75 เมตร

    โซนห้องนอนมีขนาดพอดี ไม่เล็กจนเกินไป ด้านนึงวางเตียงติดหน้าต่าง อีกด้านยังมีพื้นที่วางโต๊ะข้างเตียงได้

    มุมมองกลับไปที่ปลายเตียง

    ด้านข้างเตียงเป็นพื้นที่ Walk in Closet และห้องน้ำด้านใน

    ตู้เสื้อผ้าโครงการก็ให้มาด้วยค่ะ โดยหน้าบานเลื่อนลูกฟักกระจกใส กรอบบานปิดผิวลามิเนต
    ภายในตู้ปิดผิวเมลามีน หรือเทียบเท่า พร้อมชุดไฟส่องสว่าง

    ถัดไปเป็นห้องน้ำ พื้นและผนังห้องน้ำเป็นกระเบื้องเซรามิก ลายหิน ขนาด 60 x 60 ซม. หรือเทียบเท่า
    เคาน์เตอร์หินสังเคราะห์ พร้อมชุดกระจกเงา

    สุขภัณฑ์ในห้องน้ำของ Kohler หรือเทียบเท่า

    บริเวณส่วนอาบน้ำ กระจกกั้นอาบน้ำ (Tempered Glass)

    ฝักบัวของ Kohler หรือเทียบเท่า
    ห้องตัวอย่าง แบบ 1 Bedroom ขนาด 45.80 ตร.ม.

    แปลนห้องขนาด 45.80 ตร.ม.

    ประตูทางเข้า หน้าบานปิดผิวลามิเนตลายไม้ (Laminate) บานสูง 2.40 เมตร หรือเทียบเท่า

    พร้อมระบบควบคุมการล็อคอิเล็กทรอนิกส์ ใช้การ์ด Electronic Door Lock

    เข้ามาด้านใน ด้านข้างประตูทางเข้าจะเป็นตู้เก็บของขนาดใหญ่ที่ทางโครงการตกแต่งไว้ให้เป็นไอเดีย
    ด้านข้างเป็นพื้นที่ครัว พร้อมโต๊ะรับประทานอาหารขนาด 6 ที่นั่ง
    โครงการได้ติดตั้งระบบ Home Automation ที่สามารถควบคุมระบบเปิด-ปิด ไฟ และ แอร์ ได้

    ตู้เก็บของโครงการไม่ได้ให้ค่ะ แต่เป็นไอเดียไว้ว่าด้านข้างประตู สามารถทำตู้เก็บของได้แบบ Full-Height

    พื้นเป็นพื้นไม้สำเร็จรูปลามิเนต หนา 10 มม. ผิวสัมผัสเลียนแบบไม้จริง (Premium Grade Laminate)
    นำเข้าจากเยอรมันหรือเทียบเท่า

    มาดูในส่วนของพื้นที่ครัวกันค่ะ

    ชุดครัวได้ครบ เคาน์เตอร์ครัว พื้นที่วางของด้านบน ได้ทั้งอ่างล้างจาน กระทะไฟฟ้า และเครื่องดูดควัน

    อ่างล้างจาน และกระทะไฟฟ้า ยี่ห้อ FRANKE หรือ เทียบเท่า

    ความสูงจากพื้นถึงฝ้าประมาณ 2.75 เมตร

    ด้านในเป็นพื้นที่ห้องนั่งเล่น วางโซฟาขนาดยาวได้ถึง 4 ที่นั่ง อยู่ติดกับส่วนระเบียง
    ซึ่งบานกระจกของระเบียงที่สูงถึง 2.9 จรดฝ้า ทำให้ห้องดูใหญ่ และกว้างมากขึ้น

    มุมกลับจากพื้นที่ห้องนั่งเล่น

    แบ่งกั้นห้องนอนไว้อีกส่วนหนึ่ง

    ในส่วนของห้องนอนมีพื้นที่กว้างขวางทีเดียวค่ะ ด้านซ้ายมือเป็นพื้นที่วางเตียงคิงไซส์

    ตั้งติดกับระเบียงลักษณะเดียวกับห้องนั่งเล่นเมื่อครู่

    ด้านนอกมีพื้นที่วางคอมเพรสเซอร์แอร์

    สามารถเว้นระยะจากระเบียงเพื่อวางโต๊ะข้างเตียงได้

    อีกด้านหนึ่งของเตียง เป็นพื้นที่ Walk in Closet และห้องน้ำ

    ตรงกลางสามารถวางโต๊ะทำงานได้อีก

    ในส่วนของ Walk in Closet มีตู้เสื้อผ้าบานกระจกใสขนาดใหญ่และไฟภายในที่ติดตั้งให้
    พร้อมกับความสูงแบบ Full Height ทางโครงการก็ตกแต่งในบางตำแหน่งเพิ่มขึ้นมาให้ดูเป็นตัวอย่าง
    แต่ของจริงก็จะได้แตกต่างกันไปตามแต่เลย์เอาท์ของยูนิต

    ด้านซ้ายมือเป็นห้องน้ำ ปูพื้นกระเบื้องเซรามิกลายหิน ขนาด 60x60 ซม.

    สุขภัณฑ์ของ Kohler หรือเทียบเท่า

    อ่างล้างหน้าของ Kohler บนเคาน์เตอร์หินสังเคราะห์ พร้อมชุดกระจกเงา

    แบ่งกั้นส่วนเปียกด้วยกระจกกั้นใส (Tempered Glass) บานประตูแบบผลัก
    ส่วนด้านใน ของจริงผนังห้องน้ำภายนอกจะเป็นผนังทีบ

    ชุดฝักบัวของ Kohler หรือเทียบเท่า ให้มาสองตัวตามภาพเลยค่ะ
    ราคาและค่าใช้จ่ายที่เกี่ยวข้องโดยประมาณ
    ราคาของโครงการนี้เริ่มต้นที่ 5,500,000 บาท* (ณ วันเปิดตัว)
    สถานะปัจจุบันของโครงการ
    ทางโครงการ โนเบิล อราวน์ สุขุมวิท 33 เปิดสำนักงานขายไปเมื่อวันที่ 21 ก.ค. ที่ผ่านมา ใครที่สนใจสามารถเข้าไปชมโมเดลโครงการ ห้องตัวอย่าง และสอบถามราคาพร้อมโปรโมชั่นได้เลย ลงทะเบียนรับสิทธิ์จองได้ตั้งแต่วันที่ 21 ก.ค. - 3 ส.ค. นี้ ที่สำนักงานขาย แถมมีความเก๋ตรงที่ เขามี Virtual Reality ที่จำลองบรรยากาศเสมือนจริงของโครงการแบบ 360 องศาเลยล่ะค่ะ โครงการนี้เปิดจองวันที่ 6 สิงหาคม ที่ โรงแรมดิโอกุระเพรสทีจ ติด BTS เพลินจิต
    สามารถเข้าไปชมห้องตัวอย่างได้ที่สำนักงานขาย โทร. 02-251-9955 หรือ https://goo.gl/rG2jFd
    • ดวงพร คล้ายมี, อิศราพร วิจิตร์
    • ดวงพร คล้ายมี, อิศราพร วิจิตร์
      PROPERTY GURU Thailand

    รีวิว-พรีวิวล่าสุดอื่นๆ

    คอนโดติดรถไฟฟ้าล่าสุด

เว็บไซต์นี้มีการเก็บคุกกี้เพื่อเพิ่มความพึงพอใจในการใช้งานเว็บไซต์ และช่วยให้เราปรับปรุง และนำเสนอเนื้อหาตรงตามความสนใจของท่าน ท่านสามารถดู Privacy Notice และ ดู Cookies Policy ของเราได้ ที่นี่ ทั้งนี้ ท่านจะยินยอมให้เราเก็บคุกกี้ทั้งหมด หรือให้เก็บแค่บางส่วนโดยการคลิกเลือก ตั้งค่า

ท่านสามารถเลือกให้ความยินยอมการเก็บคุกกี้เป็นเรื่องๆ ได้ที่นี่

เมื่อคุณเข้าชมเว็บไซต์ หรือแอปพลิเคชั่น checkraka เราอาจจัดเก็บ หรือดึงข้อมูลจากเบราว์เซอร์ของคุณในรูปแบบของคุกกี้ และเทคโนโลยีอื่นที่คล้ายคลึง เช่น tag และ pixel (เรียกรวมกันว่า “คุกกี้”) ซึ่งมักเป็นข้อมูลที่ไม่สามารถระบุตัวตนได้โดยตรง แต่ช่วยให้คุณใช้งานเว็บไซต์ได้ปลอดภัย และตรงตามความต้องการมากขึ้น คุณอาจไม่ยินยอมให้เราเก็บคุกกี้บางประเภทได้ โดยการคลิกตามหัวข้อข้างล่างนี้

ประเภทคุกกี้
อ่านเพิ่มเติม ที่นี่
ยินยอม / ไม่ยินยอม
คุกกี้ที่จำเป็นต้องมีเสมอ
(Strictly Necessary)
คุกกี้สำหรับการใช้งานเว็บไซต์
(Functionality)
คุกกี้เพื่อเพิ่มประสิทธิภาพและวิเคราะห์
(Performance & Analytics)
คุกกี้เพื่อการตลาด
(Marketing)