ประเมินวงเงินรู้ผลใน 3 นาที
กับ กรุงศรี ออโต้ พร้อมสตาร์ท

เริ่มประเมินวงเงินพร้อมสตาร์ท
ผ่านมือถือ สแกนเลย

ดูวงเงินพร้อมสตาร์ทที่ได้รับ

  • คอนโด
  • คอนโด
  • ค้นหาแบบละเอียด
  • รีวิว-เยี่ยมชม เอ็ม จตุจักร (M Jatujak)

    20 ก.พ. 61 11,675
    รีวิว-เยี่ยมชม คอนโดเอ็ม จตุจักร (M Jatujak)
    วันนี้ CheckRaka.com จะพาไปทุกท่านไปเยี่ยมชมคอนโด เอ็ม จตุจักร (M Jatujak) โครงการเมกะโปรเจกต์ ภายใต้แบรนด์ "M" จากบริษัท เมเจอร์ ดีเวลลอปเม้นท์ จำกัด (มหาชน) ซึ่งโครงการนี้เปิดตัวครั้งแรกในปี 2014 ที่ผ่านมา ปัจจุบันใกล้เสร็จพร้อมให้ลูกบ้านได้เข้าอยู่ในอีกไม่นาน โดยโครงการ เอ็ม จตุจักร เป็นคอนโดมิเนียม High-rise ออกแบบภายใต้แนวคิดสไตล์ Urban Forest (ป่าในเมือง) บนทำเลใกล้รถไฟฟ้า ตัวโครงการตั้งอยู่ระหว่าง BTS สะพานควาย และ BTS หมอชิต วันนี้เราจะพาไปชมห้องตัวอย่างบนอาคารจริง พร้อมชมวิวจริงกันค่ะว่าจะสวยงาม และน่าสนใจขนาดไหนตามไปชมกันค่ะ
    ข้อมูลโครงการ
    • เจ้าของโครงการ: บริษัท เมเจอร์ ดีเวลลอปเม้นท์ จำกัด (มหาชน)
    • ที่ตั้งโครงการ: ซอยพหลโยธิน 18 ถ.พหลโยธิน แขวงจอมพล เขตจตุจักร กรุงเทพฯ
    • อาคารชุดพักอาศัย: High-Rise  อาคาร A สูง 32 ชั้น จำนวน 459 ยูนิต และ อาคาร B สูง 34 ชั้น จำนวน 405 ยูนิต
    • ขนาดที่ดินทั้งโครงการ: 4 ไร่
    • ลิฟต์โดยสาร 3 ตัวต่ออาคาร และลิฟต์บริการ 1 ตัวต่ออาคาร
    • ห้องชุดพักอาศัย:
      • 1 ห้องนอน สวีท 28 - 29.5 ตร.ม.
      • 1 ห้องนอน 28.5 - 35.5 ตร.ม.
      • 1 ห้องนอน ดูเพล็กซ์ 46 - 56.5 ตร.ม.
      • 2 ห้องนอน 48 - 64.5 ตร.ม.
      • 2 ห้องนอน ดูเพล็กซ์ 79.5 - 80.5 ตร.ม.
      • 3 ห้องนอน 118 ตร.ม.
    • ที่จอดรถ: 50% รวมจอดซ้อนคัน
    • ราคาเริ่มต้น 3.99 ล้านบาท (ณ วันที่ 22 มิ.ย. 60)
    • วันที่เข้าเยี่ยมชม-รีวิวคอนโด ข้อมูล ณ วันที่ 22 มิ.ย. 60
    เจ้าของและผู้พัฒนาโครงการ
    บริษัท เมเจอร์ ดีเวลลอปเม้นท์ จำกัด (มหาชน) ก่อตั้งขึ้นเมื่อปี พ.ศ. 2542 และจดทะเบียนกับตลาดหลักทรัพย์แห่งประเทศไทยในปี 2550 พัฒนาโครงการที่พักอาศัย  คอนโดมิเนียมแบบไฮไรส์และโลว์ไรส์คุณภาพระดับไฮเอนด์ ทั้งด้านการออกแบบ การก่อสร้างที่มีเอกลักษณ์โดดเด่นเฉพาะตัว บนทำเลทองใจกลางเมืองทั่วเขตกรุงเทพฯ และยังเป็นรายแรกๆ ในประเทศไทยที่สร้างคอนโดมิเนียมคอนเซปต์ Pet-Friendly ปัจจุบันบริษัทฯ ได้พัฒนาโครงการคอนโดมิเนียมที่เสร็จแล้วทั้งหมด 9 โครงการ และมีโครงการที่กำลังดำเนินการพัฒนาอีก 6 โครงการ ได้แก่ มาเอสโตร 07 อนุสาวรีย์ชัยฯ, มาเอสโตร 03 รัชดา-พระราม 9 , มาเอสโตร 14 สยาม-ราชเทวี, มาเอสโตร 01 สาทร-เย็นอากาศ, มาเอสโตร 19 รัชดา19-วิภา และเอ็ม จตุจักร
    ทำเลที่ตั้ง

    แผนที่ตั้งโครงการ (คลิกเพื่อดูภาพขนาดใหญ่)

    แผนที่ตั้งและสถานที่สำคัญรอบๆ โครงการ 
    (คลิกเพื่อดูภาพขนาดใหญ่) (Google Map)

    BTS สะพานควาย (ห่างจากโครงการประมาณ 500 เมตร)

    ตลาดนัดจตุจักร (ห่างจากโครงการประมาณ 40 เมตร)

    สวนรถไฟ (ห่างจากโครงการประมาณ 200 เมตร)

    กรมขนส่งทางบก (ห่างจากโครงการประมาณ 100 เมตร)

    MRT กำแพงเพชร (ห่างจากโครงการประมาณ 450 เมตร)

    ตลาด อตก. (ห่างจากโครงการประมาณ 450 เมตร)

    Central ลาดพร้าว (ห่างจากโครงการประมาณ 2 กิโลเมตร)

    Union Mall (ห่างจากโครงการประมาณ 2.3 กิโลเมตร)
    การเดินทาง
    การเดินทางไปยังโครงการ สามารถเดินทางได้หลายทางดังนี้
    1. การเดินทางด้วยรถยนต์
    การเดินทางเข้าโครงการ เส้นทางที่ 1 ใช้เส้นทางวิภาวดีฯ เข้าทางลัด ซอยวิภาวดีฯ 3

    มุ่งหน้าบนถนนวิภาวดี เบี่ยงซ้ายออกไปทางคู่ขนาน

    ขึ้นสะพานข้ามแยก

    สังเกตป้ายเส้นทางลัด เข้าซอยพหลโยธิน 18 เตรียมเลี้ยวซ้าย

    พอเข้ามาในซอยวิภาวดี 3 แล้ว เจอทางสามแยกให้เลี้ยวซ้ายค่ะ

    ผ่านทางเข้ากรมขนส่ง เลยไปประมาณ 100 เมตร ให้เลี้ยวขวาเข้าซอยพหลโยธิน 18 

    มุ่งหน้าต่อประมาณ 400 เมตร ก็เลี้ยวซ้ายเข้าโครงการ M Jatujak ได้เลยค่ะ
    การเดินทางเข้าโครงการ เส้นทางที่ 2 จากถนนลาดพร้าว
    การเดินทางออกจากโครงการ เส้นทางที่ 1 ออกวงแหวนรอบนอกไปฝั่งธนบุรี
    การเดินทางออกจากโครงการ เส้นทางที่ 2 ใช้ถนนสุทธิสารลัดเข้าถนนรัชดาภิเษก
    2. การเดินทางด้วยรถไฟฟ้า
    • MRT กำแพงเพชร ห่างจากโครงการประมาณ 450 เมตร
    • BTS สะพานควาย ห่างจากโครงการประมาณ 500 เมตร
    • BTS หมอชิต ห่างจากโครงการประมาณ 550 เมตร
    • MRT จตุจักร ห่างจากโครงการประมาณ 550 เมตร
    3. การเดินทางด้วยวินมอเตอร์ไซค์

    พี่วินปากซอยพหลโยธิน 18 หน้าโครงการนั่นเองค่ะ

    พี่วิน ใกล้ BTS สะพานควายค่ะ ราคาตามป้ายเลย
    สภาพแวดล้อมใกล้เคียง

    สภาพแวดล้อมรอบๆ โครงการ ฝั่งนี้มุ่งหน้าไปทาง BTS สะพานควาย

    BTS สะพานควาย (ห่างจากโครงการประมาณ 500 เมตร)

    เลือกทางออกที่ 3 จะใกล้โครงการมากที่สุดนะคะ 
    แต่ถ้าอยากหาอะไรทานก่อนเข้าโครงการสักหน่อย แนะนำให้ลงทางออกที่ 2 ค่ะ

    ร้านอาหารเด็ดที่แนะนำคือ มงคลวัฒนาข้าวมันไก่ ชุดใหญ่ไฟกะพริบมาก

    ถ้าลงทางออกที่ 3 ก็เดินชิลๆ กลับโครงการได้เลย

    ข้ามไปฝั่ง ตลาด อตก. กันบ้างค่ะ ย่านนี้อุดมไปด้วยของซื้อของขายมากมาย 
    ด้านซ้ายเป็นตลาด อตก. ด้านขวาเป็น JJ Mall 

    ถ้าใครกลับโครงการ อยากแวะซื้อของที่ อตก. ใช้ MRT แล้วลงสถานีกำแพงเพชร ได้เลยนะคะ
    ตรงนี้ห่างจากโครงการประมาณ 450 เมตรเองค่ะ

    มาดูฝั่งอตก.กันค่ะ ว่ามีอะไรน่าซื้อบ้าง

    เรียกว่า ทั้งข้าวสารอาหารแห้ง หรือจะเป็นร้านอาหารตามสั่ง อาหารคาว ของหวาน ผลหมากรากไม้เต็มไปหมดเลยค่ะ

    เดินจากตลาด อตก. กลับโครงการกันค่ะ มองจากตรงนี้ก็เห็นโครงการตั้งอยู่ด้านหน้าเลยทีเดียว

    สภาพแวดล้อมรอบๆ โครงการ ฝั่งนี้มุ่งหน้าไปทาง BTS หมอชิต, MRT จตุจักร

    ตลาดนัดจตุจักร ช่วงวันหยุดสุดสัปดาห์จะครึกครื้นมากเป็นพิเศษเลยนะคะ

    MRT จตุจักร ห่างจากโครงการประมาณ 550 เมตรค่ะ
    รูปแบบตึก และตัวโครงการโดยรวม
    โครงการ เอ็ม จตุจักร ตั้งอยู่บนพื้นที่ 4 ไร่ ถือเป็นโครงการที่มีขนาดใหญ่ภายใต้แบรนด์ "M" ด้วยแนวคิดชีวิตใกล้ชิดธรรมชาติสไตล์ Urban Forest (ป่าในเมือง) เป็นคอนโดมิเนียม High-Rise จำนวน 2 อาคาร ประกอบด้วย อาคาร A สูง 32 ชั้น และอาคาร B สูง 34 ชั้น มีห้องพักอาศัยรวมทั้งหมด 864 ยูนิต ตัวอาคารออกแบบมาในสไตล์ Modern Tropical เน้นโทนสีธรรมชาติ Earth Tone และสีน้ำตาล ห้องพักอาศัยเริ่มต้้งแต่ชั้น 8 ลักษณะที่ดินเป็นรูปสี่เหลี่ยมผืนผ้ายาวลึกเข้าไปด้านหลัง รูปแบบตัวอาคารรูปทรงตัว I ทำให้ทุกห้องได้รับวิวอย่างเต็มที่ มีทางเดินเข้าจากด้านหน้าถนนพหลโยธิน เป็นลักษณะรั้วทางเดินผ่านเข้าออกด้วยระบบคีย์การ์ด ส่วนทางเข้าออกหลักจะอยู่ภายในซอยพหลโยธิน 18
    มีอาคาร Sport Arena (สนามกีฬาในร่ม) ความสูง 2 ชั้น 1 อาคาร แยกออกจากอาคารพักอาศัย จัดวางพื้นที่จอดรถยนต์ไว้ที่ชั้น 2-7 สามารถจอดได้ประมาณ 50% แบบรวมจอดซ้อนคัน และมีพื้นที่จอดรถจักรยาน และที่จอดรถสำหรับ Visitor อยู่ที่ชั้น 1 มีลิฟต์มาให้อาคารละ 4 ตัว แบ่งเป็นลิฟต์โดยสารแบบล็อคชั้น 3 ตัว และลิฟต์บริการ 1 ตัว

    ทิศตะวันตก ติดกับ อาคารพาณิชย์สูง 3 ชั้นครึ่ง และลานจอดรถรายวันของ อตก. ได้วิวเปิดโล่งไม่มีอาคารสูงบัง
    ทิศนี้จะได้วิวทางฝั่งตลาด อตก.

    ทิศตะวันออก ติดกับบ้านพักอาศัย และโครงการคอนโด Low-rise สูง 8 ชั้น แต่ก็ไม่มีผลในการบังวิวของโครงการ เพราะห้องพักอาศัยของโครงการเริ่มตั้งแต่ชั้น 8 ขึ้นไป บวกกับความสูงของห้อง floor to floor ที่สูง 3.3 เมตร ทำให้เมื่อเทียบกันแล้ว คอนโดเพื่อนบ้านจะสูงไม่เกินชั้นลานจอดรถของโครงการ เอ็ม จตุจักร เท่านั้น ส่วนตัวอาคารพักอาศัยมีระยะถอยร่นจากแนวรั้วประมาณ 4 เมตร ส่วนรั้วรอบโครงการสูงประมาณ 3 เมตร

    ทิศใต้ ติดกับคลองบางซื่อ หันไปทางสะพานควาย

    สิ่งอำนวยความสะดวกบนชั้นดาดฟ้าของทั้ง 2 อาคาร

    ทางเข้า-ออกหลักของโครงการอยู่ในซอยพหลโยธิน 18

    จากประตูเข้า-ออก ผ่านไม้กระดกซึ่งเข้าออกด้วยระบบ Key access card

    ลาน BBQ และพื้นที่ Pet Zone จะยู่ฝั่งทิศใต้ติดกับอาคาร B

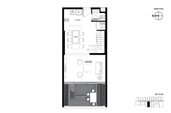
    อาคาร A ที่ชั้น 8-9 จะเป็นห้อง Duplex ออกแบบมาเป็น Glass house ตกแต่งด้วยกระจกบานใหญ่
    สามารถมองเห็นวิวได้แบบเต็มๆ ตา พร้อมพื้นที่ระเบียงแบบส่วนตัวขนาดใหญ่

    ภาพจำลองห้อง Duplex แบบ Glass house

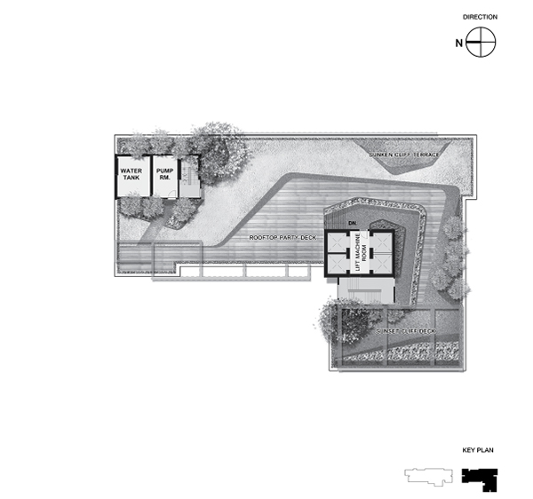
    ส่วนกลางของอาคาร A จะอยู่ที่ชั้น 32 และชั้น roof top ลิฟต์สามารถขึ้นได้สูงสุดถึงชั้น 32 เท่านั้น
    โดยจะมีบันไดสำหรับเดินเชื่อมต่อขึ้นไปยังชั้น roof top

    พื้นที่บนชั้น roof top จัดเป็นสวน และพื้นที่สำหรับให้ลูกบ้านขึ้นมาชมวิว หรือจัดปาร์ตี้เล็กๆ บนนี้ได้

    อาคาร B จะจัดส่วนกลางไว้ที่ชั้น 8 เกือบทั้งหมด มีประตูกั้นแยกส่วนระหว่างโซนพักอาศัยกับโซนสิ่งอำนวยความสะดวก เพื่อความเป็นส่วนตัวของลูกบ้าน เข้าออกด้วยระบบคีย์การ์ด

    นอกจากนี้ที่ชั้น roof top ของอาคาร B ก็จัดเป็นสวนมาให้ลูกบ้านด้วยเช่นกัน
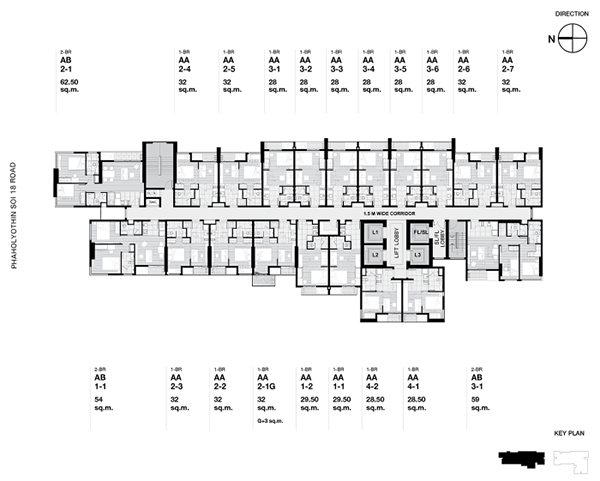
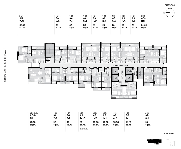
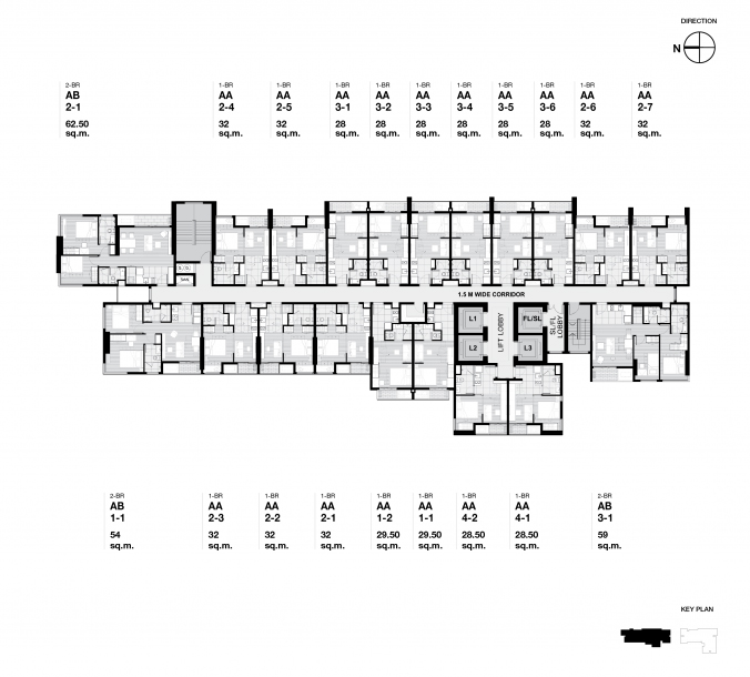
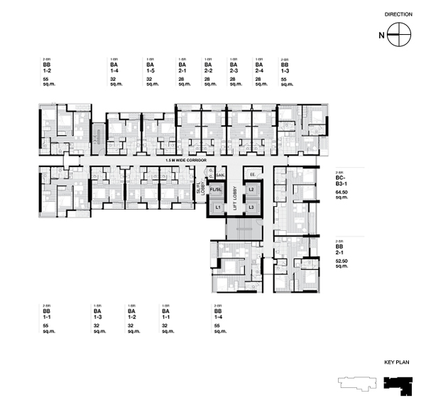
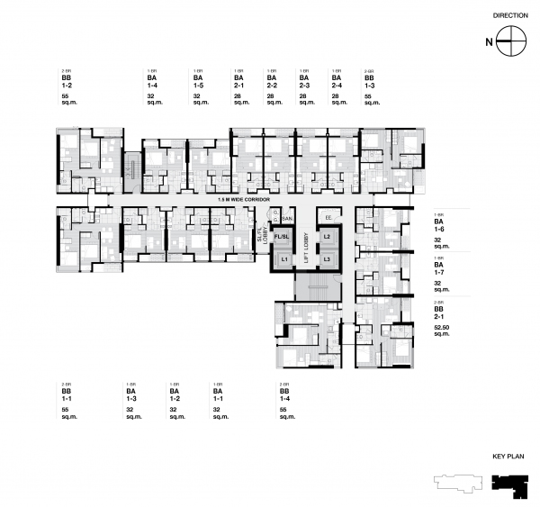
    ไปดูในส่วนของ Master Plan และ Floor Plan กันต่อเลยค่ะว่าแต่ละอาคารมีอะไรอยู่ตรงไหนบ้าง

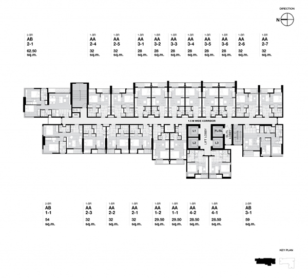
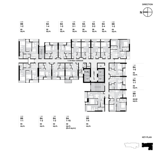
    Master Plan ของทั้ง 2 อาคาร
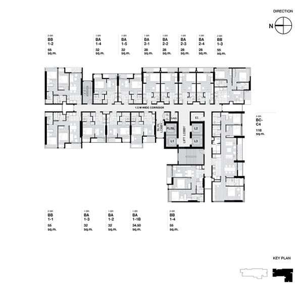
    อาคาร A

    ชั้น 1 : เป็นส่วนของ Facility

    ชั้น 2-7 : เป็นพื้นที่จอดรถทั้งหมด

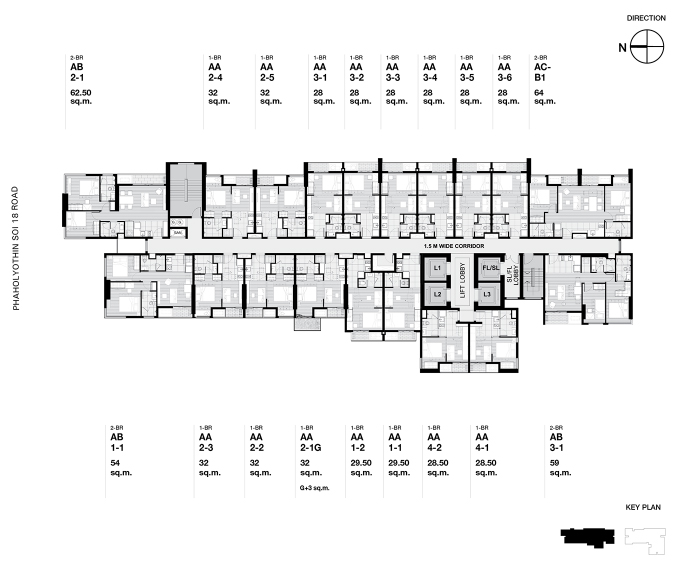
    ชั้น 8 : เป็นส่วนพักอาศัยทั้งหมด มีห้องพักอาศัยรวม 21 ยูนิต แบ่งเป็นห้องแบบ 1 Bedroom 8 ยูนิต
    ที่เหลือจะเป็นห้องแบบ 1 Bedroom Duplex 11 ยูนิต และ 2 Bedroom Duplex อีก 2 ยูนิต

    ชั้น 9 : เป็นส่วนพักอาศัย มีห้องแบบ 1 Bedroom 8 ยูนิต
    และส่วนที่เหลือจะเป็นชั้น 2 ของห้องแบบ Duplex ที่เชื่อมต่อมาจากชั้น 8

    ชั้น 10-11, 15 และ 19 : จะเหมือนกัน มีห้องพักอาศัยรวม 20 ยูนิต เป็นห้องแบบ 1 Bedroom 17 ยูนิต
    และ 2 Bedroom อีก 3 ยูนิต อยู่บริเวณห้องมุม

    ชั้น 12-12A , 16-17 , 20-21 : จะเหมือนกัน มีห้องพักอาศัยรวม 20 ยูนิต เป็นห้องแบบ 1 Bedroom 17 ยูนิต
    และ 2 Bedroom อีก 3 ยูนิต อยู่บริเวณด้านมุม

    ชั้น 14 และ 18 : จะคล้ายกันกับชั้น 12  มีห้องพักอาศัยรวม 20 ยูนิต แต่จะมีพื้นที่สีเขียวเล็กเพิ่มขึ้นมา

    ชั้น 22-25, 28-31 : จะคล้ายกัน มีห้องพักอาศัยรวม 19 ยูนิต เป็นห้องแบบ 1 Bedroom 15 ยูนิต
    และ 2 Bedroom อีก 4 ยูนิต ซึ่งแต่ละชั้นจะมีความแตกต่างกันบ้างเล็กน้อยตรงขนาดของห้องแบบ 1 Bedroom
    และอีกส่วนคือที่ชั้น 22 และชั้น 30 จะมีพื้นที่สวนสีเขียวเล็กๆ เพิ่มขึ้นมาให้

    ชั้น 26 : มีห้องพักอาศัยรวม 19 ยูนิต เป็นห้องแบบ 1 Bedroom 15 ยูนิต และ 2 Bedroom อีก 3 ยูนิต
    และ 2 Bedroom Duplex อีก 1 ยูนิต

    ชั้น 27 : จะคล้ายกับชั้น 26 มีห้องพักอาศัยรวม 19 ยูนิต มีห้องแบบ 1 Bedroom 15 ยูนิต ห้อง 2 Bedroom 3 ยูนิต
    และชั้น 2 ของห้องแบบ Duplex ที่เชื่อมต่อมาจากชั้น 26

    ชั้น 32 : เป็นชั้นของ Facility ประกอบด้วย สระว่ายน้ำ, สระเด็ก, สระนวดตัว, พื้นที่นั่งริมสระ, ห้องอ่านหนังสือ, ห้องโยคะ, Sky Pool Lounge, โต๊ะพูล, ห้องสตีม, ห้องซาวน่า, ห้องฟิตเนส และลานพัทกอล์ฟ

    ชั้น Roof top : เดินขึ้นบันไดเชื่อมต่อมาจากชึ้น 32 จะเป็นลานปาร์ตี้ และพื้นที่สำหรับชมวิว
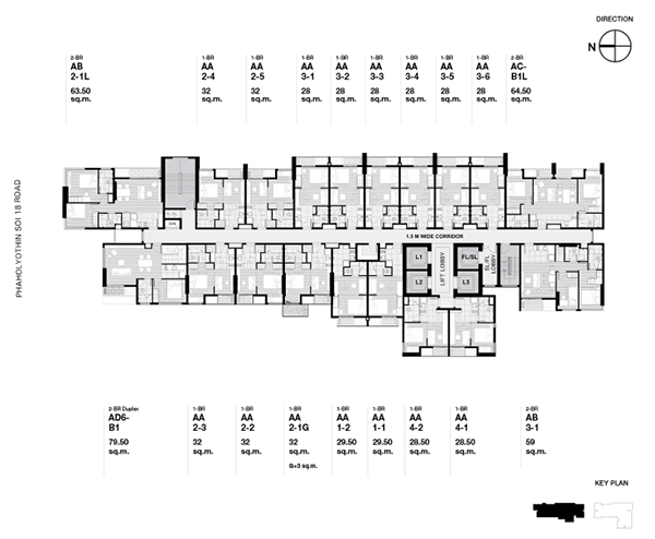
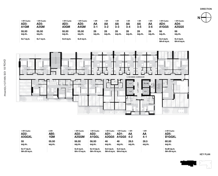
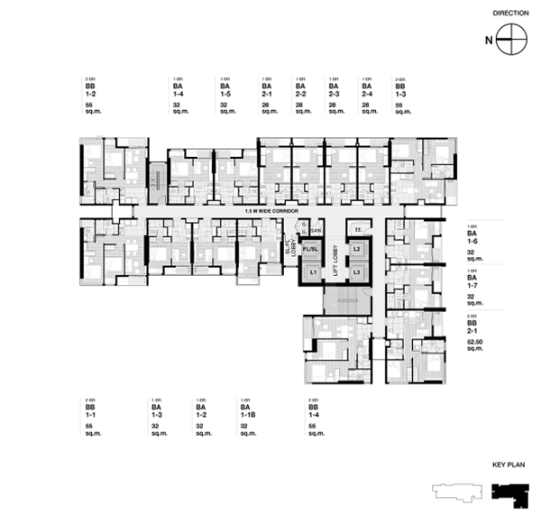
    อาคาร B

    ชั้น 1 : เป็นชั้นของ Facility

    ชั้น 8 : เป็นชั้นของ Facility ประกอบด้วย สระว่ายน้ำ, ห้องโยคะ, ห้องฟิตเนส, Sky lounge, ห้องสตีม, ห้องซาวน่า,
     ห้องอ่านหนังสือ และส่วนพักอาศัยอีก 7 ยูนิต

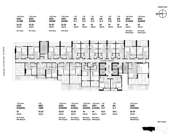
    ชั้น 9 : เป็นยูนิตพักอาศัยทั้งหมด 16 ยูนิต เป็นห้อง 1 Bedroom 11 ยูนิต และแบบ 2 Bedroom 5 ยูนิต 

    ชั้น 10-11, 15-16 และ 20-21 : มีห้องพักอาศัยทั้งหมด 16 ยูนิต แบ่งเป็นห้อง 1 Bedroom 11 ยูนิต
    และ 2 Bedroom 5 ยูนิต อยู่บริเวณห้องหัวมุม

    ชั้น 12 และชั้น 17 : คล้ายกับชั้น 10 แต่จะมีพื้นที่สีเขียวเล็กเพิ่มขึ้นมา

    ชั้น ชั้น 12A-14 และชั้น 18-19 : คล้ายกับชั้น 10

    ชั้น 22 และชั้น 27 : มีห้องพักอาศัยทั้งหมด 15 ยูนิต แบ่งเป็นห้องแบบ 1 Bedroom 9 ยูนิต
    และ 2 Bedroom 6 ยูนิต มีพื้นที่สีเขียวเล็กๆ

    ชั้น 23-24 และชั้น 28-29 : คล้ายกับชั้น 22 แต่ไม่มีพื้นที่สวนสีเขียว

    ชั้น 25 และชั้น 26 : คล้ายกับชั้น 22

    ชั้น 30 และชั้น 31 : มีห้องพักอาศัยทั้งหมด 14 ยูนิต แบ่งเป็น 1 Bedroom  9 ยูนิต
     แบบ 2 Bedroom  4 ยูนิต และแบบ 3 Bedroom 1 ยูนิต

    ชั้น 32 : คล้ายกับชั้น 30 แต่มีพื้นที่สวนสีเขียว

    ชั้น 33 และชั้น 34 : คล้ายกับชั้น 31

    ชั้น Roof top : เป็นลานปาร์ตี้ พื้นที่สำหรับชมวิว และลานนั่งสมาธิ
    ส่วนกลางและสิ่งอำนวยความสะดวก
    ต้องบอกว่าส่วนกลางถือเป็นจุดเด่นอีกหนึ่งอย่างของโครงการนี้เลย เพราะจัดมาให้ลูกบ้านแบบจัดหนักจัดเต็ม และเยอะมากๆ รวมกว่า 62 รายการ กระจายอยู่ทั้ง 2 อาคาร ซึ่งลูกบ้านสามารถใช้ส่วนกลางร่วมกันได้ทั้ง 2 อาคาร นอกจากนี้ยังมีพื้นที่สีเขียว และสปอร์ต อารีน่า (สนามกีฬาในร่ม) ตั้งอยู่ภายในโครงการอีกด้วย เรียกว่าลูกบ้านสามารถเล่นกีฬาได้ครบภายในโครงการแบบไม่ต้องไปเล่น Sport Club ที่ไหนอีกเลย โดยสิ่งอำนวยความสะดวกที่ได้ประกอบด้วย
    ชั้น Ground 
    • สนามกีฬาในร่มขนาดใหญ่ (Sport Arena) ประกอบด้วย สนามแบดมินตัน, สนามสตรีทบาสเก็ตบอล และสนามฟุตซอล
    • สนามเด็กเล่นเสริมทักษะ
    • ทางเดินในร่ม (ประตูใหญ่)
    • ทางเดินในร่ม (ด้านข้างโครงการ)
    • ป้อมพนักงานรักษาความปลอดภัย
    • จุดวนรถ
    • ลานวิ่งรอบโครงการ
    • พื้นที่ออกกำลังกายกลางแจ้ง
    • สวนหินนวดเท้า
    • ชิงช้าในสวน
    • ลานสัตว์เลี้ยง
    • ลานนั่งสมาธิ
    • ลานจัดปาร์ตี้บาร์บีคิว
    • ลานจอดรถจักรยาน
    • ห้องสำหรับพนักงานขับรถ
    • ลานล้างรถ

    ภาพจำลองบรรยากาศอาคาร Sport Arena

    ภาพจำลองบรรยากาศภายในอาคาร Sport Arena

    ภาพจำลองบรรยากาศลู่วิ่งรอบโครงการ

    ภาพสวนหิน และโซนชิงช้านั่งเล่นบางสวนภายในโครงการ
    อาคาร A : ชั้น Ground 
    • บ้านต้นไม้
    • ห้องซักผ้า
    • ห้องจดหมาย
    • ล็อบบี้เปิดเห็นวิวสวน
    • พนักงานเฝ้าประตู
    • โถงลิฟต์

    ภาพจำลองบรรยากาศบ้านต้นไม้

    บรรยากาศภายในสำนักงานขาย หรือล็อบบี้ของอาคาร A ในอนาคต

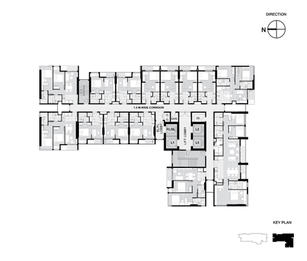
    ภาพบรรยากาศโถงทางเดินบนอาคารพักอาศัย กว้าง 1.5 เมตร
    ไฟบริเวณโถงทางเดินเปิด-ปิดด้วยระบบเซ็นเซอร์ช่วยในเรื่องประหยัดพลังงาน
    อาคาร A : ชั้น 32 
    • สกายพูลเลาจน์
    • โต๊ะพูล
    • สกายโยคะ
    • ห้องอ่านหนังสือ
    • ห้องสตีม
    • ห้องซาวน่า
    • ห้องฟิตเนสอุปกรณ์ครบครัน
    • สระเด็กพร้อมระบบ Bubble
    • สระว่ายน้ำขนาดใหญ่
    • สระว่ายน้ำระบบนวด
    • ลานพัทกอล์ฟ
    • ลานสปากลางแจ้ง

    ภาพจำลองสระว่ายน้ำของอาคาร A
    อาคาร A : ชั้น Roof Top
    • ลานอ่านหนังสือกลางแจ้ง
    • ลานปาร์ตี้กลางแจ้ง
    อาคาร B : ชั้น Ground
    • ล็อบบี้เปิดเห็นวิวสวน
    • สวนน้ำพร้อมที่นั่ง
    • พนักงานเฝ้าประตู
    • ห้องซักผ้า
    • โถงลิฟต์
    • ห้องจดหมาย
    อาคาร B : ชั้น 8 
    • สกายเลาจน์
    • ห้องฟิตเนสอุปกรณ์ครบครัน
    • สระว่ายน้ำพร้อมจากุซซี่
    • ลานอาบแดดรอบสระว่ายน้ำ
    • ห้องสตีม
    • ห้องซาวน่า
    • ห้องอ่านหนังสือ
    • โยคะ ฟลาย (โยคะแบบลอยตัว โดยใช้ผ้าเป็นอุปกรณ์เสริม)
    • โพลแดนซ์ (การออกกำลังกายชนิดหนึ่ง โดยใช้เสาแนวตั้ง)

    ภาพจำลองสระว่ายน้ำของอาคาร B
    อาคาร B : ชั้น Roof Top 
    • ลานปาร์ตี้กลางแจ้ง
    • ลานปาร์ตี้ต่างระดับ
    • พื้นที่นั่งชมวิวและจัดปาร์ตี้
    • ลานนั่งสมาธิกลางแจ้ง
    นอกจากนี้ยังมีสิ่งอำนวยความสะดวกอื่นๆ อีก อาทิ 
    • บริการรถรับส่ง
    • WI-FI พื้นที่ส่วนกลางตลอด 24 ชม.
    • ระบบรักษาความปลอดภัยตลอด 24 ชม.
    • ระบบลิฟต์ความเร็วสูง
    • ระบบการระบายอากาศและรับแสงธรรมชาติ
    • ระบบบำบัดน้ำเสีย
    • พื้นที่จอดรถ 50%
    ภาพห้องตัวอย่างและ Lay Out
    โครงการนี้ขายแบบ Fully Furnished โดยภายในห้องจะได้ทั้งเฟอร์นิเจอร์ Built-in และเฟอร์นิเจอร์ลอยตัวแบบ Multi-Function พร้อมเครื่องใช้ไฟฟ้า อาทิ ตู้เย็น เครื่องซักผ้า ไมโครเวฟ เตาไฟฟ้า ที่ดูดควัน เครื่องทำน้ำร้อน และเครื่องปรับอากาศ รวมไปถึงไฟหลืบ ไฟซ่อนทุกจุดภายในห้องด้วย เรียกว่าได้เกือบทุกอย่างตามที่เห็นในห้องตัวอย่าง ยกเว้น ทีวี ผ้าม่าน ฟูกที่นอน วอลล์เปเปอร์ และพร็อพตกแต่งเท่านั้นที่ไม่ได้ 
    ในส่วนของห้องพักอาศัยถือว่ามีความพิเศษกว่าหลายๆ โครงการ โดยภายในห้องจะมีเพดานสูงมากเป็นพิเศษ Floor to Ceiling ของห้องนอน และห้องนั่งเล่นสูงถึง 2.8 เมตร ส่วนห้องครัว และห้องน้ำสูง 2.6 เมตร ทำให้ห้องดูโปร่ง และไม่อึดอัด ทางโครงการออกแบบมาให้เลือก 2 สไตล์ด้วยกันคือ
    • แบบเมซี่ (Macy) จะเป็นโทนสีอ่อน อบอุ่น นุ่มนวล สีที่ทางโครงการนำมาใช้ก็จะประมาณ สีครีม สีเบส สีขาว ทำให้ห้องดูโปร่ง และดูกว้าง
    • แบบมาร์ติน (Martin) จะเป็นโทนสีเข้ม สีที่ทางโครงการนำมาใช้ก็จะประมาณ สีเทา ดำ ให้ความรู้สึกสุขุม หนักแน่น
    โดยห้องพักอาศัยทั้งโครงการแบ่งออกเป็น 6 Type ด้วยกัน
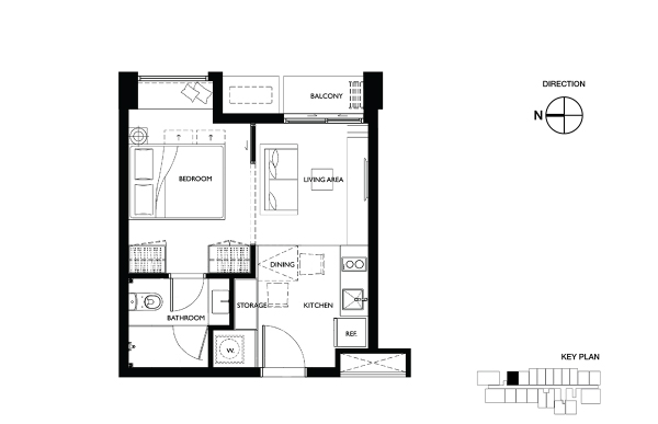
    1. ห้องแบบ 1 ห้องนอน สวีท พื้นที่ใช้สอย 28 - 29.5 ตร.ม.
      (คลิกเพื่อชมแปลนห้องขนาด 28 ตร.ม.)
    2. ห้องแบบ 1 ห้องนอน พื้นที่ใช้สอย 28.5 - 35.5 ตร.ม.
      (คลิกเพื่อชมแปลนห้องขนาด 32 ตร.ม.)
    3. ห้องแบบ 1 ห้องนอน ดูเพล็กซ์ พื้นที่ใช้สอย 46 - 56.5 ตร.ม.
      (คลิกเพื่อชมแปลนห้องขนาด 56.5 ตร.ม. Upper)
      (คลิกเพื่อชมแปลนห้องขนาด 56.5 ตร.ม. Lower)
    4. ห้องแบบ 2 ห้องนอน พื้นที่ใช้สอย 48 - 64.5 ตร.ม.
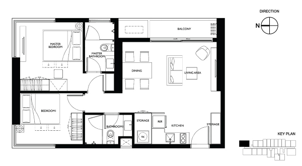
      (คลิกเพื่อชมแปลนห้องขนาด 62.5 ตร.ม.)
    5. ห้องแบบ 2 ห้องนอน ดูเพล็กซ์ พื้นที่ใช้สอย 79.5 - 80.5 ตร.ม.
      (คลิกเพื่อชมแปลนห้องขนาด 80.5 ตร.ม. Upper)
      (คลิกเพื่อชมแปลนห้องขนาด 80.5 ตร.ม. Lower)
    6. ห้องแบบ 3 ห้องนอน พื้นที่ใช้สอย 118 ตร.ม.
      (คลิกเพื่อชมแปลนห้องขนาด 118 ตร.ม.)
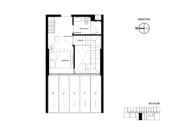
    ห้องที่เราพามาชมกันในวันนี้เป็นห้องตัวอย่างที่ตั้งอยู่บนอาคารจริงซึ่งอยู่บนชั้น 15 ของอาคาร A โดยเราจะพาไปชมด้วยกัน 3 ห้อง คือห้องแบบ 1 ห้องนอน (Macy), 1 ห้องนอน (Martin) และแบบ 2 ห้องนอน (Macy) ค่ะ
    ห้องตัวอย่างแบบ 1 ห้องนอน สวีท ขนาด 28.00 ตร.ม. (แบบ Macy)


    ได้ Digital Door Lock ของ Samsung พร้อมมือจับแบบก้านโยก

    เดินเข้าประตูมาจะเจอกับโซนของห้องครัว ซึ่งเป็นแบบครัวเปิด พื้นครัวปูด้วยกระเบื้องแกรนิตโต้ขนาด 60 x 60 ซม.
    จากจุดนี้มองย้อนกลับไปจะเห็นว่าประตูที่ได้เป็นแบบ Oversize ขนาดใหญ่พิเศษ
    ผนังภายในห้องจะเป็นฉาบเรียบทาสีครีม (สำหรับห้อง Macy)

    ได้ชุดเคาน์เตอร์ครัวพร้อมพื้นที่เก็บของทั้งข้างบน และข้างล่างตามแบบห้องตัวอย่าง ทุกบานเป็นแบบ Soft Close
    ตู้ใต้อ่างล้างจานติดตั้งถังขยะมาให้ ที่ผนัง Backsplash กรุกระเบื้องมาให้ พร้อมไฟราว
    พื้นที่วางตู้เย็นอยู่ทางขวามือ ซึ่งตู้เย็นในห้องตัวอย่างมีขนาด 7.5 คิว

     หน้า Top เคาน์เตอร์ครัวเป็นหินสังเคราะห์โทนสีขาว อ่างล้างจานแบบฝังทรงสี่เหลี่ยมพร้อมก๊อกน้ำของ Mex

    ได้เตาไฟฟ้า 2 หัว และเครื่องดูดควันระบบดูดออกด้านนอกของ Electrolux

    ได้ไมโครเวฟของ Electrolux ช่องสำหรับใส่จะอยู่ด้านล่างสะดวกต่อการใช้งาน

    ได้โต๊ะทานข้าวแบบมัลติฟังก์ชั่น เวลาไม่ใช้ก็สามารถพับเก็บได้ พร้อมชุดเก้าอี้ 2 ที่นั่ง (เบาะรองนั่งสีขาว)
    ตรงข้ามครัวเป็นห้องน้ำ และตู้เก็บของ

    สุขภัณฑ์ภายในห้องน้ำของ American Standard  กระจกเงาเป็นแบบบานเปิด 2 บาน สามารถเก็บของได้
    ได้ฉากกั้นอาบน้ำแบบเปิดเข้าด้านใน มือถือเป็นอะลูมิเนียม พร้อมเครื่องดูดอากาศของ Panasonic

    อ่างล้างหน้า Built-in สีขาว มีพื้นที่สำหรับวางอุปกรณ์อาบน้ำ ก๊อกน้ำแบบปรับน้ำร้อนน้ำเย็นได้

    ใต้อ่างล้างหน้ามีตู้เก็บของ ติดเครื่องทำน้ำร้อนมาให้เรียบร้อย

    ได้ชุดฝักบัวของ American Standard เจาะผนังบางส่วนสำหรับวางอุปกรณ์อาบน้ำ

    หน้าห้องน้ำได้ตู้ Built-in สูงจรดฝ้า สำหรับเก็บรองเท้า
    และมีช่องสำหรับเก็บอุปกรณ์ทำความสะอาดจำพวกไม้กวาด หรือไม้ถูพื้น ด้านบนเป็นตู้เก็บของแบบบานเปิด

    ถัดจากห้องครัวจะเป็นส่วนของห้องนั่งเล่น พื้นห้องนั่งเล่นและห้องนอนปูด้วยลามิเนต 12 มม.

    ที่ห้องนั่งเล่นได้โซฟาขนาด 2 ที่นั่งสีขาว พร้อมโต๊ะกลาง และแอร์ของ TRANE ขนาด 12,000 BTU
    ได้ระยะดูทีวีค่อนข้างกว้าง

    ด้านล่างของชั้นวางทีวีก็เป็นตู้สำหรับเก็บของได้อีกเช่นกัน เวลาเปิดระวังชนเก้าอี้ด้วยนะคะ

    ห้องนอนกั้นด้วยประตูกระจกบานเลื่อน 3 ตอน กรอบสีดำสูงจรดฝ้า

    รางประตูแบบฝังพื้น ข้อดีคือไม่ต้องกลัวว่าจะสะดุด

    ได้เตียงขนาด 5 ฟุต พร้อมโต๊ะข้างเตียง ผนังที่หัวเตียงที่ได้จริงเป็นฉาบเรียบทาสี ไม่ได้วอลล์เปเปอร์

    มีลิ้นชักเก็บของใต้เตียง

    ปลายเตียงได้ตู้เสื้อผ้าแบบบานเปิด มีไฟในตู้ และในห้องนอนยังได้แอร์ขนาด 9,000 BTU อีก 1 เครื่อง

    ปลายเตียงเหลือระยะเดินประมาณ 75 ซม.

    ติดกับตู้เสื้อผ้าได้โต๊ะมัลติฟังก์ชั่น สามารถเปิดขึ้นมาเป็นโต๊ะเครื่องแป้ง หรือจะปิดลงไปทำเป็นโต๊ะทำงานก็ได้

    ประตูระเบียงบานเลื่อนแบบ 2 ตอน ธรณีประตูยกค่อนข้างสูงประมาณ 15 ซม. ระวังสะดุดด้วยนะคะ

    เปิดออกไปจะเป็นวิวฝั่งทิศตะวันตก

    ราวระเบียงสูงประมาณ 1.5 เมตร

    คอมเพรสเซอร์แอร์ และเครื่องซักผ้าอยู่ด้านข้าง มีกริลปิดให้มิดชิดเป็นสัดส่วน

    ที่ระเบียงมีราวตากผ้าให้สามารถพับเก็บได้

     ปลั๊ก สวิตช์สีครีม (ถ้าเป็นห้อง Martin ปลั๊กจะเป็นสีเทา) ของ Panasonic
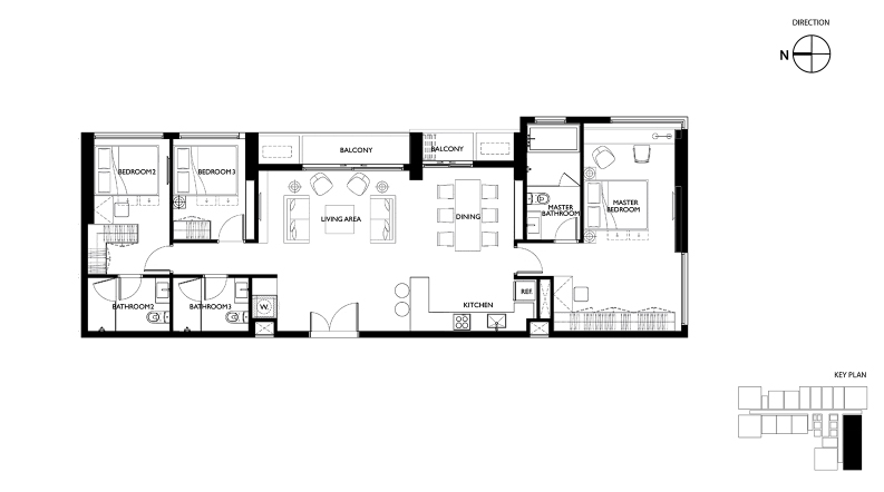
    ห้องตัวอย่างแบบ 2 Bedroom ขนาด 62.50 ตร.ม.


    เดินเข้ามาทางซ้ายจะเจอกับส่วนของห้องครัวที่เชื่อมต่อกับห้องนั่งเล่น

    ห้องนี้ได้ชุดครัวขนาดใหญ่ขึ้นรูปทรงตัว L แบบครัวเปิด

    ก๊อกน้ำ และอ่างล้างจานเหมือนห้องที่แล้ว

    ได้เตาไฟฟ้า เครื่องดูดควัน ไมโครเวฟ และตู้เย็นของ Electrolux

    ทางขวาหรือด้านหลังของประตูจะได้ตู้บานเปิดสูงจรดฝ้า สำหรับเก็บรองเท้าหรือเก็บของ
    ที่ห้องนั่งเล่นได้ชั้นวางทีวีแบบ Built-in สูงจรดฝ้าเช่นกัน

    ห้องนั่งเล่นได้โซฟาสีขาวขนาด 2 ที่นั่ง พร้อมโต๊ะกลาง ซึ่งเหลือพื้นที่อีกพอสมควรจะวางโซฟาเป็นแบบตัว L ก็ยังได้
    มีระยะดูทีวีประมาณ 2.5 เมตร ประตูระเบียงกระจกบานเลื่อน 2 ตอน พื้นที่ระเบียงใหญ่กว่าห้องที่แล้ว ได้วิวสวนจตุจักร
    ด้านหลังโซฟาเป็นพื้นที่ทานอาหาร ได้โต๊ะทานอาหาร พร้อมชุดเก้าอี้ 4 ที่นั่ง

    ในโซนห้องนั่งเล่นได้แอร์ 1 ตัว
    ฝั่งตรงข้ามโต๊ะทานอาหารเป็นตู้เก็บของ ที่เก็บเครื่องซักผ้า และห้องน้ำ

    เปิดดูภายในตู้หน้าตาแบบนี้ค่ะ ปิดมิดชิดเป็นสัดส่วน พื้นของห้องนี้จะปูด้วยกระเบื้องแกรนิตโต้

    ห้องน้ำนี้ใช้ร่วมกันระหว่างห้องนอนเล็กกับโซนห้องนั่งเล่น ภายในห้องน้ำของ American Standard เหมือนเดิม

    ได้ฉากกั้นอาบน้ำเหมือนห้องที่แล้ว

    เดี๋ยวเข้าไปดูในโซนห้องนอนกันต่อค่ะ

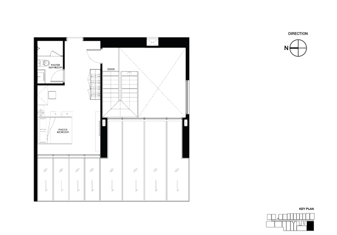
    เข้ามาดูภายในห้องนอนใหญ่ หรือห้อง Master bedroom ประตูห้องเป็นมือจับก้านโยก
    ด้านหลังประตูได้ตู้เก็บของบานเปิด ที่พื้นติดตัวกันกระแทกมาให้
    ติดกับตู้เสื้อผ้าจะเป็นห้องน้ำ

    ในห้องน้ำจะได้หน้าต่างบาน Fix 1 บาน เพื่อเป็นช่องให้แสงธรรมชาติผ่านเข้ามาช่วยทำให้ห้องน้ำไม่อับชื้น
    ส่วนโซนห้องนอนได้หน้าต่างเข้ามุม มีบานกระทุ้ง 1 บาน

    ข้างเตียงได้โต๊ะแบบมัลติฟังก์ชั่น จะทำเป็นโต๊ะทำงาน หรือเปิดขึ้นมาทำเป็นโต๊ะเครื่องแป้งก็ได้
    ปลายเตียงเป็นชั้นวางทีวี มีช่องเก็บของด้านล่าง

    ผนังหัวเตียงที่ได้เป็นแบบฉาบเรียบทาสี ได้โต๊ะข้างเตียง และแอร์อีก 1 ตัว

    ติดกับโต๊ะมัลติฟังก์ชั่น จะเป็นตู้เสื้อผ้าบานเปิด ภายในตู้มีลิ้นชักเก็บของ
    ระยะเดินปลายเตียง 1.25 เมตร

    ในห้องนอนเล็กได้เตียงขนาด 5 ฟุต หน้าต่างเข้ามุม พร้อมแอร์อีก 1 ตัว

    ตำแหน่งตู้เสื้อผ้าอยู่ใกล้กับประตูทางเข้าห้อง
    ห้องตัวอย่างแบบ 1 ห้องนอน ขนาด 32.00 ตร.ม. (แบบ Martin)

    ประตูขนาด Oversize

    เปิดเข้ามาจะเป็นโซนของห้องครัว เชื่อมต่อกับส่วนของห้องนั่งเล่น
    หน้า Top ชุดเคาน์เตอร์ครัวเป็นหินสังเคราะห์สีดำ ผนังห้องที่ได้จะเป็นฉาบเรียบทาสีเทา ที่ห้องนั่งเล่นได้แอร์ 1 ตัว

    ตรงข้ามเคาน์เตอร์ครัวเป็นโต๊ะทานอาหาร พร้อมเก้าอี้ 2 ที่นั่ง (เบาะรองนั่งสีดำ)

    ได้โซฟาขนาด 2 ที่นั่งสีดำ
    ห้องนอนกั้นด้วยประตูกระจกบานเลื่อน 3 ตอน ห้องน้ำ และตู้เสื้อผ้าอยู่ภายในห้องนอน

    ห้องนอนได้เตียงขนาด 5 ฟุต พร้อมโต๊ะข้างเตียงสีดำ และแอร์
    ได้โซฟาขนาด 3 ที่นั่งวางชิดติดกับหน้าต่าง หากเปิดเบาะขึ้นมาด้านล่างเป็นพื้นที่สำหรับเก็บของได้
    ผนังหัวเตียงที่ได้จะเป็นผนังฉาบเรียบทาสีเทา

    สุขภัณฑ์ภายในห้องน้ำของ American Standard เหมือนห้องที่แล้ว
    ราคาและค่าใช้จ่ายที่เกี่ยวข้องโดยประมาณ (6 มิ.ย. 2560)
    • ราคาเริ่มต้น 3.99 ล้านบาท
    • ราคาเฉลี่ยต่อตารางเมตร 140,000 บาท
    ค่าใช้จ่ายอื่นๆ ของโครงการ
    • ค่าส่วนกลางอัตรา 50 บาท ต่อ ตร.ม. ต่อเดือน จ่ายล่วงหน้า 1 ปี
    • ค่ากองทุน 500 บาท ต่อ ตร.ม. ชำระครั้งเดียว ณ วันโอนกรรมสิทธิ์ 
    เงื่อนไขการชำระเงิน
    • แบบ 1 ห้องนอน จอง 50,000 บาท
    • แบบ 2 ห้องนอน จอง 100,000 บาท
    • แบบ 3 ห้องนอน จอง 150,000 บาท
    • ทำสัญญา 5% ภายใน 14 วันนับจากวันจอง
    • โอนกรรมสิทธิ์ 95%
    สถานะปัจจุบันของโครงการ (6 มิ.ย. 2560)
    ปัจจุบันโครงการ เอ็ม จตุจักร เปิดขายแล้วทั้ง 2 อาคาร มียอดขายไปแล้วประมาณ 70% โครงการจะสร้างเสร็จประมาณปลายปี 60 สำหรับผู้ที่สนใจสามารถเข้าชมห้องตัวอย่างบนอาคารจริงได้แล้ววันนี้ที่สำนักงานขายโครงการ ตั้งแต่เวลา 9.30-18.30 น. ของทุกวัน ปัจจุบันมีโปรโมชั่นยูนิตราคาพิเศษ
    สอบถามรายละเอียดเพิ่มเติม Call Center 02-116-1111 หรือ www.mde.co.th/mjatujak
    ดูรายละเอียดโครงการ เอ็ม จตุจักร

    รีวิว-พรีวิวล่าสุดอื่นๆ

    คอนโดติดรถไฟฟ้าล่าสุด

เว็บไซต์นี้มีการเก็บคุกกี้เพื่อเพิ่มความพึงพอใจในการใช้งานเว็บไซต์ และช่วยให้เราปรับปรุง และนำเสนอเนื้อหาตรงตามความสนใจของท่าน ท่านสามารถดู Privacy Notice และ ดู Cookies Policy ของเราได้ ที่นี่ ทั้งนี้ ท่านจะยินยอมให้เราเก็บคุกกี้ทั้งหมด หรือให้เก็บแค่บางส่วนโดยการคลิกเลือก ตั้งค่า

ท่านสามารถเลือกให้ความยินยอมการเก็บคุกกี้เป็นเรื่องๆ ได้ที่นี่

เมื่อคุณเข้าชมเว็บไซต์ หรือแอปพลิเคชั่น checkraka เราอาจจัดเก็บ หรือดึงข้อมูลจากเบราว์เซอร์ของคุณในรูปแบบของคุกกี้ และเทคโนโลยีอื่นที่คล้ายคลึง เช่น tag และ pixel (เรียกรวมกันว่า “คุกกี้”) ซึ่งมักเป็นข้อมูลที่ไม่สามารถระบุตัวตนได้โดยตรง แต่ช่วยให้คุณใช้งานเว็บไซต์ได้ปลอดภัย และตรงตามความต้องการมากขึ้น คุณอาจไม่ยินยอมให้เราเก็บคุกกี้บางประเภทได้ โดยการคลิกตามหัวข้อข้างล่างนี้

ประเภทคุกกี้
อ่านเพิ่มเติม ที่นี่
ยินยอม / ไม่ยินยอม
คุกกี้ที่จำเป็นต้องมีเสมอ
(Strictly Necessary)
คุกกี้สำหรับการใช้งานเว็บไซต์
(Functionality)
คุกกี้เพื่อเพิ่มประสิทธิภาพและวิเคราะห์
(Performance & Analytics)
คุกกี้เพื่อการตลาด
(Marketing)