ประเมินวงเงินรู้ผลใน 3 นาที
กับ กรุงศรี ออโต้ พร้อมสตาร์ท

เริ่มประเมินวงเงินพร้อมสตาร์ท
ผ่านมือถือ สแกนเลย

ดูวงเงินพร้อมสตาร์ทที่ได้รับ

  • คอนโด
  • คอนโด
  • ค้นหาแบบละเอียด
  • รีวิว-เยี่ยมชม มาเอสโตร 19 รัชดา 19 - วิภา (MAESTRO 19 Ratchada19 - Vipha)

    11 ก.ย. 60 11,858
    รีวิว-เยี่ยมชม คอนโดมาเอสโตร 19 รัชดา 19 - วิภา (MAESTRO 19 Ratchada19 - Vipha)
    วันนี้ CheckRaka.com จะพาไปทุกท่านไปเยี่ยมชมโครงการ มาเอสโตร 19 รัชดา 19 - วิภา (MAESTRO 19 Ratchada19 - Vipha) จากบริษัท เมเจอร์ ดีเวลลอปเม้นท์ จำกัด (มหาชน) ถือเป็นโครงการที่ 8 ในกลุ่มมาเอสโตร เรสซิเดนซ์ โดยยังคงเป็นคอนโด Low-rise ในสไตล์ "Classic Inspired, Modern Twist" ที่มีความคลาสสิกผสมผสานกับความเป็นโมเดิร์นเช่นเคย โดยโครงการนี้ออกแบบมาภายใต้คอนเซปต์ "อินดัสเตรียล เอลลิแกนท์" (Industrial Elegance) เดินทางสะดวกสบายเพียง 650 เมตรถึงสถานี MRT รัชดาภิเษก พร้อมบริการรถรับ-ส่งจากโครงการ นอกจากนี้ยังเอาใจคนรักสัตว์ โดยสามารถเลี้ยงสัตว์ได้อย่างถูกต้องไม่ต้องหลบซ่อน (Pet friendly) อีกด้วย โครงการนี้จะมีความน่าสนใจอย่างไรตามไปชมกันค่ะ
    ข้อมูลโครงการ
    • เจ้าของโครงการ: บริษัท เมเจอร์ ดีเวลลอปเม้นท์ จำกัด (มหาชน) 
    • ที่ตั้งโครงการ: ซอยรัชดาภิเษก 19 / ซอยวิภาวดีรังสิต 16 (ซอยโชคชัยร่วมมิตร)
    • อาคารชุดพักอาศัย: Low-Rise สูง 8 ชั้น จำนวน 4 อาคาร + ชั้นใต้ดิน (ตึกB,C) และอาคารส่วนกลาง สูง 3 ชั้น 1 อาคาร
    • จำนวนห้อง: 560 ยูนิต
    • ขนาดที่ดินทั้งโครงการ: 5-1-3.4 ไร่
    • ลิฟต์โดยสาร 2 ตัวต่ออาคาร และ Clubhouse มีลิฟต์โดยสาร 1 ตัว
    • ห้องชุดพักอาศัย: 1 ห้องนอน 29.00 - 38.00 ตร.ม. แบบ 1 ห้องนอน พลัส 42.00 ตร.ม. และ 2 ห้องนอน 59.00 ตร.ม.
    • ที่จอดรถ: 344 คัน คิดเป็น 61.5% ไม่รวมจอดซ้อนคัน หรือ 63% รวมซ้อนคัน
    • ราคาเริ่มต้น 2.8 ล้านบาท (ณ วันที่ 6 มิ.ย. 60)
    • สถานะ: อยู่ระหว่างดำเนินการก่อสร้าง เริ่มก่อสร้าง ตุลาคม 2560 และคาดว่าจะเสร็จประมาณ กันยายน 2562
    • วันที่เข้าเยี่ยมชม-รีวิวคอนโด ข้อมูล ณ วันที่ 6 มิ.ย. 60
    เจ้าของและผู้พัฒนาโครงการ
    บริษัท เมเจอร์ ดีเวลลอปเม้นท์ จำกัด (มหาชน) ก่อตั้งขึ้นเมื่อปี พ.ศ. 2542 และจดทะเบียนกับตลาดหลักทรัพย์แห่งประเทศไทยในปี 2550 พัฒนาโครงการที่พักอาศัย  คอนโดมิเนียมแบบไฮไรซ์และโลว์ไรซ์คุณภาพระดับไฮเอนด์ ทั้งด้านการออกแบบ การก่อสร้างที่มีเอกลักษณ์โดดเด่นเฉพาะตัว บนทำเลทองใจกลางเมืองทั่วเขตกรุงเทพฯ และยังเป็นรายแรกๆ ในประเทศไทยที่สร้างคอนโดมิเนียมคอนเซปต์ Pet-Friendly ปัจจุบันบริษัทฯ ได้พัฒนาโครงการคอนโดมิเนียมที่เสร็จแล้วทั้งหมด 9 โครงการ และมีโครงการที่กำลังดำเนินการพัฒนาอีก 6 โครงการ ได้แก่ เอ็ม จตุจักร, มาเอสโตร 07 อนุสาวรีย์ชัยฯ, มาเอสโตร 03 รัชดา-พระราม 9 , มาเอสโตร 14 สยาม-ราชเทวี, มาเอสโตร 01 สาทร-เย็นอากาศ และมาเอสโตร 19 รัชดา19-วิภา โดยมูลค่าโครงการทั้งหมดรวมประมาณ 50,000 ล้านบาท 
    ทำเลที่ตั้ง    

    แผนที่ตั้งโครงการ (คลิกเพื่อดูภาพขยาย)

    แผนที่ตั้งโครงการและสถานที่ใกล้เคียง
    (คลิกเพื่อดูภาพขยาย) (คลิกเพื่อดู Google Map)

    เซ็นทรัลลาดพร้าว ห่างจากโครงการประมาณ 3 กิโลเมตร

    ยูเนี่ยน มอลล์ ห่างจากโครงการประมาณ 3 กิโลเมตร

    เอสพลานาด ห่างจากโครงการประมาณ 4.4 กิโลเมตร

    เซ็นทรัล พระราม 9 ห่างจากโครงการประมาณ 5.4 กิโลเมตร

    ฟอร์จูนทาวน์ ห่างจากโครงการประมาณ 5.4 กิโลเมตร

    จีแลนด์ทาวเวอร์ อยู่ห่างจากโครงการประมาณ 5.5 กิโลเมตร
    การเดินทาง
    1. การเดินทางด้วยรถยนต์
    • การเดินทางเข้าโครงการเส้นทางที่ 1 ใช้ถนนรัชดาภิเษก

    เริ่มต้นที่แยกพระราม 9 กันนะคะ เราจะมุ่งหน้าไปตามถนนรัชดาภิเษกกันค่ะ

    ข้ามแยกพระราม 9 มา สองข้างทางก็อุดมไปด้วยห้างสรรพสินค้า อาคารสำนักงาน รวมถึง MRT สถานีพระราม 9 ด้วยค่ะ

    ผ่านเอสพลานาด รัชดา

    ผ่านบิ๊กซี รัชดา อยู่ติดๆ กันเลยนะคะ

    มุ่งหน้าต่อลงอุโมงค์เพื่อข้ามแยกตลาดห้วยขวาง

    ลงอุโมงอีกครั้ง เพื่อข้ามแยกรัชดา-สุทธิสาร

    ขึ้นจากอุโมงค์แล้วเตรียมชิดซ้ายที่บุญถาวร รัชดา ได้เลยนะคะ 

    เลยบุญถาวรมาจะเป็น MRT สถานีรัชดาภิเษก

    เลี้ยวซ้ายเข้าซอยรัชดา 19 ได้เลยค่ะ

    เข้ามาในซอยรัชดา 19 เราจะเห็นทางแยกซ้ายขวา มีร้าน 7-11 อยู่ตรงกลาง เราเลี้ยวซ้ายกันเลยค่ะ

    มุ่งหน้าต่อ แล้วเลี้ยวขวาก่อนถึงโรงเรียนปัญจทรัพย์

    เดินทางต่อประมาณ 500 เมตรก็ถึงโครงการแล้วค่ะ
    • การเดินทางเข้าโครงการเส้นทางที่ 2 ลงจากทางยกระดับอุตราภิมุข เข้ามายังโครงการฝั่งวิภาวดี
    • การเดินทางออกจากโครงการเส้นทางที่ 1 เข้าเมืองโดยขึ้นทางยกระดับอุตราภิมุข
    • การเดินทางออกจากโครงการเส้นทางที่ 2 เดินทางออกไปยังถนนลาดพร้าว
    2. การเดินทางด้วยรถไฟฟ้า
    การเดินทางด้วยรถไฟฟ้าในย่านรัชดา ปัจจุบันมีรถไฟฟ้า MRT สายสีน้ำเงินเปิดให้ใช้บริการอยู่ ซึ่งโครงการนี้ก็ตั้งอยู่ห่างจาก MRT สถานีรัชดาภิเษกแค่ 650 เมตรเท่านั้นเองนะคะ ไม่เพียงเท่านั้น เส้นทางรถไฟฟ้าในอนาคตจะทำให้การเดินทางเชื่อมต่อในเมืองนั้นง่ายดาย
    • รถไฟฟ้าสายสีน้ำเงิน ถือเป็นสายหลักที่เชื่อมย่านรัชดาให้ต่อกับย่านพระราม 9 หรือจะเป็นย่านอโศก ได้สะดวก ซึ่งในอนาคตจะมีส่วนต่อขยายไปช่วงบางซื่อ-ท่าพระ และหัวลำโพง-บางแค ซึ่งคาดว่าจะเปิดให้ใช้บริการได้ในปี 62 
    • รถไฟฟ้าสายสีเขียวเข้ม ช่วงหมอชิต-สะพานใหม่-คูคต คาดว่าจะสร้างเสร็จในปี พ.ศ. 2562 และเปิดให้บริการปี พ.ศ. 2563
    • รถไฟฟ้าสายสีเหลือง ช่วงลาดพร้าว-สำโรง จำนวน 23 สถานี ระยะทาง 30 กิโลเมตร เริ่มที่สถานีรัชดา เชื่อมต่อกับรถไฟฟ้าสายสีน้ำเงิน กับสถานีลาดพร้าว สิ้นสุดที่สถานีสำโรง เชื่อมต่อกับรถไฟฟ้าสายสีเขียว 
    สภาพแวดล้อมใกล้เคียง

    สภาพแวดล้อมรอบๆ โครงการ 
    (คลิกเพื่อดูภาพขยาย)

    ก่อนอื่นเราลองเริ่มเดินทางที่ตั้งโครงการไปที่ปากซอยรัชดา 19 กันก่อนดีกว่าค่ะ

    ในซอยรัชดา 19 บอกเลยว่า มีร้านอาหารและร้านกาแฟเยอะมากเลยนะคะ

    ผ่านร้านกาแฟเล็กๆ น่ารักดีค่ะ ชื่อร้านว่า Chin Coffee

    ทีร้าน 7-11 ตรงนี้มีที่จอดรถให้ด้วย

    Tesco Lotus Express ก็มีนะคะ

    ร้านอาหารเวียดนามแถวนี้ก็อร่อยขึ้นชื่อนะคะ ลองแวะมาชิมกันได้เลย

    มีตลาดนัดด้วยค่ะ ขายของกินของใช้ทั่วไป

    ทั้งสองข้างทางส่วนใหญ่จะเป็นอาคารพาณิชย์ มีร้านซ่อมรถ ซ่อมสารพัดซ่อมเลย สลับกับร้านอาหารที่หลากหลายมาก

    Family Mart ก็มีเหมือนกัน 

    เรากลับมาที่หน้าโครงการกันบ้างค่ะ คราวนี้ลองเดินไปดูทางที่จะทะลุไปถนนวิภาวดีกันบ้าง

    เส้นทางนี้มีทั้งอาคารพาณิยช์และทาวโฮม มีร้านอาหาร ร้านกาแฟ สลับกันไปค่ะ

    ใครอยากทานส้มตำนี่เลย ร้านนัวคัก แซบนัวสมชื่ออีหลีเด้อ นอกจากนี้ยังมีร้านอาเล็กราชวงศ์ อร่อยขึ้นชื่อด้วย
    แถมสุดซอยรัชดา 19 ติดถนนวิภาวดียังมีร้านโจ๊กฮ่องเต้ เปิดตั้งแต่บ่าย 3 โมงถึง 11 โมงกันเลยทีเดียว 
    รูปแบบตึก และตัวโครงการโดยรวม
    โครงการ Maestro 19 ตั้งอยู่บนพื้นที่ 5-1-3.4 ไร่ ถือเป็นโครงการที่มีขนาดใหญ่ที่สุดภายใต้แบรนด์ มาเอสโตร เรสซิเดนซ์ (MAESTRO RESIDENCES) ออกแบบภายใต้คอนเซปต์ "อินดัสเตรียล เอลลิแกนท์ (Industrial Elegance)" ที่มีความทันสมัยและดูเป็นวัยรุ่นมากขึ้น โดยส่วนประกอบที่นำมาใช้ในการตกแต่งจะเป็นเหล็ก และหนัง เอามาทำให้ดูโมเดิร์นมากขึ้นแต่ในขณะเดียวกันก็ยังคงไม่ทิ้งความเป็น Luxury ซึ่งยังคงความคลาสสิกผสมผสานกับความเป็นโมเดิร์น และมีเอกลักษณ์เฉพาะตัวในสไตล์ "Classic Inspired, Modern Twist" ตามแบบฉบับของแบรนด์มาเอสโตรเช่นเคย
    โครงการนี้มีอาคารพักอาศัยล้อมรอบโครงการและส่วนกลางไว้ ด้วยการวางผังแบบนี้ทำให้มีการหมุนเวียนของลมและได้รับลมและแดดได้พอเหมาะตลอดทั้งปี ให้ความรู้สึกร่มรื่นเป็นส่วนตัวเหมือนอยู่บ้านใจกลางเมืองบนพื้นที่กว่า 5 ไร่ ประกอบไปด้วยอาคาร A, B, C และอาคาร D มีห้องพักอาศัยทั้งหมด 560 ยูนิต โดยห้องพักส่วนใหญ่เป็นแบบ 1 ห้องนอน และก็มีเพียงห้องมุมเท่านั้นที่เป็นห้องแบบ 2 ห้องนอน โดยข้อดีของคอนโดมิเนียมแบบ Low-Rise คือ จำนวนยูนิตไม่มาก ไม่วุ่นวาย ทำให้มีความเป็นส่วนตัวสูง สำหรับส่วนพักอาศัยจะอยู่ตั้งแต่ชั้น 2-8 ทั้งหมด
    เนื่องจากทางโครงการค่อนข้างให้ความสำคัญกับความเป็นส่วนตัวของลูกบ้านดังนั้นจึงออกแบบให้แต่ละอาคารมีระยะค่อนข้างเยอะไม่ได้อยู่ในระยะประชิด โดยมีระยะห่างอยู่ที่ประมาณ 70 เมตร กับ 35 เมตร เป็นระยะที่ห่างพอสมควรทีเดียว
    ส่วนชั้นดาดฟ้าหรือ Roof top ด้านบนของแต่ละอาคารออกแบบมาเป็นพื้นที่สำหรับ BBQ Garden ให้ลูกบ้านสามารถขึ้นมาพักผ่อนข้างบนหรือปาร์ตี้เล็กๆ ข้างบนได้ มีลิฟต์โดยสารให้อาคารละ 2 ตัว อัตราส่วนการใช้ลิฟต์อยู่ที่ 70:1 ถือว่าเป็นตัวเลขที่ดีไม่หนาแน่นจนเกินไป
    มีอาคารส่วนกลาง หรือคลับเฮ้าส์สูง 3 ชั้น 1 อาคาร แยกออกจากอาคารพักอาศัย ซึ่งตั้งอยู่บริเวณตรงกลาง พื้นที่จอดรถอยู่ที่ชั้น 1 ของแต่ละอาคาร และพิเศษที่อาคาร B และ C ที่จะมีพื้นที่จอถรถที่ชั้นใต้ดินมาให้ด้วยอีก 1 ชั้น รวมทั้งหมดถือว่าให้ที่จอดรถมาค่อนข้างเยอะ สามารถจอดได้ประมาณ 344 คัน 61.5% ซึ่งมากกว่าคอนโด Low-Rise ทั่วไปซึ่งส่วนใหญ่จะให้มาเพียง 40% เท่านั้น นอกจากสิ่งอำนวยความสะดวกภายในอาคาร Club House ก็ยังมีพื้นที่ Jogging track ให้วิ่งออกกำลังกายรอบโครงการ และพื้นที่สำหรับสัตว์เลี้ยงอีกด้วย
    ลักษณะที่ดินของโครงการเป็นพื้นที่ลักษณะสี่เหลี่ยมผืนผ้า หน้าโครงการหันไปทางทิศเหนือ ติดถนนในซอยรัชดาภิเษก 19 หรือซอยรัชวิภาวดี 16 ซึ่งเป็นทางเข้า-ออก ของโครงการ บริเวรรอบๆ โครงการค่อนข้างเปิดโล่งส่วนใหญ่เป็นบ้านพักอาศัย และอาคารพาณิชย์ที่ไม่สูงมาก

    จากประตูเข้า-ออก เป็นทางบังคับให้เลี้ยวไปทางซ้าย ผ่านไม้กระดกซึ่งเข้าออกด้วยระบบ Key access card

    ส่วนทางด้านขวาของโครงการจะมีที่สำหรับจอดจักรยาน เผื่อให้ลูกบ้านปั่นไปซื้อของกินภายในซอย

    จากประตูทางเข้าโครงการเดินตรงเข้ามาจะเจอกับ Retreat Garden และ Courtyard ที่เชื่อมต่อกับส่วนของ Club House
    บริเวณตรงกลางปลูกเป็นต้นไม้ใหญ่มาด้วยเพื่อช่วยให้ร่มเงา พร้อมพื้นที่สำหรับนั่งเล่นพักผ่อนหย่อนใจ

    Club House ความสูง 3 ชั้น โดยชั้น 1 ล็อบบี้ ส่วนพื้นที่จอดรถ ชั้น 2 เป็น Co-Working Space และห้องสมุด
    สามารถเดินทะลุออกไปสระว่ายน้ำขนาด 25 ม. ได้ ส่วนชั้น 3 เป็นฟิตเนสและพื้นที่เล่นโยคะ

    สระว่ายน้ำระบบเกลือบนชั้น 2 ความยาวถึง 25 เมตร พร้อมพื้นที่นั่งเล่นริมสระว่ายน้ำ
    จากห้องฟิตเนสบนชั้น 3 สามารถมองลงมาเห็นสระว่ายน้ำได้

    ทางลงไปยังที่จอดรถชั้นใต้ดินของอาคาร B และอาคาร C

    ส่วนอาคาร A และอาคาร D พื้นที่จอดรถจะอยู่ที่ชั้น 1 บริเวณใต้อาคาร

     มีพื้นที่สำหรับสัตว์เลี้ยงอยู่ด้านข้างอาคาร C ให้น้องหมามาวิ่งเล่น ออกกำลังกายได้

    พื้นที่ Rooftop Garden บนชั้นดาดฟ้า มีชุดเก้าอี้ให้สำหรับนั่งเล่นรับลม พร้อมอุปกรณ์ทำ BBQ
    ไปดูในส่วนของ Master Plan และ Floor Plan กันต่อเลยค่ะ ว่าแต่ละชั้นมีอะไรกันบ้าง
    ชั้นใต้ดิน : เป็นพื้นที่จอดรถ (เฉพาะอาคาร B และอาคาร C)
    ชั้น G : จะเป็นพื้นที่จอดรถ, จุดรับส่ง Drop off, ป้อม รปภ., ล็อบบี้, ห้องจดหมาย, ห้องซักรีด, ที่จอดจักรยาน, ลานสันทนาการ, สวนพักผ่อน, ทางวิ่งออกกำลังกาย, พื้นที่สำหรับสัตว์เลี้ยง 
    ชั้น 2-8 : เป็นส่วนของห้องพักอาศัยทั้งหมด แต่ละอาคารมีจำนวนห้องพักอาศัยอยู่ที่ 20 ยูนิต/ชั้น
    ชั้นดาดฟ้า : แต่ละอาคารจัดเป็นสวน และพื้นที่ทำบาร์บีคิว
    ในเรื่องของการวางตัวอาคาร ทางโครงการให้ความสำคัญในเรื่องทิศทางของแดดและลมเพื่อทำให้เกิด ventilation flow ให้ได้รับแสงแดดไม่มากไม่น้อยเกินไปตลอดทั้งปี โดยถ้าดูจากผังอาคารจะเห็นว่าห้องพักอาศัยส่วนใหญ่ไม่ได้หันเข้าหาทิศตะวันออก และทิศตะวันตกแบบตรงๆ เลยทำให้แดดไม่ได้เข้าห้องแบบเต็มๆ ห้องก็จะไม่ร้อนมากจนเกินไป นอกจากนี้ห้องที่อยู่ทางฝั่งทิศใต้ก็ยังจะได้รับลมมรสุมตะวันตกเฉียงใต้พัดผ่านห้องในช่วงเดือน พษภาคม - ตุลาคม ส่วนฝั่งทิศเหนือก็จะได้ลมมรสุมตะวันตกเฉียงเหนือในช่วงเดือนพศจิกายน - มกราคม เช่นกัน
    ส่วนกลางและสิ่งอำนวยความสะดวก
    ต้องบอกว่าโครงการมาเอสโตร 19 รัชดา 19 - วิภา ถึงแม้จะเป็นคอนโดมิเนียม Low-Rise แต่สิ่งอำนวยความสะดวกที่จัดมาให้ลูกบ้านค่อนข้างเยอะ และครบครันเมื่อเที่ยบกับคอนโดมิเนียม Low-Rise ในย่านเดียวกัน โดยมีทั้งส่วนที่จัดแยกเอามารวมกันไว้อยู่ที่อาคารส่วนกลางบริเวณ Club House ซึ่งเป็นอาคารความสูง 3 ชั้น และส่วนที่อยู่ภายในอาคารพักอาศัยของแต่ละอาคาร โดยรวมแล้วประกอบด้วย
    สิ่งอำนวยความสะดวกภายใน Club House
    Ground Floor :
    • เลข 1 เป็นล็อบบี้ (Main Lobby) เข้ามาถึงจะเจอ Lobby ที่ออกแบบได้อลังการ มีความสูง 6.6 เมตร ให้ความรู้สึกโปร่ง มีบันไดวนเดินขึ้นไปยังชั้น 2
    • เลข 2 เป็นสำนักงานนิติบุคคล

    ภาพจำลองบรรยกาศภายในล็อบบี้
    2nd Floor :
    • เลข 3 เป็น Co-working space และห้องสมุด
    • เลข 4 เป็นห้องสตีม และห้องซาวน่า
    • เลข 5 เป็นที่นั่งริมสระว่ายน้ำ (Sunken Cozy Lounge)
    • เลข 6 เป็นสระว่ายน้ำ 1 สระ ระบบเกลือ ขนาด 25 x 6 เมตร ลึก 1.2 เมตร ล้อมรอบด้วยต้นไม้ใหญ่ 

    ภาพจำลองบรรยกาศภายใน Co-working space และห้องสมุด

    ภาพจำลองบรรยากาศจบริเวณสระว่ายน้ำ
    3rd Floor :
    • เลข 7 เป็น ห้องฟิตเนส ซึ่งลูกบ้านสามารถออกกำลังกายไปด้วย และยังเทควิวสระว่ายน้ำไปด้วยได้แบบเต็มๆ ตา
    • เลข 8 เป็นพื้นที่สำหรับเล่นโยคะ 
    สิ่งอำนวยความสะดวกภายในอาคารพักอาศัยแยกแต่ละอาคาร
    • ล็อบบี้
    • ห้องจดหมาย
    • ห้องซักรีด
    • ลิฟต์โดยสารอาคารละ 2 ตัว
    • อินเทอร์เน็ตไรสาย
    • สวนและพื้นที่บาร์บีคิว (ชั้นดาดฟ้า) Rooftop garden ตกแต่งเหมือนกันทุกอาคาร
    นอกจากนี้ยังมีสิ่งอำนวยความสะดวกอื่นๆ อีกอาทิ
    • ระบบรักษาความปลอดภัยตลอด 24 ชั่วโมง
    • เข้า-ออกระบบ Key Card Access
    • ที่จอดจักรยาน
    • สวนพักผ่อน (Retreat Garden)
    • ลานสันทนาการ (Courtyard)
    • ทางเดินออกกำลัง
    • ที่สำหรับสัตว์เลี้ยง (Pet Area) ด้านข้างอาคาร C
    • บริการรถรับส่ง จากโครงการไปรถไฟฟ้า
    • มีทางลาดสำหรับผู้สูงอายุ
    • ที่จะจอดรถ 344 คัน คิดเป็น 61.5%

    ภาพจำลองบริเวณด้านหน้าโครงการ

    ภาพจำลองบรรยากาศบริเวณลานสันทนาการ (Courtyard)

    ภาพจำลองบรรยากาศพื้นที่จอดจักรยาน
    ภาพห้องตัวอย่างและ Lay Out
    การตกแต่งภายในห้องเป็นสไตล์ การตกแต่งในสไตล์ Industrial Elegance ผสมผสานความดิบเท่ของโครงเหล็ก ผสมผสานหินอ่อนปูแบบก้างปลา Harring Bone ให้ความรู้สึกหรูหรา โครงการนี้ขายแบบ Fully Fitted ให้เฉพาะชุดเคาน์เตอร์ครัว, ตู้เสื้อผ้า, สุขภัณฑ์ในห้องน้ำ, แอร์ และ Digital Door Lock ไม่แถมเฟอร์นิเจอร์ ห้องของโครงการนี้ส่วนใหญ่จะเป็นห้องแบบ 1 ห้องนอน หน้ากว้างประมาณ 5 เมตร ดีในเรื่องของการเทควิวได้กว้าง และการจัดวางฟังก์ชั่นในการใช้งานได้ง่าย ได้ประตูบานเลื่อน Hybrid Sliding Door ที่สามารถเลื่อนปรับได้ตามการใช้งาน ส่วนห้องแบบ 2 ห้องนอนจะมีหน้ากว้างถึง 12 เมตร เป็นห้องตำแหน่งมุมของโครงการได้วิว Panorama เป็นวิวสวนและมีความเป็นส่วนตัว พื้นที่ในการใช้สอยค่อนข้างกว้างให้อารมณ์เหมือนบ้านไม่อึดอัด โดย Floor to Ceiling ภายในห้องนอน และห้องนั่งเล่นสูง 2.45 เมตร ส่วนห้องครัว และห้องน้ำสูง 2.20 เมตร ได้กระจกภายในห้องค่อนข้างเยอะ เปิดรับธรรมชาติได้อย่าเต็มที่ โดยรวมถือว่ามีการจัดเป็นสัดส่วนได้อย่างลงตัว มีห้องพักอาศัยให้เลือก 3 Type ด้วยกัน คือ
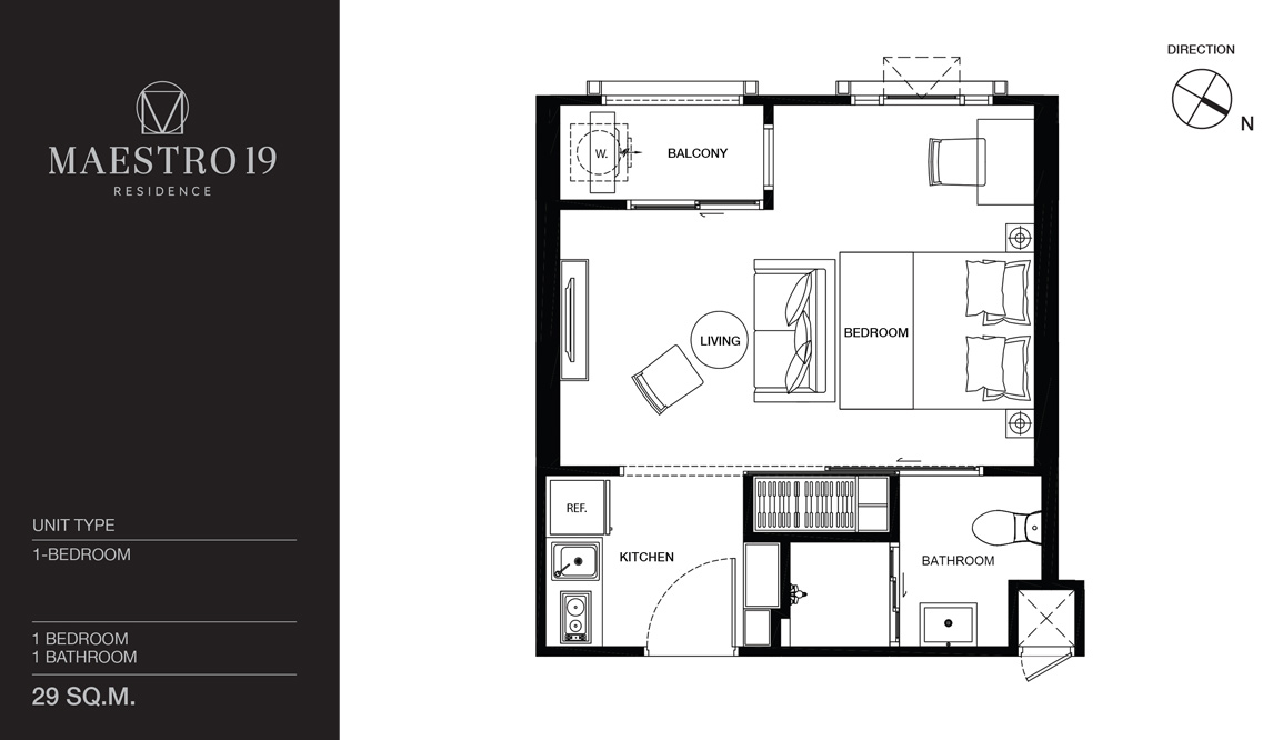
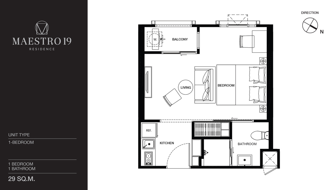
    1. ห้องแบบ 1 Bedroom พื้นที่ใช้สอย 29.00 - 38.00 ตร.ม.
      (คลิกเพื่อชมแปลนห้องขนาด 29 ตร.ม.)
      (คลิกเพื่อชมแปลนห้องขนาด 38 ตร.ม.)
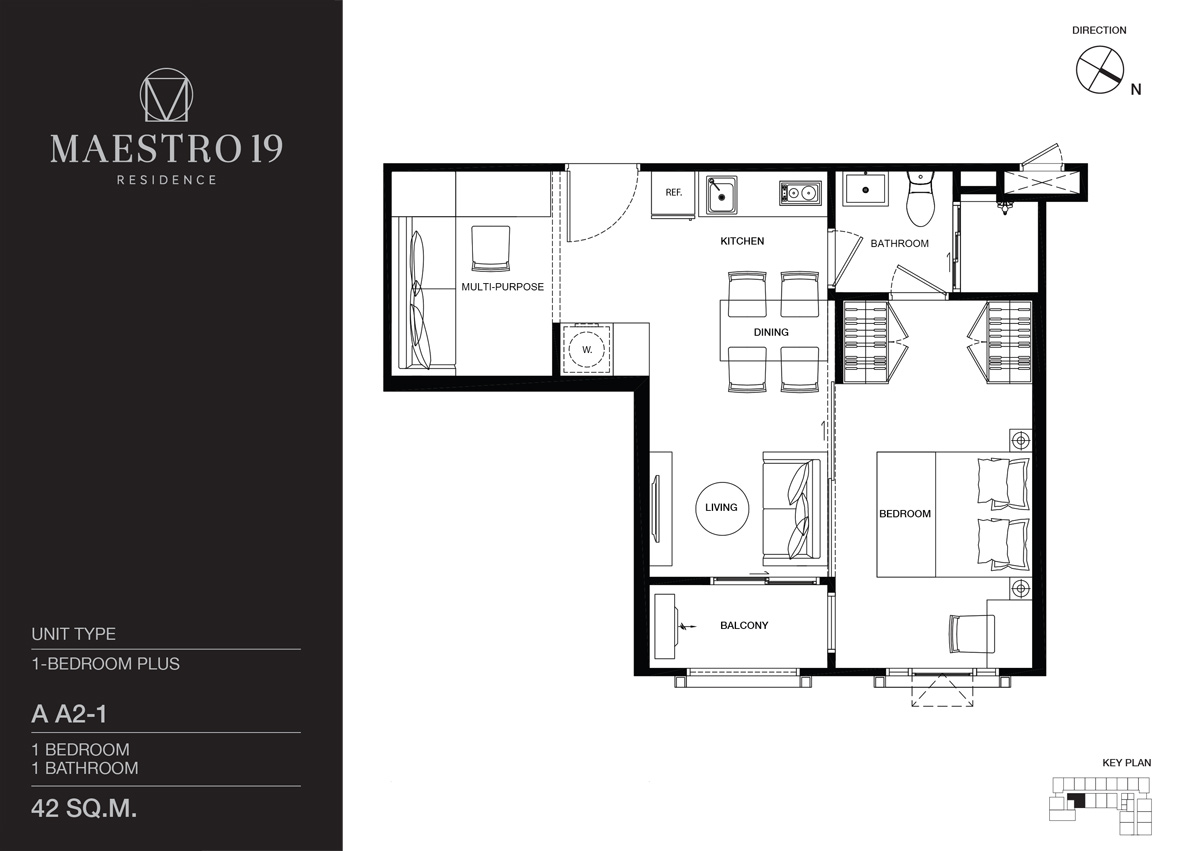
    2. ห้องแบบ 1 Bedroom Plus พื้นที่ใช้สอย 42.00 ตร.ม.
      (คลิกเพื่อชมแปลนห้องขนาด 42 ตร.ม.)
    3. ห้องแบบ 2 Bedroom พื้นที่ใช้สอย 59.00 ตร.ม.
      (คลิกเพื่อชมแปลนห้องขนาด 59 ตร.ม.)
    ห้องตัวอย่างแบบ 1 bedroom ขนาด 29.00 ตร.ม.

    ห้องนี้มีความโดดเด่นตรงที่มีบานสไลด์ Hybrid Sliding Door เลื่อนปิดระหว่างห้องครัว ตู้เสื้อผ้า และห้องน้ำ
    ปรับเปลี่ยนได้ตามการใช้งาน จริง ห้องหน้ากว้าง 5 เมตร ห้องครัวแบบปิด

    ส่วนพื้นห้องได้เป็นลามิเนตหนา 8 มม. ส่วนตัวจบประตูหน้าห้องเป็นลามิเนตเช่นกัน

    ประตูห้องได้ขนาดมาตรฐาน ด้านหลังประตูมีตัวกันกระแทกมาให้ตามแบบห้องตัวอย่าง
    เข้ามาภายในห้องจะเจอกับโซนของห้องครัว จากภาพทางขวามือจะได้ชุดเคาน์เตอร์ครัว ส่วนทางซ้ายได้เป็นตู้เก็บของ

    ได้
    ชุดอุปกรณ์ Digital Door Lock ของ Hafele

    ชุดเคาน์เตอร์ครัวความกว้างประมาณ 1.20 เมตร มีช่องเก็บของทั้งข้างบนและข้างล่าง
    ติดกันเป็นพื้นที่สำหรับวางตู้เย็นในห้องตัวอย่างเป็นตู้เย็นขนาด 9 คิว

    หน้า Top เป็นหินควอตซ์สีดำดูแลรักษาง่าย ทนต่อความร้อน รอยขีดข่วน และทนต่อความเป็นกรดเป็นด่างได้ดี
    ได้เตาไฟฟ้า 2 หัว และอ่างล้างจานสแตนเลสหลุมเดียวแบบฝังของ Hafele ช่องวางไมโครเวฟอยู่ด้านล่าง

    ใต้เคาน์เตอร์มีทั้งลิ้นชักเก็บช้อนส้อม ลิ้นชักเก็บของ และมีถังขยะมาให้ด้วย

    ที่ผนัง Backsplash กรุด้วยกระเบื้องช่วยให้ง่ายต่อการเช็ดทำความสะอาด
    เครื่องดูดควันเป็นของ Hafele ที่เคาน์เตอร์ติดไฟราวมาให้ ช่วยเพิ่มแสงสว่างเวลาที่ทำอาหาร

    ตู้เก็บของด้านบนได้ตู้แบบบานเปิด 2 บาน มีชั้นสำหรับวางของได้อีกพอสมควร บานพับตู้เป็นแบบ Soft Close ทั้งหมด

    ฝั่งตรงข้ามเคาน์เตอร์ครัวทางโครงการ Built-in เป็นตู้สำหรับรองเท้า หรือเก็บของมาให้ สูงจรดฝ้า
    ปิดผิวหน้าด้วยเมลามีนลายไม้ มีช่องเก็บของทั้งด้านบน และด้านล่าง

    ถัดจากห้องครัวจะเป็นโซนของห้องนั่งเล่น

    สามารถวางโซฟาได้ขนาด 2 ที่นั่ง มีระยะดูทีวีประมาณ 2.3 เมตร

    ประตูระเบียงแบบบานเลื่อน 2 ตอน กรอบอลูมิเนียมสีดำ

    ธรณีประตูยกสูงประมาณ 10 ซม. เวลาเดินระวังสะดุดด้วยนะคะ
    พื้นที่ระเบียงปูด้วยกระเบื้องเซรามิก

    ที่ระเบียงวางเครื่องซักผ้าไว้ทางซ้าย คอมเพรสเซอร์แอร์ แขวนได้เหนือเครื่องซักผ้า
    ผนังอีกด้านออกแบบให้เป็นกระจกสามารถมองภายในห้องนอนได้
    ได้ไฟโคมทรงสี่เหลี่ยมสีดำ 1 ดวง ราวระเบียงกันตกสูงประมาณ 110 ซม.

    มุมนี้ถ่ายจากห้องนั่งเล่นมองกลับไปยังห้องครัว และห้องนอน

    วางเตียงนอนขนาด 5 ฟุตมาให้ดู แต่สำหรับใครที่ชอบนอนเตียงใหญ่ๆ จะขยับเป็นเตียง 6 ฟุตก็ยังได้
    ด้านข้างเตียงยังเหลือที่พอให้วางเป็นโต๊ะทำงานได้อีก 1 ตัว

    ผนังข้างหัวเตียงติดตั้งปลั๊กไฟมาให้ โดยสวิตซ์ไฟ และเต้ารับเป็นภายในห้องทั้งหมดเป็นของ SIEMENS
    คุณภาพดีทนทาน และไม่ลามไฟ

    ระหว่างโซฟากับเตียงเหลือระยะเดินประมาณ 40 ซม.

    โซนห้องนอนได้กระจกบานกระทุ้งมาให้ 1 บานสำหรับเปิดระบายอากาศ นอกนั้นเป็นบานติดตาย หน้าต่างที่ติดกับระเบียงก็เป็นกระจกเช่นกัน ซึ่งถ้าเปิดม่านออกทั้งหมดจะสามารถเปิดรับแสดงธรรมชาติได้แบบเต็มที่
    และทำให้ห้องดูสว่างและโปร่งยิ่งขึ้นด้วย

    หน้าตากระจกบานกระทุ้ง

    จากห้องนอนมองย้อนกลับไปยังส่วนของประตูบานสไลด์ Hybrid Sliding Door ที่เป็นจุดเด่นของห้องนี้
    ที่ปิดระหว่างห้องครัว กับตู้เสื้อผ้า และห้องน้ำ โดยภาพนี้เลื่อนเปิดให้เห็นห้องครัว

    ภาพนี้เลื่อนเพื่อเปิดให้เห็นส่วนของตู้เสื้อผ้าที่สูงจรดฝ้า ขนาดไม่ใหญ่มากแต่แบ่งเป็นช่องเก็บของมาให้หลายช่อง
    พร้อมราวแขวนเสื้อ และลิ้นชักอีก 3 ชั้น ด้านข้างมีช่องวางของ 4 ชั้น และมีช่องวางของด้านบนอีก 2 ชั้น
    ภายในตู้เสื้อผ้ามีไฟมาให้ด้วย

    และภาพนี้เปิดให้เห็นส่วนของห้องน้ำ

    ตามมาเข้ามาดูภายในห้องน้ำกันต่อค่ะ พื้นห้องน้ำปูด้วยกระเบื้องแกรนิตโต้ ลดระดับลงเล็กน้อยประมาณ 2 ซม.
    ได้กระจกเงาทรงกลม ด้านหลังกรุกระเบื้องตามแบบห้องตัวอย่าง เพดานห้องจริงเป็นแบบเรียบๆ ไม่ได้ไฟซ่อนนะคะ
    ได้พัดลมดูดอากาศของ Panasonic

    โถสุขภัณฑ์เป็นของ Hafele ที่ผนังกรุกระเบื้องมาให้สวยงามตามแบบนี้เลยค่ะ

    ได้อ่างล้างหน้ารูปทรงสี่เหลี่ยมของ LAVENZ ด้านล่างมีตู้สำหรับเก็บของ ก๊อกน้ำของ Hafele

    ฉากกั้นอาบน้ำบานเลื่อนแบบ 3 ตอน กรอบอะลูมิเนียมสีดำ ดีไซน์เก่ไก๋ได้ตามแบบนี้เลย
    ธรณียกสูงขึ้นมาประมาณ 5 ซม.

    พื้นที่อาบน้ำค่อนข้างกว้าง เจาะผนังบางส่วนไว้สำหรับวางสบู่ และอุปกรณ์อาบน้ำ

    ได้ฝักบัวสายอ่อนทรงกลมของ Hafele ก๊อกน้ำด้านล่างก็เป็นของ Hafele สวิตช์ไฟ
    และเต้ารับของ SIEMENS ผลิตภัณฑ์จากประเทศเยอรมนี คุณภาพดีทนทาน และไม่ลามไฟ
    ห้องตัวอย่างแบบ 1 Bedroom ขนาด 33.00 ตร.ม.

    ห้องนี้มีความโดดเด่นตรงที่มีการกั้นห้องเป็นสัดส่วนอย่างมิดชิด ชัดเจน เป็นครัวแบบเปิด

    เข้ามาในห้องจะเป็นโซนของห้องครัว ฝั่งตรงข้ามครัวทางโครงการจัดเป็นตู้เก็บรองเท้ามาให้
    แต่สำหรับใครที่ของเยอะๆ แนะนำให้ Built-in เป็นตู้เก็บของสูงจรดฝ้าไปเลยจะได้เก็บของได้เยอะขึ้น

    ได้เคาน์เตอร์ครัวขนาดใหญ่กว่าห้องที่แล้ว ห้องนี้ได้เป็นแบบครัวเปิด เหมาะกับการทำอาหารเบาๆ ที่กลิ่นไม่แรงมาก

    สามารถวางโต๊ะทานข้าวได้ขนาด 2 ที่นั่งวางติดกับเคาน์เตอร์ครัว

    เครื่องซักผ้าของห้องนี้จะอยู่ใต้เคาน์เตอร์ครัว

    ห้องนั่งเล่นเชื่อมต่อกับห้องครัว

    วางโซฟาได้ขนาด 2 ที่นั่ง

    มีระยะในการดูทีวีประมาณ 1.8 เมตร

    ประตูระเบียงเป็นแบบบานเลื่อน 2 ตอน

    ห้องนอนกั้นด้วยประตูบานเลื่อนแบบ 2 ตอน อยู่ด้านหลังโซฟา มีความมิดชิดมาก เลื่อนปิดเป็นเหมือนผนังได้เลย

    ประตูบานใหญ่เปิดใหญ่ดูแข็งแรงดี สามารถเปิดออกได้กว้างมาก

    มุมนี้ถ่ายจากห้องนอนมองย้อนกลับไปยังห้องนั่งเล่น และห้องครัว

    ภายในห้องครัวจัดวางเตียงนอนขนาด 5 ฟุตไว้บริเวณกลางห้อง

    ด้านข้างเหลือพื้นที่ค่อนข้างเยอะวางโต๊ะทำงาน หรือโต๊ะเครื่องแป้งอีกตัวก็ยังได้

    ได้ตู้เสื้อผ้าทั้ง 2 ฝั่งตั้งอยู่หน้าห้องน้ำ

    จะเป็นแบบบานทึบ หน้าบานเป็นเมลามีนลายไม้แบบบานเปิด 2 บาน มีลิ้นชักให้ 3 ชั้น ด้านบนเป็นช่องเก็บของแบบสไลด์

    ส่วนตู้ฝั่งนี้ของจริงที่ได้ไม่ใช่กระจกนะคะ วัสดุจะเป็นบานทึบแบบตู้ที่แล้ว

    ห้องน้ำแบบ Double Access เข้าออกได้ทั้ง 2 ทางสะดวกมากๆ

    สุขภัณฑ์ภายในห้องน้ำเหมือนกับห้องที่แล้ว พื้นที่โดยรวมของห้องน้ำมีขนาดกว้างกว่าห้องที่แล้ว

    ได้ฉากกั้นอาบบน้ำบานเลื่อน 3 ตอน เหมือนเดิม

    ฝักบัวสายอ่อนทรงกลมของ Hafele มีช่องสำหรับวางอุปกรณ์อาบน้ำเหมือนห้องที่แล้ว
    ราคาและค่าใช้จ่ายที่เกี่ยวข้องโดยประมาณ (6 มิ.ย. 2560)
    ราคาเริ่มต้น 2.8 ล้านบาท ขนาด 29 ตร.ม. (ราคา ณ วันเปิดตัว) 
    ค่าใช้จ่ายอื่นๆ ของโครงการ
    • ค่าส่วนกลางอัตรา 65 บาท/ตร.ม./เดือน (ชำระล่วงหน้า 1 ปี)
    • เงินกองทุนส่วนกลาง 500 บาท/ตร.ม. (ชำระครั้งเดียว ณ วันโอนกรรมสิทธิ์)
    สถานะปัจจุบันของโครงการ (6 มิ.ย. 2560)
    โครงการ มาเอสโตร 19 รัชดา 19 - วิภา ผ่าน EIA เรียบร้อยแล้ว เปิดให้ชมห้องตัวอย่างได้ที่โครงการฯ ตั้งแต่วันที่ 8 มิถุนายน 2560 และมีงาน Pre-sales ในวันที่ 24-25 มิถุนายน 2560 พร้อมมอบสิทธิพิเศษสำหรับผู้ลงทะเบียนออนไลน์ รับส่วนลดเงินสด 10,000 บาท เริ่มก่อสร้างเดือนตุลาคม 2017 และคาดว่าจะก่อสร้างแล้วเสร็จในปี 2019 สำหรับผู้ที่สนใจสามารถเข้าชมห้องตัวอย่างได้แล้ววันนี้ที่สำนักงานขายโครงการ ตั้งแต่เวลา 9.30-18.30 น. ของทุกวัน
    สิทธิพิเศษสำหรับคนที่ลงทะเบียนออนไลน์รับส่วนลด 10,000 บาท 
    ลงทะเบียนได้ที่ https://goo.gl/WfioiN
    สอบถามรายละเอียดเพิ่มเติม Call Center 02-116-1111 หรือ https://goo.gl/WfioiN
    ดูรายละเอียดโครงการ มาเอสโตร 19 รัชดา 19 - วิภา

    รีวิว-พรีวิวล่าสุดอื่นๆ

    คอนโดติดรถไฟฟ้าล่าสุด

เว็บไซต์นี้มีการเก็บคุกกี้เพื่อเพิ่มความพึงพอใจในการใช้งานเว็บไซต์ และช่วยให้เราปรับปรุง และนำเสนอเนื้อหาตรงตามความสนใจของท่าน ท่านสามารถดู Privacy Notice และ ดู Cookies Policy ของเราได้ ที่นี่ ทั้งนี้ ท่านจะยินยอมให้เราเก็บคุกกี้ทั้งหมด หรือให้เก็บแค่บางส่วนโดยการคลิกเลือก ตั้งค่า

ท่านสามารถเลือกให้ความยินยอมการเก็บคุกกี้เป็นเรื่องๆ ได้ที่นี่

เมื่อคุณเข้าชมเว็บไซต์ หรือแอปพลิเคชั่น checkraka เราอาจจัดเก็บ หรือดึงข้อมูลจากเบราว์เซอร์ของคุณในรูปแบบของคุกกี้ และเทคโนโลยีอื่นที่คล้ายคลึง เช่น tag และ pixel (เรียกรวมกันว่า “คุกกี้”) ซึ่งมักเป็นข้อมูลที่ไม่สามารถระบุตัวตนได้โดยตรง แต่ช่วยให้คุณใช้งานเว็บไซต์ได้ปลอดภัย และตรงตามความต้องการมากขึ้น คุณอาจไม่ยินยอมให้เราเก็บคุกกี้บางประเภทได้ โดยการคลิกตามหัวข้อข้างล่างนี้

ประเภทคุกกี้
อ่านเพิ่มเติม ที่นี่
ยินยอม / ไม่ยินยอม
คุกกี้ที่จำเป็นต้องมีเสมอ
(Strictly Necessary)
คุกกี้สำหรับการใช้งานเว็บไซต์
(Functionality)
คุกกี้เพื่อเพิ่มประสิทธิภาพและวิเคราะห์
(Performance & Analytics)
คุกกี้เพื่อการตลาด
(Marketing)