รีวิว-เยี่ยมชม โครงการ ลุมพินี สวีท ดินแดง-ราชปรารภ (Lumpini Suite Din Daeng-Ratchaprarop)
วันนี้ Checkraka.com จะพาไปเยี่ยมชมคอนโดมิเนียมโครงการใหม่ล่าสุดจากค่าย ลุมพินี LPN กันค่ะ โครงการนี้มีชื่อว่า
"ลุมพินี สวีท ดินแดง-ราชปรารภ" ซึ่งแบรนด์ "สวีท" ถือเป็นคอนโดระดับบนของลุมพินี ตั้งอยู่ใจกลางเมือง โครงการติดถนนใหญ่ดินแดง ใกล้รถไฟฟ้า BTS สถานีอนุสาวรีย์ชัยสมรภูมิเพียง 1 กม. ไม่ไกลจากแอร์พอร์ต เรล ลิงก์ สถานีราชปรารภ และรถไฟฟ้าสายสีส้มในอนาคต ตอบโจทย์ความเป็นส่วนตัวด้วยจำนวนยูนิตเพียง 491 ยูนิตเท่านั้นและบริหารงานภายใต้แนวทางการบริหารชุมชนน่าอยู่ สำหรับคนทุกวัย โครงการนี้จะมีอะไรพิเศษและน่าสนใจบ้างตามไปชมกันค่ะ


- เจ้าของและผู้พัฒนาโครงการ: บริษัท แอล.พี.เอ็น. ดีเวลลอปเมนท์ จำกัด (มหาชน)
- ที่ตั้งโครงการ: ถนนดินแดง เขตดินแดง กรุงเทพฯ
- อาคารชุดพักอาศัยสูง : คอนโด High Rise สูง 30 ชั้น จำนวน 1 อาคาร 491 ยูนิต
- ขนาดที่ดินทั้งโครงการ: 2 ไร่เศษ
- ลิฟต์ : ลิฟต์โดยสาร 2 ตัว และลิฟต์บริการ 1 ตัว
- ห้องชุดพักอาศัย : แบบสตูดิโอ, 1 ห้องนอน และ 2 ห้องนอน ขนาด 24.00 - 46.50 ตร.ม.
- ที่จอดรถ : 219 คัน แบบรวมจอดซ้อนคัน
- ราคาเฉลี่ย : 140,000 บาท/ตารางเมตร (ข้อมูลวันที่ 10 เม.ย. 2560)
- สถานะโครงการ : อยู่ระหว่างดำเนินการก่อสร้าง
- วันที่เข้าเยี่ยมชม-รีวิวคอนโด 10 เม.ย. 2560
เจ้าของและผู้พัฒนาโครงการ
บริษัท แอล.พี.เอ็น. ดีเวลลอปเมนท์ จำกัด (มหาชน) ประกอบธุรกิจด้านการพัฒนาอสังหาริมทรัพย์ ในรูปแบบของอาคารชุดสำนักงาน อาคารชุดพักอาศัย และทาวน์เฮ้าส์ ทั้งในกรุงเทพฯ และปริมณฑล บริษัทฯ เริ่มก่อตั้งบริษัทด้วยทุนจดทะเบียน 50 ล้านบาท เมื่อวันที่ 21 มิถุนายน 2532 ซึ่งโครงการของ LPN พัฒนาภายใต้หลากหลายแบรนด์ อาทิ ลุมพินี สวีท, ลุมพินี เพลส, ลุมพินี พาร์ค, ลุมพินี คอนโดทาวน์, ลุมพินี เมกะซิตี้, ลุมพินี ซีวิว, ลุมพินี พาร์คบีช, ลุมพินี ทาวน์ชิป, ลุมพินี วิลล์, ลุมพินี มิกซ์ ฯลฯ โดยตลอด 26 ปีที่ผ่านมา LPN พัฒนาโครงการมาแล้วมากกว่า 100 โครงการ ภายใต้กลยุทธ์ "ชุมชนน่าอยู่" และในปี 2559 ที่มุ่งเน้นในการบริหารดูแลคุณภาพชีวิตให้กับผู้พักอาศัยทุกวัย จึงมีการขยายกลยุทธ์เป็น "ชุมชนน่าอยู่สำหรับคนทุกวัย"

แผนที่ตั้งและสถานที่ใกล้เคียงโครงการ (
คลิกเพื่อดูภาพขนาดใหญ่)
พิกัด Google Map
13.763522, 100.546389 
Center One อยู่ห่างจากโครงการประมาณ 850 เมตร

อนุสาวรีย์ชัยสมรภูมิ อยู่ห่างจากโครงการประมาณ 1 กิโลเมตร

เซ็นจูรี่ อยู่ห่างจากโครงการประมาณ 1 กิโลเมตร
การเดินทางไปยังโครงการ ลุมพินี สวีท ดินแดง-ราชปรารภ (Lumpini Suite Din Daeng-Ratchaprarop) สามารถเดินทางไปได้หลายเส้นทาง ทั้งทางรถยนต์ ทางรถไฟฟ้าก็สะดวก รถเมล์ก็ผ่านหน้าโครงการตลอด ถือว่าตั้งอยู่ในทำเลที่เดินทางเข้าออกได้สะดวกมาก
1. การเดินทางโดยรถยนต์
- การเดินทางเข้าโครงการเส้นทางที่ 1 จากแยกพระราม 9 มุ่งหน้าไปตามถนนดินแดง
- การเดินทางเข้าโครงการเส้นทางที่ 2 จากทางยกระดับอุตราภิมุข
- การเดินทางออกจากโครงการเส้นทางที่ 1 ออกจากโครงการ ไปถนนรัชดาภิเษก
- การเดินทางออกจากโครงการเส้นทางที่ 2 ออกจากโครงการ ไปขึ้นทางพิเศษศรีรัช
2. การเดินทางด้วยรถไฟฟ้า ทำเลที่ตั้งของโครงการนี้ถือว่าตั้งอยู่ใจกลางเส้นทางของรถไฟฟ้าก็ว่าได้
- BTS อนุสาวรีย์ชัยสมรภูมิ 1 กม.
- APL ราชปรารภ 1 กม.
- BTS สนามเป้า 1.8 กม.
- APL พญาไท 2 กม.
- MRT พระราม 9 2.5 กม.
- BTS สยาม 2.9 กม.
- APL มักกะสัน 3.2 กม.
- MRT เพชรบุรี 3.2 กม.
- MRT ศูนย์วัฒนธรรม 3.5 กม.

BTS สถานี อนุสาวรีย์ชัยสมรภูมิ
3. การเดินทางด้วยรถโดยสารสาธารณะ

เดินออกมาด้านขวาของโครงการมีพี่วินมอเตอร์ไซค์คอยให้บริการอยู่นะคะ
อัตราค่าโดยสาร วินเกล้าสยามคอนโด - วัดตะพาน 20 บาท
- ราชปรารภ 20 บาท
- เซ็นเตอร์วัน 30 บาท
- ประตูน้ำ 40 บาท
- สนามกีฬาไทยญี่ปุ่น 40 บาท
- เซ็นทรัลเวิลด์ 50 บาท
- เซ็นทรัลชิดลม 50 บาท
รถเมล์ ผ่านหน้าโครงการหลายสายเลยค่ะ มุ่งหน้าเข้าสู่อนุสาวรีย์ชัยสมรภูมิ หากข้ามไปฝั่งตรงข้ามจะมุ่งหน้าไปทางพระราม 9 ซึ่งสามารถเชื่อมต่อกับ MRT พระราม 9 ได้ที่หน้า ฟอร์จูนทาวเวอร์ หรือหน้าเซ็นทรัล พระราม 9

รถเมล์ สาย 73

รถเมล์ สาย 168

รถเมล์ สาย 504

รถเมล์ สาย 24

แผนที่แสดงสภาพแวดล้อมรอบๆ โครงการ

บริเวณด้านหน้าโครงการ ยังเป็นพื้นที่โล่ง ยังไม่เริ่มก่อสร้างค่ะ

ตรงข้ามโครงการคือ The Capital Condo สูง 33 ชั้นค่ะ

ลองเลี้ยวไปดูด้านขวาของโครงการกันเลย

ติดกับโครงการมีวินมอเตอร์ไซด์คอยให้บริการค่ะ

เดินต่อไปจะเห็นป้ายทางเข้า เกล้าสยามคอนโด และโรงเรียนนิธิปริญญา

ถ้าเลี้ยวซ้ายไปตามแนวทางด่วน ย่านนี้เป็นชุมชนหมอเหล็ง

กลับมาที่หน้าโครงการกันก่อน ทางด้านขวาของโครงการในระยะที่เดินได้ไม่ค่อยมีอะไร แต่ด้านซ้ายมีเพียบเลยค่ะ

ติดกับโครงการจะเป็น ธนาคารกรุงศรีค่ะ

ร้านลุงใหญ่ รวมร้านอาหาร เครื่องดื่มทั่วไป

เดินต่อมาเรื่อยๆ เป็นอาคารพาณิชย์ที่เปิดร้านขายสินค้าต่างๆ ทั้งร้านทอง ร้านกาแฟ ร้านซ่อมนาฬิกา

เดินต่อมาอีกจะเจอ 7-11 ด้านหน้ามีป้ายรถเมล์ จุดนี้ห่างจากโครงการประมาณ 170 เมตร

ในซอยตลาดศรีวนิชมีตลาดเล็กๆ อยู่ค่ะ มีทั้งของสดและอาหารปรุงสำเร็จ ให้จับจ่าย

หน้าปากซอยศรีวนิช

สวนสันติภาพห่างจากโครงการประมาณ 600 เมตร

ปากซอยราชวิถี 3

ซอยราชวิถี 3

ศูนย์การค้าเซ็นเตอร์วัน ห่างจากโครงการประมาณ 850 เมตร เป็นแหล่งรวมร้านอาหาร และบริการต่างๆ ค่ะ

ด้านหน้า ศูนย์การค้าเซ็นเตอร์วัน

ฝั่งตรงข้ามศูนย์การค้าเซ็นเตอร์วัน เป็นแฟชั่นมอลล์ มีร้าน Eat Am Are ร้านสเต็กขึ้นชื่อของย่านนี้เลย

ข้างๆ เซ็นเตอร์วันมี Victory Mall ด้านในมีร้านเสื้อผ้า รองเท้า เครื่องใช้ ร้านอาหารมากมาย

Victory Mall

ด้านข้าง Victory Mall

เดี๋ยวเดินไปต่อที่ BTS สถานีอนุสาวรีย์ชัยสมรภูมิ กันค่ะ

ก่อนถึงสถานี BTS มีวิคตอรี่คอร์นเนอร์ ค่ะ มีร้านอาหาร Jeffer ด้านบน ส่วนด้านล่างเป็นจุดขึ้นรถตู้ค่ะ

สถานีอนุสาวรีย์ชัยสมรภูมิ ห่างจากโครงการประมาณ 1 กิโลเมตร

เดินต่อไปอีกหน่อย จะมีสะพานเชื่อมเข้าห้างเซ็นจูรี่

ห้างเซ็นจูรี่ จุดนี้ห่างจากโครงการประมาณ 1.3 กิโลเมตร

ด้านใน เซ็นจูรี่ เดอะมูฟวี่ มีทั้งร้านอาหาร สินค้าเบ็ดเตล็ด เสื้อผ้า ร้านซ่อมมือถือ โรงหนัง ค่อนข้างครบครันค่ะ

ด้านใน เซ็นจูรี่ เดอะมูฟวี่
รูปแบบตึก และตัวโครงการโดยรวม
โครงการ "ลุมพินี สวีท ดินแดง-ราชปรารภ" เป็นคอนโดมิเนียม High-Rise ความสูง 30 ชั้น จำนวน 1 อาคาร ลักษณะที่ดินเป็นรูปสี่เหลี่ยมผืนผ้ายาวลึกเข้าไปด้านหลัง รูปแบบตัวอาคารรูปทรงตัว I ทำให้ทุกห้องได้รับวิวอย่างเต็มที่ หมดปัญหาเรื่องการบังวิวกันเอง ด้านหน้าโครงการติดถนนใหญ่ดินแดง วางผังอาคารให้ห้องพักหันหน้าเข้าหาทิศตะวันออก และทิศตะวันตก ถอยร่นห่างจากถนนใหญ่ประมาณ 20 เมตร ช่วยลดเสียงรบกวนจากถนนใหญ่ได้ในระดับหนึ่ง โดยโครงการยังคงคอนเซ็ปต์เดิมคือออกแบบให้เป็นอาคารประหยัดพลังงาน "LPN Green Design"
ตัวอาคารออกแบบในโทนสีน้ำตาล ห้องพักอาศัยเริ่มต้้งแต่ชั้น 7-29 จัดวางพื้นที่จอดรถยนต์ไว้ที่ชั้น 2-6 สามารถจอดได้ประมาณ 219 คัน แบบรวมจอดซ้อนคัน และมีพื้นที่จอดรถจักรยาน และจักรยานยนต์อีกประมาณ 10% อยู่ที่ชั้น 1 ส่วนสิ่งอำนวยความสะดวกหลัก อย่างสระว่ายน้ำ สตีม ซาวน่า จะอยู่ที่ชั้น 7 และห้องฟิตเนส อยู่ที่ชั้น 8 มีลิฟต์โดยสารมาให้ 2 ตัว และลิฟต์บริการอีก 1 ตัว อัตราส่วนการใช้ลิฟต์อยู่ที่ 254 ห้องต่อลิฟต์ 1 ต้ว

โมเดลโครงการมุมมองจากทิศตะวันตก และทิศเหนือ
สำหรับห้องพักอาศัยฝั่งทิศตะวันตกตั้งแต่ชั้น 7 - 29 เกือบทั้งหมดจะเป็นห้องแบบ 1 ห้องนอน ขนาด 28.00 ตร.ม. จะมีห้องขนาด 29.00 ตร.ม. และห้องขนาด 30.50 ตร.ม. แซมมาบ้างชั้นละ 1 ห้อง โดยห้องฝั่งนี้เกือบทั้งหมดจะได้วิวของอนุสาวรีย์ชัยสมรภูมิ ส่วนห้องใหญ่แบบ 2 ห้องนอนขนาด 46.00 ตร.ม. จะอยู่ด้านหน้าทางฝั่งทิศเหนือตั้งแต่ชั้น 9 - 26 โดยแต่ละชั้นจะมีแค่ 2 ยูนิตเท่านั้น

โมเดลโครงการมุมมองจากทิศตะวันออก
และห้องพักอาศัยทิศตะวันออกในส่วนของชั้น 7 - 16 จะเป็นห้องแบบสตูดิโอทั้งหมด ส่วนชั้น 17 - 29 จะเป็นห้องแบบ 1 ห้องนอนขนาด 28.00 ตร.ม. ทั้งหมดเช่นกัน

โมเดลโครงการมุมมองจากทิศใต้
มุมมองของวิวโดยรอบโครงการแต่ละทิศของตัวโครงการจะใกล้กับ
- ทิศเหนือ : หันหน้าไปทางถนนดินแดง ฝั่งตรงข้ามถนนไปเป็น The Capital Condo สูง 33 ชั้น
- ทิศใต้ : ติดอาคารพักอาศัย สูง 8 ชั้น ซึ่งห้องที่อยู่ชั้น 7 ก็อาจจะโดนบังวิวอยู่บ้าง
- ทิศตะวันออก : ติดกับคอนโดเกล้าสยาม สูงประมาณ 10 ชั้น ดังนั้นถ้าจะให้ปลอดภัยไม่โดนบังวิวแนะนำให้เลือกห้องที่สูงกว่าชั้น 15 ขึ้นไป แต่ระหว่างโครงการลุมพินี กับคอนโดเกล้าสยาม มีระยะห่างอยู่ที่ประมาณ 9 เมตร ซึ่งถือว่าไม่ได้อยู่ในระยะประชิดจนทำให้เสียความเป็นส่วนตัว
- ทิศตะวันตก : หันไปทางอนุสาวรีย์ชัยสมรภูมิ แต่ก็จะโดนแดดตอนบ่ายบ้างไม่เต็มซะทีเดียวเนื่องจากเป็นทิศตะวันตกแบบเฉียงๆ

โมเดลอาคารมองจากทิศเหนือติดถนนดินแดง ซึ่งเป็นทางเข้า-ออกทางเดียวของโครงการ

การเดินรถภายในโครงการเป็นแบบ 2 ทางวิ่งสวนกัน โดยจากประตูทางเข้าโครงการขับวิ่งเลาะมาทางขวาของตัวอาคาร เพื่อไปวนขึ้นที่จอดรถบริเวณด้านหลังอาคาร

ตำแหน่งทางขึ้นลงที่จอดรถที่อยู่ทางฝั่งทิศใต้ หรือด้านหลังของตัวอาคาร

ด้านท้ายโครงการจัดเป็นพื้นที่สวนหย่อม มีมุมสนามเด็กเล่น และเครื่องสำหรับออกกำลังกายกลางแจ้ง

ที่จอดรถมอเตอร์ไซค์ และจักรยานจะอยู่ที่ชั้น 1 บริเวณใต้อาคาร ใกล้กับทางขึ้นที่จอดรถ

ชั้น 2 - 6 เป็นพื้นที่จอดรถ ส่วนห้องสตีม, ห้องซาวน่า, ห้องเด็กเล่นสำหรับคุณหนู รวมถึงห้องเครื่องซักผ้าหยอดเหรียญจะอยู่ทางฝั่งทิศตะวันตกของอาคาร ส่วนพื้นที่ Co-living area จะตั้งอยู่โซนฝั่งทางด้านทิศเหนือของชั้น 7
มีสระว่ายน้ำ 1 สระ เป็นแบบระบบเกลือ แบบ Infinity Edge Pool ขนาด 4.7 x 24 เมตร ลึก 1.2 เมตร พร้อมสระเด็ก ข้างสระออกแบบเป็นระเบียงไม้ยื่นลงมาในสระ พร้อมเก้าอี้สำหรับนอนอาบแดด ตั้งอยู่บนชั้น 7 ทางฝั่งทิศตะวันออก ตัวห้องฟิตเนสออกแบบเน้นกระจกใสมองลงมาเห็นสระว่ายน้ำ ภายในห้องฟิตเนสให้เครื่องเล่นมาประมาณ 10 ชิ้น

จากล็อบบี้ที่บริเวณชั้น 1 มองออกมาจะเจอกับมุมนั่งเล่นริมสระน้ำด้านฝั่งทิศตะวันออก

พื้นที่นั่งเล่นพักผ่อนทางโครงการจัดมาให้หลายจุดอยู่ค่ะ อย่างตรงนี้เป็น Infinity Garden บนชั้น 27 จัดชุดเก้าอี้สำหรับนั่งรับลม ด้านบนมุงเป็นหลังคาระแนงไม้เพื่อความสวยงาม และยังช่วยบังแดดได้อีกด้วย

Sky Lounge ออกแบบเป็นกระจกสามารถชมวิวเมืองฝั่งอนุสาวรีย์ชัยได้แบบเต็มๆ ตา
พร้อม Roof Garden สวนพักผ่อนบนชั้นดาดฟ้าที่ยาวเต็มพื้นที่

สวนพักผ่อนบนชั้นดาดฟ้าฝั่งทิศเหนือ ที่มองลงไปเห็น Infinity Garden

สวนพักผ่อนบนชั้นดาดฟ้าฝั่งทิศใต้
ไปดู Master Plan และ Floor Plan แต่ละชั้นของโครงการนี้กันต่อเลยค่ะ
ชั้น 1 : เป็นส่วนของลานกิจกรรม (Co-Living Zone), ห้องเปี่ยมสุข (Happiness Zone), สำนักงานนิติบุคคล, สวนรวมใจ, ลานฟิตแอนด์เฟิร์ม, สนามเด็กเล่น, ที่จอดจักรยานยนต์, ที่จอดจักรยาน และที่จอดรถ
ชั้น 2-6 : ที่จอดรถแบบเต็มพื้นที่
ชั้น 7 : ลานพักผ่อน, สระว่ายน้ำ, ห้องเฮ้าส์เวิร์ค, ห้องคุณหนู, ห้องสตีม, ห้องซาวน่า และห้องชุดพักอาศัยอีก 12 ยูนิต แบ่งเป็น ห้องแบบสตูดิโอ 6 ยูนิต และห้องแบบ 1 ห้องนอน 6 ยูนิต
ชั้น 8 : เป็นส่วนของฟิตเนส และห้องชุดพักอาศัยอีก 16 ยูนิต แบ่งเป็นห้องแบบสตูดิโอ 6 ยูนิต และห้องแบบ 1 ห้องนอน 10 ยูนิต โดยห้องพักบนชั้นนี้จะโดนเพื่อนบ้านบังวิวแบบเต็มๆ แต่ก็มีข้อดีตรงที่ใกล้กับสิ่งอำนวยความสะดวกต่างๆ ใกล้ฟิตเนสแค่นิดเดียว หรือเดินลงไปเพียงแค่ 1 ชั้นก็ถึงสระว่ายน้ำแล้ว
ชั้น 9, 11, 13, 15 : แต่ละชั้นจะมีลานพักผ่อน (Co-Living Area) และ สวน (Pocket Gaeden) จัดเป็นพื้นที่สวนเฉพาะสำหรับลูกบ้านชั้นนั้นๆ ลูกบ้านชั้นอื่นไม่สามารถขึ้นมาใช้ร่วมได้ โดยตั้งอยู่ใกล้กับลิฟต์โดยสาร ส่วนห้องพักอาศัยมีชั้นละ 22 ยูนิต แบ่งเป็น ห้องแบบสตูดิโอ 6 ยูนิต และห้องแบบ 1 ห้องนอน 14 ยูนิต และห้องใหญ่แบบ 2 ห้องนอน 2 ยูนิต
ชั้น 10, 12, 14, 16 : มีจำนวนห้องพักอาศัย 22 ยูนิต เหมือนกันกับชั้น 9, 11, 13, 15 แต่ละชั้นจะมีลานพักผ่อน (Co-Living Area) แตกต่างกันตรงที่ไม่มี (Pocket Garden)
ชั้น 17-26 : มีจำนวนห้องพักอาศัยเพิ่มขึ้นมาเป็น 23 ยูนิต แบ่งเป็นห้องขนาด 1 ห้องนอน 19 ยูนิต และแบบ 2 ห้องนอน 2 ยูนิต
ชั้น 27 : เป็นส่วนของสวน Infinity Garden ตั้งอยู่ทางทิศเหนือ และห้องชุดพักอาศัยลดลงเหลือเพียง 19 ยูนิต เป็นห้องแบบ 1 ห้องนอนทั้งหมด
ชั้น 28-29 : คล้ายกันกับชั้น 27 คือมีห้องชุดพักอาศัยลดลงเหลือเพียง 19 ยูนิต เป็นห้องแบบ 1 ห้องนอนทั้งหมด
ชั้น 30 : จุดชมวิว (Sky Lounge) และสวนดาดฟ้า (Infinity Garden) โดยจัดเป็นสวนแบบเต็มพื้นที่
ส่วนกลางและสิ่งอำนวยความสะดวก
สิ่งอำนวยความสะดวกทางโครงการจัดมาให้แบบพอดีๆ ไม่มากไม่น้อยจนเกินไปเพียงพอกับลูกบ้าน ส่วนใหญ่จะอยู่ที่บริเวณชั้น 1 ชั้น 7, ชั้น 8 และชั้นดาดฟ้าของอาคาร โดยสิ่งที่ให้มามีดังนี้
- ห้องจดหมาย
- ลานกิจกรรม
- ลานฟิตแอนด์เฟิร์ม (ลานออกกำลังกายกลางแจ้ง)
- สนามเด็กเล่น
- สวนหย่อมรอบโครงการ และสวนบนดาดฟ้า
- สระว่ายน้ำระบบเกลือ
- ห้องสตีม และซาวน่า
- ห้องฟิตเนส
- จุดชมวิว (Sky Lounge)
- ลิฟต์โดยสาร 2 ตัว
- ลิฟต์บริการ 1 ตัว
- ห้องเครื่องซักผ้าหยอดเหรียญ
- ที่จอดรถรวมจอดซ้อนคัน 219 คัน
- กล้องวงจรปิด (CCTV) ตลอด 24 ชั่วโมง
- พนักงานรักษาความปลอดภัยตลอด 24 ชม.
ภาพห้องตัวอย่างและ Layout
ห้องมาตรฐานที่ส่งมอบให้ลูกค้าจะเป็นห้องเปล่าโดยสิ่งที่โครงการมีให้มาก็จะประกอบด้วย ชุดครัว, ตู้เสื้อผ้า Built-in, สุขภัณฑ์ภายในห้องน้ำ, ฉากกั้นอาบน้ำ, เครื่องทำน้ำอุ่น และเครื่องปรับอากาศยี่ห้อ DAIKIN ขนาด 9,000 BTU (ห้องสตูดิโอได้ 1 ตัว, 1 ห้องนอนได้ 2 ตัว และ 2 ห้องนอนได้ 3 ตัว) เท่านั้น ส่วนที่เหลือที่เห็นภายในห้องตัวอย่างทางโครงการเพียงตกแต่งมาให้ดูเป็นไอเดียเท่านั้นค่ะ
รูปแบบ Layout ห้องของโครงการเป็นดีไซน์ใหม่ Up size เพิ่มขึ้นกว่าโครงการก่อนหน้านี้ของลุมพินี สำหรับห้องแบบสตูดิโอ และห้องแบบ 2 ห้องนอน ทำให้ดูกว้างและเพิ่มพื้นที่การใช้งานได้เยอะมากขึ้น โดยห้องนอนของโครงการนี้หลักๆ มีด้วยกัน 3 ขนาด
ลักษณะห้องพักอาศัยหันหน้าเข้าหาฝั่งทางด้านทิศตะวันตกเฉียงใต้ - ทิศตะวันออกเฉียงเหนือ สำหรับห้องทางฝั่งทิศตะวันตกทางโครงการยังติดเป็นห้องฝั่งทิศตะวันตกจะติดเป็นกระจกตัดแสงสีเขียว และติดฟิล์มกันความร้อนให้ โดยห้องพักอาศัยของโครงการนี้ก็ยังคงมีขนาดมาตรฐานตามแบบฉบับของลุมพินี แบ่งขนาดห้องพักอาศัยออกมาประมาณนี้
- ห้องแบบสตูดิโอ พื้นที่ใช้สอย 24.00 - 24.50 ตร.ม.
(คลิกเพื่อชมตัวอย่างแปลนห้องขนาดใหญ่) - ห้องแบบ 1 ห้องนอน พื้นที่ใช้สอย 28.00 - 32.00 ตร.ม.
(คลิกเพื่อชมตัวอย่างแปลนห้องขนาดใหญ่) - ห้องแบบ 2 ห้องนอน พื้นที่ใช้สอย 46.00 - 46.50 ตร.ม.
(คลิกเพื่อชมตัวอย่างแปลนห้องขนาดใหญ่)
ที่สำนักงานขายตกแต่งห้องตัวอย่างไว้ให้ลูกค้าได้เลือกดูครบทั้ง 3 แบบด้วยกันตามไปดูกันค่ะ
1) แบบสตูดิโอ พื้นที่ใช้สอยขนาด 24.00 ตร.ม.
ฟังก์ชั่นการจัดวาง Layout ของห้องขนาด 24.00 ตร.ม. มีหน้ากว้าง 5.2 เมตร ลึก 4.85 เมตร โดยห้องนี้เป็นห้องขนาดเล็กที่สุดของโครงการ

ห้องตัวอย่างจะไม่ได้ติดประตูมาให้ดูนะคะ โดยประตูที่ได้จะเป็นประตูไม้ HDF บานเรียบ สีขาว
มือจับแบบก้านโยก พร้อมตัวล็อค และช่องมองตาแมว
ความสูงพื้นถึงฝ้าเพดาน (Floor to Ceiling) ภายในห้อง 2.6 เมตร ทำให้ห้องดูโปร่ง และสว่าง

ธรณีประตูลามิเนตลายไม้ สูงประมาณ 2 ซม. พื้นห้องปูด้วยลามิเนตหนา 12 มม.

เดินเข้ามาภายในห้องทางฝั่งซ้ายจะเป็นพื้นที่ห้องครัวแบบเปิด ได้ชุดเคาน์เตอร์ครัวมีชั้นวางของทั้งข้างล่างและข้างบน

เคาน์เตอร์ครัวหน้า Top เป็นไม้สังเคราะห์ปิดผิวลามิเนต ขนาดเคาน์เตอร์ครัวประมาณ (กxยxส) 60x127x91 ซม.
ไม่มีเครื่องใช้ไฟฟ้าให้ ใต้อ่างล้านจานเป็นตู้เก็บของ ด้านข้างเว้นช่องไว้สำหรับวางเครื่องซักผ้า
ที่เห็นในห้องตัวอย่างขนาดประมาณ 7.5 กิโลกรัม

ตัวจับเป็นอลูมิเนียมตั้งสูงขึ้นมาเล็กน้อยช่วยให้การเปิดปิดสะดวกยิ่งขึ้น

บานพับตู้ทั้งด้านบน และด้านล่างเป็นแบบ Soft Close ทั้งหมด

ตู้เก็บของด้านบน Built-in มาให้เป็นตู้บานเปิด 2 ฝั่ง พร้อมช่องใส่ไมโครเวฟ

อ่างล้างจานสเตนเลสหลุมเดี่ยวแบบฝังทรงสี่เหลี่ยม ไม่มีที่พักจาน

เหลือพื้นที่สำหรับเตรียมอาหารข้างอ่างล้างจานอีกพอสมควร
ผนังกรุด้วยกระเบื้องเซรามิก ทำความสะอาดง่าย ติดตั้งปลั๊กไฟสำหรับใช้เสียบเครื่องใช้ไฟฟ้ามาให้ด้วย 1 จุด

ฝั่งตรงข้ามกับครัวจะเป็นที่วางตู้เย็น เหนือขึ้นไปเป็นเบรกเกอร์ ทางโครงการ Built-in เป็นตู้เก็บของมาให้ดูเป็นไอเดีย
ถัดจากโซนห้องครัวจะเป็นห้องนั่งเล่นซึ่งอยู่ติดกับระเบียงทำให้ได้แสงธรรมชาติ ทำให้ห้องดูสว่าง
ส่วนผนังภายในห้องได้แบบฉาบเรียบทาสี ไฟซ่อนด้านบนไม่ได้

โครงการ Built-in โต๊ะอเนกประสงค์ยาวชิดผนัง หรือจะทำเป็นโต๊ะทานอาหารด้วยก็ได้
มีลิ้นชักสำหรับเก็บของ 3 ช่อง แต่ถ้าปิดลิ้นชักทั้งหมดตรงนี้ก็น่าจะนั่งได้ประมาณ 2 คนแบบพอดีๆ

ด้านซ้ายของโต๊ะทำงานทำเป็นที่วางทีวีด้านล่างเป็นตู้เก็บของ

ฝั่งตรงข้ามเป็นโซฟาขนาด 2 ที่นั่ง ด้านล่างมีช่องสำหรับเก็บของ ช่วยเพิ่มพื้นที่ในการเก็บของได้มากขึ้น
ระยะดูทีวีประมาณ 150 ซม.

ได้แอร์ของ DAIKIN ขนาด 9,000 BTU ติดอยู่เหนือประตูระเบียง ประตูระเบียงเป็นประตูกระจกบานเลื่อน 2 ตอน
กรอบอลูมิเนียมสีธรรมชาติ ตัวกระจกสีเขียวกรองแสง ได้ไฟดาวน์ไลท์ทรงกลมแบบมีฝาครอบ
ประตูบานเลื่อน 2 ตอน เลื่อนจากซ้ายไปขวา

ธรณีประตูจะยกสูงประมาณ 10 ซม. ป้องกันน้ำฝน หรือฝุ่นเข้าในห้องได้ดี แต่เวลาเดินต้องระวังสะดุด

ราวระเบียงกันตกวัสดุเป็นกระจกกรอบอลูมิเนียม สูงประมาณ 110 ซม.

ด้านนอกเป็นระเบียงซักล้างต่อท่อน้ำดีน้ำทิ้ง และก๊อกเตี้ยมาให้
พื้นระเบียงปูด้วยกระเบื้องเซรามิกสีอ่อน ได้ไฟติดผนังทรงสี่เหลี่ยม 1 ดวง 
คอมเพรสเซอร์แอร์แขวนไว้ด้านบน ทำให้ระเบียงเหลือพื้นที่ใช้งานอย่างเต็มที่
ติดระแนงบังสายตาจากภายนอกอาคารเพื่อความสวยงาม

ห้องนี้ใช้การวางโซฟาเป็นตัวแบ่งพื้นที่ระหว่างห้องนั่งเล่นกับห้องนอน
ในห้องนอนวางเตียงนอนขนาด 6 ฟุต ผนังหัวเตียงห้องส่งมอบจริงจะเป็นผนังฉาบเรียบทาสี
พื้นที่ข้างเตียงถึงห้องน้ำเหลือพื้นที่ประมาณ 90 ซม. เดินไปมาหรือยืนแต่งตัวตรงจุดนี้ได้แบบสบายๆ
ระยะห่างจากเตียงถึงหน้าต่างประมาณ 45 ซม.

หน้าต่างบานใหญ่ กรอบอลูมิเนียมสีธรรมชาติ กระจกสีเขียวตัดแสง ตามแบบนี้ มีบานกระทุ้งให้ 2 บานสำหรับเปิดระบายอากาศ ด้านล่างเป็นบานติดตาย

ตู้ปลายเตียงไม่รวมอยู่ในรายการ ทางโครงการ Built-in เป็นตู้สำหรับเก็บของมาให้ดูเป็นตัวอย่าง

ระยะห่างจากปลายเตียงถึงโซฟากว้างประมาณ 45 ซม. เดินได้สะดวก
ตู้เสื้อผ้า Built-in แบบ 2 บานเปิด บานพับแบบ Soft Close หน้ากว้างประมาณ 90 ซม. สูงจรดฝ้า 
ภายในมีลิ้นชัก 2 ชั้น และชั้นวางของอีก 2 ชั้น พร้อมชั้นวางด้านบน ตั้งอยู่ด้านข้างเตียง
ควรเปิดตู้ด้วยความระมัดระวังไม่เช่นนั้นอาจจะชนกับเตียงได้

ในส่วนของห้องน้ำจะอยู่ใกล้กับตู้เสื้อผ้าเลยค่ะ ประตูห้องน้ำที่ได้จะเป็นลูกบิดสเตนเลสแบบเปิดเข้า

ห้องน้ำยกธรณีสูงประมาณ 5 ซม. ป้องกันน้ำไหลออกมาด้านนอก
พื้นห้องน้ำปูด้วยกระเบื้องเซรามิกสีเทาเข้ม ขนาด 60x60 ซม.

ภายในห้องน้ำโซนตรงกลางเป็นกระจกเงาทรงสี่เหลี่ยมผืนผ้าตามแบบนี้ ฝั่งซ้ายเป็นโซนอาบน้ำ
ฝั่งขวาเป็นโถสุขภัณฑ์ ผนังห้องน้ำกรุกระเบื้องเซรามิก ขนาด 60x60 ซม.

อ่างล้างหน้าทรงสี่เหลี่ยม วัสดุเป็นอะคริลิก ยี่ห้อ Charmer มีพื้นที่วางของด้านข้าง
ก๊อกน้ำแบบก้านโยกของ American Standard

ด้านล่างมีตู้เก็บของบานเปิด บานพับแบบ Soft Close

โถสุขภัณฑ์ยี่ห้อ American Standard สายฉีดชำระอยู่ทางขวามือ ที่แขวนผ้าขนหนู ติดอยู่ที่ผนังเหนือโถสุขภัณฑ์

ฉากกั้นอาบน้ำแบบบานเลื่อน 2 ตอน ของ Charmer กรอบอลูมิเนียมสีธรรมชาติ

ได้ฝักบัวสายอ่อน, ก๊อกน้ำ ที่วางสบู่เซรามิกของ American Standard, และที่วางสบู่สีขาวอีกอันของ Bathero

มุมนี้ถ่ายจากภายในโซนอาบน้ำมองออกไปยังโซนแห้ง

ได้ไฟดาวน์ไลท์ 2 ดวง พร้อมเครื่องดูดอากาศของ Panasonic

สวิตช์ และปลั๊กไฟสีเทาเข้มดูสวยดีทีเดียว
2) ห้องแบบ 1 ห้องนอน ขนาด 28.00 ตร.ม.
ฟังก์ชั่นการจัดวาง Layout ของห้องขนาด 28.00 ตร.ม. คล้ายกันกับห้องขนาด 24.00 ตร.ม. แต่ว่าห้องนี้จะมีความลึกของห้องมากกว่า โดยมีหน้ากว้าง 5.2 เมตร ลึก 5.65 เมตร

Layout ห้องนี้คล้ายกันกับห้องที่แล้ว โดยเดินเข้ามาโซนแรกยังคงเป็นห้องครัวแบบเปิด

เคาน์เตอร์ครัวทางซ้ายมือใหญ่กว่าห้องที่แล้วนิดหน่อย ขนาดประมาณ (กxยxส) 60x150x91 ซม.
มีช่องเก็บของทั้งด้านบน และด้านล่าง

ห้องนี้ Built-in ฝั่งตรงข้ามมาให้เป็นตู้เก็บรองเท้า

บนหลังตู้ยังใช้เป็นพื้นที่สำหรับเตรียมอาหารก็ยังได้

ห้องนี้จะได้ตู้ Built-in สำหรับครอบปิดเบรกเกอร์ไฟฟ้ามาให้เพื่อความสวยงาม และยังช่วยเพิ่มพื้นที่สำหรับเก็บของ

ในโซนห้องนั่งเล่นก็ยังคง Built-in ตู้เก็บของเต็มผนัง และโต๊ะอเนกประสงค์มาให้ดูเป็นตัวอย่างคล้ายกับห้องที่แล้ว

แต่มีลิ้นชักเก็บของแค่ 2 ช่อง

ขยายพื้นที่บนโต๊ะสำหรับวางของได้เยอะยิ่งขึ้น สำหรับทีวีย้ายไปแขวนไว้ที่ผนังแทนการตั้งโต๊ะ

ห้องนั่งเล่นวางโซฟาขนาด 2 ที่นั่ง ระยะดูทีวีประมาณ 130 ซม.
ห้องนี้ได้แอร์ 2 ตัว ขนาด 9,000 BTU ตัวแรกที่ห้องนั่งเล่น และอีกตัวอยู่ภายในห้องนอน

ประตูระเบียงบานเลื่อนแบบ 2 ตอน ด้านนอกเป็นระเบียงซักล้าง คอมเพรสเซอร์แขวนไว้ด้านบนจึงทำให้ไม่ร้อนมาก
สามารถหาต้นไม้ขนาดไม่ใหญ่มากมาปลูกเพื่อเพิ่มความสดชื่นให้กับพื้นที่ระเบียงก็ได้

ตามเข้าไปดูภายในห้องนอนกันต่อเลยค่ะ ประตูห้องนอนที่ได้เป็นแบบลูกบิดธรรมดาแบบเปิดเข้า

ภายในห้องวางเตียงนอนขนาด 6 ฟุต ไว้ทางฝั่งขวาใกล้กับหน้าต่าง พื้นที่ปลายเตียงประมาณ 40 ซม.
ติดตั้งปลั๊ก และสวิตช์ไฟมาให้ด้วย 1 จุด แต่ไม่มีโต๊ะข้างเตียง

พื้นที่ข้างเตียงถึงหน้าต่างประมาณ 53 ซม.

ภายในห้องนอนได้แอร์อีก 1 ตัว ติดไว้ที่ผนังฝั่งปลายเตียง

ตู้เสื้อผ้าแบบบานสลับเลื่อนได้ทั้งฝั่งซ้ายและขวา ขนาดใหญ่กว่าห้องที่แล้วหน้ากว้างประมาณ 123 ซม.
จากเตียงถึงตู้เสื้อผ้ามีระยะเดินอยู่ที่ 95 ซม.

ห้องน้ำอยู่ใกล้กับตู้เสื้อผ้า

สุขภัณฑ์ภายในห้องน้ำเหมือนกับห้องที่แล้วเปลี่ยนเพียงตำแหน่งการจัดวาง โดยห้องนี้โซนอาบน้ำจะย้ายมาอยู่ทางขวา

ได้เครื่องทำน้ำอุ่น ฝักบัว และที่วางสบู่เหมือนเดิม
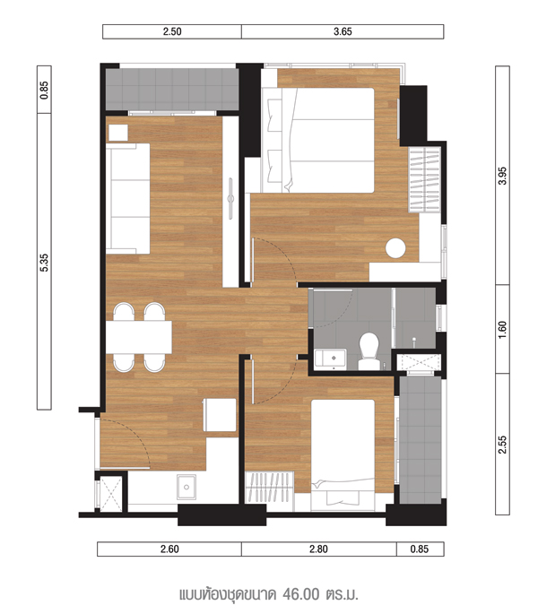
3) ห้องแบบ 2 ห้องนอน พื้นที่ใช้สอย 46.00 ตร.ม.
ฟังก์ชั่นการจัดวาง Layout ของห้องแบบ 2 ห้องนอน ขนาด 46.00 ตร.ม. เป็นห้องดีไซน์ใหม่ของ LPN ปกติโครงการที่ผ่านๆ มาเกือบทั้งหมดถ้าอยากได้แบบ 2 ห้องนอน ลูกค้าจะต้องซื้อห้องเล็ก 2 ห้องแล้วนำมา Combine กัน โดยห้องนี้มีหน้ากว้าง 6.5 เมตร ลึก 8.1 เมตร

และห้องสุดท้ายคือห้องแบบ 2 ห้องนอน

ห้องนี้ได้เคาน์เตอร์ครัวแบบ L-Shape ขนาดใหญ่ขึ้นกว่า 2 ห้องที่แล้ว

พื้นที่เตรียมอาหาร และที่เก็บของก็เยอะขึ้นตามไปด้วย ที่วางเครื่องซักผ้ายังคงวางตู้ใต้เคาน์เตอร์ครัว

เจาะช่องผนังบางส่วนไว้สำหรับวางเครื่องปรุงรสสำหรับทำอาหาร

ถัดจากห้องครัวเป็นพื้นที่ทานอาหาร ที่เชื่อมต่อกับพื้นที่ห้องนั่งเล่น จากมุมนี้จะเห็นเลยว่าห้องนี้มีขนาดพื้นที่ค่อนข้างกว้าง

วางโต๊ะทานอาหารได้แบบ 4 ที่นั่ง โดยโครงการเลือกใช้โซฟายาววางชิดผนังเพื่อเป็นการประหยัดพื้นที่
และถ้านั่งชิดๆ กันหน่อยก็ยังสามารถเพิ่มจำนวนที่นั่งได้อีกด้วย

ห้องนั่งเล่นได้แอร์ 1 ตัว ติดอยู่เหนือประตูระเบียง สามารถวางโซฟาขนาด 3 ที่นั่งได้

มีระยะดูทีวีอยู่ที่ประมาณ 150 ซม.

มุมนี้มองจากห้องนั่งเล่นย้อนไปยังพื้นที่ครัว

ระเบียงซักล้างต่อท่อน้ำดี น้ำทิ้งมาให้เรียบร้อย

ห้องน้ำตั้งอยู่ระหว่างห้องนอนใหญ่กับห้องนอนเล็ก

ภายในห้องนอนกว้างมาก เหลือพื้นที่ให้เดินได้แบบสบายๆ ตำแหน่งเตียงนอนอยู่ฝั่งซ้ายใกล้หน้าต่าง
เนื่องจากห้องแบบ 2 ห้องนอนเป็นห้องที่อยู่หัวมุมจึงมีหน้าต่างถึง 2 ฝั่งด้วยกัน คือข้างเตียง และข้างตู้เสื้อผ้า
สามารถเปิดรับแสงธรรมชาติเข้ามาในห้องได้ดีจึงทำให้ห้องดูสว่างมากยิ่งขึ้น

ในห้องวางเตียงนอนขนาด 6 ฟุตมาให้ดู ยังเหลือพื้นที่ปลายเตียงอีกประมาณ 35 ซม.

จากเตียงถึงหน้าต่างมีระยะเดินประมาณ 37 ซม.
ออกแบบหน้าต่างให้เป็นแบบ Bay Window ขนาดใหญ่เพิ่มมุมมองในการชมวิวได้กว้างมากขึ้น

ด้านบนเป็นหน้าต่างบานกระทุ้งสำหรับเปิดระบายอากาศ

ตู้เสื้อผ้าขนาดใหญ่ขึ้นเช่นกัน หน้ากว้าง 120 ซม. เก็บเสื้อผ้าได้เยอะขึ้น
ด้านข้างตู้เสื้อผ้า Built-in มาให้ดูเป็นโต๊ะเครื่องแป้ง ด้านล่างมีลิ้นชักเก็บของอีก 3 ชั้น

ในห้องนอนได้แอร์อีก 1 ตัวติดอยู่ฝั่งเดียวกับประตู

ย้ายมาดูในห้องน้ำกันต่อค่ะ...ห้องน้ำนี้มีขนาดใหญ่กว่า 2 ห้องที่แล้ว ห้องนี้ได้ฉากกั้นอาบน้ำแบบบานเลื่อน
3 ตอน สามารถเปิดได้ค่อนข้างกว้าง ไม่มีเครื่องดูดอากาศ แต่จะมีหน้าต่างบานกระทุ้งเพิ่มมาให้แทน

ส่วนสุขภัณฑ์อื่นๆ ภายในห้องน้ำเหมือนเดิม

และห้องสุดท้ายคือห้องนอนเล็ก เหมาะสำหรับวางเตียงนอนขนาด 3.5 ฟุต
ได้ตู้เสื้อผ้าบานเปิดหน้ากว้าง 90 ซม. อยู่ทางขวา และแอร์อีก 1 ตัวอยู่เหนือประตูระเบียง

ระหว่างเตียงถึงระเบียงมีพื้นที่ให้เดินประมาณ 40 ซม.

ระเบียงห้องนี้ไม่มีก๊อกน้ำมาให้นะคะ มีเพียงท่อสำหรับระบายน้ำเท่านั้น
ราคาและค่าใช้จ่ายที่เกี่ยวข้องโดยประมาณ (10 เม.ย. 60)
ราคาเริ่ม 2.59 ล้านบาท*
สถานะปัจจุบันของโครงการ (10 เม.ย. 60)
คาดว่าจะเริ่มก่อสร้างประมาณเดือนสิงหาคม 2560 และจะแล้วเสร็จประมาณปลายปี 2561 เปิดให้ลูกค้าเข้าชมห้องตัวอย่างได้แล้วที่สำนักงานขายตั้งแต่วันที่ 25 มี.ค. 2560 ที่ผ่านมา โดยลูกค้าสามารถเข้าชมได้ทุกวันตั้งแต่เวลา 11.00 น. - 18.00 น.
สอบถามรายละเอียดเพิ่มเติม Call Center 02-689-6888 หรือ
www.lpn.co.th หมายเหตุ :: โครงการที่ส่งมอบอาจมีรายละเอียดบางประการที่เปลี่ยนแปลงไปตามความเหมาะสม