ประเมินวงเงินรู้ผลใน 3 นาที
กับ กรุงศรี ออโต้ พร้อมสตาร์ท

เริ่มประเมินวงเงินพร้อมสตาร์ท
ผ่านมือถือ สแกนเลย

ดูวงเงินพร้อมสตาร์ทที่ได้รับ

  • คอนโด
  • คอนโด
  • ค้นหาแบบละเอียด
  • รีวิว-เยี่ยมชม โมริ เฮาส์ (mori HAUS)

    22 ก.ย. 59 18,255
    โมริ เฮาส์ (mori HAUS)
    วันนี้ Checkraka.com จะพาทุกท่านไปรีวิว-เยี่ยมชม คอนโดมิเนียมจาก บริษัท แสนสิริ จำกัด (มหาชน) กันค่ะ โครงการที่มีชื่อว่า "โมริ เฮาส์ (mori HAUS)" คอนโดมิเนียมสไตล์รีสอร์ทแห่งใหม่ภายใน T77 Community อยู่ระหว่างซอยสุขุมวิท 71 และซอยสุขุมวิท 77 ออกแบบภายใต้แนวคิด "Trees of Life" เต็มไปด้วยความร่มรื่นจากต้นไม้ใหญ่ในสไตล์สวนป่าขนาดย่อม มีความเป็นส่วนตัวสูง ห่างจากรถไฟฟ้า BTS สถานีอ่อนนุชประมาณ 1.3 กม. โครงการนี้จะเป็นอย่างไรกันบ้าง ตามไปชมกันค่ะ
    ข้อมูลโครงการ
    • เจ้าของและผู้พัฒนาโครงการ: บริษัท แสนสิริ จำกัด (มหาชน)
    • ที่ตั้งโครงการ: ถนนสุขุมวิท ซอยสุขุมวิท 77 แขวงพระนครเหนือ เขตวัฒนา กรุงเทพฯ
    • อาคารชุดพักอาศัยสูง 7 ชั้น จำนวน 2 อาคาร รวม 262 ยูนิต
    • ขนาดที่ดินทั้งโครงการ: 4 ไร่
    • ลิฟต์โดยสาร 2 ตัวต่ออาคาร
    • ห้องชุดมี 3 รูป คือ 1 ห้องนอน, 2 ห้องนอน และ 3 ห้องนอน
    • ที่จอดรถ :  ประมาณ 59.2% แบบไม่รวมจอดซ้อนคัน
    • ราคาเริ่มต้น 4.4 ล้านบาท สําหรับห้องขนาด 35.00 ตร.ม. (ข้อมูล ณ 3 ส.ค. 59)
    • สถานะโครงการ : อยู่ระหว่างดำเนินการก่อสร้าง
    • วันที่เข้าเยี่ยมชม-รีวิวคอนโด 3 ส.ค. 59
    เจ้าของและผู้พัฒนาโครงการ
    บริษัท แสนสิริ จำกัด (มหาชน) เริ่มก่อตั้งเมื่อปี 2527 ประกอบธุรกิจหลักประเภทพัฒนาอสังหาริมทรัพย์ โดยได้จดทะเบียนแปรสภาพเป็นบริษัทมหาชนจำกัดเมื่อปี 2538 โดยโครงสร้างรายได้ส่วนใหญ่ของบริษัทจะมาจากการพัฒนาอสังหาริมทรัพย์เพื่อการขาย อาทิเช่น โครงการบ้านเดี่ยว ทาวน์เฮ้าส์ และคอนโดมิเนียม ทั้งในกรุงเทพฯ และต่างจังหวัด โดยมีการเปิดตัวโครงการรูปแบบใหม่ออกสู่ตลาดอสังหาฯ อย่างต่อเนื่อง และล่าสุดกับโครงการ "โมริ เฮาส์" (Mori HAUS) คอนโดมิเนียม Low-Rise โครงการที่ 2 ของแสนสิริที่เปิดขายไปเมื่อต้นเดือนสิงหาคม 2559 ที่ผ่านมา
    ทำเลที่ตั้ง
    โครงการ mori HAUS ตั้งอยู่ติดถนนสุขุมวิท 77 ถือเป็นโครงการที่มีสิ่งอำนวยความสะดวกล้อมรอบจริงๆ ค่ะ เพราะตั้งอยู่ในพื้นที่ T77 Community มีคอนโดของแสนสิริอยู่รอบๆ อยู่ติดคลองพระโขนง มี Habito Mall อยู่ใกล้ๆ ระยะทางแค่ 500 เมตร ออกไปด้านนอกก็มีบิ๊กซี อ่อนนุช ถัดไปอีกหน่อยก็เป็น BTS อ่อนนุช (ระยะห่างประมาณ 1.3 กิโลเมตร) แต่ทางโครงการก็มีรถ Shuttle Service คอยรับส่ง ทั้งยังมีโรงเรียนนานาชาติ เรียกได้ว่าอยู่ตรงข้ามโครงการ mori HAUS เลยทีเดียว    

    แผนที่โครงการ mori HAUS
    Google Map

    ภาพแผนที่แจกแจงให้เห็นรายละเอียดใกล้-ไกลของโครงการกับสถานที่ หรือ Landmark รอบๆ โครงการที่น่าสนใจ

    BTS สถานีอ่อนนุช ห่างจากโครงการประมาณ 1.3 กิโลเมตร

    Tesco Lotus อ่อนนุช อยู่ติดกับ BTS อ่อนนุชค่ะ (ห่างจากโครงการประมาณ 1.3 กิโลเมตร) 

    บิ๊กซี อ่อนนุช (ห่างจากโครงการประมาณ 1 กิโลเมตร) 

    โรงเรียนนานาชาติ เซนต์ แอนดรูว์ส ห่างจากโครงการประมาณ 1.9 กิโลเมตร
    การเดินทาง
    1. การเดินทางด้วยรถยนต์ 
    การเดินทางด้วยรถยนต์นั้น สามารถเดินทางได้หลายเส้นทาง ดังนี้ค่ะ
    • ขาเข้าโครงการเส้นทางที่ 1 ไปตามเส้นทางถนนสุขุมวิท

    เริ่มการเดินทางบนเส้นทางถนนสุขุมวิท เลียบทางรถไฟฟ้า BTS ไปเรื่อยๆ 

    ผ่านแยกอโศก แล้วมุ่งหน้าต่อบนถนนสุขุมวิท

    ผ่านแยกทองหล่อ แล้วมุ่งหน้าต่อบนถนนสุขุมวิท

    ผ่าน BTS พระโขนง

    ขึ้นสะพานเพื่อข้ามคลองพระโขนง พอลงจากสะพานแล้วเตรียมชิดซ้ายได้เลยค่ะ

    มุ่งหน้าต่อมาประมาณ 350 เมตร จะเจอแยกอ่อนนุช ให้เลี้ยวซ้ายเข้าถนนสุขุมวิท 77 เลยค่ะ

    มุ่งหน้าต่ออีก 350 เมตร เลี้ยวซ้ายเข้าซอยอ่อนนุช 1/1

    มุ่งหน้าเข้ามา T77 Community ข้ามสะพานแสนสำราญ

    ลงสะพานมาด้านซ้ายจะเป็น คอนโด The Base Park West ด้านหน้าเป็น คอนโด The Base Park East
    และด้านขวาเป็น Habito Mall ค่ะ

    มุ่งหน้าต่อ แล้วเลี้ยวขวา

    เลี้ยวขวาเข้ามาแล้วจะเห็น ทาวน์เฮ้าส์ Garden Square อยู่ด้านซ้าย ให้ตรงไป 

    ด้านซ้ายเป็นโรงเรียนนานาชาติ Bangkok Prep ด้านขวาเป็น คอนโด hasu HAUS ให้ตรงไปอีกค่ะ

    ถัดจาก คอนโด hasu HAUS จะเป็นคอนโด mori HAUS ค่ะ
    • ขาเข้าโครงการเส้นทางที่ 2 จากถนนศรีนครินทร์ ไปตามเส้นทางถนนสุขุมวิท 77
    • ขาออกโครงการเส้นทางที่ 1 ออกทางออกด้านหลัง T77 Community ขึ้นทางด่วนรามอินทราฯ
    • ขาออกโครงการเส้นทางที่ 2 ออกทางออกด้านหลัง T77 Community ลัดเข้าซอยปรีดี พนมยงค์ 2
    2. การเดินทางด้วยรถไฟฟ้า BTS

    BTS สถานีอ่อนนุช ห่างจากโครงการประมาณ 1.3 กิโลเมตร
    ทางโครงการมีรถ Shuttle Service บริการรับส่งจาก T77 community มา BTS อ่อนนุชค่ะ 

    จุดขึ้นรถ Shuttle Service อยู่ด้านข้าง Habito Mall ค่ะ
    สภาพแวดล้อมใกล้เคียง

    แผนที่แสดงสถานที่ใกล้เคียงโครงการ mori HAUS
    ถ้าเราเดินทางจาก BTS อ่อนนุช เราจะพบสถานที่อำนวยความสะดวกต่างๆ ดังนี้ค่ะ

    เริ่มจาก BTS อ่อนนุช (ห่างจากโครงการประมาณ 1.3 กิโลเมตร)

    เดินต่อมาจะเจอสถานีดับเพลิงพระโขนง (ห่างจากโครงการประมาณ 1.3 กิโลเมตร)

    ถัดจากสถานีดับเพลิง จะเป็นสถานีตำรวจพระโขนงค่ะ (ห่างจากโครงการประมาณ 1.2 กิโลเมตร)

    ถึงซอยสุขุมวิท 77 ทางเดินจะเต็มไปด้วยร้านขายของต่างๆ มากมาย  

    ตลาดอ่อนนุชค่ะ

    เดินไปตามเส้นทางสุขุมวิท 77 มีร้านแผงลอยทอดยาวไปจนถึงบิ๊กซี อ่อนนุชเลยค่ะ

    บิ๊กซี อ่อนนุช (ห่างจากโครงการประมาณ  1 กิโลเมตร)

    ถ้าข้ามจากฝั่งบิ๊กซีมา จะมีร้านค้า และคลินิกต่างๆ ค่ะ

    เดินมาสักพักอาจจะเหนื่อย ก็มีร้านกาแฟเล็กๆ พักดื่มกาแฟได้ค่ะ

    เดินต่อไปจะเจอคลินิกทันตกรรม

    ถัดจากคลินิกทันตกรรมจะเป็นคอนโด Blocs 77 ค่ะ (ห่างจากโครงการประมาณ 900 เมตร)

    หน้าคอนโด Blocs 77 มีป้ายรอรถเมล์ และมีรถสองแถวผ่านตลอดค่ะ

    พอถึงซอยอ่อนนุช 1/1 เลี้ยวซ้ายเข้าไปยัง T77 Community ได้เลยค่ะ

    ข้ามสะพานแสนสำราญ

    บนสะพานมีทั้งทางเดิน ทางจักรยาน และทางรถยนต์ค่ะ

    ลงจากสะพานมาจะเจอ Habito Mall (ห่างจากโครงการประมาณ 500 เมตร)
    ที่นี่เป็นแหล่งรวมร้านอาหารที่อำนวยความสะดวกให้กับชาว T77 Community ค่ะ
    จะมีร้านอะไรน่าสนใจบ้างเลื่อนดูกันต่อเลยค่ะ

    ชั้น 1 ของ Habito Mall มีธนาคารไทยพาณิชย์

    มีร้านอาหารเกาหลี Saranghae

    ร้านกาแฟ

    ร้าน Boots

    ห้องน้ำอยู่ชั้น 1 ค่ะ

    ภายในห้องน้ำสวยหรู สะอาดมากเลยค่ะ

    เดินออกจากห้องน้ำชั้น 1 จะเจอ 7 - Eleven

    ด้านในมีที่นั่งให้ชาร์จแบตโทรศัพท์ได้ด้วยค่ะ เก๋ทีเดียว

    ขึ้นไปบนชั้น 2 กันต่อเลยดีกว่าค่ะ

    ชั้น 2 ของ Mabito Mall มี AIS Shop ค่ะ

    ร้านอาหาร Choi Choi เน้นไก่ทอดน่าทานทีเดียว

    ร้านอาหารอิตาเลียน ตกแต่งสวยหรู ดูเมนูแล้วก็น่าทานค่ะ

    ถัดมาเป็นร้านอาหารเวียดนามค่ะ

    ขึ้นไปบนชั้น 3 ของ Habito Mall กันบ้างค่ะ

    ห้องนี้เป็นห้อง Work space ไว้รองรับกิจกรรมหลายรูปแบบค่ะ

    ถัดจากห้อง Work space เป็นคลินิกทันตกรรม Habito Dental Clinic ค่ะ

    ถัดจาก Habito Dental Clinic เป็น ห้อง Sales Gallery ของโครงการ mori HAUS ค่ะ

    ถ้าออกจาก Habito Mall มาจะเห็น คอนโด The Base Park East 

    ถัดมาจะเป็น โครงการทาวน์เฮ้าส์ Garden Square ค่ะ สวยหรูสไตล์โมเดิร์น

    ตรงข้ามกับโครงการ hasu HAUS และโครงการ mori HAUS เป็นโรงเรียนนานาชาติ Bangkok Prep ค่ะ

    ถัดมาเป็นโครงการ hasu HAUS ถือเป็นโครงการต้นแบบของ mori HAUS ค่ะ

    และแล้วก็มาถึงโครงการ mori HAUS ซึ่งตอนนี้กำลังก่อสร้างค่ะ
    รูปแบบตึก และตัวโครงการโดยรวม
    mori HAUS เป็นคอนโด Low-Rise สูง 7 ชั้น จำนวน 2 อาคาร ลักษณะ L-Shape โอบล้อมสวนส่วนกลาง มีจำนวนยูนิตพักอาศัย 262 ยูนิต ชั้น 1 ทั้งหมดเป็นส่วนของสิ่งอำนวยความสะดวก ตั้งแต่ชั้น 2-7 ขึ้นไปเป็นส่วนห้องพักอาศัย โดยห้องแบบ 2 ห้องนอนค่อนข้างเยอะ ประมาณ 33% ของห้องทั้งหมด โครงการ mori HAUS ออกแบบภายใต้แนวคิด Trees of Life เหมือนมีป่าขนาดย่อมๆ รายล้อมรอบตัวอาคาร โดยรวมแล้วจะคล้ายๆ กับโครงการ hasu HAUS แต่โครงการ mori HAUS มีการพัฒนาเพิ่มเติมขึ้นมาในส่วนของ Layout ห้องให้มีฟังก์ชั่นการใช้งานที่ดียิ่งขึ้น ห้องพักของชั้น 3, 5 และ 7 บางส่วนจะมีระเบียงห้องแบบ Private tree balcony คือมีต้นไม้ที่ระเบียงมาให้ด้วยแต่ว่ามีห้องแบบนี้แค่ประมาณ 80 กว่าห้องเท่านั้น ซึ่งทางนิติบุคคลจะเป็นผู้ดูแลต้นไม้ให้ ส่วนห้องพักของชั้น 2, 4 และ 6 จะเป็นห้องพักที่มีระเบียงแบบสองชั้น และระเบียงแบบเปิดโล่ง ให้ลูกค้าได้เลือกตามความชอบ นอกจากนี้ mori HAUS ยังโดดเด่นด้วย The Glass Haus หรือ Clubhouse ลักษณะเป็นอาคาร 2 ชั้นที่แยกออกมาจากตัวอาคารพักอาศัย ภายใน The Glass Haus ชั้น 1 ประกอบด้วย ล็อบบี้, ห้องออกกำลังกาย และห้องนิติบุคคล ชั้น 2 ทางโครงการจัดเป็นสวนบนดาดฟ้า ส่วนที่จอดรถจะอยู่ที่ชั้น 1 บริเวณใต้อาคาร มีพื้นที่จอดรถกลางแจ้งอีกนิดหน่อย รวมแล้วสามารถจอดรถได้ประมาณ 59.2% หรือ 155 คัน แบบไม่รวมจอดซ้อนคัน มีลิฟต์โดยสาร 2 ตัว ไม่มีลิฟต์บริการ อัตราการใช้ลิฟต์เฉลี่ยอาคาร A = 71:1 ส่วนอาคาร B = 59:1 ซึ่งถือว่าเป็นตัวเลขที่ดี

    ภาพรวมโครงการที่อยู่อาศัยภายใน T77 Community ที่อยู่ใกล้กับโครงการ mori HAUS

    โมเดลโครงการมุมมองจากทิศตะวันตกฝั่งอาคาร A ติดกับถนนด้านหน้าโครงการ
    และฝั่งตรงจะข้ามเป็นโรงเรียน Bangkok Prep (ในอนาคต)

    โมเดลโครงการมุมมองจากทิศเหนือฝั่งอาคาร A ติดกับพื้นที่วางวิวเปิดโล่ง

    โมเดลโครงการมุมมองจากทิศใต้ ฝั่งอาคาร B จะมีอพาร์ตเมนต์ระดับพรีเมียมจากมั่นคงเคหะการ
     Park Court Grand Apartment ความสูง 7 ชั้น มีถนนภายในโครงการกั้นระหว่างกลางซึ่งห้องฝั่งนี้อาจโดนบังวิวไปบ้าง
    แต่ก็ไม่ถึงขนาดเสียความเป็นส่วนตัว เพราะมีระยะห่างจากโครงการโมริ เฮาส์ มากกว่า 20 เมตร

    โมเดลโครงการมุมมองจากทิศตะวันตกเฉียงใต้ ฝั่งอาคาร A ค่อนข้างเปิดโล่ง
    มาดู Master Plan ของโครงการ mori HAUS กันค่ะ มาดูซิว่าแต่ละชั้นมีอะไรอยู่ตรงไหนกันบ้าง


    Master Plan ชั้น 1 ประกอบด้วย The Glass Haus, Net set, สระว่ายน้ำระบบเกลือ, สระเด็ก, Pavilion, Pool deck และพื้นที่สวนสีเขียว ส่วนที่จอดรถจะอยู่ใต้อาคาร A และอาคาร B

    Master Plan ชั้น 2 จะเป็นส่วนพักอาศัยทั้งหมด
    อาคาร A มียูนิตต่อชั้นอยู่ที่ 23 ยูนิต แบ่งเป็นห้องแบบ 1 ห้อง จำนวน 18  ยูนิต และ 2 ห้องนอน 5 ยูนิต
    อาคาร B 
    มียูนิตต่อชั้นอยู่ที่ 19 ยูนิต แบ่งเป็นห้องแบบ 1 ห้อง จำนวน 9  ยูนิต และ 2 ห้องนอน 10 ยูนิต


    Master Plan ชั้น 3, ชั้น 5 และชั้น 7 จะคล้ายกันคือ เป็นส่วนพักอาศัยทั้งหมดแต่มีจำนวนห้องเพิ่มขึ้นมาเล็กน้อยโดยอาคาร A มียูนิตต่อชั้นอยู่ที่ 24 ยูนิต แบ่งเป็นห้องแบบ 1 ห้อง จำนวน 18  ยูนิต และ 2 ห้องนอน 6 ยูนิต ส่วนอาคาร B มียูนิตต่อชั้นอยู่ที่ 20 ยูนิต แบ่งเป็นห้องแบบ 1 ห้อง จำนวน 9  ยูนิต, 2 ห้องนอน 10 ยูนิต และ 3 ห้องนอน 1 ยูนิต โดยทุกห้องที่หันหน้าออกนอกด้านนอกอาคาร (ไม่ได้หันเข้าหาสวนส่วนกลาง) จะเป็นห้องแบบ Private tree balcony คือมีต้นไม้อยู่ที่ระเบียง

    Master Plan ชั้น 4 และชั้น 6 จะคล้ายกันคือเป็นส่วนพักอาศัยทั้งหมด
    อาคาร A มียูนิตต่อชั้นอยู่ที่ 24 ยูนิต แบ่งเป็นห้องแบบ 1 ห้อง จำนวน 18  ยูนิต และ 2 ห้องนอน 6 ยูนิต
    อาคาร B มียูนิตต่อชั้นอยู่ที่ 20 ยูนิต แบ่งเป็นห้องแบบ 1 ห้อง จำนวน 9  ยูนิต, 2 ห้องนอน 10 ยูนิต และ 3 ห้องนอน 1 ยูนิต
    ส่วนกลางและสิ่งอำนวยความสะดวก              
    สิ่งอำนวยความสะดวกทางโครงการจัดมาให้ลูกบ้านเยอะพอสมควร ถ้าเทียบกับจำนวนของลูกบ้าน โดยทั้งหมดจะอยู่ตรงกลางบริเวณชั้น 1 แต่สิ่งที่โดดเด่นที่สุดคงจะเป็น The Glass Haus ที่แยกออกมาจากตัวอาคารพักอาศัย ซึ่งชั้น 1 ทางโครงการจัดเป็นห้องออกกำลังกาย (The Firm) พร้อมอุปกรณ์ และล็อบบี้ที่มีความสูงถึง 3.5 เมตร และ The Glass Haus นี้ยังพิเศษตรงที่กระจก ถ้ามองจากด้านในออกไปด้านนอกจะสามารถมองเห็นสระว่ายน้ำ เห็นสวน เห็นบรรยากาศความเป็นธรรมชาติ แต่ถ้ามองจากด้านนอนเข้ามาจะมองเห็นเป็นเงาสะท้อนของต้นไม้ให้ความรู้สึกร่มรื่น เพราะฉะนั้นไม่ว่าจะอยู่ด้านใน หรือด้านนอกก็สามารถสัมผัสธรรมชาติได้อย่างเต็มที่ ส่วนเพดานด้านบนของล็อบบี้บางส่วนถูกเจาะเป็นช่องแสงอีกด้วย สามารถเดินขึ้นบันไดจากทางด้านข้างของ The Glass Haus ขึ้นไปยังชั้น 2 ที่ถูกออกแบบเป็นสวนหย่อมให้ลูกบ้านมานั่งชมวิวสระว่ายน้ำ และสวนสีเขียวขนาดใหญ่ของโครงการได้
    อีกส่วนที่น่าสนใจคือสระว่ายน้ำระบบเกลือแบบ Freeform ซึ่งแบ่งออกด้วยกันเป็น 4 ฟังก์ชั่น ประกอบด้วย Lap Pool ความยาว 25 เมตร มีส่วนที่กว้างที่สุดอยู่ที่ 10 เมตร ความลึก 1.2 เมตร, สระเด็กความลึก 0.6 เมตร, Net Seat ตาข่ายเหนือน้ำ สำหรับให้พักผ่อนนอนชิลอยู่บนผิวน้ำ และจากุซซี่ ซึ่งถ้าเทียบขนาดสระว่ายน้ำ กับจำนวนยูนิตห้องพักของโครงการคอนโดที่ผ่านๆ มาของแสนสิริ ก็ถือว่าที่นี่ให้สระว่ายน้ำขนาดใหญ่ นอกจากนี้แล้วทางโครงการยังจัดพื้นที่พักผ่อนสำหรับลูกบ้านไว้อีกหลายจุด อาทิ
  • สวนหย่อมรอบโครงการ
  • พื้นที่สันทนาการกลางแจ้ง
  • อินเทอร์เน็ตไร้สายบริเวณล็อบบี้ ห้องออกกำลังกาย และสระว่ายน้ำ
  • รถรับส่ง
  • ที่จอดจักรยาน
  • จักรยานให้ยืมรุ่นพิเศษ HAUS x tokyobike
  • Plus concierge
  • Greenery deck
  • เจ้าหน้าที่รักษาความปลอดภัย ตลอด 24 ชั่วโมง
  • กล้องวงจรปิดตลอด 24 ชั่วโมง

ตรงประตูโครงการมีไม้กระดกกั้นเข้าออกด้วยระบบคีย์การ์ด มีป้อม รปภ. อยู่ทางขวามือ

จากประตูทางเข้าขับตรงเข้ามาทางซ้ายมือจะเป็นทางเข้าที่จอดรถใต้อาคาร A ถัดมาจะเป็นจุด Drop off
และถัดมาอีกจะเป็นทางเข้าที่จอดรถใต้อาคาร B

The Glass Haus ความสูง 3.5 เมตร และมีส่วนที่เป็น Roof garden อยู่ด้านบน

Net Seat ตาข่ายเหนือผิวน้ำ สำหรับให้พักผ่อนนอนชิลอยู่บนผิวน้ำ

มุมนั่งเล่นที่จัดไว้ที่นอกสวนให้ลูกบ้านได้ซึมซับอารมณ์ และบรรยากาศความร่มรื่นภายใต้ร่มเงาสีเขียวของต้นไม้ ซึ่งทางโครงการจัดเป็นโต๊ะสำหรับนั่งพักผ่อน หรือเอาโน้ตบุ๊กมาตั้งทำงานก็ได้ ต่อปลั๊กไฟไว้ให้พร้อมใช้งาน

ภาพจำลองบรรยากาศสระว่ายน้ำแบบ Freeform สไตล์รีสอร์ท พร้อม Pool Deck ริมสระ

ภาพจำลองบรรยากาศพื้นที่สวนส่วนกลาง

ภาพจำลองบรรยากาศห้องออกกำลังกาย (The Firm)

ภาพจำลองบรรยากาศล็อบบี้

ภาพจำลองบรรยากาศจุด Drop off
ภาพห้องตัวอย่างและ Lay Out
ห้องของโครงการนี้ขายเป็นแบบ Fully Fitted มีเฟอร์นิเจอร์ให้บางส่วน อาทิ ชุดเคาน์เตอร์ครัวแบบ Built-in พร้อมกับเตาไฟฟ้า เครื่องดูดควัน แอร์ ตู้เสื้อผ้า (เฉพาะห้องนอนใหญ่) พื้นที่ห้องขนาดใหญ่เริ่มต้นที่ 35.00 ตร.ม. เป็นห้องแบบหน้ากว้างทำให้ห้องดูกว้างไม่อึดอัด จุดเด่นอีกอย่างของห้องโครงการนี้เลยคือครัวแบบตู้ปลา หรือครัวปิดแบบกระจก พิเศษด้วยระบบดูดอากาศ พอเปิดไฟในห้องครัวปุ๊บระบบจะทำงานโดยการดูดแอร์ หรืออากาศจากห้องนั่งเล่นเข้ามาในห้องครัว เป็นข้อดีสำหรับคนที่ชอบทำครัวเป็นเวลานาน ช่วยทำให้อากาศภายในห้องครัวหมุนเวียนและถ่ายเทได้ดี หายใจสะดวกไม่รู้สึกอึดอัด ซึ่งถือเป็นโครงการแรกของแสนสิริที่ทำครัวแบบนี้ โครงการต่อๆ ไป ก็น่าจะเป็นแบบนี้เรื่อยๆ
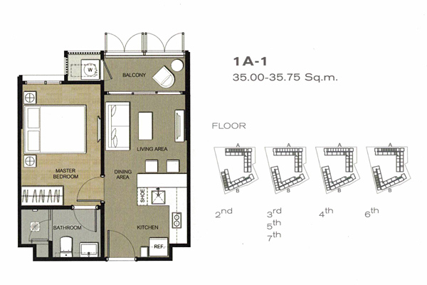
  1. ห้องแบบ 1 ห้องนอน (1 ห้องนอน, 1 ห้องน้ำ) พื้นที่ใช้สอย 35.00 - 47.75 ตร.ม.
    (คลิกเพื่อชมตัวอย่างแปลนห้องขนาดใหญ่)
  2. ห้องแบบ 2 ห้องนอน (2 ห้องนอน, 2 ห้องน้ำ) พื้นที่ใช้สอย 66.25 - 83.00 ตร.ม.
    (คลิกเพื่อชมตัวอย่างแปลนห้องขนาดใหญ่)
  3. ห้องแบบ 3 ห้องนอน (3 ห้องนอน, 3 ห้องน้ำ) พื้นที่ใช้สอย 116.00 - 117.50 ตร.ม.
    (คลิกเพื่อชมแปลนห้องขนาดใหญ่)
1) ห้องแบบ 2 ห้องนอน ขนาด ขนาด 68.50 ตร.ม. แบบ Private tree balcony (มีต้นไม้ที่ระเบียง)

Layout ห้องแบบ 2 ห้องนอน ขนาด 68.50 ตร.ม. มี 2 ห้องน้ำ 2 ห้องนั่งเล่น และ 1 ห้องครัว (แบบปิด)

ประตูหน้าห้อง 2.4 เมตร กว้าง 0.94 เมตร ของจริงจะเป็นลามิเนตปิดผิวทั้งข้างใน และข้างนอก
ที่เห็นในภาพเป็นเพียงแค่ของตกแต่ง

ได้ Digital Door Lock ของ Samsung แบบ 3 ระบบ มือจับแบบก้านโยก ที่บานประตูมีกรุร่องตามแบบในภาพ

เปิดประตูเข้ามาทางซ้ายมือทางโครงการให้ตู้ Built-in ปิดผิวด้วยลามิเนต ความสูงประมาณ 1 เมตรมาให้

เปิดตู้ออกออกมาฝั่งซ้ายของตู้เป็นชั้นสำหรับเก็บของ และชั้นวางรองเท้า ส่วนทางฝั่งขวาทำไว้สำหรับใส่เครื่องซักผ้า

หน้าท็อปด้านบนวัสดุเป็นหินแกรนิตดำอินเดีย

ตรงข้ามกับตู้วางรองเท้าเป็นห้องน้ำแบบ Double Access เข้าออกได้ทั้งจากห้องนอนเล็ก และห้องนั่งเล่น
ความสูงของประตูห้องน้ำอยู่ที่ 2.0 เมตร ส่วนพื้นห้องน้ำปูด้วยกระเบื้องเซรามิกลายหิน ลดระดับลงประมาณ 3 ซม.

ได้กระจกเงาบานเล็กเปิดออกมาเป็นเป็นชั้นสำหรับวางของใช้ในห้องน้ำ

อ่างล้างหน้าทรงสี่เหลี่ยม และก๊อกน้ำของ Cotto

ใต้อ่างล้างหน้าเป็นลิ้นชักสำหรับเก็บของ

โถสุขภัณฑ์ประหยัดน้ำของ Cotto SCG eco value มีสายฉีดชำระอยู่ทางด้านขวา และที่ใส่กระดาษอยู่ทางซ้ายมือ

ส่วนอาบน้ำกั้นด้วยกระจกเทมเปอร์ ที่แตกเป็นข้าวโพด แยกพื้นที่ส่วนเปียกกับส่วนแห้งด้วยธรณีกั้นความสูงประมาณ 3 ซม.
บนเพดานติด Rain Shower และพัดลมระบายอากาศมากให้ด้วย

ได้ฝักบัวแบบก้านแข็งอันใหญ่

หลังประตูเจาะเป็นช่องวางอุปกรณ์อาบน้ำ

ย้ายไปดูห้องนอนเล็กกันบ้าง

ผนังห้องจริงที่ได้ทั้งหมดจะเป็นแบบฉาบเรียบทาสีขาวส่วนที่เห็นในภาพทางโครงการตกแต่งให้ดูเป็นไอเดียเท่านั้นนะคะ
ห้องนี้วางเตียงแบบ 5 ฟุตไว้ตรงกลางห้อง ซึ่งยังเหลือพื้นที่ข้างเตียงอีกเยอะพอสมควร
ส่วนปลายเตียงเหลือประมาณ 60 ซม. อาจจะไม่เหมาะสำหรับวางชั้นวางทีวี
แนะนำให้ติดเป็นทีวีแบบแขวนผนังแบบนี้แทน เพื่อช่วยให้เหลือพื้นที่สำหรับเดินบริเวณปลายเตียง

หน้าต่างเป็นแบบบานติดตาย และได้หน้าต่างบานกระทุ้งมาให้ 1 บานสำหรับเปิดระบายอากาศ

ได้แอร์ยี่ห้อ DAIKIN 1 ตัวขนาด 12,000 BTU ติดอยู่เหนือประตูทางเข้าห้องน้ำ
ส่วนตู้เสื้อผ้าห้องที่ขายจริงไม่ได้นะคะ

ออกไปดูห้องนั่งเล่นกันต่อค่ะ

พื้นที่ห้องนั่งเล่นค่อนข้างกว้าง สามารถวางโซฟาขนาด 3-4 ที่นั่งได้สบายๆ หรือจะวางเป็นแบบ L-Shape ก็ยังได้
พื้นห้องเป็นลามิเนตหนา 8 มม. เพดานห้องสูง 2.7 เมตร เพดานห้องได้ไฟดาวน์ไลท์ทรงสี่เหลี่ยม
ประตูระเบียงเป็นกระจกบานสไลด์ 2 ตอน กรอบอลูมิเนียมสีดำสูงเกือบจรดฝ้า เปิดได้กว้างทำให้ห้องดูโล่ง

พี้นบริเวณระเบียงปูด้วยกระเบื้องเซรามิก

ซ่อนรางผ้าม่านเพิ่มความสวยงามและความเรียบร้อย

ออกมานอกระเบียงทางด้านซ้ายจะเป็นที่วางคอมเพรสเซอร์แอร์ เป่าลมออกด้านนอกอาคาร มีกริลบังสายตามาให้
ด้านขวาเป็นมุมสำหรับปลูกต้นไม้ เพิ่มร่มรื่นให้กับห้องพัก
ระเบียงกันตกเป็นเหล็กซี่สีเทา ด้านท็อปของราวระเบียงเป็นไม้เต็ง ให้ความรู้สึกเป็นธรรมชาติ

ด้านหลังโซฟาเป็นมุมทานข้าว สามารถวางโต๊ะทานข้าวได้แบบ 4 ที่นั่ง
ที่ห้องนั่งเล่นได้แอร์ DAIKIN อีก 1 ตัว ขนาด 23,000 BTU ติดอยู่เหนือประตูทางเข้าห้องนอนเล็ก

ระยะห่างในการดูทีวีจนถึงโซฟาอยู่ที่ประมาณ 1.4 เมตร

ได้ห้องครัวแบบตู้ปลา ประตูกระจกบานเลื่อนแบบ 3 ตอน เลื่อนได้ทั้ง 2 ฝั่ง
ช่วยป้องกันไม่ให้กลิ่นอาหารลอยออกมารบกวนนอกห้องครัว

ในห้องครัวมีช่องระบายอากาศช่วยให้มีอากาศไหลเวียนได้ กระจกห้องครัวเป็นลามิเนต
และฟิล์มตรงกลางเป็นฟิล์มตัดแสงหมดเลยทั้งบานใน บานนอก ความหนาของกระจก 6 มม.
บนเพดานมีไฟดาวน์ไลท์ 2 ดวง

ภายในได้เคาน์เตอร์ครัวรูปตัว U มีช่องสำหรับวางไมโครเวฟอยู่ด้านล่าง ตู้เก็บของทั้งหมดภายในครัวเป็นแบบ Soft Close

เตาไฟฟ้าแบบ 4 หัวของ MEX

เครื่องดูดควันระบบดูดออกด้านนอกของ MEX เช่นกัน ผนังกรุด้วยกระจกเงาดำพร้อมชั้นวางจาน และไฟซ่อน

อ่างล้างจานสแตนเลสทรงสี่เหลี่ยมแบบ 1 หลุมของ MEX แบบไม่มีที่พักจาน และก๊อกน้ำของ MEX

ใต้อ่างล้างจาน เป็นตู้เก็บของเป็นบานสวิง ด้านขวาสุดเป็นแบบลิ้นชัก ดึงออกมาเป็นที่เก็บขยะ

ใต้เคาน์เตอร์เป็นลิ้นชักสำหรับใส่อุปกรณ์ทำครัว พร้อมช่องเก็บช้อนแบบแนวตั้ง เพิ่มความสะดวกในการหยิบ

ตู้เย็นจะอยู่ทางซ้ายของเคาน์เตอร์ครัว

ตามไปดูห้องนอนใหญ่กันต่อเลยค่ะ

เข้ามาในห้องจะเจอเตียงวางอยู่ตรงกลาง สามารถวางเตียงขนาด 5 ฟุต 
ยังพอมีพื้นที่เหลือสำหรับเดินปลายเตียงอีกพอสมควร

พื้นที่ข้างเตียงเหลือประมาณ 70 ซม.

กระจกเป็นแบบบานติดตาย มีบานกระทุ้งมาให้ 1 บานเช่นเคย

แต่ห้องนอนใหญ่จะมีตู้เสื้อผ้า Built-in บานใหญ่สูงจรดเพดานมาให้ด้วย

มีลิ้นชักสำหรับเก็บเครื่องประดับด้วย คุณสาวๆ น่าจะชอบ

สามารถวางชุดโต๊ะทำงานขนาด 1 ที่นั่งไว้ข้างๆ เตียงได้

ส่วนแอร์ของห้องนี้ขนาด 17,000 BTU ติดอยู่เหนือประตูห้องน้ำ

พื้นห้องน้ำลดระดับลงมาประมาณ 3 ซม.

ห้องน้ำในห้อง Master bedroom ทุกห้องของโครงการจะได้อ่างอาบน้ำมาด้วย
ยกเว้นห้องแบ 1 ห้องนอนขนาด 35 ตร.ม. เท่านั้นที่ไม่ได้อ่างอาบน้ำ

ห้องน้ำเด่นที่กระจกบานเต็ม และยาวกว่าห้องที่แล้ว เปิดออกมาเป็นชั้นวางได้เช่นกัน
ใต้กระจกมีปลั๊กไฟสำหรับเสียบไดร์เป่าผมได้

โซนอาบน้ำได้กระจกเทมเปอร์ และ Rain Shower เหมือนห้องที่เล้ว

ปลั๊กและสวิตช์ไฟภายในห้องเป็นของ Siemens
ราคาและค่าใช้จ่ายที่เกี่ยวข้องโดยประมาณ (3 ส.ค. 59)
  • 1 ห้องนอน ขนาด 35 - 47.75 ตร.ม. ราคาเริ่มต้น 4.4 ล้านบาท
  • 2 ห้องนอน ขนาด 66.25-83 ตร.ม. ราคาเริ่มต้น 7.7 ล้านบาท
  • 3 ห้องนอน ขนาด116.5-117.5 ตร.ม. ราคาเริ่มต้น 16 ล้านบาท
  • ราคาเฉลี่ยอยู่ที่ประมาณ 130,000 บาท/ตารางเมตร
ค่าใช้จ่ายอื่นๆ ของโครงการ
  • ค่าส่วนกลาง 75 บาท/ตร.ม./เดือน ชำระล่วงหน้า 1 ปี ณ วันโอนกรรมสิทธิ์
  • เงินกองทุนส่วนกลาง 600 บาท/ตร.ม. ชำระ ณ วันโอนกรรมสิทธิ์
  • ค่าธรรมเนียมการโอนกรรมสิทธิ์ ผู้ซื้อและผู้ขายแบ่งชำระกันคนละครึ่ง
ภาพรวมโดยสรุปของโครงการ
  • การเดินทางเข้าออกโครงการ โครงการ โมริเฮาส์ เดินทางเข้าออกได้หลายเส้นทางค่ะ ส่วนใหญ่เป็นทางหลัก และมีทางลัดเข้าซอยอีก 1 ทาง ทางแรกที่สะดวกที่สุดคือ เดินทางตามเส้นทางถนนสุขุมวิท และเลี้ยวซ้ายเข้าสู่ถนนสุขุมวิท 77 มุ่งหน้าต่ออีกหน่อยก็เลี้ยวเข้าซอยอ่อนนุช 1/1 เข้าไปยัง T77 Community หรือหากมาจากถนนศรีนครินทร์ ก็เลี้ยวเข้าสู่ถนนสุขุมวิท 77 ได้เลยค่ะ ตรงมาเรื่อยๆ แล้วเลี้ยวขวาเข้าสู่ซอยอ่อนนุช 1/1 ส่วนทางออกจากโครงออกทางลัดด้านหลัง  T77 Community ได้ โดยออกไปถนนสุขุมวิทโดยใช้ทางลัดเข้าซอยปรีดี พนมยงค์ 2 และทางออกด้านหลัง  T77 Community ยังสามารถออกไปกลับรถแล้วขึ้นทางด่วนรามอินทรา-อาจณรงค์ ถือว่าจะดวกทั้งทางเข้าและทางออก และหากเดินทางโดยรถไฟฟ้า BTS ก็มีรถบริการ Shuttle Service บริการรับส่งจาก T77 community มา BTS อ่อนนุช รถออกทุก 20 นาที ตั้งแต่ 6.30 - 22.30 น.ค่ะ
  • ทำเลรอบโครงการ รอบๆ โครงการโมริเฮาส์ มีสิ่งอำนวยความสะดวกมากมายค่ะ สถานที่รอบๆ ส่วนใหญ่เป็นคอนโด แต่บริเวณรอบๆ โครงการมีการจัดสวยปลูกต้นไม้เยอะ สไตล์รีสอร์ท จึงให้ความเป็นส่วนตัว อย่างแรกที่ใกล้โครงการที่สุดคือ ร้านอาหาร กล่าวคือในพื้นที่ T77 Community มี Habito Mall แหล่งรวมร้านอาหาร มีทั้งร้านอาหารไทย เกาหลี เวียดนาม อิตาเลี่ยน ร้านกาแฟ และ 7-Eleven พร้อมทั้งธนาคารไทยพาณิชย์และ AIS Shop ไว้คอยให้บริการ นอกจากนี้ยังมีโรงเรียนนานาชาติอยู่ตรงข้ามโครงการอีกด้วย ถ้าออกจากพื้นที่ T77 Community ก็มีบิ๊กซี อ่อนนุช เทสโก้โลตัส อ่อนนุช ระยะห่างกิโลเมตรกว่าๆ รวมถึงตลาดอ่อนนุชที่เข้าไปจับจ่ายได้สะดวก 
  • อาคารและตัวโครงการโดยรวมเป็นคอนโด Low-Rise สูง 7 ชั้น จำนวน 1 อาคาร มีความเป็นส่วนตัวด้วยจำนวนยูนิตเพียง 262 ยูนิต ตัวอาคารออกแบบในสไตล์รีสอร์ทเน้นความเป็นธรรมชาติ มีที่จอดรถอยู่ที่ชั้น 1 โดยรอบโครงการส่วนใหญ่ยังเป็นวิวเปิดโล่ง ยกเว้นทิศใต้ที่มีอาคารสูง 7 ชั้นบดบังวิวอยู่บ้าง Facility ที่ให้มาค่อนข้างเยอะโดดเด่นที่ The Glass Haus ที่แยกตัวออกมาจากอาคารพักอาศัย ส่วนลิฟต์ของที่นี่มีลิฟท์โดยสารให้ 2 ตัว อัตราการใช้ลิฟต์เฉลี่ยอาคาร A = 71:1 ส่วนอาคาร B = 59:1 ปริมาณที่จอดรถอยู่ที่ 59.2% หรือประมาณ 155 คัน (แบบไม่รวมจอดซ้อนคัน) ซึ่งถือว่าเป็นตัวเลขที่ดีเลยทีเดียว
  • รูปแบบห้องและวัสดุลักษณะห้องพักมีให้เลือกหลาย Type และหลายขนาด ตั้งแต่ 1 - 3 ห้องนอน ข้อดีคือเป็นห้องแบบหน้ากว้าง ทำให้ห้องดูไม่อึดอัด ฟังก์ชั่นการจัดวางค่อนข้างลงตัว วัสดุที่ให้มาถือว่าดีกว่ามาตรฐานคอนโดทั่วไป ไม่ว่าจะเป็นประตูแบบ Digital Door Lock, กระจกบานใหญ่ในห้องน้ำ, เคาน์เตอร์ครัว พร้อมด้วยชุดครัวแบบ Built-in โดยเฉพาะระบบดูดอากาศภายในห้องครัว
สถานะปัจจุบันของโครงการ (ข้อมูล ณ 3 ส.ค. 59)
โครงการ โมริ เฮาส์ มีกำหนดเริ่มก่อสร้างแล้วตั้งแต่เดือนมิถุนายน 2559 ที่ผ่านมา และคาดว่าจะแล้วเสร็จพร้อมให้ลูกบ้านเข้าอยู่ได้ประมาณเดือนธันวาคม 2560
สอบถามข้อมูลเพิ่มเติมได้ที่ โทร. 1685 หรือ www.sansiri.com
ดูรายละเอียดโครงการ โมริ เฮาส์ (mori HAUS)

รีวิว-พรีวิวล่าสุดอื่นๆ

คอนโดติดรถไฟฟ้าล่าสุด

  • เว็บไซต์นี้มีการเก็บคุกกี้เพื่อเพิ่มความพึงพอใจในการใช้งานเว็บไซต์ และช่วยให้เราปรับปรุง และนำเสนอเนื้อหาตรงตามความสนใจของท่าน ท่านสามารถดู Privacy Notice และ ดู Cookies Policy ของเราได้ ที่นี่ ทั้งนี้ ท่านจะยินยอมให้เราเก็บคุกกี้ทั้งหมด หรือให้เก็บแค่บางส่วนโดยการคลิกเลือก ตั้งค่า

    ท่านสามารถเลือกให้ความยินยอมการเก็บคุกกี้เป็นเรื่องๆ ได้ที่นี่

    เมื่อคุณเข้าชมเว็บไซต์ หรือแอปพลิเคชั่น checkraka เราอาจจัดเก็บ หรือดึงข้อมูลจากเบราว์เซอร์ของคุณในรูปแบบของคุกกี้ และเทคโนโลยีอื่นที่คล้ายคลึง เช่น tag และ pixel (เรียกรวมกันว่า “คุกกี้”) ซึ่งมักเป็นข้อมูลที่ไม่สามารถระบุตัวตนได้โดยตรง แต่ช่วยให้คุณใช้งานเว็บไซต์ได้ปลอดภัย และตรงตามความต้องการมากขึ้น คุณอาจไม่ยินยอมให้เราเก็บคุกกี้บางประเภทได้ โดยการคลิกตามหัวข้อข้างล่างนี้

    ประเภทคุกกี้
    อ่านเพิ่มเติม ที่นี่
    ยินยอม / ไม่ยินยอม
    คุกกี้ที่จำเป็นต้องมีเสมอ
    (Strictly Necessary)
    คุกกี้สำหรับการใช้งานเว็บไซต์
    (Functionality)
    คุกกี้เพื่อเพิ่มประสิทธิภาพและวิเคราะห์
    (Performance & Analytics)
    คุกกี้เพื่อการตลาด
    (Marketing)