ประเมินวงเงินรู้ผลใน 3 นาที
กับ กรุงศรี ออโต้ พร้อมสตาร์ท

เริ่มประเมินวงเงินพร้อมสตาร์ท
ผ่านมือถือ สแกนเลย

ดูวงเงินพร้อมสตาร์ทที่ได้รับ

  • คอนโด
  • คอนโด
  • ค้นหาแบบละเอียด
  • รีวิว-เยี่ยมชม ไอดีโอ โมบิ วงศ์สว่าง-อินเตอร์เชนจ์ (Ideo Mobi Wongsawang-Interchange)

    9 ส.ค. 59 13,285
    รีวิว-เยี่ยมชม ไอดีโอ โมบิ วงศ์สว่าง-อินเตอร์เชนจ์ (Ideo Mobi Wongsawang-Interchange)
    สวัสดีค่ะ วันนี้ Checkraka.com จะพาไปเยี่ยมชมโครงการคอนโด ไอดีโอ โมบิ วงศ์สว่าง-อินเตอร์เชนจ์ จาก อนันดา ดีเวลลอปเม้นท์ฯ คอนโด High Rise 1 อาคาร บนทำเลแนวรถไฟฟ้า เพียง 1 ก้าว จากรถไฟฟ้าสายสีม่วง (สถานีบางซ่อน) และ 400 เมตร จากรถไฟฟ้าสายสีแดง (สถานีบางซ่อน) เรียกว่าสะดวกสบายติดรถไฟฟ้าทั้ง 2 สายเลย เราไปดูภายในตัวโครงการกันค่ะว่ามีอะไรน่าสนใจบ้าง
    ข้อมูลโครงการ
    เจ้าของและผู้พัฒนาโครงการ : บริษัท อนันดา ดีเวลลอปเม้นท์ จำกัด (มหาชน) 
    ที่ตั้งโครงการ : ถนนกรุงเทพฯ-นนทบุรี (ระหว่างซอยกรุงเทพนนท์ฯ 23 และ 23/1) แขวงบางซื่อ เขตบางซื่อ กรุงเทพฯ
    อาคารชุดพักอาศัย : แบบ High Rise 1 อาคาร สูง 29 ชั้น 559 ยูนิต (ร้านค้า 4 ยูนิต) รวม 563 ยูนิต
    ขนาดที่ดินทั้งโครงการ : 2-2-24.4 ไร่
    ลิฟต์ : ลิฟต์โดยสาร 2 ลิฟต์บริการ 1 ตัว
    ที่จอดรถ : 36% (ประมาณ 201 คัน ไม่รวมจอดซ้อนคัน)
    ห้องชุดพักอาศัย : 4 รูปแบบ ขายแบบ Fully Fitted
    ราคาเริ่มต้น : 2.89 ล้านบาท (ข้อมูล ณ 6 ก.ค. 2559)
    สถานะโครงการ : พร้อมเข้าอยู่ประมาณ ก.ย. 2559
    เจ้าของและผู้พัฒนาโครงการ
    บริษัท อนันดา ดีเวลลอปเม้นท์ จำกัด (มหาชน) เป็นบริษัทมหาชนประกอบธุรกิจพัฒนาอสังหาริมทรัพย์ และจดทะเบียนอยู่ในตลาดหลักทรัพย์แห่งประเทศไทย มีทุนจดทะเบียนทั้งสิ้น 3,636,630,000 บาท เป็นบริษัทอสังหาฯ ที่มีสโลแกนสำคัญในการพัฒนาโครงการที่พักอาศัยคือ "Live / Work / Play" (Let's live, work and play more) ปัจจุบันบริษัทฯ พัฒนาทั้งคอนโดมิเนียม และโครงการบ้านจัดสรรทั้งในกรุงเทพและปริมณฑล โดยในส่วนของคอนโดมิเนียมนั้นมุ่งเน้นไปที่โครงการในทำเลใกลรถไฟฟ้าไม่เกิน 300 เมตรกับแบรนด์ "ไอดีโอ" ปัจจุบัน บริษัทฯ พัฒนาคอนโดมิเนียมมาแล้วกว่า 40 โครงการ โดยในปี 2559 บริษัทจะเปิดขายโครงการใหม่อีก 10 โครงการ โดยเป็นโครงการคอนโดมิเนียม 8 โครงการ ซึ่งเป็นโครงการร่วมทุนกับมิตซุย ฟูโดซัง 4 โครงการ และโครงการแนวราบ 2 โครงการ รวมมูลค่ารวม 22,000 ล้านบาท
    ทำเลที่ตั้ง
    ไอดีโอ โมบิ วงศ์สว่าง-อินเตอร์เชนจ์ ตั้งอยู่บนนถนนกรุงเทพฯ-นนทบุรี ห่างจากรถไฟฟ้าสายสีม่วง สถานีบางซ่อน ประมาณ 11 เมตร และห่างจากรถไฟฟ้าสายสายสีแดง สถานีบางซ่อน (จุด Interchange) ประมาณ 400 เมตร

    แผนที่โครงการ "ไอดีโอ โมบิ วงศ์สว่าง-อินเตอร์เชนจ์ (Ideo Mobi Wongsawang-Interchange)"

    ภาพแผนที่โครงการแจกแจงให้เห็นระยะใกล้-ไกลของโครงการกับสถานที่ หรือ Landmark รอบๆ โครงการที่น่าสนใจ
    Google Map พิกัด : 13.8188881,100.5322748
    คลิกเพื่อดูภาพใหญ่

    ตลาดชุมทาง สยามยิปซี ระยะทางห่างจากโครงการประมาณ 750 เมตร

    บิ๊กซี สาขาวงศ์สว่าง ระยะทางห่างจากโครงการประมาณ 1.4 กิโลเมตร

    มหาวิทยาลัยเทคโนโลยี พระจอมเกล้าพระนครเหนือ ระยะทางห่างจากโครงการประมาณ 2.9 กิโลเมตร

    โรงพยาบาลบางโพ ระยะทางห่างจากโครงการประมาณ 2.2 กิโลเมตร

    เทสโก้ โลตัส สาขาประชาชื่น ระยะทางห่างจากโครงการประมาณ 1.8 กิโลเมตร

    "สัปปายะสภาสถาน" อาคารรัฐสภาแห่งใหม่ติดริมแม่น้ำเจ้าพระยา ระยะทางห่างจากโครงการประมาณ 3.9 กิโลเมตร
    ขอบคุณภาพ : www.arsomsilp.ac.th

    ตลาดนัดสวนจตุจักร ระยะทางห่างจากโครงการประมาณ 4.7 กิโลเมตร
    ขอบคุณภาพ : www.facebook.com/JatujakMarketThai
    การเดินทาง
    1. การเดินทางด้วยรถยนต์
    สำหรับการเดินทางด้วยรถยนต์นั้น สามารถเดินทางได้หลายเส้นทาง ดังต่อไปนี้ค่ะ
    • ขาเข้าโครงการเส้นทางที่ 1 - มาจากทางยกระดับอุตราภิมุข (ดอนเมืองโทลล์เวย์)
    ไปดูภาพประกอบการเดินทางกันค่ะ เริ่มต้นจากบริเวณด่านดินแดง 1 ขึ้นทางยกระดับอุตราภิมุข (ดอนเมืองโทลล์เวย์)
    • ขาเข้าโครงการเส้นทางที่ 2 - มาจากแยกแคราย
    • ขาออกโครงการเส้นทางที่ 1 - ไปสวนจตุจักร
    • ขาออกโครงการเส้นทางที่ 2 - ไปแยกรัชโยธิน
    2. การเดินทางด้วยรถไฟฟ้า
    ปัจจุบัน (6 ก.ค. 2559) รถไฟฟ้าสายสีม่วงสร้างเสร็จเรียบร้อยแล้วค่ะ แต่ยังอยู่ในช่วงทดลองวิ่งอยู่ คาดว่าจะเปิดให้บริการอย่างเป็นทางการในเดือน ส.ค. 2559 นี้ ซึ่งหากรถไฟฟ้าเปิดให้บริการ สามารถลง "สถานีบางซ่อน" แล้วเดินเท้าไปโครงการได้สบายๆ เพียง 11 เมตร เท่านั้นค่ะ

    ขบวนรถไฟฟ้าสายสีม่วง ระหว่างทดลองวิ่ง
    ขอบคุณภาพ : www.skyscrapercity.com
    สำหรับรถไฟฟ้าสายสีแดงอ่อน (ช่วงบางซื่อ-ตลิ่งชัน) สร้างเสร็จเรียบร้อยแล้ว และทดลองวิ่งแล้วค่ะ รอให้การก่อสร้างรถไฟฟ้าชานเมืองสายสีแดงเข้ม (ช่วงบางซื่อ-รังสิต) และ สถานีกลางบางซื่อ แล้วเสร็จก่อนจึงจะเปิดให้บริการอย่างเป็นทางการ ซึ่งโครงการของเราก็อยู่ใกล้กับจุด Interchange สถานีบางซ่อน เพียง 400 เมตร

    สถานีบางซ่อน จุด Interchange ระหว่างรถไฟฟ้าสายสีม่วงและสายสีแดง
    ขอบคุณภาพ : portal.rotfaithai.com
    และอีกหนึ่งจุดศูนย์กลางสำคัญที่อยู่ไม่ไกลจากโครงการก็คือ "สถานีกลางบางซื่อ" ค่ะ โปรเจคใหญ่ที่เป็นเสมือนจุดเชื่อมต่อการคมนาคมทางรถไฟที่ใหญ่ที่สุดในอาเซียน ซึ่งขณะนี้กำลังก่อสร้างอยู่ค่ะ โดยจะมีทั้ง รถไฟฟ้าสายสีแดง, สายสีน้ำเงิน, Airport Rail Link, รถไฟความเร็วสูง, รถไฟฟ้าชานเมือง และรถไฟทางไกล เข้ามาเทียบท่าที่สถานีกลางบางซื่อนี้ ทำให้การเดินทางสะดวกสบายเพิ่มขึ้นอย่างมาก และในเขตพื้นที่รอบๆ สถานีกลางบางซื่อยังมีแผนพัฒนาเชิงพาณิชย์อีกด้วยค่ะ

    ภาพจำลองสถานีกลางบางซื่อ
    ขอบคุณภาพ : 
    www.thansettakij.com
    สภาพแวดล้อมใกล้เคียง
    ส่วนใหญ่เป็นอาคารพาณิชย์และบ้านพักอาศัยค่ะ มีความสูงประมาณ 3-4 ชั้น บริเวณใกล้เคียงมีอาคารสูงๆ ก็คือตึกของสำนักงานสรรพากรเท่านั้น ย่านนี้เป็นทำเลที่กำลังพัฒนาค่ะ มีอาคารชุดคอนโดมิเนียมหลายโครงการเข้ามายึดพื้นที่ แต่ก็ไม่ได้อยู่ระยะประชิดกับตัวโครงการ เรื่องอาหารการกินสมบูรณ์พอประมาณ เนื่องจากในตัวโครงการเองมีร้านสะดวกซื้อ "MaxValu" ไว้ให้บริการอยู่ แต่ถ้าหากออกนอกโครงการก็จะมีร้านค้าร้านอาหารเล็กๆ รวมถึง 7-eleven อยู่ในระยะที่เดินได้สบายๆ

    แผนที่ภาพรวมสถานที่รอบๆ โครงการ

    เลี้ยวขวาออกจากโครงการ จะเป็นซอยกรุงเทพ-นนทบุรี 23 ค่ะ ซึ่งปากซอยจะมีวินมอเตอร์ไซค์ให้บริการอยู่

    ถัดมามีร้านอาหารและร้านขายของชำ

    เดินต่อมาอีกนิดจะเป็นอาคารสำนักงานสรรพากรค่ะ

    ถัดมาอีกหน่อยจะเป็นร้านสะดวกซื้อ 7-Eleven

    มองไปฝั่งตรงข้ามเป็นที่ทำการไปรษณีย์บางซื่อค่ะ

    กลับมาที่หน้าโครงการอีกครั้ง คราวนี้เราจะเดินไปด้านซ้ายมือกันบ้างนะคะ
    เดินมานิดนึงจะเจอทางเข้า-ออก รถไฟฟ้าสถานีบางซ่อนก่อนเลย อยู่ห่างจากโครงการเพียง 11 เมตร เท่านั้น

    ถัดมาเป็นธนาคารกรุงไทยค่ะ

    เราลองเดินขึ้นไปบนสะพานลอยใกล้ๆ ธนาคารกรุงไทยค่ะ เห็นตึกของไอดีโอชัดเจนเลย
    ส่วนด้านซ้ายมือเป็นรางรถไฟฟ้า

    กลับมาด้านล่างค่ะ บรรยากาศจะคล้ายกันๆ ส่วนใหญ่เป็นอาคารพาณิชย์ 3-4 ชั้น
    ชั้นล่างเปิดเป็นร้านขายของและร้านอาหาร

    เดินต่อมาอีกนิดจะเป็นทางเข้า-ออก อีกทางของสถานีบางซ่อนค่ะ

    ถัดมาอีกนิดเราจะเห็น Skywalk ทางเดินเชื่อมระหว่างรถไฟฟ้าสายสีม่วงและสายสีแดงค่ะ
    ระยะทางห่างจากโครงการประมาณ 400 เมตร
    รูปแบบตึก และตัวโครงการโดยรวม
    โครงการนี้ เป็นคอนโดมิเนียมแบบ High Rise 1 อาคาร ความสูง 29 ชั้น ประกอบด้วย 559 ยูนิต และร้านค้า 4 ยูนิต พื้นที่ส่วนกลางค่อนข้างเยอะ และเน้นยกขึ้นไปอยู่บนชั้นสูงสุดเพื่อให้ได้บรรยากาศดี วิวสวย อยู่บนชั้น 29 และ 30 ซึ่งมีสระว่ายน้ำระบบเกลือขนาด 25x4 เมตร ห้องฟิตเนส และสวนหย่อม สวนไว้ให้พักผ่อน ส่วนห้องพักมีทั้งหมด 4 แบบค่ะ แบบแรกห้อง Studio ขนาด 21.5 ตร.ม. แบบที่ 2 1 ห้องนอน ขนาด 24.5 ตร.ม. แบบที่ 3 1 ห้องนอน ขนาด 30 ตร.ม. และแบบที่ 4 2 ห้องนอน 1 ห้องน้ำ ขนาด 48 ตร.ม.
    ทิศเหนือ : จะเห็นวิวรถไฟฟ้าสายสีแดง (สถานีบางซ่อน)
    ทิศใต้ : จะเห็นสถานีเตาปูนอินเตอร์เช้นจ์ 
    ทิศตะวันออก :  จะเห็นทางด่วนศรีรัช และสถานีกลางบางซื่อ 
    ทิศตะวันตก : จะเห็นแนวเส้นแม่น้ำเจ้าพระยา และโรงเรียนโยธินบูรณะ

    ชั้นแรกประกอบด้วยพื้นที่ส่วนกลาง มีห้อง Lobby ด้านหน้า, ลิฟต์ดับเพลิง 1 ตัว, ลิฟต์โดยสาร 2 ตัว, ห้องจดหมาย,
    ห้องประชุม, ห้องน้ำหญิงและชาย และยังมีร้านค้าไว้อำนวยความสะดวกด้วย นั่นคือ MaxValu บริการ 24 ชั่วโมงค่ะ

    พื้นที่สำหรับจอดรถชั้น 2 

    พื้นที่สำหรับจอดรถชั้น 3

    พื้นที่สำหรับจอดรถชั้น 4

    พื้นที่สำหรับจอดรถชั้น 5

    ทำเนียบสีห้องขนาดต่างๆ ภายในโครงการค่ะ

    ชั้น 6 มีห้องพักอาศัยทั้งหมด 25 ยูนิต ชั้นนี้มีสวนหย่อมไว้ให้พักผ่อนหย่อนใจด้วยค่ะ

    ชั้น 7 - 21  แต่ละชั้นมีห้องพักอาศัยชั้นละ 26 ยูนิต รวม 364 ยูนิต

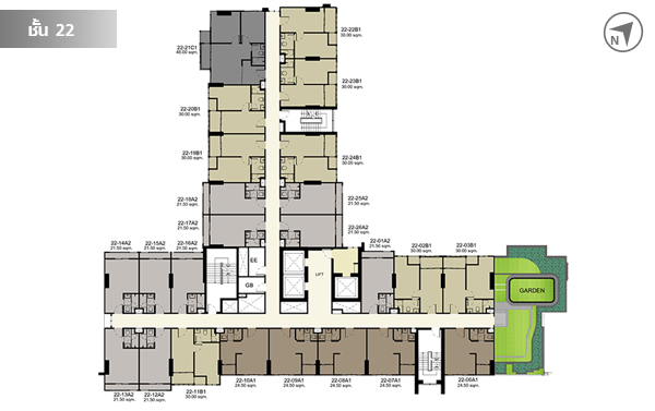
    ชั้น 22  มีห้องพักอาศัยทั้งหมด 24 ยูนิต มีสวนหย่อมเล็กๆ อยู่ทางทิศตะวันออกด้วยค่ะ

    ชั้น 23 - 24 แต่ละชั้นมีห้องพักอาศัยชั้นละ 24 ชั้น รวม 48 ชั้น 

    ชั้น 25  มีห้องพักอาศัยทั้งหมด 22 ยูนิต และมีสวนหย่อมเล็กๆ อยู่ทางทิศตะวันออกด้วยค่ะ

    ชั้น 26  มีห้องพักอาศัยทั้งหมด 22 ยูนิต

    ชั้น 27  มีห้องพักอาศัยทั้งหมด 22 ยูนิต

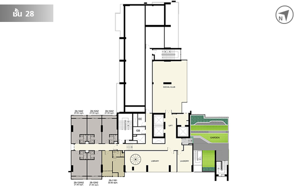
    ชั้น 28 เป็นชั้นที่มีห้องพักอาศัย 6 ยูนิต มีห้องสมุด และห้อง Social Club
    ในห้องสมุดมีบันไดวนเชื่อมต่อไปยังสวนหย่อมชั้น 29 สระว่ายน้ำ และฟิตเนส ได้อย่างสะดวกสบายเลยค่ะ

    ชั้น 29 ไม่มีห้องพักอาศัยนะคะ ถือเป็นชั้น Facility โดยเฉพาะเลยค่ะ ประกอบด้วยสระว่ายน้ำ, ฟิตเนสและสวนหย่อม

    ชั้นนี้เป็นดาดฟ้าสวนชมวิว ชั้นสูงสุดของอาคารค่ะ ให้พื้นที่สีเขียวบริเวณกว้าง

     ด้านหน้าโมเดลโครงการจะเป็นรถไฟฟ้า MRT สถานีบางซ่อน (สายสีม่วง)

    มองจากด้านบนโมเดลโครงการจะเห็นสวนหย่อมชั้น Sky Garden และสระว่ายน้ำ ของชั้น 29 และ 30  

    ด้านหน้าโครงการ จะเห็นว่าตกแต่งเป็นชั้นลดหลั่นกันลงมา ประดับด้วยสวยหย่อมเล็กๆ เหมือนขั้นบันได
    โดยสวนหย่อมจะมีทั้งหมด 5 จุด อยู่ในชั้น 6, 22, 25, 29 และ 30 ซึ่งเป็นชั้นดาดฟ้าที่มีสวนขนาดใหญ่ที่สุด

    ทิศตะวันตกของโครงการจะเป็นสวนหย่อม ที่นั่งเล่นพักผ่อนหย่อนใจค่ะ
    ส่วนกลางและสิ่งอำนวยความสะดวก
    สิ่งอำนวยความสะดวกของโครงการส่วนใหญ่รวมอยู่ที่ชั้น 28, 29, 30 และบางส่วนอยู่ชั้น 1 ดังนี้
    • Triple Sky Facilities ให้ส่วนกลางเหนือระดับบนชั้นดาดฟ้า
    • Infinity Edge Swimming Pool อยู่บนชั้น 29 เป็นสระระบบเกลือขนาด 25x4 เมตร ลึก 1.2 เมตร (ไม่ได้แยกสระเด็กแต่มีขั้นบันไดเล็กๆ ให้เด็กเล่นได้ค่ะ) มีห้องอาบน้ำและที่สำหรับล้างตัวอยู่ริมสระ
    • Sky Fitness อยู่บนชั้น 29 มองเห็นวิว 2 ด้าน ทั้งวิวสระว่ายน้ำและวิวเมือง สามารถมองเห็นวิวแม่น้ำเจ้าพระยาและวิวเส้นทางรถไฟฟ้ายามค่ำคืนก็สวยงามค่ะ 
    • Sky Outdoor Library อยู่บนชั้น 28 เป็นพื้นที่อ่านหนังสือหรือทำงานก็ได้ค่ะ โดยสามารถนั่งมองวิวสูงระหว่างทำงานไปเพลินๆ ได้เลย
    • Sky Deck Social Club เป็นห้องสันทนาการที่สามารถมานั่งเล่น ปาร์ตี้ ประชุมงาน ได้หลากหลายมากค่ะ อยู่บนชั้น 28 ติดกับห้องสมุด ห้องนี้สามารถใช้เสียงได้ถึงแม้ว่าจะติดกับห้องสมุดแต่ก็แยกกันเป็นสัดส่วนดีค่ะ
    • Private Grand Park ตัวโครงการจะแทรกสวนหย่อมหรือพื้นที่สีเขียวให้หลายจุดค่ะ มีทั้งชั้น 1, 6, 22, 25, 29 และ 30 ให้ได้ผ่อนคลายกับธรรมชาติ
    • ระบบรักษาความปลอดภัย ทางโครงการติดตั้งกล้องวงจรปิด CCTV กว่า 200 ตัวในพื้นที่ส่วนกลาง โดยเฉพาะที่จอดรถและลิฟต์โดยสารจะมีจอ LCD แสดงภาพบุคคลที่อยู่ในลิฟต์ที่ทุกคนสามารถมองเห็นได้จากด้านนอกลิฟต์ เผื่อเกิดเหตุฉุกเฉินจะได้ช่วยเหลือได้ทันเหตุการณ์ค่ะ    

    Lobby ชั้น 1 ตกแต่งสวยงาม กว้างขวางทีเดียวค่ะ

    เดินตรงเข้ามาจะเป็นทางแยกเข้าลิฟต์โดยสารและห้องจดหมาย ตรงไปอีกจะเป็นห้องประชุม ห้องนิติบุคคลและห้องน้ำค่ะ

    ห้องจดหมาย

    ห้องน้ำส่วนกลางแยกหญิงชายอย่างละ 2 ห้อง

    ห้องน้ำชาย

    ตรงนี้เป็นด้านหน้าลิฟต์โดยสารค่ะ มี 2 ตัว 

    บนชั้น 28 มีห้อง Social Club เป็นห้องสันทนาการที่สามารถทำกิจกรรมได้หลากหลาย

    ด้านในห้อง Social Club โต๊ะตัวนี้ถ้าเปิดออกจะเป็นโต๊ะสนุ๊กค่ะ 

    ถัดมาชั้นเดียวกันเป็นห้องสมุด

    บันไดวนนี้เชื่อมต่อกับชั้น 29 ขึ้นไปจะเจอสวนหย่อม ด้านขวามือจะเป็นสระว่ายน้ำและฟิตเนสค่ะ 

    สระว่ายน้ำระบบเกลือ กว้าง 25 เมตร ยาว 4 เมตร ลึก 1.2 เมตร 

    ริมสระมีห้องน้ำ 2 ห้อง และที่ล้างตัว

    ฟิตเนสตกแต่งด้วยกระจกรอบด้านหรูหรา ชมวิวเมือง

    หันมาอีกด้านเป็นวิวสระว่ายน้ำค่ะ

    ทางนี้สามารถเดินไปสวนหย่อมและลงบันไดวนลงไปห้องสมุดได้ค่ะ

    สวนหย่อมชั้น 29

    ที่จอดรถชั้น 2 ค่ะ
    ภาพห้องตัวอย่างและ Lay out
    ห้องของที่นี่มีทั้งหมด 4 แบบ ดังนี้ค่ะ
    1. แบบที่ 1 ห้อง studio 21.5 ตร.ม. 
    2. แบบที่ 2 ห้อง 1 bed 24.5 ตร.ม. 
    3. แบบที่ 3 ห้อง 1 bed 30 ตร.ม.
    4. แบบที่ 4 ห้อง 2 bed 48 ตร.ม. 
    สำหรับห้องตัวอย่างที่ทางโครงการจัดไว้ให้จะมีแบบ Studio ขนาด 21.5 ตร.ม. และห้อง 1 bed ขนาด 30 ตร.ม. ไปชมห้องแรกกันก่อนค่ะ
    • ภาพห้องตัวอย่างแบบแรก จะพาชมห้อง Studio ขนาด 21.5 ตร.ม. ค่ะ 

    Lay out 
    ห้อง Studio ขนาด 21.5 ตร.ม. 

    ห้องสูง 2.5 เมตร ภายในห้องมีพื้นที่สำหรับวางเตียง 5 - 6 ฟุต ได้เลยค่ะ 
    ด้านข้างสามารถวางโซฟาขนาด 2 ที่นั่ง และโต๊ะทานข้าวไว้นั่งเล่น ดูทีวี หรือทำงานได้ตามใจชอบค่ะ
     
    เปิดประตูเข้ามาจะเห็นห้องน้ำอยู่ขวามือ เคาน์เตอร์ครัวอยู่ด้านซ้ายมือ ตรงเข้าไปจะเป็นพื้นที่นั่งเล่นและเตียงนอน

    ทางโครงการให้เคาน์เตอร์ครัวมาค่ะ ประกอบด้วยชั้นวางของด้านบนและด้านล่าง ซิงค์ล้างจาน เตาไฟฟ้า 2 หัว
    เครื่องดูดควัน และปูกระเบื้องกันเปื้อนที่ผนังห้องให้ด้วย พื้นที่ด้านข้างเคาน์เตอร์ครัวสามารถวางตู้เย็นได้สบายเลยค่ะ

    ชั้นวางของด้านบน 

    ชั้นวางของด้านล่าง 

    แม้ว่าพื้นที่เพียง 21.5 ตร.ม. แต่จัดแจงพื้นที่อย่างเหมาะสมก็ดูกว้างขึ้นได้ค่ะ 
    ทางโครงการให้แอร์ 18,000 BTU มาด้วยค่ะ

    ด้านหลังทีวีมีปลั๊กเชื่อมต่อทีวี อินเทอร์เน็ต และโทรศัพท์ไว้ให้ครบเลยค่ะ 
    ทีวีอาจจะใช้แบบแขวนผนังเลยก็ได้นะคะ ห้องก็จะดูกว้างขึ้นอีกค่ะ

    ระเบียงด้านนอกมีที่แขวนคอมเพรซเซอร์แอร์ไว้ด้านบนค่ะ หันหน้าระบายความร้อนออกด้านนอกอาคาร

    ประตูบานเลื่อนกระจกเขียวตัดแสง เลื่อนได้ทั้ง 2 ด้าน มีตัวล็อก 2 ชั้น เพื่อกันลมกระแทกค่ะ

    ห้องน้ำปูพื้นและผนังด้วยกระเบื้อง ได้อ่างล้างหน้าและโถสุขภัณฑ์ของ cotto 

    ด้านนี้มีชั้นวางของ ราวแขวนผ้า โถสุขภัณฑ์ สายฉีดชำระ ที่แขวนกระดาษชำระ และมีกระจกกั้นส่วนเปียกส่วนแห้งให้ค่ะ
    • ภาพห้องตัวอย่างแบบที่ 2 จะพาชม ห้อง 1 bed ขนาด 30 ตร.ม. ค่ะ

    Lay out ห้อง 1 bed ขนาด 30 ตร.ว.

    ด้านในห้องทางโครงการให้แอร์ 12,000 BTU มา 2 ตัวค่ะ ในห้องนอน และห้องนั่งเล่น

    เคาน์เตอร์ครัวด้านล่าง มีช่องเก็บของ 3 ช่อง และมีพื้นที่ไว้สำหรับวางเครื่องซักผ้าตามภาพเลยค่ะ

    ชั้นวางของด้านบนมี 4 ช่องค่ะ มีช่องสำหรับวางไมโครเวฟได้พอดี

    ทางโครงการให้เตาไฟฟ้ามา 2 หัวค่ะ 

    มีเครื่องดูดควันอยู่ติดกับชั้นวางของด้านบน

    ซิงค์ล้างจาน ผนังด้านหน้าเป็นกระเบื้องกันเปื้อน แต่ด้านข้างเป็นผนังสีขาวเวลาล้างจานควรระวังนิดนึงค่ะ

    ริมระเบียง พื้นเป็นกระเบื้องมีธรณีกั้นกันน้ำเข้า พื้นที่กว้างพอสำหรับวางโต๊ะนั่งเล่นเล็กๆ ได้เลยค่ะ
    ด้านในเป็นที่เก็บคอมเพรสเซอร์แอร์

    ห้องนี้จะได้กระจกระเบียง 2 ชั้นค่ะ 
    สามารถเปิดกระจกชั้นแรกออก รับแสง ให้ห้องกว้างขึ้น แต่ก็ยังเปิดแอร์ได้ปกติเพราะมีกระจกตรงริมระเบียงอีกชั้นค่ะ

    ในห้องนอนมีที่สำหรับวางโต๊ะทำงานหรือโต๊ะอ่านหนังสือเล็กๆ เปิดม่านชมวิวสูงได้ค่ะ

    ด้านนี้จะเห็นว่าเปิดประตูห้องเข้ามา ห้องน้ำจะอยู่ด้านซ้ายมือ Switch เปิด-ปิดไฟอยู่ข้างประตูห้องน้ำ
    บริเวณข้างเตียงวางตู้เสื้อผ้าขนาดใหญ่ได้เลยนะคะ พื้นที่ยืนแต่งตัวถือว่าไม่คับแคบจนเกินไปค่ะ

    พื้นที่ตรงข้ามเตียงนอน มีปลั๊กเชื่อมต่อทั้งทีวี อินเทอร์เน็ต และโทรศัพท์ไว้ให้ครบ
    มี 2 จุด ในห้องนั่งเล่น และห้องนอนค่ะ

    ภายในห้องน้ำมีอ่างอาบน้ำ และโถสุขภัณฑ์ของ cotto ค่ะ 

    มีกระจกกั้นแยกส่วนเปียกส่วนแห้ง ชั้นวางของ ราวแขวนผ้าและฝักบัวอาบน้ำ 

    ประตูทุกห้องจะเป็น Digital Door Lock ของ Samsung ค่ะ
    ราคาและค่าใช้จ่ายที่เกี่ยวข้องโดยประมาณ (ณ วันที่ 6 ก.ค. 59)
    ราคาเริ่มต้น 2.89 ล้านบาท
    • ห้อง Studio ขนาด 21.5 ตร.ม. ราคาเริ่มต้น 2.59 ล้านบาท
    • ห้อง 1 Bed ขนาด 24.5 ตร.ม. ราคาเริ่มต้น 2.89 ล้านบาท
    • ห้อง 1 Bed ขนาด 30 ตร.ม. ราคาเริ่มต้น 3.52 ล้านบาท
    • ห้อง 2 Bed ขนาด 47.5 ตร.ม. ราคาเริ่มต้น 6.06 ล้านบาท
    โปรโมชั่นพิเศษ
    Campaign All Set Let's Move In วันที่ 20-21 สิงหาคม นี้ Ideo Mobi Wongswang Interchange คอนโดติดรถไฟฟ้า 1 ก้าวจากสถานีบางซ่อน พร้อมอยู่ปีนี้ โปรโมชั่น จอง 50,000 รับคืน 500,000* บาท ผ่อนธนาคารสบายเริ่มต้น 3,000 บาท
    หมายเหตุ : * เงื่อนไขเป็นไปตามที่บริษัทกำหนด
    ภาพรวมโดยสรุปของโครงการ
    • การเดินทางเข้า-ออกโครงการ - ตัวทำเลโครงการเกาะแนวรถไฟฟ้าสายสีม่วง ห่างจากสถานีบางซ่อนเพียง 11 เมตร และไม่ไกลจากจุด Interchange เชื่อมต่อรถไฟฟ้าสายสีแดงอ่อน ห่างจากโครงการประมาณ 400 เมตร ซึ่งทั้ง 2 สายนี้อยู่ระยะที่สามารถเดินเท้าไปใช้บริการได้ สำหรับถนนสายหลักของโครงการคือ "ถนนกรุงเทพฯ-นนทบุรี" การจราจรไม่ติดขัดมากนักค่ะ ถนนเส้นนี้ยังสามารถเชื่อมไปยังถนนรัชดาภิเษก, ถนนประชาราษฎร์สาย 1, ถนนประชาราษฎร์สาย 2, ถนนประชาชื่น, ถนนติวานนท์ ฯลฯ 
    • ทำเลรอบโครงการ - พื้นที่ส่วนใหญ่ยังคงเป็นชุมชนดั้งเดิมค่ะ มีอาคารพาณิชย์ค้าขายเรียงรายกันอยู่ทั้ง 2 ข้างทาง ในซอยส่วนใหญ่เป็นบ้านพักอาศัย 1-2 ชั้น ไม่ค่อยมีตึกสูงๆ หมดห่วงเรื่องการบังวิวได้เลยค่ะ สิ่งอำนวยความสะดวกในระยะเดินเท้าได้นั้นยังไม่สมบูรณ์เท่าที่ควร แต่ภายในตัวโครงการก็มี MaxValu เปิดให้บริการอยู่ค่ะ ถ้าหากอยากเดินเลือกซื้อของกินของใช้หลายหลายก็สามารถใช้บริการ ห้างบิ๊กซี วงศ์สว่าง หรือ โลตัส ประชาชื่นได้ ในระยะห่างจากโครงการไม่ถึง 2 กิโลเมตร คาดว่าหากรถไฟฟ้าสายสีม่วงเปิดใช้อย่างเป็นทางการ พื้นที่ใกล้เคียงก็อาจมีการพัฒนามากขึ้น
    • อาคารและตัวโครงการโดยรวม - ไอดีโอ โมบิ วงศ์สว่าง - อินเตอร์เชนจ์ เป็นคอนโด High Rise สูง 29 ชั้น จำนวน 1 อาคาร มีห้องพักอาศัยทั้งหมด 559 ยูนิต และร้านค้า 4 ยูนิต รวม 563 ยูนิต บนเนื้อที่ 2 ไร่ 2 งาน 24.4 ตร.ว. ตัวโครงการโดดเด่นตรงที่ก้าวออกมาหน้าโครงการก็เห็นบันได MRT สถานีบางซ่อนอยู่ด้านหน้าเลย การตกแต่งยังเน้นพื้นที่สีเขียว โดยให้สวนหย่อมส่วนตัวในชั้น 6, 22, 25, 29 และ30 และยกสิ่งอำนวยความสะดวกต่างๆ ขึ้นชั้น 29 เพื่อให้ได้บรรยากาศดี ชมวิวสวยงามทั้งกลางวันและกลางคืน โดยประกอบด้วยห้องสมุด ห้อง Social Club เป็นห้องอเนกประสงค์ไว้รองรับหลากหลายกิจกรรม สระว่ายน้ำขนาด 25x4 เมตร ลึก 1.2 เมตร มองวิวสูงได้สบายตา มีขั้นบันได เล็กสำหรับเด็ก แต่ไม่ได้แยกสระเด็กเป็นสัดส่วนเท่าไหร่ค่ะ ฟิตเนสติดกับสระว่ายน้ำตกแต่งด้วยกระจกล้อมรอบ เปิดกว้างให้เห็นวิวสวยทั้งวิวสระว่ายน้ำและวิวเมือง และสวนหย่อมส่วนตัวที่แทรกอยู่บนชั้นต่างๆ มีลิฟต์โดยสาร 2 ตัว และลิฟต์ดับเพลิง 1 ตัว ส่วนพื้นที่จอดรถสามารถจอดได้ที่ชั้น 2 - 5 ของอาคาร รวม 201 คัน (ไม่รวมจอดซ้อนคัน) ค่ะ
    • รูปแบบห้องและวัสดุ - ห้องพักอาศัยมีทั้งหมด 4 แบบด้วยกันค่ะ แบบที่1 ห้อง Studio 21.5 ตร.ม. แบบที่ 2 ห้อง 1 bed 24.5 ตร.ม. แบบที่3 1 bed 30 ตร.ม. และแบบที่ 4 ห้อง 2 bed 48 ตร.ม. ภายในห้องมีความพิเศษตรงที่มีตัวล็อคกระจกระเบียง 2 ชั้น เพื่อกันลมกระแทก และให้ Digital Door Lock ของซัมซุงทุกห้อง ประตูเคลือบลามิเนตทั้งด้านนอกและด้านในเพื่อความสวยงาม ทางโครงการให้เคาน์เตอร์ครัวมาครบ ทั้งชั้นวางของด้านบนและด้านล่าง มีเครื่องดูดควันและเตาไฟฟ้า 2 หัวให้ รวมถึงซิงค์ล้างจานและปูกระเบื้องที่ฝนังครัวกันเปื้อนให้ด้วยค่ะ ในห้องน้ำให้สุขภัณฑ์ของ Cotto มีกระจกกั้นฝั่งเปียกฝั่งแห้งเป็นสัดส่วน พื้นห้องเป็นลามิเนตหนาทั้งห้อง ยกเว้นห้องน้ำและระเบียงที่เป็นกระเบื้องค่ะ  
    สถานะปัจจุบันของโครงการ (6 ก.ค. 2559)
    ปัจจุบันโครงการใกล้แล้วเสร็จ 100% แล้วค่ะ คาดให้ลูกบ้านเข้าอยู่ได้ประมาณ ก.ย. 2559 สำหรับผู้ที่สนใจสามารถสอบถามรายละเอียดเพิ่มเติมได้ที่ โทร 02-316-2222 หรือ www.ananda.co.th

    รีวิว-พรีวิวล่าสุดอื่นๆ

    คอนโดติดรถไฟฟ้าล่าสุด

เว็บไซต์นี้มีการเก็บคุกกี้เพื่อเพิ่มความพึงพอใจในการใช้งานเว็บไซต์ และช่วยให้เราปรับปรุง และนำเสนอเนื้อหาตรงตามความสนใจของท่าน ท่านสามารถดู Privacy Notice และ ดู Cookies Policy ของเราได้ ที่นี่ ทั้งนี้ ท่านจะยินยอมให้เราเก็บคุกกี้ทั้งหมด หรือให้เก็บแค่บางส่วนโดยการคลิกเลือก ตั้งค่า

ท่านสามารถเลือกให้ความยินยอมการเก็บคุกกี้เป็นเรื่องๆ ได้ที่นี่

เมื่อคุณเข้าชมเว็บไซต์ หรือแอปพลิเคชั่น checkraka เราอาจจัดเก็บ หรือดึงข้อมูลจากเบราว์เซอร์ของคุณในรูปแบบของคุกกี้ และเทคโนโลยีอื่นที่คล้ายคลึง เช่น tag และ pixel (เรียกรวมกันว่า “คุกกี้”) ซึ่งมักเป็นข้อมูลที่ไม่สามารถระบุตัวตนได้โดยตรง แต่ช่วยให้คุณใช้งานเว็บไซต์ได้ปลอดภัย และตรงตามความต้องการมากขึ้น คุณอาจไม่ยินยอมให้เราเก็บคุกกี้บางประเภทได้ โดยการคลิกตามหัวข้อข้างล่างนี้

ประเภทคุกกี้
อ่านเพิ่มเติม ที่นี่
ยินยอม / ไม่ยินยอม
คุกกี้ที่จำเป็นต้องมีเสมอ
(Strictly Necessary)
คุกกี้สำหรับการใช้งานเว็บไซต์
(Functionality)
คุกกี้เพื่อเพิ่มประสิทธิภาพและวิเคราะห์
(Performance & Analytics)
คุกกี้เพื่อการตลาด
(Marketing)