ประเมินวงเงินรู้ผลใน 3 นาที
กับ กรุงศรี ออโต้ พร้อมสตาร์ท

เริ่มประเมินวงเงินพร้อมสตาร์ท
ผ่านมือถือ สแกนเลย

ดูวงเงินพร้อมสตาร์ทที่ได้รับ

  • คอนโด
  • คอนโด
  • ค้นหาแบบละเอียด
  • รีวิว-เยี่ยมชม ยูนิโอ สุขุมวิท 72 (Unio Sukhumvit 72)

    22 ส.ค. 59 12,381
    รีวิว-เยี่ยมชมคอนโด ยูนิโอ สุขุมวิท 72 (Unio Sukhumvit 72)
    สวัสดีค่ะ วันนี้ Checkraka.com พาทุกท่านมาเยี่ยมชมโครงการ ยูนิโอ สุขุมวิท 72 (Unio Sukhumvit 72) คอนโดมิเนียม Low-rise 8 ชั้น 5 อาคาร ขนาด 987 ยูนิต ที่โอบล้อมด้วยพื้นที่สีเขียวกว่า 3,800 ตร.ม. พร้อมห้องแบบ Garden Access และ Pool Access ที่สามารถดื่มด่ำกับสวนสวยและลงสระได้อย่างสะดวกสบาย อีกทั้งตัวโครงการยังเป็นคอนเซปต์ Green Breeze หลีกหนีความวุ่นวายในเมืองผ่อนคลายกับพื้นที่สีเขียวขนาดใหญ่ การออกแบบอาคารได้รับแรงบันดาลใจจากเส้นลายของเปลือกไม้ จะสวยงามขนาดไหนไปชมกันเลยค่ะ
    ข้อมูลโครงการ
    • เจ้าของและผู้พัฒนาโครงการ : บริษัท เฮลิกซ์ จำกัด
    • ที่ตั้งโครงการ : ถนนสุขุมวิท 72 ถนนสุขุมวิท ตำบลสำโรงเหนือ อำเภอเมืองสมุทรปราการ จังหวัดสมุทรปราการ
    • อาคารชุดพักอาศัย : คอนโด Low- rise สูง 8 ชั้น จำนวน 5 อาคาร
    • ขนาดพื้นที่โครงการ : 11-0-1.9 ไร่
    • ลิฟต์โดยสาร : 10 ตัว (อาคารละ 2 ตัว)
    • ห้องชุดพักอาศัย : 4 ประเภท คือแบบสตูดิโอ 1 ห้องนอน 2 ห้องนอน และแบบดูเพล็กซ์
    • ที่จอดรถ : 303 คัน หรือประมาณ 30%
    • ราคาเริ่มต้น : ห้องสตูดิโอ ขนาด 22.44 ตร.ม. เริ่ม 950,000 บาท (ข้อมูลวันที่ 28 ก.ค. 59)
    • สถานะโครงการ : คาดว่าจะแล้วเสร็จประมาณเดือนธันวาคม 2560
    • วันที่เข้าเยี่ยมชม-รีวิวคอนโด : 28 ก.ค. 59
    เจ้าของและผู้พัฒนาโครงการ
    บริษัท เฮลิกซ์ จำกัด เป็นบริษัทในเครือ บริษัท อนันดา ดีเวลลอปเม้นท์ จำกัด (มหาชน) ก่อตั้งในปี 2010 มีทุนจดทะเบียน 192,200,000 บาท (ชำระเต็มมูลค่า) โดยครั้งแรกใช้ชื่อว่า "Srivaree Development" และเปลี่ยนชื่อเป็น "HELIX" ในปี 2013 กรรมการผู้จัดการปัจจุบันคือนายจุฑา พรมชินวงศ์
    ทำเลที่ตั้ง
    โครงการ Unio สุขุมวิท 72 ตั้งอยู่ในซอยสุขุมวิท 72 ตำบลสำโรงเหนือ อำเภอเมืองสมุทรปราการ จังหวัดสมุทรปราการ ใกล้ BTS สถานีแบริ่งเพียง 600 ม. สถานที่ใกล้เคียงประกอบไปด้วย อิมพีเรียล สำโรง, Bangkok Mall, เซ็นทรัล บางนา, ไบเทค บางนา, โรงพยาบาลจุฬาเวช และโรงพยาบาลสำโรงการแพทย์ นอกจากนี้ยังใกล้สถานศึกษาต่างๆ อาทิ St.Andrews International School, รร.นานาชาติบางกอกพัฒนา, รร.เซนต์โยเซฟบางนา, รร.ศรีวัฒนาธุรกิจ, รร.ลาซาล และรร.อัสสัมชัญ สมุทรปราการ 

    แผนที่โครงการ Unio สุขุมวิท 72

    ภาพแผนที่แจกแจงให้เห็นรายละเอียดใกล้-ไกลของโครงการกับสถานที่
    หรือ Landmark รอบๆ โครงการที่น่าสนใจ
    Google Map

    โรงเรียนนานาชาติ เซนต์ แอนดรูว์ส ห่างจากตัวโครงการประมาณ 550 ม.

    โรงเรียนลาซาล ห่างจากตัวโครงการประมาณ 4.6 กิโลเมตร

    โรงเรียนเซนต์โยเซฟ บางนา 
    ห่างจากตัวโครงการประมาณ 3.6 กิโลเมตร

    The Coast Community Mall ห่างจากตัวโครงการประมาณ 1.8 กิโลเมตร

    อิมพีเรียล และบิ๊กซี สำโรง 
    ห่างจากตัวโครงการประมาณ 1.6 กิโลเมตร

    MEGA และ IKEA บางนา 
    ระยะทางห่างจากโครงการประมาณ 11 กิโลเมตร
    การเดินทางเข้า-ออกโครงการ
    1. การเดินทางด้วยรถยนต์
    การเดินทางด้วยรถยนต์นั้น สามารถเดินทางได้หลายเส้นทาง ดังนี้ค่ะ
    • ขาเข้าโครงการเส้นทางที่ 1 ลงจากทางด่วน ผ่าน BITEC บางนา
    มาดูภาพประกอบการเดินทางกันเลยค่ะ เริ่มเดินทางจากทางด่วนเฉลิมมหานคร

    ลงจากทางด่วน ขั้นที่1 ยึดป้ายสมุทรปราการ เบี่ยงซ้ายทางออกที่ 17B

    ลงจากทางด่วนมาจะเห็น BITEC บางนา อยู่ด้านซ้ายมือ

    มุ่งหน้าไป ผ่าน BTS สถานีบางนา

    ผ่านสำนักงานขายโครงการ Unio สุขุมวิท 72

    มุ่งหน้าไป ผ่าน BTS สถานีแบริ่ง

    จากสถานีบางนามาประมาณ 1.5 กิโลเมตร ชิดขวาเพื่อกลับรถตรงทางแยก 

    กลับรถมาจะเห็นธนาคารธนชาตอยู่ด้านซ้ายมือ 

    ขับชิดซ้ายมาเรื่อยๆ เตรียมเลี้ยวซ้ายเข้าซอยสุขุมวิท72 เข้าซอยไปประมาณ 200 เมตรก็ถึงโครงการแล้วค่ะ
    • ขาเข้าโครงการเส้นทางที่ 2 จากวงแหวนรอบนอก ผ่านถนนเทพารักษ์
    • ขาออกโครงการเส้นทางที่ 1 ไป ถนนรางรถไฟเก่า ผ่านซอยปทุมคงคา
    • ขาออกโครงการเส้นทางที่ 2 ไป ถนนศรีนครินทร์ ผ่านถนนแบริ่ง
    2. การเดินทางด้วยรถไฟฟ้า BTS

    โครงการนี้อยู่ห่างจาก BTS สถานีแบริ่งเพียง 600 เมตร

    แผนที่เส้นทางการเดินทางโดย รถไฟฟ้า BTS

    วินมอเตอร์ไซค์ในซอยสุขุมวิท 72
    สภาพแวดล้อมใกล้เคียง

    แผนที่สภาพแวดล้อมบริเวณรอบๆ โครงการ

    ปั๊มน้ำมันเชลล์ อยู่ห่างจากตัวโครงการ 400 ม.

    ปั๊มเอสโซ่ และTESCO LOTUS Express อยู่ติดบันได BTS สถานีแบริ่ง ห่างจากโครงการ 650 ม.

    ศูนย์บริการสยามนิสสัน 
    ห่างจากโครงการประมาณ 450 ม.

    ร้านขายเครื่องอุปโภคบริโภคทั่วไป ห่างจากโครงการประมาณ 500 ม.

    ร้านอาหารและป้ายรถเมล์ ห่างจากโครงการประมาณ 500 ม.

    ร้านวัสดุก่อสร้าง โตเจริญพร อยู่ปากซอยสุขุมวิท 72 ห่างจากโครงการประมาณ 200 ม.

    เข้ามาในซอยสุขุมวิท 72 ด้านซ้ายเป็นบริษัท อลูคอน จำกัด (มหาชน) และด้านขวาเป็นร้านอาหาร

    ตรงเข้ามาเรื่อยๆ จะพบ 
    บริษัท เอ็บโบรวาวส์เทรดดิ้ง (ประเทศไทย) จำกัด อยู่ด้านซ้าย 
    และด้านขวามีร้านกับข้าวเล็กๆ หนึ่งร้านค่ะ

    ทางเข้าโครงการ

    ทางเข้าโครงการ โครงการอยู่ในระหว่างการก่อสร้างค่ะ
    รูปแบบตึก และตัวโครงการโดยรวม
    โครงการ "ยูนิโอ สุขุมวิท 72" เป็นคอนโดมิเนียม Low-Rise ความสูง 8 ชั้น จำนวน 5 อาคาร ตั้งอยู่ในซอยสุขุมวิท 72 สิ่งอำนวยความสะดวกรวมกันอยู่ชั้นล่างของทุกอาคาร มีลิฟต์โดยสารมาให้ 10 ตัว (อาคารละ 2 ตัว) อัตราส่วนเฉลี่ยในการใช้ลิฟต์อยู่ที่ประมาณ 100 ยูนิตต่อลิฟต์ 1 ตัว ซึ่งถือว่าค่อนข้างดี ไม่หนาแน่นมากค่ะ เดี๋ยวเราไปดูกันว่า ตำแหน่งที่ตั้งของตัวโครงการแต่ละทิศจะติดกับอะไรบ้าง

    ภาพรวมโครงการ

    โมเดลอาคารทั้ง 5 อาคาร

    ทางเข้า-ออกโครงการ ซอยสุขุมวิท 72

    ทางทิศใต้เยื้องไปทางทิศตะวันออกเฉียงใต้จะเป็นทางเข้า-ออกโครงการค่ะ ทางเข้าออกจะผ่านซอยสุขุมวิท 72
    ติดกับโครงการจะมีคอนโดมิเนียมสูง 8 ชั้น อยู่ค่ะ แต่ระยะห่างน่าจะห่างพอสมควร

    ทิศตะวันตกเฉียงใต้จะเป็นแมนชั่นสูง 8 ชั้น แต่ส่วนที่ติดกับที่ดินโครงการจะเป็นสวนค่ะ
    และในอนาคตโครงการก็มีแผนพัฒนาเฟส 2 ด้วย โดยทางเข้าออกจะใช้ร่วมกัน

    ส่วนทางทิศเหนือไปจนถึงทิศตะวันออกจะเป็นบ้านพักอาศัยค่ะ
    มาดู Floor Plan ของโครงการกันค่ะ ว่าแต่ละชั้นมีอะไรอยู่ตรงไหนบ้าง

    Master Plan ของโครงการยูนิโอ สุขุมวิท 72 ชั้นนี้แสดงตำแหน่งของส่วนกลาง
    รวมถึงที่จอดรถและห้องที่เป็นแบบ Garden Access และ Pool Access 

    อาคาร A ชั้น G เป็นที่ตั้งของโถงต้อนรับ สำนักงานนิติบุคคล ตู้จดหมาย ห้องซักรีด ร้านค้า และที่จอดรถ
    ส่วนชั้นที่ 2-8 เป็นห้องพักอาศัย

    อาคาร B ชั้น G เป็นที่ตั้งของโถงต้อนรับ ตู้จดหมาย ห้องซักรีด และที่จอดรถ รวมถึงห้องพักอาศัย
    ส่วนชั้นที่ 2-8 เป็นห้องพักอาศัย

    อาคาร C ชั้น G เป็นที่ตั้งของโถงต้อนรับ ตู้จดหมาย ห้องซักรีด และที่จอดรถ รวมถึงห้องพักอาศัย Duplex
    แบบ Garden Access 
    ส่วนชั้นที่ 2-8 เป็นห้องพักอาศัย

    อาคาร D ชั้น G เป็นที่ตั้งของโถงต้อนรับ ตู้จดหมาย ห้องซักรีด และที่จอดรถ รวมถึงห้องพักอาศัย Duplex
    เป็นแบบ Pool Access 
    ส่วนชั้นที่ 2-8 เป็นห้องพักอาศัย

    อาคาร E ชั้น G อาคาร C ชั้น G เป็นที่ตั้งของโถงต้อนรับ ตู้จดหมาย ห้องซักรีด และที่จอดรถ รวมถึงห้องพักอาศัย
    ส่วนชั้นที่ 2-8 เป็นห้องพักอาศัย
    ส่วนกลางและสิ่งอำนวยความสะดวก
    ส่วนกลางของโครงการนี้จะรวมกันอยู่ที่ชั้น 1 ตรงกลางของโครงการค่ะ โดยจะแบ่งออกเป็น 2 โซนด้วยกัน โซนแรกจะอยู่ท่ามกลางอาคาร A และ B จะมีห้องสันทนาการ ศาลาพักผ่อน ลู่วิ่ง และสวนพร้อมสระน้ำ ส่วนอีกโซนจะอยู่ท่ามกลางอาคาร C D และ E มีสระว่ายน้ำ ฟิตเนส ห้องนั่งเล่น Sky deck ชมวิวที่ดาดฟ้า ลู่วิ่งจ๊อกกิ้ง พร้อมรถรับ-ส่งไป BTS แบริ่ง 1 คัน โดยคอนเซปต์ของโครงการคือ Green Breeze จัดเต็มพื้นที่สีเขียวกว่า 3,800 ตร.ม. ใครที่ชอบสวนเยอะๆ น่าจะถูกใจค่ะ ส่วนที่จอดรถนั้นจะจอดที่ชั้น 1 ของทุกๆ อาคาร จอดได้ 303 คัน

    ส่วนกลางส่วนแรก

    ส่วนกลางส่วนที่ 2

    สระว่ายน้ำระบบเกลือยาวประมาณ 40 เมตร ลึก 1.2 เมตร พร้อมโซนเด็ก

    สระเป็นแบบฟรีฟอร์มยาว 40 เมตร ลึก 1.2 เมตร   

    ด้านในจะเป็นฟิตเนสและห้องนั่งเล่นค่ะ และด้านบนสามารถขึ้นบันไดไปนั่งเล่นได้ด้วย

    สวนและลู่วิ่ง

    ลู่วิ่งและห้องสันทนาการ

    บรรยากาศจำลองล็อบบี้

    บรรยากาศจำลองห้องฟิตเนส

    บรรยากาศจำลองห้องนั่งเล่น

    บรรยากาศจำลองห้องสันทนาการ
    ภาพห้องตัวอย่างและ Lay out
    ห้องของที่นี่มีทั้งหมด 4 แบบ ดังนี้ค่ะ
    สำหรับห้องตัวอย่างที่ทางโครงการจัดไว้ให้จะมีแบบ Studio ขนาด 22.44 ตร.ม. และขนาด 27.30 ตร.ม. ไปชมห้องแรกกันก่อนค่ะ

    Plan ห้อง Type A ขนาด 22.44 ตร.ม.

    ความสูงจากพื้นถึงเพดานของทุกห้องจะอยู่ที่ 2.6 เมตร 
    เข้ามาในห้องจะพบกับ living room ค่ะ ด้านในจะเป็นโซนห้องนอน ห้องนี้ลึก 4.6 เมตร

    ระยะดูทีวีดีเลยค่ะ สามารถซื้อทีวีใหญ่ๆ มาติดได้

    living room จะเป็น multi function สามารถทำกิจกรรมได้หลากหลาย ทั้งนั่งเล่นดูทีวี อ่านหนังสือ
    ทานข้าว ทำงานก็ได้ เพราะพื้นที่ตรงนี้จะโล่งและกว้างที่สุดในห้อง

    ติดกันกับ living room จะเป็นส่วนของห้องนอนค่ะ จริงๆ แล้วถ้าอยากให้เป็นสัดส่วน
    ก็สามารถกั้นห้องด้วยประตูบานเลื่อนแบบที่โครงการทำให้ดูก็ได้นะคะ

    ภายในห้องนอนสามารถวางเตียงขนาด 5-6 ฟุตได้ค่ะ พร้อมมีหน้าต่างบานกระทุ้งให้ 2 บาน
     และด้านล่างเป็นบานฟิกซ์สำหรับรับแสงค่ะ

    พื้นทั้งห้องยกเว้นห้องน้ำจะเป็นลามิเนตหนา 8 มม. ห้องนี้ให้แอร์ 12000 BTU ด้วยค่ะ

    ด้านปลายเตียงมีพื้นที่เหลือสำหรับบิวท์อินตู้เสื้อผ้าได้

    เดินออกมาจากห้องนอนจะเจอเคาน์เตอร์ครัว ทางขวามือเป็นห้องน้ำค่ะ

    ห้องน้ำจะได้สุขภัณฑ์ของ American Standard และ Cotto หรือเทียบเท่าค่ะ

    มีส่วนเอาไว้อาบน้ำ อาจจะติดตั้ง Shower Box หรือม่านกันน้ำกระเด็นได้ค่ะ

    เข้ามาในครัวกันบ้าง เซ็ตนี้ทางโครงการให้มาด้วยค่ะ ผิวหน้าเคาน์เตอร์เป็นหินแท้สีดำ พร้อมซิงค์ล้างจาน
    และกระเบื้องดำติดผนังกันน้ำกระเด็น ตู้เก็บของผิวเป็นเมลามีนลายไม้

    ตู้ด้านบนค่ะ

    ถัดไปจะมีพื้นที่เหลือสำหรับวางตู้เย็น และเป็นประตูบานเลื่อนกระจกเขียวใส เพื่อออกสู่ระเบียงค่ะ

    ระเบียงสามารถวางเครื่องซักผ้าได้และมีพื้นที่เหลือปลูกต้นไม้ได้อีกด้วย
    ห้องต่อมาคือ ห้องขนาด 27.30 ตร.ม.ค่ะ

    Plan ห้อง Type B ขนาด 27.30 ตร.ม.

    ห้องนี้ลึก 5.4 เมตรค่ะ สูง 2.6 เมตร พร้อมให้แอร์ 15,000 BTU

    Living Room กว้างมากๆ ค่ะ ตั้งโซฟาเข้ามุมพร้อมโต๊ะขนาดใหญ่ได้เลย

    มองมุมนี้จะเห็นว่าห้องน้ำจะอยู่ซ้ายมือและครัวอยู่ทางขวามือค่ะ

    ห้อง Studio ขนาด 27.30 ตร.ม. นี้ การจัด Layout ทำให้ห้องมีพื้นที่ใช้สอยได้เต็มที่ หากกั้นประตูบานสไลด์
    ตรงส่วนห้องนอนก็คล้ายๆ กับห้อง 1 Bed เลยค่ะ

    ความพิเศษของห้องไซส์นี้คือ จะอยู่ด้านในของโครงการ เป็นห้องด้านในสวนหมดทุกห้อง
    ทางโครงการจึงทำ bay window กระจกเข้ามุม มองเห็นสวนได้ค่ะ

    ด้านปลายเตียงพื้นที่สามารถบิวท์ตู้ได้จริง เปิดได้ไม่ติดเตียงค่ะ

    ห้องน้ำจะเป็นแนวลึกลงไปค่ะ ได้ตามแบบนี้เลย ยกเว้นกระจกไม่ได้เต็มแบบนี้ค่ะ  จะได้เป็น ขนาด 90X60 ซ.ม.
    สุขภัณฑ์จะเป็นของ American Standard และ Cotto หรือเทียบเท่า

    เข้ามาดูในครัวกันต่อ ทางโครงการให้มาทั้งชุดเลยค่ะ ออกแบบมาให้เฉพาะกับทางโครงการ

    พื้นที่ครัว และทางออกระเบียง

    ก่อนออกไประเบียงจะมีประตูบานสไลด์พร้อมกระจกเขียวใสกั้นให้
    ด้านนอกสามารถจัดสวนเล็กๆ วางเครื่องซักผ้าและตากผ้าได้ค่ะ
    ราคาและค่าใช้จ่ายที่เกี่ยวข้องโดยประมาณ (ณ วันที่ 28 มิ.ย. 59)
    ราคาเริ่มต้น 950,000 บาท
    ตัวอย่างราคาและโปรโมชั่นสำหรับวัน Pre-sales ในวันที่ 30-31 ก.ค. 2559
     ประเภท  พื้นที่ (ตร.ม.)  ราคา (ล้านบาท) โปรโมชั่นส่วนลด (บาท)
    ต่อที่ 1
    ส่วนลดหน้าสัญญาฯ 
    ลงทะเบียนผ่านเว็บไซต์ 
    ต่อที่ 2
    ส่วนลด ณ วันโอน
     Studio
    (A, A-M)
     22.44  0.95-1.44 5,000 50,000
     Studio
    (B, B-M)
     27.30  1.42-1.87 5,000 50,000
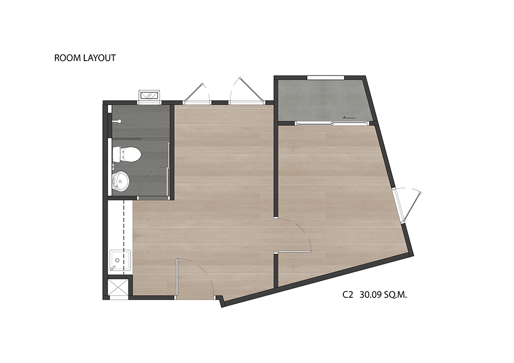
     1 Bed
    (C2)
     30.09  1.39-1.59 5,000 70,000
    1 Bed
    (C1, C1-M) 
    31.62  1.38-1.72  5,000 70,000 
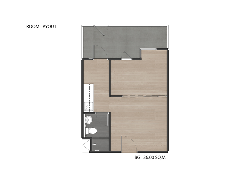
    1 Bed
    (ฺBG, BG-M)
    36.00 1.97-2.28 5,000 70,000 
    2 Bed
    (D, D-M) 
    40.18  2.30-2.85  5,000 90,000
     2 Bed 
    (DG, DG-M)
     50.09  2.84-3.27 5,000 90,000
    Duplex
    (E, E-M) 
     69.48  3.93-4.44 5,000 120,000 

    โปร 6 ต่อ 
    • ต่อที่ 1 ส่วนลดหน้าสัญญาฯ 5,000 บาท เมื่อลงทะเบียนผ่านเว็บไซต์เท่านั้น
    • ต่อที่ 2 ส่วนลด ณ วันโอน 50,000-120,000 บาท แล้วแต่ประเภทห้อง
    • ต่อที่ 3 ชำระเงินจอง พร้อมทำสัญญาฯ รับเพิ่มบัตรกำนัลเซ็นทรัล มูลค่า 5,000 บาท*
    • ต่อที่ 4 ผ่อนชำระเงินจองพร้อมทำสัญญาฯ รับโปรโมชั่นผ่อน 0% 6 เดือน (KTC, KBANK, BBL)
    • ต่อที่ 5 ฟรีชุดครัวและเครื่องปรับอากาศตามมาตรฐานโครงการ โดยบริษัทฯ จะส่งมอบให้ภายในวันโอน
    • ต่อที่ 6 ลูกค้า AMC แนะนำเพื่อนจอง ผู้แนะนำรับ Cash back ห้อง Studio และ 1 Bed รับ 5,000 บาท 2 Bed และ Duplex รับ 10,000 บาท**
    หมายเหตุ
    *หลังจากผ่านเงื่อนไข Pre-screening
    **หลังจากชำระเงินดาวน์ครบ 4 งวด
    บริษัทฯ ขอสงวนสิทธิในการเปลี่ยนแปลงรายละเอียดและเงื่อนไขตามใบเสนอราคานี้โดยมิต้องแจ้งให้ทราบล่วงหน้า
    ค่าใช้จ่ายอื่นๆ 
    • ค่าบำรุงรักษาส่วนกลาง 45 บาท/ตร.ม./เดือน ชำระล่วงหน้า 1 ปี ณ วันโอน
    • เงินกองทุนส่วนกลาง 400 บาท/ตร.ม. ชำระ ณ วันโอน
    • ค่าธรรมเนียมการโอนกรรมสิทธิ์ (ผู้ซื้อและผู้ขายแบ่งชำระคนละครึ่ง)
    • ค่าธรรรมเนียมในการจดจำนอง 1% (กรณีผู้ซื้อขอสินเชื่อกับทางธนาคาร)
    ภาพรวมโดยสรุปของโครงการ
    • การเดินทางเข้า-ออกโครงการ - หากใช้รถส่วนตัวสามารถเดินทางได้เข้าออกได้หลายทางดังนี้ค่ะ จากทางด่วนเฉลิมมหานคร ลงมาถนนสุขุมวิทระยะทางประมาณ 2 กิโลเมตรถึงโครงการ หรือจากวงแหวนรอบนอก (ถนนกาญจนาภิเษก) เข้ามาตามถนนเทพารักษ์ประมาณ 12 กิโลเมตร นอกจากนี้ยังออกไปถนนรางรถไฟเก่าโดยใช้เส้นทางซอยปทุมคงคาได้ หรือออกไปถนนศรีนครินทร์ได้โดยใช้ถนนแบริ่ง ถนนเทพารักษ์ หรือถนนสุขุมวิท 105 ได้ทั้ง 3 ทางค่ะ หรือถ้าจะเดินทางโดยขนส่งสาธารณะ ก็ใช้บริการรถไฟฟ้า BTS สถานีแบริ่งได้ ห่างจากโครงการ 600 เมตร เองค่ะ 
    • ทำเลรอบโครงการ - พื้นที่ตั้งโครงการอยู่ในซอยสุขุมวิท 72 ภายในซอยเป็นถนนโล่ง ข้างทางมีโรงงานอลูมิเนียม และร้านอาหารเล็กๆ หน้าโรงงาน ถนนค่อนข้างโล่งยังไม่แออัด บริเวณรอบๆ มีตึกไม่เกิน 8 ชั้น มีแมนชั่น และบ้านพักอาศัยรายล้อม แม้ว่าในซอยจะไม่มีร้านค้า หรือสิ่งอำนวยความสะดวกเท่าไหร่แต่ออกมาจากซอยตามเส้นทางถนนสุขุมวิทมีสำนักงานธนาคารกสิกร ไทยพาณิชย์ และธนชาต ระยะทางไม่เกิน 500 เมตร มีปั๊มน้ำมันเชลล์อยู่ใกล้ปากซอยสุขุมวิท 72 และอยู่ติดบันได BTS สถานีแบริ่งนั้นมีปั๊มเอสโซ่ พร้อม TESCO LOTUS Express ตลาดขายอาหารและ 7-11 ทั้งยังใกล้ Community Mall อย่าง The Coast ใกล้อิมพีเรียล และบิ๊กซีสำโรงระยะทางไม่เกิน 2 กิโลเมตรก็ถือว่าซื้อหาข้าวของได้สะดวกสบายทีเดียวค่ะ
    • อาคารและตัวโครงการโดยรวม - เป็นคอนโด Low-Rise สูง 8 ชั้น จำนวน 5 อาคาร รวมห้องพักอาศัยทั้งหมด 984 ยูนิต และ Shop สำหรับร้านค้าที่อยู่บริเวณด้านล่าง 3 ยูนิต อาคาร A มี 203 ห้อง อาคาร B มี 152 ห้อง อาคาร C มี 232 ห้อง อาคาร D มี 205 ห้อง และอาคาร E มี 192 ห้อง ตัวโครงการโดดเด่นด้าน Facility ที่มีคอนเซปต์คือ Green Breeze เน้นสวน พื้นที่สีเขียว สระว่ายน้ำเป็นลักษณะฟรีฟอร์ม ยาว 40 เมตร ลึก 1.2 เมตร พร้อมสระเด็ก และมีจุดเด่นที่ห้องมุมด้านในจะเป็นห้อง 27.30 ตร.ม. จะมองเห็นสวนกับสระได้ และที่ชั้น 1 จะมีห้องแบบ Garden access ที่อาคาร C และ Pool access ที่อาคาร D ภายนอกอาคารตกแต่งเป็นเหมือนเปลือกไม้ ใช้สีอ่อนเพื่อส่งให้ส่วนกลางสีเขียวเด่นขึ้นมา มีลิฟต์โดยสารให้อาคารละ 2 ตัว ที่จอดรถประมาณ 30% ไม่รวมจอดซ้อนคัน
    • รูปแบบห้องและวัสดุ - สำหรับ Layout ห้องนั้นทางโครงการได้สำรวจมาว่าผู้อยู่อาศัยจะให้เวลากับ living room เป็นส่วนใหญ่จึงออกแบบให้พื้นที่ส่วนนี้กว้างกว่าโครงการอื่นๆ ที่เคยทำมา แบบห้องถือว่ามีหลากหลายครบทุกความต้องการและยังมีห้อง Duplex 23 ยูนิต ตอบโจทย์ผู้ที่อยากมีพื้นที่ใช้สอยเยอะๆ อีกด้วย ทางโครงการจะให้เป็นห้องเปล่าพร้อมชุดครัวที่ออกแบบมาให้กับทางโครงการโดยเฉพาะ และสุขภัณฑ์ของ American Standard และ Cotto หรือเทียบเท่าค่ะ ไฟที่ได้เป็นโคมซาลาเปาแต่ในห้องน้ำจะเป็นดาวน์ไลท์ พื้นเป็นลามิเนตหนา 8 มม. ทั้งห้อง ยกเว้นห้องน้ำและระเบียงที่เป็นกระเบื้อง อาจจะต้องระวังในส่วนครัวที่น้ำอาจกระเด็นลงพื้นนานๆ เข้าอาจส่งผลทำให้พื้นบวมได้ค่ะ
    สถานะปัจจุบันของโครงการ (ณ วันที่ 28 มิ.ย. 59)
    ยูนิโอ สุขุมวิท 72 (Unio Sukhumvit 72) คาดว่าจะสร้างแล้วเสร็จในเดือนธันวาคม 2560 จะเปิด Pre-sales ในวันที่ 30-31 ก.ค. 2559 สามารถลงทะเบียนเพื่อรับส่วนลด 5,000 บาท ได้ที่ด้านล่างนี้
    สอบถามเพิ่มเติม www.ananda.co.th หรือ โทร. 02 316 2222
    ดูรายละเอียดโครงการ ยูนิโอ สุขุมวิท 72 (Unio Sukhumvit 72)
    • เช็คราคา.คอม
    • เช็คราคา.คอม
      PROPERTY GURU Thailand

    รีวิว-พรีวิวล่าสุดอื่นๆ

    คอนโดติดรถไฟฟ้าล่าสุด

เว็บไซต์นี้มีการเก็บคุกกี้เพื่อเพิ่มความพึงพอใจในการใช้งานเว็บไซต์ และช่วยให้เราปรับปรุง และนำเสนอเนื้อหาตรงตามความสนใจของท่าน ท่านสามารถดู Privacy Notice และ ดู Cookies Policy ของเราได้ ที่นี่ ทั้งนี้ ท่านจะยินยอมให้เราเก็บคุกกี้ทั้งหมด หรือให้เก็บแค่บางส่วนโดยการคลิกเลือก ตั้งค่า

ท่านสามารถเลือกให้ความยินยอมการเก็บคุกกี้เป็นเรื่องๆ ได้ที่นี่

เมื่อคุณเข้าชมเว็บไซต์ หรือแอปพลิเคชั่น checkraka เราอาจจัดเก็บ หรือดึงข้อมูลจากเบราว์เซอร์ของคุณในรูปแบบของคุกกี้ และเทคโนโลยีอื่นที่คล้ายคลึง เช่น tag และ pixel (เรียกรวมกันว่า “คุกกี้”) ซึ่งมักเป็นข้อมูลที่ไม่สามารถระบุตัวตนได้โดยตรง แต่ช่วยให้คุณใช้งานเว็บไซต์ได้ปลอดภัย และตรงตามความต้องการมากขึ้น คุณอาจไม่ยินยอมให้เราเก็บคุกกี้บางประเภทได้ โดยการคลิกตามหัวข้อข้างล่างนี้

ประเภทคุกกี้
อ่านเพิ่มเติม ที่นี่
ยินยอม / ไม่ยินยอม
คุกกี้ที่จำเป็นต้องมีเสมอ
(Strictly Necessary)
คุกกี้สำหรับการใช้งานเว็บไซต์
(Functionality)
คุกกี้เพื่อเพิ่มประสิทธิภาพและวิเคราะห์
(Performance & Analytics)
คุกกี้เพื่อการตลาด
(Marketing)