ประเมินวงเงินรู้ผลใน 3 นาที
กับ กรุงศรี ออโต้ พร้อมสตาร์ท

เริ่มประเมินวงเงินพร้อมสตาร์ท
ผ่านมือถือ สแกนเลย

ดูวงเงินพร้อมสตาร์ทที่ได้รับ

  • คอนโด
  • คอนโด
  • ค้นหาแบบละเอียด
  • รีวิว-เยี่ยมชม พลัมคอนโด ปิ่นเกล้า สเตชั่น (Plum Condo Pinklao Station)

    28 ก.ค. 59 18,688
    รีวิว-เยี่ยมชม พลัมคอนโด ปิ่นเกล้า สเตชั่น (Plum Condo Pinklao Station)
    สวัสดีค่ะทุกท่าน วันนี้ Checkraka จะมารีวิว "พลัมคอนโด" ของค่ายพฤกษาค่ะ ทำเลที่เราจะพาไปในวันนี้คือ "ปิ่นเกล้า" ตัวโครงการ "พลัมคอนโด ปิ่นเกล้า สเตชั่น (Plum Condo Pinklao Station)" อยู่ใกล้รถไฟฟ้า สถานีบางยี่ขันเพียง 600 เมตร อีกทั้งยังรายล้อมด้วยห้างสรรพสินค้ามากมาย อาทิ เซ็นทรัล เมเจอร์ พาต้า ตลาดปิ่นเงินปิ่นทอง และเดอะ เซ้นส์ ลองหลีกหนีจากความวุ่นวายในเมือง ออกมาพบความสงบย่านฝั่งธนฯ กันบ้าง รูปแบบและรายละเอียดจะเป็นยังไงไปชมกันเลยค่ะ
    ข้อมูลโครงการ
    เจ้าของและผู้พัฒนาโครงการ: บริษัท พฤกษา เรียลเอสเตท จำกัด
    ที่ตั้งโครงการ: ติดถนนสมเด็จพระปิ่นเกล้า แขวงบางยี่ขัน เขตบางพลัด กรุงเทพมหานคร
    อาคารชุดพักอาศัยสูง 22 ชั้น+ชั้นใต้ดิน 1 ชั้น จำนวน 1 อาคาร รวม 964 ยูนิต และร้านค้า 4 ยูนิต
    ขนาดที่ดินทั้งโครงการ: 4-0-38 ไร่
    ลิฟต์โดยสาร 4 ตัว และลิฟต์ขนของ 1 ตัว
    ห้องชุด: มี 2 รูปแบบ คือ 
    - 1 ห้องนอน มีพื้นที่ใช้สอยขนาด 24.5 และ 26.5 ตร.ม.
    - 2 ห้องนอน มีพื้นที่ใช้สอยขนาด 49.5 ตร.ม.
    ที่จอดรถ : ประมาณ 41% (รวมจอดซ้อนคัน)
    ราคาเริ่มต้น : สําหรับห้องขนาด 24.5 ตร.ม. ราคา 1.95 ล้านบาท  (ข้อมูล ณ 17 มิ.ย. 59)
    สถานะโครงการ : คาดว่าจะแล้วเสร็จ ประมาณเดือนกรกฎาคม 2561
    วันที่เข้าเยี่ยมชม - รีวิวคอนโด : 17 มิ.ย. 59
    เจ้าของและผู้พัฒนาโครงการ
    บริษัท พฤกษา เรียลเอสเตท จำกัด (มหาชน) เป็นบริษัทมหาชน และจดทะเบียนอยู่ในตลาดหลักทรัพย์แห่งประเทศไทยตั้งแต่ปี 2548 บริษัทฯ ก่อตั้งเริ่มแรกขึ้นเมื่อวันที่ 20 เมษายน 2536 มีทุนจดทะเบียนปัจจุบันอยู่ที่ 2,285,298,800 ล้านบาท ชำระแล้ว 2,230,763,300 ล้านบาท ได้รับการจัดอันดับเครดิตองค์กรล่าสุด (16 เมษายน 2558) โดย TRIS Rating อยู่ที่ "A" บริษัทฯ ประกอบธุรกิจพัฒนาอสังหาริมทรัพย์ทั้งแนวราบ (ทาวน์เฮ้าส์และบ้านเดี่ยว) และแนวสูง (คอนโดมิเนียม) ทั้งในประเทศไทย และต่างประเทศ และเป็นบริษัทอสังหาริมทรัพย์ที่มีโรงงานสร้างบ้านแบบ Precast (พรีคาสท์ - สร้างบ้านโดยใช้เทคโนโลยีชิ้นส่วนคอนกรีตเสริมเหล็กสำเร็จรูป) เป็นของตัวเองแบบครบวงจร 
    ทำเลที่ตั้ง
    โครงการ พลัมคอนโด ปิ่นเกล้า สเตชั่น (Plum Condo Pinklao Station) อยู่ติดถนนสมเด็จพระปิ่นเกล้า แขวงบางยี่ขัน เขตบางพลัด กรุงเทพมหานคร ห่างจากพาต้าปิ่นเกล้าเพียง 80 เมตร และใกล้รถไฟฟ้าสายสีน้ำเงิน สถานีบางยี่ขัน 600 เมตร ตามแผนคาดว่าจะเปิดให้ใช้งานปี พ.ศ. 2562

    แผนที่โครงการ พลัมคอนโด ปิ่นเกล้า สเตชั่น

    ภาพแผนที่โครงการแจกแจงให้เห็นระยะใกล้-ไกลของโครงการ กับสถานที่ หรือ Landmark รอบๆ โครงการที่น่าสนใจ
    พิกัด Google Map : 13?46'21.0"N 100?28'59.4"E

    พาต้า ปิ่นเกล้า อยู่ห่างจากโครงการประมาณ 80 เมตร

    Major Cineplex อยู่ห่างจากโครงการประมาณ 800 เมตร

    ปิ่นทอง พลาซ่า อยู่ห่างจากโครงการประมาณ 800 เมตร

    Central Plaza Pinklao อยู่ห่างจากโครงการประมาณ 900 เมตร

    The Sense อยู่ห่างจากโครงการประมาณ 1.2 กม.

    โรงพยาบาลบาล ตา หู คอ จมูก อยู่ห่างจากโครงการประมาณ 2.5 กม.

    ห้างสรรพสินค้าตั้งฮั่วเส็ง อยู่ห่างจากโครงการประมาณ 3.3 กม.
    การเดินทางเข้า-ออกโครงการ
    1. เดินทางด้วยรถยนต์ส่วนตัว
    การเดินทางด้วยรถยนต์สามารถมาได้หลายเส้นทาง โดยมีเส้นทางหลักดังต่อไปนี้ค่ะ
    ขาเข้าเส้นทางที่ 1 จากถนนบรมราชชนนี

    จากถนนบรมราชชนนีให้ตรงไปเรื่อยๆ

    มุ่งหน้าสู่สะพานพระปิ่นเกล้า

    ซ้ายมือจะเห็นป้ายโครงการ "พลัมคอนโด ปิ่นเกล้า สเตชั่น " ขนาดใหญ่ค่ะ

    เบี่ยงขวาเข้าสู่ปิ่นเกล้า

    ตรงมาเรื่อยๆ ซ้ายมือ จะเจอเมเจอร์ ซีนิเพล็กซ์ และขวามือเป็นเซ็นทรัลค่ะ

    จากเมเจอร์ตรงมาประมาณ 700 เมตรก็จะถึงแยกบรมราชชนนี ข้ามแยกไปให้ชิดซ้ายเตรียมเข้าโครงการ

    โครงการอยู่ซ้ายมือติดถนนสมเด็จพระปิ่นเกล้าค่ะ 
    ขาเข้าเส้นทางที่ 2 จากถนนราชดำเนิน 
    ขาออกเส้นทางที่ 1 ไปถนนบรมราชชนนี (ออกเมือง-ศาลายา-นครปฐม)
    ขาออกเส้นทางที่ 2 ไปถนนราชดำเนิน (เข้าเมือง)
    2. เดินทางด้วยรถไฟฟ้า
    โครงการ พลัมคอนโด ปิ่นเกล้า สเตชั่น (Plum Condo Pinklao Station) อยู่ใกล้กับรถไฟฟ้าสายสีน้ำเงินสถานีบางยี่ขันค่ะ ระยะ 600 เมตร ก็ยังพอเดินได้และทางเดินก็ไม่ได้เปลี่ยว (ดูที่สภาพแวดล้อม) คาดว่าจะได้ใช้กันในปี 2562 นี้

    แนวเส้นทางโครงการรถไฟฟ้าสายสีน้ำเงิน ภาพจาก http://pr-cr-mrta.blogspot.com/2013/08/blog-post_25.html

    โครงการห่างจากสถานีประมาณ 600 เมตร

    ตัวสถานีขึ้นเป็นรูปร่างให้เห็นแล้วค่ะ
    สภาพแวดล้อมใกล้เคียง
    โครงการอยู่ริมถนนสมเด็จพระปิ่นเกล้า ห่างจากพาต้าเพียง 80 เมตร ทำให้ช่วงนั้นคึกคักพอสมควร แต่บริเวณหน้าโครงการจะค่อนข้างเงียบ ซึ่งถือเป็นข้อดีค่ะ คนจะได้ไม่พลุกพล่าน เดี๋ยวเราไปดูกันว่ามีอะไรรอบๆ โครงการบ้าง

    แผนที่ภาพรวมสถานที่โดยรอบโครงการ

    ออกจากโครงการเดินไปทางซ้ายมือก่อนค่ะ

    ฟุตบาทหน้าโครงการค่อนข้างกว้างและเป็นระเบียบสวยงาม

    อาคารที่อยู่ติดกับโครงการจะเป็นร้านนาฬิกาค่ะ

    ถัดไปก็จะเป็นร้านนาฬิกาเหมือนกัน

    เดินต่อไปเจอร้านแว่นท็อปเจริญ 

    แมคโดนัลด์เปิด 24 ชั่วโมง

    ถึงเขตห้างพาต้าแล้วค่ะ บริเวณนี้ค่อนข้างคึกคัก มีร้านค้า ร้านอาหารเยอะเลย

    วัตสันเปิดอยู่ริมทาง

    ถัดไปจากพาต้าเป็นคิวรถตู้ค่ะ

    เซเว่นอีเลฟเว่นขนาดใหญ่

    มีธนาคารกรุงไทยด้วยค่ะ

    เดินมาเรื่อยๆ จะถึงแยกอรุณอัมรินทร์แล้ว

    ก่อนถึงแยกจะผ่านโรงรับจำนำสีส้มๆ 

    ถึงแยกอรุณอัมรินทร์แล้วเดินย้อนกลับมาดูทางขวาของโครงการบ้างค่ะ ด้านนี้จะติดกับคอนโดลุมพินี

    แยกบรมราชชนนี

    ตรงหัวโค้งจะมีร้านขายอุปกรณ์และอาหารสำหรับสัตว์เลี้ยง

    ติดกันเป็นคลินิกทำฟันและร้านเกี่ยวกับเส้นผมค่ะ

    ธนาคารยูโอบี

    ถัดไปเป็นธนาคารกรุงศรีอยุธยาค่ะ 

    โครงสร้างสถานีบางยี่ขัน

    ริมถนนจรัญสนิทวงศ์จะเป็นอาคารพาณิชย์ที่ด้านล่างเป็นร้านค้า

    ธนาคารกรุงไทยมีทั้งทางแยกอรุณอัมรินทร์และที่นี่เลยค่ะ
    รูปแบบตึก และตัวโครงการโดยรวม
    คอนโดมิเนียมตั้งอยู่บนที่ดินขนาด 4-0-38 ไร่ มีความสูง 22 ชั้น+ชั้นใต้ดิน 1 ชั้นจำนวน 1 อาคาร รวมห้องพักอาศัย 964 ยูนิต พร้อมร้านค้า 4 ยูนิต มีพื้นที่ส่วนกลางแบ่งออกเป็น 3 ส่วนใหญ่ๆ ซึ่งปริมาณค่อนข้างเยอะ ได้แก่ ชั้น Ground floor, ชั้น 5 และบริเวณชั้นบนสุดคือ Roof floor ที่อยู่บนชั้น 22 มีลักษณะห้องพักแบ่งเป็นแบบ 1 ห้องนอน และ 2 ห้องชุดรวมกัน (24.5, 26.5 และ 49.5 ตร.ม.)
    ทิศตะวันตกเฉียงใต้ : หันหน้าไปทางถนนปิ่นเกล้า
    ทิศตะวันออกเฉียงใต้ : หันหน้าไปเจอพาต้า จะได้วิวสะพานพระราม 8
    ตะวันออกเฉียงเหนือ : หันหน้าไปทางบ้านพักอาศัย
    ตะวันตกเฉียงเหนือ : หันหน้าไปเจอคอนโดลุมพินี

    ชั้น G จะประกอบไปด้วยสนามแบดมินตัน, สวนพักผ่อน, Mail Room, Laundry Room,
    ลิฟต์รวม 4 ตัว, ลิฟต์บริการ 1 ตัว, ล็อบบี้ 2 ฝั่ง และที่จอดรถ

    ชั้น 5 จะประกอบไปด้วย Facility ได้แก่ สระว่ายน้ำ (3 สระ), Fitness, Sauna,
    สวนพักผ่อน, The Club, Lift และห้องพักอาศัยรวม 42 ยูนิต

    ชั้น 22 (Roof Floor) จะประกอบไปด้วย สวนพักผ่อน, ลานบาร์บีคิว, Sunken Court และลานโยคะ 

    ชั้น 2 จะประกอบไปด้วยห้องพักอาศัยทั้งหมด รวม 34 ยูนิต

    ชั้น 3 - 4 จะประกอบไปด้วยห้องพักอาศัยทั้งหมด รวม 36 ยูนิต

    ชั้น 6 - 22 จะประกอบไปด้วยห้องพักอาศัยทั้งหมด รวม 48 ยูนิต

    ทำเนียบสีระบุประเภทและขนาดของห้องพักอาศัยในโครงการ

    โมเดลโครงการหันหน้าไปทางทิศตะวันตกเฉียงใต้

    โมเดลโครงการหันหน้าไปทางทิศตะวันตกเฉียงเหนือ

    โมเดลโครงการหันหน้าไปทางทิศตะวันออกเฉียงเหนือ

    โมเดลโครงการหันหน้าไปทางทิศตะวันออกเฉียงใต้
    ส่วนกลางและสิ่งอำนวยความสะดวก
    สิ่งอำนวยความสะดวกโครงการ จะรวมอยู่ที่บริเวณชั้น 5 และบน Roof Floor 
    THE GARDEN
    • พื้นที่สีเขียวกว่า 1.5 ไร่ สวนพักผ่อน และสนามแบดมินตันพื้นหญ้าเทียม
    • สวนลอยฟ้า วิวสะพานพระราม 8 พร้อมลานบาร์บีคิว และลู่วิ่งจ๊อกกิ้ง
    THE LIVING
    • ล็อบบี้ 2 ชั้น สูงกว่า 5 เมตร 3 โซน 3 สไตล์
    THE CLUB
    • พื้นที่ห้องนั่งเล่นขนาดใหญ่ ประกอบด้วย ห้องอ่านหนังสือ และห้องสันทนาการ
    • ห้องอเนกประสงค์ สำหรับประชุมและทำงาน ห้องเกมและโต๊ะพูล
    THE POOL & FITNESS
    • สระว่ายน้ำขนาดใหญ่ ยาว 30 เมตร พร้อมสระเด็กแยก และสระสำหรับแช่แบบ Jacuzzi 
    • ฟิตเนสวิว 360 องศา พร้อมห้องซาวน่า ลานโยคะยกระดับ ริมสระว่ายน้ำ

    ภาพจำลองห้องฟิตเนสรับวิว 360 องศา

    ภาพจำลองสระว่ายน้ำยาว 30 เมตร

    ภาพจำลองสระสำหรับแช่แบบ Jacuzzi 

    ภาพจำลอง The Club Gameroom

    ภาพจำลอง The Club Multiroom

    ภาพจำลอง The Club Play Club

    ภาพจำลอง The Club Private Area

    ภาพจำลอง The Living ล็อบบี้ 2 ชั้น สูงกว่า 5 เมตร 3 โซน 3 สไตล์

    ภาพจำลอง  Social Living
    ภาพห้องตัวอย่างและ Lay out
    ภาพห้องตัวอย่างแบบ 1 ห้องนอน ขนาด 24.5 ตร.ม.

    Layout ห้องแบบ 1 ห้องนอน ขนาด 24.5 ตร.ม. 
    แบ่งส่วนเป็น 1 ห้องนอน 1 ห้องน้ำ 1 ห้องครัว และส่วน Living Area

    การวาง Lay out ของห้องนี้จะเป็นมาตรฐานทั่วไปค่ะ โดยความสูงระหว่างพื้นถึงเพดานประมาณ 2.55 เมตร

    หันหลังให้ทีวี จะเห็นว่าเกือบครึ่งนึงของพื้นที่ที่แบ่งโซนระหว่างห้องรับแขกกับห้องครัวค่ะ

    หันกลับไปทางประตูทางเข้า ทีวี กับ โซฟา จะมีระยะห่างกันประมาณนี้ค่ะ

    พื้นที่ของพื้นลามิเนตตียาวไปจนถึงโซนห้องครัว จะเห็นว่าไม่ได้แบ่งอาณาเขตให้เป็นพื้นกระเบื้อง
    เพราะเนื่องจากเป็นครัวเปิดไม่ได้ใช้งานครัวแบบหนักๆ ให้สัมผัสที่ smooth ดีเหมือนกันค่ะ

    ทางโครงการจะให้เคาน์เตอร์ครัวที่ปิดผิวด้วยหินสังเคราะห์,
    Hob+Hood ยี่ห้อ MEX (โปรโมชั่นวัน Pre-sales) กับซิงค์ล้างจาน+ก๊อก มาค่ะ

    ถามหาพื้นกระเบื้องก็มาเจออยู่ที่บริเวณระเบียงค่ะ ซึ่งก็จะมีความกว้างประมาณนี้
    สามารถวางเครื่องซักผ้าได้ ตากผ้าได้ และยืนพักผ่อนได้พอสมควร

    ไปห้องนอนกันค่ะ

    ขนาดของห้องนอนพอที่จะวางเตียงขนาด 5 ฟุต วางโต๊ะเครื่องแป้ง และตู้เสื้อผ้าได้ค่ะ

    ห้องไซส์นี้จะมี 1 ห้องน้ำ ซึ่งห้องน้ำจะอยู่ภายในห้องนอนค่ะ

     พื้นที่หน้าห้องน้ำทางโครงการจะ Built-in ตู้เสื้อผ้าให้ (โปรโมชั่นวัน Pre-sales) ส่วนโต๊ะเครื่องแป้งไม่ได้ให้ค่ะ

    สุขภัณฑ์ภายในห้องน้ำจะได้ของ COTTO ทั้งหมดค่ะ ยกเว้น Shower Box

    จะเห็นได้ว่าผนังใช้กระเบื้องแบบนี้ในห้องตัวอย่าง ซึ่งห้องจริงก็จะได้ตามนี้เช่นกันค่ะ
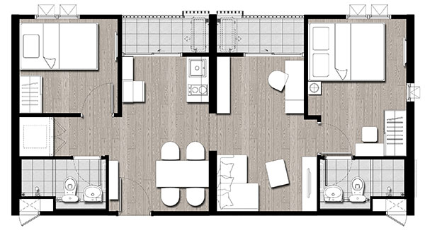
    ภาพห้องตัวอย่างแบบ 2 ห้องชุดรวมกัน 49.5 ตร.ม.

    Layout ห้องแบบ 2 ห้องชุดรวมกัน 49.5 ตร.ม.
    แบ่งส่วนเป็น 2 ห้องนอน 2 ห้องน้ำ 1 ห้องครัว และส่วน Living Area

    Layout ของห้องนี้จะมีลักษณะเหมือนห้องขนาด 1 ห้องนอน ประกบรวมกันเรียกว่าห้องแบบ Combine ค่ะ
    เดินเข้ามาเจอในส่วนแรก ถ้าตรงนี้ไม่ได้ถูกตกแต่งอะไรไว้เลย จะคล้ายๆ กับเป็น Foyer เพื่อเดินแยกไปห้องต่างๆ ค่ะ

    เดินผ่านโถงทางเดินเข้ามาก็จะเจอห้องครัวแรก ซึ่งมีพื้นที่เล็กๆ กะทัดรัด 

    สิ่งที่จะได้ก็คือเคาน์เตอร์ที่ปิดผิวด้วยหินสังเคราะห์, Hob+Hood ยี่ห้อ MEX (โปรโมชั่นวัน Pre-sales),
    ซิงค์ล้างจาน+ก๊อก เหมือนห้องแรกค่ะ

    เดี๋ยวเราแวะโซนแรกตรงนี้กันดีกว่าค่ะ

    ตู้ที่เห็นวางเครื่องซักผ้าทางโครงการบิวท์ให้สำหรับเป็นห้องเก็บของและ Laundry Room
    เพื่อแยกส่วนการใช้งานให้เป็นระเบียบค่ะ

    ทางด้านซ้ายเป็นห้องน้ำแต่จะไม่ได้ให้ Shower box นะคะ

    ทางด้านขวามือเป็นห้องนอนเล็กเหมาะที่จะวางเตียงขนาด 3 ฟุตโดยทางโครงการให้ตู้เสื้อผ้ามาด้วยค่ะ
    (ตู้จะเป็นโปรโมชั่นวัน Pre-sales)

    ออกมาจากโซนแรก จะขออธิบายเป็นจุดตามลำดับนะคะ
    โดยจุดที่ 1 เป็นจุดวางโต๊ะรับประทานอาหาร ห้องทานอาหาร และห้องครัว

    เข้ามาในจุดที่ 2 เป็น Living Room แบบเต็มขั้น ซ้ายเป็นโต๊ะทำงาน ขวาเป็นโซฟานั่งดูทีวี

    จุดนี้กว้างดีนะคะ รู้สึกเหมือนอยู่ในบ้านเลย

    มาถึงจุดที่ 3 ก็คือในส่วนของ Master Bedroom ที่มีห้องน้ำในตัว

    ขนาดห้องนอนห้องนี้จะใหญ่กว่าอย่างเห็นได้ชัด เพราะสามารถวางเตียงขนาด 5-6 ฟุตได้สบาย

     โปรฯ วันพรีเซลจะได้ตู้เสื้อผ้า Built-in ส่วนโต๊ะเครื่องแป้งไม่ได้ให้ค่ะ

    ในห้องน้ำก็จะได้สุขภัณฑ์ของ COTTO ทั้งหมด ได้กระจกเงาบานเต็ม
    ยกเว้น Shower Box เช่นเดียวกันค่ะ
    ราคาและค่าใช้จ่ายที่เกี่ยวข้องโดยประมาณ
    ราคาเริ่มต้น 1.95 ล้านบาท  (ข้อมูล ณ 17 มิ.ย. 59)
    ค่าใช้จ่ายอื่นๆ ของโครงการ 
    ค่าส่วนกลางอัตรา 45 บาท/ตร.ม./เดือน ชำระล่วงหน้า 1 ปี
    เงินกองทุนส่วนกลาง 500 บาท/ตร.ม. (ชำระครั้งเดียว ณ วันโอนกรรมสิทธิ์)
    ค่าธรรมเนียมการโอนกรรมสิทธิ์ ผู้ซื้อและผู้ขายแบ่งชำระกันคนละครึ่ง
    ค่ามิเตอร์ไฟฟ้า : ผู้จะซื้อเป็นผู้ชำระ
    โปรโมชั่น !! แชร์ลุ้นทอง จองลุ้นล้าน
    • แชร์โพสต์ใน facebook Pruksa Family Club
    • เยี่ยมชมสำนักงานขาย ถ่ายภาพและโพสต์ลง facebook instragram หรือ line
    ภาพรวมโดยสรุปของโครงการ
    การเดินทางเข้า-ออกโครงการ - การเดินทางที่สะดวกที่สุดในตอนนี้ก็จะเป็นรถยนต์ค่ะ เส้นทางหลักเลยก็คือมาจากถนนบรมราชชนนีและถนนราชดำเนินข้ามสะพานพระปิ่นเกล้ามา สำหรับการจราจรในย่านนี้ค่อนข้างหนาแน่นโดยเฉพาะช่วงเช้าและช่วงเย็น ประกอบกับอยู่ในช่วงก่อสร้างรถไฟฟ้า แต่เมื่อรถไฟฟ้าสายสีน้ำเงินส่วนต่อขยายเสร็จก็จะสะดวกมากๆ สามารถขึ้นลงได้ที่สถานีบางยี่ขัน ตัวสถานีอยู่ห่างจากโครงการประมาณ 600 เมตรค่ะ
    ทำเลรอบโครงการ - รอบๆ โครงการจะไม่ค่อยมีร้านอาหารข้างทางมากนัก แต่ถ้าเป็นห้างสรรพสินค้าถือว่ารายล้อมเลยค่ะ มีทั้งพาต้าที่สามารถเดินไปได้เลย ส่วนเซ็นทรัล เมเจอร์ ซีนิเพล็กซ์ ตลาด และเดอะเซ้นส์ก็ห่างจากโครงการไม่ถึง 1 กิโลเมตร ส่วนร้านสะดวกซื้อ 7-Eleven อยู่ถัดไปจากพาต้านิดหน่อยแต่ก็ยังพอเดินได้ไม่ได้ไกลมาก จะเห็นได้ว่าทิศตะวันตกเฉียงเหนือจะติดกับคอนโดลุมพินี แต่ตัวโครงการออกแบบมาให้ส่วนกลางอยู่ในทิศนี้ จึงทำให้ทุกๆ ยูนิตได้วิวที่ดีไม่อึดอัดค่ะ
    อาคารและตัวโครงการโดยรวม - ตัวโครงการเป็นอาคารสูง 22 ชั้น+ชั้นใต้ดิน 1 ชั้น จำนวน 1 อาคาร รวมห้องชุดพักอาศัย 964 ยูนิต และร้านค้า 4 ยูนิต รวมทั้งหมด 968 ยูนิต บนพื้นที่ 4-0-38 ไร่ แบ่งพื้นที่ส่วนกลางออกเป็น 3 ส่วน ตั้งแต่ชั้น G โดยมีพื้นที่สีเขียวเป็นสวนพักผ่อน (Relaxing Court) และสนามแบดมินตัน ซึ่งก็รวมบริการในอาคารอื่นๆ อีก เช่น Laundry Room, Mail Room, Lobby และ ลิฟต์โดยสาร มี 4 ตัว แบ่งออกเป็น 2 ฝั่ง ฝั่งละ 2 ตัว คิดเป็นอัตราส่วน 241 ยูนิต ต่อ ลิฟต์ 1 ตัว และมีลิฟต์บริการ 1 ตัว ขึ้นไปที่ส่วนกลางชั้น 5 ชั้นนี้จะเป็น Facility แบบ Full Option ที่รวมเอาสิ่งอำนวยความสะดวกมาไว้ที่นี่ค่ะ เริ่มกันที่สระว่ายน้ำ มี 3 สระ ได้แก่ The Pool, Kids Pool และ Relaxing Pool ตรงข้ามกันเป็นห้องฟิตเนส และซาวน่าแยกชาย-หญิง ส่วนอีกฝั่งเป็น The Club รวมพื้นที่ที่เป็นในส่วนของห้องนั่งเล่นขนาดใหญ่ ประกอบด้วยห้องอ่านหนังสือ และห้องสันทนาการ ห้องอเนกประสงค์ ห้องทำงาน ห้องเกม และโต๊ะพูล โดยรวมจะมีความเหมือนกับโครงการ พลัม คอนโด เซ็นทรัล สเตชั่น (Plum Condo Central Station) ค่ะ
    รูปแบบห้องและวัสดุ - ลักษณะ Layout ของพลัมโครงการนี้จะเป็นแบบเดียวกันกับ พลัม คอนโด เซ็นทรัล สเตชั่น (Plum Condo Central Station) และให้เฟอร์นิเจอร์บิวท์อิน แบบ Fully Fitted ห้องพักอาศัยจะมีทั้งหมด 3 Type ได้แก่ แบบ 1 ห้องนอน มีขนาด 24.5 ตร.ม. กับ 26.5 ตร.ม. และ แบบ 2 ห้องนอน (Combine) ขนาด 49.5 ตร.ม. และในทุกยูนิตมีเพดานสูง 2.55 เมตร พื้นเป็นลามิเนต หนา 8 มม. ชุดเคาน์เตอร์ครัวได้ไซส์ขนาดมาตรฐาน เป็นครัวแบบเปิด วอลล์เปเปอร์ให้สีขาวออกครีม และแบรนด์สุขภัณฑ์สำหรับห้องน้ำจะเป็นของ Cotto หรือเทียบเท่า ส่วนโปรโมชั่นวันพรีเซลจะให้ Hob Hood ตู้เสื้อผ้า built in และเครื่องปรับอากาศมาด้วยค่ะ
    สถานะปัจจุบันของโครงการ
    โครงการ พลัมคอนโด ปิ่นเกล้า สเตชั่น (Plum Condo Pinklao Station) เริ่มเปิดให้ลงทะเบียนและชมห้องตัวอย่างตั้งแต่วันที่ 4 มิ.ย. 59 ที่ผ่านมา และจะเปิดพรีเซลในวันที่ 6 สิงหาคม 59 นี้ คาดว่าจะเริ่มก่อสร้างประมาณเดือนตุลาคม 2559 และคาดว่าจะแล้วเสร็จประมาณเดือนกรกฎาคม 2561 
    สอบถามข้อมูลเพิ่มเติมได้ที่ โทร. 1739 หรือ www.pruksa.com

    รีวิว-พรีวิวล่าสุดอื่นๆ

    คอนโดติดรถไฟฟ้าล่าสุด

เว็บไซต์นี้มีการเก็บคุกกี้เพื่อเพิ่มความพึงพอใจในการใช้งานเว็บไซต์ และช่วยให้เราปรับปรุง และนำเสนอเนื้อหาตรงตามความสนใจของท่าน ท่านสามารถดู Privacy Notice และ ดู Cookies Policy ของเราได้ ที่นี่ ทั้งนี้ ท่านจะยินยอมให้เราเก็บคุกกี้ทั้งหมด หรือให้เก็บแค่บางส่วนโดยการคลิกเลือก ตั้งค่า

ท่านสามารถเลือกให้ความยินยอมการเก็บคุกกี้เป็นเรื่องๆ ได้ที่นี่

เมื่อคุณเข้าชมเว็บไซต์ หรือแอปพลิเคชั่น checkraka เราอาจจัดเก็บ หรือดึงข้อมูลจากเบราว์เซอร์ของคุณในรูปแบบของคุกกี้ และเทคโนโลยีอื่นที่คล้ายคลึง เช่น tag และ pixel (เรียกรวมกันว่า “คุกกี้”) ซึ่งมักเป็นข้อมูลที่ไม่สามารถระบุตัวตนได้โดยตรง แต่ช่วยให้คุณใช้งานเว็บไซต์ได้ปลอดภัย และตรงตามความต้องการมากขึ้น คุณอาจไม่ยินยอมให้เราเก็บคุกกี้บางประเภทได้ โดยการคลิกตามหัวข้อข้างล่างนี้

ประเภทคุกกี้
อ่านเพิ่มเติม ที่นี่
ยินยอม / ไม่ยินยอม
คุกกี้ที่จำเป็นต้องมีเสมอ
(Strictly Necessary)
คุกกี้สำหรับการใช้งานเว็บไซต์
(Functionality)
คุกกี้เพื่อเพิ่มประสิทธิภาพและวิเคราะห์
(Performance & Analytics)
คุกกี้เพื่อการตลาด
(Marketing)