ประเมินวงเงินรู้ผลใน 3 นาที
กับ กรุงศรี ออโต้ พร้อมสตาร์ท

เริ่มประเมินวงเงินพร้อมสตาร์ท
ผ่านมือถือ สแกนเลย

ดูวงเงินพร้อมสตาร์ทที่ได้รับ

  • คอนโด
  • คอนโด
  • ค้นหาแบบละเอียด
  • รีวิว-เยี่ยมชม โนเบิล รีวอลฟ์ รัชดา 2 (Noble Revolve Ratchada 2)

    19 ม.ค. 60 16,263
    รีวิว-เยี่ยมชม โนเบิล รีวอลฟ์ รัชดา 2 (Noble Revolve Ratchada 2)
    วันนี้เช็คราคา.คอม จะพาทุกท่านไปเยี่ยมชมคอนโดมิเนียมที่อยู่ในสุดยอดทำเลศักยภาพ เรียกได้ว่าเป็น "ไข่แดง รัชดา" ได้เลยค่ะ และยังอยู่ในย่านธุรกิจการค้า (CBD) แห่งใหม่ของกรุงเทพฯ ติด MRT ศูนย์วัฒนธรรม เกริ่นขนาดนี้จะเป็นที่ไหนไม่ได้นอกจากโครงการ โนเบิล รีวอลฟ์ รัชดา 2 (Noble Revolve Ratchada 2) คอนโดสูง 42 ชั้น รายล้อมด้วยห้างสรรพสินค้า อาคารสำนักงาน และสถานศึกษา จะน่าอยู่ขนาดไหนไปชมกันเลยค่ะ 
    ข้อมูลโครงการ
    • เจ้าของและผู้พัฒนาโครงการ : บริษัท โนเบิล ดีเวลลอปเมนท์ จำกัด (มหาชน) 
    • ที่ตั้งโครงการ : ซอยรัชดาภิเษก 6 ถนนรัชดาภิเษก แขวงห้วยขวาง เขตห้วยขวาง กรุงเทพฯ
    • อาคารชุดพักอาศัยสูง : 42 ชั้น 1 อาคาร ห้องชุดพักอาศัย จำนวน 755 ยูนิต
    • ขนาดที่ดินทั้งโครงการ : 3-1-66.2 ไร่
    • ลิฟต์ : ลิฟต์โดยสารแบบล็อคชั้น 4 ตัว และลิฟต์บริการ 1 ตัว
    • ห้องแต่งครบ แบบ 1 ห้องนอน ขนาดประมาณ 22-26 ตร.ม. และ แบบ 2 ห้องนอน ขนาดประมาณ 38 - 52 ตร.ม.
    • ที่จอดรถ : ประมาณ 40% 
    • ราคาเริ่มต้น : 3.9 ล้านบาท (ข้อมูล ณ 15 ก.ย. 59)
    • คาดว่าจะแล้วเสร็จประมาณปี 2560
    • วันที่เข้าเยี่ยมชม-รีวิวคอนโด 26 พ.ค. 59
    เจ้าของและผู้พัฒนาโครงการ
    บริษัท โนเบิล ดีเวลลอปเมนท์ จำกัด (มหาชน) ก่อตั้งในปี 2534 ด้วยกลุ่มนักธุรกิจไทย ที่มีวิสัยทัศน์กว้างไกล ธุรกิจของโนเบิล คือการพัฒนาอสังหาริมทรัพย์ในประเทศไทย โดยเน้นที่การพัฒนาที่อยู่อาศัย โครงการทุกโครงการของโนเบิล คือภาพสะท้อนของแนวคิด และปฏิญญาที่บุคลากรของโนเบิลทุกคนยึดถือ ความแปลกใหม่ ที่สามารถตอบสนองความต้องการ และรูปแบบการใช้ชีวิต ของโลกยุคปัจจุบัน คือส่วนหนึ่งของการออกแบบ ที่อยู่อาศัยของโนเบิล ความคิดริเริ่มที่มีเอกลักษณ์ ปรากฏอยู่ในบ้านทุกๆหลัง ความพอใจที่เกินความคาดหมายของลูกค้า
    ทำเลที่ตั้ง
    โครงการ โนเบิล รีวอลฟ์ รัชดา 2 (Noble Revolve Ratchada 2) อยู่ติดถนนรัชดาภิเษก แขวงห้วยขวาง เขตห้วยขวาง กรุงเทพมหานคร เดินไม่กี่ก้าวก็ถึงรถไฟฟ้า MRT สถานีศูนย์วัฒนธรรมแห่งประเทศไทย และยังเป็นจุดเชื่อมต่อรถไฟฟ้าสายสีส้มในอนาคตอีกด้วยค่ะ ถนนรัชดาภิเษกและรอบๆ มีสถานที่สำคัญมากมาย อาทิ ศูนย์วัฒนธรรมแห่งประเทศไทย เอสพลานาด เดอะ สตรีท บิ๊กซี รัชดาฯ ฟอร์จูนทาวเวอร์ เซ็นทรัลพระราม 9 ฯลฯ

    แผนที่โครงการ โนเบิล รีวอลฟ์ รัชดา 2

    ภาพแผนที่โครงการแจกแจงให้เห็นระยะใกล้-ไกลของโครงการ กับสถานที่ หรือ Landmark รอบๆ โครงการที่น่าสนใจ
    Google Map พิกัด : 13.763875,100.569108

    อาคาร AIA ห่างจากโครงการประมาณ 200 เมตร

    อาคารตลาดหลักทรัพย์ ห่างจากโครงการประมาณ 300 เมตร

    เอสพลานาด ซีนีเพล็กซ์ รัชดาภิเษก ห่างจากโครงการประมาณ 300 เมตร

    อาคารทรู ห่างจากโครงการประมาณ 350 เมตร

    ตลาดนัดรถไฟ รัชดาฯ ห่างจากโครงการประมาณ 450 เมตร

    สถานทูตจีน ห่างจากโครงการประมาณ 450 เมตร

    เซนทรัล พลาซ่า พระราม 9 ห่างจากโครงการประมาณ 750 เมตร

    เดอะ สตรีท 
    ห่างจากโครงการประมาณ 850 เมตร

    ฟอร์จูน ทาวน์ ห่างจากโครงการประมาณ 1 กิโลเมตร
    การเดินทางเข้า-ออกโครงการ
    1. เดินทางด้วยรถยนต์ส่วนตัว
    การเดินทางด้วยรถยนต์สามารถมาได้หลายเส้นทาง โดยมีเส้นทางหลักดังต่อไปนี้ค่ะ
    เส้นทางที่ 1 - ขาเข้าโครงการจากแยกพระราม 9
    ไปดูการเดินทางจากแยกพระราม 9 กันเลยค่ะ

    เมื่อถึงแยกพระราม 9 ให้ตรงไปค่ะ ทางซ้ายมือจะเป็นฟอร์จูน ส่วนอีกฝั่งเป็นเซ็นทรัล พระราม 9

    ตรงไปเรื่อยๆ ซ้ายมือจะเจอสถานทูตจีน

    ติดกับสถานทูตเป็นอาคารตลาดหลักทรัพย์ และถัดไปก็เป็นอาคาร AIA ค่ะ

    ขับตรงไปเรื่อยๆ มุ่งหน้าสู่แยกเทียมร่วมมิตร จากเอสพลานาดให้ตรงไปอีกประมาณ 550 เมตร

    กลับรถที่แยกเทียมร่วมมิตร

    เลี้ยวซ้ายเข้ารัชดาฯ ซอย 6 สำนักงานขายตั้งอยู่บริเวณหน้าโครงการ Noble Revolve Ratchada 
    เส้นทางที่ 2 - ขาเข้าโครงการจากแยกรัชดา-ลาดพร้าว
    เส้นทางที่ 1 - ขาออกโครงการเพื่อเข้าเมือง (ไปดินแดง-อโศก-เพชรบุรี )
    เส้นทางที่ 2 - ขาออกโครงการเพื่อออกเมือง (ไปพหลโยธิน-วิภาวดี-ลาดพร้าว )
    2. เดินทางด้วยรถไฟฟ้า
    MRT สายสีน้ำเงิน
    สามารถเดินทางโดยใช้รถไฟฟ้าใต้ดิน MRT สายสีน้ำเงิน "สถานีศูนย์วัฒนธรรมฯ" ทางออกที่ 2 ค่ะ ออกมาเดินมาอีกประมาณ 80 เมตรก็ถึงโครงการแล้ว

    แผนที่บริเวณ MRT สถานีศูนย์วัฒนธรรมฯ ให้ใช้ทางออกที่ 3  
    ขอบคุณภาพจาก www.bangkokmetro.co.th
    - MRT สายสีส้ม
    นอกจากการเดินทางจะสะดวกด้วย MRT สายสีน้ำเงิน สถานีศูนย์วัฒนธรรมแล้ว สถานีนี้ยังเป็นจุดเชื่อมต่อกับรถไฟฟ้าสายสีส้มในอานาคตอีกด้วยค่ะ 

    แผนที่จำลองรถไฟฟ้า 4 สาย
     
    (คลิกเพื่อชมภาพขนาดใหญ่)

    ภาพจากสถานีรถไฟฟ้าใต้ดินศูนย์วัฒนธรรมฯ จำลองบริเวณจุดเชื่อมต่อกับสายสีส้มในอนาคต
    สภาพแวดล้อมใกล้เคียง
    ตัวโครงการเรียกได้ว่าอยู่ใจกลางเมือง แถมอยู่เกือบๆ ริมถนนด้วยรอบๆ โครงการจะสลับไปมาระหว่างอาคารสำนักงาน ห้างสรรพสินค้า ร้านอาหาร ร้านสะดวกซื้อค่ะ 


    ที่กำลังก่อสร้างอยู่คือโครงการโนเบิล รีวอลฟ์ รัชดา ค่ะ ส่วนโนเบิล รีวอลฟ์ รัชดา 2 จะอยู่ข้างๆ กัน

    เดินออกมาไม่กี่ก้าวก็ถึงริมถนนรัชดาภิเษกค่ะ

    เราเดินไปดูทางขวามือกันก่อน

    ติดกับโครงการคืออาคารจอดรถของ MRT ค่ะ

    MRT ทางออกที่ 2 ห่างจากโครงการประมาณ 80 เมตร 

    ข้ามมาอีกฝั่งจะเป็นเอสพลานาด รัชดาค่ะ ช่วงเย็นไปจนถึงตอนค่ำจะมีอาหาร เสื้อผ้า มาขายบริเวณนี้ด้วย

    เดินมุ่งหน้าไปแยกเทียมร่วมมิตร ถัดจากเอสพลานาดมีร้านสะดวกซื้อของเกาหลี "K Market"

    อาคารสำนักงาน RS Tower 

    ถัดมาเป็นไทยประกันชีวิต

    เดินมาเรื่อยๆ เจอลานกว้างๆ ค่ะ ป้ายเขียนว่าตลาดนัด รัชดา น่าจะเปิดช่วงเย็นๆ 

    บิ๊กซี เอ็กซ์ตร้า ก็อยู่ไม่ไกลสามารถเดินมาได้

    ห้างสรรพสินค้าแห่งใหม่ของรัชดา "The Street" ที่รวบรวมสินค้าไว้ครบทั้งของใช้ เครื่องระดับ เสื้อผ้า ร้านอาหาร

    ย้อนกลับมาดูฝั่งซ้ายมือกันบ้างค่ะ ทางนี้เราจะมุ่งหน้าไปแยกพระราม 9

    มีร้านอาหารริมทางใกล้ๆ โครงการ

    อาคาร TRUE

    ระหว่างทางมีร้านอาหารริมทางอยู่เรื่อยๆ ค่ะ

    รัชดา ซอย 4 มีร้านอาหารและ Pub ครึกครื้นช่วงเย็นไปจนถึงค่ำ

    ศูนย์อาหารรัชดาสถานที่ฝากท้องของคนทำงานย่านนี้

    ถัดไปเป็นโชว์รูมโตโยต้าค่ะ

    ฝั่งตรงข้ามเป็น Fortune Town ด้านในมีโลตัส และสินค้าไอที และร้านอาหารมากมาย

    อาคารสำนักงาน Unicity

    เดินมาเรื่อยๆ จนถึงแยกพระราม 9 ปิดท้ายด้วยเซ็นทรัล พระราม 9 ค่ะ
    รูปแบบตึก และตัวโครงการโดยรวม
    โครงการนี้ เป็นคอนโดมิเนียมแบบ High Rise 1 อาคาร มีความสูง 42 ชั้น รวมห้องพักอาศัยทั้งหมด 755 ยูนิต และร้านค้าที่ยังไม่ระบุ
    ทิศเหนือ : หันหน้าไปเจอเอสพลานาด และ Big C
    ทิศใต้ : หันหน้าไปเจอเบ็ล อเวนิว และ The nine
    ทิศตะวันออก : หันหน้าไปทางอสมท. และถนนหลังศูนย์วัฒนธรรม
    ทิศตะวันตก : หันหน้าไปเจอคอนโดไอวี่ และตึก True

    ชั้น G จะประกอบไปด้วยสวนหย่อมล้อมรอบตัวโครงการ

    ชั้น 6 ประกอบไปด้วย สระว่ายน้ำ, ลิฟต์โดยสาร 4 ตัว (แบบล็อคชั้น)
    และลิฟต์ขนของ 1 ตัว, ฟิตเนส, สวนหย่อม และห้องพักอาศัยมี 11 ยูนิต

    ชั้น 7 - 41 เป็นห้องพักอาศัยทั้งหมด เฉลี่ยชั้นละ 21 ยูนิต

    มองจากฝั่งตรงข้ามถนนรัชดา ซ้ายมือคือโครงการรุ่นพี่ Noble Revolve Ratchada และขวามือเป็น Noble Revolve Ratchada 2 ใช้ทางเข้าร่วมกัน (ซอย 6) มีทางเข้า-ออกทางเดียว
    โดยมีระยะห่างจาก MRT ศูนย์วัฒนธรรมเพียง 80 เมตร

    ทั้ง 2 โครงการใช้พื้นที่ร่วมกัน แต่มีระยะห่างกันพอสมควรระหว่างอาคารต่ออาคารประมาณ 26 เมตร
    ส่วนกลางและสิ่งอำนวยความสะดวก
    สิ่งอำนวยความสะดวกโครงการ อยู่ที่บริเวณชั้น 6 ทั้งหมด โดยจะแยกโซนออกจากส่วนของผู้พักอาศัย 
    • สระว่ายน้ำ แบบ Infinity Edge Pool
    • ฟิตเนส พร้อมอุปกรณ์                               
    • กล้องวงจรปิด CCTV 
    • ระบบรักษาความปลอดภัย 24 ชั่วโมง
    • ประตู Key Card
    • สวนหย่อม
    • ห้องซักรีด
    • ร้านค้า-ร้านอาหาร ในโครงการ

    ภาพโมเดลโครงการแสดงที่จอดอดรถมีทั้งหมด 40% (รวมจอดซ้อนคัน) มีตั้งแต่ชั้น G และชั้น 2 - 5

    ถัดขึ้นไปเป็นชั้น 6 ที่รวมเอา Facility ได้แก่ สระว่ายน้ำ ฟิตเนส และสวนหย่อมรวมไว้ในชั้นนี้

     Facility ชั้นบนสุดจะถูกจัดให้เป็นสวนหย่อมขนาดเล็ก 2 ฝั่งค่ะ

    สระว่ายน้ำแบบ Infinity Edge Pool ขนาด 8 x 22 x 1.3 ม. พร้อมสระเด็ก

    ห้องฟิตเนสที่ออกแบบให้กระจกมีความสูงเสมอเพดานและยังได้รับวิวจากสระว่ายน้ำ

    พื้นที่สีเขียวของสวนหย่อมจะอยู่คนละฝั่งกับสระว่ายน้ำค่ะ

    ในส่วนของสวนจะถูกตกแต่งด้วยเก้าอี้ม้านั่งแบบง่ายๆ เพื่อไม่ให้ถูกรบกวนด้วยการจัดวางของที่นั่งมากเกินไป

    จุดนี้เป็นอีกหนึ่งมุมพักผ่อนที่อยู่ชั้นบนสุดของตึก
    ภาพห้องตัวอย่าง และ Lay out
    ห้องของโครงการนี้ขายแบบ Fully Furnished
    ขนาด 1 ห้องนอน : 22-26 ตร.ม.
    1. A1 : 22.58 ตร.ม. (คลิกเพื่อชมตัวอย่างแปลนห้องขนาดใหญ่)
    2. A2 : 25.32 ตร.ม. (คลิกเพื่อชมตัวอย่างแปลนห้องขนาดใหญ่)
    3. A3 : 26.73 ตร.ม. (คลิกเพื่อชมตัวอย่างแปลนห้องขนาดใหญ่)
    4. A4 : 26.67 ตร.ม. (คลิกเพื่อชมตัวอย่างแปลนห้องขนาดใหญ่)
    5. A6 : 25.26 ตร.ม. (คลิกเพื่อชมตัวอย่างแปลนห้องขนาดใหญ่)
    6. A7 : 25.24 ตร.ม. (คลิกเพื่อชมตัวอย่างแปลนห้องขนาดใหญ่)
    7. A8 : 25.24 ตร.ม. (คลิกเพื่อชมตัวอย่างแปลนห้องขนาดใหญ่)
    8. A9 : 25.34 ตร.ม. (คลิกเพื่อชมตัวอย่างแปลนห้องขนาดใหญ่)
    9. A10 : 22.37 ตร.ม. (คลิกเพื่อชมตัวอย่างแปลนห้องขนาดใหญ่)
    10. A11 : 25.07 ตร.ม. (คลิกเพื่อชมตัวอย่างแปลนห้องขนาดใหญ่)
    11. A12 : 25.95 ตร.ม. (คลิกเพื่อชมตัวอย่างแปลนห้องขนาดใหญ่)
    12. A12X : 25.92 ตร.ม. (คลิกเพื่อชมตัวอย่างแปลนห้องขนาดใหญ่)
    13. A14 : 25.67 ตร.ม. (คลิกเพื่อชมตัวอย่างแปลนห้องขนาดใหญ่)
    14. A15 : 25.67 ตร.ม. (คลิกเพื่อชมตัวอย่างแปลนห้องขนาดใหญ่)
    15. A18 : 25.14 ตร.ม. (คลิกเพื่อชมตัวอย่างแปลนห้องขนาดใหญ่)
    16. A19 : 25.24 ตร.ม. (คลิกเพื่อชมตัวอย่างแปลนห้องขนาดใหญ่)
    17. A20 : 25.24 ตร.ม. (คลิกเพื่อชมตัวอย่างแปลนห้องขนาดใหญ่)
    18. A21 : 25.14 ตร.ม. (คลิกเพื่อชมตัวอย่างแปลนห้องขนาดใหญ่)
    สำหรับห้องตัวอย่างที่ทางโครงการจัดไว้ให้จะมีแบบ 1 ห้องนอน และ2 ห้องนอนค่ะ ไปชมแบบ 1 ห้องนอนกันก่อนเลย

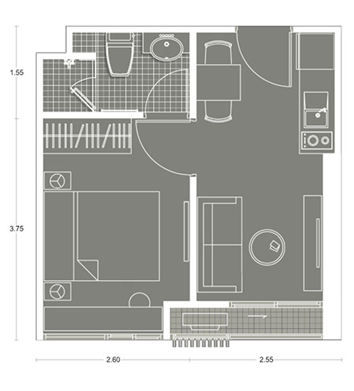
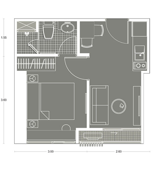
    Plan แบบ 1 ห้องนอน ขนาด 25.24 ตร.ม.

    เริ่มกันที่ห้องขนาด 25.24 ตารางเมตร เป็นห้องแบบ 1 ห้องนอน

    ห้องนี้ตกแต่งด้วยเฟอร์นิเจอร์ของ Moda สไตล์สีไม้ทั้งห้อง พื้นลามิเนตหนา 8 มม.
    ระยะความสูงจากพื้นถึงเพดาน 2.60 ม. เมื่อเปิดประตูเข้ามาจะเจอกับโซนห้องครัวก่อน
    โครงการให้โต๊ะรับประทานอาหารสำหรับ 2 ที่นั่ง ตามรูปค่ะ

    จากภาพซ้ายมือเป็นเคาน์เตอร์ครัวประกอบไปด้วยก๊อก+ซิงค์ล้างจานมีช่องสำหรับวางไมโครเวฟด้านบน
    และเครื่องซักผ้าฝาหน้าด้านล่าง ส่วนทางด้านขวามือเป็นเคาน์เตอร์ขนาดเล็กสำหรับวาง Hob+Hood 
    และช่องสำหรับวางตู้เย็น โปรโมชั่นสำหรับช่วงนี้ที่จะได้คือ เคาน์เตอร์, ตู้ Built-in, Hob+Hood,
    ไมโครเวฟ, เครื่องซักผ้าฝาหน้า และตู้เย็น

    เมื่อเปิดตู้ Built-in ด้านบนฝั่งตู้เย็นจะเป็นช่องสำหรับวางถ้วยชาม 3 ช่อง ตู้บานเปิดแบบ Soft Closed

    ส่วนชั้นด้านล่างเป็นเตาไฟฟ้าของ MEX จะมีไว้สำหรับเก็บช้อน, ส้อม และมีด ค่ะ

    มาทางด้านฝั่งที่วางไมโครเวฟกันบ้าง ตู้ชั้นบนเป็นตู้บานเปิดแบบ Soft Closed เช่นกัน

    ได้ซิงค์ล้างจานและเคาน์เตอร์ Top ทั้ง 2 ฝั่งปิดผิวด้วยหินแกรนิตสังเคราะห์สีดำค่ะ

    ด้านล่างของซิงค์ล้างจานก็เป็นตู้สำหรับเก็บของ

    ภาพมุมกว้างที่เห็น Layout ชัดๆ ของห้องโดยแยกโซนออกอย่างชัดเจนเริ่มจากห้องครัว, โต๊ะรับประทานอาหาร,
    ห้องรับแขก, ห้องนอน และห้องน้ำ

    จากห้องตัวอย่างนี้ระหว่างห้องรับแขกกับห้องนอนทางโครงการแต่งด้วยกระจกใสแต่ห้องจริงที่ได้จะเป็นผนังฉาบเรียบค่ะ

    ระเบียงที่อยู่ทางห้องรับแขกมีความกว้างประมาณนี้ค่ะ

    ชุดรับแขกไม่ว่าจะเป็นโซฟา, ชั้นวางทีวี, ผ้าม่าน และโต๊ะกลางทางโครงการให้ทั้งหมดค่ะ

    ภายในห้องนอนมีขนาดพอประมาณมีระยะทางเดินที่ไม่แคบจนเกินไป
    และจะได้เตียงขนาด 5 ฟุต กับโต๊ะข้างหัวเตียงด้วยค่ะ

    ชั้นวางของไซส์ยาวที่เห็นใกล้กับหน้าต่างภายในห้องนอนทางโครงการ Built-in ให้อยู่ข้างเตียงเป็นได้ทั้ง
    ชั้นวางของหรือจะเป็นโต๊ะเขียนหนังสือก็ได้
    ค่ะ

    พร้อมด้วยตู้เสื้อผ้าแบบ Built-in ขนาดพอดี ถัดไปเป็นห้องน้ำที่อยู่ภายในห้องนอน

    ภายในห้องน้ำประกอบด้วยสุขภัณฑ์ของ Nahm, ก๊อกน้ำ+ฝักบัว ของ Grohe,
    เคาน์เตอร์ล้างหน้า+กระจกเงายาวเต็มพื้นที่ของ Christina

    แยกโซนเปียก-แห้งด้วย Shower Box สำหรับบางยูนิตที่ติดในเรื่องของโครงสร้างตึกทางโครงการจะบิ้วท์
    ช่องสำหรับเก็บของให้ตามรูปค่ะ
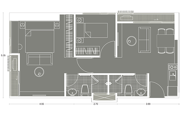
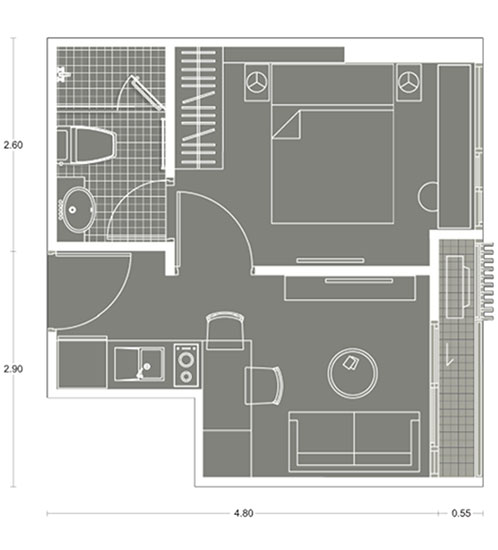
    ต่อไปจะเป็นห้องแบบ 2 ห้องนอน ขนาด 52.77 ตารางเมตรค่ะ

    Plan ห้องแบบ 2 ห้องนอน ขนาด 52.77 ตร.ม.

    ห้องนี้จะเป็นห้องที่ทางโครงการตกแต่งให้เข้ากับ Concept เมื่อตอนเปิดตัวโครงการค่ะ เฟอร์นิเจอร์และการตกแต่งจะไม่ได้ตามแบบนี้นะคะ จะได้คล้ายๆ กับแบบ 1 ห้องนอนที่รีวิวไปแล้ว แต่เดี๋ยวเราจะพาไปชมพื้นที่ใช้สอยในห้องกันค่ะ

    เข้ามาในห้องจะเจอครัวแบบเปิดค่ะ

    ชุดครัวมีครบทั้งเตาไฟฟ้า เครื่องดูดควัน อ่างล้างจาน และยังสามารถติดตั้งเครื่องซักผ้าแบบฝาหน้า
    เพื่อประหยัดเนื้อที่ด้วยค่ะ ติดกันจะเป็นจุดวางตู้เย็น

    ชุดครัวขนาดพอดีๆ สำหรับการอยู่คอนโด 

    ด้านบนเคาน์เตอร์จะเป็นชั้นเก็บของค่ะ เอาไว้เก็บอาหารแห้งหรือเครื่องปรุง

    ส่วนด้านล่างจะเป็นลิ้นชักเก็บช้อน ส้อม จาน ชาม ใต้อ่างก็ยังเหลือพื้นที่อีกนิดหน่อย

    ติดกันกับครัวเป็นพื้นที่สำหรับวางโต๊ะรับประทานอาหารค่ะ ทางโครงการจัดวางเป็นขนาด 4 ที่ไว้เป็นตัวอย่าง

    ใครที่ชอบชมวิวตรงนี้น่าจะชอบนะคะ เพราะสามารถรับประทานอาหารพร้อมชมวิวผ่านประตูกระจกขนาดใหญ่ได้ด้วย

    ประตูจะเป็นประตูบานเลื่อน เปิดออกมาเป็นระเบียงฝั่งครัวมีราวเหล็กกันตกไว้ให้
    พื้นที่ระเบียงไม่ได้กว้างมากแต่จะเน้นพื้นที่ใช้สอยในห้องมากกว่าค่ะ

    ไปชมห้องน้ำกันต่อเลย

    พื้นที่ในห้องน้ำค่อนข้างจำกัด กระจกบานใหญ่ช่วยให้รู้สึกไม่อึดอัดมากค่ะ
    ฝั่งประตูจะเป็นอ่างล้างหน้า พร้อมตู้เก็บของด้านล่าง โถสุขภัณฑ์พร้อมสายฉีดชำระ

    ห้องน้ำวางตัวในแนวยาวเรียงกันไปเลยค่ะ ในสุดจะเป็น shower box แยกส่วนเปียกส่วนแห้ง

    ออกมาจากห้องน้ำไปชมห้องต่อไปกันเลยค่ะ ห้องที่เป็นกระจกใสๆ นั้นทางโครงการจัดเป็นห้องนั่งเล่น
    แต่จริงๆ แล้วจะมีผนังให้เป็นห้องอีก 1 ห้อง

    ภายในห้องสามารถวางโซฟาขนาดใหญ่ได้ ถ้าเป็นห้องนอนก็สามารถวางเตียงขนาด 3.5 ฟุต
    และ Built-in เฟอร์นิเจอร์เพื่อประหยัดเนื้อที่ได้อีกค่ะ 

    ต่อมาจะเป็น Master Bedroom เปิดเข้ามาจะเจอห้องน้ำที่ซ้ายมือค่ะ

    ห้องน้ำมีลักษณะเหมือนกันกับด้านนอกเลยค่ะ มาพร้อมกับอ่างล้างหน้าทรงสี่เหลี่ยมทันสมัย
    และโถสุขภัณฑ์พร้อมสายฉีดชำระ

    แยกส่วนเปียก-แห้งด้วย Shower box และมี Rain shower ให้ด้วย

    ห้องนี้มีขนาดใหญ่และโปร่งมากค่ะ พื้นที่ปลายเตียงสามารถจัดวางชุดโต๊ะและโซฟาสำหรับดูทีวีได้

    พื้นที่ข้างเตียงตกแต่งเป็นโต๊ะทำงานขนานไปกับกระจกรับแสง ทำให้ประหยัดเนื้อที่
    และยังสามารถชมวิวเปิดหน้าต่างรับลมเย็นๆ ได้อีกด้วย

    สุดผนังห้องเป็นจุดติดตั้งทีวีที่ดีเลยค่ะ เพราะสามารถนอนดูบนเตียงก็ได้ หรือจะนั่งที่โซฟาก็ได้
    ส่วนขวามือจะเป็นประตูออกไปสู่ระเบียงด้านนอก

    ประตูเป็นประตูกระจกบานเลื่อน พื้นที่ระเบียงสามารถออกมายืนเล่น รับลมเย็นๆ หรือจะปลูกดอกไม้สวยๆ ก็ได้ค่ะ
    ราคาและค่าใช้จ่ายที่เกี่ยวข้องโดยประมาณ (ณ วันที่ 15 ก.ย. 59)
    ราคาเริ่มต้น 3.9 ล้านบาท
    ค่าใช้จ่ายอื่นๆ ของโครงการ
    • ค่าส่วนกลางอัตรา 55 บาท/ตร.ม./เดือน ชำระล่วงหน้า 1 ปี
    • เงินกองทุนส่วนกลาง 600 บาท/ตร.ม. (ชำระครั้งเดียว ณ วันโอนกรรมสิทธิ์)
    • ค่าธรรมเนียมการโอนกรรมสิทธิ์ ผู้ซื้อและผู้ขายแบ่งชำระกันคนละครึ่ง
    • ค่ามิเตอร์ไฟฟ้า : ผู้จะซื้อเป็นผู้ชำระ
    ภาพรวมโดยสรุปของโครงการ
    การเดินทางเข้า-ออกโครงการ - สะดวกที่สุด คือรถไฟฟ้าใต้ดิน MRT สถานีศูนย์วัฒนธรรมค่ะ ซึ่งทางออกห่างจากโครงการประมาณ 80 เมตร เท่านั้น และสถานีนี้ยังเป็นสถานีที่เชื่อมต่อกับรถไฟฟ้าสายสีส้ม ทำให้อนาคตการเดินทางจะสะดวกและรวดเร็วขึ้นอีกมาก สามารถเดินทางไปทั่วกรุงเทพฯ ได้ในระยะเวลาอันรวดเร็ว หากใช้รถยนต์มาทางพระราม 9 ต้องไปกลับรถที่แยกเทียมร่วมมิตรค่ะ เพราะจุดกลับรถที่ใกล้ๆ กับโครงการนั้นค่อนข้างจะกระชั้นชิดเลยทีเดียว และทางเข้า-ออกโครงการนั้นต้องใช้เส้นรัชดาภิเษกเท่านั้น หากอยู่ในช่วงเวลาที่เร่งด่วนจราจรก็จะติดขัดค่ะ โดยเฉพาะอย่างยิ่งในย่านนี้จะเป็น CBD แห่งใหม่ อาคารสำนักงานมากขึ้นการจราจรก็ต้องหนาแน่นขึ้น
    ทำเลรอบโครงการ - ในปัจจุบันห้างสรรพสินค้าที่ใกล้กับโครงการมีมากถึง 5 แห่ง ไม่นับรวมตลาดนัด ร้านค้าอีกมากมาย จะซื้อของกินหรือจะชอปปิ้งก็สะดวกมากๆ ค่ะ และอย่างที่รู้กันว่าย่านนี้จะเป็น CBD แห่งใหม่ คาดการณ์ได้ว่ามูลค่าของอสังหาริมทรัพย์น่าจะสูงขึ้นเรื่อยๆ เช่นเดียวกับสีลม-สาทร หากจะซื้อเพื่อลงทุนโครงการนี้ก็นับว่าน่าสนใจมากค่ะ
    อาคารและตัวโครงการโดยรวม - เป็นคอนโด High-Rise จำนวน 1 อาคาร สูง 42 ชั้น รวมห้องพักอาศัยทั้งหมด 755 ยูนิต และ Shop สำหรับร้านค้าที่อยู่บริเวณด้านล่าง ทางด้าน Facility ที่ได้จะมาตรฐานค่ะ ได้แก่ สระว่ายน้ำระบบเกลือ แบบ Infinity Edge Pool แยกสระเด็ก ให้ด้วยเพื่อความปลอดภัย, ห้องฟิตเนส, สวนหย่อมที่มีทั้งชั้น 6 และชั้น 42 มีลิฟต์โดยสารแบบล็อคชั้นให้ 4 ตัว และลิฟต์ขนของให้ 1 ตัว อัตราส่วนการใช้ลิฟต์อยู่ที่ 106 ยูนิตต่อลิฟต์ 1 ตัว พร้อมติดตั้งกล้องวงจรปิดรอบๆ โครงการ และมีที่จอดรถบริเวณชั้น G และชั้น 2 - 5 รวมประมาณ 40% 
    รูปแบบห้องและวัสดุ - สำหรับ Layout ห้องในแต่ละยูนิตไม่ได้มีความแตกต่างกันมากนัก ยกเว้นห้องที่อยู่ชั้นเดียวกับ Facility ก็คือ ชั้น 6 จะพิเศษหน่อยเพราะเป็นแบบ Extra Terrace ซึ่งโครงการนี้จะขายแบบ Fully Furnished ให้ทุกอย่างที่ห้องตัวอย่างมีสุดยอดมั้ยคะ โดยเฟอร์นิเจอร์ที่ได้จากโครงการ ได้แก่ โซฟา, ผ้าม่าน, โต๊ะกลาง, เคาน์เตอร์ครัว, ซิงค์ล้างจาน, ไมโครเวฟ, ตู้เย็น, โต๊ะรับประทานอาหาร, ทีวี, เตียงนอน, โต๊ะข้างเตียง, Hob, Hood, Shower Box และเฟอร์นิเจอร์บิวท์อินทั้งหมดค่ะ เรียกว่าได้ประโยชน์และคุ้มค่าแบบไม่รู้จะอธิบายยังไงเลย 
    สถานะปัจจุบันของโครงการ
    ปัจจุบันโครงการ Noble Revolve  รัชดา 2 อยู่ในระหว่างดำเนินการก่อสร้าง โดยในช่วงนี้หากทำสัญญา+โอน จะฟรีในส่วนของเฟอร์นิเจอร์ และเครื่องใช้ไฟฟ้า อาทิ แอร์, เครื่องซักผ้าฝาหน้า, เครื่องดูดควัน, เตาไฟฟ้า, ไมโครเวฟ, ตู้เย็น, เคาน์เตอร์ครัว, ชุดโต๊ะเก้าอี้รับประทานอาหาร 2 ที่นั่ง, โซฟา, ทีวี, ผ้าม่าน และตู้ Built in ภายในห้อง และพิเศษสุดโนเบิลจัดแคมเปญใหญ่ "โนเบิล ดีเดย์" (NOBLE D:DAY) ในวันที่ 18-30 มิถุนายน 2559 ณ สำนักงานขาย โนเบิล รีวอลฟ์ รัชดา 2, รัชดาภิเษก ซอย 6 สามารถลงทะเบียนเพื่อรับส่วนลด 10,000 บาท ได้ที่ลิงก์ด้านล่างนี้
    • ได้ส่วนลดเงินสดวันโอนกรรมสิทธิ์*
    • ส่วนลดลงทะเบียนออนไลน์ 10,000 บาท* 
    • ฟรี ค่ากองทุนและค่าส่วนกลางสูงสุด 2 ปี*
    • ผ่อน 0% นาน 3 เดือน*
    • สำหรับท่านที่ลงทะเบียนออนไลน์ กรุณานำรหัสส่วนลดที่ได้รับทาง Email และ/หรือ SMS ไปแสดงที่สำนักงานขายที่ร่วมรายการ เพื่อรับส่วนลด 10,000 บาท* (รหัสที่ท่านได้รับสามารถนำไปใช้ได้ทุกโครงการ)
    • เงื่อนไขเป็นไปตามที่บริษัทฯ กำหนด และบริษัทฯ ขอสงวนสิทธิ์ในการเปลี่ยนแปลงเงื่อนไขโดยมิต้องแจ้งให้ทราบล่วงหน้า
    • ข้อมูลเพิ่มเติม www.noblehome.com/DDay2016
    สามารถเข้าไปชมห้องตัวอย่างได้ที่สำนักงานขาย โทร. 02-251-9955 หรือ www.noblehome.com

    รีวิว-พรีวิวล่าสุดอื่นๆ

    คอนโดติดรถไฟฟ้าล่าสุด

เว็บไซต์นี้มีการเก็บคุกกี้เพื่อเพิ่มความพึงพอใจในการใช้งานเว็บไซต์ และช่วยให้เราปรับปรุง และนำเสนอเนื้อหาตรงตามความสนใจของท่าน ท่านสามารถดู Privacy Notice และ ดู Cookies Policy ของเราได้ ที่นี่ ทั้งนี้ ท่านจะยินยอมให้เราเก็บคุกกี้ทั้งหมด หรือให้เก็บแค่บางส่วนโดยการคลิกเลือก ตั้งค่า

ท่านสามารถเลือกให้ความยินยอมการเก็บคุกกี้เป็นเรื่องๆ ได้ที่นี่

เมื่อคุณเข้าชมเว็บไซต์ หรือแอปพลิเคชั่น checkraka เราอาจจัดเก็บ หรือดึงข้อมูลจากเบราว์เซอร์ของคุณในรูปแบบของคุกกี้ และเทคโนโลยีอื่นที่คล้ายคลึง เช่น tag และ pixel (เรียกรวมกันว่า “คุกกี้”) ซึ่งมักเป็นข้อมูลที่ไม่สามารถระบุตัวตนได้โดยตรง แต่ช่วยให้คุณใช้งานเว็บไซต์ได้ปลอดภัย และตรงตามความต้องการมากขึ้น คุณอาจไม่ยินยอมให้เราเก็บคุกกี้บางประเภทได้ โดยการคลิกตามหัวข้อข้างล่างนี้

ประเภทคุกกี้
อ่านเพิ่มเติม ที่นี่
ยินยอม / ไม่ยินยอม
คุกกี้ที่จำเป็นต้องมีเสมอ
(Strictly Necessary)
คุกกี้สำหรับการใช้งานเว็บไซต์
(Functionality)
คุกกี้เพื่อเพิ่มประสิทธิภาพและวิเคราะห์
(Performance & Analytics)
คุกกี้เพื่อการตลาด
(Marketing)