ประเมินวงเงินรู้ผลใน 3 นาที
กับ กรุงศรี ออโต้ พร้อมสตาร์ท

เริ่มประเมินวงเงินพร้อมสตาร์ท
ผ่านมือถือ สแกนเลย

ดูวงเงินพร้อมสตาร์ทที่ได้รับ

  • คอนโด
  • คอนโด
  • ค้นหาแบบละเอียด
  • รีวิว-เยี่ยมชม แอชตัน สีลม (Ashton Silom)

    21 มี.ค. 59 12,095
    รีวิว-เยี่ยมชม แอชตัน สีลม (Ashton Silom)
    สวัสดีค่ะ วันนี้ Checkraka.com จะพาไปเยี่ยมชมคอนโด แอชตัน สีลม (Ashton Silom) บนทำเลทองอย่างถนนสีลม ซึ่งถือเป็นโครงการ Highlight ของปีนี้จาก "อนันดา ดีเวลลอปเม้นท์" ค่ะ คอนโด Luxury ที่โดดเด่นด้วยดีไซน์ และตั้งอยู่บนทำเลใจกลางความเจริญรอบด้านอย่างสีลม ซึ่งจัดเป็นโซนที่หาที่ดินว่างๆ ได้ยากจริงๆ แต่งานนี้ต้องยกนิ้วให้ทางอนันดาฯ ที่สามารถคว้าทำเลเด็ดๆ แบบนี้มาได้ อีกทั้งโครงการเองยังอยู่ห่างจาก BTS สถานีช่องนนทรีเพียง 350 เมตรเท่านั้น เราไปดูในโครงการกันดีกว่าค่ะว่ามีอะไรน่าสนใจบ้าง

    ข้อมูลโครงการ
    • เจ้าของและผู้พัฒนาโครงการ : บริษัท อนันดา ดีเวลลอปเม้นท์ จำกัด (มหาชน)
    • ที่ตั้งโครงการ : ถนนสีลม แขวงสีลม เขตบางรัก กรุงเทพฯ 10500
    • อาคารชุดพักอาศัย : สูง 48 ชั้น 2 อาคาร 429 ยูนิต (Shop 1 ยูนิต)
    • ขนาดที่ดินทั้งโครงการ : 2 ไร่
    • ลิฟต์โดยสาร : ลิฟต์โดยสาร 5 ตัว ลิฟต์บริการ 2 ตัว
    • ที่จอดรถประมาณ : 70% (ไม่รวมจอดซ้อนคัน)
    • ราคาเริ่มต้น 7.9 ล้านบาท (23 ก.พ. 2559)
    • สถานะโครงการ : อยู่ระหว่างดำเนินการก่อสร้าง
    • คาดก่อสร้างแล้วเสร็จ 28 ก.พ. 2562
    เจ้าของและผู้พัฒนาโครงการ
    บริษัท อนันดา ดีเวลลอปเม้นท์ จำกัด (มหาชน) เป็นบริษัทมหาชนประกอบธุรกิจพัฒนาอสังหาริมทรัพย์ และจดทะเบียนอยู่ในตลาดหลักทรัพย์แห่งประเทศไทย มีทุนจดทะเบียนทั้งสิ้น 3,636,630,000 บาท เป็นบริษัทอสังหาฯ ที่มีสโลแกนสำคัญในการพัฒนาโครงการที่พักอาศัยคือ "Live / Work / Play" (Let's live, work and play more) ปัจจุบันบริษัทฯ พัฒนาทั้งคอนโดมิเนียม และโครงการบ้านจัดสรรทั้งในกรุงเทพและปริมณฑล โดยในส่วนของคอนโดมิเนียมนั้นมุ่งเน้นไปที่โครงการในทำเลใกลรถไฟฟ้าไม่เกิน 300 เมตรกับแบรนด์ "ไอดีโอ" โครงการใหม่ที่เพิ่งเปิดตัวไป เช่น คิว ชิดลม-เพชรบุรี, ไอดีโอ คิว สยาม-ราชเทวี, ไอดีโอ คิว จุฬา-สามย่าน และไม่เกิน 600 เมตรกับแบรนด์ "เอลลิโอ" โดยคอนโดมิเนียมโครงการแรกของบริษัทฯ ที่ถูกพัฒนาขึ้นมาในปี 2550 คือโครงการ "ไอดีโอ ลาดพร้าว 17" จวบจนปัจจุบัน บริษัทฯ พัฒนาคอนโดมิเนียมมาแล้วทั้งหมดเกือบ 40 โครงการ
    ทำเลที่ตั้ง
    โครงการ แอชตัน สีลม (Ashton Silom) ตั้งอยู่ริมถนนสีลม เยื้องซอยสีลม 9 ห่างจากสถานีรถไฟฟ้า BTS ช่องนนทรี เพียง 350 ม. รวมถึงสถานีใกล้เคียงอีก เช่น BTS ศาลาแดง, BTS สุรศักดิ์ และ MRT สีลม แวดล้อมไปด้วยอาคารสำนักงาน, บริษัทชั้นนำต่างๆ, สถานทูต, โรงเรียน และโรงพยาบาลชั้นนำ

    แผนที่โครงการ "แอชตัน สีลม (Ashton Silom)"

    ภาพแผนที่โครงการแจกแจงให้เห็นระยะใกล้-ไกลของโครงการ
    กับสถานที่ หรือ Landmark รอบๆ โครงการที่น่าสนใจ (คลิกเพื่อดูภาพขยาย)
    google map พิกัด : 13.726123,100.526921

    BTS ช่องนนทรี ประมาณ 350 ม.

    BTS ศาลาแดง ประมาณ 750 ม.

    ทางเชื่อม MRT สีลมไป BTS ศาลาแดง ประมาณ 1 กม.

    แยกราชประสงค์ 2.8 กม.

    Central World ประมาณ 2.8 กม.

    สวนลุมพินี ประมาณ 1.2 กม. 
    ขอบคุณภาพจาก wikimedia.org 

    จุฬาลงกรณ์มหาวิทยาลัย 1.3 กม.
    ขอบคุณภาพจาก www.chula.ac.th

    จามจุรีสแควร์ ประมาณ 1.1 กม.

    MRT สามย่าน ประมาณ 1.1 กม.

    BTS สุรศักดิ์ ประมาณ 1 กม.

    สะพานตากสิน ประมาณ 2.2 กม.
    การเดินทาง
    1. เดินทางด้วยรถยนต์ส่วนตัว
    การเดินทางด้วยรถยนต์สามารถมาได้หลายเส้นทาง โดยมีเส้นทางหลักดังต่อไปนี้ค่ะ 
    เส้นทางเข้าที่ 1 - ขาเข้าโครงการเริ่มจากแยกศาลาแดง








    เส้นทางเข้าที่ 2 - ขาเข้าโครงการวิ่งมาจากถนนพญาไทผ่านจุฬาลงกรณ์มหาวิทยาลัย
    เส้นทางออกที่ 1 - ขาออกโครงการไปขึ้นทางด่วนขั้นที่ 2
    เส้นทางออกที่ 2 - ขาออกโครงการไปขึ้นรถไฟฟ้าที่ใกล้ที่สุด (BTS สถานีช่องนนทรี)
    สภาพแวดล้อมใกล้เคียง
    ถนนสีลมนับเป็นถนนธุรกิจสายสำคัญสายหนึ่งของกรุงเทพมหานคร (CBD) ตั้งอยู่ในเขตบางรัก กรุงเทพมหานคร มีธนาคาร โรงแรมชั้นนำ ออฟฟิศ โรงพยาบาล ตลอดจนห้างสรรพสินค้า และยังมีธนาคารพาณิชย์ทั้งของไทย และต่างประเทศ บริษัทเงินทุนหลักทรัพย์ รวมทั้งบริษัทประกันภัยต่างๆ ตั้งสำนักงานอยู่บนถนนสีลมเป็นจำนวนมาก จึงเรียกได้ว่า "ถนนสีลม" เป็นดังศูนย์กลางธุรกิจของประเทศ และรวมเอาวัฒนธรรมของหลากหลายชาติ และภาษาอยู่ในถนนเส้นนี้

    แผนที่สภาพแวดล้อมบริเวณรอบโครงการ
    อาคาร และร้านค้า ร้านอาหาร บริเวณใกล้เคียง

    กังหันลม สัญลักษณ์ของถนนสีลมตั้งอยู่ตรงแยกสีลม-นราธิวาส

    ทำเลนี้จะเต็มไปด้วยร้านค้า ร้านเสื้อผ้า และร้านอาหารต่างๆ คอยบริการพนักงานบริษัทในย่านนี้

    มีร้านขายน้ำผลไม้ และร้านชาไข่มุกเยอะแยะไปหมดเลยค่ะ

    มีร้านแลกเงิน Super rich อยู่ฝั่งตรงข้ามโครงการค่ะ

    สีลมพลาซ่า เป็นอาคารสูง 4 ชั้น ในนี้มีทั้งสำนักงาน ร้านอาหาร ร้านทำผม และมีบริการที่จอดรถด้วยค่ะ

    ภัตตาคารเชียงการีลาบริการอาหารจีนแบบโต๊ะจีนกลมๆ อยู่ติดกับโครงการค่ะ
    เมนูเด็ดๆ ก็จะเป็น ติ่มซำ, เป็ดปักกิ่ง, หมูหัน, กุ้งมังกร, เผือกทอด

    มีร้านอาหารสไตล์อินเดียด้วยค่ะ 

    เดี๋ยวเราข้ามถนนไปดูฝั่งโน้นกันดีกว่า (มุ่งหน้า BTS ศาลาแดง)

    ตึกแรกเด่นอยู่ตรงหัวมุมถนน เป็น ITF Tower

    ใต้ตึก ITF Tower ก็ยังมี Max Valu, 7-11, ร้านขายข้าวหมูแดง บะหมี่เกี๊ยว, ร้านกาแฟ, ร้านเบเกอร์รี่,
    ร้านทำผม, ร้านอาหารเวียดนาม และ ตู้ ATM ของทุกธนาคาร 

    มีร้านอาหารญี่ปุ่น ราคาพนักงานบริษัท บริการด้วยค่ะ
    รูปแบบตึก และตัวโครงการโดยรวม
    โครงการ แอชตัน สีลม (Ashton Silom) เป็นโครงการ High Rise สูง 48 ชั้น 429 ยูนิต (พักอาศัย 428 ยูนิต และ Shop 1 ยูนิต) ตั้งอยู่ติดถนนสีลม ไม่ไกลจากจุดตัดระหว่างถนนสีลมกับถนนนราธิวาสราชนครินทร์ ห่างจากรถไฟฟ้า BTS สถานีช่องนนทรีประมาณ 350 เมตร โดยตัวโครงการหันหน้าไปทางทิศใต้ (หันหน้าเข้าถนนสีลม)

    ตัวอาคารโครงการ แอชตัน สีลม (Ashton Silom)
    อาคารเป็นโทนสีเข้มๆ ขรึมๆ เน้นใช้กระจกรีเฟล็กสะท้อนแสง ลดการใช้ผนังปูนให้น้อยที่สุด

    ทิศใต้ : คือด้านหน้าโครงการฝั่งถนนสีลมค่ะ มองเห็น "ตึกมหานคร" ชัดเจนเลย
    แอบเห็นรางรถไฟฟ้าและตัวสถานีช่องนนทรีด้วย

    ทิศเหนือ : ด้านนี้จะเป็นด้านหลังโครงการค่ะ ในมุมเฉียงๆ มองเห็นโรงแรม Pullman และ M Silom

    ทิศตะวันออก : ฝั่งนี้มองเห็นตึก ITF

    ทิศตะวันตก : ฝั่งนี้มองเห็นโรงแรม Pullman แบบชัดๆ แถมด้วยวิวโค้งน้ำอยู่ลิบๆ
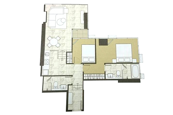
    เดี๋ยวเราไปดูในส่วนของ Floor Plan กันค่ะ ว่าอะไรน่าสนใจอยู่ตรงไหนบ้าง สำหรับโครงการแอชตัน สีลมนี้จะแบ่งอาคารพักอาศัยออกเป็น 2 ส่วน คือ South Tower และ North Tower แต่ละชั้นจะมีห้องพักเพียง 14 ห้องเท่านั้น โดยจะมีลิฟต์โดยสารและลิฟต์บริการเฉพาะในแต่ละตึก (South Tower ลิฟต์โดยสาร 2, ลิฟต์บริการ 1 และ North Tower ลิฟต์โดยสาร 3, ลิฟต์บริการ 1) ส่วนพักอาศัยจะเริ่มที่ชั้น 10-33 และ ชั้น 35-47

    Master Plan ของโครงการ แอชตัน สีลม (Ashton Silom)

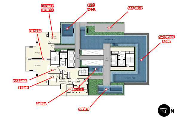
    ชั้น 34-34M เป็นชั้น Facilities เช่น สระว่ายน้ำระบบโอโซน, ฟิตเนส, ซาวน่า, ออนเซ็น, จากุซซี่, ฯลฯ

    Floor Plan ชั้น 34M อีกหนึ่งชั้น Facilities ประกอบไปด้วย พื้นที่ทำงาน, มุมภาพยนตร์ และห้องสมุด

    Floor Plan ชั้น 48 (Roof Top)
    ส่วนกลางและสิ่งอำนวยความสะดวก
    ส่วนกลางและสิ่งอำนวยความสะดวกจะกระจายตัวอยู่ที่ Ground Floor, 34-34M Floor, 48 Floor และ Roof Floor โดยส่วนกลางและสิ่งอำนวยความสะดวกประกอบไปด้วย
    Ground Floor
    • โถงต้อนรับ (Objets D'ART Lobby)
    • Waiting Lounge
    • ร้านค้า (Shop Unit)
    • ห้องพักจดหมาย (Mail Room)
    • สวนหินเล่นระดับ (Alfresco Living Plaza)
    • สวนหย่อม (Gardens)
    34-34M Floor
    • สระว่ายน้ำระบบโอโซน (Swimming Pool)
    • สระว่ายน้ำเด็ก (Kid's Pool)
    • ออนเซ็น (Onsen)
    • จากุชซี่ (Jacuzzi)
    • ห้องออกกำลังกาย (Fitness)
    • ห้องออกกำลังกายส่วนตัว (Private Fitness)
    • ห้องอบไอน้ำ (Steam Room)
    • ห้องซาวน่า (Sauna Room)
    • ห้องนวด (Massage Room)
    • ห้องสมุด (Library)
    • มุมภาพยนตร์ (Theatre Lounge)
    • พื้นที่ทำงาน (Business Lounge)
    • ลานกว้าง (Sky Deck)
    48 Floor
    • โซเชียลคลับ (Social Club)
    • พื้นที่สีเขียว (Botanical Lounge)
    Roof Floor
    • ลานกว้าง (Sky Deck)
    สำหรับที่จอดรถจะอยู่ชั้น 1-9 ค่ะ คิดเป็น 70% (ไม่รวมจอดซ้อนคัน) สำหรับในชั้น 1 (Basement Floor) มีจุดสำหรับจอดรถ Super Car โดยเฉพาะอีกด้วย

    ทางเข้า-ออกหลักของโครงการคือฝั่งถนนสีลมค่ะ

    ชั้น G ก็มี Facilities ส่วนหนึ่งค่ะ ประกอบด้วย Garden และ
    Alfresco Living Plaza พื้นที่สีเขียวหรือสวนหินเล่นระดับ

    Alfresco Living Plaza ถูกออกแบบให้เป็นพื้นที่สีเขียวหน้าโครงการ
    มีสะพานยกระดับเป็นลูกเล่นเดินข้ามไปหน้าทางเข้าอาคาร

    ลานจอดรถจะอยู่ที่ชั้น 1-9 สำหรับชั้น 1 มีจุดจอดรถ Super Car ด้วยค่ะ

    ระหว่างตึกทั้งสองจะมีระยะห่างประมาณ 3 เมตร ซึ่งช่องว่างตรงนี้จะเป็นที่แขวนคอมเพรสเซอร์แอร์ค่ะ
    ทุกห้องคอมเพรสเซอร์แอร์จะมารวมอยู่ตรงนี้

    Facilities จะอยู่บนชั้น 34-34M และชั้น 48 ค่ะ แท่งสีแดงที่อยู่ด้านบนสุดของตึกเปรียบเสมือนยอดสูง
    เป็นสัญลักษณ์โดดเด่นแบบหอไอเฟล

    บรรยากาศภายใน Sales Gallery ที่ถูกออกแบบมาเหมือนกับโถง Lobby ค่ะ
    สังเกตที่ผนังสีทอง ไม่ใช่การตกแต่งด้วยแผ่นวอลล์เปเปอร์นะคะ แต่เกิดจากการสานเส้นทองเหลืองแบบเดียวกับการทอผ้า
    ถือเป็นงาน Hand Made เจ๋งๆ ของโครงการเลยค่ะ

    รูปถ่ายด้านหลังเป็นการแสดงให้เห็นกระบวนการผลิตแต่ละขั้นตอนของงานศิลปะบนผนังค่ะ

    บรรยากาศภายใน Sales Gallery

    ภาพจำลองบรรยากาศตัวอาคารแอชตัน สีลม (Ashton Silom) และสภาพแวดล้อมโดยรอบ

    ภาพจำลอง Alfresco Living Plaza พื้นที่สีเขียวหน้าโครงการ

    ภาพจำลอง Social Club บนชั้น 48 (Roof Top)
    ภาพห้องตัวอย่างและ Lay out
    โครงการขายห้องแบบเฟอร์นิเจอร์ Built-in โดยให้ในส่วนเคาน์เตอร์ครัว (ให้ไมโครเวฟสำหรับ 2 Bedroom), เครื่องปรับอากาศ และสุขภัณฑ์ภายในห้องน้ำเท่านั้นค่ะ สำหรับห้องพักอาศัยแบ่งออก 2 แบบ คือ 1 ห้องนอน และ 2 ห้องนอน โดยมีขนาดต่างๆ ดังนี้
    ห้องแบบ 1 ห้องนอน 1 ห้องน้ำ :
    ห้องแบบ 2 ห้องนอน 2 ห้องน้ำ :
    ตัวอย่าง ห้องแบบ 1 ห้องนอน 1 ห้องน้ำ - พื้นที่ใช้สอย 48.50-49.50 ตร.ม.


    ประตูห้องจริงจะเป็น Digital Door Lock จาก Yale สำหรับพื้นปูด้วยกระเบื้องพอร์ซเลนอิตาเลียน (
    Italian porcelain)

    เข้าไปก็จะเจอห้องครัวก่อนเลย เชื่อมต่อไปยังมุมโต๊ะทานข้าว จากพื้นถึงเพดานสูง 2.7 เมตรค่ะ

    สำหรับห้องครัวทางโครงการจะ Built-in เคาน์เตอร์ครัวทำจากหินสังเคราะห์สีขาว พร้อมตู้ลอยตัว 
    และเครื่องดูดควัน Smeg มาให้ เจาะช่องสำหรับไมโครเวฟและเตาไฟฟ้า 
    อ่างล้างจานมี Top ปิดด้านบนตัวอ่าง อยู่ด้านขวามือค่ะ

    จากห้องครัวจะเป็นทางแยกค่ะ ถ้าเดินตรงไปจะเจอห้องรับแขก แต่หากเดินเลี้ยวไปทางขวามือ จะเจอห้องน้ำ
    และทางเดินเชื่อมไปห้องนอน มุมนี้สามารถ Built-in เป็น Walk-in Closet หรือตู้เก็บของก็ได้

    ออกจากห้องน้ำก็เปิดตู้คว้าเสื้อผ้าได้เลย แต่ส่วนนี้ทางโครงการไม่ได้ Built-in มาให้นะคะ
    จะได้เป็นพื้นที่โล่งๆ แทน ซึ่งเราสามารถตกแต่งได้ตามใจชอบค่ะ

    ห้องน้ำปูพื้นด้วยกระเบื้องหินอ่อนสีขาว สุขภัณฑ์จาก Kohler และ Grohe
    แยกส่วนแห้งกับส่วนเปียกชัดเจน มีฉากกั้นอาบน้ำและ Sexy Bath

    Rain Shower และก๊อกน้ำร้อนกับน้ำเย็น

    มาถึงส่วนห้องนอน สำหรับห้องตัวอย่างนี้ออกแบบตามสไตล์หนุ่มโสด Biker แมนๆ เท่ๆ
    ซ้ายมือจะเป็นกระจกสูงจรดเพดาน Take View กันเต็มตา

    ด้านข้างหลังจากวางเตียงนอนแล้ว ยังเหลือที่ว่างให้ตั้งโต๊ะทำงานหรือโซฟาสำหรับนั่งชมวิวได้อีก
    กระจกสูงช่วยให้ห้องดูโปร่งโล่งพร้อมเปิดรับแสงธรรมชาติ

    มีฉากกั้นระหว่างห้องนอนและห้องรับแขกมาให้ด้วยนะคะ โดยจะเป็นแผ่นไม้ทึบสูงจรดเพดาน
    เราสามารถเปิด-ปิดได้ตามใจชอบ

    ส่วนของห้องรับแขกและห้องนอน ความสูงจากพื้นถึงเพดานอยู่ที่ 3 เมตรค่ะ
    ประตูออกไประเบียงเป็นประตูกระจกสูงจรดเพดาน
    เช่นเดียวกับกระจกในห้องนอน 
    สำหรับพื้นปูด้วย Engineered Wood แอร์แบบฝังฝ้า และไฟดาวน์ไลท์ค่ะ

    วางโซฟาแล้วมีระยะห่างจากโทรทัศน์เยอะทีเดียว สำหรับเฟอร์นิเจอร์และผ้าม่าน ทางโครงการไม่ได้ให้เช่นกันค่ะ

    ระเบียงของโครงการแอชตัน สีลม ไม่ใช่ระเบียงแบบซี่รั้วทั่วไป แต่เป็นระเบียงที่ทำจาก "กระจก"
    ความสูงของระเบียง 150 เซนติเมตร จะสังเกตว่าโครงสร้างๆ หลายส่วนของห้องจะลดการใช้ผนังปูน
    แล้วมาเน้นเติมเต็มด้วยกระจกแทน

    ภาพรวมพื้นที่ใช้สอยต่างๆ ภายในห้อง
    ตัวอย่าง ห้องแบบ 2 ห้องนอน 2 ห้องน้ำ - พื้นที่ใช้สอย 71.50 - 72.00 ตร.ม.

    ประตูห้องจริงจะเป็น Digital Door Lock จาก Yale เช่นเดียวกับห้องแบบ 1 ห้องนอนค่ะ

    เดินเข้ามาจะเจอห้องครัวด้านซ้ายมือ และห้องรับแขกด้านขวามือค่ะ ประตูกระจกด้านหลังเปิดทะลุไประเบียงได้
    ความสูงจากพื้นถึงเพดาน 3.6 เมตร พื้นปูด้วยกระเบื้องพอร์ซเลนอิตาเลียน (Italian porcelain)

    ห้องรับแขกจะมีกระจกบานเลื่อนเข้ามุม ที่สามารถเลื่อนเปิด-ปิด รับอากาศจากภายนอกได้

    ห้องครัวกว้างขวางทีเดียวค่ะ วางโต๊ะทานข้าว 4 ที่นั่งได้สบายๆ
    อ่างล้างจานจะมี Top แผ่นหินสังเคราะห์สีขาวปิดตัวอ่าง มีเครื่องดูดควัน Smeg
    และพิเศษสำหรับห้อง 2 Bedroom จะมีเตาไฟฟ้ากับไมโครเวฟ Built-in มาให้ด้วย

    ทางเชื่อมไปห้องน้ำ, ห้องนอนเล็ก และห้องนอนใหญ่ ความสูงจากพื้นถึงเพดาน 2.7 เมตร

    ห้องน้ำสุขภัณฑ์จาก Kohler และ Grohe มีฉากกั้นอาบน้ำและจัดเต็มด้วยกระจกบานใหญ่

    เดินออกจากห้องน้ำ ขวามือจะเป็นห้องนอนเล็กซึ่งจะตกแต่งเป็นห้องนอนหรือห้องทำงานก็ได้
    มีประตูกระจกสามารถเปิดออกไปที่ระเบียงได้เช่นกันค่ะ

    ถัดมาจะเป็นห้องนอนใหญ่ค่ะ ซึ่งจะมีห้องน้ำอีกห้องและมีมุม Walk-in Closet ด้านซ้ายมือ

    พื้นที่ว่างสามารถ Built-in เป็นมุมเก็บของหรือ Walk-in Closet ได้

    ห้องน้ำในตัวของห้องนอนใหญ่ มีจากุซซี่ด้วย

    สำหรับห้องนอนใหญ่ ผนังส่วนใหญ่ก็ยังเน้นความเป็นกระจกเช่นเดิมค่ะ
    กระจกเข้ามุมรูปตัว L สามารถเปิดรับลมธรรมชาติได้

    เลือกเป็นทีวีติดผนังก็จะช่วยประหยัดพื้นที่ได้อีก ส่วนแอร์เป็นแบบฝังฝ้า แอบมองเห็น Sexy Bath ด้วย
    ตัวอย่าง ห้องแบบ 2 ห้องนอน 2 ห้องน้ำ (Vertical Interlocking) - พื้นที่ใช้สอย 86.00-86.50 ตร.ม.

    สำหรับห้องนี้ถือเป็น Highlight สุด Premium ของโครงการเลยค่ะ
    โดดเด่นด้วย Vertical Interlocking ลูกเล่นการเล่นระดับของพื้นที่
    พร้อมกระจกเข้ามุมที่สามารถเปิดกว้างสัมผัสธรรมชาติได้เต็มที่

    เดินเข้ามาจะเจอโถงทางเดิน ซ้ายมือเป็นห้องน้ำ หากเดินลึกเข้าไปอีกหน่อยซ้ายมือเป็นห้องครัว
    และขวามือคือทางเชื่อมไปห้องนอนเล็กกับห้องนอนใหญ่ค่ะ

    ห้องน้ำเป็นสุขภัณฑ์จาก Kohler และ Grohe องค์ประกอบเหมือนห้องแบบอื่นๆ ค่ะ

    จากห้องจะเป็นทางเชื่อมไปยังห้องต่างๆ ด้านหน้ายังมีที่ว่างที่เราสามารถ Built-in เป็นตู้โชว์หรือตู้เก็บหนังสือ

    ถัดมาเป็นห้องครัวค่ะ เคาน์เตอร์ครัวและชั้นลอยตัวทำด้วยหินสังเคราะห์สีขาว สำหรับ Typical นี้จะให้ไมโครเวฟมาด้วย
    มี Kitchen Island แยกออกมาเป็นอ่างล้างจานและพื้นที่ว่างสำหรับทำอาหาร

    ต่อไปเป็นห้องนอนเล็ก ซึ่งทั้งห้องนอนเล็กและห้องนอนใหญ่ เพดานมีความสูงในระดับเดียวกันกับห้องครัว

    ถัดมาเป็นห้องนอนใหญ่ค่ะ โดยห้องนอนใหญ่จะมีห้องน้ำในตัว และพื้นที่ว่างๆ ด้านข้าง

    พื้นที่ว่างด้านข้าง สามารถ Built-in เป็นห้องแต่งตัวหรือเก็บของอื่นๆ ได้

    ห้องน้ำอีกห้องก็ที่เป็นห้องน้ำในตัวของห้องนอนใหญ่
    สุขภัณฑ์จาก Kohler และ Grohe มีจากุซซี่ พร้อมกระจกสูงจรดเพดานให้ชมวิวเบาๆ

    ถัดมาจะเป็นห้องนอนใหญ่ค่ะ ห้องนี้โดดเด่นด้วยกระจกสูงจรดเพดานเช่นกัน

    กระจกสูงจรดเพดานช่วยให้ห้องดูโปร่งโล่ง รับแสงจากธรรมชาติได้เต็มที่ ลดการใช้ไฟในห้องได้อีกด้วยค่ะ

    กลับมาที่ห้องครัวค่ะ ตรงนี้จะเป็นมุมที่มองจากห้องครัวลงไปเป็นห้องรับแขกค่ะ สังเกตจะมีบันไดลงไปข้างล่าง 1 Step

    ความสูงจากพื้นถึงเพดาน 3.6 เมตร ใช้บันไดเพื่อแบ่งห้องครัวและห้องรับแขกออกจากกัน (Vertical Interlocking)
    แอร์เป็นแบบฝังฝ้า และไฟดาวน์ไลท์ค่ะ

    ห้องรับแขกพื้นที่กว้างทีเดียวค่ะ สามารถวางโซฟาชุดใหญ่ๆ ได้ ด้านหลังเป็นกระจกสูงจรดเพดาน

    กระจกเข้ามุมสามารถเปิด-ปิดรับอากาศจากภายนอกได้

    พื้นที่ว่างอาจใช้เป็นที่ว่างโต๊ะทำงานหรือโซฟาเล็กๆ สำหรับนั่งจิบกาแฟไปชมวิวสวยๆ ไป
    ราคาและค่าใช้จ่ายที่เกี่ยวข้องโดยประมาณ
    ราคาเริ่มต้น 7.9 ล้านบาน (23 ก.พ. 2559)
    ค่าส่วนกลาง : 85 บาท/ตร.ม./เดือน (ชำระล่วงหน้า 1 ปี) ผู้ซื้อเป็นผู้ชำระ
    เงินกองทุนแรกเข้า : 880 บาท/ตร.ม./เดือน (เก็บครั้งเดียว) ผู้ซื้อเป็นผู้ชำระ
    ภาพรวมโดยสรุปของโครงการ
    • การเดินทางเข้า-ออกโครงการ - ตัวโครงการตั้งอยู่ริมถนนสีลม ใกล้กับแยกสีลม-นราธิวาส โดยรวมแทบไม่มีความยุ่งยากสำหรับการ เข้า-ออก โครงการเลย เพราะมาได้หลากหลายเส้นทางมากๆ สะดวกทั้งผู้ที่ใช้รถยนต์ส่วนตัว และรถไฟฟ้า หากเลือกใช้รถยนต์ส่วนตัว ถนนที่เชื่อมต่อเส้นหลัก ได้แก่ ถนนสาทร, ถนนนราธิวาสราชนครินทร์, ถนนสุรวงศ์ และถนนเจริญกรุง แต่ถ้าสะดวกที่จะใช้รถไฟฟ้าสถานีที่ใกล้ที่สุด คือ BTS สถานีช่องนนทรี ห่างจากตัวโครงการเพียง 350 เมตรเท่านั้น และหากต้องการใช้บริการของ MRT สถานีที่ใกล้ที่สุดคือสถานีสีลม ห่างกันเพียงแค่ 1 สถานี (ช่องนนทรีไปศาลาแดง) เท่านั้น 
    • ทำเลรอบโครงการ - ในเรื่องของทำเลก็แทบจะไม่ต้องพูดอะไรกันมากเลยค่ะ เพราะเส้นสีลมอุดมสมบูรณ์ที่สุดในเรื่องของเศรษฐกิจทั้งทางด้านการเงินและการลงทุน มูลค่าของอสังหาริมทรัพย์จึงสูงขึ้นเรื่อยๆ อาคารสำนักงานเป็นหนึ่งในธุรกิจให้เช่าที่มีเป็นส่วนมากบนถนนเส้นนี้ แต่ถ้าคิดต่อว่าแล้ว แอชตัน สีลม โครงการที่มีความสูงถึง 48 ชั้น จะมีปัญหาในเรื่องของการเทควิว หรือไม่ ในเรื่องนี้ทางอนันดาฯ ได้มีการวาง Lay out ของทุกๆ ยูนิต ให้สลับกัน โดยจะไม่พยายามให้บดบังวิวโดยรอบ นอกจากนี้สีลมและถนนใกล้เคียงยังเต็มไปด้วยโรงเรียน, โรงพยาบาล, ศูนย์การค้า และร้านอาหารชื่อดังต่างๆ ที่พร้อมจะบริการทั้งคนไทย และคนต่างชาติ ตลอด 24 ชม. ย่านนี้จึงเรียกได้ว่าเป็นพื้นที่ที่มีความอุดมสมบูรณ์สูงทีเดียวค่ะ
    • อาคารและตัวโครงการโดยรวมเป็นอาคาร High-Rise สูง 48 ชั้น 429 ยูนิต (Shop 1 ยูนิต) ตัวอาคารหันหน้าไปทางทิศใต้ (หันหน้าเข้าถนนสีลม) แบ่งเป็น 2 Tower คือ South Tower และ North Tower จอดรถตั้งแต่ชั้น 1-9 มีจุดจอดรถสำหรับ Super Car ด้วย คิดเป็น 70% (ไม่รวมจอดซ้อนคัน) สำหรับ Facilities ก็จัดเต็มมาเพื่อการใช้ชีวิตแบบมีระดับของลูกบ้าน ซึ่งจะอยู่บริเวณชั้น 1, ชั้น 34-34M และชั้น 48 (Roof Top) มี Alfresco Living Plaza สวนหินเล่นระดับที่จัดว่าเป็นพื้นที่สีเขียวขนาดใหญ่ด้านหน้าโครงการ
    • รูปแบบห้องและวัสดุห้องพักอาศัยเริ่มต้นตั้งแต่ 31 ตร.ม. ความน่าสนใจของห้องทุกแบบ คือ "กระจกสูงตั้งแต่พื้นจรดเพดาน" ทำให้ทุกห้องสามารถ Take View ได้อย่างเต็มที่ บริเวณระเบียงออกแบบมาให้เป็นระเบียงกระจกไม่ใช่ระเบียงเหล็กแบบทั่วไป และความน่าสนใจอีกอย่างของห้อง 2 Bedroom คือกระจกเข้ามุมสามารถเลื่อนเปิด-ปิดได้ ทำให้สามารถระบายอากาศจากภายในห้องหรือรับลมเย็นๆ จากภายนอกได้ และลูกเล่น Vertical Interlocking พื้นเล่นระดับแบ่งห้องให้เป็นสัดส่วนมากขึ้น ตัวห้องไม่ได้ขายแบบ Fully Furnished จะให้เพียงในเคาน์เตอร์ครัว (ให้ไมโครเวฟสำหรับ 2 Bedroom), เครื่องปรับอากาศ (แบบฝังฝ้า) และสุขภัณฑ์ภายในห้องน้ำ
    สถานะปัจจุบันของโครงการ
    โครงการ แอชตัน สีลม (Ashton Silom) อยู่ระหว่างการก่อสร้างค่ะ โดยจะเปิด Pre-Sale วันที่ 12-13 มี.ค. 2559 และคาดว่าโครงการจะก่อสร้างแล้วเสร็จประมาณวันที่ 28 ก.พ. 2562 เข้าชมห้องตัวอย่างได้ที่ Sales Gallery ตั้งแต่เวลา 9.00 - 18.00 น. สามารถลงทะเบียนเพื่อรับสิทธิพิเศษได้ตามลิงก์ด้านล่างค่ะ
    สอบถามรายละเอียดเพิ่มเติม Call Center 02-316-2222 หรือ www.ananda.co.th

    รีวิว-พรีวิวล่าสุดอื่นๆ

    คอนโดติดรถไฟฟ้าล่าสุด

เว็บไซต์นี้มีการเก็บคุกกี้เพื่อเพิ่มความพึงพอใจในการใช้งานเว็บไซต์ และช่วยให้เราปรับปรุง และนำเสนอเนื้อหาตรงตามความสนใจของท่าน ท่านสามารถดู Privacy Notice และ ดู Cookies Policy ของเราได้ ที่นี่ ทั้งนี้ ท่านจะยินยอมให้เราเก็บคุกกี้ทั้งหมด หรือให้เก็บแค่บางส่วนโดยการคลิกเลือก ตั้งค่า

ท่านสามารถเลือกให้ความยินยอมการเก็บคุกกี้เป็นเรื่องๆ ได้ที่นี่

เมื่อคุณเข้าชมเว็บไซต์ หรือแอปพลิเคชั่น checkraka เราอาจจัดเก็บ หรือดึงข้อมูลจากเบราว์เซอร์ของคุณในรูปแบบของคุกกี้ และเทคโนโลยีอื่นที่คล้ายคลึง เช่น tag และ pixel (เรียกรวมกันว่า “คุกกี้”) ซึ่งมักเป็นข้อมูลที่ไม่สามารถระบุตัวตนได้โดยตรง แต่ช่วยให้คุณใช้งานเว็บไซต์ได้ปลอดภัย และตรงตามความต้องการมากขึ้น คุณอาจไม่ยินยอมให้เราเก็บคุกกี้บางประเภทได้ โดยการคลิกตามหัวข้อข้างล่างนี้

ประเภทคุกกี้
อ่านเพิ่มเติม ที่นี่
ยินยอม / ไม่ยินยอม
คุกกี้ที่จำเป็นต้องมีเสมอ
(Strictly Necessary)
คุกกี้สำหรับการใช้งานเว็บไซต์
(Functionality)
คุกกี้เพื่อเพิ่มประสิทธิภาพและวิเคราะห์
(Performance & Analytics)
คุกกี้เพื่อการตลาด
(Marketing)