ประเมินวงเงินรู้ผลใน 3 นาที
กับ กรุงศรี ออโต้ พร้อมสตาร์ท

เริ่มประเมินวงเงินพร้อมสตาร์ท
ผ่านมือถือ สแกนเลย

ดูวงเงินพร้อมสตาร์ทที่ได้รับ

  • คอนโด
  • คอนโด
  • ค้นหาแบบละเอียด
  • รีวิว-เยี่ยมชม Ideo Thaphra-Interchange (ไอดีโอ ท่าพระ-อินเตอร์เชนจ์)

    4 มี.ค. 59 16,036
    รีวิว-เยี่ยมชม Ideo Thaphra-Interchange (ไอดีโอ ท่าพระ-อินเตอร์เชนจ์)
    สวัสดีค่ะ วันนี้ Checkraka.com จะพาไปเยี่ยมชมคอนโด Ideo Thaphra-Interchange (ไอดีโอ ท่าพระ-อินเตอร์เชนจ์) จาก "อนันดา ดีเวลลอปเม้นท์" นั่นเองค่ะ ซึ่งจุดนี้ในอนาคตจะเป็นจุด Interchange เชื่อมต่อของโครงข่ายรถไฟฟ้าสายสีน้ำเงินส่วนต่อขยาย (สายบางซื่อ-ท่าพระ และสายหัวลำโพง-บางแค) ซึ่งจะทำให้การเดินทางคมนาคมไม่ว่าจะเดินทางเข้าเมืองหรือออกนอกเมืองก็สะดวกสบาย อีกทั้งยังใกล้โรงพยาบาล, มหาวิทยาลัย และตลาดใหญ่ๆ อย่างตลาดวงเวียนใหญ่และตลาดพลูอีกด้วย ไปดูข้อมูลกันดีกว่าค่ะว่าโครงการนี้มีอะไรน่าสนใจบ้าง
    ข้อมูลโครงการ
    • เจ้าของและผู้พัฒนาโครงการ: บริษัท อนันดา ดีเวลลอปเม้นท์ จำกัด (มหาชน)
    • ที่ตั้งโครงการ: ถนนเพชรเกษม แขวงท่าพระ เขตบางกอกใหญ่ กทม.
    • อาคารชุดพักอาศัยสูง 22 ชั้น จำนวน 1 อาคาร รวม 844 ยูนิต
    • ขนาดที่ดินทั้งโครงการ: 4-2-16.7 ไร่
    • ลิฟต์โดยสาร 4 ตัวต่ออาคาร ลิฟต์บริการ 1 ตัว
    • ห้องชุดมี 3 รูป คือ สตูดิโอ, 1 ห้องนอน และ 2 ห้องนอน
    • ที่จอดรถ :  ประมาณ 40% แบบไม่รวมจอดซ้อนคัน
    • ราคาเริ่มต้น 2.69 สําหรับห้องขนาด 27.5 ตร.ม. (ข้อมูล ณ 3 ก.พ. 59)
    • สถานะโครงการ : อยู่ระหว่างดำเนินการก่อสร้าง
    • วันที่เข้าเยี่ยมชม-รีวิวคอนโด 3 ก.พ. 59
    เจ้าของและผู้พัฒนาโครงการ
    บริษัท อนันดา ดีเวลลอปเม้นท์ จำกัด (มหาชน) เป็นบริษัทมหาชนประกอบธุรกิจพัฒนาอสังหาริมทรัพย์ และเป็นผู้นำตลาดคอนโดมิเนียมติดรถไฟฟ้า ที่มีสโลแกนสำคัญในการพัฒนาโครงการที่พักอาศัยคือ "Live / Work / Play" (Let's live, work and play more) ปัจจุบันบริษัทฯ พัฒนาทั้งคอนโดมิเนียม และโครงการบ้านจัดสรรในกรุงเทพ และปริมณฑล โดยในส่วนของคอนโดมิเนียมนั้นมุ่งเน้นไปที่โครงการที่ห่างจากรถไฟฟ้าไม่เกิน 300 เมตรกับแบรนด์ "ไอดีโอ" และไม่เกิน 600 เมตรกับแบรนด์ "เอลลิโอ" โดยคอนโดมิเนียมโครงการแรกของบริษัทฯ ที่ถูกพัฒนาขึ้นมาในปี 2550 คือโครงการ "ไอดีโอ ลาดพร้าว 17" จวบจนปัจจุบัน บริษัทฯ พัฒนาคอนโดมิเนียมมาแล้วทั้งหมดกว่า 40 โครงการ โดยในปี 2559 บริษัทจะเปิดขายโครงการใหม่อีก 10 โครงการ โดยเป็นโครงการคอนโดมิเนียม 8 โครงการ ซึ่งเป็นโครงการร่วมทุนกับมิตซุย ฟูโดซัง 4 โครงการ และโครงการแนวราบ 2 โครงการ รวมมูลค่ารวม 22,000 ล้านบาท
    ทำเลที่ตั้ง
    ไอดีโอ ท่าพระ-อินเตอร์เชนจ์ ตั้งอยู่ภายในซอบเพชรเกษม 9 ถนนเพชรเกษม แขวงวัดท่าพระ เขตบางกอกใหญ่ กรุงเทพฯ 10600 ใกล้สี่แยกท่าพระและห่างจากรถไฟฟ้าสถานีท่าพระ (ส่วนต่อขยายสายสีน้ำเงิน) เพียง 100 เมตร

    แผนที่โครงการ ไอดีโอ ท่าพระ-อินเตอร์เชนจ์ (Ideo Thaphra-Interchange)

    คลิกเพื่อดูภาพใหญ่
    แผนที่โครงการแจกแจงให้เห็นรายละเอียดใกล้-ไกลกับสถานที่ หรือ Landmark รอบๆ โครงการที่น่าสนใจ

    "โรงพยาบาลตากสิน" ระยะทางห่างจากโครงการประมาณ 3.9 กม.

    "โรงพยาบาลสมด็จเจ้าพระยา (สถาบันจิตเวช)" ระยะทางห่างจากโครงการประมาณ 3.8 กม.

    "มหาวิทยาลัยราชภัฏธนบุรี" ระยะทางห่างจากโครงการประมาณ 2.9 กม.

    "มหาวิทยาลัยราชภัฏบ้านสมเด็จเจ้าพระยา" ระยะทางห่างจากโครงการประมาณ 2.7 กม.

    "โรงพยาบาลสมิติเวช ธนบุรี" ระยะทางห่างจากโครงการประมาณ 4 กม.

    "โรงพยาบาลสมเด็จพระปิ่นเกล้า" ระยะทางห่างจากโครงการประมาณ 3.7 กม.

    "ตลาดวงเวียนใหญ่" ระยะทางห่างจากโครงการประมาณ 2.4 กม.

    "เดอะมอลล์ ท่าพระ" ระยะทางห่างจากโครงการประมาณ 1.9 กม.

    "ตลาดพลู" ระยะทางห่างจากโครงการประมาณ 1.2 กม.

    "โรงพยาบาลบางไผ่" ระยะทางห่างจากโครงการ 1.6 กม.

    "โรงพยาบาลพญาไท 3" ระยะทางห่างจากโครงการประมาณ 1.5 กม.
    การเดินทาง
    1. เดินทางด้วยรถยนต์
    การเดินทางด้วยรถยนต์สามารถมาได้หลายเส้นทางค่ะ โดยมีเส้นทางหลักดังต่อไปนี้
    • ทางเข้าโครงการเส้นทางที่ 1 - เริ่มจากสะพานตากสิน
    มาดูภาพประกอบการเดินทางกันค่ะ โดยเราจะเริ่มบริเวณบริเวณสะพานสมเด็จพระเจ้าตากสิน

    ถึง Sales Gallery ของโครงการเรียบร้อยแล้วค่ะ
    • ทางเข้าโครงการเส้นทางที่ 2 - จากอนุสาวรีย์ชัยสมรภูมิ
    • ทางออกเส้นทางที่ 1 - ไปสะพานตากสิน
    • ทางออกเส้นทางที่ 2 - ไปอนุสาวรีย์ชัยสมรภูมิ
    2. เดินทางด้วยรถไฟฟ้า
    สำหรับการเดินทางด้วยรถไฟฟ้านั้น ปัจจุบันสามารถนั่งรถไฟฟ้า BTS มาลงสถานีวงเวียนใหญ่ได้ค่ะ แต่จะต้องต่อรถเข้ามาอีก ส่วนในอนาคตหากรถไฟฟ้าสายสีน้ำเงินส่วนต่อขยายแล้วเสร็จ สามารถนั่งมาลง "สถานีท่าพระ" ที่เป็นจุด Interchange เชื่อมต่อเส้น "บางซื่อ-ท่าพระ" กับเส้น "หัวลำโพง-บางแค" เข้าด้วยกัน ตัวสถานีนั้นอยู่ห่างจากโครงการ 100 เมตรค่ะ สำหรับกำหนดแล้วเสร็จของการก่อสร้างรถไฟฟ้านั้นคาดว่าจะให้บริการปี 2561 ค่ะ

    แผนที่โครงข่ายรถไฟฟ้าแต่ละเส้นทางที่อยู่ใกล้โครงการ

    แผนผังรถไฟฟ้าสายสีน้ำเงิน (ส่วนต่อขยาย)
    ขอบคุณภาพ : pr-cr-mrta.blogspot.com

    ความคืบหน้าการก่อสร้างสถานีท่าพระ อยู่ระหว่างงานเทปูนคานยื่นสถานี (ข้อมูล ณ มกราคม 2559)
    ขอบคุณข้อมูล : www.mrta-blueline.com

    งานติดตั้งทางวิ่งรถไฟฟ้า ข้ามแยกท่าพระ เข้าเส้นเพชรเกษม (ข้อมูล ณ มกราคม 2559)
    ขอบคุณข้อมูล : www.mrta-blueline.com
    สภาพแวดล้อมใกล้เคียง
    ตัวโครงการอยู่ติดถนนเพชรเกษม ปากซอยเพชรเกษม 9 พอดี สภาพแวดล้อมโดยรอบโครงการนั้นส่วนใหญ่เป็นบ้านพักอาศัย 1-2 ชั้น ตึกแถวและอาคารพาณิชย์ 2-3 ชั้นค่ะ สำหรับร้านค้าหรือร้านสะดวกซื้อใกล้ๆ โครงการนั้นค่อนข้างหายากสักหน่อยนะคะ แต่เมื่อการพัฒนาของโครงการรวมถึงรถไฟฟ้าส่วนต่อขายแล้วเสร็จ ก็น่าจะมีการพัฒนาพื้นที่เพิ่มเติมอย่างแน่นอนค่ะ

    แผนที่ภาพรวมสถานที่รอบๆ โครงการ

    เริ่มจากหน้าโครงการค่ะ มองตรงไปจะเป็นแยกท่าพระ

    เดินเลี้ยวซ้ายออกจากโครงการจะเจอซอยเพชรเกษม 9 ซึ่งซอยนี้จะเป็นซอยตันค่ะ

    บรรยากาศภายในซอยเพชรเกษม 9 ซึ่งด้านซ้ายจะเป็นพื้นที่โครงการ เป็นแนวยาวไปตลอดซอยเลยค่ะ

    ภายในซอยมีโรงเรียนประสาทวิทยาอนุชนอยู่ค่ะ จะอยู่ตรงข้ามกับพื้นที่โครงการ

    เดินออกจากซอยเพชรเกษม 9 กันค่ะ เวลาเราออกจากโครงการสามารถกลับรถก่อนถึงแยกท่าพระได้เลย
    บรรยากาศข้างทางโดยรวมส่วนใหญ่จะเป็นอาคารพาณิชย์ค่ะ

    เดินต่อมาอีกนิด ด้านซ้ายมือจะเป็นซอยเพชรเกษม 11 เป็นที่ตั้งของวิทยาลัยเทคโนโลยีสายประสิทธิ์บริหารธุรกิจ

    ย้อนมาฝั่งขวามือของโครงการกันบ้างค่ะ ด้านนี้จะมีร้านอาหารตามสั่งและร้านก๋วยเตี๋ยวที่พอฝากท้องได้อยู่

    เดินมาอีกนิดจะเป็นธนาคารกรุงไทยค่ะ

    ถัดจากธนาคารกรุงไทยก็จะเป็นศูนย์การแพทย์ธนบุรีค่ะ
    รูปแบบตึก และตัวโครงการโดยรวม
    โครงการ "ไอดีโด ท่าพระ อินเตอร์เชนจ์" เป็นคอนโดมิเนียม High-Rise ความสูง 22 ชั้น จำนวน 1 อาคาร ลักษณะที่ดินเป็นรูปสี่เหลี่ยมผืนผ้าลึกขนานกับถนนเพชรเกษม ซึ่งตั้งอยู่ระหว่างซอยเพชรเกษม 7 และซอยเพชรเกษม 9 ด้านหน้าโครงการติดถนนเพชรเกษม ตัวอาคารมีระยะร่นห่างจากถนนเข้ามาประมาณ 120 เมตร สิ่งอำนวยความสะดวกกระจายอยู่บริเวณชั้น 1 ชั้น, ชั้น 6, ชั้น 21 และชั้นดาดฟ้าของอาคาร มีลิฟต์โดยสารมาให้ 4 ตัว  และลิฟต์บริการอีก 1 ตัว อัตราส่วนเฉลี่ยในการใช้ลิฟต์อยู่ที่ประมาณ 211 ยูนิตต่อลิฟต์ 1 ตัว ซึ่งถือว่าค่อนข้างจะหนาแน่นทีเดียว เวลาเร่งด่วนคงจะต้องใจเย็นๆ และรอลิฟต์กันนานหน่อย เดี๋ยวเราไปดูกันค่ะว่า ตำแหน่งที่ตั้งของตัวโครงการแต่ละทิศจะติดกับอะไรบ้าง

    อาคารฝั่งทิศเหนือ : ติดถนนเพชรเกษม มีอาคารพาณิชย์สูง และห้องเช่าที่สูงประมาณ 8 ชั้นอยู่ด้านหน้าอาคาร
    วิวหันไปทางถนนจรัญสนิทวงศ์ แต่ทางโครงการแก้ไขปัญหาตรงจุดนี้ด้วยการปลูกต้นไม้ไว้บังตา
    ทำให้ลูกบ้านไม่รู้สึกว่าโดนบังวิวจากอาคารภายนอก แต่จะได้ความรู้สึกร่มรื่นจากต้นไม้ และพื้นที่สีเขียวตรงนี้มาแทน

    อาคารฝั่งทิศตะวันตก : เป็นวิวเปิดค่อนข้างเปิดโล่ง ติดบ้านพักอาศัยสูงไม่เกิน 3 ชั้น
    วิวหันไปทางสี่แยกท่าพระ และทางฝั่งบางแค

    อาคารฝั่งทิศใต้ : อยู่ติดชุมชนบ้านพักอาศัยเช่นกัน
    วิวหันไปทางถนนรัชดา-ท่าพระ และถนนราชพฤกษ์ หรือทางห้างเดอะมอลล์ท่าพระ

    อาคารฝั่งทิศตะวันออก : อยู่ติดบ้านพักอาศัยสูง 2-3 ชั้น วิวหันไปทางวงเวียนใหญ่

    มุมมองจากชั้นดาดฟ้าของอาคารซึ่งทางโครงการจัดเป็นส่วนขนาดใหญ่แบบเต็มพื้นที่ พร้อมสระว่ายน้ำมาให้
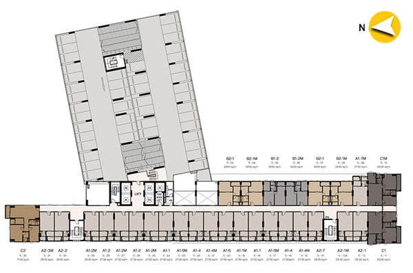
    เดี๋ยวมาดูในส่วนของ Floor Plan ของโครงการกันค่ะ ว่าแต่ละชั้นมีอะไรอยู่ตรงไหนบ้าง

    ชั้น 1 : ชั้นนี้เป็นส่วนของสวนหย่อม, ลู่สำหรับวิ่งจ๊อกกิ้ง, จุด Drop Off, Lobby, ห้องจดหมาย,
    สำนักงานนิติบุคคล, ลิฟต์โดยสาร, ลิฟต์บริการ และพื้นที่จอดรถ

    ชั้น 2-4 : เป็นพื้นที่สำหรับจอดรถทั้งหมด สามารถขึ้นลิฟต์ไปยังห้องพักจากลานจอดรถได้เลยค่ะ

    ชั้น 5 : แบ่งเป็นพื้นที่จอดรถ และส่วนของห้องพักอาศัยจำนวน 30 ยูนิต

    ชั้น 6 : มีสวนหย่อมอยู่ทางทิศเหนือและทิศใต้ และส่วนห้องพักอาศัยอีก 47 ยูนิต

    ตั้งแต่ชั้น 7-20 จะคล้ายกันค่ะ คือเป็นส่วนของห้องพักอาศัยจำนวน 50 ยูนิต/ชั้น 
    โดยโครงการนี้ จัดวางตำแหน่งของห้องแต่ละขนาดแยกออกจากกันได้ค่อนข้างชัดเจน ดังนี้
    • ทิศตะวันตก และทิศเหนือเกือบทั้งหมด จะเป็นห้องแบบ Studio ขนาด 27.50 ตร.ม. - 28.00 ตร.ม.
    • ทิศตะวันออก และทางฝั่งทิศใต้ เป็นห้องแบบ 1 ห้องนอน ขนาด 34.50 ตร.ม.
    • ทิศเหนือ จะเป็นห้องนอนใหญ่แบบ 2 ห้องนอนขนาด 71.00 ตร.ม. และทิศใต้อีกบางส่วนจะเป็นแบบ 2 ห้องนอนขนาด 63.00 ตร.ม. ซึ่งจะตั้งอยู่ที่หัวมุมของอาคาร โดยแต่ละชั้นจะมีห้องแบบ 2 ห้องนอนเพียง 3 ห้องเท่านั้น

    ชั้น 21 : เป็นส่วนของ Facility ประกอบด้วย ห้องฟิตเนส, ห้องโซเชียล คลับ, สกายเลาจน์, ห้องเกม, ห้องประชุม,
    ห้องสตีม, ห้องซาวน่า, ห้องซักรีด และส่วนห้องพักอาศัยอีก 33 ยูนิต

    ชั้น Roof top หรือชั้นดาดฟ้า : เป็นพื้นที่สวนขนาดใหญ่แบบเต็มพื้นที่ พร้อมสระว่ายน้ำขนาดใหญ่
    ส่วนกลางและสิ่งอำนวยความสะดวก
    ในส่วนของสิ่งอำนวยความสะดวกทางอนันดาไม่เคยทำให้ลูกบ้านผิดหวัง ซึ่งโครงการนี้ก็ยังคงจัดเต็มมาให้ลูกบ้านเหมือนเช่นเคย โดยครั้งนี้ได้ยกสิ่งอำนวยความสะดวกหลักๆ ไปไว้บนชั้นดาดฟ้า และชั้น 21 ของอาคาร เพื่อให้ลูกบ้านได้เทควิวแบบ 360 องศากันอย่างเต็มอิ่ม  นอกจากนี้ยังมีบางส่วนที่กระจายอยู่ที่ชั้น 6 และชั้น 1 ของโครงการ ส่วนลานจอดรถจะอยู่ตั้งแต่ชั้น 1 - 5 สามารถจอดได้ทั้งหมด 344 คัน หรือคิดเป็นประมาณ 40% แบบไม่รวมจอดซ้อนคัน โดยสิ่งที่ทางโครงการให้มาก็จะมี
    • Lobby รับสไตล์ Futuristic
    • สระว่ายน้ำ White Cloud Pool ระบบเกลือแบบน้ำล้น ขนาด (กว้าง x ยาว) 15 x 50 เมตร  ลึก 1.2 เมตร
    • ห้องออกกำลังกาย
    • สวนหย่อม พร้อมลู่วิ่งจ๊อกกิ้ง
    • ห้องโซเชียล คลับ
    • สกายเลาจน์
    • ห้องเกม
    • ห้องประชุม
    • ลิฟต์โดยสารแบบล็อคชั้น 4 ตัว และลิฟต์บริการ 1 ตัว
    • ระบบรักษาความปลอดภัย รปภ. 24 ชม.
    • ระบบ Access control
    • กล้อง CCTV

    ทางเข้าออกหลักของโครงการติดถนนใหญ่เพชรเกษม วิ่งแบบสวนกันได้
    ส่วนถนนภายในโครงการกว้าง 6 เมตร ตามมาตรฐาน

    จากทางเข้าโครงการขับเข้ามาจะเจอกับจุด Drop Off ซึ่งอยู่ด้านหน้าประตูทางเข้าส่วนของ Lobby

    ฝั่งทิศตะวันตกของอาคารถูกออกแบบให้เป็นสวนหย่อม พร้อมลู่วิ่งสำหรับให้ลูกบ้านได้มาออกกำลังกายในวันพักผ่อนสบายๆ

    ชั้น 6 ของอาคาร ก็จัดเป็นสวนหย่อมเช่นกัน มีการปลูกต้นไม้ไว้สำหรับบังสายตาจากอาคารโดยรอบโครงการ

    พื้นที่จอดรถของโครงการบริเวณชั้น 1- ชั้น 5

    สิ่งอำนวยความสะดวกบนชั้น 21 ที่จัดมาให้ลูกบ้านอย่างเยอะ

    และที่โดนเด่นอีกอย่างของโครงการนี้คือสระว่ายน้ำขนาดใหญ่ที่ตั้งอยู่บนชั้นดาดฟ้าของโครงการ

    ภาพจำลองบรรยากาศ Lobby สุดหรูสไตล์ Futuristic บริเวณชั้น 1

    ภาพจำลองบรรยากาศ Social Club ของโครงการบนชั้น 21

    ภาพจำลองบรรยากาศ Sky Fitness บนชั้น 21 ที่ออกแบบเป็นกระจกใส สามารถเทควิวเมืองโดยรอบได้แบบเต็มๆ ตา

    ภาพจำลองบรรยากาศ White Cloud Pool ที่ออกแบบให้สะท้อนกับเงาท้องฟ้า

    ภาพจำลอง Scenic Bridge สะพานที่เชื่อมต่อกับส่วนของสระว่ายน้ำไปยังสวนลอยฟ้าขนาดใหญ่

    ภาพจำลองบรรยากาศพื้นที่ส่วนกลางบนชั้นดาดฟ้าอีกมุมหนึ่งของโครงการ
    ภาพห้องตัวอย่างและ Lay out
    ห้องของโครงการนี้มีขายแบบ Fully Furnished มีเฟอร์นิเจอร์ให้ครบ เรียกว่าซื้อเพิ่มเติมอีกนิดหน่อยก็สามารถเข้าอยู่ได้เลย โดยสิ่งที่ทางโครงการให้มาก็จะมี ชั้นวางของ Built-in, ชั้นวางทีวี, ชุดโซฟา, โต๊ะทานข้าว, ตู้เสื้อผ้า Built-in, ฐานเตียงนอน, ฉากกั้นอาบน้ำ ส่วนเครื่องใช้ไฟฟ้าก็จัดให้มาเช่นกัน อาทิ เตาไฟฟ้าแบบฝัง, เครื่องดูดควัน,และแอร์ (Studio ได้ 1 ตัว, 1 ห้องนอนได้ 2 ตัว) โดยทุกห้องจะได้เป็นครัวปิดทั้งหมด โดยห้องของที่นี่แบ่งออกเป็น 3 Type ด้วยกัน
    1. ห้องแบบ Studio (1 ห้องนอน, 1 ห้องน้ำ, 1 ห้องครัวปิด) - เนื้อที่ 27.50 - 28.00 ตร.ม.
       (คลิกเพื่อชมแปลนห้อง)  
    2. ห้องแบบ 1 ห้องนอน (1 ห้องนอน, 1 ห้องน้ำ, 1 ห้องครัวปิด) - เนื้อที่ 34.50 ตร.ม.
       (คลิกเพื่อชมแปลนห้อง) 
    3. ห้องแบบ 2 ห้องนอน (2 ห้องนอน, 1 ห้องน้ำ, 1 ห้องครัวปิด) - เนื้อที่ 34.30 - 35.00 ตร.ม.
       (คลิกเพื่อชมแปลนห้อง) 
    ภาพห้องตัวอย่างแบบ Studio

    Layout ห้องตัวอย่าง ขนาด 28.00 ตร.ม.

    ธรณีบริเวณประตูทางเข้าห้องยกสูงประมาณ 5 ซม. เป็นหินสังเคราะห์ สีเทาช่วยป้องกันฝุ่น และแมลงจากโถงทางเดิน
    ประตูห้องจริงจะเป็นระบบ Digital Door Lock ของ Samsung

    เดินเข้ามาในห้องจะเจอกับโซนห้องนั่งเล่น เชื่อมต่อโซนห้องนอน และถัดไปเป็นส่วนของห้องครัว และห้องน้ำ
    พื้นห้องปูด้วยลามิเนตหนา 8 มม. ความสูงจากพื้นถึงฝ้าเพดานอยู่ที่ 2.6 เมตร
    ไฟติดเพดานเป็นไฟดาวน์ไลท์ ผนังห้องได้วอลล์เปเปอร์สีขาวบางส่วน

    ได้ชุดโต๊ะทานข้าว พร้อมชุดโซฟาขนาด 2 ที่นั่ง

    ได้โต๊ะหัวเตียงเล่นระดับสำหรับวางโคมไฟ ด้านล่างเปิดมาเป็นลิ้นชักใส่ของ

    ห้องจริงได้เบาะหนังที่ติดมาบริเวณหัวเตียงซึ่งเชื่อมต่อยาวไปจนถึงชุดโซฟาตามแบบนี้เลยค่ะ
    แต่ฉากสีน้ำเงินที่ผนังหัวเตียงไม่ได้นะคะ

    ได้เตียงนอนขนาด 5 ฟุต ไม่รวมฟูกที่นอน

    อีกข้างของเตียงเป็นโต๊ะเครื่องแป้ง พร้อมเก้าอี้ทรงสตูลเบาะสี่เหลี่ยม

    เยื้องกับปลายเตียงเป็นตู้เสื้อผ้าบานเปิดแบบ 4 บาน สูงจรดฝ้า แต่ตู้ที่จริงจะเป็นหน้าบานแบบทึบ
    (เหมือนตู้เสื้อผ้าของห้องแบบ 1 ห้องนอน) ไม่ใช่กระจกแบบนี้นะคะ
    มีที่จับง่ายต่อการเปิด-ปิด ใช้งาน

    เปิดตู้ออกมาจะเป็นประมาณนี้ค่ะ ในตู้เสื้อผ้ามีไฟให้ด้วยนะคะ ดีจัง

    ในห้องตัวอย่างนี้ทางโครงการดีไซน์เป็นประตูกระจกเงาแบบบานสไลด์เพิ่มขึ้นมาเพื่อเพิ่มความรู้สึกให้ห้องดูกว้างมากขึ้น 
    ซึ่งสามารถเลื่อนสลับไปมาได้ทั้ง 2 ฝั่ง ไม่ว่าจะเป็นฝั่งของห้องน้ำ หรือฝั่งของห้องครัว เก๋ดีนะคะ

    ห้องครัวแบบปิด ได้ประตูกระจกบานสไลด์แบบ 2 ตอน กรอบอลูมิเนียมสีดำ รางประตูเซาะร่องสูงเสมอกับพื้น
    พื้นห้องครัวปูด้วยกระเบื้องเซรามิกขนาด 30x30 ซม.
    กล่องบังรางม่านไม่ได้นะคะต้องติดตั้งเอง

    เคาน์เตอร์ครัว พร้อมตู้แบบลอยตัวด้านบนสูงจรดฝ้าของ Starmark มีที่วางไมโครเวฟอยู่ด้านบน เหนืออ่างล้างจาน
    ที่ผนังติดกระจกกันเปื้อน ง่ายและสะดวกต่อการทำความสะอาด พร้อมราวแขวนอุปกรณ์เครื่องครัว
    หน้าท็อปเป็นหินสังเคราะห์ ป้องกันความชื้น และรอยขีดข่วนได้ดี
    อ่างล้างจานไม่มีที่พักจาน และก๊อกน้ำของ MEX

     ได้เครื่องดูดควันแบบต่อท่อออกไปด้านนอกของ MEX และเตาไฟฟ้า 2 หัวของ MEX เช่นกัน
    ใต้เคาน์เตอร์ครัวเป็นตู้เก็บของแบบบานเปิดปิดผิวหน้าท็อปสีเทา และลิ้นชักเก็บช้อนส้อมแบบ Soft Close

    ฝั่งตรงข้ามเคาน์เตอร์ครัวเป็นตู้วางของแบบลอยตัว พร้อมชั้นวางของด้านบน
    ด้านข้างเป็นพื้นที่สำหรับตั้งตู้เย็น สามารถวางตู้เย็นได้ขนาด 8 คิว

    ประตูระเบียงแบบบานสไลด์สีเขียวตัดแสง 2 ตอน กรอบอลูมิเนียมสีดำ ธรณีประตูยกสูงประมาณ 5 ซม.

    ได้ตัวล็อคประตูหน้าตาแบบนี้

    จุดนี้จะเป็นระเบียงสำหรับซักล้าง วางเครื่องซักผ้า ต่อท่อน้ำดีน้ำทิ้ง และก๊อกน้ำมาให้พร้อม

    คอมเพรสเซอร์แขวนด้านบนเหนือเครื่องซักผ้า และมีโคมไฟกิ่งติดผนังอลูมิเนียมสีดำทรงสี่เหลี่ยมมาให้ 1 ดวง

    ธรณีห้องน้ำยกสูงช่วยป้องกันน้ำไหลออกมาด้านนอกได้ดี
    พื้นกระเบื้องสีครีมขนาด 60x60 ซม.

    อ่างล้างหน้าเซรามิคจาก American Standard ด้านล่างเป็นตู้เก็บของ พร้อมกระจกเงาบานใหญ่

    โถสุขภัณฑ์ของ American Standard มีสายฉีดชำระอยู่ทางด้านขวามือ

    กั้นแบ่งโซนเปียกโซนแห้งด้วยฉากกั้นอาบน้ำกระจกเทมเปอร์ พร้อมธรณียกสูงอีกประมาณ 5 ซม.
    ได้หน้าต่างบานกระทุ้ง 1 บาน พร้อมพัดลมระบายอากาศติดเพดาน
    ไฟในห้องน้ำเป็นแบบดาวน์ไลท์

    ทางโครงการเพิ่มลูกเล่นให้กับผนังส่วนอาบน้ำด้วยกระเบื้องโมเสกตามแบบนี้
    ได้ฝักบัวสายอ่อน และที่วางสบู่ของ American Standard แต่ไม่ได้เครื่องทำน้ำอุ่นนะคะ

    ที่ประตูกระจกมีตัวจับอลูมิเนียมสีเงินมาให้เพิ่มความสะดวกในการเปิด-ปิด

    หน้าตาสวิตช์เปิด-ปิดภายในห้อง
    ภาพห้องตัวอย่างแบบ 1 ห้องนอน

    Layout ห้องแบบ 1 ห้องนอนขนาด 34.50 ตร.ม.

    เข้ามาจะเจอกับส่วนของโซนนั่งเล่น ถัดเข้ามาเป็นส่วนของห้องครัว และห้องน้ำ
    ส่วนห้องนอนจะอยู่ทางด้านซ้ายสุดของห้อง (ด้านหลังชั้นวางทีวี)

    ห้องนี้จะได้โซฟาขนาด 4 ที่นั่งซึ่งใหญ่กว่าห้องที่แล้ว โต๊ะทานอาหารเป็นกระจกสี่เหลี่ยมตัดมุมให้มนเหมือนห้องที่แล้ว

    มีระยะดูทีวีประมาณ 1.5 เมตร ผนังด้านหลังชั้นวางทีวีห้องจริงจะเป็นผนังทึบนะคะ ไม่ใช่กระจกแบบนี้

    ลืมบอกว่าติดกับประตูทางเข้าห้อง ทางโครงการ Built-in ตู้เก็บของทรงสูงแบบบานเปิดมาให้ด้วย
    สำหรับไว้เก็บรองเท้า หรือของใช้เล็กๆ น้อยๆ

    ได้ชั้นวางทีวี Built-in ตามแบบนี้ค่ะ

    เปิดตู้มาเป็นลิ้นชักสำหรับเก็บของ 2 ช่อง

    ครัวห้องนี้เป็นแบบครัวปิด ประตูครัวแบบบานสไลด์เช่นกัน แต่ไม่ได้ที่บังรางม่านนะคะ

    พื้นที่ครัวห้องนี้จะใหญ่กว่าห้องที่แล้ว เคาน์เตอร์ครัวได้คล้ายกันกับห้องที่แล้ว
    ต่างกันที่มีขนาดใหญ่มากขึ้น ทำให้มีพื้นที่สำหรับเตรียมอาหารมากชั้น มีลิ้นชักและพื้นที่เก็บของมากขึ้น

    เปิดตู้และลิ้นชักออกมาหน้าตาประมาณนี้ ส่วนเครื่องซักผ้าจะตั้งอยู่ใต้เคาน์เตอร์ครัวแบบนี้ค่ะ

    เตาไฟฟ้าแบบฝัง 2 หัว และเครื่องดูดควันของ MEX

    ตู้เก็บของด้านบนเป็นบานเปิดแบบ Soft Close ทั้งหมด

    ห้องนี้จะไม่ติดกับระเบียงเหมือนห้องที่แล้ว แต่ได้เป็นหน้าต่างบานกระทุ้งเพื่อช่วยระบายอากาศแทน
    ส่วนหน้าต่างด้านล่างเป็นแบบบาน Fix

    สุขภัณฑ์ได้ห้องน้ำเป็นของ American Standard ได้เหมือนกันกับห้องที่แล้วทุกอย่าง

    ในห้องได้เตียงนอนขนาด 5 ฟุต ไม่รวมฟูกที่นอน

    ได้ชั้นวางทีวีแบบ Built-in บริเวณปลายเตียง

    ข้างเตียงเป็น Built-in เป็นโต๊ะหัวเตียงขนาดเล็กมาให้ พร้อมต่อปลั๊กสำหรับใช้งานมาให้ด้วย

    ไปดูพื้นที่อื่นๆ ให้ห้องนอนกันบ้างค่ะ

    ข้างเตียงอีกฝั่งได้ชั้นวางของ Built-in ทรงสูงจรดฝ้า ด้านบนสุด และล่างสุดของตู้ออกแบบให้เป็นตู้เก็บของ

    ได้ตู้เสื้อผ้า Built-in สูงจรดฝ้า แบบบานเปิด 4 บาน Soft Close หน้าบานทึบ มีช่องเก็บของด้านบน
    คนตัวเล็กๆ อาจจะเก็บของลำบากนิดนึง

    ภายในตู้ด้านในมีราวสำหรับแขวนเสื้อผ้า พร้อมลิ้นชัก และชั้นวางของด้านบนแบบนี้

    โต๊ะเครื่องแป้งแบบ Built-in จะอยู่ตรงข้ามตู้เสื้อผ้า ตั้งชิดติดกับประตูระเบียง
    เวลาที่เลื่อนเก้าอี้ออกมานั่งใช้งาน อาจทำให้สูญเสียพื้นที่ในการเดินเข้าออกบริเวณระเบียงไปบ้างพอสมควร

    ราวระเบียงแบบเหล็กกล่องสีเทา พื้นที่ระเบียงกว้างกว่าห้องที่แล้ว

    มีก๊อกน้ำแบบเตี้ยมาให้ 1 จุด คอมเพรสเซอร์แอร์แขวนไว้ทางด้านขวาของระเบียง
    ได้ไฟกิ่งติดอยู่เหนือประตูเหมือนห้องที่แล้ว
    ราคาและค่าใช้จ่ายที่เกี่ยวข้องโดยประมาณ
    ราคาเริ่มต้น Studio พื้นที่ใช้สอยขนาด 27.5 ตร.ม. ราคา 2.69 ล้านบาท
    ราคาเริ่มต้น 1 ห้องนอน พื้นที่ใช้สอยขนาด 34.50 ตร.ม. ราคาเริ่มต้น 3.6 ล้านบาท
    ราคาเริ่มต้น 2 ห้องนอน พื้นที่ใช้สอยขนาด 63.00 ตร.ม. ราคาเริ่มต้น 6.5 ล้านบาท
    ค่าส่วนกลาง : 45 บาท/ตร.ม./เดือน (ชำระล่วงหน้า 1 ปี) ผู้ซื้อเป็นผู้ชำระ 
    เงินกองทุนแรกเข้า : 500 บาท/ตร.ม. (เก็บครั้งเดียว) ผู้ซื้อเป็นผู้ชำระ
    ภาพรวมโดยสรุปของโครงการ
    • การเดินทางเข้า-ออกโครงการ - การเดินทางที่สะดวกที่สุดในตอนนี้ก็จะเป็นรถยนต์ค่ะ เส้นทางหลักเลยก็คือมาจากวงเวียนใหญ่เข้าถนนเพชรเกษม สำหรับการจราจรในย่านนี้ไม่ค่อยหนาแน่น อาจไม่ค่อยมีปัญหาเรื่องการจราจรมากนัก แต่เมื่อรถไฟฟ้าสายสีน้ำเงินส่วนต่อขยายแล้วเสร็จ สถานีที่ใกล้โครงการที่สุดคือ "สถานีท่าพระ" เป็นจุด Interchange เชื่อมต่อสายหัวลำโพง-บางแค และสายบางซื่อ-ท่าพระ เข้าด้วยกัน ตัวสถานีอยู่ห่างจากโครงการเพียง 100 เมตรเท่านั้น ซึ่งจะทำให้การเดินทางไปมาระหว่างชานเมืองกับในเมืองสะดวกสบายขึ้นอย่างมากเลยค่ะ
    • ทำเลรอบโครงการ - สภาพแวดล้อมรอบๆ โครงการในปัจจุบันนั้นยังไม่ค่อยมีร้านค้า, ร้านอาหาร รวมถึงร้านสะดวกซื้อทำให้การหาซื้อข้าวของยามฉุกเฉินนั้นอาจจะค่อนข้างยากอยู่ค่ะ แต่หากจะหาซื้อของใช้ของกินแบบครบวงจรเลย ก็เป็นที่ตลาดพลูหรือตลาดวงเวียนใหญ่ บริเวณใกล้เคียงยังมีธนาคารรวมถึงโรงเรียนและศูนย์การแพทย์ โซนนี้ยังไม่ค่อยมีตึกสูงๆ ให้เห็นมากนัก ส่วยใหญ่เป็นอาคารพาณิชย์สูงไม่เกิน 5 ชั้น
    • อาคารและตัวโครงการโดยรวมเป็นอาคาร High-Rise สูง 22 ชั้น จำนวน 1 อาคาร  มีจำนวนยูนิตเพื่อการอยู่อาศัยทั้งหมด 844 ยูนิต ห้องพักส่วนใหญ่หันหน้าเข้าหาทิศตะวันออก และตะวันตก ที่จอดรถจะอยู่บริเวณชั้น 1-5 ส่วน Facility ที่จัดมาให้มีขนาดใหญ่ และเยอะมากเมื่อเทียบกับจำนวนลูกบ้าน ซึ่งจะอยู่ที่ชั้น 1, ชั้น 6, ชั้น 21 และชั้นดาดฟ้า แต่ที่โดดเด่นที่สุดน่าจะเป็นสระว่ายน้ำ White Cloud Pool ขนาดใหญ่ ที่สามารถมองวิวได้แบบ 360 องศา ส่วนลิฟต์ของที่นี่แบ่งเป็นลิฟต์โดยสาร 4 ตัว และลิฟต์บริการ 1 ตัว อัตราส่วนการใช้ลิฟต์เฉลี่ยอยู่ที่ประมาณ 211 ยูนิตต่อลิฟต์ 1 ตัว ซึ่งถือว่าค่อนข้างหนาแน่นเลยทีเดียวยิ่งในชั่วโมงเร่งด่วนอาจต้องรอนานหน่อย ปริมาณที่จอดรถอยู่ที่ 40% แบบไม่รวมจอดซ้อนคัน
    • รูปแบบห้องและวัสดุลักษณะห้องพักอาศัยแบ่งเป็น 3 แบบหลักด้วยกัน ตั้งแต่ Studio - 2 ห้องนอน โดยห้อง Studio มีขนาดเริ่มต้นที่ 27.50 ตร.ม. ถือว่าเป็นขนาดที่ไม่เล็กจนเกินไป และสามารถอยู่อาศัยได้จริงอย่างสบายๆ ไม่อึดอัด ทุก Type ออกแบบฟังก์ชั่นการจัดวางห้องได้ดี และเป็นสัดส่วนชัดเจน มีห้องครัวแบบครัวปิดไว้ด้านในสุด ช่วยเก็บกลิ่นได้ดีเวลาทำอาหาร โดยเฉพาะห้องครัวที่อยู่ติดระเบียง ห้องขายแบบ Fully Furnished ได้เฟอร์นิเจอร์แบบ Built-in ครบ เครื่องใช้ไฟฟ้าบางส่วน ซื้อเพิ่มนิดหน่อยเข้าอยู่ได้เลย คุณภาพของวัสดุอยู่ในเกณฑ์ที่ค่อนข้างดีเมื่อเทียบกับราคา
    สถานะปัจจุบันของโครงการ
    โครงการ ไอดีโด ท่าพระ อินเตอร์เชนจ์ ปัจจุบันผ่าน EIA เรียบร้อยแล้ว โดยได้เปิด Pre-Sales ไปเมื่อวันที่ 13-14 ก.พ. 2559 ที่ผ่านมา ซึ่งได้รับการตอบรับจากลูกค้าเป็นอย่างดี โดยตัวโครงการเริ่มดำเนินการก่อสร้างโครงการแล้วตั้งแต่เดือน กุมภาพันธ์ 2559 และจะก่อสร้างแล้วเสร็จประมาณเดือน มกราคม 2561 สามารถเข้าชมห้องตัวอย่างได้แล้ววันนี้ที่สำนักงานขาย ตั้งแต่เวลา 9.00 น. - 18.00 น. ของทุกวัน 
    สอบถามเพิ่มเติม Call Center 02-316-2222

    รีวิว-พรีวิวล่าสุดอื่นๆ

    คอนโดติดรถไฟฟ้าล่าสุด

เว็บไซต์นี้มีการเก็บคุกกี้เพื่อเพิ่มความพึงพอใจในการใช้งานเว็บไซต์ และช่วยให้เราปรับปรุง และนำเสนอเนื้อหาตรงตามความสนใจของท่าน ท่านสามารถดู Privacy Notice และ ดู Cookies Policy ของเราได้ ที่นี่ ทั้งนี้ ท่านจะยินยอมให้เราเก็บคุกกี้ทั้งหมด หรือให้เก็บแค่บางส่วนโดยการคลิกเลือก ตั้งค่า

ท่านสามารถเลือกให้ความยินยอมการเก็บคุกกี้เป็นเรื่องๆ ได้ที่นี่

เมื่อคุณเข้าชมเว็บไซต์ หรือแอปพลิเคชั่น checkraka เราอาจจัดเก็บ หรือดึงข้อมูลจากเบราว์เซอร์ของคุณในรูปแบบของคุกกี้ และเทคโนโลยีอื่นที่คล้ายคลึง เช่น tag และ pixel (เรียกรวมกันว่า “คุกกี้”) ซึ่งมักเป็นข้อมูลที่ไม่สามารถระบุตัวตนได้โดยตรง แต่ช่วยให้คุณใช้งานเว็บไซต์ได้ปลอดภัย และตรงตามความต้องการมากขึ้น คุณอาจไม่ยินยอมให้เราเก็บคุกกี้บางประเภทได้ โดยการคลิกตามหัวข้อข้างล่างนี้

ประเภทคุกกี้
อ่านเพิ่มเติม ที่นี่
ยินยอม / ไม่ยินยอม
คุกกี้ที่จำเป็นต้องมีเสมอ
(Strictly Necessary)
คุกกี้สำหรับการใช้งานเว็บไซต์
(Functionality)
คุกกี้เพื่อเพิ่มประสิทธิภาพและวิเคราะห์
(Performance & Analytics)
คุกกี้เพื่อการตลาด
(Marketing)