ประเมินวงเงินรู้ผลใน 3 นาที
กับ กรุงศรี ออโต้ พร้อมสตาร์ท

เริ่มประเมินวงเงินพร้อมสตาร์ท
ผ่านมือถือ สแกนเลย

ดูวงเงินพร้อมสตาร์ทที่ได้รับ

  • คอนโด
  • คอนโด
  • ค้นหาแบบละเอียด
  • รีวิว-เยี่ยมชม คอนโดเลต มิสท์ พระราม 9 (Condolette Midst Rama 9)

    20 ต.ค. 58 11,677
    รีวิว-เยี่ยมชม คอนโดเลต มิสท์ พระราม 9 (Condolette Midst Rama 9)
    วันนี้ Checkraka.com จะพามาชมคอนโดมิเนียมพร้อมอยู่ แต่งครบ ใจกลางเมืองในย่านพระราม 9 โครงการนี้มีชื่อว่า คอนโดเลต มิสท์ พระราม 9 (Condolette Midst Rama 9) คอนโดมิเนียม High Rise จากพฤกษา เรียลเอสเตท บนทำเลศักยภาพที่เรียกว่าเป็น CBD แห่งใหม่ในอนาคตก็น่าจะได้ ตัวโครงการตั้งอยู่ติดริมถนนพระราม 9 เดินทางสะดวกสบายใกล้รถไฟฟ้า MRT สถานีพระราม 9, ใกล้ทางด่วน และยังใกล้เซ็นทรัลพระราม 9 แค่อึดใจ ฟังก์ชั่นการออกแบบสไตล์ Modern Luxury พูดได้ว่าเป็นโครงการที่สวยงามไม่แพ้ใครในย่านพระราม 9 เลยทีเดียว เดี๋ยวเราไปชมบรรยากาศจริงที่สร้างเสร็จแล้วของโครงการนี้กันค่ะ
    ข้อมูลโครงการ
    • เจ้าของและผู้พัฒนาโครงการ : บริษัท พฤกษา เรียลเอสเตท จำกัด (มหาชน)
    • ที่ตั้งโครงการ : ถนนพระราม 9 แขวงห้วยขวาง เขตห้วยขวาง กรุงเทพมหานคร 10300
    • อาคารชุดพักอาศัย : สูง 30 ชั้น จำนวน 1 อาคาร ประกอบด้วย ห้องชุดพักอาศัย จำนวน 433 ยูนิต
    • ขนาดที่ดินทั้งโครงการ : ประมาณ  2-0-87.6 ไร่
    • ลิฟต์โดยสาร 2 ตัว ลิฟต์บริการ 1ตัว
    • ห้องชุดพักอาศัย : มี 3 รูปแบบ คือ Studio, 1 Bedroom, 2 Bedrooms และ 3 Bedrooms
    • ที่จอดรถประมาณ 40%
    • ราคาเริ่มต้น 3.91 ล้านบาท สําหรับห้องแบบสตูดิโอ (ข้อมูล ณ 25 ก.ย. 58)
    • โครงการสร้างเสร็จพร้อมเข้าอยู่
    • วันที่เข้าเยี่ยมชม-รีวิวคอนโด 25 ก.ย. 58
    เจ้าของและผู้พัฒนาโครงการ
    บริษัท พฤกษา เรียลเอสเตท จำกัด (มหาชน) เป็นบริษัทมหาชน และจดทะเบียนอยู่ในตลาดหลักทรัพย์แห่งประเทศไทยตั้งแต่ปี 2548 บริษัทฯ ก่อตั้งเริ่มแรกขึ้นเมื่อวันที่ 20 เมษายน 2536 มีทุนจดทะเบียนปัจจุบันอยู่ที่ 2,285,298,800 ล้านบาท ชำระแล้ว 2,230,763,300 ล้านบาท ได้รับการจัดอันดับเครดิตองค์กรล่าสุด (16 เมษายน 2558) โดย TRIS Rating อยู่ที่ "A" บริษัทฯ ประกอบธุรกิจพัฒนาอสังหาริมทรัพย์ทั้งแนวราบ (ทาวน์เฮ้าส์และบ้านเดี่ยว) และแนวสูง (คอนโดมิเนียม) ทั้งในประเทศไทย และต่างประเทศ และเป็นบริษัทอสังหาริมทรัพย์ที่มีโรงงานสร้างบ้านแบบ Precast (พรีคาสท์ - สร้างบ้านโดยใช้เทคโนโลยีชิ้นส่วนคอนกรีตเสริมเหล็กสำเร็จรูป) เป็นของตัวเองแบบครบวงจร โดยปัจจุบันบริษัทฯ มีโครงการแบรนด์ "คอนโดเลต (Condolette)" ทั้งหมด 5 โครงการคือ คอนโดเลต ดเวล สุขุมวิท 26, คอนโดเลต ไอซ์ ราชเทวี (Sold out), คอนโดเลต ไลท์ คอนแวนต์, คอนโดเลต พิกเซล สาทร และ คอนโดเลต มิสท์ พระราม 9
    ทำเลที่ตั้ง
    คอนโดเลต มิสท์ พระราม 9 ตั้งอยู่ที่ ถนนพระราม 9 แขวงห้วยขวาง เขตห้วยขวาง กรุงเทพมหานคร 10300 อยู่ในย่าน CBD หรือย่านธุรกิจแห่งใหม่ของกรุงเทพมหานคร ห่างจาก MRT สถานีพระราม 9 ประมาณ 250 ม. พร้อมทั้งใกล้กับศูนย์การค้าชื่อดังอย่างเซ็นทรัลพระราม 9 ฟอร์จูน 400 เมตร ศูนย์การค้าฟอร์จูนทาวน์ ประมาณ 300 เมตร และเอสพลานาด ซีนีเพล็กซ์ รัชดาภิเษก ประมาณ 1.4 กิโลเมตร และตลาดนัดรถไฟ รัชดาฯ ประมาณ 1.6 กิโลเมตร

    ภาพแผนที่โครงการ คอนโดเลต มิสท์ พระราม 9

    ภาพแผนที่โครงการแจกแจงให้เห็นระยะใกล้-ไกลของโครงการกับสถานที่ หรือ Landmark รอบๆ โครงการที่น่าสนใจตำแหน่ง GPS โดยประมาณของโครงการ = 13.755750, 100.566396

    ยูเพลส อยู่ห่างจากโครงการประมาณ 150 เมตร

    Amsterdam Entertainment อยู่ห่างจากโครงการประมาณ 230 เมตร

    โรงแรมแกรนด์ เมอร์เคียว  ฟอร์จูน อยู่ห่างจากโครงการประมาณ 260 เมตร

    ศูนย์การค้าฟอร์จูนทาวน์ อยู่ห่างจากโครงการประมาณ 300 เมตร

    จีแลนด์ทาวเวอร์ อยู่ห่างจากโครงการประมาณ 300 เมตร

    เซ็นทรัล พลาซา พระราม 9 อยู่ห่างจากโครงการประมาณ 400 เมตร

    โรงพยาบาลพระราม 9 
    อยู่ห่างจากโครงการประมาณ 700 เมตร

    สถานเอกอัครราชทูตสาธารณรัฐประชาชนจีน อยู่ห่างจากโครงการประมาณ 900 เมตร

    เอสพลานาด ซีนีเพล็กซ์ รัชดาภิเษก อยู่ห่างจากโครงการประมาณ 1.4 กิโลเมตร

    ตลาดนัดรถไฟ รัชดา 
    อยู่ห่างจากโครงการประมาณ 1.6 กิโลเมตร 
    การเดินทางเข้า-ออกโครงการ
    1. เดินทางด้วยรถยนต์
    การเดินทางด้วยรถยนต์สามารถมาได้หลายเส้นทาง โดยมีเส้นทางหลักดังต่อไปนี้ค่ะ
    ขาเข้าโครงการ เส้นทางที่ 1 - จากถนนรัชดาภิเษก
    เดี๋ยวเราลองมาดูตัวอย่างการเดินทางด้วยรถยนต์ส่วนตัวจากถนนรัชดาภิเษก
    เส้นทางเข้าโครงการที่ 2 - จากถนนเพชรบุรี

    เส้นทางออกโครงการที่ 1 - ออกทางถนนรัชดาภิเษก
    เส้นทางออกโครงการที่ 2 - ไปขึ้นทางพิเศษศรีรัช
    2. เดินทางด้วยรถไฟฟ้า
    2.1 รถไฟฟ้า MRT สายสีน้ำเงิน - สถานีพระราม 9
    สำหรับการเดินทางด้วยรถไฟฟ้า สามารถเดินไปขึ้นรถไฟฟ้าได้ที่รถไฟฟ้า MRT สถานีพระราม 9 (ห่างจากโครงการประมาณ 250 เมตร) (ดูเส้นทางการเดินรถได้จากแผนที่รถไฟฟ้าด้านล่าง)

    เส้นทางการเดินรถของรถไฟฟ้า MRT และจุดเชื่อมต่อรถไฟฟ้าสายอื่นๆ
    MRT สถานีพระราม 9 เป็นสถานีที่ใกล้กับโครงการที่สุด (ห่างจากโครงการประมาณ 250 เมตร)

    รูปแสดงทางเข้า-ออก ของ MRT ของสถานีพระราม 9 ค่ะ
    โครงการอยู่ใกล้ทางเข้า-ออกที่ 3 ที่สุด
    (ขอบคุณภาพประกอบจาก 
    http://www.bangkokmetro.co.th/)
    2.2 รถไฟฟ้า Airport Rail Link - สถานีมักกะสัน
    นอกจากรถไฟ้า MRT สายสีน้ำเงิน ที่อยู่ใกล้กับโครงการแล้ว ก็ยังมี รถไฟฟ้า Airport Rail Link สถานีมักกะสัน (อยู่ห่างจากโครงการประมาณ 1 กม.) สามารถเดิน หรือนั่งวินมอเตอร์ไซค์ที่อยู่ใกล้โครงการไปได้ค่ะ

    เส้นทางการเดินรถไฟฟ้า Airport Rail Link
    (ขอบคุณภาพประกอบจาก 
    http://www.srtet.co.th)
    2.3 รถไฟฟ้า MRT สายสีส้ม - สถานีศูนย์วัฒนธรรม (โครงการในอนาคต คาดว่าจะเปิดบริการได้ในช่วงปี 2564 เป็นต้นไป)
    อีกหนึ่งโครงการรถไฟฟ้าที่จะมาผ่านแถวนี้ก็คือ โครงการรถไฟฟ้าสายสีส้ม (ตลิ่งชัน-มีนบุรี) ซึ่งจะมีด้วยกันทั้งหมด 29 สถานี สถานีที่คาดว่าจะใกล้กับโครงการที่สุดคือ สถานีศูนย์วัฒนธรรม โดยจะตั้งอยู่ใกล้ถนนรัชดาภิเษกบริเวณด้านหน้าห้างเอสพลานาด และยังเชื่อมต่อกับรถไฟฟ้า MRT สถานีศูนย์วัฒนธรรมแห่งประเทศไทยอีกด้วย

    เส้นทางการเดินรถไฟฟ้าสายสีส้มในอนาคต (คลิกเพื่อดูภาพขนาดใหญ่)

    วิดีโอจำลองเส้นทางการเดินรถของรถไฟฟ้าสายสีส้ม (ตลิ่งชัน-มีนบุรี)
    สถานีที่คาดว่าจะใกล้กับโครงการที่สุดคือ สถานีศูนย์วัฒนธรรม
    (ขอบคุณวิดีโอ YouTube จาก 
    ฤทธิชัย วุ้นศิริ)
    สภาพแวดล้อมใกล้เคียง
    สภาพแวดล้อมรอบๆ โครงการเป็นช่วงที่อยู่ใกล้แยกพระราม 9 มีรถผ่านไปผ่านมาอยู่ตลอดเวลาค่ะ ด้านฝั่งตรงข้ามของโครงการด้านถนนพระรามเก้า จะอยู่ระหว่าง G Land กับ U Place ถัดไปอีกหน่อยก็จะเป็นรถไฟฟ้า MRT สถานีพระราม 9 และเซ็นทรัล พระราม 9 ส่วนสถานที่อื่นๆ น่าสนใจรอบๆ โครงการจะกระจายตามจุดต่างๆ ตามที่เห็นข้างล่างนี้ค่ะ

    แผนที่แสดงบริเวณรอบๆ โครงการ

    บรรยากาศด้านหน้าโครงการ ฝั่งตรงข้ามก็จะเห็นสะพานข้ามแยกพระราม 9, ตึก U-Place และตึก G Land ที่กำลังสร้างอยู่

    บรรยากาศด้านขวามือโครงการค่ะ มีทางเดินเท้าสามารถเดินได้สะดวกดีค่ะ
    ส่วนถนนด้านหน้าโครงการก็คือ ถนนพระราม 9 เป็นถนน 6 เลน (วิ่งด้านละ 3 เลน)

    เดินมาทางขวานิดนึงก็จะมี สถานีบริการ NGV ของ ปตท.

    กลับมาที่โครงการนะคะ ตรงนี้คือ บรรยากาศด้านซ้ายมือโครงการค่ะ เดี๋ยวเราลองเดินไปทางซ้ายมือกันค่ะ

    เดินมาประมาณ 140 ม. ก็จะถึงแยกพระราม 9 มีวินมอเตอร์ไซค์อยู่ด้วยค่ะ

    ตรงแยกพระราม 9 จะมีทางข้ามถนนไปทางขวามือเพื่อไปรถไฟฟ้า MRT สถานีพระราม 9 ได้ค่ะ

    ตรงแยกนี้ก็จะมีทางม้าลายอยู่ รอข้ามตอนจังหวะไฟแดง

    พอข้ามมาแล้วก็เดินตรงไปอีกนิด

    ถึงแล้วค่ะ MRT สถานีพระราม 9 ทางออกที่ 3 ซึ่งทางเข้า-ออกนี้จะอยู่ใกล้กับโครงการที่สุดค่ะ
    รูปแบบตึก และตัวโครงการโดยรวม
    รูปแบบตัวอาคารรูปทรงตัว I จำนวน 1 อาคาร ยาวลึกเข้าไปด้านในตั้งฉากกับถนนพระราม 9 ความสูง 30 ชั้น โดยบริเวณชั้น 1-7 เป็นพื้นที่สำหรับจอดรถ ส่วนห้องพักอาศัยจะเริ่มตั้งแต่ชั้น 8 เป็นต้นไปค่ะ
    • ทิศเหนือจะเป็นโซนด้านหน้าโครงการติดกับถนนใหญ่พระราม 9 เป็นวิวที่ค่อนข้างเปิดโล่ง
    • ทิศตะวันออกโซนด้านหน้าติดกับสถานีบริการ NGV ของ ปตท. ส่วนด้านหลังติดกับคอนโดมิเนียมโครงการ Aspire พระราม 9 ความสูง 25 ชั้น ห้องทางทิศนี้ก็อาจจะโดนบังวิวบ้างในส่วนที่ติดกับคอนโด Aspire
    • ทิศใต้หรือด้านหลังของโครงการจะติดกับคลองสามเสนใน และห่างออกไปไม่ไกลมากก็จะเป็นทางด่วนพิเศษศรีรัช ได้วิวเปิดโล่งเช่นกัน
    • ทิศตะวันตกจะติดกับคอนโดมิเนียมโครงการ IDEO Mobi พระราม 9 ความสูง 28 ชั้น ซึ่งห้องฝั่งนี้ก็จะโดนบังวิวไปแบบเต็มๆ
    มาดูในส่วนของ Floor Plan ของโครงการกันค่ะ ว่าแต่ละชั้นมีอะไรอยู่ตรงไหนบ้าง


    ชั้น G : ด้านหน้าจะเป็น Lobby, ตู้จดหมาย, ลิฟต์โดยสาร 2 ตัว และลิฟต์บริการ 1 ตัว เป็นลิฟต์ขนาดใหญ่มาก และเป็น Hi-speed ค่ะ พื้นที่จอดรถบริเวณรอบอาคาร อัตราส่วนการใช้ลิฟต์อยู่ที่ 216 ยูนิตต่อลิฟต์ 1 ตัว 
    ซึ่งเป็นตัวเลขที่เกินมาตรฐานไปค่อนข้างมากอยู่ ในช่วงเวลาเร่งรีบคงต้องรอกันนานหน่อย 
    ชั้น 2 - ชั้น 7 : จะเป็นส่วนของพื้นที่จอดรถทั้งหมด

    ชั้น 8 : จะเป็นสิ่งอำนวยความสะดวกหลักๆ ของโครงการอย่างสระว่ายน้ำ, ห้องฟิตเนส และห้องสมุด
    นอกจากนี้ชั้นนี้ยังมีห้องพักอาศัยอยู่อีก 16 ยูนิต โดยมี 5 ยูนิตที่จะอยู่ติดกับสระว่ายน้ำ

    ชั้น 9 - ชั้น 23 : จะเหมือนกันคือเป็นพื้นที่พักอาศัยทั้งหมด มีจำนวนห้องพักอาศัยอยู่ที่ 20 ยูนิต/ชั้น


    ชั้น 24 - ชั้น 29 : เป็นพื้นที่พักอาศัยทั้งหมด แต่จะมีจำนวนห้องพักอาศัยน้อยลงมาหน่อยอยู่ที่ 17 ยูนิต/ชั้น

    ชั้น 30 : คล้ายกันกับชั้น 24 - 29 คือเป็นพื้นที่พักอาศัยทั้งหมด แต่มีจำนวนห้องลดลงไปอีกเหลือเพียง 15 ยูนิต และมีห้องแบบ 3 ห้องนอนเพิ่มเข้ามาด้วย ทำให้ค่อนข้างได้ความเป็นส่วนตัวมากกว่าชั้นอื่น

    ชั้น 31 : ชั้นดาดฟ้าจัดเป็นสวน และพื้นที่พักผ่อนแบบเต็มพื้นที่พร้อม BBQ Roof Terrace
    และ 
    Sky Garden รองรับการจัดปาร์ตี้แบบชิลล์ๆ
    ส่วนกลางและสิ่งอำนวยความสะดวก
    ในส่วนของสิ่งอำนวยความสะดวกทางโครงการจัดมาให้ลูกบ้านพอสมควร โดยสิ่งอำนวยความสะดวกของโครงการจะอยู่บริเวณชั้น 2-7 ซึ่งเป็นพื้นที่จอดรถ, ชั้น 8 จะเป็นสิ่งอำนวยความสะดวกหลักๆ ของโครงการ และชั้น 31 โดยสิ่งที่ให้มา ประกอบด้วย
    • Lobby ความสูง 7 เมตร
    • ระบบ Wireless Internet ในบริเวณ Lobby
    • ห้องจดหมาย
    • ลิฟต์โดยสาร 2 ตัว ลิฟต์บริการ 1 ตัว
    • ห้องออกกำลังกาย พร้อมเครื่องออกำลังกายประมาณ 6 เครื่อง
    • สระว่ายน้ำ พร้อมจากุซซี่
    • ห้องสมุด หรือห้องมัลติฟังก์ชั่น
    • สวนสีเขียว และโซนนั่งเล่นชมวิวบนชั้น 31
    • ที่จอดรถประมาณ 40%
    • กล้อง CCTV
    • พนักงานรักษาความปลอดภัย 24 ชั่วโมง
    • ระบบ Key Card Access Control
    • ระบบป้องกันอัคคีภัย
    • ระบบไฟฟ้าแสงสว่างฉุกเฉิน บริเวณทางเดิน และบันไดหนีไฟ

    ทางเข้าโครงการจะมีกล้อง CCTV ติดตั้งไว้ให้ 2 ตัว และมีรั้วกั้นอีกชั้นหนึ่งก่อนจะเข้าถึงตัวโครงการ

    ทางซ้ายของประตูทางเข้าที่ติดกับรั้วจะเป็นป้อมยาม

    ติดกับป้อมยามทางโครงการจัดชุดเก้าอี้โทนสีครีมเทาแบบ Outdoor ไว้สำหรับเป็นพื้นที่นั่งเล่นชิลล์ๆ

    มีทางลาดเอียงที่ออกแบบมาอำนวยความสะดวกสำหรับรถเข็นคนพิการด้วยค่ะ

    ประตูทางเข้าโครงการที่จะเข้าไปยังส่วนของ Lobby หรือโถงต้อนรับ

    เยื้องๆ กับประตูทางเข้า Lobby นี้จะเป็นพื้นที่จอดรถสำหรับ Visitor ด้านหน้าโครงการ

    สำหรับที่จอดรถรถของลูกบ้านทางเข้า-ออกจะอยู่ทางด้านขวาของตัวอาคาร เป็นถนนกว้าง 2 เลน ขับรถสวนกันได้
    ระบบบัตรผ่านตรงบริเวณไม้กระดกใช้ระบบ Censor เหมือน Easy Pass ทำให้ลูกบ้านไม่ต้องยื่นมือออกมาปี๊บบัตร
    ไม่เปียกเวลาฝนตก สะดวก และรวดเร็วกว่าค่ะ

    ขับตรงเข้ามาไม่ไกลจะเจอทางขึ้น-ลงลานจอดรถในอาคาร ซึ่งจะอยู่ทางซ้ายมือ

    แต่หากไม่อยากขึ้นไปจอดด้านบนอาคารจอดรถ จะขับวนไปด้านหลังอาคารก็มีพื้นที่ให้จอดรถเช่นกัน

    หน้าตาพื้นที่จอดรถด้านหลังอาคาร สามารถจอดรถได้อีกประมาณเกือบ 20 คัน

    แต่หากขับเข้ามาใต้อาคารจะเป็นทางบังคับให้เลี้ยวขวาเพื่อขึ้นที่จอดรถ

    ขับขึ้นมาบนชั้นนี้สามารถจอดรถได้ประมาณ 6 คัน

    ลานจอดรถออกแบบมาให้ขับแบบวนขวานะคะ ตรงกลางจะเป็นประตูทางเข้าออกของบันไดหนีไฟ

    พื้นที่จอดรถด้านบนค่อนข้างกว้างอยู่ค่ะ

    ประตูจากลานจอดรถที่จะเข้าสู่ตัวอาคารเป็นระบบคีย์การ์ด

    Lobby แบบ Double volume สูงถึง 7 เมตร ให้ความรู้สึกโปร่งสบาย พร้อมสัญญาณ Wi-Fi

    จาก Lobby เดินเข้ามาด้านในถ้าเลี้ยวซ้ายไปจะเป็นส่วนของห้องน้ำสำหรับ Visitor ค่ะ
    แต่ถ้าจะขึ้นลิฟต์ไปยังส่วนของห้องพักต้องผ่านประตูนี้ค่ะ ซึ่งเข้าออกด้วยระบบคีย์การ์ด

    หน้าตาห้องน้ำสำหรับ Visitor หรือแขกที่มาติดต่อบริเวณชั้น G ค่ะ

    ที่นี่มีลิฟต์โดยสารมาให้ 2 ตัว และลิฟต์บริการ 1 ตัว ใช้ระบบคีย์การ์ดเช่นกัน ซึ่งต้องบอกว่าลิฟต์ที่นี่มีขนาดกว้าง
    และใหญ่มากๆ ล็อคชั้นให้สามารถเข้าออกได้เฉพาะชั้น Facility และชั้นของตัวเองเท่านั้นค่ะ

    ต้องบอกว่าลิฟต์ที่นี่เค้าใหญ่มาก สามารถจุได้กว่า 21 คนเลยที่เดียว นอกจากนี้เค้ายังมีปุ่มกดสำหรับผู้พิการด้วย
    โดยอัตราส่วนการใช้ลิฟต์อยู่ที่ 216 ยูนิตต่อลิฟต์ 1 ตัว

    ห้องฟิตเนสจะอยู่ที่ชั้น 8 ค่ะ ออกแบบมาเป็นกระจกบานใหญ่สำหรับให้ลูกบ้าน
    ได้ชื่นชมวิวเมืองได้แบบเต็มๆ ตา พร้อมเครื่องเล่น 6 เครื่อง

    ติดกับห้องฟิตเนสจะเป็นห้องมัลติฟังก์ชั่น ที่เป็นทั้งห้องสมุด ห้องนั่งเล่น หรือจะปรับเป็นห้องประชุมรวมไว้ในห้องเดียว
    มีโต๊ะยาวพร้อมเก้าอี้มาให้ 8 ตัว ส่วนอีกมุมหนึ่งของห้องก็จัดเป็นชุดโซฟานุ่มๆ
    และโต๊ะกลางสำหรับนั่งอ่านหนังสือในวันหยุดพักผ่อน

    บรรยากาศภายในห้องก็ชิลล์ๆ สามารถเลื่อนประตูกระจกออกไปด้านข้างเพื่อชมวิวเมือง หรือวิวสระว่ายน้ำได้อย่างเต็มที่

    สะว่ายน้ำเป็นแบบ See Through ระบบเกลือ ขนาด 30x5 เมตร ลึก 1.2 เมตร แต่ที่นี่ไม่มีสระเด็กให้นะคะ ตั้งอยู่ทางทิศตะวันออกจะไม่โดนแดดตอนบ่าย สามารถมาว่ายน้ำช่วงบ่ายๆ ได้สบายไม่ต้องกลัวร้อนค่ะ

    มีอ่างจากุซซี่ ความลึก 90 เมตร มาให้ด้วย ซึ่งถือว่าไม่ลึกมากถ้าคุณน้องๆ หนูๆ ที่โตหน่อยจะมาเล่นตรงนี้ก็น่าจะพอได้อยู่ค่ะ

    ย้ายขึ้นมาดูบนชั้น 31 หรือชั้นดาดฟ้ากันค่ะ อย่างที่บอกว่าชั้นนี้จัดเป็นพื้นที่สำหรับให้ลูกบ้านได้ขึ้นมานั่งเล่นดูดาว
    ชมวิวกรุงเทพฯ เพราะว่าวิวเปิดโล่งมากสามารถชมวิวได้แบบ 360 องศา

    สวนสีเขียวหรือ Sky Garden ขนาดใหญ่บนชั้นดาดฟ้า

    โซนนั่งเล่นที่สวยที่สุดอีกจุดหนึ่งของชั้นดาดฟ้า ถ้าได้มาจัดปาร์ตี้ ชมวิวเมืองยามค่ำคืนคงจะชิลล์มิใช่น้อย
    ภาพห้องตัวอย่างและ Lay out
    ห้องของโครงการนี้ขายแบบ Fully Furnished ให้เฟอร์นิเจอร์ของ Modernform ทั้งเฟอร์นิเจอร์แบบ Built-in และเฟอร์นิเจอร์แบบลอยตัว ไม่ว่าจะเป็นโต๊ะ ตู้เสื้อผ้า เตียง โซฟา ชั้นวางทีวี เตาไฟฟ้า เครื่องดูดควัน วอลล์เปเปอร์ และ Digital Door Lock ยกเว้นเครื่องใช้ไฟฟ้า (ทีวี ตู้เย็น ไมโครเวฟ เครื่องซักผ้า) และของตกแต่งที่ไม่ได้ให้ นอกจากนี้ทางโครงการยังมีแอร์ของ Samsung ติดตั้งมาให้ด้วย โดย 1 ห้องนอนจะได้ 2 ตัว ที่บริเวณห้องนอน 1 ตัว และห้องนั่งเล่นอีก 1 ตัว
    การออกแบบดีไซน์ของห้องแต่ละ Type ทางโครงการได้ออกแบบโดยคำนึงถึงสิ่งแวดล้อมรอบโครงการหมดแล้ว มีความโดดเด่นอยู่ตรงที่ ระเบียงแบบ Double glass คือระเบียงจะมีกระจก 2 ชั้น ถ้าปิดข้างในเปิดข้างนอกก็จะเป็นระเบียงปกติธรรมดา แต่ถ้าเปิดข้างใน ปิดข้างนอกปุ๊บ พี้นที่ตรงระเบียงก็จะกลายเป็นแบบ Indoor ขึ้นมาให้เราได้ใช้ฟังก์ชั่นได้มากขึ้น สามารถนั่งเล่นได้
    1. ห้องแบบ Studio (คลิกเพื่อชมแปลนห้อง)
    2. ห้องแบบ 1 ห้องนอน (คลิกเพื่อชมแปลนห้อง)
    3. ห้องแบบ 2 ห้องนอน (คลิกเพื่อชมแปลนห้อง)
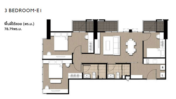
    4. ห้องแบบ 3 ห้องนอน (Sold Out) (คลิกเพื่อชมแปลนห้อง)
    ภาพห้องตัวอย่างแบบ 1 ห้องนอน ขนาด 34.58 ตร.ม.

    ประตูแบบ Over size ขนาดใหญ่กว่ามาตรฐาน สูง 2.4 กว้าง 1.1 เมตร วัสดุประตูเป็นไม้หนา 36 มม.

    ประตูระบบ Digital Door Lock ของ Samsung ใช้ได้ทั้งระบบการ์ด และรหัสผ่าน 

     เปิดเข้ามาจะเป็นห้องครัว มีชุดครัวของ Modernform ทั้งทางซ้าย และขวา
    เคาน์เตอร์ครัวหน้า Top เป็นหินสังเคราะห์ง่ายต่อการทำความสะอาด

    มีช่องเก็บของให้ด้านบนแบบนี้ค่ะ บานพับประตูเป็นแบบ Soft Close ผนังเป็นกระเบื้องสีขาวแบบนี้เลย

    ได้เตาไฟฟ้า 2 หัวของ FRANKE

    อ่างล้างจานแบบฝังของ FRANKE เช่นกัน

    เคาน์เตอร์ครัวอีกฝั่งได้ตามแบบนี้เลยค่ะ มีช่องเก็บของให้ทั้งข้างบน และข้างล่างเช่นกัน
    ตรงจุดนี้ทำเป็นพื้นที่สำหรับเตรียมอาหารก็น่าจะดีนะคะ

    เปิดตู้ด้านบนมามีช่องให้เก็บของพอสมควรเลยค่ะ

    ห้องครัวเป็นครัวแบบปิดนะคะ มีประตูกระจกบานเลื่อนแบบเลื่อนเข้าหากัน กั้นเป็นสัดส่วนระหว่างห้องครัวกับห้องนั่งเล่น ข้อดีคือเวลาที่ทำอาหารแล้วกลิ่นจะไม่กระจายออกไปรบกวนโซนอื่นๆ ของห้องค่ะ

    มุมมองจากห้องนั่งเล่นมองไปยังห้องครัวค่ะ ลืมบอกไปว่าเพดานของห้องสูง 2.7 เมตร
    ซึ่งถือว่าค่อนข้างสูงกว่ามาตรฐานเลยทีเดียว พื้นลามิเนตหนา 8 มม.

     ได้ชุดโต๊ะทานข้าวพร้อมเก้าอี้ทานข้าว 2 ตัว และถัดเข้ามาเป็นห้องรับแขก มีโซฟาให้ค่ะ

    ได้ชั้นวางทีวีลอยตัวแบบนี้ค่ะ ระยะดูทีวีค่อนข้างใกล้ไปนิด อาจจะไม่สามารถติดทีวีขนาดใหญ่ได้
    แต่ก็ยังอยู่ในระยะที่พอดูได้ค่ะ

    ประตูที่จะออกไประเบียงเป็นประตูกระจกบานเลื่อนแบบ 3 ตอนค่ะ เหนือประตูมีแอร์ Samsung มาให้ 1 เครื่อง

    ด้านจับ และตัวล็อคที่ประตูเป็นแบบนี้ค่ะ

    ระเบียงที่นี่ค่อนข้างโดดเด่นมากค่ะ เพราะเป็นระเบียงแบบ Double glass เป็นกระจก 2 ชั้น
    สามารถเพิ่มพื้นที่ในการใช้สอยตรงระเบียงได้มากขึ้น หรือถ้าอยากเทควิวก็เปิดประตูที่ระเบียง
    แล้วปิดประตู Double glass หรือจะลองหาโต๊ะเก๋ๆ มาตั้งเพื่อจิบน้ำชายามบ่าย หรือมานั่งชมวิวยามค่ำคืนก็ดีนะคะ

    นอกจากนี้ยังเป็นระเบียงที่ยาวเชื่อมต่อกันจากห้องนั่งเล่นยาวไปจนถึงห้องนอน

     คอมเพรสเซอร์แอร์ 2 ตัวจะอยู่ด้านใน มีประตูปิดไว้เรียบร้อย สามารถทำงานดูแลรักษาได้อย่างง่ายดาย

    ย้ายไปดูห้องนอนกันบ้างค่ะ ห้องนอนแบ่งสัดส่วนแยกจากห้องรับแขกด้วยกระจกบานเลื่อนแบบ 3 ตอน

    มีเตียงนอนให้ขนาด 5 ฟุต ไม่รวมฟูกที่นอน ไฟในห้องได้เป็นดาวน์ไลท์สี่เหลี่ยม

    ในห้องนอนได้แอร์ Samsung มาให้อีก 1 เครื่อง ติดตั้งอยู่เหนือประตูตรงระเบียง

    ด้านข้างของเตียงยังมีพื้นที่เหลือสำหรับตั้งโต๊ะข้างเตียง และเดินได้อีกพอสมควร

    ย้ายไปดูห้องน้ำกันบ้างค่ะ

    ทางด้านซ้ายก่อนเข้าห้องน้ำจะเป็นตำแหน่งของตู้เสื้อผ้า ซึ่งโครงการให้ตู้เสื้อผ้า Built-in ของ Modernform
    หน้าบานข้างหนึ่งเป็นกระจกเงา อีกข้างหนึ่เป็นแบบไฮกลอส

    ในห้องน้ำแยกโซนเปียกโซนแห้งไว้ชัดเจนด้วยฉากกั้นอาบน้ำกระจกเทมเปอร์กลาส ยกธรณีสูงขึ้นประมาณ 5 ซม.
    ป้องกันน้ำไหลออกมาด้านนอก
     ในโซนอาบน้ำทางโครงการเจาะช่องที่กำแพงไว้สำหรับวางของแบบนี้ค่ะ

    สุขภัณฑ์ต่างๆ ภายในห้องน้ำเป็นของ American Standard แต่อ่างล่างหน้าเป็นของ Mogen
    ประตูห้องน้ำเป็นบานไม้แบบนี้ ข้อดีคือสวย และทนทานบวมน้ำยาก
    ภาพห้องตัวอย่างแบบ 1 สตูดิโอ ขนาด 22.30 ตร.ม.

    ประตูระบบ Digital Door Lock เหมือนกัน

     เข้ามาทางด้านซ้ายจะเป็นครัวเช่นเดียวกัน

    แต่ห้องนี้ด้านขวาจะเป็นห้องน้ำค่ะ โดยประตูห้องน้ำจะเป็นแบบบานเลื่อน เพื่อประหยัดพื้นที่

    สุขภัณฑ์ในห้องน้ำเป็นของ American Standard และอ่างล่างหน้าเป็นของ Mogen เช่นกัน

    มีสวิตช์ และปลั๊กไฟติดตั้งมาให้ข้างอ่างล้างหน้า

    ระหว่างครัวกับห้องนอนด้านในจะมีประตูกระจกบานเลื่อนกั้นไว้ให้เป็นสัดส่วน

    เข้ามาภายในห้องนอนก็จะมีเตียงนอนขนาด 5 ฟุต อยู่ทางขวามือ

    ด้านข้างของเตียงเป็นตำแหน่งของโต๊ะทานข้าว วอลล์เปเปอร์จริงที่ได้จะเป็นโทนสีเทาเท่านั้นนะคะ
    ที่เห็นเป็นลายๆ บนผนังหัวเตียงทางโครงการเพียงแค่ตกแต่งมาให้ดูเป็นตัวอย่าง

    โต๊ะทานข้าวแบบ 1 ที่นั่ง หรือจะหาเก้าอี้แบบพับมานั่งอีกตัวก็ได้นะคะ
    ใช้เสร็จแล้วก็พับเก็บสะดวกดีค่ะ และก็ช่วยประหยัดพื้นที่อีกด้วย

    คอมเพรสเซอร์แอร์จะอยู่ด้านนอกระเบียง มีประตูระแนงปิดไว้เพื่อความเป็นระเบียบและเรียบร้อย

    ความสูงของราวระเบียงประมาณ 1 เมตร

    ปลายเตียงเป็นตำแหน่งของตู้เสื้อผ้าแบบ Built-in และชั้นวางทีวี
    ซึ่งมีพื้นที่ปลายเตียงเหลืออีกค่อนข้างเยอะ เดินได้แบบสบายๆ

    ภาพรวมๆ จากอีกมุมหนึ่งของห้องค่ะ 
    ราคาและค่าใช้จ่ายที่เกี่ยวข้องโดยประมาณ (25 ก.ย. 58)
    ราคาเริ่มต้นแบบ Studio อยู่ที่ 3.91 ล้านบาท
    ค่าส่วนกลาง : 55 บาท/ตร.ม./เดือน (ชำระล่วงหน้า 1 ปี) ผู้ซื้อเป็นผู้ชำระ
    เงินกองทุนแรกเข้า : 550 บาท/ตร.ม. (เก็บครั้งเดียว) ผู้ซื้อเป็นผู้ชำระ
    ค่าธรรมเนียมการโอนกรรมสิทธิ์ : ผู้ซื้อและผู้ขายแบ่งชำระค่าใช้จ่ายคนละครึ่ง
    ค่ามิเตอร์ไฟฟ้า : ผู้จะซื้อเป็นผู้ชำระ
    ค่าเงินประกันมิเตอร์น้ำ : ผู้จะซื้อเป็นผู้ชำระ 
    ภาพรวมโดยสรุปของโครงการ
    • การเดินทางเข้าออกโครงการ - การเดินทางเข้าออกโครงการที่สะดวกที่สุดคือใช้รถไฟฟ้าใต้ดิน MRT สถานีพระราม 9 ซึ่งห่างจากโครงการประมาณ 250 เมตรค่ะ ซึ่งสามารถข้ามไปได้สะดวกโดยทางม้าลาย สำหรับการเดินทางด้วยรถยนต์ก็เข้าออกได้สะดวกในแง่ของเส้นทาง หากอยู่ถนนพระราม 9 ฝั่งตรงข้ามก็สามารถกลับรถเข้าได้ที่แยก อ.ส.ม.ท. หรือถ้าไม่อยากกลับรถก็สามารถตรงจากถนนรัชดาภิเษกไปถนนอโศก-ดินแดงและเลี้ยวเข้าทางที่จะไปขึ้นทางด่วน แล้ววิ่งวนออกมาถนนเพชรอุทัยแล้วเลี้ยวซ้ายเข้าพระราม 9 แต่ถนนพระราม 9 นี้ รถค่อนข้างเยอะ ถ้าออกจากโครงการเพื่อจะไปถนนรัชดาภิเษกอาจลําบากหน่อย เพราะต้องเบี่ยงเข้าขวา นอกจากนั้น ด้านหลังโครงการก็มีทางด่วนศรีรัช ซึ่งมีทางขึ้น-ลงสําหรับไป-มาได้หลายที่สําคัญเลยทั้งพระราม 4 เพลินจิต แจ้งวัฒนะ บางนา-ดาวคะนอง อย่างไรก็ตามในอนาคตเนื่องด้วยสี่แยกรัชดา-พระราม 9 นี้ จะเป็น CBD แห่งใหม่ อาคารสำนักงานต่างๆ กำลังก่อสร้าง ดังนั้น การจราจรโดยรถยนต์ส่วนตัวบางช่วงอาจจะติดขัดมาก ดังนั้นรถไฟฟ้าใต้ดิน MRT จึงน่าจะสะดวกที่สุดสําหรับคนอยู่โครงการนี้ อีกทั้งยังมีจุดเชื่อมต่อ Airport link เพียง 1 สถานี และมีรถไฟฟ้าสายสีส้มมารองรับการขยายตัวนี้ด้วย
    • ทำเลรอบโครงการ - ถือว่าสะดวกสำหรับการหาซื้อของกินหรืออยากช้อปปิ้งค่ะ เพราะว่าอยู่ใกล้กับ Central พระราม 9 เพียง 400 เมตรเท่านั้น สามารถเดินไปได้ ข้ามไปอีกฝั่งก็เป็นฟอร์จูน มีเทสโก้โลตัส ศูนย์อาหาร และสินค้าไอทีจำหน่าย แต่อาจจะไม่สบายหน่อยค่ะ เพราะถ้าแดดร้อนๆ หรือฝนตกก็อาจจะเดินไปลำบากหน่อย หรือในอาคารยูเพลสที่อยู่ฝั่งตรงข้ามก็มี Starbucks และขนมเล็กๆ น้อยๆ ค่ะ
    • อาคารและตัวโครงการโดยรวม - เป็นคอนโด High Rise สูง 30 ชั้น จำนวน 1 อาคาร ด้านทิศเหนือ และทิศใต้จะค่อนข้างได้วิวแบบเปิดโล่ง ส่วน Facility ที่ให้มากก็กำลังพอดีไม่มากไปน้อยเกินไปมีทั้ง สระว่ายน้ำ, ฟิตเนส, ห้องสมุด และ Lobby ที่สูงถึง 7 เมตร โดดเด่นด้วยโซนนั่งเล่นมองเห็นวิวตอนกลางคืนชิลล์ๆ บนชั้นดาดฟ้า ติดอยู่นึงตรงปริมาณที่จอดรถอยู่ที่ 40% ถือว่าค่อนข้างน้อยไปหน่อย มีลิฟต์โดยสาร 2 ตัว มีลิฟต์บริการ 1 ตัว อัตราส่วนการใช้ลิฟต์อยู่ที่ 216 ยูนิตต่อลิฟต์ 1 ตัว แต่ถึงจะมีแค่ 2 ตัว แต่เป็นลิฟท์ขนาดใหญ่มาก และเป็น Hi-speed ด้วยค่ะ
    • รูปแบบห้องและวัสดุ - รูปแบบห้องมีให้เลือกค่อนข้างเยอะ ได้เฟอร์นิเจอร์ครบแบบ Fully Furnished โดยรวมแบ่งฟังก์ชั่นการใช้งานและพื้นที่ใช้สอยได้เป็นสัดส่วนและใช้ประโยชน์ได้ค่อนข้างเต็มที่ ไม่ว่าจะเป็นครัวแบบปิด หรือระเบียงแบบ Double glass ส่วนวัสดุที่ได้จัดว่าเป็นวัสดุเกรดดี ทั้งประตูแบบ Over size, Digital Door Lock หรือฉากกั้นอาบน้ำกระจกนิรภัย
    • ราคา - สำหรับห้องที่ยังเปิดขายอยู่ในปัจจุบันมีราคาเฉลี่ยต่อตารางเมตรอยู่ที่ 145,000 บาท ซึ่งราคาอาจจะดูสูงสักหน่อยแต่เนื่องจากห้องทั้งหมดจะอยู่บนชั้นที่ค่อนข้างสูงเริ่มต้นตั้งแต่ชั้น 27 ขึ้นไปเลยทำให้ราคาสูงตามไปด้วย แต่เมื่อเปรียบเทียบกับโครงการคอนโดที่อยู่ในบริเวณเดียวกันแล้ว จะเห็นว่าราคาต่อตารางเมตรนั้นใกล้เคียงกัน แต่โครงการคอนโดเลต มิสท์ พระราม 9 จะมีความได้เปรียบ และค่อนข้างคุ้มค่ากว่าตรงที่เป็นโครงการมือ 1 ที่ใหม่กว่า ได้เฟอร์นิเจอร์แบบ Fully Furnished รวมถึงวัสดุที่ได้ก็มีคุณภาพเกรดดีกว่า
    สถานะปัจจุบันของโครงการ (25 ก.ย. 58)
    ปัจจุบันโครงการ คอนโดเลต มิสท์ พระราม 9 มียอดขายไปแล้วกว่า 85% ซึ่งห้องที่ยังมีเปิดขายอยู่ตอนนี้ส่วนใหญ่จะเป็นห้องสตูดิโอ และแบบ 1 ห้องนอน โดยปัจจุบันก่อสร้างแล้วเสร็จแล้ว คาดว่าจะเปิดให้ลูกค้าเข้าอยู่ได้ประมาณต้นเดือนพฤศจิกายนที่จะถึงนี้

    รีวิว-พรีวิวล่าสุดอื่นๆ

    คอนโดติดรถไฟฟ้าล่าสุด

เว็บไซต์นี้มีการเก็บคุกกี้เพื่อเพิ่มความพึงพอใจในการใช้งานเว็บไซต์ และช่วยให้เราปรับปรุง และนำเสนอเนื้อหาตรงตามความสนใจของท่าน ท่านสามารถดู Privacy Notice และ ดู Cookies Policy ของเราได้ ที่นี่ ทั้งนี้ ท่านจะยินยอมให้เราเก็บคุกกี้ทั้งหมด หรือให้เก็บแค่บางส่วนโดยการคลิกเลือก ตั้งค่า

ท่านสามารถเลือกให้ความยินยอมการเก็บคุกกี้เป็นเรื่องๆ ได้ที่นี่

เมื่อคุณเข้าชมเว็บไซต์ หรือแอปพลิเคชั่น checkraka เราอาจจัดเก็บ หรือดึงข้อมูลจากเบราว์เซอร์ของคุณในรูปแบบของคุกกี้ และเทคโนโลยีอื่นที่คล้ายคลึง เช่น tag และ pixel (เรียกรวมกันว่า “คุกกี้”) ซึ่งมักเป็นข้อมูลที่ไม่สามารถระบุตัวตนได้โดยตรง แต่ช่วยให้คุณใช้งานเว็บไซต์ได้ปลอดภัย และตรงตามความต้องการมากขึ้น คุณอาจไม่ยินยอมให้เราเก็บคุกกี้บางประเภทได้ โดยการคลิกตามหัวข้อข้างล่างนี้

ประเภทคุกกี้
อ่านเพิ่มเติม ที่นี่
ยินยอม / ไม่ยินยอม
คุกกี้ที่จำเป็นต้องมีเสมอ
(Strictly Necessary)
คุกกี้สำหรับการใช้งานเว็บไซต์
(Functionality)
คุกกี้เพื่อเพิ่มประสิทธิภาพและวิเคราะห์
(Performance & Analytics)
คุกกี้เพื่อการตลาด
(Marketing)