ประเมินวงเงินรู้ผลใน 3 นาที
กับ กรุงศรี ออโต้ พร้อมสตาร์ท

เริ่มประเมินวงเงินพร้อมสตาร์ท
ผ่านมือถือ สแกนเลย

ดูวงเงินพร้อมสตาร์ทที่ได้รับ

  • คอนโด
  • คอนโด
  • ค้นหาแบบละเอียด
  • รีวิว-เยี่ยมชม ศุภาลัย ไลท์ รัชดาฯ-นราธิวาส-สาทร (Supalai Lite @ Ratchada-Narathivas-Sathorn)

    10 มิ.ย. 59 22,077
    รีวิว-เยี่ยมชม ศุภาลัย ไลท์ รัชดาฯ-นราธิวาส-สาทร (Supalai Lite @ Ratchada-Narathivas-Sathorn)
    สวัสดีค่ะ วันนี้ Checkraka.com ขอพาทุกท่านมาเยี่ยมชมโครงการคอนโดมิเนียมใจกลางกรุงเทพมหานคร ใกล้สาทร น่าจะถูกใจคนทำงานในเมืองพอสมควรเลยค่ะ เพราะสามารถเชื่อมต่อ BRT ไปสู่ BTS สถานีช่องนนทรีได้สะดวก หรือจะขับรถยนต์ก็สะดวกค่ะ เพราะติดถนนรัชดาภิเษก ใกล้ทางด่วน ซึ่งโครงการที่เรากล่าวถึงนั่นก็คือโครงการ ศุภาลัย ไลท์ รัชดาฯ-นราธิวาส-สาทร ตัวอาคารใช้สีสะอาดตาอย่างสีขาวไข่มุก (Pearl White) และสีเทาอ่อน ผสานการจัดวางที่ว่างและพื้นที่ใช้งานอย่างลงตัว ให้ความรู้สึกโล่ง โปร่ง สบาย ตัวอาคารและภายในห้องจะสวยแค่ไหน เราไปชมรีวิวกันค่ะ

    ภาพ 360 องศา บรรยากาศโดยรวมของห้องขนาด 81.5 ตร.ม.
    ข้อมูลโครงการ
    • เจ้าของและผู้พัฒนาโครงการ : บริษัท ศุภาลัย จำกัด (มหาชน)
    • ที่ตั้งโครงการ : ถนนรัชดาภิเษก แขวงช่องนนทรี เขตยานนาวา กรุงเทพมหานคร 10120
    • อาคารชุดพักอาศัย : สูง 27 ชั้น (รวมดาดฟ้า) จำนวน 1 อาคาร ประกอบด้วย ห้องชุดพักอาศัย จำนวน 566 ยูนิต และ ร้านค้า 7 ยูนิต
    • ขนาดที่ดินทั้งโครงการ : ประมาณ  4-1-14 ไร่
    • ลิฟต์โดยสาร 3 ตัว ลิฟต์บริการ 1 ตัว
    • ห้องชุดพักอาศัย : มี 2 รูปแบบ คือ 
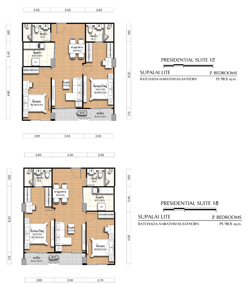
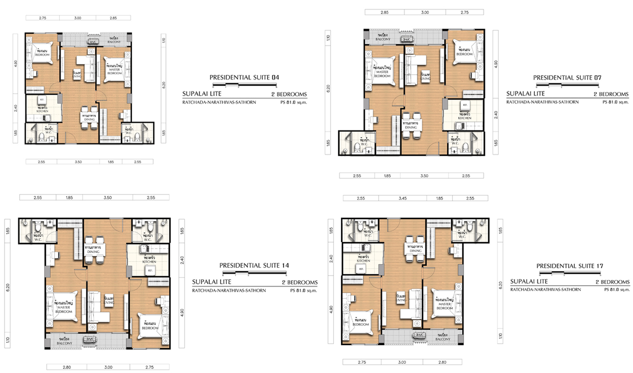
      1) Presidential Suite จะมีทั้งหมด 19 ห้อง อยู่ที่ชั้น 26 เพียงชั้นเดียว (1 ห้องนอน ขนาด 55.5-66.5 ตร.ม., 2 ห้องนอน ขนาด 76.5-83.5 ตร.ม. และ 3 ห้องนอน ขนาด 135 ตร.ม.)  
      2) Typical (1 ห้องนอน ขนาด 34.5-70 ตร.ม. และ 2 ห้องนอน ขนาด 81.5-86 ตร.ม.)
    • ที่จอดรถประมาณ 66%
    • ราคาเริ่มต้น 2.5 ล้านบาท สําหรับห้องแบบ 1 Bedroom ขนาด 34.5 ตร.ม. (ข้อมูล ณ 4 ก.ย. 58)
    • คาดก่อสร้างแล้วเสร็จปลายปี 2561
    • วันที่เข้าเยี่ยมชม-รีวิวคอนโด 4 ก.ย. 58
    เจ้าของและผู้พัฒนาโครงการ
    บริษัท ศุภาลัย จำกัด (มหาชน) เป็นบริษัทที่อยู่ในวงการธุรกิจอสังหาริมทรัพย์มาเป็นเวลากว่า 26 ปีแล้ว (ก่อตั้ง 26 มิถุนายน 2532) ปัจจุบันเป็นบริษัทมหาชนที่จดทะเบียนในตลาดหลักทรัพย์แห่งประเทศไทย มีทุนจดทะเบียนปัจจุบัน ทั้งสิ้น 1,770 ล้านบาท (ชำระแล้ว 1,716.55 ล้านบาท) มีผลงานในวงการอสังหาริมทรัพย์ทั้งในแนวราบ (บ้านและทาวน์โฮม) และแนวดิ่ง (คอนโดมิเนียม โรงแรม และสำนักงานให้เช่า) ตั้งแต่อดีตจนถึงปัจจุบันมากมายกว่า 3,000 โครงการ ทั้งในกรุงเทพฯ และต่างจังหวัดในเมืองใหญ่ทั่วประเทศ เช่น เชียงใหม่ ภูเก็ต หาดใหญ่ ชลบุรี พัทยา ระยอง ขอนแก่น และอุดรธานี เป็นต้น
    ทำเลที่ตั้ง
    ศุภาลัย ไลท์ รัชดาฯ-นราธิวาส-สาทร ตั้งอยู่ที่ ถนนรัชดาภิเษก แขวงช่องนนทรี เขตยานนาวา กรุงเทพมหานคร ใกล้ย่านธุรกิจในโซนสาทร, สีลม และพระราม 4 ห่างจาก BRT สถานีถนนจันทร์ ประมาณ 600 ม., ทางด่วนขั้นที่ 1 ด่านเลียบแม่น้ำ ประมาณ 1 กม., และทางด่วนขั้นที่ 2 ด่านสาธุประดิษฐ์ ประมาณ 2 กม.

    ภาพแผนที่โครงการ ศุภาลัย ไลท์ รัชดาฯ-นราธิวาส-สาทร

    ภาพแผนที่โครงการแจกแจงให้เห็นระยะใกล้-ไกลของโครงการกับสถานที่ หรือ Landmark รอบๆ โครงการที่น่าสนใจตำแหน่ง GPS โดยประมาณของโครงการ = 13.702617, 100.542444

    BRT สถานีถนนจันทร์ ห่างจากโครงการประมาณ 600 ม.

    เซ็นทรัล พระราม 3 ห่างจากโครงการประมาณ 1 กม.

    เทสโก้ โลตัส พระราม 3 ห่างจากโครงการประมาณ 650 ม.

    ดิอัพ พระราม 3 ห่างจากโครงการประมาณ 260 ม.

    แม็คโคร ห่างจากโครงการประมาณ 1.3 กม.

    ร้าน Anna & Charlie's Cafe ห่างจากโครงการประมาณ 150 ม.

    Villa Market สาขา ดิอัพ พระราม 3 ห่างจากโครงการประมาณ 260 ม

    KFC Drive Thru สาขา ดิอัพ พระราม 3 ห่างจากโครงการประมาณ 260 ม.
    การเดินทางเข้า-ออกโครงการ
    1. เดินทางด้วยรถยนต์
    การเดินทางด้วยรถยนต์สามารถมาได้หลายเส้นทาง โดยมีเส้นทางหลักดังต่อไปนี้ค่ะ
    ขาเข้าโครงการ เส้นทางที่ 1 - มาจากแยกวิทยุเข้าถนนสาทร

    เดี๋ยวเราลองมาดูตัวอย่างการเดินทางด้วยรถยนต์ส่วนตัวจากแยกวิทยุเข้าถนนสาทรกันดีกว่าค่ะ

    ตรงมาจากแยกวิทยุเข้าถนนสาทร

    ตรงไปเรื่อยๆ ประมาณ 1.6 กม.

    เลี้ยวซ้ายที่แยกสาทร-นราธิวาส

    ตรงมาบนถนนนราธิวาส 1.4 กม. จะเห็น Makro อยู่ฝั่งตรงข้าม

    ตรงมาอีก 750 ม.จะผ่าน BRT สถานีถนนจันทร์

    พอถึงแยกรัชดา-นราธิวาสให้เลี้ยวซ้าย

    พอเลี้ยวมาแล้วจะเข้าถนนรัชดาภิเษกค่ะ ให้ตรงไปอีก 180 เมตร

    โครงการอยู่ทางซ้ายมือค่ะ

    เลี้ยวซ้ายเข้าไปได้เลยค่ะ
    ขาเข้าโครงการ เส้นทางที่ 2 - (ก) ลงทางด่วนพระราม3 และ (ข) ลงทางด่วนสาธุประดิษฐ์

    ขาออกโครงการ เส้นทางที่ 1 - (ก) ขึ้นทางด่วน ด่านเลียบแม่น้ำ และ (ข) ขึ้นทางด่วน ด่านสาธุประดิษฐ์

    ขาออกโครงการ เส้นทางที่ 2 - ออกไปถนนสาทร และถนนสีลม

    ขาออกโครงการ เส้นทางที่ 3 - ออกไปถนนพระราม4 และถนนสุขุมวิท

    2. เดินทางด้วยรถด่วนพิเศษ และรถไฟฟ้า

    แผนที่แสดงสถานีรถด่วนพิเศษ และสถานีรถไฟฟ้าบริเวณใกล้เคียงโครงการ
    คลิกเพื่อดูภาพขยายใหญ่
    2.1 รถด่วนพิเศษ BRT สถานีถนนจันทร์ (ห่างจากโครงการประมาณ 600 ม.) - โครงการอยู่ห่างจากจาก BRT สถานีถนนจันทร์ ประมาณ 600 เมตร ซึ่งสถานีถนนจันทร์นี้จะอยู่ห่างจากสถานีสาทร 3 สถานี ถือว่าเป็นทางเลือกที่ดีในการเดินทางไปยังโซนธุรกิจย่านสาทรค่ะ นอกจากนี้ยังสามารถเดินไปเชื่อมต่อรถไฟฟ้า BTS สถานีช่องนนทรีได้อีกด้วย

    แผนที่เส้นทางการเดินรถของรถด่วนพิเศษ BRT สาทร-ราชพฤกษ์

    ตัวอย่างการเดินจาก BRT สถานีถนนจันทร์ ไปยังโครงการ โดยมีระยะห่างประมาณ 600 เมตรค่ะ

    วิดีโอแสดงข้อมูลรถด่วนพิเศษ BRT
    ขอบคุณวิดีโอ YouTube จาก Komson Sander
    2.2 รถไฟฟ้า BTS สถานีช่องนนทรี (ห่างจากโครงการประมาณ 2.8 กม.) - สำหรับรถไฟฟ้าที่ใกล้โครงการที่สุดก็คือ BTS สถานีช่องนนทรี อยู่ห่างจากโครงการประมาณ 2.8 กม. ค่ะ สามารถมาขึ้นที่สถานีนี้โดยตรง หรือขึ้นต่อมาจากรถโดยสารด่วนพิเศษ BRT สถานีถนนจันทร์ก็ได้ค่ะ

    แผนที่รถไฟฟ้า BTS
    ขอบคุณภาพจาก http://www.bts.co.th
    2.3 รถไฟฟ้า MRT สถานีศูนย์การประชุมแห่งชาติสิริกิติ์ (ห่างจากโครงการประมาณ 3.4 กม.) - ส่วนรถไฟฟ้า MRT นั้น ก็จะมีสถานีที่ใกล้ คือ สถานีศูนย์การประชุมแห่งชาติสิริกิติ์ อยู่ห่างจากโครงการประมาณ 3.4 กม. ค่ะ

    แผนที่รถไฟฟ้า MRT
    ขอบคุณภาพจาก http://www.mrta.co.th
    สภาพแวดล้อมใกล้เคียง

    แผนที่สภาพแวดล้อมใกล้เคียงรอบๆ โครงการ
    สภาพแวดล้อมด้านหน้าโครงการ

    บรรยากาศด้านหน้าโครงการหากมองเข้าไปตรงๆ ค่ะ

    บรรยากาศด้านหน้าโครงการหากมองไปทางซ้ายมือ

    บรรยากาศด้านหน้าโครงการหากมองไปทางขวามือ
    สภาพแวดล้อมด้านซ้ายโครงการ

    เดี๋ยวเราลองเดินไปทางซ้ายมือโครงการกันค่ะ ฟุตบาทด้านหน้าโครงการค่อนข้างกว้าง
    บรรยากาศก็สบายๆ เดินได้สะดวกดีค่ะ

    เดินจากโครงการมาประมาณ 120 ม. จะถึงป้ายรถประจำทาง ป้ายนี้ก็จะมีที่นั่งรอด้วยค่ะ

    สายรถประจำทางที่ผ่านก็เช่น สาย 22, 67 และ122

    มองไปฝั่งตรงข้าม จะเห็นจุดกลับรถค่ะ ห่างจากโครงการประมาณ 100 เมตร

    เดินต่อมาอีกหน่อยมองไปทางซ้ายมือจะเห็นหมู่บ้านลิ้นจี่

    พอเดินต่อไปก็จะเป็นช่วง Bike Lane มีป้ายบอกไว้อย่างเรียบร้อยดีค่ะ ไม่ให้รถยนต์ และมอเตอร์ไซค์ ผ่าน
    บรรยากาศตรงนี้จะมีต้นไม้เยอะหน่อย ร่มรื่นดีค่ะ
    สภาพแวดล้อมด้านขวาโครงการ

    เดี๋ยวเราลองเดินไปทางขวามือโครงการกันค่ะ

    เดินออกมาก็จะเจอกับร้านอาหารก่อนเลยค่ะ

    อย่างร้านนี้ก็จะขายเนื้อตุ๋น และมีอาหารตามสั่งด้วยค่ะ

    เดินตรงมาอีกหน่อยก็จะมีป้าย Bike Lane

    ทางกว้างเดิน และขี่จักรยานได้สะดวกดีค่ะ

    ตรงมาจากโครงการสักประมาณ 150 ม. ก็จะใกล้ถึงแยกรัชดา-นราธิวาสแล้วค่ะ
    จะเริ่มเห็นร้าน Anna & Charlie Cafe อยู่ทางขวามือ
    ส่วนถ้ามองไปไกลๆทางด้านซ้าย จะเห็น ศุภาลัย พรีเมียร์ รัชดาฯ-นราธิวาส-สาทร
    อีกหนึ่งโครงการคอนโดในย่านนี้จากศุภาลัยค่ะ

    เดินต่อมาก็จะผ่าน ร้าน Anna & Charlie Cafe ทางด้านขวา

    ตรงต่อมาจนถึงแยกรัชดา-นราธิวาส ก็จะมีทางม้าลายที่สามารถเดินข้ามไป ดิอัพ พระราม 3 Community Mall ได้ค่ะ
    รูปแบบตึก และตัวโครงการโดยรวม
    โครงการ ศุภาลัย ไลท์ รัชดาฯ-นราธิวาส-สาทร เป็นโครงการคอนโด High Rise ความสูง 27 ชั้น รวมชั้นดาดฟ้า มีจำนวนยูนิตทั้งหมด 566 ยูนิต และ ร้านค้า 7 ยูนิต ส่วนแปลงที่ดินโครงการมีขนาดประมาณ 4-1-14 ไร่ ทางเข้าโครงการตั้งอยู่ติดกับถนนรัชดาภิเษก ใกล้กับ BRT สถานีถนนจันทน์ 600 เมตร และเชื่อมต่อได้กับ BTS สถานีช่องนนทรี อีกทั้งยังใกล้กับทางด่วนอีกด้วย ตัวโครงการมีสัดส่วนพื้นที่สำหรับจอดรถอยู่ที่ 66% โดยสามารถจอดรถยนต์ได้ที่ชั้น 1 - 5 โดยจะล็อกตำแหน่งไว้ให้ห้องแบบ 2 ห้องนอนและห้อง Presidential Suite ส่วนชั้นที่อยู่อาศัยเริ่มตั้งแต่ชั้น 6 - 26 โดยชั้นที่ 6 จะเป็นที่ตั้งของส่วนกลางต่างๆ เช่น ห้องซาวน่า ฟิตเนส และสระว่ายน้ำ

    โมเดลของโครงการเมื่อมองจากทางด้านหน้าค่ะ
    ตัวอาคารจะไม่ได้ขนานไปถนนรัชดาภิเษกนะคะ จะอยู่เฉียงหน่อยตามรูปเลยค่ะ 

    เปลี่ยนทิศมาดูทางขวามือของโครงการ

    ด้านหลังของอาคารค่ะ

    สุดท้ายเป็นฝั่งขวามือของโครงการ ฝั่งนี้ที่ชั้น 6 จะเป็นส่วนกลางค่ะ 

    ทางเข้า-ออกโครงการเข้าได้ทางเดียวคือทางถนนรัชดาภิเษกค่ะ
    Floor Plan ชั้นต่างๆ ของโครงการ  ศุภาลัย ไลท์ รัชดาฯ-นราธิวาส-สาทร

    Master Plan แสดงแปลงพื้นที่โครงการ ทางเข้าออกและตำแหน่งในจุดต่างๆ ภายในอาคารบริเวณชั้น 1

    Floor Plan ชั้น 6 เป็นชั้นเริ่มต้นของยูนิตพักอาศัย และเป็นที่ตั้งของส่วนกลางด้วยค่ะ

    Floor Plan ชั้น 7

    Floor Plan ชั้น 8 - 25

    Floor Plan ชั้น 26 ชั้นนี้จะเป็นห้องแบบ Presidential Suite มีเพียง 19 ห้องเท่านั้น
    ที่ตั้งโครงการ โครงการ ศุภาลัย ไลท์ รัชดาฯ-นราธิวาส-สาทร

    ทางทิศตะวันตกเฉียงเหนือหรือทางด้านหลังของตัวอาคารจะติดกับแนวบ้านพักอาศัยสูง 2 ชั้นค่ะ
    ซึ่งก็ไม่ได้ส่งผลกระทบอะไรกับผู้อยู่อาศัย เพราะชั้นพักอาศัยเริ่มที่ชั้น 6 ค่ะ

    ด้านทิศตะวันตกและตะวันตกเฉียงใต้ ก็จะเป็นบ้านพักอาศัย 2 ชั้น เช่นกัน

    ด้านหน้าโครงการจะติดกับถนนรัชดาภิเษกและทางด่วนเฉลิมมหานคร

    สุดท้ายจะเป็นทางทิศตะวันออกเฉียงเหนือค่ะ จะเห็นว่าตรงนี้จะเป็นลักษณะ 3 เหลี่ยม
    ทางโครงการได้จัดทำเป็นสวนให้ลูกบ้านมานั่งเล่นได้
    บรรยากาศสำนักงานขายโครงการ ศุภาลัย ไลท์ รัชดาฯ-นราธิวาส-สาทร

    ที่ตั้งสำนักงานขายและที่ตั้งของโครงการศุภาลัย ไลท์ รัชดาฯ-นราธิวาส-สาทร ริมถนนรัชดาภิเษกค่ะ

    ด้านหน้าสำนักงานขาย

    บรรยากาศด้านในสำนักงานขายตกแต่งด้วยสีสว่าง เรียบง่ายตามคอนเซปต์ของโครงการ
    ส่วนกลางและสิ่งอำนวยความสะดวก
    ส่วนกลางและสิ่งอำนวยความสะดวกของโครงการศุภาลัย ไลท์ รัชดาฯ-นราธิวาส-สาทร จะอยู่ที่ชั้น 6 และ 27 ค่ะ ความพิเศษของการออกแบบตัวอาคาร คือการบิดผนังอาคารออกจากแกนของอาคารและแนวเส้นแสงหักมุมเป็นองค์ประกอบหลักในการออกแบบ ซึ่งการบิดผนังห้อง Sky Lounge และ ห้อง Fitness ออกจากแนวแกนของอาคารนั้น เพื่อสร้างเอกลักษณ์ของอาคารที่ไม่มีใครเหมือน อีกทั้งยังเป็นการเปิดมุมมองใหม่ของผู้อยู่อาศัย นอกจากนี้ สิ่งอำนวยความสะดวกอื่นๆ ยังประกอบด้วย
    1. พนักงานรักษาความปลอดภัยตลอด 24 ชั่วโมง
    2. ระบบลิฟต์ล็อกชั้น ด้วย Key Card Access Control
    3. กล้องวงจรปิด CCTVSmoke & Heat Detector
    4. Fire Alam
    5. ที่จอดรถชั้น 1-5
    6. ลิฟต์โดยสาร 3 ตัว ลิฟต์บริการ 1 ตัว
    7. ร้านค้า 7 ร้าน (Shop)
    8. ห้องพักจดหมาย (Mail Room)
    9. สกายเลาจ์ (Sky lounge)
    10. สวนดาดฟ้า (Roof Garden)
    11. สวนหย่อม (Garden)
    12. โถงต้อนรับ (Lobby)
    13. ห้องออกกำลังกาย (Fitness)
    14. สระว่ายน้ำ (Pool)
    15. ห้องซาวน่า (Sauna)

    ตำแหน่งที่ตั้งของส่วนกลางโครงการศุภาลัย ไลท์ รัชดาฯ-นราธิวาส-สาทร

    สระว่ายน้ำระบบเกลือ (Infinity Edge) พร้อมสระเด็ก

    ฟิตเนสอยู่บริเวณเดียวกันกับสระว่ายน้ำ และตัวผนังของฟิตเนสยังบิดออกจากแนวแกนของอาคาร
    ทำให้เปิดมุมมองใหม่ของผู้อยู่อาศัยด้วยค่ะ

    สวนดาดฟ้าที่ชั้น 27

    ที่นั่งพักผ่อนพร้อมระแนงบังแดดที่ดาดฟ้า

    Sky Lounge บริเวณชั้น 27

    บรรยากาศจำลองภายใน Sky Lounge

    ภาพรวมสวนบริเวณชั้น 1

    สวนพักผ่อนหน้าโครงการพร้อมเครื่องเล่นสำหรับเด็ก
    ภาพห้องตัวอย่างและ Lay out
    ห้องของโครงการนี้ จะให้ชุดครัว วอลเปเปอร์ ฉากกั้นอาบน้ำแบบกระจกนิรภัย เครื่องปรับอากาศ เครื่องทำน้ำร้อน และ VDO Door Phone ค่ะ ส่วนเฟอร์นิเจอร์อื่นๆ ที่เห็นในห้องเพียงแค่ตกแต่งมาให้ดูเป็นไอเดียเท่านั้นค่ะ สำหรับห้องของโครงการนี้มีห้องให้เลือก 2 Type ด้วยกัน ซึ่งแต่ละ Type มีขนาดต่างๆ ดังนี้
    1) Presidential Suite จะมีทั้งหมด 19 ห้อง อยู่ตั้งอยู่ที่ชั้น 26 ค่ะ โดยห้องจะมีขนาดใหญ่กว่าแบบ Typical 
    2) Typical จะอยู่ที่ชั้น 6-25 มีแบบ 1 ห้องนอนและ 2 ห้องนอน
     ภาพห้องตัวอย่างแบบ 1 Bedroom ขนาด 50 ตร.ม.

    Unit Plan 1 ห้องนอน ขนาด 50 ตร.ม.
    ภาพ 360 องศา 1 Bedroom ขนาด 50 ตร.ม.

    บรรยากาศโดยรวมของห้องขนาด 50 ตร.ม. ค่ะ

    ห้องนั่งเล่นและพื้นที่รับประทานอาหาร

    ห้องน้ำ

    ห้องนอน
      
    ด้านหน้าห้องตัวอย่างขนาด 50 ตร.ม. ไม่มีประตูมาให้ค่ะ ทางเข้าจึงดูโล่งๆ  

    มาดูชุดครัวที่ทางโครงการให้มากันค่ะ เป็นสีขาวและตัวลิ้นชักเป็นสีน้ำตาลเข้มสวยงามทีเดียว
    มาพร้อมกับอ่างล้างจานขนาดพอดีๆ ส่วนไมโครเวฟ เตาไฟฟ้า เครื่องดูดควันไม่ได้มีให้นะคะ

    ส่วนฝั่งตรงข้ามจะเป็นพื้นที่สำหรับวางตู้เย็น เครื่องซักผ้า และติดตั้ง VDO Door Phone ไว้บริเวณใกล้ๆ ประตูค่ะ เวลาใครจะมาหาก็สามารถเห็นหน้าและโต้ตอบกันได้กับผู้มาติดต่อบริเวณชั้น 1 และในพื้นที่ครัวนี้ก็หมดกังวลเรื่องน้ำกระเด็นเวลาล้างจานชาม หรือทำอาหารแล้วน้ำมันกระเด็นลงพื้น เพราะเป็นพื้นแกรนิตโต้ สามารถโดนน้ำได้ ทำความสะอาดง่ายค่ะ 

    ต่อไปจะเป็นพื้นที่รับประทานอาหารและโซนนั่งเล่นค่ะ โซนรับประทานอาหารนี้
    โครงการจัดเป็นโต๊ะเล็กและเก้าอี้ 2 ตัวไว้ให้ จริงๆ สามารถวางชุดสำหรับ 4 ท่านได้นะคะ
      
    ถัดจากโซนรับประทานอาหารก็เป็นโซนนั่งเล่นค่ะ 

    พื้นที่ระเบียงของห้องนี้มีขนาดไม่ได้ใหญ่ แต่ก็สามารถตากผ้าได้ ยืนรับลมชมวิวได้ค่ะ ส่วนคอมเพรสเซอร์แอร์ทางโครงการติดตั้งชั้นเหล็กสำหรับวางให้ และหันหน้าออกไปด้านนอกเพื่อป้องกันไม่ให้ความร้อนพัดเข้าสู่ภายในห้องค่ะ

    ต่อมาเราจะไปดูห้องน้ำและห้องนอนกันบ้างค่ะ ห้องน้ำจะมีห้องเดียวอยู่ทางซ้ายมือ
    ส่วนห้องนอนจะอยู่ทางด้านขวามือ เดี่ยวเราไปดูห้องน้ำกันก่อนนะคะ

    ภายในห้องน้ำทางโครงการจะให้ตามที่ห้องตัวอย่างโชว์เลยค่ะ ประกอบด้วย อ่างล้างหน้า ชั้นเก็บของใต้อ่าง กระจก โถสุขภัณฑ์พร้อมสายฉีด ฉากกั้นอาบน้ำแบบกระจกนิรภัย ฝักบัว  Rain shower และเครื่องทำน้ำอุ่นค่ะ

    Rain shower และฝักบัวที่ทางโครงการให้มาค่ะ

    ตรงกันข้ามกับห้องน้ำก็จะเป็นห้องนอน ห้องนอนกว้างขวางทีเดียวค่ะ ทางโครงการจัดแบ่งไว้เป็น 3 โซน
    โซนแรกคือโซนแต่งตัว โซนที่สองคือโซนวางเตียงนอน และโซนสุดท้ายเป็นโซนนั่งเล่นริมหน้าต่าง

    โซนแต่งตัวจะอยู่ใกล้ๆ ประตูค่ะ เวลาออกมาจากห้องน้ำก็เข้าห้องมาล้วแต่งตัวได้เลย ต่อมาก็เป็นตำแหน่งวางเตียงนอน
    จะเห็นไว้แอร์ที่ให้เป็นแอร์แบบฝังลงไปในฝ้าค่ะ สำหรับ 1 ห้องนอนจะได้แอร์ 2 ตัว ที่ห้องนั่งเล่น 1 เครื่อง และที่ห้องนอน 1 เครื่องค่ะ

    สุดท้ายจะเป็นจุดวางโซฟาเอาไว้นั่งเล่นๆ ชมวิวค่ะ เพราะมีตรงนี้จะมีกระจกบานใหญ่และหน้าต่างบานสไลด์เอาไว้ให้ด้วย
    ภาพห้องตัวอย่างแบบ 2 Bedroom ขนาด 81.5 ตร.ม.

    Unit Plan 2 ห้องนอน ขนาด 81.5 ตร.ม.
    ภาพ 360 องศา 2 Bedroom ขนาด 81.5 ตร.ม.

    บรรยากาศโดยรวมของห้องขนาด 81.5 ตร.ม.

    ห้องนั่งเล่นกว้างขวางและติดระเบียงสามารถเปิดรับลมได้

    ครัวมาพร้อมกับประตูบานสไลด์ป้องกันกลิ่นรบกวนเข้าไปในห้อง

    ห้องน้ำบริเวณโถงกลางของห้อง

    ห้อง Master Bedroom

    ห้องน้ำในห้อง Master Bedroom

    ห้องนอนห้องที่ 2

    ด้านหน้าห้องตัวอย่างขนาด 81.5 ตร.ม.

    ห้องนี้มีฟังก์ชันที่ค่อนข้างครบทีเดียวค่ะ ได้อารมณ์บ้านเดี่ยว 1 ชั้น
    อีกทั้งยังมีห้องเก็บของที่คอนโดทั่วไปไม่ค่อยมีให้อีกด้วย 

    ถ่ายภาพจากตรงกลางของห้อง จะเห็นได้ว่าห้องกว้างพอสมควรเลย
    ตรงนี้จะเป็นมุมนั่งเล่น รับแขก และวางโต๊ะรับประทานอาหารค่ะ

    มุมนั่งเล่นจะอยู่ติดกับระเบียงค่ะ วันไหนที่อากาศดีๆ ไม่อยากเปิดแอร์ก็เปิดประตูรับลมได้
    ส่วนระยะดูทีวีนั้นก็ดีเลยค่ะ จากตัวอย่างเป็นทีวี 40 นิ้ว หากใหญ่กว่านี้ก็ไม่มีปัญหา
     
    มาถึงครัวกันบ้าง ห้องครัวจะมีประตูบานสไลด์กั้นให้ค่ะ ป้องกันกลิ่นเข้ามารบกวนคนอื่นที่อยู่ในห้อง

    ชุดครัวที่ทางโครงการให้มาเป็นสีขาวและตัวลิ้นชักเป็นสีน้ำตาลเข้ม และมีอ่างล้างจานให้ด้วย ส่วนไมโครเวฟ เตาไฟฟ้า เครื่องดูดควันไม่ได้มีให้นะคะ พื้นที่ติดกันสามารถนำตู้เย็น เครื่องซักผ้ามาวางได้ค่ะ จากห้องครัวมีประตูออกไประเบียงได้ค่ะ ซึ่่งระเบียงนี้เชื่อมไปถึงห้องนั่งเล่นได้ด้วยนะคะ

    ออกมาจากห้องครัวก็จะเจอโต๊ะกลมสำหรับสำหรับรับประทานอาหารค่ะ เดี๋ยวเราไปดูห้องน้ำกันต่อเลย

    ห้องน้ำจะได้โถสุขภัณฑ์ สายฉีดชำระ อุปกรณ์แขวนกระดาษชำระ อ่างล้างหน้าพร้อมตู้เก็บของ กระจก

    รวมถึง ฉากกั้นอาบน้ำแบบกระจกนิรภัย ฝักบัว  Rain shower และเครื่องทำน้ำอุ่นก็ให้มาด้วยค่ะ

    ติดกันกับห้องน้ำก็จะเป็นห้องเก็บของค่ะ ภายในห้องไม่ได้ใหญ่มาก อาจจะติดตั้งชั้นติดกับผนังเพื่อเพิ่มพื้นที่ใช้สอยได้

    ห้องนี้คือห้องนอนเล็กค่ะ เพิ่มความโปร่งด้วยหน้าต่างบานใหญ่ 

    ต่อมาเป็น Master Bedroom ค่ะ ที่นี่จะมีห้องน้ำในตัวด้วย

    ห้องน้ำจะได้ตามแบบนี้เลยค่ะ ยกเว้น ผ้าเช็ดตัวและขวดแชมพูนะคะ 

    บรรยากาศภายในห้อง Master Bedroom ค่ะ
    ห้องขนาด 81.5 ตร.ม. 2 ห้องนอนนี้จะได้แอร์แบบฝังลงฝ้า 3 ตัวค่ะ ที่ห้องนอนทั้ง 2 ห้องและที่ห้องนั่งเล่น 1 ตัว

    บริเวณหัวเตียงจะมีหน้าต่างบานกระทุ้งทรงสูงให้ 2 บานอยู่ที่มุมห้องทั้ง 2 ฝั่งค่ะ และทางออกไประเบียงจะอยู่ที่ห้อง Master Bedroom ห้องนี้ ระเบียงไม่ใหญ่นะคะ เป็นทรงแคบแต่จะยาวขนานไปกับห้องค่ะ
    ราคาและค่าใช้จ่ายที่เกี่ยวข้องโดยประมาณ (4 ก.ย. 58)
    ราคาเริ่มต้น 2.5-11.8 ล้านบาท ผ่อนเริ่ม 8,900 บาท/เดือน
    ค่าบริการส่วนกลาง 40 บาท/ตร.ม./เดือน 
    ค่ากองทุนแรกเข้า 400 บาท/ตร.ม. 
    ทุกยูนิตรับโปรโมชั่นเป็นของแถมดังนี้
    • เครื่องปรับอากาศ
    • วอลเปเปอร์
    • ชุดครัว
    • เครื่องทำน้ำร้อน
    • ฉากกั้นอาบน้ำแบบกระจกนิรภัย
    • VDO Door Phone 
    สำหรับวันที่ 19 - 20 กันยายน 2558 ลูกค้าเก่าของศุภาลัยสามารถเข้าชมและจองห้องพร้อมรับส่วนลดทันที 10,000 บาท ณ สำนักงานขาย ส่วนลูกค้าทั่วไป ได้รับส่วนลด 5,000 บาท เพียงโชว์บัตรเอทีเอ็มธนาคารไทยพาณิชย์ ในวันที่ 22-28 ก.ย. 58 ทางโครงการจะ Pre-Sales ณ เซ็นทรัลพลาซ่า พระราม 3 ชั้น G
    ภาพรวมโดยสรุปของโครงการ 
    • การเดินทางเข้าออกโครงการ - หากเป็นรถยนต์ส่วนตัวมีทางเลือกในการเดินทางได้หลายเส้นทางไม่ว่าจะเป็นทางหลักอย่างถนนนราธิวาสราชนครินทร์, ทางด่วนขั้นที่ 1 ด่านเลียบแม่น้้า (จุดขึ้นลงทางด่วนห่างจากโครงการ 1 กม.), ทางด่วนขั้นที่ 2 ด่านสาธุประดิษฐ์ (จุดขึ้นลงทางด่วนห่างจากโครงการ 2 กม.) หรือถนนนางลิ้นจี่ที่สามารถใช้เป็นทางลัดเข้าออกโครงการไปออกถนนสาทร และถนนพระราม 4 ได้ ส่วนจุดกลับรถแรกเมื่อออกจากโครงการไปก็อยู่ห่าง 100 ม. หากเป็นการเดินทางด้วยรถสาธารณะก็จะมีทางเลือกอย่าง BRT สถานีถนนจันทร์ซึ่งอยู่ห่างจากโครงการประมาณ 600 ม. นั่งไปเพียง 2 สถานีก็สามารถไปต่อรถไฟฟ้า BTS ที่สถานีช่องนนทรีได้ โดยรวมแล้วการเดินทางเข้าออกโครงการถือว่าดีค่ะ
    • ทำเลรอบโครงการ - โครงการตั้งอยู่บนถนนรัชดาภิเษกใกล้แยกรัชดา-นราธิวาส ไม่ไกลจากย่านธุรกิจโซนสาทร, สีลม และพระราม 4 บรรยากาศด้านหน้าโครงการไม่พลุกพล่านค่ะ เมื่อเทียบกับโซนแถวเซ็นทรัลพระราม 3 หรือโซนถนนนราธิวาสราชนครินทร์ รอบๆโครงการจะยังมีบ้านพักอาศัย และอาคารพาณิชย์ให้เห็นอยู่ค่ะ ฟุตบาทด้านหน้าโครงการค่อนข้างกว้าง และทำเป็นทางวิ่งจักรยานไว้ค่ะ ส่วนแหล่ง Shopping รอบๆโครงการ ก็มี Community Mall อย่าง ดิอัพ พระราม 3 (ห่างจากโครงการ 260 ม.), เซ็นทรัล พระราม 3 (ห่างจากโครงการ 1 กม.), เทสโก้ โลตัส พระราม 3 (ห่างจากโครงการ 650 ม.) และแม็คโคร (ห่างจากโครงการ 1.3 กม.) โดยรวมแล้วบรรยากาศรอบๆ โครงการก็หลวมๆสบายๆไม่แออัดแล้วก็ไม่ไกลจากย่านธุรกิจค่ะ
    • อาคารและตัวโครงการโดยรวม - เป็นคอนโด High-rise สูง 27 ชั้น จำนวน 1 อาคาร ปริมาณที่จอดรถอยู่ที่ 66% ล็อกไว้ให้ห้องแบบ 2 ห้องนอน และห้องแบบ Presidential Suite ส่วน Facility ที่ให้มานั้นไม่มากค่ะ แต่ก็มีครบสำหรับความต้องการจะใช้ในชีวิตประจำวัน อาทิ สระว่ายน้ำ, ฟิตเนส ห้องซาวน่า และสวน และพิเศษเลยก็คือ VDO Door Phone ที่ให้ลูกบ้านมาด้วย เป็นการรักษาความปลอดภัยได้อีกชั้นหนึ่ง ที่นี่มีลิฟต์โดยสาร 3 ตัว ลิฟต์บริการ 1 ตัว เป็นระบบล็อกชั้น อัตราส่วนการใช้ลิฟท์อยู่ที่ 188 ยูนิตต่อลิฟต์ 1 ตัว ถือว่าไม่หนาแน่นมากค่ะ
    • รูปแบบห้องและวัสดุ - ตัวห้องจะแบ่งเป็น 2 ฝั่ง โดยฝั่งด้านหลังโครงการจะหันไปทางทิศเหนือเฉียงไปทางทิศตะวันตกค่ะ ส่วนฝั่งด้านหน้าโครงการจะหันหน้าออกถนนรัชดาภิเษกทางทิศใต้และเฉียงไปทางทิศตะวันออก จะเห็นได้ว่าทิศทางการวางอาคารจะไม่ได้หันไปทางทิศใดทิศหนึ่งค่ะ เพราะตัวอาคารจะเป็นแนวเฉียงๆ ซึ่งถือเป็นข้อดีนะคะเพราะห้องส่วนใหญ่จะไม่ได้โดนแดดแบบเต็มๆ จะหันไปทางเหนือ-ใต้ซะส่วนใหญ่ ส่วนวัสดุที่ให้ก็อยู่ในเกณฑ์ปานกลางค่ะ พื้นเป็นลามิเนต ยกเว้นช่วงของครัวจะเป็นแกรนิตโต้ ชุดครัวที่ได้เป็นของ Starmark ส่วนสุขภัณฑ์เป็นของ Cotto ตู้เก็บของใต้อ่างล้างหน้าของ Index ห้องน้ำถือว่าให้มาแบบจัดเต็มเลยทีเดียวค่ะ ให้ฉากกั้นอาบน้ำกระจกนิรภัย พร้อม Rain shower และฝักบัวอาบน้ำ สำหรับแอร์ที่ให้ก็เป็นทำเป็นแบบฝังลงไปในฝ้าให้ ดูสวยงามดีค่ะ แต่ก็อาจจะดูแลรักษาได้ไม่สะดวกนัก
    • ราคา - ราคา 1 ห้องนอน แบบ Fully Fitted ขนาด 34.5 ตร.ม. ของที่นี่เริ่มต้นที่ 2.5 ล้านบาท หรือราคาเฉลี่ยเริ่มต้นอยู่ที่ประมาณ 72,460 บาท ถือเป็นราคาที่ค่อนข้างถูกเมื่อเทียบกับทำเลใจกลางเมืองแบบนี้ค่ะ สาเหตุเป็นเพราะว่าทางศุภาลัยได้ที่ดินแปลงนี้มาหลายปีแล้ว ด้วย Cost ที่ไม่แพงมาก ดังนั้นจึงสามารถพัฒนาโครงการนี้ไปราคาที่ค่อนข้างย่อมเยาได้ อีกทั้งสิ่งอำนวยความสะดวกก็พร้อมทั้งห้างสรรพสินค้า แหล่งชอปปิ้ง โรงเรียน และโรงพยาบาล ถึงแม้ว่าจะไม่ใกล้รถไฟฟ้า BTS แต่ก็สามารถเชื่อมต่อได้สะดวกด้วย รถ BRT ซึ่งแน่นอนว่าในอนาคตราคาคงต้องขยับขึ้น เพราะเป็นทำเลที่ค่อนข้างกลางเมืองทีเดียว เหมาะทั้งซื้อเพื่ออยุ่เองและเพื่อลงทุนค่ะ
    สถานะปัจจุบันของโครงการ (4 ก.ย. 58)
    ปัจจุบันทางโครงการเปิดให้ผู้ที่สนใจจองได้แล้ว โดยคาดว่าจะเริ่มก่อสร้างประมาณต้นปี 2559 และจะสร้างเสร็จประมาณปลายปี 2561 หากท่านใดที่สนใจโครงการ โครงการศุภาลัย ไลท์ รัชดาฯ-นราธิวาส-สาทร สามารถเข้าไปชมห้องตัวอย่างได้ที่สำนักงานขาย ถนนรัชดาภิเษก แขวงช่องนนทรี เขตยานนาวา กรุงเทพมหานคร 10120 ค่ะ
    ติดต่อโครงการ โทร. 02-286-7272 หรือ 1720 กด 74 หรืออ่านรายละเอียดโครงการเพิ่มเติมได้ที่ www.supalai.com

    แท็กที่เกี่ยวข้อง :

    รีวิว-พรีวิวล่าสุดอื่นๆ

    คอนโดติดรถไฟฟ้าล่าสุด

เว็บไซต์นี้มีการเก็บคุกกี้เพื่อเพิ่มความพึงพอใจในการใช้งานเว็บไซต์ และช่วยให้เราปรับปรุง และนำเสนอเนื้อหาตรงตามความสนใจของท่าน ท่านสามารถดู Privacy Notice และ ดู Cookies Policy ของเราได้ ที่นี่ ทั้งนี้ ท่านจะยินยอมให้เราเก็บคุกกี้ทั้งหมด หรือให้เก็บแค่บางส่วนโดยการคลิกเลือก ตั้งค่า

ท่านสามารถเลือกให้ความยินยอมการเก็บคุกกี้เป็นเรื่องๆ ได้ที่นี่

เมื่อคุณเข้าชมเว็บไซต์ หรือแอปพลิเคชั่น checkraka เราอาจจัดเก็บ หรือดึงข้อมูลจากเบราว์เซอร์ของคุณในรูปแบบของคุกกี้ และเทคโนโลยีอื่นที่คล้ายคลึง เช่น tag และ pixel (เรียกรวมกันว่า “คุกกี้”) ซึ่งมักเป็นข้อมูลที่ไม่สามารถระบุตัวตนได้โดยตรง แต่ช่วยให้คุณใช้งานเว็บไซต์ได้ปลอดภัย และตรงตามความต้องการมากขึ้น คุณอาจไม่ยินยอมให้เราเก็บคุกกี้บางประเภทได้ โดยการคลิกตามหัวข้อข้างล่างนี้

ประเภทคุกกี้
อ่านเพิ่มเติม ที่นี่
ยินยอม / ไม่ยินยอม
คุกกี้ที่จำเป็นต้องมีเสมอ
(Strictly Necessary)
คุกกี้สำหรับการใช้งานเว็บไซต์
(Functionality)
คุกกี้เพื่อเพิ่มประสิทธิภาพและวิเคราะห์
(Performance & Analytics)
คุกกี้เพื่อการตลาด
(Marketing)