ประเมินวงเงินรู้ผลใน 3 นาที
กับ กรุงศรี ออโต้ พร้อมสตาร์ท

เริ่มประเมินวงเงินพร้อมสตาร์ท
ผ่านมือถือ สแกนเลย

ดูวงเงินพร้อมสตาร์ทที่ได้รับ

  • คอนโด
  • คอนโด
  • ค้นหาแบบละเอียด
  • รีวิว-เยี่ยมชม atta The Condo (อัตตา เดอะ คอนโด)

    18 ก.ย. 58 12,196
    รีวิว atta The Condo (อัตตา เดอะ คอนโด) คอนโดแนวธรรมชาติใน Kirimaya Resort
    วันนี้ Checkraka ขอพาออกไปชมคอนโดต่างจังหวัดกันบ้างนะคะ เป็นคอนโดที่แทรกตัวอยู่ในรีสอร์ท "Kirimaya" สุดหรู ที่เปิดให้บริการเป็นรายแรกในเขาใหญ่ ระยะทางห่างจากกรุงเทพฯ เพียง 2 ชั่วโมง กับ "อัตตา เดอะ คอนโด" ตัวโครงการตั้งอยู่ท่ามกลางเนินเขาและทุ่งหญ้าเขียวขจี ใกล้กับอุทยานแห่งชาติเขาใหญ่ เราไปดูกันดีกว่าค่ะว่า ทั้งภายในส่วนของ Facility และห้องพักจะสวยหรู และธรรมชาติแค่ไหน
    ข้อมูลโครงการ
    • เจ้าของและผู้พัฒนาโครงการ : บริษัท คีรีมายา จำกัด
    • ที่ตั้งโครงการ : หมู่ 6 ถ.ธนะรัชต์ ต.หมูสี อ.ปากช่อง จ.นครราชสีมา เป็นส่วนหนึ่งของโครงการ Kirimaya Resort
    • อาคารชุดพักอาศัย : สูง 5 ชั้น จำนวน 9 อาคาร ประกอบด้วย ห้องชุดพักอาศัย จำนวน 243 ยูนิต และ อาคาร 2 ชั้น จำนวน 1 อาคารเพื่อใช้เป็นสโมสร (อยู่ระหว่างอาคาร 6 กับ 7)
    • ขนาดที่ดินทั้งโครงการ : 14 ไร่ 
    • ลิฟต์โดยสาร : 1 ตัว/อาคาร
    • ห้องชุดพักอาศัย : รวมทั้งหมด 243 ยูนิต แบ่งเป็น
      - 1 ห้องนอน ขนาด 65, 70, 78 และ 83 ตร.ม.
      - 2 ห้องนอน ขนาด 97.5, 102.5, 117, 120, 122, 125, 148.5, 153.5, 180 และ 185 ตร.ม.
      - Penthouse ขนาด 203 และ 235 ตร.ม. 
    • ที่จอดรถแบ่งออกเป็น 2 ส่วน :
      (1) บริเวณด้านหน้าของแต่ละอาคารจอดได้ประมาณ 10 - 20 คัน
      (2) บริเวณ Clubhouse ของรีสอร์ทส่วนกลางจอดได้ประมาณ 100 คัน
    • ราคาเริ่มต้น 7 ล้านบาท สําหรับห้องขนาด 65 ตร.ม. (ข้อมูล ณ 24 ส.ค. 58)
    • ก่อสร้างแล้วเสร็จสมบูรณ์ 100% พร้อมเข้าอยู่แล้ว
    • วันที่เข้าเยี่ยมชม - รีวิวคอนโด ข้อมูล ณ 24 ส.ค. 58
    เจ้าของและผู้พัฒนาโครงการ
    บริษัท คีรีมายา จำกัด เป็นบริษัทที่จัดตั้งขึ้นเมื่อวันที่ 27 สิงหาคม 2545 เพื่อพัฒนาโครงการ "คีรีมายา รีสอร์ท" (ซึ่ง atta The Condo ก็เป็นส่วนหนึ่งของโครงการทั้งหมดนี้ด้วย) และมีทุนจดทะเบียน 5 ล้านบาท โดยมีนายกิตติ ธนากิจอำนวย (ประธานเจ้าหน้าที่บริหารบริษัท โนเบิล ดีเวลลอปเมนท์ จำกัด (มหาชน)) เป็นประธานที่ปรึกษาบริษัท
    ทำเลที่ตั้ง
    โครงการ อัตตา เดอะ คอนโด ตั้งอยู่ที่ ถนนธนะรัชต์ ตำบลหมูสี อำเภอปากช่อง จังหวัดนครราชสีมา ห่างจากกรุงเทพฯ ถ้าวัดระยะทางจากดอนเมืองโทลเวย์ ด่านดินแดง ถึงโครงการจะประมาณ 175 กม. หรือถ้าขับรถยนต์ส่วนตัวก็จะใช้เวลาประมาณสองถึงสองชั่วโมงครึ่งค่ะ โครงการตั้งอยู่ใกล้สถานที่ท่องเที่ยว, สถานที่สำคัญ และสิ่งอำนวยความสะดวกต่างๆบริเวณเขาใหญ่ เช่น อุทยานแห่งชาติเขาใหญ่ (ใกล้ด่านตรวจ และเก็บค่าธรรมเนียมบริเวณทางเข้าอุทยานฯ เพียง 7 กม. หรือ ขับรถประมาณ 9 นาทีเท่านั้น), ปาลิโอ (ห่างจากโครงการ 6 กม.), พรีโม เพียซซ่า (ห่างจากโครงการ 12 กม.), โรงเรียนนานาชาติเซนต์สตีเฟ่นส์ (ห่างจากโครงการ 16 กม.) และ The Chocolate Factory (ห่างจากโครงการ 8.2 กม.)

    ภาพแผนที่โครงการ อัตตา เดอะ คอนโด

    ภาพแผนที่โครงการแจกแจงให้เห็นระยะใกล้ - ไกลของโครงการกับสถานที่ หรือ Landmark รอบๆ โครงการที่น่าสนใจตำแหน่ง GPS โดยประมาณของโครงการ = 14.514709, 101.433490
    คลิกเพื่อดูภาพขยายใหญ่

    พรีโม เพียซซ่า ห่างจากโครงการประมาณ 12 กม.
    ขอบคุณภาพจาก http://www.primopiazza.com

    ปาลิโอ ห่างจากโครงการประมาณ 6 กม.
    ขอบคุณภาพจาก www.palio-khaoyai.com

    เป็นลาว ห่างจากโครงการประมาณ 7 กม.
    ขอบคุณภาพจาก www.panoramio.com/user/322200

    แดรี่โฮม ห่างจากโครงการประมาณ 32 กม.
    ขอบคุณภาพจาก www.facebook.com/pages/dairyhome-farm-shop/264756976881773

    The Chocolate Factory ห่างจากโครงการประมาณ 17 กม.
    ขอบคุณภาพจาก www.facebook.com/thechocolatefactorythailand

    โรงเรียนนานาชาติเซนต์ สตีเฟ่นส์ เขาใหญ่ ห่างจากโครงการประมาณ 16 กม.
    ขอบคุณภาพจาก www.ststephen.ac.th

    PB Valley ห่างจากโครงการประมาณ 26 กม.
    ขอบคุณภาพจาก www.khaoyaiwinery.com

    ฟาร์มโชคชัย ห่างจากโครงการประมาณ 23 กม.
    ขอบคุณภาพจาก www.facebook.com/farmchokchai1957
    การเดินทาง
    การเดินทางด้วยรถยนต์สามารถมาได้หลายเส้นทาง โดยมีเส้นทางหลักดังต่อไปนี้ค่ะ
    ขาเข้าโครงการจากกรุงเทพฯ เส้นทางที่ 1 - มาทางถนนมิตรภาพเข้าถนนผ่านศึก-กุดคล้า (ตรงร้านแดรี่โฮม) (ทั้งหมดระยะทาง 175 กม. จากดอนเมืองโทลเวย์ ด่านเก็บค่าผ่านทางดินแดง)

    ขาเข้าโครงการจากกรุงเทพฯ เส้นทางที่ 2 - มาทางถนนมิตรภาพเข้าถนนธนะรัชต์ (ตรงเทสโก้โลตัสปากช่อง) (ทั้งหมดระยะทาง 183 กม. จากดอนเมืองโทลเวย์ ด่านเก็บค่าผ่านทางดินแดง)

    ขาเข้าโครงการจากกรุงเทพฯ เส้นทางที่ 3 - มาจากถนนรังสิต-นครนายกเข้าวังน้ำเขียว (ทั้งหมดระยะทาง 228 กม. จากถนนรังสิต-นครนายก คลอง 16)

    ขาออกโครงการกลับกรุงเทพฯ เส้นทางที่ 1 - ออกไปทางถนนผ่านศึก-กุดคล้า (ออกร้านแดรี่โฮม) (ทั้งหมดระยะทาง 175 กม. ไปดอนเมืองโทลเวย์ ด่านเก็บค่าผ่านทางดินแดง)

    ขาออกโครงการกลับกรุงเทพฯ เส้นทางที่ 2 - ออกไปทางถนนมิตรภาพ (ตรงพรีเมี่ยมเอาท์เล็ทเขาใหญ่) (ทั้งหมดระยะทาง 183 กม. ไปดอนเมืองโทลเวย์ ด่านเก็บค่าผ่านทางดินแดง)

    ขาออกโครงการกลับกรุงเทพฯ เส้นทางที่ 3 - ออกไปทางวังน้ำเขียว (ทั้งหมดระยะทาง 228 กม. ไปถนนรังสิต-นครนายก คลอง 16)

    สภาพแวดล้อมใกล้เคียง

    แผนที่สภาพแวดล้อมใกล้เคียงรอบๆ โครงการ
    คลิกเพื่อดูภาพขยายใหญ่
    บรรยากาศทางเข้าโครงการตรงด้านนอก

    ทางเข้าหลักของโครงการซึ่งจะรวมทางเข้าของหลายๆ โครงการย่อยในคีรีมายาเอาไว้
    เช่น atta The Condo, Kirimaya Golf Resort & Spa, Kirimaya Residence

    ตรงด้านหน้าทางเข้าออกจะมีป้อม รปภ. อยู่ค่ะ แยกทางเข้าออกซ้ายขวา

    บรรยากาศด้านหน้าโครงการถ้ามองไปทางซ้ายมือค่ะ
    ถ้าเรามาจากกรุงเทพฯ ทางถนนผ่านศึก-กุดคล้า (แดรี่โฮม) หรือถนนธนะรัชต์ ก็จะมาจากทางนี้ค่ะ

    บรรยากาศด้านหน้าโครงการถ้ามองไปทางขวามือ
    ถ้าเรามาจากวังน้ำเขียว ก็จะมาจากทางนี้ค่ะ

    ด้านหน้าทางเข้าจะเห็นป้าย atta The Condo ขนาดใหญ่อยู่ด้านหน้าเลยค่ะ
    รูปแบบตึก และตัวโครงการโดยรวม
    โครงการ atta The Condo เป็นส่วนหนึ่งของโครงการคีรีมายา รีสอร์ท เพื่อให้เห็นภาพคร่าวๆแบบเข้าใจง่ายว่าโครงการอยู่ตรงไหนในคีรีมายา รีสอร์ท ให้ดูรูปข้างล่างได้เลยค่ะ

    แผนที่แสดงพื้นที่ทั้งหมดภายในอาณาจักรของ Kirimaya (ขนาดรวมทั้งหมดประมาณ 1,696 ไร่)
    ส่วนของ atta The Condo จะอยู่ใกล้กับทางเข้าหลักค่ะ

    Master Plan แสดงให้เห็นพื้นที่โดยรวมของโซน atta The Condo (คลิกเพื่อดูภาพขยาย)

    ด้านหน้าทางเข้าโครงการ atta The Condo

    ป้ายด้านหน้าทางเข้า

    ในโครงการมีทั้งหมด 9 อาคาร หน้าตาแต่ละอาคารจะคล้ายๆ กันประมาณนี้

    เข้ามาก็จะเจอกับ BUILDING 1 กับ BUILDING 2 ก่อนเลยค่ะ เรียงไปเรื่อยๆจนถึง BUILDING 9

    เข้ามาก็จะได้บรรยากาศแบบนี้ ทางซ้ายมือเป็นรั้วด้านนอกโครงการค่ะ
    ทางขวามือเป็นตัว BUILDING และที่จอดรถหน้าตึก
    ถนนภายในโครงการก็ใหญ่พอสมควรนะคะ แบ่งเป็น 2 เลน สวนกันได้

    ด้านทางเข้าอาคารเป็นที่จอดรถ

    ที่จอดรถอยู่ด้านหน้าแต่ละอาคาร
    แต่ถ้าตรงนี้เต็มก็สามารถไปจอดเพิ่มเติมได้ที่ลานจอดรถใหญ่ตรง Clubhouse รองรับได้ถึงกว่า 100 คัน

    บรรยากาศด้านหน้าทางเข้าแต่ละอาคารค่ะ เดี๋ยวเราเข้าไปดูด้านในกันนะคะ
    (มองจากด้านนอกจะเห็นว่าเป็นกำแพงหนึ่งด้าน เพราะทั้งโครงการดีไซน์แบบ Single Corridor หมดเลย)

    ล็อบบี้เล็กๆ ของแต่ละอาคาร ได้รับการตกแต่งแบบสบายๆ ทุกๆ อาคารจะมี Lobby ตกแต่งสวยงามแบบนี้ค่ะ

    ตกแต่งไว้ให้ออกมาเป็นธีมเดียวกับคอนโดเน้นวัสดุที่เป็นไม้ แบบเรียบๆ

    ภายในตัวล็อบบี้ก็ไม่เล็ก และไม่ใหญ่จนเกินไป เพื่อให้เหมาะสมกับยูนิตที่มีจำนวนน้อยของแต่ละอาคาร

    ลิฟท์ของโครงการมี 1 ตัว ต่อ 1 อาคารค่ะ ซึ่งแต่ละอาคารโดยเฉลี่ยจะมียูนิตพักอาศัยประมาณ 23-29 ยูนิต

    โถงทางเดินของทุกอาคารในโครงการนี้จะที่เป็นแบบ Single Corridor ซึ่งให้ความเป็นส่วนตัวมากๆ
    เพราะจะไม่มียูนิตด้านตรงข้าม และเปิดประตูห้องออกมาก็เทควิวได้ทันทีค่ะ
    ส่วนกลางและสิ่งอำนวยความสะดวก
    Facility ของที่นี่แบ่งออกเป็น 2 ส่วน คือส่วนของรีสอร์ทกลาง กับ ส่วนของคอนโด แต่สำหรับลูกบ้าน อัตตา เดอะ คอนโดใช้ได้ทั้ง 2 ส่วน แต่ในส่วนของรีสอร์ทอาจต้องเสียค่าบริการเป็นครั้งคราว เช่นค่าสนามกอล์ฟ เป็นต้น ขอแบ่ง Facility ให้เห็นชัดๆ ดังนี้ค่ะ
    Facility ของส่วน Resort กลาง
    1. ห้องฟิตเนส มีอุปกรณ์ออกกำลังกายครบครันไว้บริการ
    2. สปา จะเป็นในส่วนของการใช้บริการเพิ่มเติมที่ต้องมีค่าใช้จ่ายค่ะ
    3. ล็อบบี้
    4. บาร์
    5. จุดบริการรถกอล์ฟ ใช้บริการ
    6. สนามกอล์ฟ
    7. คลับเฮ้าส์ และร้านอาหาร
    8. ห้อง Conference และ Board Room สำหรับลูกค้า Corporate

    บริเวณด้านหน้าของคลับเฮ้าส์ในส่วนของรีสอร์ทกลาง ซึ่งหากใครจะมาออกรอบเล่นกอล์ฟก็จะต้องมาเริ่มต้นที่นี่ค่ะ

    ถ้ามองจากระยะห่างออกมา ตรงนี้จะมีจุด Drop-off วนขึ้นไปส่งคนได้ค่ะ

    พอลงมาจากคลับเฮ้าส์ด้านหน้าก็จะมีที่จอดรถใกล้ๆ กัน ลูกบ้านคอนโดสามารถนำรถมาจอดตรงนี้ได้
    ช่วงเวลา Long Weekend ที่คนอาจจะมากันแน่น บริเวณนี้ รองรับได้ไม่น้อยกว่า 100 คันเลยทีเดียว

    จุดบริการรถกอล์ฟที่จอดอยู่บริเวณส่วนของรีสอร์ท แต่ลูกบ้านของ อัตตา เดอะ คอนโด ก็ใช้บริการได้ค่ะ
    สามารถนั่งไปคอนโดหรือนั่งไปตรงไหนก็ได้ในโครงการฟรีค่ะ

       เดินเข้ามาภายใน Clubhouse จะเจอกับล็อบบี้ก่อนเลยค่ะ
    ซึ่งคลับเฮ้าส์นี้จะมีห้องบริการสัมนาจัดเลี้ยงที่จุได้ถึง 200-300 คนด้วย

    มีป้ายบอกทางชัดเจนสำหรับผู้ที่ต้องการใช้ห้องสัมนา (Conference Board Room)

    บรรยากาศภายในร้านอาหาร เมื่อเดินเข้าไปจะรู้สึกถึงความกว้างขวาง และโอ่โถงมากเลยค่ะ

    ป้ายบอกตำแหน่ง Facility ต่างๆ ภายในรีสอร์ทกลาง

    มีห้องฟิตเนสไว้คอยบริการด้วยค่ะ มีอุปกรณ์เยอะทีเดียว

    ตรงนี้เป็นมุมสปา ใช้ชื่อ MAYA Spa ที่อยู่บนน้ำ สปาไป ได้ยินเสียงน้ำไป ผ่อนคลายสุดๆ

    ส่วนตกแต่งด้านหน้าของ MAYA Spa 

    ไปดูความเขียวชอุ่มจากสนามกอล์ฟของคีรีมายากันบ้างค่ะ เป็นสนามกอล์ฟระดับโลกมี 18 หลุม 72 พาร์

    สนามกอล์ฟของที่นี่ได้รับการออกแบบโดย "ปู่แจ็ค" หรือ แจ็ค นิคลอส ยอดนักกอล์ฟระดับตำนาน
    และยังเป็นนักออกแบบสนามมือดีซึ่งออกแบบสนามต่างๆ ทั่วโลกอีกด้วย

    ภายในสนามกอล์ฟ ก็ยังมีสิ่งอำนวยความสะดวกเพื่อเพิ่มความสะดวกสบาย เช่น คลับเฮ้าส์พร้อมห้องล็อกเกอร์
    ส่วนกลางของ Atta The Condo
    1. สระว่ายน้ำ 
    2. ล็อบบี้
    3. ลานอเนกประสงค์

    อาคารคลับเฮ้าส์ส่วนกลางของคอนโดที่อยู่ระหว่างอาคาร 6 กับ 7 ค่ะ

    รถกอล์ฟที่อยู่ในส่วนของรีสอร์ทที่นำไปขับหรือใช้บริการได้ โดยสามารถวิ่งไป-มาระหว่างอาคารของคอนโดได้เลย

    อีกฝั่งนึงของอาคารคลับเฮ้าส์ จะได้วิวสระว่ายน้ำ และบึงกว้างที่อยู่ในส่วนของคอนโด

    ลานอเนกประสงค์มีไว้นั่งพักผ่อน ชมวิว หรือรับประทานอาหารซึ่งจะอยู่บริเวณสระว่ายน้ำ 

    อีกมุมหนึ่งของลานอเนกประสงค์ที่จัดวางไว้แบบ Outdoor

    บรรยากาศภายในของล็อบบี้ค่ะ

    ตกแต่งไว้หลายมุม เพื่อความสะดวกสบายของลูกบ้าน

    ภาพบรรยากาศโดยรวมของแต่ละอาคาร

    ห้องที่อยู่ชั้น 1 บางห้องจะได้สวนส่วนตัวแบบนี้ด้วย

    ทางเดินที่ทอดไปยังอาคารต่างๆ 

    อาคารแต่ละอาคารจะห่างกันประมาณนี้ค่ะ

    เชื่อมต่อระหว่างอาคารด้วยทางเดินร่มรื่นเต็มไปด้วยต้นไม้

    อาคารทุกอาคารจะได้วิวบึง และธรรมชาติเท่าๆ กัน

    ไม่ว่าจะเป็นหน้าร้อน หน้าฝน หรือหน้าหนาวเชื่อว่าโครงการแห่งนี้จะให้สีเขียวตลอดทั้งปี เย็นตา เย็นใจดีนะคะ

    ภาพมุมสูงที่เห็นเป็น ATTA Villa ที่ขายหมดเกลี้ยงแล้วค่ะ
    ภาพห้องตัวอย่างและ Lay out
    ในโครงการมียูนิตให้เลือกทั้งหมด 15 Size ด้วยกันคือ
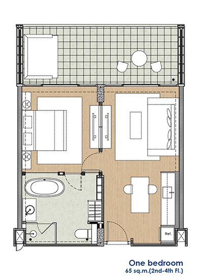
    1. ห้องแบบ 1 ห้องนอน (1 ห้องนอน, 1 ห้องน้ำ, 1 ห้องครัว) - เนื้อที่ 65 ตร.ม. (คลิกเพื่อชมแปลนห้องขนาดใหญ่) 
    2. ห้องแบบ 1 ห้องนอน (1 ห้องนอน, 1 ห้องน้ำ, 1 ห้องครัว) - เนื้อที่ 70 ตร.ม. (คลิกเพื่อชมแปลนห้องขนาดใหญ่) 
    3. ห้องแบบ 1 ห้องนอน (1 ห้องนอน, 1 ห้องน้ำ, 1 ห้องครัว) - เนื้อที่ 78 ตร.ม. (คลิกเพื่อชมแปลนห้องขนาดใหญ่) 
    4. ห้องแบบ 1 ห้องนอน (1 ห้องนอน, 1 ห้องน้ำ, 1 ห้องครัว) - เนื้อที่ 83 ตร.ม. (คลิกเพื่อชมแปลนห้องขนาดใหญ่) 
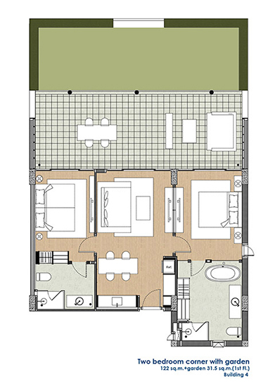
    5. ห้องแบบ 2 ห้องนอน (2 ห้องนอน, 2 ห้องน้ำ, 1 ห้องครัว) - เนื้อที่ 97.5 ตร.ม. (คลิกเพื่อชมแปลนห้องขนาดใหญ่) 
    6. ห้องแบบ 2 ห้องนอน (2 ห้องนอน, 2 ห้องน้ำ, 1 ห้องครัว) - เนื้อที่ 102.5 ตร.ม. (คลิกเพื่อชมแปลนห้องขนาดใหญ่) 
    7. ห้องแบบ 2 ห้องนอน (2 ห้องนอน, 2 ห้องน้ำ, 1 ห้องครัว) - เนื้อที่ 117 ตร.ม. (คลิกเพื่อชมแปลนห้องขนาดใหญ่) 
    8. ห้องแบบ 1 ห้องนอน (1 ห้องนอน, 1 ห้องน้ำ, 1 ห้องครัว) - เนื้อที่ 120 ตร.ม. (คลิกเพื่อชมแปลนห้องขนาดใหญ่) 
    9. ห้องแบบ 1 ห้องนอน (1 ห้องนอน, 1 ห้องน้ำ, 1 ห้องครัว) - เนื้อที่ 125 ตร.ม. (คลิกเพื่อชมแปลนห้องขนาดใหญ่) 
    10. ห้องแบบ 2 ห้องนอน (2 ห้องนอน, 2 ห้องน้ำ, 1 ห้องครัว) - เนื้อที่ 148.5 ตร.ม. (คลิกเพื่อชมแปลนห้องขนาดใหญ่)
    11. ห้องแบบ 2 ห้องนอน (2 ห้องนอน, 2 ห้องน้ำ, 1 ห้องครัว) - เนื้อที่ 153.5 ตร.ม. (คลิกเพื่อชมแปลนห้องขนาดใหญ่)
    12. ห้องแบบ 2 ห้องนอน (2 ห้องนอน, 2 ห้องน้ำ, 1 ห้องครัว) - เนื้อที่ 180 ตร.ม. (คลิกเพื่อชมแปลนห้องขนาดใหญ่) 
    13. ห้องแบบ 2 ห้องนอน (2 ห้องนอน, 2 ห้องน้ำ, 1 ห้องครัว) - เนื้อที่ 185 ตร.ม. (คลิกเพื่อชมแปลนห้องขนาดใหญ่) 
    14. ห้องแบบ เพ้นท์เฮ้าส์ (2 ห้องนอน, 2 ห้องน้ำ, 1 ห้องครัว) - เนื้อที่ 203 ตร.ม. (คลิกเพื่อชมแปลนห้องขนาดใหญ่) 
    15. ห้องแบบ เพ้นท์เฮ้าส์ (2 ห้องนอน, 2 ห้องน้ำ, 1 ห้องครัว) - เนื้อที่ 235 ตร.ม.  (คลิกเพื่อชมแปลนห้องขนาดใหญ่)
    ห้องของโครงการนี้ขายแบบ Fully Furnised ค่ะ มี Built-in และให้เครื่องใช้ไฟฟ้ามาให้ ได้แก่ แอร์, เครื่องดูดควัน, เตาฝัง, ครัวแบบบิ้วท์อิน, ไมโครเวฟ, เครื่องทำน้ำอุ่น, อ่างอาบน้ำ, สุขภัณฑ์ และเฟอร์นิเจอร์ต่างๆ ภายในห้อง สำหรับห้องตัวอย่างที่เราได้เข้าไปชมมี 2 แบบคือ (1) ห้องแบบ 1 ห้องนอน และ (2) ห้อง Penthouse เรามาชมกันเลยค่ะ
    ห้องแบบ 1 ห้องนอน

    Layout ห้องแบบ 1 ห้องนอน ขนาด 65 ตร.ม. 

    ประตูทางเข้าเมื่อเปิดเข้ามาจะเจอกับชุดโต๊ะรับประทานอาหารก่อน ถัดมาเป็นโซนรับแขก
    ระบล็อคประตูจะเป็นแบบ Digital Door Lock เพิ่มความสะดวก และปลอดภัยสำหรับผู้พักอาศัย

    จากพื้นถึงเพดานมีความสูง 2.8 เมตร และพื้นเป็นแบบ เอ็นจิเนียริ่งวู๊ด

    โซนทำอาหารของห้องแบบ 1 ห้องนอน ทางโครงการจะบิ้วท์เคาน์เตอร์ชุดครัวมาให้เลยค่ะ
    ประกอบไปด้วยอ่างล้างจาน + ก๊อกน้ำ และ Shelf วางของ

    ชุดโซฟาพร้อมโต๊ะเล็กรวมถึงม่าน ทั้งหมดนี้ทางโครงการจัดเต็มมาให้ใน Fully Furnished ทั้งหมด

    ภาพของโซฟาที่จะได้มาพร้อมช่องวางของด้านข้าง

    ระยะที่ค่อนข้างกว้างระหว่างโซนห้องน้ำกับห้องนอน ภายในห้องน้ำประกอบด้วยอ่างอาบน้ำ
    เคาน์เตอร์ล้างมือ และ Shower Box

    เตียงนอนที่โครงการจัดรวมมาให้ด้วยในห้องนอน

    ห้องน้ำจัดเต็มให้ทั้งทั้ง Shower Box และอ่างอาบน้ำ

    ข้างๆ Shower Box มีตู้เสื้อผ้าที่วางติดกัน เพิ่มความสะดวกสำหรับการใช้งานมากทีเดียวค่ะ

    มาถึงระเบียงชมวิวกันบ้างนะคะ จากภาพจะเห็นว่าทั้งโต๊ะ และโซฟา ที่ตกแต่งไว้นั้น
    ทางโครงการให้มาด้วยค่ะ โดยจะเน้นเป็นวัสดุไม้เพื่อให้เข้ากับบรรยากาศธรรมชาติ

    ระเบียงฝั่งนี้ตกแต่งด้วยโต๊ะ เก้าอี้ แบบ 2 ที่นั่ง
    และใช้กระเบื้อง Travertine ผลิตจากผงหินธรรมชาติ เน้นความใส่ใจจากธรรมชาติทุกชิ้นเลยค่ะ
    Penthouse

    Layout ห้องแบบ Penthouse ขนาด 140 ตร.ม.

    เปิดประตูเข้ามาจะเห็นส่วนของโซนโต๊ะรับประทานอาหารกับโซฟาค่ะ

    ซ้ายมือ ฝั่งตรงข้ามกับโซฟาเป็นชั้นวางทีวี ที่ทางโครงการบิ้วท์อินมาให้อย่างสวยงาม

    ด้านหลังโซฟาเปิดประตูกระจกออกไปเป็นระเบียงที่เรียกได้ว่ากว้างมากค่ะ
    เพราะมีทั้งโซนนั่งเล่น และสระว่ายน้ำแบบ Infinity Edge

    มุมโต๊ะรับประทานอาหารที่หันหลังให้โซฟา ทางโครงการให้ทั้งชุดโต๊ะ เก้าอี้ รวมไปจนถึงเคาน์เตอร์ครัว
    ทั้งหมดเลยค่ะ และเน้นเป็นเฟอร์นิเจอร์ไม้เพื่อความเป็นธรรมชาติทั้งหมด

    เครื่องใช้ไฟฟ้าที่โครงการให้มาแบบ Full option สำหรับโซนห้องครัว ได้แก่ เครื่องดูดควันของ MEX

    เตาแม่เหล็กไฟฟ้า 4 หัว ของ MEX เช่นกัน

    เตาอบของ Smeq ถูก Build in ไปกับชุดครัว

    เดินออกมาด้านนอกในส่วนของระเบียงห้องกันบ้างค่ะ

    โซนระเบียงของที่นี่อย่างที่บอกไว้ว่าใหญ่มากๆ คือน่าจะเน้นพื้นที่สำหรับการพักผ่อนควบคู่ไปกับการจัดปาร์ตี้

    สระว่ายน้ำแบบ Infinity Edge Pool ของห้อง Penthouse ค่ะ

    Master Bedroom ของห้อง Penthouse ถูกจัด Layout ไว้เหมือนกับห้องแบบ 1 ห้องนอนค่ะ

    ปลายเตียงจะเป็นชั้นวางทีวี

    ภาพบรรยากาศในห้องน้ำของห้อง Master Bedroom 

    ระเบียงที่อยู่ติดกันกับห้องนอนแค่เลื่อนกระจกก็ได้สูดอากาศเขาใหญ่แล้วค่ะ

    ส่วนรูปนี้เป็นห้องนอนเล็กและถึงจะเป็นห้องนอนเล็กแต่ก็ได้วิวที่ดีเช่นกัน

    ห้องน้ำในตัวของห้องนอนเล็ก

    บริเวณระเบียงด้านนอกทั้งฝั่งขวาและฝั่งซ้าย

    วิวมุมสูงจากห้อง Penthouse สำหรับห้อง Penthouse จะอยู่บนชั้นสูงสุดของอาคารทุกอาคาร (ชั้น 5)
    และตอนนี้ Sold out หมดแล้วค่ะ
    ราคาและค่าใช้จ่ายที่เกี่ยวข้องโดยประมาณ (ณ วันที่ 23 สิงหาคม 2558)
    ราคาเริ่มต้น 7 ล้านบาท สำหรับห้องแบบ 1 ห้องนอน ขนาด 65 ตร.ม.
    ค่าใช้จ่ายอื่นๆ
    ส่วนกลาง 60 บาท ต่อ ตร.ม. /เดือน ชำระล่วงหน้า 12 เดือน
    เงินกองทุนส่วนกลาง 600 บาท/ตร.ม. ชำระครั้งเดียวในวันโอนกรรมสิทธิ์
    ค่ามิเตอร์ไฟฟ้า: ผู้ซื้อเป็นผู้ชำระ
    ค่าเงินประกันมิเตอร์น้ำ: ผู้ซื้อเป็นผู้ชำระ
    โปรแกรม Leaseback
    ทางบริษัท คีรีมายา จำกัดได้จัดให้มีโปรแกรม Leaseback สำหรับผู้ซื้อยูนิตในโครงการนี้ด้วยค่ะ โดยหลักการง่ายๆ ก็คือเมื่อซื้อคอนโดที่นี่แล้ว และหากสนใจจะหารายได้จากการปล่อยเช่าคอนโดที่ซื้อไว้ เพราะปกติก็ไปอยู่เพียงแค่เสาร์-อาทิตย์ หรือช่วง Long Weekend เท่านั้น ก็สามารถเข้าโปรแกรมปล่อยเช่ากลับให้เจ้าของโครงการ (Leaseback) ได้ โดยเจ้าของโครงการ (คือ บจ. คีรีมายา) จะจ่ายค่าเช่าให้เจ้าของยูนิตเป็นค่าตอบแทนต่อไป ซึ่งหากใครสนใจจะเข้าโปรแกรมนี้ ก็ลองถามรายละเอียดเพิ่มเติมจาก Sales โครงการเพิ่มเติมได้นะคะ
    ภาพรวมโดยสรุปของโครงการ
    • การเดินทางเข้าออกโครงการ - หากเป็นผู้ที่คุ้นเคยกับการมาเที่ยวอุทยานแห่งชาติเขาใหญ่อยู่แล้วก็ถือว่ามาไม่ยากเลยค่ะ เพียงแค่เลี้ยวซ้ายก่อนถึงด่านตรวจ และเก็บค่าธรรมเนียมอุทยานฯ ประมาณ 7 กม. ก็ถึงโครงการแล้ว หากมาจากกรุงเทพฯ ทางถนนมิตรภาพก็สามารถเข้าโครงการได้หลักๆ 2 ทาง คือ เข้า (ก) ทางถนนผ่านศึก-กุดคล้า (ด้านหน้าเป็นร้านแดรี่โฮม) ซึ่งถ้าใช้เส้นทางนี้ระยะทางจากกรุงเทพ (ถ้าวัดจากทางขึ้นทางด่วนดินแดงบนถนนวิภาวดีรังสิต) จะประมาณ 175 กิโลเมตร หรือ (ข) เข้ามาถนนธนะรัชต์ตรงใกล้ๆ พรีเมี่ยมเอาท์เล็ทเขาใหญ่ก็ได้ค่ะ (ซึ่งถ้าใช้เส้นทางนี้ระยะทางจากกรุงเทพ (ถ้าวัดจากทางขึั้นทางด่วนดินแดงบนถนนวิภาวดีรังสิต) จะประมาณ 183 กิโลเมตร นอกจากนี้ยังสามารถมาโครงการจากทางวังน้ำเขียวอีกค่ะ แต่เส้นทางนี้จะไกลกว่า 2 เส้นทางแรกค่ะ โดยรวมแล้วการเดินทางเข้าออกโครงการถือว่าสะดวกค่ะ เส้นทางตรงไปตรงมาง่ายๆ
    • ทำเลรอบโครงการ - บรรยากาศด้านหน้าทางเข้าโครงการไม่พลุกพล่านเหมือนถนนธนะรัชต์ช่วงอื่นๆ ที่ติดกับแหล่งท่องเที่ยว ทำให้เหมาะสำหรับเป็นที่พักผ่อนค่ะ ในระยะใกล้ๆ โครงการก็มีร้านอาหาร เช่น ร้านครัวกำปั้น (ห่างจากโครงการ 100 ม.) และร้านสเต็ก@เขาใหญ่ (ห่างจากโครงการ 150 ม.) ถ้าไปตรงโซนด่านเก็บค่าธรรมเนียมอุทยานฯ ก็จะมี ร้านเขาใหญ่ สเต็กเฮ้าส์ (ห่างจากโครงการ 7.8 กม.) และร้าน Moon Dance Bistro (ห่างจากโครงการ 8.7 กม.) เลยไปหน่อยก่อนถึงถนนผ่านศึก-กุดคล้าก็มี 7-Eleven, ร้านอาหาร และ ATM ส่วนถ้าออกไปด้านนอกหน่อยก็จะมี ปาลิโอ เขาใหญ่ (ห่างจากโครงการ 6 กม.) และพรีโม เพียซซ่า (ห่างจากโครงการ 12 กม.) โดยรวมแล้วโครงการตั้งอยู่บนทำเลที่ดีค่ะ ได้บรรยากาศของความเงียบความสงบ (Seclusion) แต่ในขณะเดียวกันก็อยู่ไม่ไกลจากสถานที่ท่องเที่ยว และสิ่งอำนวยความสะดวกต่างๆ ในเขาใหญ่
    • ตัวโครงการโดยรวม และส่วนกลาง - โครงการนี้เป็นส่วนหนึ่งของ "Kirimaya Resort" ซึ่งเป็นรีสอร์ทที่ประกอบไปด้วยโรงแรมห้องพัก รีสอร์ทหรู ห้อง Conference และสนามกอลฟ์ 18 หลุมออกแบบโดย Jack Nicklaus ดังนั้น ประโยชน์ของเจ้าของคอนโดที่จะได้หลักๆ ของการเป็นส่วนหนึ่งในอาณาจักร Kirimaya คือ (ก) สามารถเข้าถึงส่วนกลางเหล่านี้ได้อย่างสะดวก ไม่ว่าจะเป็นสนามกอลฟ์ หรือสปา และ (ข) ค่อนข้างจะมั่นใจได้ว่าสภาพแวดล้อมโดยรวมรอบๆ โครงการรวมถึงส่วนกลาง Facility ต่างๆ จะไม่โทรม และต้นไม้ใบหญ้าน่าจะได้รับการดูแลต่อเนื่องเป็นอย่างดี สำหรับส่วนกลางที่ลูกบ้านคอนโด atta จะใช้ได้นั้น จะมี 2 ส่วนหลักๆ คือ ส่วนในคอนโดเอง ซึ่งก็มีไม่มากนักมีเพียง Clubhouse และสระว่ายน้ำเท่านั้น และที่จอดรถหน้าอาคารซึ่งจอดได้ประมาณ 10-20 คันต่ออาคาร และส่วนที่สองคือในตัวรีสอร์ทกลางของคีรีมายา ซึ่งส่วนนี้จะมีมากขึ้นหน่อย คือ มีทั้งร้านอาหาร สปา และสนามกอล์ฟ (แต่บางส่วนต้องเสียค่าใช้จ่ายเพิ่มเติมแยกต่างหากนะค่ะ) และมีลานจอดรถขนาดใหญ่สามารถรองรับรถได้มากกว่า 100 คัน กรณี Long Weekend ที่มีแขกมาพักกันเยอะ และภายในโครงการจะมีบริการรถกอล์ฟเชื่อมต่อระหว่างคอนโด และส่วนกลางของทางรีสอร์ทให้ทางลูกบ้านด้วย
    • แบบห้อง และวัสดุโดยรวม - โครงการ atta The Condo ประกอบไปด้วย 9 อาคาร สูง 5 ชั้น ในแต่ละอาคารจำนวนยูนิตไม่หนาแน่น คือประมาณ 23-29 ยูนิตต่ออาคารเท่านั้น และแต่ละอาคารมี Lift โดยสารให้อาคารละ 1 ตัว ชั้นล่างสุดของแต่ละอาคารจะมี Lobby ส่วนตัวของแต่ละอาคาร และด้านในของแต่ละอาคารได้มีการออกแบบให้เป็น Single Corridor สำหรับทุกชั้นเลย ดังนั้น เมื่อเปิดประตูคอนโดออกมาจะมีความเป็นส่วนตัว (ไม่มีห้องอยู่ด้านตรงข้าม) และสามารถรับลมชมวิวได้เลย แบบห้องมี 3 แบบหลักๆ คือ 1 ห้องนอน 2 ห้องนอน และ Penthouse (โดยแบบ 1 และ 2 ห้องนอนจะมีความแตกต่างกันในเรื่องของขนาดห้องอยู่บ้างขึ้นอยู่กับชั้น และอาคาร) โครงการขายแบบ Fully Furnished ซึ่งเท่าที่เราได้สอบถามดูก็เรียกได้ว่า Fully Furnished แบบแท้จริง เพราะได้ทั้งเฟอร์นิเจอร์ลอยตัว (เช่น โซฟา โต๊ะทานข้าว ชุดระเบียง) เฟอร์นิเจอร์ Built-in (เช่น ตู้เสื้อผ้า ตู้วางทีวี) เครื่องใช้ไฟฟ้า (เช่น ทีวี ตู้เย็น) และอุปกรณ์อื่นๆ ครบครัน เช่น ผ้าม่าน ความสูงในแต่ละยูนิตคือ 2.8 เมตร พื้นในห้องเป็น Engineering Wood และกระเบื้องตรงระเบียงจะเป็นกระเบื้อง Travertine เป็นต้น
    • ราคา - ราคาโดยรวมประมาณ 1 แสนบาทเศษๆ ต่อตารางเมตร (แตกต่างกันไปตามชั้น และขนาดห้อง) ซึ่งเมื่อเทียบกับ Facility ของทั้งรีสอร์ทโดยรวม ความสงบของโครงการ และเฟอร์นิเจอร์แบบ Fully Furnished ที่ให้มา ถือว่าเป็นสนนราคาที่พอรับได้ทีเดียว ซึ่งหากใครที่กำลังมองหาบ้านที่สองสำหรับพักผ่อนในเขาใหญ่ภายใต้บรรยากาศที่สงบเงียบ และได้เห็นวิวเขาใหญ๋ตลอดทั้งวันทั้งคืน โครงการนี้ก็ถือว่าเป็นหนึ่งในอีกโครงการที่เราขอแนะนำสำหรับทำเลตรงนี้ค่ะ นอกจากนี้ หากใครสนใจจะซื้อเผื่อเป็นการลงทุน หรือต้องการมีรายได้จากคอนโดนี้ซึ่งเราอาจไม่ได้มาพักผ่อนบ่อยนัก ก็สามารถเลือกที่จะเข้าโปรแกรม Leaseback ของทางบริษัท คีรีมายา จำกัดได้ ซึ่งผลตอบแทนที่เราจะได้ก็คือค่าเช่าที่ทางเจ้าของโครงการจะจ่ายให้เรานั่นเองค่ะ
    สถานะปัจจุบันของโครงการ (วันที่ 24 ส.ค. 58)
    โครงการ atta The Condo ขายได้ดีพอสมควรแล้ว โดยห้อง Penthouse นั้นขายหมดไปเรียบร้อยแล้ว ส่วนห้องแบบ 2 ห้องนอนขายไปได้แล้วประมาณ 95% และห้องแบบ 1 ห้องนอนขายไปได้แล้วประมาณ 85% และปัจจุบันลูกบ้านบางส่วนก็ได้มีการนำห้องชุดของตัวเองมาร่วมเข้าโปรแกรม Leaseback แล้วด้วย โดยห้องที่เข้าร่วมโปรแกรมเหล่านี้ ทางบริษัท คีรีมายา จำกัด ก็ได้นำห้องเหล่านี้ไปให้เช่า (โดยเฉพาะอย่างยิ่งการปล่อยเช่าให้กับลูกค้า Corporate ที่พาพนักงานมาพักผ่อน หรือเข้าโปรแกรม Retreat ในช่วงสุดสัปดาห์) สร้างรายได้เสริมให้แก่เจ้าของยูนิตที่ซื้อโครงการนี้เสมือนเป็นการลงทุนในรูปแบบหนึ่ง
    ติดต่อโครงการ โทร. 02 257 0337 หรืออ่านรายละเอียดโครงการเพิ่มเติมได้ที่ www.kirimaya.com

    รีวิว-พรีวิวล่าสุดอื่นๆ

    คอนโดติดรถไฟฟ้าล่าสุด

เว็บไซต์นี้มีการเก็บคุกกี้เพื่อเพิ่มความพึงพอใจในการใช้งานเว็บไซต์ และช่วยให้เราปรับปรุง และนำเสนอเนื้อหาตรงตามความสนใจของท่าน ท่านสามารถดู Privacy Notice และ ดู Cookies Policy ของเราได้ ที่นี่ ทั้งนี้ ท่านจะยินยอมให้เราเก็บคุกกี้ทั้งหมด หรือให้เก็บแค่บางส่วนโดยการคลิกเลือก ตั้งค่า

ท่านสามารถเลือกให้ความยินยอมการเก็บคุกกี้เป็นเรื่องๆ ได้ที่นี่

เมื่อคุณเข้าชมเว็บไซต์ หรือแอปพลิเคชั่น checkraka เราอาจจัดเก็บ หรือดึงข้อมูลจากเบราว์เซอร์ของคุณในรูปแบบของคุกกี้ และเทคโนโลยีอื่นที่คล้ายคลึง เช่น tag และ pixel (เรียกรวมกันว่า “คุกกี้”) ซึ่งมักเป็นข้อมูลที่ไม่สามารถระบุตัวตนได้โดยตรง แต่ช่วยให้คุณใช้งานเว็บไซต์ได้ปลอดภัย และตรงตามความต้องการมากขึ้น คุณอาจไม่ยินยอมให้เราเก็บคุกกี้บางประเภทได้ โดยการคลิกตามหัวข้อข้างล่างนี้

ประเภทคุกกี้
อ่านเพิ่มเติม ที่นี่
ยินยอม / ไม่ยินยอม
คุกกี้ที่จำเป็นต้องมีเสมอ
(Strictly Necessary)
คุกกี้สำหรับการใช้งานเว็บไซต์
(Functionality)
คุกกี้เพื่อเพิ่มประสิทธิภาพและวิเคราะห์
(Performance & Analytics)
คุกกี้เพื่อการตลาด
(Marketing)