ชาโตว์ อินทาวน์ สุขุมวิท 62/1 เฟส 2 (Chateau In Town Sukhumvit 62/1-2)
วันนี้ Checkraka.com พามาชมคอนโดมิเนียมพร้อมอยู่อีกหนึ่งโครงการในย่านสุขุมวิท จากบริษัท พระยาพาณิชย์ พร็อพเพอร์ตี้ จำกัด ซึ่งเป็นบริษัทในเครือ CMC Group กันค่ะ โครงการนี้มีชื่อว่า
ชาโตว์ อินทาวน์ สุขุมวิท 62/1 เฟส 2 (Chateau In Town Sukhumvit 62/1-2) เป็นโครงการคอนโดมิเนียม Low-rise กับรูปแบบการพักอาศัยที่เน้นความเป็นส่วนตัวเพียง 79 ยูนิต ออกแบบภายใต้คอนเซปต์ "Life in pine" ธรรมชาติโอบล้อมชีวิต ใกล้จุดขึ้นลงทางด่วน ใกล้ BTS สถานีบางจากประมาณ 500 เมตร และ 10 สถานีสู่สยามพารากอน โดยโครงการ ชาโตว์ อินทาวน์ สุขุมวิท 62/1 ในซอยนี้จะมีอยู่ด้วยกัน 2 เฟส ซึ่งเฟสที่เราจะพาไปชมกันวันนี้คือเฟส 2 ที่สร้างเสร็จพร้อมให้ลูกบ้านเข้าอยู่ได้แล้ว เดี๋ยวเราไปชมบรรยากาศจริง ห้องจริงของโครงการนี้กันค่ะ

- เจ้าของ และผู้พัฒนาโครงการ: บริษัท พระยาพาณิชย์ พร็อพเพอร์ตี้ จำกัด
- ที่ตั้งโครงการ: ซอยสุขุมวิท 62/1 ถนนสุขุมวิท แขวงบางจาก เขตพระโขนง กรุงเทพฯ 10260
- อาคารชุดพักอาศัย: สูง 8 ชั้น จำนวน 1 อาคาร ประกอบด้วย ห้องชุดพักอาศัย จำนวน 79 ยูนิต
- ขนาดที่ดินทั้งโครงการ: 0-3-13.95 ไร่
- ลิฟต์โดยสาร 1 ตัว
- ห้องชุดพักอาศัย: มี 2 รูปแบบหลักๆ ได้แก่ 1 ห้องนอน 30 ตร.ม. และ 2 ห้องนอน 44.49 ตร.ม.
- ที่จอดรถประมาณ 32 คัน (ไม่รวมจอดซ้อนคัน)
- ราคาเริ่มต้น 2.6 ล้านบาท สําหรับห้องแบบ 1 ห้องนอน ขนาด 30 ตร.ม. (ข้อมูล ณ 9 ก.ค. 58)
- ก่อสร้างแล้วเสร็จสมบูรณ์ 100% พร้อมเข้าอยู่แล้ว
- วันที่เข้าเยี่ยมชม-รีวิวคอนโด ข้อมูล ณ 9 ก.ค. 58
เจ้าของและผู้พัฒนาโครงการ
บริษัท พระยาพาณิชย์ พร็อพเพอร์ตี้ จำกัด หนึ่งในเครือบริษัท บริษัท เจ้าพระยามหานคร จำกัด (มหาชน) เดิมได้ดำเนินธุรกิจรับเหมาก่อสร้างภายใต้ชื่อบริษัทไทยสยามนคร พร็อพเพอร์ตี้ จำกัด รับก่อสร้างอพาร์ตเมนท์ในย่านชานเมือง ต่อมาในปี 2543 ได้ร่วมกลุ่มครอบครัวแพทยานันท์ จัดตั้งบริษัท พระยาพาณิชย์ พร็อพเพอร์ตี้ฯ ขึ้น ด้วยทุนจดทะเบียน 30 ล้านบาท ประกอบธุรกิจพัฒนาโครงการคอนโดมิเนียมภายใต้แบรนด์ "ชาโตว์ อินทาวน์" หลังจากนั้นได้พัฒนาโครงการอสังหาริมทรัพย์อีกหลายโครงการ และหนึ่งในนั้นคือโครงการ คอนโด ชาโตว์ อินทาวน์ สุขุมวิท 62/1 เฟส 2 ซึ่งเป็นคอนโดมิเนียมที่สร้างเสร็จพร้อมเข้าอยู่ได้แล้ว

ภาพแผนที่โครงการ ชาโตว์ อินทาวน์ สุขุมวิท 62/1 เฟส 2
คลิกเพื่อดูภาพขยาย 
ภาพแผนที่โครงการแจกแจงให้เห็นระยะใกล้-ไกลของโครงการ
กับสถานที่ หรือ Landmark รอบๆ โครงการที่น่าสนใจ
(คลิกเพื่อดูภาพขยาย)ตำแหน่ง GPS โดยประมาณของโครงการ = 13.692141,100.60395

ปิยรมย์ เพลส ห่างจากโครงการประมาณ 1.3 กม.

เกตเวย์ เอกมัย
ห่างจากโครงการประมาณ 4 กม. 
เทสโก้ โลตัส อ่อนนุช ห่างจากโครงการประมาณ 1.7 กม.

บิ๊กซี อ่อนนุช ห่างจากโครงการประมาณ 2.4 กม.

เดอะฟิลล์ สุขุมวิท 54 Eco-Hybrid Lifestyle Mall ห่างจากโครงการประมาณ 1.5 กม.
การเดินทางเข้า-ออกโครงการ
1. เดินทางด้วยรถยนต์ส่วนตัว
การเดินทางด้วยรถยนต์สามารถมาได้หลายเส้นทาง โดยมีเส้นทางหลักดังต่อไปนี้ค่ะ
เส้นทางเข้าที่ 1 - ขาเข้าโครงการจากถนนสุขุมวิทฝั่งขาเข้า
เส้นทางเข้าที่ 2 - ขาเข้าโครงการจากแยกบางนา
เส้นทางออกที่ 1 - ขาออกโครงการไปขึ้นทางด่วน (เลี่ยงถนนสุขุมวิท)
เส้นทางออกที่ 2 - ขาออกโครงการทางสุขุมวิทไปเข้าโซนสุขุมวิทชั้นใน
2. การเดินทางด้วยรถไฟฟ้า
ตัวอย่างการเดินทางจากรถไฟฟ้า BTS สถานีบางจากมายังโครงการ
เดี๋ยวเราลองมาดูภาพตัวอย่างการเดินทางจากรถไฟฟ้า BTS สถานีบางจากมายังโครงการกันดีกว่านะคะโดยจะใช้ทางออกที่ 4 ซึ่งเป็นทางออกที่ใกล้กับโครงการที่สุดค่ะ

แผนที่บริเวณ BTS สถานีบางจาก (
คลิกเพื่อดูภาพขยาย)

เริ่มต้นกันที่รถไฟฟ้า BTS สถานีบางจากเลยค่ะ

พอลงจากรถไฟฟ้า ให้ใช้ทางออกที่ 4 ค่ะ

เดินตามทางมาเรื่อยๆ ลงทางลงด้านขวามือ

ถ้าเรามองลงไปด้านล่างก็จะเป็นถนนสุขุมวิทค่ะ
ทางซ้ายมือ จะเห็นปากซอยสุขุมวิท 99 (ถนนสุขุมวิทฝั่งเลขคี่)
ทางขวามือ จะเห็นปากซอยสุขุมวิท 62 (ถนนสุขุมวิทฝั่งเลขคู่)
ถ้าเรามองไปไกลๆ ทางด้านขวามือก็จะเห็นปากซอยสุขุมวิท 62/1 ซึ่งเป็นซอยทางเข้าโครงการค่ะ
เดี๋ยวเราเดินลงไปตามทางออกที่ 4 เลยค่ะ

ทางออกที่ 4 จะอยู่ติดกับซอยสุขุมวิท 62 พอดีค่ะ

ตรงนี้มีทางม้าลายด้วยค่ะ ข้ามไม่ยากเพราะตรงนี้เป็นสามแยกไฟแดงค่ะ รอจังหวะไฟแดงก็ข้ามได้

พอข้ามมาแล้ว ด้านขวามือเป็นอาคารพาณิชย์ซึ่งเปิดเป็นร้านอุปกรณ์แต่งรถยนต์ค่ะ

เดินต่อมาอีกหน่อยก็มีร้านกาแฟอยู่ทางขวามือ

ถัดจากร้านกาแฟก็จะเป็นเต็นท์ขายรถมือสองค่ะ

เดินมาอีกหน่อยก็ถึงด้านปากซอยสุขุมวิท 62/1 แล้วค่ะ สังเกตจะมีปั๊มปตท.อยู่
เดี๋ยวเราเลี้ยวขวาเข้าซอยกันค่ะ

พอเลี้ยวเข้ามา ทางขวามือเป็นด้านข้างของเต็นท์ขายรถมือสองที่เราผ่านมาเมื่อกี้

เดินต่อมาอีกหน่อยจะมีร้านอาหารตามสั่ง ZA ZAB อยู่ค่ะ

ถัดมาด้านซ้ายมือ คือ โครงการ ชาโตว์ อินทาวน์ สุขุมวิท 62/1 เฟส 1 ค่ะ

ถัดมานิดนึงจะมีร้านอาหารบ้านต้นปีบอยู่ทางซ้ายมือ

เดินมาอีกหน่อยก็ถึงโครงการแล้วค่ะ อยู่ทางขวามือ

.
แผนที่สภาพแวดล้อม และโครงการคอนโดมิเนียมบริเวณรอบโครงการ (
คลิกเพื่อดูรูปขยายใหญ่)
บรรยากาศด้านหน้าโครงการ

ฝั่งตรงข้ามโครงการเป็นบ้านพักอาศัยค่ะ บรรยากาศค่อนข้างสงบทีเดียว
บรรยากาศด้านขวามือโครงการ

บรรยากาศด้านขวามือโครงการค่ะ เป็นถนน 2 เลน รถสวนกันได้

เดินต่อมาอีกหน่อยก็จะมีบ้านพักอาศัยอยู่ทางซ้ายมือ
ส่วนทางขวามือเป็นคอนโด
กำลังก่อสร้างอยู่ ชื่อว่า ดิ ยูนิค สุขุมวิท 62/1 ค่ะ 
เดินต่อไปเรื่อยๆ เป็นอาคารพาณิชย์ 3 ชั้น อยู่ทางขวามือ

ถัดมาอีกหน่อยมีอาคารพาณิชย์ 4 ชั้นอยู่ทางซ้ายมือ และลานจอดรถอยู่ทางขวามือ

เดินมาอีกหน่อยก็จะออกปากซอยทางด้านถนนเลียบทางด่วนแล้วค่ะ
ถ้าเราไปทางซ้ายจะไปออกซอยสุขุมวิท 64 ได้
ส่วนถ้าไปทางขวาจะไปออกซอยสุขุมวิท 50, ซอยสุขุมวิท 62,
ถนนทางรถไฟสายเก่า
และจุดขึ้นลงทางด่วนขั้นที่ 1 (บางนา-ท่าเรือ) ด่านสุขุมวิท 62 ได้ค่ะ
ทางซ้ายจะไปออกซอยสุขุมวิท 64 ได้ค่ะ 
ทางขวาจะไปออกซอยสุขุมวิท 50, ซอยสุขุมวิท 62, ถนนทางรถไฟสายเก่า
และจุดขึ้นลงทางด่วนขั้นที่ 1 (บางนา-ท่าเรือ) ด่านสุขุมวิท 62 ได้ค่ะ บรรยากาศด้านซ้ายมือโครงการ

บรรยากาศด้านซ้ายมือโครงการค่ะ เดี๋ยวเราลองเดินออกไปหน้าปากซอยกันดีกว่านะคะ

เดินออกมาจะเห็นร้านอาหารบ้านต้นปีบอยู่ทางขวามือค่ะ ตึกที่เห็นอยู่ด้านหลังเป็นโครงการ ชาโตว์ อินทาวน์ สุขุมวิท 62/1

ร้านอาหารบ้านต้นปีบก็จะมีก๋วยเตี๋ยวหมูต้มยำ, ข้าวขาหมู, ผัดกระเพราขาหมู ฯลฯ

เดินต่อมาจะเห็นด้านหน้าทางเข้าโครงการ
ชาโตว์ อินทาวน์ สุขุมวิท 62/1 อยู่ทางขวามือ 
เดินต่อมาจะเห็นเต็นท์รถมือสองทางซ้ายมือ ด้านขวามือจะเป็นปั๊มน้ำมัน/NGV ปตท.
ปากซอยทางด้านซ้ายมือจะมีวินมอเตอร์ไซค์อยู่ ถ้ามองไปตรงๆ จะเห็นแนวรถไฟฟ้า BTS อยู่ด้านหน้าค่ะ

เดินมาอีกหน่อยก็จะออกปากซอยสุขุมวิท 62/1 แล้วค่ะ ถ้าเดินไปทางซ้ายก็จะเจอรถไฟฟ้า สถานีบางจาก

ถ้าเดินไปทางขวามือเป็นปั๊มน้ำมัน/NGV ปตท.ค่ะ

ในปั๊มน้ำมัน/NGV ปตท. มีร้าน 7-Eleven, ร้านกาแฟ Amazon และตู้ ATM

เดินต่อไปอีกหน่อยก็จะมีป้ายรถประจำทางอยู่ค่ะ
รูปแบบตึก และตัวโครงการโดยรวม
โครงการ "ชาโตว์ อินทาวน์ สุขุมวิท 62/1 เฟส 2" เป็นคอนโด Low-Rise สูง 8 ชั้น จำนวน 1 อาคาร มียูนิตพักอาศัยเพียง 79 ยูนิต ตั้งอยู่บนขนาดที่ดิน 0-3-13.95 ไร่ อาคารรูปทรงตัว I หน้าโครงการหันเข้าหาทิศใต้ แต่ก็ไม่ใช่ทิศใต้ตรงๆ ซะทีเดียว เหมือนจะเอียงไปทางทิศตะวันออกเฉียงใต้นิดๆ รูปแบบการจัดวางห้องพักก็จะคล้ายกับหลายโครงการของชาโตว์ อินทาวน์ คือห้องขนาดใหญ่แบบ 2 ห้องนอนจะอยู่ฝั่งหัวมุมทางฝั่งทิศเหนือ และทิศใต้ของอาคาร ส่วนห้องเล็กแบบ 1 ห้องนอนจะอยู่ฝั่งบริเวณโซนกลางของอาคาร หันหน้าเข้าหาฝั่งทิศตะวันออก และทิศตะวันตกทั้งหมด โดยรอบโครงการส่วนใหญ่เป็นบ้านเดี่ยว 2-3 ชั้น นั่นหมายความว่าห้องที่อยู่ตั้งแต่ชั้น 4 ขึ้นไปจะได้วิวค่อนข้างเปิดโล่ง และโอกาสที่รอบๆ โครงการจะเติบโตเป็นอาคารสูงก็ค่อนข้างต่ำ เนื่องจากเป็นบ้านอยู่อาศัยของคนที่ค่อนข้างมีฐานะดี บวกกับตั้งอยู่ในพื้นที่สีส้มซึ่งไม่สามารถสร้างโรงงานได้ ดังนั้นจึงเบาใจได้ว่าอากาศบริเวณนี้จะไม่มีมลพิษจากโรงงานต่างๆ มารบกวน ส่วนสิ่งอำนวยความสะดวกจะอยู่ที่ชั้น 1 ชั้น 2 และชั้น 4 ของโครงการ มีลิฟต์โดยสารให้ 1 ตัว อัตราการใช้ลิฟต์เฉลี่ยอยู่ที่ 79 ยูนิต ต่อลิฟต์ 1 ตัว

Master Plan ของชั้น G ชั้นนี้เป็นส่วนของ สระว่ายน้ำ, ฟิตเนส, ห้องจดหมาย, ล็อบบี้
ห้องนิติบุคคล, ที่จอดรถจำนวน 32 คัน (แบบไม่รวมจอดซ้อนคัน) และลิฟต์โดยสาร 1 ตัว

Master Plan ชั้น 2 จะมีในส่วนของสวนหย่อมในร่มแบบ Double Volume ทางฝั่งทิศเหนือของอาคาร
และส่วนพักอาศัยจำนวน 11 ยูนิต

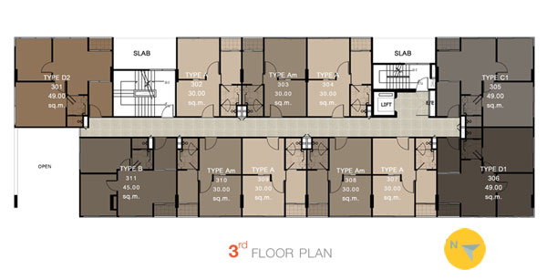
Master Plan ชั้น 3 จะเป็นส่วนพักอาศัยทั้งหมด มียูนิตต่อชั้นอยู่ที่ 11 ยูนิตเช่นกัน

Master Plan ชั้น 4 มียูนิตต่อชั้นเพียง 9 ยูนิต และบางส่วนเป็นแบบ Single Corridor
ที่ฝั่งตรงข้ามห้องจะเป็นสวนหย่อมในร่มสำหรับนั่งพักผ่อน

Master Plan ชั้น 5-8 จะคล้ายกันคือเป็นส่วนพักอาศัยทั้งหมดแต่ยูนิตพักอาศัยเพิ่มขึ้นมาอยู่ที่ 12 ยูนิตต่อชั้น
ส่วนกลางและสิ่งอำนวยความสะดวก
สิ่งอำนวยความสะดวกภายในโครงการถือว่ามีมาให้ลูกบ้านไม่มากแต่ก็ไม่น้อยจนเกินไปค่ะ โดยสิ่งอำนวยความสะดวกหลักๆ จะอยู่บริเวณชั้น 1 นอกจากนี้จะกระจายอยู่ที่ชั้น 2 และชั้น 4 ของอาคาร โดยสิ่งที่ให้มา ประกอบด้วย
- ห้องออกกำลังกาย
- สระว่ายน้ำแยกสระเด็ก สระผู้ใหญ่
- ลิฟต์โดยสาร 1 ตัว
- ที่จอดรถ 32 คัน (แบบไม่รวมจอดซ้อนคัน)
- สวนหย่อมบนบริเวณชั้น 2 และชั้น 4 ของอาคาร
- ห้องจดหมาย
- กล้อง CCTV
- พนักงานรักษาความปลอดภัย 24 ชั่วโมง
- ระบบ Key Card Access Control
- ระบบ VDO Door Phone บริเวณโถง Lobby ชั้น 1
- ระบบป้องกันอัคคีภัย เช่น Heat Detector, Smoke Detector
- ระบบไฟฟ้าแสงสว่างฉุกเฉิน บริเวณทางเดินร่วม และบันไดหนีไฟ
- ระบบ Wireless Internet ในบริเวณที่ชั้น 1 และสระว่ายน้ำ
- รถ Shuttle bus (รถตุ๊กๆ)
เดี๋ยวเราไปดูภาพบรรยากาศและตำแหน่งที่ตั้งของสิ่งอำนวยความสะดวกภายในโครงการ ชาโตว์ อินทาวน์ สุขุมวิท 62/1 เฟส 2 กันค่ะ

หน้าประตูทางเข้าโครงการกว้างประมาณ 6 เมตร ซึ่งสามารถเข้าออกได้ทางนี้ทางเดียว

เลยประตูเข้ามาจะเจอลานจอดรถบริเวณชั้น 1 ซึ่งจอดได้ทั้ง 2 ฝั่ง โดยที่จอดรถทั้งหมดของโครงการสามารถจอดแบบไม่ซ้อนคันได้ 32 คัน หรือคิดเป็น 40% ของจำนวนยูนิตทั้งหมด

บริเวณพื้นที่จอดรถติดตั้งกล้อง CCTV และไฟสำรองมาให้ด้วยค่ะ แต่ขอบอกนิดนึงว่าพื้นที่จอดรถของที่นี่
ค่อนข้างเล็กอยู่สักหน่อย หากคิดจะจอดซ้อนคัน เวลาเข้า-ออกคงไม่ค่อยสะดวกนัก

ท้ายสุดของพื้นที่จอดรถติดกับส่วนของสระว่ายน้ำค่ะ

สระว่ายน้ำขนาด 14x5 เมตร ลึก 1.70 เมตร แยกสระเด็ก สระผู้ใหญ่ไว้เรียบร้อย
ข้างสระตกแต่งด้วยม่านน้ำเก๋ๆ นอกจากนี้ยังอยู่ติดกับห้องฟิตเนส และห้องน้ำ

ภายในห้องฟิตเนสขนาดกะทัดรัดมีอุปกรณ์ออกกำลังกายมาให้ 5-6 ชิ้น

พื้นที่อาบน้ำ สำหรับชำระล้างร่างกายก่อนที่จะลงสระค่ะ อยู่ข้างๆ กับห้องฟิตเนสนี่เอง

ห้องน้ำบริเวณสระว่ายน้ำแยกเป็นห้องน้ำชาย และห้องน้ำหญิงอย่างชัดเจนนะคะ
โดยภายในห้องน้ำจะแบ่งเป็นห้องสำหรับอาบน้ำ 1 ห้อง และห้องสำหรับขับถ่ายอีก 1 ห้อง แบบนี้ค่ะ

ประตูเข้า-ออกอาคารเป็นระบบคีย์การ์ด พร้อมติดตั้ง VDO Door Phone มาให้ค่ะ
จะติดต่อใครในอาคารต้องผ่านจุดนี้ก่อนค่ะ

เปิดประตูเข้ามาจะเจอกับ Mail box ของโครงการค่ะ และด้านขวามือเป็นส่วนสำหรับรับรองแขกที่มาติดต่อ

ส่วนด้านขวาเป็นลิฟต์สำหรับขึ้นไปส่วนของห้องพักอาศัย

บรรยากาศด้านในลิฟต์ค่ะ หน้าจอเป็นแบบ Touch screen ของ Schindler ดูดีทีเดียว

ออกจากตัวลิฟต์มาจะเจอกับทางหนีไฟค่ะ ซึ่งโครงการนี้มีทางหนีไฟอยู่ 2 จุดด้วยกันค่ะ จุดแรกอยู่ใกล้กับลิฟต์

ส่วนจุดที่ 2 จะอยู่ทางด้านหลังฝั่งทิศเหนือของอาคาร ต้องบอกว่าทางหนีไฟที่นี่มีขนาดใหญ่มากๆ เลยค่ะ ทางโครงการแบ่งพื้นที่ของห้อง 1 ห้องนำมาทำเป็นพื้นที่ของบันไดหนีไฟเลยทีเดียว เวลาเกิดเหตุฉุกเฉินไม่ต้องกลัวว่าจะเบียดกันเลยค่ะ
ส่วนโถงทางเดินมีความกว้าง 1.5 เมตร ติดตั้งกล้อง CCTV และไฟฉุกเฉินมาให้ด้วย

สวนหย่อมในร่มแบบ Double Volume บริเวณชั้น 2 ของฝั่งทิศเหนือค่ะ ในอนาคตจะปูพื้นด้วยหญ้าเทียมเพิ่มความรู้สึกสดชื่นให้กับตัวอาคารยิ่งขึ้น โดยห้องที่อยู่ติดกับสวนหย่อมฝั่งนี้ จะได้วิวสวนและวิวสระว่ายน้ำแบบเต็มๆ ค่ะ

จากสวนหย่อมชั้น 2 จะมองเห็นวิวสระว่ายน้ำสวยๆ แบบนี้ค่ะ

จากชั้น 3 ก็สามารถมองเห็นวิวสวนหย่อม และสระว่ายน้ำได้เช่นกันค่ะ

ขึ้นมาที่ชั้น 4 จะมีสวนนั่งเล่นที่ข้างหนึ่งปูด้วยหญ้าเทียม ส่วนอีกด้านหนึ่งเป็นสวนหิน ซึ่งอนาคตจะมีชุดเก้าอี้
สำหรับนั่งเล่นมาลงให้กับลูกบ้านได้นั่งพักผ่อนกันบริเวณนี้ค่ะ
ภาพห้องตัวอย่างและ Lay out
ห้องของโครงการนี้ขายแบบ Fully Fitted ค่ะ มี Built-in และให้เครื่องใช้ไฟฟ้ามาบางส่วน โดยสิ่งที่ทางโครงการให้มา คือ แอร์ Samsung ขนาด 12,000 BTU ห้องนอนละ 1 ตัว, ชุดเครื่องครัวแบบ Built-in, เครื่องดูดควัน, เตาไฟฟ้า, อ่างล้างจาน และฉากกั้นอาบน้ำกระจกนิรภัยในห้องน้ำ ส่วนเฟอร์นิเจอร์อื่นๆ ที่เห็นในห้องเพียงแค่ตกแต่งมาให้ดูเป็นไอเดียเท่านั้นค่ะ
- ห้องแบบ 1 ห้องนอน (1 ห้องนอน, 1 ห้องน้ำ, 1 ห้องครัว) - เนื้อที่ 30 ตร.ม.
(คลิกเพื่อชมแปลนห้องขนาด 30 ตร.ม.) - ห้องแบบ 2 ห้องนอน (2 ห้องนอน, 1 ห้องน้ำ, 1 ห้องครัว) - เนื้อที่ 44 - 49 ตร.ม
(คลิกเพื่อชมแปลนห้องขนาด 49 ตร.ม.)
1) ภาพห้องตัวอย่างแบบ 1 ห้องนอน ขนาด 30.00 ตร.ม.

ประตูห้องเป็นวัสดุ HDF กลอนประตูเป็นระบบ Digital Door Lock ของ M_Lock
พร้อมช่องตาแมว และมือจับประตูแบบก้านโยก

พื้นห้องยกสูงขึ้นมาจากพื้นโถงทางเดินเล็กน้อย พื้นภายในห้องเป็นลามิเนตความหนา 8 มม.

เข้ามาด้านในห้อง ทางด้านข้างของประตูจะมี Digital Door Phone สำหรับติดต่อแบบเห็นหน้ากับแขก
ที่มาขอพบด้านล่าง และสามารถปลดล็อคประตูด้านล่างได้จากในห้องนี้เลยค่ะ สะดวกมากๆ เลย

ทางขวาของห้อง
จะเป็นส่วนของ Living Area และโต๊ะกลาง 1 ชุด
ส่วนความสูงจากพื้นถึงฝ้าของห้องนี้อยู่ที่ 2.5 เมตร และผนังห้องเป็นสีขาวฉาบเรียบ 
ไฟติดเพดานเป็นโคมดาวน์ไลท์แบบติดลอยแบบนี้

ติดกันกับชุดโซฟาจะเป็นมุมทานอาหาร สำหรับวางโต๊ะทานอาหารแบบ 2 ที่นั่ง ด้านหลังติดตั้งปลั๊กไฟมาให้ด้วย 1 จุด

ตรงข้ามกับโซฟาเป็นตำแหน่งของชั้นวางทีวี โดยระยะดูทีวีกว้างประมาณ 250 ซม. ซึ่งเป็นระยะที่ค่อนข้างกว้างพอสมควร

ย้ายเข้ามาดูในส่วนของห้องนอน เปิดประตูเข้ามาจะเจอกับชั้นวางทีวีซึ่งตั้งอยู่บริเวณปลายเตียง
โดยในห้องนอนนี้จะได้แอร์ Samsung ขนาด 12,000 BTU ด้วย 1 ตัว

ส่วนตู้เสื้อผ้าและโต๊ะเครื่องแป้งจะอยู่บริเวณด้านข้างเตียง

บริเวณโต๊ะเครื่องแป้งไม่มีกระจกเงามาให้นะคะ แต่ทางโครงการตีทะลุทำเป็นหน้าต่างบานเลื่อนแบบ 2 ตอนเปิดเชื่อมต่อกับส่วนของ Living Area ค่ะ ทำให้ห้องนอนดูโปร่งมากขึ้น โดยขนาดหน้าต่างประมาณ 140x40 ซม.

ห้องนี้เหมาะสำหรับวางเตียงขนาด 5 ฟุตค่ะ กำลังพอดีๆ

พื้นที่ข้างเตียงเหลือพื้นที่เพียงนิดหน่อยเท่านั้น

ส่วนพื้นที่ปลายเตียงเหลือเยอะพอสมควรเดินได้แบบสบายๆ
ส่วนหน้าต่างห้องนี้ได้เป็นหน้าต่างบานใหญ่ความสูงเกือบถึงเพดาน

ย้ายมาดูในส่วนของห้องครัวกันค่ะ ซึ่งอยู่ติดกับส่วนของห้องนอน

ห้องครัวแยกเป็นสัดส่วนด้วยประตูกระจกบานเลื่อนกรอบอลูมิเนียมสีดำแบบ 1 ตอน ที่กั้นระหว่างห้องครัวกับห้องนั่งเล่น

ทางโครงการให้ชุดครัวแบบ Built-in หน้าบานของชุดครัวเป็นไม้อัด ผนังบริเวณเคาน์เตอร์ครัวติดกระเบื้อง
โมเสคสีสันสดใสสำหรับกันเปื้อนมาให้ พื้นครัวปูด้วยกระเบื้องแกรนิตโต้ขนาด 60x60
ซึ่งครัวนี้จะอยู่ติดกับส่วนของระเบียงช่วยระบายกลิ่นได้ดีเวลาที่ทำอาหาร

ด้านบนของเคาน์เตอร์ครัวเป็นช่องเก็บของ บานพับแบบ Soft Close พร้อมช่องสำหรับใส่ไมโครเวฟ ติดตั้งปลั๊กไฟมาให้ด้วย
หน้า Top เคาน์เตอร์ครัวเป็นแกรนิต แข็งเแรงและทนความร้อนได้ดี
ได้อ่างล้างจานสแตนเลสแบบหลุมเดียว และเตาไฟฟ้า 2 หัว ของ Teka
ใต้อ่างล้างจานก็เป็นตู้เก็บของเช่นกัน หน้าตาประมาณนี้ 
ตำแหน่งเครื่องซักผ้าจะอยู่ใต้เคาน์เตอร์ครัว เดินท่อ และติดตั้งปลั๊กไฟมาให้เรียบร้อย
สำหรับเครื่องซักผ้าฝาหน้าแบบ 7 กก. เวลาทำครัวอาจจะเกะกะบ้างนิดหน่อย
ธรณีตรงประตูระเบียงสูง 15 ซม. กันน้ำฝนและน้ำด้านนอกระเบียงได้ดี แต่เวลาเดินเข้าออกระเบียงระวังสะดุดด้วยนะคะ 
ขนาดของระเบียงประมาณ 1x1.6 เมตร ราวระเบียงกันตกสูง 1 เมตร
ทางโครงการติดตั้งท่อน้ำดีน้ำทิ้งมาให้ตรงจุดนี้ด้วยเช่นกัน

ที่ระเบียงได้ไฟโคมซาลาเปา 1 ดวง และด้านข้างเป็นคอมเพรสเซอร์แอร์
ควรหากริลมาติดเพื่อเป่าลมร้อนออกไปด้านนอกอาคารนะคะ

เดี๋ยวย้ายไปดูในห้องน้ำกันค่ะ

พื้นห้องน้ำลดระดับกันน้ำไหลออกไปด้านนอก

ภายในห้องน้ำได้ตามแบบมาตรฐาน อ่างล้างหน้า โถสุขภัณฑ์ และ Shower box
ส่วน Counter เป็นแกรนิตสีดำ มีพื้นที่สำหรับวางอุปกรณ์อาบน้ำได้พอสมควร

โถสุขภัณฑ์เป็นของนาม (Nahm) มีสายชำระอยู่ทางด้านขวา และที่ใส่กระดาษชำระอยู่ทางซ้าย

อ่างล้างหน้าก็เป็นของนาม (Nahm) เช่นกัน
ฉากกั้นห้องน้ำเป็นกระจกนิรภัยเทมเปอร์กลาส เวลาเกิดอุบัติเหตุลื่นล้ม
หรืออะไรไปกระแทกจะแตกออกมาเป็นเม็ดข้าวโพดทันที ค่อนข้างปลอดภัย 
ที่วางสบู่ของ Nahm,
ก๊อกน้ำของ American Standard และฝักบัวของ Cotto 
ไฟในห้องน้ำเป็นแบบดาวน์ไลท์ พร้อมเครื่องดูดอากาศ ช่วยดูดกลิ่นอับและอากาศไม่พึงประสงค์ในห้องน้ำ
2) ภาพห้องตัวอย่างแบบ 2 ห้องนอน ขนาด 49.00 ตร.ม.

ประตูระบบ Digital Door Lock เช่นกัน

ห้องนี้เปิดเข้ามาส่วนแรกที่จะเจอคือส่วนของห้องครัว ซึ่่งได้เคาน์เตอร์ครัว Built-in เหมือนกันกับห้องที่แล้ว
กั้นส่วนแยกกับส่วนทานอาหารและห้องอื่นๆ ด้วยกระจกบานเลื่อน

แต่การที่เคาน์เตอร์ครัวอยู่ชิดติดประตูแบบนี้ต้องระวังหน่อยนะคะ เวลาที่เผลอเปิดลิ้นชักเอาไว้
แล้วบังเอิญมีใครเปิดประตูห้องเข้ามาอาจจจะชนกันได้

โต๊ะทานอาหารจะอยู่ติดกับห้องครัว สามารถวางโต๊ะได้แบบ 4 ที่นั่ง

ห้องจริงที่ส่งมอบให้ลูกค้าตรงประตูระเบียงจะเป็นฝ้าหลุมสำหรับซ่อนรางผ้าม่านตามแบบภาพทางขวามือนะคะ

ถัดไปจะเป็นส่วนของระเบียง ด้านขวาของระเบียงด้านบนเป็นคอมเพรสเซอร์แอร์ ด้านล่างเซาะร่องเพื่อเป็นทางระบายน้ำ
ส่วนด้านซ้ายติดตั้งก๊อกน้ำสำหรับซักล้างมาให้ด้วย

ส่วน Living Area จะตั้งอยู่บริเวณตรงกลางของห้องนี้เลยค่ะ

Living Area นี้จะได้หน้าต่างบานใหญ่เปิดรับแสงธรรมชาติแบบเต็มๆ ทำให้ห้องดูสว่าง
ส่วนฝ้าตรงหน้าต่างห้องจริงจะเป็นฝ้าหลุมแบบเดียวกันกับประตูระเบียง ไม่ได้ Drop Step
ฝ้าเพดานมาให้ตามแบบในรูปนะคะ ส่วนระยะดูทีวีอยู่ที่ประมาณ 1.5 เมตร

เดี๋ยวเราเข้าไปดูห้องอื่นๆ กันบ้างค่ะ

ห้องน้ำห้องนี้เป็นแบบ Double Access มีประตูเปิดเข้าออกได้ 2 ทาง ทั้งจากทางห้องนั่งเล่น และจากทางห้องนอน
พื้นห้องน้ำ Drop ลงประมาณ 5 ซม. ป้องกันน้ำไหลออกด้านนอก

ปิดประตูแล้วจะมีพื้นที่ใช้งานเหลือประมาณนี้ค่ะ

สุขภัณฑ์ในห้องน้ำได้เหมือนกันกับแบบ 1 ห้องนอน ต่างกันแค่ตำแหน่งการจัดวาง

ห้องนอนใหญ่มีเนื้อที่ค่อนข้างกว้าง สามารถวางเตียงแบบ 6 ฟุต พร้อมวางโต๊ะหัวเตียงอีก 2 ข้างได้แบบสบายๆ
แถมยังมีพื้นที่เหลือให้วางชั้นวางทีวีได้แบบเหลือๆ เลยค่ะ

กล่องซ่อนรางผ้าม่านนี้ไม่มีให้นะคะ ทางโครงการตกแต่งมาให้ดูเป็นไอเดีย ถ้าใครอยากได้คงต้องติดเอาเอง

อีกมุมหนึ่งของห้องนอนค่ะ ห้องนี้จะได้แอร์ Samsung ขนาด 12,000 BTU 1 ตัวค่ะ
ส่วนด้านข้างของเตียงเป็นตำแหน่งของตู้เสื้อผ้า

ย้ายมาดูห้องนอนอีกห้องกันค่ะ

ในส่วนของห้องนอนที่ 2 บางคนอาจทำเป็นห้องนอน หรือจะปรับเปลี่ยนให้กลายเป็นห้องแต่งตัว หรือว่าทำเป็นห้องทำงานตามแบบห้องตัวอย่างนี้ก็ได้ค่ะ ในห้องนี้จะได้แอร์ Samsung ขนาด 12,000 BTU อีก 1 ตัว

จะสังเกตว่าด้านหลังโซฟาตรงระดับของผนังจะไม่เท่ากันมีส่วนของเสายื่นมา หากจะทำห้องนี้เป็นห้องนอน
แนะนำให้หาวัสดุมาปิดส่วนที่ไม่เท่ากันเพื่อไม่ให้มีช่องว่างบริเวณหัวเตียง
ส่วนด้านซ้ายของห้องจะวางเป็นโต๊ะทำงาน หรือชั้นวางหนังสือก็ได้
ราคาและค่าใช้จ่ายที่เกี่ยวข้องโดยประมาณ ( 2 ก.ค. 58)
ตัวอย่างราคาห้อง - ราคา 1 ห้องนอนขนาด 30 ตร.ม. (Fully Fitted) ราคาเริ่มต้น 2.1 ล้านบาท ฟรีค่าส่วนกลาง 2 ปี + ฟรีโอน
- ราคา 1 ห้องนอนขนาด 30 ตร.ม. (Fully Furnished) ราคาเริ่มต้น 2.3 ล้าน ฟรีเฟอร์นิเจอร์ ของ SB (Voucher ของ SB Furniture มูลค่า 30,000 บาท) และเครื่องใช้ไฟฟ้า ทีวี ตู้เย็น (Voucher มูลค่า 20,000 บาท)
- ห้อง 2 ห้องนอน ขนาด 49 ตร.ม. (Fully Fitted) ราคาเริ่มต้น 3.6 ล้านบาท ฟรีค่าส่วนกลาง 2 ปี + ฟรีโอน
- ห้อง 2 ห้องนอน ขนาด 49 ตร.ม. (Fully Furnish) ราคาเริ่มต้น 3.8 ล้านบาท ฟรีเฟอร์นิเจอร์ ของ SB (Voucher ของ SB Furniture มูลค่า 50,000 บาท) และเครื่องใช้ไฟฟ้า ทีวี ตู้เย็น (Voucher มูลค่า 20,000 บาท)
ค่าใช้จ่ายอื่นๆ ของโครงการ - ค่าส่วนกลางอัตรา 45 บาท/ตร.ม./เดือน (โดย 3 ปีแรก 30 บาท/ตร.ม.) ชำระล่วงหน้า 1 ปี
- เงินกองทุนส่วนกลาง 500 บาท/ตร.ม. (ชำระครั้งเดียว ณ วันโอนกรรมสิทธิ์)
- ค่าธรรมเนียมการโอนกรรมสิทธิ์ ผู้ซื้อและผู้ขายแบ่งชำระกันคนละครึ่ง
- การเดินทางเข้าออกโครงการ - การเดินทางเข้าออกสะดวกทั้งรถไฟฟ้า BTS และรถยนต์ หากเลือกใช้รถไฟฟ้า BTS สำหรับโครงการนี้ให้ลงที่สถานีบางจากทางออกที่ 4 จากนั้นเดินไปเรื่อยๆ จนถึงปากซอยสุขุมวิท 62/1 ใช้เวลาประมาณ 3-4 นาที เท่านั้น แต่ถ้าดึกมากไม่แนะนำให้เดินเข้าไปภายในซอยคนเดียวนะคะ เพราะระหว่างทางจะเป็นบ้านคนซึ่งแสงไฟก็ยังน้อยอยู่ควรเลือกใช้บริการพี่วินมอเตอร์ไซค์ตรงปากซอยจะดีกว่า จ่าย 10 บาท ถึงโครงการแบบปลอดภัยกว่าค่ะ แต่เมื่อโครงการเข้าสู่กระบวนการของนิติฯ จะมี Shuttle Bus รอรับส่งให้บริการตรงจุด BTS สถานีบางจากเลยเพิ่มความสะดวกได้มากทีเดียว แต่ถ้าจะเดินทางด้วยรถยนต์สามารถเลือกใช้ทางด่วนแบบรวดเร็วสุดๆ โดยให้เลี้ยวขวาออกจากโครงการขับตรงไปจนสุดซอยแล้วเลี้ยวขวาอีกครั้งเพื่อวิ่งเข้าถนน 2 เลนเป็นเส้นเลียบทางด่วนสุขุมวิท 62 ตรงไปเรื่อยๆ จะมีป้ายบอกทางให้วนเพื่อขึ้นทางด่วนค่ะ เส้นนี้จะสะดวกมาก เพราะจะเลี่ยงช่วงรถติดบนถนนสุขุมวิทได้ดีมากค่ะ หรือถ้าจะไปทางด้านบางนาให้ขับตรงออกมาที่ปากซอยสุขุมวิท 62/1 เมื่อเห็นซอยสุขุมวิท 60 ให้เตรียมกลับรถเพื่อมุ่งหน้าสู่แยกบางนาค่ะ
- ทำเลรอบโครงการ - ถ้าจะพูดถึงสุขุมวิทช่วงปลายระยะหลังมีคอนโดมิเนียมเปิดตัวใหม่หลายโครงการ ส่งผลให้ตลาดคอนโดฯ คึกคักมากไม่แพ้สุขุมวิทช่วงกลางเลยค่ะ อย่างที่รู้กันว่าคอนโดมิเนียมมักวิ่งตามเส้นทางรถไฟฟ้าเพราะสามารถเพิ่มมูลค่าด้วยทำเลได้เป็นอย่างดีไม่ว่าจะซื้อไว้ลงทุน หรืออยู่เองก็แล้วแต่ และโครงการนี้ก็เช่นกัน ถึงแม้จะต้องเข้าซอยมา 200-300 เมตร แต่ก็ยังถือว่าไม่ทิ้งแนวรถไฟฟ้ามากนัก และด้วยรัศมีรอบๆ โครงการส่วนใหญ่จะเป็นบ้านคนจึงให้ความรู้สึกเป็นส่วนตัว สงบ และไม่พลุกพล่าน แต่ก็จะมีอาคารสูงอยู่ภายในซอยเดียวกันรวมตัวโครงการเองแค่ 3 อาคารเท่านั้น ได้แก่ โครงการชาโตว์ อินทาวน์ สุขุมวิท 62/1 เฟส 1 (อยู่ต้นซอย), ดิ ยูนิค สุขุมวิท 62/1 (อยู่เกือบๆ จะท้ายซอย) และตัวชาโตว์ อินทาวน์ สุขุมวิท 62/1 เฟส 2 เอง (อยู่ช่วงกลางซอย) ซึ่งมีระยะห่างกันโครงการละ 100-200 เมตร น่าจะไม่มีปัญหาเรื่องการเทควิวแน่นอนเพราะต่างก็เป็นคอนโด Low Rise ที่มีความสูง 8 ชั้น ทุกโครงการ ตรงนี้ต้องไปวัดกันที่ Facility และ Lay Out ภายในห้องกันค่ะ
- อาคารและตัวโครงการโดยรวม - เป็นคอนโด Low-rise สูง 8 ชั้น จำนวน 1 อาคาร ค่อนข้างเป็นส่วนตัวเพราะมียูนิตพักอาศัยเพียง 79 ยูนิตเท่านั้น สามารถจอดรถได้ 32 คัน (แบบไม่รวมจอดซ้อนคัน) หรือประมาณ 40% แต่พื้นที่จอดรถค่อนข้างเล็กจอดแบบซ้อนคันคงลำบากหน่อย ส่วน Facility ก็จัดให้มาพอสมควรทั้ง ระบบ Wireless Internet, สวนหย่อมในร่ม, รถ shuttle bus แบบตุ๊กๆ, สระว่ายน้ำ และที่เด่นๆ คือ VDO Door Phone แต่ห้องฟิตเนสขนาดกะทัดรัดไปหน่อย และสระว่ายน้ำอยู่ชั้น 1 ดูไม่ค่อยเป็นส่วนตัวเท่าไหร่นัก ที่นี่มีลิฟต์โดยสารเพียง 1 ตัว ไม่มีลิฟต์บริการ อัตราส่วนการใช้ลิฟท์อยู่ที่ 79 ยูนิตต่อลิฟต์ 1 ตัว ถือว่าเป็นตัวเลขที่โอเค แต่ถ้าลิฟต์เสีย หรือมีใครใช้ขนของคงต้องรอกันนานหน่อย หรือไม่ก็คงต้องเดินกันเหนื่อยหน่อย
- รูปแบบห้องและวัสดุ - รูปแบบห้องส่วนใหญ่หันไปทางทิศตะวันออก-ตะวันตก ซึ่งทั้งหมดเป็นห้องแบบ 1 ห้องนอนขนาด 30 ตร.ม. โดยการจัดวางแบบนี้จะทำให้ห้องรับแดดเช้า และแดดบ่ายแบบเต็มๆ แต่ทางโครงการก็แก้ไขด้วยการติดกระจกสีเขียวตัดแสงมาให้ทุกห้องเพื่อช่วยให้ห้องไม่ร้อนจนเกินไป ส่วนห้องใหญ่แบบ 2 ห้องนอนจะอยู่ทางหัวมุมฝั่งทิศเหนือ และทิศใต้ จัดวางฟังก์ชันให้ห้องครัวอยู่ติดประตูทางเข้าห้องซึ่งไม่ติดระเบียง ทำให้เวลาที่ทำอาหารหนักๆ แบบจริงจัง อาจระบายกลิ่นได้ไม่หมด และส่งกลิ่นลอยไปในห้องอื่นได้ วัสดุที่ได้ส่วนใหญ่เป็นเกรดมาตรฐาน แต่หลายอย่างก็เป็นเกรดดี เช่น ประตูแบบ Digital Door Lock, VDO Door Phone, ท็อปแพนทรีครัวเป็นแกรนิตแผ่นใหญ่, พื้นเป็นกระเบื้องครัวและกระเบื้องห้องน้ำขนาด 60x60, กระจกเงาบานใหญ่ในห้องน้ำ, ฉากกั้นอาบน้ำกระจกนิรภัย และเครื่องดูดอากาศในห้องน้ำ
- ราคา - ราคาเปรียบเทียบกับย่านคู่แข่ง ทั้งทางด้านฟังก์ชันห้อง และโลเคชัน ถือว่าเป็นราคาที่ไม่สูงมาก เหมาะสำหรับทั้งที่จะซื้อไว้อยู่เอง หรือจะซื้อไว้ลงทุน เนื่องจากในอนาคตตรงสี่แยกบางนาน่าจะเติบโตไปอีกพอสมควร เพราะจะมีศูนย์การค้า แบงค็อก มอลล์ ที่จะสร้างเสร็จประมาณปี 60 ที่จะถึงนี้ ซึ่งคาดว่าน่าจะทำให้ที่ดินในย่านนี้ราคาปรับสูงขึ้นมาได้อีก และด้วยทำเลที่ใกล้ BTS และใกล้ทางด่วนแบบนี้ โดยทั่วไปราคาเฉลี่ยต่อตารางเมตรจะอยู่ที่ประมาณ 80,000 บาท ขึ้นไป หรือโครงการดิ ยูนิค ที่กำลังก่อสร้างอยู่ใกล้ๆ โครงการนี้ราคาต่อตารางเมตรก็อยู่ที่ประมาณ 100,000 บาทขึ้นไปเช่นกัน ดังนั้นราคาต่อ ตร.ม. ของโครงการนี้ค่อนข้างคุ้มค่ากว่ามาก โดยราคาเฉลี่ยของโครงการอยู่ที่ 75,000 บาท เท่านั้นเอง
สถานะปัจจุบันของโครงการ ( 2 ก.ค. 58)
ปัจจุบันโครงการ ชาโตว์ อินทาวน์ สุขุมวิท 62/1 เฟส 2 สร้างแล้วเสร็จ 100% พร้อมเข้าอยู่ได้แล้ว โดยเริ่มมีลูกบ้านทยอยเข้ามาอยู่บ้างแล้วประมาณ 40% โดยมียอดขายไปแล้วอยู่ที่ประมาณ 80% ซึ่งแบบ 1 ห้องนอนจะว่างอยู่เพียงแค่ประมาณ 10 ห้องเท่านั้นเอง ที่เหลือจะเป็นส่วนของ 2 ห้องนอน โดยทั้งโครงการเหลือขายจริงอยู่ไม่ถึง 30 ห้อง
ติดต่อโครงการ โทร. 02-862-2297 หรืออ่านรายละเอียดโครงการเพิ่มเติมได้ที่
www.chateauintown.com