ประเมินวงเงินรู้ผลใน 3 นาที
กับ กรุงศรี ออโต้ พร้อมสตาร์ท

เริ่มประเมินวงเงินพร้อมสตาร์ท
ผ่านมือถือ สแกนเลย

ดูวงเงินพร้อมสตาร์ทที่ได้รับ

  • คอนโด
  • คอนโด
  • ค้นหาแบบละเอียด
  • รีวิว-เยี่ยมชม Plum Condo Central Station (พลัมคอนโด เซ็นทรัล สเตชั่น)

    16 ก.ค. 58 17,802
    พลัมคอนโด เซ็นทรัล สเตชั่น (Plum Condo Central Station)
    สวัสดีค่ะวันนี้ Checkraka.com ขอพาทุกท่านไปรีวิว-เยี่ยมชมคอนโดมิเนียมใหม่ บนทำเลใจกลางบางใหญ่ นั่นก็คือโครงการ พลัมคอนโด เซ็นทรัล สเตชั่น (Plum Condo Central Station) มาพร้อมกับส่วนกลางวิว 360 องศา ถึง 4 ส่วน คือ The Sky, The Garden, The Living และ The Club อีกทั้งรายล้อมไปด้วยสาธารณูปโภคครบครัน อาทิ ห้างสรรพสินค้า ตลาด โรงพยาบาล หลายท่านคงอยากจะทราบแล้วว่าหน้าตาและรายละเอียดจะเป็นอย่างไรบ้าง ไปชมกันเลยค่ะ
    ข้อมูลโครงการ
    • เจ้าของและผู้พัฒนาโครงการ : บริษัท พฤกษา เรียลเอสเตท จำกัด (มหาชน)
    • ที่ตั้งโครงการ : ถนนรัตนาธิเบศร์ ตำบลเสาธงหิน  อำเภอบางใหญ่ จังหวัดนนทบุรี
    • อาคารชุดพักอาศัย : สูง 38 ชั้น จำนวน 1 อาคาร ประกอบด้วย ห้องชุดพักอาศัย จำนวน 1,208 ยูนิต
    • ขนาดที่ดินทั้งโครงการ : 4-0-96 ไร่
    • ลิฟต์โดยสาร : 4 ตัว / ลิฟต์บริการ : 1 ตัว
    • ห้องชุดพักอาศัย : 1 ห้องนอน (23.5, 24, 26.25 ตร.ม.) และ 2 ห้องชุดรวมกัน (48 และ50 ตร.ม.)
    • ที่จอดรถโดยประมาณ : 30% (รวมจอดซ้อนคัน)
    • ราคาเริ่มต้น 1.39 ล้านบาท สําหรับห้องแบบ ขนาด 23.5 ตร.ม. (ข้อมูล ณ 23 มิ.ย. 58)
    • คาดว่าจะแล้วเสร็จทั้งโครงการประมาณเดือนมีนาคม 2561
    • วันที่เข้าเยี่ยมชม-รีวิวคอนโด ข้อมูล ณ 23 มิ.ย. 58
    เจ้าของและผู้พัฒนาโครงการ
    บริษัท พฤกษา เรียลเอสเตท จำกัด (มหาชน) เป็นบริษัทมหาชน และจดทะเบียนอยู่ในตลาดหลักทรัพย์แห่งประเทศไทยตั้งแต่ปี 2548 บริษัทฯ ก่อตั้งเริ่มแรกขึ้นเมื่อวันที่ 20 เมษายน 2536 มีทุนจดทะเบียนปัจจุบันอยู่ที่ 2,285,298,800 ล้านบาท ชำระแล้ว 2,230,763,300 ล้านบาท ได้รับการจัดอันดับเครดิตองค์กรล่าสุด (16 เมษายน 2558) โดย TRIS Rating อยู่ที่ "A" บริษัทฯ ประกอบธุรกิจพัฒนาอสังหาริมทรัพย์ทั้งแนวราบ (ทาวน์เฮ้าส์และบ้านเดี่ยว) และแนวสูง (คอนโดมิเนียม) ทั้งในประเทศไทย และต่างประเทศ และเป็นบริษัทอสังหาริมทรัพย์ที่มีโรงงานสร้างบ้านแบบ Precast (พรีคาสท์ - สร้างบ้านโดยใช้เทคโนโลยีชิ้นส่วนคอนกรีตเสริมเหล็กสำเร็จรูป) เป็นของตัวเองแบบครบวงจร โดยปัจจุบันบริษัทฯ มีโครงการแบรนด์ "พลัม (Plum)" มีทั้งหมด 11 โครงการคือ พลัมคอนโด เซ็นทรัล สเตชั่น, พลัมคอนโด แหลมฉบัง, พลัมคอนโด สามัคคี, พลัมคอนโด พาร์ค รังสิต, พลัมคอนโด เอ็กซ์ตร้า พระราม 2, พลัม พรีเมี่ยม พหลโยธิน, พลัมคอนโด พหลโยธิน 89, พลัมคอนโด ลาดพร้าว 101, พลัมคอนโด บางใหญ่ สเตชั่น, พลัมคอนโด นวมินทร์ และพลัมคอนโด บางแค
    ทำเลที่ตั้ง
    ตัวโครงการตั้งบนถนนรัตนาธิเบศร์ ตำบลเสาธงหิน อำเภอบางใหญ่ จังหวัดนนทบุรี 11110 สะดวกด้วยการคมนาคมทางรถไฟฟ้าสายสีม่วงที่สร้างเสร็จสมบูรณ์พร้อมเปิดให้บริการปลายปี 2559 โดยสถานีที่ใกล้ที่สุดคือสถานีสามแยกบางใหญ่ จากข้อมูลของทางพฤกษานั้นสถานีสามแยกบางใหญ่อยู่ห่างจากโครงการ 400 เมตร และจุดเด่นของโครงการนี้คืออยู่ติดกับห้างสรรพสินค้าเซ็นทรัล เวสต์เกต และแวดล้อมด้วยโรงพยาบาล ตลาด แหล่งชอปปิ้ง

    ภาพแผนที่โครงการ พลัมคอนโด เซ็นทรัล สเตชั่น

    ภาพแผนที่โครงการแจกแจงให้เห็นระยะใกล้-ไกลของโครงการกับสถานที่ หรือ Landmark รอบๆ โครงการที่น่าสนใจ
    ตำแหน่ง GPS โดยประมาณของโครงการ = 13.874472, 100.413358
    (ระยะทางที่วัดเป็นระยะทางโดยประมาณจากการใช้รถยนต์)

    เซ็นทรัล เวสต์เกต อยู่ติดกับตัวโครงการ

    เมกา บางนา 2 ห่างจากโครงการประมาณ 1.2 กิโลเมตร

    โฮมโปร ห่างจากโครงการประมาณ 1.6 กิโลเมตร

    บิ๊กซี ห่างจากโครงการประมาณ 1.6 กิโลเมตร
     
    โรงพยาบาลเกษมราษฎร์ ห่างจากโครงการประมาณ 1.5 กิโลเมตร

    อินเด็กซ์ ลิฟวิ่ง มอลล์ ห่างจากโครงการประมาณ 1.9 กิโลเมตร

    บีบี มาร์เก็ต ห่างจากโครงการประมาณ 2 กิโลเมตร

    เดอะสแควร์ ห่างจากโครงการประมาณ 1.5 กิโลเมตร

    บิ๊กซี เอ็กซ์ตร้า ห่างจากโครงการประมาณ 1.6 กิโลเมตร
    การเดินทางเข้า-ออกโครงการ
    1. เดินทางด้วยรถยนต์ส่วนตัว
    การเดินทางด้วยรถยนต์สามารถมาได้หลายเส้นทาง โดยมีเส้นทางหลักดังต่อไปนี้ค่ะ
    เส้นทางเข้าที่ 1 - ขาเข้าโครงการจากทางพิเศษศรีรัช
    มาดูภาพการเดินทางจากทางพิเศษศรีรัชกันเลยค่ะ
    เส้นทางเข้าที่ 2 - ขาเข้าโครงการจากทางถนนราชพฤกษ์
    เส้นทางออกที่ 1 - ขาออกโครงการจากทางถนนรัตนาธิเบศร์และขึ้นทางพิเศษศรีรัช
    เส้นทางออกที่ 2 - ขาออกโครงการทางถนนราชพฤกษ์
    2. การเดินทางด้วยรถไฟฟ้า
    โครงการรถไฟฟ้าสายสีม่วง ช่วงบางใหญ่-บางซื่อ มีระยะทางประมาณ 23 กิโลเมตร โดยจะก่อสร้างเป็นรถไฟฟ้าแบบยกระดับ (ลอยฟ้า) ตลอดทั้งสาย มีสถานีจำนวน 16 สถานี ได้แก่ สถานีคลองบางไผ่, สถานีตลาดบางใหญ่, สถานีสามแยกบางใหญ่, สถานีบางพลู, สถานีบางรักใหญ่, สถานีบางรักน้อยท่าอิฐ, สถานีไทรม้า, สถานีสะพานพระนั่งเกล้า, สถานีแยกนนทบุรี 1, สถานีศรีพรสวรรค์, สถานีศูนย์ราชการนนทบุรี, สถานีกระทรวงสาธารณสุข, สถานีแยกติวานนท์, สถานีวงศ์สว่าง, สถานีบางซ่อน และสถานีเตาปูน โดยมีสถานีเตาปูนเป็นสถานีเปลี่ยนเส้นทาง (Interchange Station) ระหว่างสายสีม่วงและสายสีน้ำเงิน โดยสถานีที่ใกล้กับโครงการมากที่สุดคือสถานีสามแยกบางใหญ่ อยู่ห่างจากโครงการ 400 เมตร มีกำหนดเปิดให้บริการปลายปี 2559

    เส้นทางเดินจากโครงการไปสถานีสามแยกบางใหญ่

    หน้าตาสถานีสามแยกบางใหญ่ พร้อมใช้งานแล้ว
    3. การเดินทางด้วยขนส่งสาธารณะอื่นๆ
    สามารถขึ้นรถโดยสารประจำทางสาย 127 เชิงสะพานอรุณอมรินทร์-ร.ร.วรราชชาธินัดดามาตุฯ, สาย 134 หมู่บ้านบางบัวทอง-หมอชิต 2 และสาย 177 วงกลมบางบัวทอง-วงเวียนใหญ่-อนุเสาวรีย์ชัยสมรภูมิ ตัวโครงการมีป้ายรถเมล์ห่างจากโครงการประมาณ 450 เมตรค่ะ
    สภาพแวดล้อมใกล้เคียง

    บรรยากาศสำนักงานขายค่ะ ซึ่งที่ดินของโครงการจะอยู่ด้านหลังสำนักงานขายนี้
    บรรยากาศบริเวณด้านขวามือโครงการ

    เดี๋ยวเราเลี้ยวขวาไปดูสภาพแวดล้อมกันค่ะ

    ออกมาจะเจอถนนรัตนาธิเบศร์ ช่วงนี้ฝุ่นจะเยอะหน่อยเพราะอยู่ในระหว่างการก่อสร้างเซ็นทรัล เวสต์เกตค่ะ

    โครงการรั้วอยู่ติดกันกับเซ็นทรัล เวสต์เกต

    เดินไปเรื่อยๆ ค่ะ ช่วงนี้จะยังไม่มีอะไร ถ้าหากว่าห้างเปิดคงจะคึกครื้นขึ้น

    ตอนนี้เดินเลี้ยวเข้ามาถนนกาญจนาภิเษกแล้วค่ะ

    ฝั่งตรงข้ามเซ็นทรัลจะเป็นบีบีมาร์เก็ต อินเด็กซ์ ลิฟวิ่งมอลล์ ถือเป็นแหล่งรวมสินค้าและการบริการย่านนี้เลยก็ว่าได้

    ขวามือในภาพจะเป็นเซ็นทรัล เวสต์เกต จะเห็นว่าข้างหน้ามีสะพานลอยให้ข้ามไปอีกฝั่งได้ด้วย

    ปัจจุบันหน้าห้างจะมีของกินขายให้กับคนที่ผ่านไป-มาแถวนี้ และขายให้กับคนงานก่อสร้างค่ะ

    ร้านค้าเตรียมขายอย่างเต็มตัวเมื่อห้างเปิด 

    พื้นที่ตรงนี้น่าจะเป็นเหมือนตลาดย่อมๆ ค่ะ มีการเปิดให้จองพื้นที่ขายของกันด้วย

    เดินไปอีกนิดก็จะเจอโฮมโปร ถัดไปก็จะเป็นบิ๊กซี

    ถัดจากบิ๊กซีไปก็จะเป็นโรงพยาบาลเกษมราษฎร์ค่ะ 
    บรรยากาศทางซ้ายมือของโครงการ

    มาเดินฝั่งซ้ายของโครงการกันบ้างค่ะ

    มีร้านอาหารรถเข็นขายบริเวณนี้เยอะพอสมควร

    ซอยที่ติดกับทางเข้าโครงการคือซอยหมู่บ้านรัตนาธิเบศร์ หน้าปากซอยมีเซเว่น อีเลฟเว่น
    และธนาคารกสิกรไทยด้วยค่ะ เราเข้าไปดูในซอยนี้กันค่ะ ว่ามีอะไรบ้าง

    เซเว่น อีเลฟเว่นหน้าปากทางหมู่บ้านรัตนาธิเบศร์

    คูหาแรกฝั่งธนาคารกสิกรไทยมีร้านก๋วยเตี๋ยว

    ฝั่งตรงข้ามเป็นร้านปลาเผาค่ะ

    ถัดมาเป็นร้านไฟ LED

    ถัดมาเป็นร้านขายอุปกรณ์ก่อสร้างค่ะ

    ในซอยนี้มีร้านถ่ายเอกสาร ส่งพัสดุทางไปรษณีย์ จ่ายบิลแบบครบวงจรด้วยค่ะ

    ตรงข้ามกันจะเป็นร้านขายยา

    มีร้านนวดด้วยค่ะ เผื่อใครปวดเมื่อยก็เดินมาตรงนี้ได้

    ติดกันกับร้านนวดก็เป็นร้านอาหารไทย-อีสานค่ะ

    ออกมาจากซอยแล้วเราเดินไปดูข้างหน้ากันต่อ

    ซ้ายมือมีธนาคารไทยพาณิชย์

    ซอยรัตนาธิเบศร์ 3 ข้างในเป็นที่ตั้งของโรงแรม 13 เหรียญ บางใหญ่ค่ะ

    ถัดมาก็จะเป็นร้านติดเหล็กดัด

    เดินไปอีกหน่อยก็มีร้านแก๊ส LPG สำหรับรถยนต์ และมีร้านกาแฟ "บ้านไร่กาแฟ" ด้วยค่ะ

    ติดกันก็จะเป็นธนาคารกรุงศรีอยุธยา ฝั่งนี้มี 3 ธนาคาร เลยค่ะ สะดวกมากๆ หากจะทำธุรกรรมทางการเงิน

    ถัดมาจะเป็นโซนอาคารพาณิชย์ ตรงนี่จะเป็นร้านขายจักรยาน

    อาคารพาณิชย์ชุดใหญ่นี้มีร้านต่างๆ เยอะแยะเลยค่ะ 

    เดินมาเรื่อยๆ ก็จะเห็นหมู่บ้านกฤษดานคร โครงการ 10

    ไม่กี่ก้าวก็จะถึงสถานีสามแยกบางใหญ่ค่ะ ระยะทางจากตรงนี้ไปถึงปากทางเข้าโครงการรวมแล้วประมาณ 400 เมตรค่ะ
    รูปแบบตึก และตัวโครงการโดยรวม

    โมเดลโครงการหันหน้าไปทางทิศตะวันตกเจอ Central West Gate
    ส่วนที่ยื่นออกมาจากอาคารเป็นห้องที่หันหน้าไปทางทิศใต้ และทิศเหนือ มุมมองจากทิศนี้
    จึงเป็นในลักษณะของห้องมุมที่เป็นหน้าต่างของห้องแบบ Combine ขนาด 48 ตร.ม. 

    โมเดลโครงการหันหน้าไปทางทิศใต้ติดถนนรัตนาธิเบศร์

    โมเดลโครงการหันหน้าไปทางทิศตะวันออกเจอรถไฟฟ้าสถานีสามแยกบางใหญ่
    ประกอบด้วยห้องพักอาศัยมีขนาด 23.5 ตร.ม., 24 ตร.ม. และ 26.25 ตร.ม.

    โมเดลโครงการหันหน้าไปทางทิศเหนือเจอหมู่บ้านรัตนาธิเบศร์

    โมเดลโครงการจากมุมสูงเป็นส่วนของ Facility ของโครงการที่รวมเอาสระว่ายน้ำ, ฟิตเนส, ห้องโยคะ,
    Sky Lounge และห้อง Boxing พร้อมสวนพักผ่อน ที่ให้วิวแบบพาโนรามา

    โมเดลโครงการมุมมองจากทิศใต้จะมีในส่วนของ The Living ที่เป็นเหมือนล็อบบี้ขนาดใหญ่มีถึง 3 โซน
    ให้เลือกสำหรับพักผ่อน หรือสังสรรค์ตามต้องการ และ The Club ทางโครงการดีไซน์เสมือน
    ห้องรับรองขนาดใหญ่ทั้งอ่านหนังสือ, ห้องอเนกประสงค์, ห้องประชุม และห้องเกม

    โมเดลโครงการมุมมองจากทิศตะวันตกเป็นอีกหนึ่งโซนที่ทางโครงการจัดให้เป็นสวนพักผ่อน
    รวมอยู่กับห้องพักอาศัยบริเวณชั้น 6

    โมเดลโครงการมุมมองจากทิศใต้ ในส่วนของที่จอดรถจัดไว้ตั้งแต่บริเวณชั้น G-5 คิดเป็น 30% นับรวมจอดซ้อนคัน
    ส่วนกลางและสิ่งอำนวยความสะดวก


    Master Plan

    ภาพจำลองพื้นที่สีเขียวขนาดใหญ่กว่า 2.4 ไร่ พร้อมลู่จ็อกกิ้ง เลนจักรยาน และศาลาชมสวน

    ภาพจำลอง Guest Living

    ภาพจำลอง Resident Living

    ภาพจำลอง Social Living

    ภาพจำลอง Game Room

    ภาพจำลอง Library Room

    ภาพจำลอง Rooftop

    ภาพจำลอง Sky Fitness 

    ภาพจำลอง Fitness Room

    ภาพจำลอง Sky Lounge

    ภาพจำลอง Sky Pool
    สิ่งอำนวยความสะดวกภายในโครงการ ได้แก่ ชั้น G, ชั้น L, ชั้น M, ชั้น 4-5, ชั้น 6 และชั้น 37-38
    • ชั้น G - ชั้น 5 เป็นชั้นสำหรับที่จอดรถ 
    • ชั้น L และ ชั้น M เป็น The Living ประกอบด้วย Mail Room, Guest Living, Resident Living และSocial Living
    • ชั้น 4 และ ชั้น 5 เป็น The Club ประกอบด้วย ห้องสมุด, ห้องเล่นเกม, ห้องอเนกประสงค์ และห้องประชุม
    • ชั้น 6 มีสวนพักผ่อนที่รวมอยู่กับห้องพักอาศัยเพียง 38 ยูนิต
    • ชั้น 37 และ ชั้น 38 เป็น Rooftop ประกอบด้วย สวนพักผ่อน, ห้องฟิตเนส, Yoga Room, Boxing Room, Sky Lounge และ สระว่ายน้ำ แบบ Infinity Edge Pool ขนาด 30 x 5 เมตร พร้อมสระเด็ก 
    ภาพห้องตัวอย่างและ Lay out

    Floor Plan ชั้น 6 จะมีทั้งสวนพักผ่อน และห้องพักอาศัย
    โดยห้องแบบ Combine (2 ห้องนอน) จะมีขนาด 48 ตร.ม. และ 50 ตร.ม. ตั้งแต่ชั้น 6-36 
    ห้องขนาด 48 ตร.ม. และจะอยู่ในส่วนที่ยื่นออกมาจากตัวอาคารหันหน้าไปทางทิศเหนือและทิศใต้
    ส่วนห้องที่มีขนาด 50 ตร.ม. จะเป็นห้องมุมหันหน้าไปทางทิศใต้ 

    Floor Plan ชั้น 7-36 เป็นห้องพักอาศัยที่มีขนาดของยูนิตเหมือนกับ Floor Plan ชั้น 6 เพียงแต่
    เพิ่มห้องขนาด 24 ตร.ม.ขึ้นมา เนื่องจากตรงชั้น 6 ยุบห้องไซส์นี้ออกเพราะเป็นในส่วนของสวนพักผ่อน
    โดยมีห้องพักให้เลือกทั้งหมด 5 ขนาดด้วยกันคือ
    1. 1A ห้องแบบ 1 ห้องนอน (1 ห้องนอน, 1 ห้องน้ำ, 1 ห้องครัว) - เนื้อที่ 23.5 ตร.ม.  (คลิกเพื่อชมแปลนห้องขนาดใหญ่) 
    2. 1B ห้องแบบ 1 ห้องนอน (1 ห้องนอน, 1 ห้องน้ำ, 1 ห้องครัว) - เนื้อที่ 24 ตร.ม. (คลิกเพื่อชมแปลนห้องขนาดใหญ่)
    3. 1C ห้องแบบ 1 ห้องนอน (1 ห้องนอน, 1 ห้องน้ำ, 1 ห้องครัว) - เนื้อที่ 26.25 ตร.ม. (คลิกเพื่อชมแปลนห้องขนาดใหญ่)
    4. 2A ห้องแบบ 2 ห้องนอน (2 ห้องนอน, 2 ห้องน้ำ, 1 ห้องครัว) - เนื้อที่ 48 ตร.ม. (คลิกเพื่อชมแปลนห้องขนาดใหญ่)
    5. 2B ห้องแบบ 2 ห้องนอน (2 ห้องนอน, 2 ห้องน้ำ, 1 ห้องครัว) - เนื้อที่ 50 ตร.ม. (คลิกเพื่อชมแปลนห้องขนาดใหญ่)

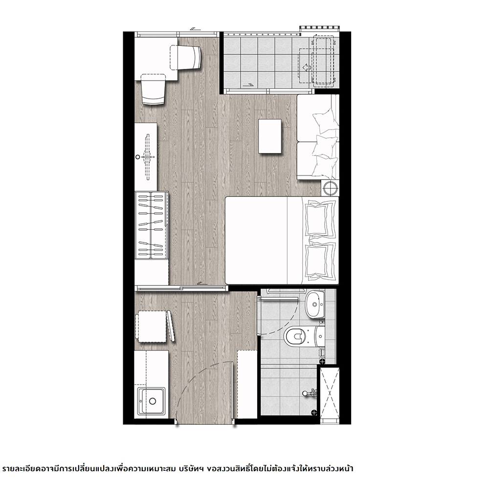
    Layout ห้องแบบ 1 ห้องนอน ขนาด 24 ตร.ม.
    1) ภาพห้องตัวอย่างแบบ 1B ห้องแบบ 1 ห้องนอน ขนาด 24 ตร.ม.

    ห้องแบบ 1B เป็นห้องที่มีขนาด 24 ตร.ม. มี 1 ห้องนอน, 1 ห้องน้ำ, 1 ห้องนั่งเล่น และ 1 ห้องครัว (แบบเปิด)
    เมื่อเปิดประตูเข้ามาจะเจอกับโซนห้องนั่งเล่น ถัดไปเป็นโต๊ะรับประทานอาหาร และระเบียง
    พื้นเป็นแบบลามิเนตหนา 8 มม.

    ยังอยู่ที่โซนห้องนั่งเล่นนะคะถ้าหันหลังให้ทีวีจะเห็นว่าทางโครงการตกแต่งเคาน์เตอร์ครัวให้อยู่ฝั่งเดียว
    กับโซฟาตามภาพ และสำหรับโครงการนี้ พฤกษาจะ Built-in เคาน์เตอร์ครัวมาให้
    และยังได้ Wallpaper สีขาวครีมด้วยค่ะ 

    เคาน์เตอร์ครัวที่ได้ก็จะมีความกว้างแบบพอประมาณ มีอ่างล้างจานสแตนเลส 1 หลุม+ก๊อกน้ำ
    และชั้นวางของ 2 จุด ที่อยู่เหนือเคาน์เตอร์ขึ้นไป ส่วนด้านล่างของเคาน์เตอร์จะเป็นช่องสำหรับ
    วางไมโครเวฟจะเห็นว่าทางโครงการไม่ได้ให้ในส่วนของ Hob และ Hood มา อาจจะเพราะห้องไซส์นี้
    ไม่เหมาะกับการทำอาหารหนักๆ ค่ะ

    ถัดออกไปจะเป็นระเบียงกระจกเขียวตัดแสงแบบ 2 บาน

    ระเบียงมีขนาดประมาณ 1x2 ม. สามารถวางเครื่องซักผ้า และก็ยังวางราวตากผ้าได้อีกนะคะ

    กลับเข้ามาภายในห้องกันค่ะ เดี๋ยวเราจะเดินเข้าไปดูในส่วนของห้องนอน และห้องน้ำกัน

    เปิดประตูเข้ามาในห้องนอนทางโครงการตกแต่งให้วางเตียงนอนใกล้กับโต๊ะเขียนหนังสือ และตรงหัวเตียง
    ติดกระจกบานใหญ่ๆ เอาไว้เพื่อให้ห้องดูกว้างขึ้น ระยะปลายเตียงกับผนังถือว่าแคบไปหน่อยค่ะ
    แต่ถ้าอยู่กันแค่ 1-2 คน ก็สบายมาก

    จะได้ตู้เสื้อผ้าด้วยนะคะสำหรับโครงการนี้ ในส่วนของห้องน้ำอาจจะเรียกได้ว่าอยู่ภายในห้องนอนเลยก็ไม่ผิด
    เพราะเมื่อเดินเลยโซนห้องนั่งเล่นเข้ามาก็จะเป็นพื้นที่ของห้องนอนทั้งหมด 

    ในห้องน้ำถูกแบ่งโซนให้แยกระหว่างพื้นที่เปียก (ฝักบัว) และพื้นที่แห้ง (สุขภัณฑ์)
    ซึ่งต้องติดม่าน หรือติดตั้ง Shower Box กันเองค่ะ

    สุขภัณฑ์ที่ได้เป็นของ American Standard ทั้งชักโครก และอ่างล้างหน้าค่ะ
    ราคาและค่าใช้จ่ายที่เกี่ยวข้องโดยประมาณ (ณ วันที่ 23 มิ.ย. 58)
    ราคาเริ่มต้น 1.39 ล้านบาท สำหรับห้องแบบสตูดิโอ ขนาด 23.5 ตร.ม.
    ค่าใช้จ่ายอื่นๆ
    ส่วนกลาง 40 บาท ต่อ ตร.ม. /เดือน ชำระล่วงหน้า 12 เดือน
    เงินกองทุนส่วนกลาง 400 บาท/ตร.ม. ชำระครั้งเดียวในวันโอนกรรมสิทธิ์
    ค่ามิเตอร์ไฟฟ้า: ผู้ซื้อเป็นผู้ชำระ
    ค่าเงินประกันมิเตอร์น้ำ: ผู้ซื้อเป็นผู้ชำระ
    ภาพรวมโดยสรุปของโครงการ
    • การเดินทางเข้าออกโครงการ - โครงการถึงจะอยู่ไกลจากกรุงเทพฯ ไปหน่อย แต่ก็ยังสามารถเชื่อมต่อได้ด้วยรถไฟฟ้าสีม่วงที่จะเปิดให้บริการปลายปี 2559 นี้ จากการที่มีรถไฟฟ้านี้ก็ทำให้บางใหญ่ที่ดูเหมือนว่าจะไกลก็กลับกลายเป็นว่าไม่ไกลจากกรุงเทพ และไม่ต้องทนกับปัญหาจราจรติดขัดอีกด้วย สถานีที่ใกล้กับโครงการมากที่สุดคือสถานีสามแยกบางใหญ่ มีระยะทางจากโครงการไปจนถึงสถานี 400 เมตร ซึ่งถือว่าไม่ไกลมากค่ะ เดินได้แต่เหนื่อยหน่อย สำหรับการเดินทางโดยรถยนต์ก็ถือว่าสะดวกค่ะ สามารถเข้าออกได้ทั้งจากถนนงามวงศ์วานเชื่อมมายังรัตนาธิเบศร์ หรือจะตรงยาวมาทางถนนราชพฤกษ์แล้วค่อยเลี้ยวเข้ามาถนนรัตนาธิเบศร์ก็ได้ อีกทั้งยังสามารถขับรถไปถนนกาญจนาภิเษกได้สะดวกอีกด้วยค่ะ เพราะสามารถเข้าไปทางลัดซอยหมู่บ้านรัตนาธิเบศร์ได้ แล้วไปทะลุออกใกล้ๆ กับโรงพยาบาลเกษมราษฎร์ค่ะ ถ้าเป็นการเดินทางด้วยรถสาธารณะก็สามารถโดยสารรถตู้ โดยต้นทางหลักก็จะมาจากทางอนุเสาวรีย์หรือสีลม ปลายทางที่บางใหญ่ค่ะ หรือจะโดยสารด้วยรถประจำทางก็ได้
    • ทำเลรอบโครงการ - สำหรับทำเลรอบๆ โครงการที่พอจะเดินไปได้ก็จะมีเซ็นทรัล เวสต์เกต ซึ่งเซ็นทรัลนี้อยู่ติดกับตัวโครงการเลยค่ะ เดินไม่กี่ก้าวก็ถึงแล้ว, 7-Eleven, ร้านอาหารหลากหลายในซอยหมู่บ้านรัตนาธิเบศร์ และธนาคารกสิกรไทย ธนาคารไทยพาณิชย์ และธนาคารกรุงศรีอยุธยาค่ะ นอกจากนั้นก็จะมีร้านเหล็กดัด ร้านขายจักรยาน ฯลฯ ไกลอีกหน่อยก็จะมีทั้งโรงพยาบาลเกษมราษฎร์ (ห่างจากโครงการ 1.5 กม.) บิ๊กซี โฮมโปร (ห่างจากโครงการ 1.6 กม.) ตลาดบางใหญ่ (ห่างจากโครงการ 1.9 กม.) อินเด็กซ์ ลิฟวิ่ง มอลล์ (ห่างจากโครงการ 1.9 กม.) หรือจะเป็นบีบีมาร์เก็ต (ห่างจากโครงการ 2 กม.)  ภาพรวมถือว่าเป็นแหล่งรวมความอำนวยความสะดวกในย่านนี้โดยไม่ต้องไปไหนไกลเลยค่ะ 
    • อาคารและตัวโครงการโดยรวม - โครงการนี้ตั้งอยู่บนพื้นที่ 4-0-96 ไร่ เป็นคอนโดมิเนียมแบบ High Rise มีความสูง 38 ชั้น 1 อาคาร โดยชั้น 7-36 เป็นห้องพักอาศัยมี 1,208 ยูนิต พร้อมจุดชมวิว และสิ่งอำนวยความสะดวกที่ถือว่าให้ค่อนข้างเยอะโดยมีชื่อเรียกของแต่ละชั้นคือ ชั้น G, ชั้น L, ชั้น M, ชั้น 4, และ ชั้น 5 โดยขอไล่จากชั้น G ขึ้นไปนะคะ เริ่มจาก The Garden เป็นพื้นที่สีเขียวรอบๆ อาคารขนาดใหญ่กว่า 2.4 ไร่ พร้อมลู่จ๊อกกิ้ง เลนจักรยาน และศาลาชมสวน ถัดเข้าไปภายในอาคารจะเป็นโซน The Living กินพื้นที่ตั้งแต่ชั้น L - M ทางโครงการจัดไว้ให้เป็น Lobby ขนาดใหญ่ 3 โซน 3 สไตล์ มีไว้สำหรับต้อนรับแขก หรือจัดปาร์ตี้สังสรรค์ตามต้องการ เดินขึ้นบันไดที่ทางโครงการเรียกว่าชั้นลอยจะอยู่ในส่วนของชั้น 4 - 5 เรียกว่า The Club เป็นเหมือนพื้นที่พิเศษ ดีไซน์ให้เป็นห้องรับรองขนาดใหญ่ เหมาะกับทุกกิจกรรม ทั้งอ่านหนังสือ เป็นห้องอเนกประสงค์ ห้องประชุม และห้องเกม จากนั้นขึ้นลิฟต์ไปที่ชั้น 37 เพื่อสัมผัสกับวิว 360 องศารวม Facility ต่างๆ ได้แก่ ห้องฟิตเนส, ห้องโยคะ, และห้องชกมวย พร้อมสวนลอยฟ้า กับสระว่ายน้ำแบบ Infinity Edge Pool และ Sky Lounge ที่อยู่บนชั้น 38 รวมทั้งชั้น 37 - 38 เรียกว่า The Sky พร้อมที่จอดรถอีกประมาณ 30% (แบบรวมจอดซ้อนคัน) สำหรับลิฟต์โดยสารมี 4 ตัว คิดเป็นอัตราส่วนการใช้ลิฟต์โดยสารอยู่ที่ประมาณ 302 ยูนิตต่อลิฟต์ 1 ตัว และลิฟต์ขนของมี 1 ตัว ด้วยตัวอาคารที่ออกแแบบมาให้มีส่วนที่ยื่นออกมาของฝั่งทิศตะวันตก และจะได้วิวที่หันหน้าไป Central West Gate ถ้าพูดถึงห้องที่ได้เปรียบก็น่าจะเป็นห้องมุม ที่มีขนาด 48 ตร.ม. เพราะจะได้วิวที่ระเบียงหันหน้าไปทางทิศใต้ กับทิศเหนือ และวิวจากหน้าต่างที่หันหน้าไปทิศตะวันตก แต่ไม่ได้หมายความว่าทิศอื่นๆ จะถูกบดบังด้วยอาคารสูงนะคะ วิวทุกทิศถือว่าดีทั้งหมด เพราะอย่างทิศตะวันออก ก็หันหน้าไปทางสถานีรถไฟฟ้าสามแยกบางใหญ่ ทิศใต้เป็นทิศหน้าโครงการติดถนนรัตนาธิเบศร์ และทิศเหนือหันหน้าไปทางหมู่บ้านรัตนาธิเบศร์
    • รูปแบบห้องและวัสดุ - โครงการนี้จะขายแบบ Fully Fitted ห้องพักอาศัยมี 2 ประเภทคือแบบ 1 ห้องนอน และ 2 ห้องนอน รวมทั้งหมด 1,208 ยูนิต โดยแบ่งสัดส่วนเป็นแบบ 1 ห้องนอน มี 3 ขนาดคือ 23.5 ตร.ม., 24 ตร.ม. และ 26.25 ตร.ม. ซึ่งทั้ง 3 ขนาดนี้ ส่วนห้องแบบ 2 ห้องนอน มี 2 ขนาดคือ 48 ตร.ม. และ 50 ตร.ม. จะขออธิบายทิศทางและวิวที่ได้ของห้องแต่ละแบบนะคะ 1) เริ่มที่ห้องขนาด 23.5 ตร.ม. เป็นห้องไซส์เล็กสุดของโครงการนี้จะเป็นห้องที่มีระเบียงยื่นออกมาเล็กน้อยโดยห้องจะมีลักษณะลึกแต่หน้าแคบ หันหน้าไปทางทิศตะวันออกได้วิวสถานีรถไฟฟ้าสามแยกบางใหญ่เช่นเดียวกับห้องขนาด 24 และ 26.25 ตร.ม.เพราะอยู่ด้านเดียวกัน 2) ถัดมาเป็นห้องขนาด 24 ตร.ม มีให้เลือกวิวถึง 3 ทิศทางคือทิศแรกเป็นฝั่งทิศตะวันออกจะได้วิวเหมือนกับห้องขนาด 23.5 ตร.ม. ทิศที่สองเป็นทิศตะวันตกซึ่งก็จะได้วิวเซ็นทรัลพลาซา เวสต์เกต และทิศเหนือหันหน้าไปทางหมู่บ้านรัตนาธิเบศร์ 3) ต่อมาเป็นห้องขนาด 48 ตร.ม. และยังเป็นห้องมุมที่มีวิวให้เลือก 2 ฝั่ง ฝั่งแรกได้วิวจากทิศใต้ (ในส่วนของระเบียงห้อง) คือวิวของถนนรัตนาธิเบศร์ที่อยู่ด้านหน้าโครงการ ต่อเนื่องกันกับวิวฝั่งทิศตะวันตก (ในส่วนของหน้าต่างภายในห้อง) และทิศนี้จะใช้วิวร่วมกันกับฝั่งที่สองซึ่งก็คือห้องมุมที่ได้วิวทิศเหนือ หันหน้าไปทางหมู่บ้านรัตนาธิเบศร์นั่นเองค่ะ และ 4) ห้องขนาดสุดท้าย 50 ตร.ม. หันหน้าไปทางทิศใต้ ทิศเดียวกับห้องขนาด 48 ตร.ม. ค่ะ โดยในแต่ละห้องมีเพดานสูง 2.55 เมตร พื้นเป็นลามิเนต หนา 8 มม. เฟอร์นิเจอร์ที่ได้ซึ่งเป็นแบบบิวท์อินก็จะมี ชุดเคาน์เตอร์ครัวแต่เสียดายที่ไม่ได้ให้ Hob และ Hood มาด้วย, ตู้เสื้อผ้าขนาดกำลังพอดี, วอลล์เปเปอร์ให้สีขาวออกครีม และแบรนด์สุขภัณฑ์สำหรับห้องน้ำจะเป็นของ American Standard หรือเทียบเท่า ของโครงการเน้นการใช้ประโยชน์เป็นหลัก 
    สถานะปัจจุบันของโครงการ  (ณ วันที่ 23 มิ.ย. 58)
    โครงการ พลัมคอนโด เซ็นทรัล สเตชั่น (Plum Condo Central Station) เริ่มเปิดให้ลงทะเบียนเมื่อเดือนพฤษภาคม 2558 ที่ผ่านมา โดยจะเปิด Pre-Sales ในวันที่ 15-16 สิงหาคม 2558 คาดว่าจะเริ่มก่อสร้างประมาณเดือนกันยายน 2558 และคาดว่าจะแล้วเสร็จประมาณเดือนมีนาคม 2561
    สอบถามข้อมูลเพิ่มเติมได้ที่ โทร. 1739 หรือ www.pruksa.com

    รีวิว-พรีวิวล่าสุดอื่นๆ

    คอนโดติดรถไฟฟ้าล่าสุด

เว็บไซต์นี้มีการเก็บคุกกี้เพื่อเพิ่มความพึงพอใจในการใช้งานเว็บไซต์ และช่วยให้เราปรับปรุง และนำเสนอเนื้อหาตรงตามความสนใจของท่าน ท่านสามารถดู Privacy Notice และ ดู Cookies Policy ของเราได้ ที่นี่ ทั้งนี้ ท่านจะยินยอมให้เราเก็บคุกกี้ทั้งหมด หรือให้เก็บแค่บางส่วนโดยการคลิกเลือก ตั้งค่า

ท่านสามารถเลือกให้ความยินยอมการเก็บคุกกี้เป็นเรื่องๆ ได้ที่นี่

เมื่อคุณเข้าชมเว็บไซต์ หรือแอปพลิเคชั่น checkraka เราอาจจัดเก็บ หรือดึงข้อมูลจากเบราว์เซอร์ของคุณในรูปแบบของคุกกี้ และเทคโนโลยีอื่นที่คล้ายคลึง เช่น tag และ pixel (เรียกรวมกันว่า “คุกกี้”) ซึ่งมักเป็นข้อมูลที่ไม่สามารถระบุตัวตนได้โดยตรง แต่ช่วยให้คุณใช้งานเว็บไซต์ได้ปลอดภัย และตรงตามความต้องการมากขึ้น คุณอาจไม่ยินยอมให้เราเก็บคุกกี้บางประเภทได้ โดยการคลิกตามหัวข้อข้างล่างนี้

ประเภทคุกกี้
อ่านเพิ่มเติม ที่นี่
ยินยอม / ไม่ยินยอม
คุกกี้ที่จำเป็นต้องมีเสมอ
(Strictly Necessary)
คุกกี้สำหรับการใช้งานเว็บไซต์
(Functionality)
คุกกี้เพื่อเพิ่มประสิทธิภาพและวิเคราะห์
(Performance & Analytics)
คุกกี้เพื่อการตลาด
(Marketing)